Таблица Л.9 Условные графические обозначения баз хранения, переработки и погрузки противогололедных материалов
Наименование |
Условное графическое изображение |
|
|
базы |
|
|
|
технологический разрез |
|
вид сверху |
|
1 |
2 |
|
3 |
1. Прирельсовая (притрассовая) высоко- |
|
|
|
механизированная капитального типа |
|
|
|
база хранения, переработки и погрузки |
|
|
|
противогололедных материалов: |
|
|
|
1 – элеватор; 2 – соляная смесь; 3 – песчано- |
|
|
|
соляная смесь; 4 – бункер выдачи; 5 – песок; |
|
|
|
6 – конвейер; 7 – вибролотки; 8 – отстойник; |
|
|
|
9 – склад шлака; 10 – склад угля; 11 – охлади- |
|
|
|
тельный колодец; 12 – контора; 13 – открытый |
|
|
|
склад; 14 – помещение бункера выдачи; |
|
|
|
1 5– теплый склад |
|
|
|
|
|
|
|
2. Притрассовая упрощенного типа |
|
|
|
база хранения, переработки и погрузки |
|
|
|
противогололедных материалов: |
|
|
|
1 – отсев щебня (песчано-гравийная смесь); |
|
|
|
2 – песок; 3 – контора; 4 – бункер выдачи; |
|
|
|
5 – подбункер |
|
|
|
|
|
|
|
Таблица Л.10 Условные графические обозначения схем планов производственных предприятий дорожного строительства
|
|
Наименование |
|
Условное графическое изображение |
|
|
производственного предприятия |
|
|
|
|
|
|
|
|
|
1 |
|
2 |
|
1. |
Парк дорожно-строительных машин: |
|
|
|
1 – |
служебные помещения; 2 – газоны; 3 – склад ГСМ; |
|
|
|
4 – пост заправки машин; 5 – пост контрольного осмот- |
|
||
|
ра; 6 – площадка для стоянки ходовых машин; 7 – навес |
|
||
|
для ходовых машин; 8 – склад материалов и запчастей; |
|
||
|
9 – площадка для ремонтов; 10 – ремонтная мастерская; |
|
||
|
11 – электростанция; 12 – навес для машин, находящихся |
|
||
|
на консервации; 13 – площадка для стоянки машин, на- |
|
||
|
ходящихся на консервации; 14 – пост технического об- |
|
||
|
служивания; 15 – пост очистки и мойки; 16 – вспомога- |
|
||
|
тельные помещения |
|
|
|
126 |
|
|
|
|
|
2. |
Карьерная передвижная дробильно- |
|
|
|
сортировочная установка ПДСУ-25: |
|
|
|
|
1 – эстакада; 2 – агрегат дробления; 3 – агрегат сорти- |
|
||
|
ровки; 4 – конвейер; 5 – поворотная тележка; |
6 – погру- |
|
|
|
зочный бункер; 7 – электростанция; 8 – цистерны склада |
|
||
|
ГСМ; 9 – туалет; 10 – душевая; 11 – столовая; 12 – кон- |
|
||
|
тора; 13 – ремонтно-механическое отделение; 14 – куз- |
|
||
|
нечно-сварочное отделение; 15 – материальнотехниче- |
|
||
|
ский склад |
|
|
|
|
|
|
|
|
Продолжение таблицы Л.10 |
|
|
|||
|
|
|
|
|
|
|
|
|
1 |
|
2 |
|
3. |
Прирельсовый цементобетонный |
|
|
|
|
|
завод производительностью 240 м3 /ч: |
|
|
|
|
1 |
– склад каменных материалов 2 – склад нефтепродуктов |
|
||
|
3 – туалет 4 – канализационные очистные сооружения |
5 – ком- |
|
||
|
прессорная установка 6 – два силосных склада цемента 7 – хра- |
|
|||
|
нилище пленкообразующих материалов 8 – трансформаторная |
|
|||
|
подстанция 9 – узел приготовления водных растворов добавок |
|
|||
|
10 – разгрузочная рампа 11 – весовая с автомобильными весами |
|
|||
|
грузоподъемностью 30 т 12 – буфет 13 – лаборатория |
14 – ме- |
|
||
|
ханическая мастерская 15 – бытовые помещения 16 – площадка |
|
|||
|
для открытых ремонтных работ 17 – материально-технический |
|
|||
|
склад 18, 21 – артезианские скважины 20, 23, 30 – комплекс |
|
|||
|
служебных и вспомогательных помещений 22 – котельная |
|
|||
|
25 – отделение подачи каменных материалов 26 – отделение |
|
|||
|
грохочения песка 28 – битумохранилище 29 – навес для тарного |
|
|||
|
хранения материалов |
|
|
||
|
|
|
|
||
|
4. Притрассовый цементобетонный завод |
|
|
||
|
|
производительностью 120 м3 /ч: |
|
|
|
|
1 – склад каменных материалов; 2 – отделение подачи камен- |
|
|||
|
ных материалов (2 отделения); 3 – бетоносмесительное отде- |
|
|||
|
ление; 4 – компрессорная установка; 5, 6 – склады цемента |
|
|||
|
емкостью 300 т; 7 – отделение для приготовления водных рас- |
|
|||
|
творов добавок; |
8 – резервуары для запаса воды емкостью |
|
||
|
50 м3; 9 – трансформаторная подстанция; 10 – резервуар для |
|
|||
|
запаса воды емкостью 50 м3; 11 – навес для тарного хранения |
|
|||
|
материалов; 12 – склад нефтепродуктов емкостью |
25 м3; |
|
||
|
13 |
– котельная; |
14 – ремонтно-механическая мастерская; |
|
|
|
15 –площадка для открытых ремонтных работ; 16 – туалеты; |
|
|||
|
17 – буфет; 18 – контора, лаборатория; 19 – бытовые помеще- |
|
|||
|
ния; 20 – весовая с автомобильными весами грузоподъемно- |
|
|||
|
стью 30 т |
|
|
|
|
|
|
|
|
|
|
Продолжение таблицы Л.10 |
|
|
|
||
|
|
|
|
|
|
|
1 |
|
|
2 |
|
5. |
Притрассовая передвижная грунтосмесительная уста- |
|
|||
|
новка ДС-50А: |
|
|
|
|
1 |
– склад песчано-гравийной |
смеси вместимостью |
|
||
60 тыс. м3; 2 – отделение подачи заполнителей; 3 – си- |
|
||||
лосный склад цемента вместимостью 60 т; 4 – грунтосме- |
|
||||
сительное отделение на базе трех смесителей ДС-50А; |
|
||||
5 – резервуары для воды; 6 – компрессорная установка на |
|
||||
два компрессора ПР-10М; 7 – трансформаторная подстан- |
|
||||
ция; 9 – резервуары противопожарного запаса воды; |
|
||||
10 – котельная; 11 – ремонтно-механическая мастерская; |
|
||||
12 – площадка для открытых ремонтных работ; 13 – мате- |
11 |
||||
риально технический склад; 14 – туалет; 15 – буфет; |
|||||
|
|||||
16 – бытовые помещения; 17 |
– |
контора, лаборатория; |
|
||
18 – весовая с автомобильными весами; 19 – канализаци- |
|
||||
онные очистные сооружения |
|
|
|
||
|
|
|
|||
6. |
Прирельсовый асфальтобетонный завод |
|
|||
|
производительностью 50 т/ч: |
|
|
||
1 – склад заполнителей емкостью I9 000 м3 2 – отделение |
|
||||
подачи заполнителей; 3 – силосный склад минерального |
|
||||
порошка емкостью 960 т; 4 – битумохранилище емко- |
|
||||
стью 1000 т; 5 – битyмoплавильнaя установка; 6 – склад |
|
||||
ГСМ емкостью 350 м3; 7 – асфальтосмесительное отделе- |
|
||||
ние; 8 – трубопроводы минерального порошка; |
|
||||
9 – битумопроводы; 10 – мазутопроводы; 11 – тепловой |
|
||||
пункт на два парообразователя; 12 – трансформаторная |
|
||||
подстанция; 13 – весовая с |
автомобильными весами; |
|
|||
14 – ремонтно-механическая мастерская; 15 – контора, |
|
||||
лаборатория; 16 – бытовые |
помещения; 17 – буфет; |
|
|||
18 – навес для тарного хранения материалов; 19 – резер- |
|
||||
вуары противопожарного запаса воды; 20 – туалет |
|
||||
|
|
|
|
|
|
Продолжение таблицы Л.10
1 |
2 |
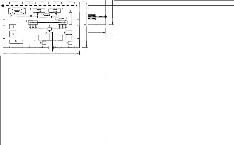
7. База по приготовлению черного щебня:
1 – склад фракционного щебня; 2 – смесительная установка; 3 – склад холодного черного щебня; 4 – битумохранилище; 5 – битумоплавильня; 6 – котельная; 7 – пожарный резервуар; 8 – склад ГСМ; 9 – насосная; 10 – склад тарного хранения ГСМ; 11 – административ- но-производственный корпус; 12 – весовая, проходная; 13 – отделение для приготовления добавок; 14 – площадка для разгрузки; 15 – туалет; 16 – трансформаторная подстанция
8. Прирельсовая битумная база:
1 – битумохранилища крытого типа с нагревательноперекачивающими агрегатами; 2 – преобразователь; 3, 8 – шестеренные насосы; 4 – обезвоживающие установки для нагрева битума до рабочей температуры;
5 – противопожарное оборудование; 6 – бытовые помещения; 7 – туалет; 9 – цистерны с обогревом для хранения битума; 10 – охрана; 11 – контора; 12 – ремонтномеханические мастерские; 13 – лаборатория