Окончание табл.8
|
1 |
2 |
3 |
4 |
5 |
6 |
7 |
8 |
9 |
10 |
11 |
12 |
13 |
|
|
|
|
|
|
|
|
|
|
|
|
|
|
|
|
|
углинки |
0≤IL≤0,25 |
– |
34 |
27 |
22 |
17 |
14 |
11 |
– |
– |
– |
– |
|
|
|
|
|
|
|
|
|
|
|
|
|
|
|
|
|
0,25≤IL≤0,50 |
– |
32 |
25 |
19 |
14 |
11 |
8 |
– |
– |
– |
– |
|
|
|
|
|
||||||||||||
|
|
0,50≤IL≤0,75 |
– |
– |
– |
17 |
12 |
8 |
6 |
5 |
– |
– |
– |
|
|
|
|
|
|
|
|
|
|
|
|
|
|
|
|
СибАДИ2 aQIII 0,85 |
12 |
– |
– |
– |
||||||||||
|
|
0≤IL≤0,25 |
– |
– |
28 |
24 |
21 |
18 |
15 |
|
||||
|
Глины |
0,25≤IL≤0,50 |
– |
– |
– |
21 |
18 |
15 |
12 |
9 |
– |
– |
– |
|
|
|
0,50≤IL≤0,75 |
– |
– |
– |
– |
15 |
12 |
9 |
7 |
– |
– |
– |
|
Примечан е. Для промежуточных значений IL е: Е определяется по интерполяции
Полученные значен я заносят в табл. 9.
|
|
|
|
|
|
|
|
|
Таблица 9 |
|
Нормат вные |
расчетные значения физико-механических характеристик |
|||||||||
|
|
|
грунтов основания |
|
|
|
|
|||
ИГЭ№ |
Индекс |
Описание |
|
характеристикаСтатистическая |
Показательтекучести |
грунтаПлотностьв природном состоянии, г/см3 |
частицПлотностьгрунта, г/см3 |
деформацииМодульпри привлажностиродной, МПа |
внутреннегоУголтрения при влажностиприродной, град. |
сцеплениеУдельноепри привлажностиродной, кПа |
|
|
|
|
|
|
|
|
|
|
|
|
|
ИГЭ |
|
|
|
|
|
|
|
|
|
|
|
|
|
|
|
|
|
|
|
|
aQIII |
|
|
Xn |
|
|
|
|
|
|
1 |
|
|
0,85 |
|
|
|
|
|
|
|
|
|
|
|
0,95 |
|
|
|
|
|
|
|
|
|
|
Xn |
|
|
|
|
|
|
|
|
|
|
0,95 |
|
|
|
|
|
|
|
aQIII |
|
|
Xn |
|
|
|
|
|
|
3 |
|
|
0,85 |
|
|
|
|
|
|
|
|
|
|
|
0,95 |
|
|
|
|
|
|
Примечание:Xn – нормативные значения характеристик; 0,85 – значения характеристик при доверительной вероятности 0,85; 0,95 – значения характеристик при доверительной вероятности 0,95
11
Определение расчетного сопротивления грунтов основания реко- |
|||||||||||||||||||||||
мендуется выполнять послойно сверху вниз. |
|
|
|
|
|
|
|
|
|
|
|
||||||||||||
Расчетное сопротивление грунта Ri рассчитывается по формуле [5] |
|||||||||||||||||||||||
в точках, указанных на схеме (рис.2). Первое значение R1 определяет- |
|||||||||||||||||||||||
ся на глубине d1=1,50 м |
|
|
|
|
|
|
|
|
|
|
|
|
|
|
|
|
|
|
|
|
|||
|
R с1 |
с2 М |
|
k |
z |
b |
II |
M |
d ' |
(М |
q |
1)d |
b |
|
/ |
M |
c |
c |
II |
. |
(4) |
||
|
|
k |
|
|
|
|
|
q 1 II |
|
|
|
II |
|
|
|
|
|||||||
|
|
DL |
|
|
|
|
|
|
|
|
|
|
|
|
|
|
|
|
|
|
|
|
|
|
|
WL |
|
|
|
|
|
|
|
|
E1,МПа |
|
d1=1,50м |
|
|
|
|
|
|
||||
|
|
|
|
Y |
|
|
,кН/м3 |
|
|
|
|
|
|
|
|
|
|
|
|||||
|
|
|
|
|
II(1) |
|
|
|
с1,кПа |
|
|
|
|
|
|
|
|
|
|
|
|||
ИГЭ-1 |
h1,м |
|
|
|
YII(1)взв |
|
,кН/м3 |
|
|
|
|
|
|
|
|
|
|
|
|||||
|
|
|
|
1,град |
|
|
|
|
|
м |
|
|
|
|
|||||||||
IL,д.е. |
|
1 |
|
|
|
|
|
|
|
|
|
|
|
|
|
|
|
d2, |
|
|
|
|
|
|
|
|
|
|
|
|
|
|
|
|
|
|
|
|
|
|
|
|
|
|
|
|
|
|
|
|
|
|
Y |
|
|
,кН/м3 |
E2,МПа |
|
|
|
|
|
|
|
|
d3,м |
|
||||
|
|
|
|
|
|
|
|
|
|
|
|
|
|
|
|
|
|
||||||
|
|
|
|
|
|
II(2) |
|
|
|
с2,кПа |
|
|
|
|
|
|
|
|
|
|
|
||
ИГЭ-2 |
h2,м |
|
|
|
Yвзв |
|
,кН/м3 |
|
|
|
|
|
|
|
|
|
|
d4,м |
|||||
2 |
|
|
II(2) |
|
|
|
2,град |
|
|
|
|
|
|
|
|
|
|
||||||
IL,д.е. |
|
|
|
|
|
|
|
|
|
|
|
|
|
|
|
|
|
|
|
|
|
|
|
|
|
|
|
|
Y |
|
|
,кН/м3 |
E3,МПа |
|
|
|
|
|
|
|
|
|
|
|
|||
ИГЭ-3 h3=1,0м |
|
|
II(3) |
|
|
|
с3,кПа |
|
|
|
|
|
|
|
|
|
|
|
|||||
|
|
Y |
взв |
,кН/м3 |
|
|
|
|
|
|
|
|
|
|
|
||||||||
|
|
,град |
|
|
|
|
|
|
|
|
|
|
|
||||||||||
IL,д.е. |
|
|
|
|
II(3) |
|
|
|
|
|
|
|
|
|
|
|
|
|
|
||||
|
|
|
|
|
|
|
|
|
|
|
|
|
|
|
|
|
|
|
|
|
|
|
|
Рис. 2. Исходные данные к определению расчетного сопротивления грунтов |
|||||||||||||||||||||||
основания и их оценке: ИГЭ – 1..3 (инженерно-геологические элементы осно- |
|||||||||||||||||||||||
вания); IL – показатель текучести; hi — мощность i-го слоя грунта; DL – уровень |
|||||||||||||||||||||||
планировки (в контрольной работе ± 0,00), WL – уровень подземных вод, 1,2 – |
|||||||||||||||||||||||
отметки кровли второго |
третьего слоёв; , взв – удельный вес грунта и удель- |
||||||||||||||||||||||
|
|
|
|
|
|
|
|
|
|
|
II,i |
II,i |
|
|
|
|
|
|
|
|
|
|
|
ный вес грунта во взвешенном состоянии; Ri – расчетное сопротивление i-го слоя |
|||||||||||||||||||||||
грунта; Ei – модуль деформации i-го грунта; d1,i – глубина заложения фундамен- |
|||||||||||||||||||||||
|
|
|
тов, м, от уровня планировки |
|
|
|
|
|
|
|
|
|
|
||||||||||
СибАДИ |
|||||||||||||||||||||||
Так как проектируемое здание не имеет подвала (db=0), то для ка- |
|||||||||||||||||||||||
ждого |
ИГЭ (инженерно-геологического элемента) основания, расчет- |
||||||||||||||||||||||
ное сопротивление грунта Ri |
определяется по формуле |
|
|
|
|
|
|
|
|||||||||||||||
R с1 c2 M |
kzb II |
MqdI 'II |
MccII , |
(5) |
k |
|
|
|
|
12
где с1, с2 – коэффициенты условий работы, принимаются по табл.10, в зависимости от разновидности грунта, для песков от степени влажности, для пылевато-глинистых грунтов от показателя текучести IL.
|
|
|
Коэффициенты условий работы с1 , с2 |
Таблица 10 |
||||
|
|
|
|
|
||||
СибАДИ |
||||||||
|
|
|
(Извлечение из СП 22.1333–2016[3]) |
|
|
|||
|
|
|
|
|
Коэффициент с2 |
для сооружений с |
|
|
|
Грунты |
|
Коэффициент |
жесткой конструктивной схемой при |
|
|||
|
|
|
|
с2 |
отношении длины сооружения или его |
|
||
|
|
|
|
отсека к высоте L/H, равном |
|
|||
|
|
|
|
|
4 и более |
|
1,5 и менее |
|
|
Крупнообломочные с пес- |
1,4 |
1,2 |
|
1,4 |
|
||
|
чаным заполн телем пес- |
|
|
|
|
|
||
|
ки, кроме мелк х |
пылева- |
|
|
|
|
|
|
|
тых |
|
|
|
|
|
|
|
|
Пески мелк е |
|
|
1,3 |
1,1 |
|
1,3 |
|
|
Пески пылеватые: |
|
|
|
|
|
|
|
|
маловлажные |
влажные |
1,25 |
1,0 |
|
1,2 |
|
|
|
насыщенные водой |
1,1 |
1,0 |
|
1,2 |
|
||
|
Пылевато-глинистые, а |
1,25 |
1,0 |
|
1,1 |
|
||
|
также крупнообломочные с |
|
|
|
|
|
||
|
пылевато-глинис-тым за- |
|
|
|
|
|
||
|
полнителем с показателем |
|
|
|
|
|
||
|
текучести грунта или за- |
|
|
|
|
|
||
|
полнителя |
0,25 |
|
|
|
|
|
|
|
То же, при 0,25 |
|
0,5 |
1,2 |
1,0 |
|
1,1 |
|
|
|
|
|
|
|
|
||
|
То же, при |
0,5 |
1,1 |
1,0 |
|
1,0 |
|
|
|
|
|
|
|
|
|||
|
Примечание: 1. Для зданий |
с гибкой конструктивной схемой значение коэффи- |
||||||
|
циента с2 принимают равным единице. 2 При промежуточных значениях L/H |
|||||||
|
коэффициент с2 |
определяют интерполяцией. |
|
|
||||
k – коэффициент, принимаемый равным = 1,1, т.к. прочностные характеристики грунта ( n сn) определены по табл. 4,5,6[5]; М , Мq, Мс – коэффициенты, принимаемые по табл. 11, в зависимо-
сти от угла внутреннего трения II, град.;
kz – коэффициент (для предварительной оценки грунтов основания) принимается равным 1,0 (при b 10 м);
13
|
|
|
|
|
|
|
Таблица 11 |
|||
|
Коэффициенты М , Мq, Мс (Извлечение из СП 22.1333–2016[3]) |
|
|
|||||||
|
|
|
|
|
|
|
|
|
|
|
|
Угол |
Коэффициенты |
Угол |
Коэффициенты |
||||||
|
внутреннего |
|
|
|
внутреннего |
|
|
|
|
|
|
трения |
|
|
|
трения |
|
|
|
|
|
|
, град. |
|
|
|
, град. |
|
|
|
|
|
|
СибАДИ |
7 |
|
|
||||||
|
1 |
2 |
3 |
4 |
5 |
6 |
|
8 |
|
|
|
0 |
0 |
1,00 |
3,14 |
23 |
0,66 |
3,65 |
|
6,24 |
|
|
1 |
0,01 |
1,06 |
3,23 |
24 |
0,72 |
3,87 |
|
6,45 |
|
|
2 |
0,03 |
1,12 |
3,32 |
25 |
0,78 |
4,11 |
|
6,67 |
|
|
3 |
0,04 |
1,18 |
3,41 |
26 |
0,84 |
4,37 |
|
6,90 |
|
|
4 |
0,06 |
1,25 |
3,51 |
27 |
0,91 |
4,64 |
|
7,14 |
|
|
5 |
0,08 |
1,32 |
3,61 |
28 |
0,98 |
4,93 |
|
7,40 |
|
|
6 |
0,10 |
1,39 |
3,71 |
29 |
1,06 |
5,25 |
|
7,67 |
|
|
7 |
0,12 |
1,47 |
3,82 |
30 |
1,15 |
5,59 |
|
7,95 |
|
|
8 |
0,14 |
1,55 |
3,93 |
31 |
1,24 |
5,95 |
|
8,24 |
|
|
9 |
0,16 |
1,64 |
4,05 |
32 |
1,34 |
6,34 |
|
8,55 |
|
|
10 |
0,18 |
1,73 |
4,17 |
33 |
1,44 |
6,76 |
|
8,88 |
|
|
11 |
0,21 |
1,83 |
4,29 |
34 |
1,55 |
7,22 |
|
9,22 |
|
|
12 |
0,23 |
1,94 |
4,42 |
35 |
1,68 |
7,71 |
|
9,58 |
|
|
13 |
0,26 |
2,05 |
4,55 |
36 |
1,81 |
8,24 |
|
9,97 |
|
|
14 |
0,29 |
2,17 |
4,69 |
37 |
1,95 |
8,81 |
|
10,37 |
|
|
15 |
0,32 |
2,30 |
4,84 |
38 |
2,11 |
9,44 |
|
10,80 |
|
|
16 |
0,36 |
2,43 |
4,99 |
39 |
2,28 |
10,11 |
|
11,25 |
|
|
17 |
0,39 |
2,57 |
5,15 |
40 |
2,46 |
10,85 |
|
11,73 |
|
|
18 |
0,43 |
2,73 |
5,31 |
41 |
2,66 |
11,64 |
|
12,24 |
|
|
19 |
0,47 |
2,89 |
5,48 |
42 |
2,88 |
12,51 |
|
12,79 |
|
|
20 |
0,51 |
3,06 |
5,66 |
43 |
3,12 |
13,46 |
|
13,37 |
|
|
21 |
0,56 |
3,24 |
5,84 |
44 |
3,38 |
14,50 |
|
13,98 |
|
|
22 |
0,61 |
3,44 |
6,04 |
45 |
3,66 |
15,64 |
|
14,64 |
|
b – ширина подошвы фундамента, м, для предварительной оценки грунтов основания, в задаче принимается b=1м;
γІІ – осредненное расчетное значение удельного веса грунтов, залегающих ниже подошвы фундамента (при наличии подземных вод определяется с учетом взвешивающего действия воды), кН/м3;
d1– глубина заложения фундамента сооружения без подвала принимается от уровня планировки DL, для первого значение R1 принимают на глубине d1 =1,5 м, рис.2;
II' –осредненное расчетное значение удельного веса грунтов, залегающих выше подошвы фундамента (от уровня планировкиDL до подошвы фундамента, где определяется Ri , при наличии подземных
вод определяется с учетом взвешивающего действия воды – IIвзв ), кН/м3;
14
с – расчетное значение удельного сцепления грунта, залегающего непосредственно под подошвой фундамента, кПа.
После определения Ri их численные значения показывают на схеме (рис.2). Здесь же приводят значения модулей деформации грунтов Еi.
На основе анализа полученных значений Ri должно быть сделано Сзаключениеибо характере распределенияАДИнесущей способности грунтов по глуб не выделен грунт, обладающий максимальной несущей способностью. Также необходимо послойно оценить сжимаемость
грунтов по значен ю Еi , выделен слабый грунт.
Вар анты нагрузок на уровне обреза фундамента приведены в табл. 12. Схема пр ложен я нагрузок, рис.3[4].
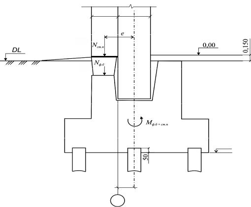
ст. п hк
Рис.3. Схема приложения нагрузок от стенового ограждения: Ncm.п, – вес стеновых панелей, кН; NФ.б – вес фундаментных балок, кН;
е– эксцентриситет приложения нагрузки, м; Mст.п ф.б – момент от стенового ограждения и фундаментной балки, кН·м
15