Материал: 1780

Внимание! Если размещение файла нарушает Ваши авторские права, то обязательно сообщите нам

С

 

 

 

 

 

и

Д

 

 

 

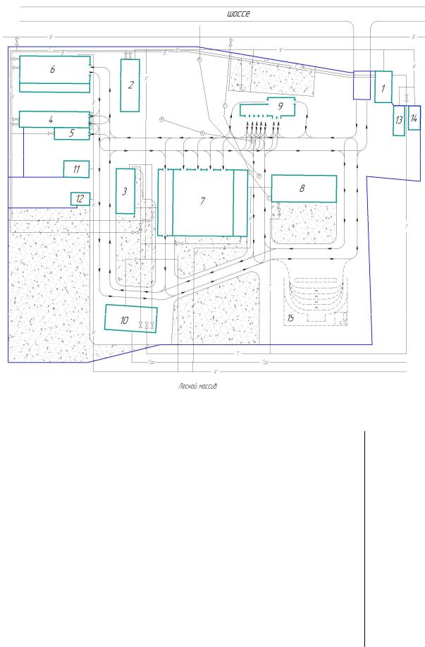
бАРис. 1. План производственного объекта. Масштаб 1:1000.

 

 

 

Табл. 1. Состав объекта и численность работающих

 

Наименование

 

Количество работающих

 

 

1

КПП

 

5

И

 

 

 

 

 

2

АБК-1

 

12

 

 

 

3

АБК-2

 

14

 

 

 

4

Теплая стоянка

 

3

 

 

 

5

Сварочный цех

 

3

 

 

 

6

РММ-1

 

5

 

 

 

7

РММ-2

 

7

 

 

 

8

Служебное помещение

5

 

 

 

9

РММ-3

 

7

 

 

 

10

Котельная

 

2

 

 

 

11

Арочник

 

2

 

 

 

12

Кузница

 

4

 

 

 

13

Гараж

 

3

 

 

 

14

Гараж

 

5

 

 

 

15

АГНКС

 

3

 

 

6

На открытой территории производственного объекта каждый час наблюдается появление 5 человек.

Вне территории производственного объекта, численность населения определяется пропорционально этажности жилой застройки.

Вариант 2.

План производственного объекта представлен на рисунке 2. Данные статистической отчетности по аварийности на объекте представлены в таблице 2. По результатам проведенных технических расследований аварий и идентификации опасностей этих аварий, был определен основной поражающий фактор (опасный производственный фактор): тепловое излучение при горении.

С

 

 

Табл. 2. Статистика аварий.

наблюдений

Число аварий

 

Январь

 

16

 

Февраль

 

8

 

Период

 

 

Март

 

11

 

Апрель

 

16

 

Май

 

14

 

Июнь

 

9

 

Июль

 

8

 

 

вгуст

 

19

 

 

Сентя рь

 

28

 

 

Октя рь

 

17

 

 

Ноя рь

 

14

 

 

Дека рь

 

14

 

Расположение о ъекта: 54.8774710с.ш.,

73.1270620в.д.. При определении

вероятности возникновения аварии использовать Биномиальное распределение.

бА

 

Д

 

 

 

И

Рис. 2. План производственного объекта. Масштаб 1:3000.

7

В таблице 3 представлена общая численность работающих на объекте. На открытой территории производственного объекта каждый час наблюдается появление 8 человек.

Вне территории производственного объекта, численность населения определяется пропорционально этажности жилой застройки.

Табл. 3. Состав объекта и численность работающих

 

 

Наименование

 

 

 

Кол-во работающих

 

С

Технологическая установка

 

 

2

 

1

 

 

 

 

 

2

 

Печь подогрева (3)

 

 

 

 

 

 

3

 

Насосный блок (5)

 

 

 

 

 

 

4

 

Резервуар нефти РВС-1000 (7)

 

 

 

 

 

5

 

Резервуар нефти РВС-1000 (8)

 

 

 

 

 

6

 

Установка ввода дезимульгатора (12)

 

 

 

 

 

и

 

 

 

 

 

7

 

Авар

йная емкость, 10 м3 (13)

 

 

 

 

 

8

 

Канал

зац онная емкость (14)

 

 

 

 

 

9

 

Факельная с стема (15)

 

 

 

 

 

 

10

 

Прот вопожарная насосная (19)

 

 

 

 

11

бА

 

 

 

 

Насосная раствора пеноо

разователя (21)

 

 

 

 

12

 

Резервуар раствора пеноо

разователя (22)

 

 

 

 

13

 

Камера задв жек пожаротушения (24)

 

 

 

 

 

14

 

Камера пожарных гидрантов (25)

 

 

 

 

 

15

 

Резервуар пожарного запаса воды (300 м3) (27)

 

 

 

 

16

 

Резервуар пожарного запаса воды (300 м3) (28)

 

 

 

 

17

 

Артезианские скважины с водоподкотовкой

 

 

 

 

 

(29)

 

 

 

 

 

 

 

18

 

Установка о езжелезования воды (31)

 

 

 

 

 

19

 

Резервуар чистой воды (2 шт. 50 м3) (40)

 

 

 

 

 

20

 

Насосная станция (41)

 

 

 

3

 

 

21

 

КТП с низковольтным распредустройством

 

 

 

 

 

(42)

 

 

 

 

 

 

 

22

 

Операторная (43)

 

 

 

5

 

 

23

 

Котельная (44)

 

 

 

2

 

 

24

 

Дизельная электростанция (45)

 

 

 

 

 

25

 

Емкость дизельного топлива (46)

 

 

 

 

26

 

Компрессорная (51)

 

 

И

 

 

 

 

Д

 

27

 

Резервуар пожарного запаса воды (57)

28

 

Бокс хранения пожарного инвентаря (58)

 

 

 

29

 

Камера пожарных гидрантов (63)

 

 

 

 

 

30

 

Вспомогательный бокс (64)

 

 

3

 

 

31

 

Пневмонасосная (65)

 

 

 

1

 

Вариант 3.

На рисунке 3 представлен план производственного объекта. Данные статистической отчетности по аварийности на объекте представлены в таблице 4. По результатам проведенных технических расследований аварий и идентификации опасностей этих аварий, был определен основной поражающий фактор (опасный производственный фактор): химическое заражение местности. Основным аварийно химически опасным веществом на объекте является хлор.

Расположение объекта: 55.0717950с.ш., 73.1604500в.д.. При определении вероятности возникновения аварии использовать экспоненциальное распределение.

8

Общая численность работающих на объекте представлена в таблице 3. Вне территории производственного объекта, численность населения определяется пропорционально этажности жилой застройки.

 

 

 

 

 

 

 

 

 

 

Табл. 4. Статистика аварий.

С

Период наблюдений

Количество инцидентов

 

 

 

 

 

Январь

 

 

21

 

 

 

 

 

 

Февраль

 

 

13

 

 

 

 

 

 

 

 

 

 

 

 

 

 

 

 

 

 

 

 

 

 

Март

 

 

20

 

 

 

 

 

 

 

 

 

 

Апрель

 

 

14

 

 

 

 

 

 

 

 

 

 

Май

 

 

18

 

 

 

 

 

 

 

 

 

 

Июнь

 

 

12

 

 

 

 

и

 

 

23

 

 

 

 

 

 

 

 

 

 

Июль

 

 

 

 

 

 

 

 

 

 

 

 

Август

 

 

24

 

 

 

 

 

 

 

 

 

 

Сентябрь

 

 

0

 

 

 

 

 

 

 

 

 

 

Октя рь

 

 

0

 

 

 

 

 

 

 

 

 

 

Ноя рь

 

 

0

 

 

 

 

 

 

 

 

Табл

 

0

 

 

 

 

 

 

 

 

 

 

Дека рь

 

 

 

 

 

 

 

 

 

 

 

 

 

 

. 5. Состав объекта и численность работающих

 

 

На менован е

 

 

 

Кол-во работающих

 

 

 

1

 

КПП

 

 

 

 

 

5

 

 

 

 

2

 

РЧВ

А

 

 

 

 

 

 

 

 

 

 

 

 

 

 

 

 

3

 

Главный корпус

 

 

 

25

 

 

 

 

4

 

Бак 800 л.

 

 

 

 

 

 

 

 

 

 

5

 

Резервуар усреднитель

 

 

 

 

 

 

 

 

6

 

Эстакада

 

 

 

 

 

3

 

 

 

 

7

 

Операторная

 

 

 

 

3

 

 

 

 

8

 

Приемная емкость

Д

 

 

 

 

 

 

 

 

 

 

 

 

9

 

Насосная

 

 

 

 

 

 

 

 

 

 

10

 

Мастерские

 

 

 

 

17

 

 

 

 

11

 

Склад

 

 

 

 

 

2

 

 

 

 

12

 

Отстойник

 

 

 

 

 

 

 

 

 

13

Бак запаса чистой воды

 

 

 

 

 

 

 

 

 

 

 

 

 

 

 

 

И

9

Си бА Д И

Рис. 3. План производственного объекта. Масштаб 1:3000.

10