Общая жесткость конструкций в уровне 2-го этажа:
с2 115 243 70 697 2 300 000 131200 2
77 900 114 660 1011597т/м.
с2попер 115 243 70 697 2 300 000 556 637т/м.
с2продол 131200 2 77 900 114 660 454 960т/м.
S12 проемы |
230т |
|
115243т/м 47,6т. |
||||||
|
|
|
|||||||
|
|
|
|
|
556637 т/м |
||||
Sа2 |
глух |
|
|
|
230т |
|
706 973т/м 29,2т. |
||
556 637т/м |
|||||||||
|
|
|
|
||||||
Sб2 глух |
|
|
230т |
|
706 973т/м 29,2т. |
||||
556 637т/м |
|||||||||
|
|
|
|
И |
|||||
|
глух |
|
230 т |
|
|||||
S22 |
|
300 000 т/м 124 т. |
|||||||
556637 т/м |
|||||||||
|
|
|
|
|
|
||||
Проверка ∑S=230 т. |
Д |
||||||||
|
|
|
|
||||||
Определим сейсмическую силу на каждую конструкцию 3-го этажа без учета поворота (распределение сейсмической силы S3=249 т между вертикальными конструкциями в уровне перекрытий производится пропорционально их жесткости на этаж).
Общая жесткость конструкций в уровне 3-го этажа: |
||||||||||||
с3 115 243 70 697А2 300 000 131 200 2 |
||||||||||||
77 |
900 114 |
660 1 040 166т/м. |
||||||||||
|
|
|
б |
|
|
|
|
|||||
с2продол 131200 2 102392 118737 483529 т/м. |
||||||||||||
|
|
и |
|
|
|
|
||||||
с3попер 115243 70697 2 300000 556637 т/м. |
||||||||||||
S |
13 |
проемы |
|
|
249т |
115 243т/м 51,6т. |
||||||
556 637т/м |
||||||||||||
С |
|
|
|
|
|
|
||||||
|
|
Sа3 глух |
249т |
|
|
|
706 973т/м 31,6т. |
|||||
|
|
|
|
|
||||||||
|
|
|
|
|
|
|
556 637т/м |
|||||
|
|
Sб3 глух |
249т |
|
|
|
706 973т/м 31,6т. |
|||||
|
|
|
|
|
|
|||||||
|
|
|
|
|
|
|
556 637т/м |
|||||
|
|
S23 глух |
|
249т |
|
300 000т/м 134,2т. |
||||||
|
|
|
|
|
||||||||
556 637т/м
Проверка ∑S=24930 т.
36
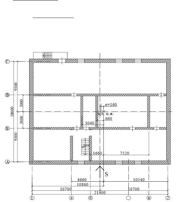
Определение центра жесткости и угловой жесткости подвального этажа (рис. 4.4):
c1n глух с2n глух 18,6 0,64 119 600 395 477т/м ; 1,2 3
c |
проемы с |
бn |
проемы |
с |
б1 |
проемы |
5,6 0,38 119 600 0,796 |
27180; |
|||||||||||
|
|
||||||||||||||||||
аn |
|
|
|
|
|
|
|
|
|
|
|
|
|
3 2,4 |
|||||
|
|
|
|
|
|
|
|
|
1,1м 0,38м |
|
|||||||||
|
|
|
|
|
|
|
|
0,196. |
|||||||||||
|
|
|
|
|
|
|
|
|
|
||||||||||
|
|
|
|
|
|
|
|
|
5,6м 0,38м |
|
|
|
|||||||
|
|
|
|
|
|
γпр |
1 |
0,196 |
|
|
0,769; |
||||||||
|
|
|
|
|
|
||||||||||||||
|
|
|
|
|
|
|
|
|
|
0,85 |
|
|
|
|
|
|
|
|
|
|
|
|
|
|
ca'n глух cб'n глух cвn |
глух cв1 глух |
|||||||||||||
|
|
|
|
|
|
5,62 0,38 119 600 |
|
|
|
|
И |
||||||||
|
|
|
|
|
|
1,2 3 |
70 949т/м. |
||||||||||||
|
|
|
|
|
|
|
|
|
|
|
|
|
|
Д |
|||||
|
|
Определим горизонтальную координату центра жесткости отно- |
|||||||||||||||||
сительно крайней оси 1: |
|
|
|
|
А |
|
|
|
|||||||||||
|
|
|
|
|
|
|
|
|
|
|
|
|
|
||||||
|
уж |
395 477 0 21,4 27 180 6,2 9,2 70 949 7,85 10,2 18,7 |
|
||||||||||||||||
|
|
|
|||||||||||||||||
|
|
|
|
|
|
395 477 2 27 180 2 70 949 3 |
|||||||||||||
|
|
8 463 207,8 418 572 2 607 376 |
|
10,86м. |
|||||||||||||||
|
|
||||||||||||||||||
|
|
|
|
|
1 058 161 |
бжесткости относительно другой оси здания |
|||||||||||||
|
|
|
|
С |
|||||||||||||||
|
|
Координата центра |
|||||||||||||||||
равна 9,3 м. |
|
|
|
|
|
|
|
|
|
|
|
|
|
|
|
|
|||
|
|
Расстояние междуицентром жесткости сооружения и центром |
|||||||||||||||||
его масс (эксцентриситет) dn=en= 10,86 – 10,7 = 0,16 м. |
|||||||||||||||||||
|
|
Для расчета угловой жесткости здания в уровне подвального |
|||||||||||||||||
этажа Кпф |
необходимо подсчитать жесткости несущих стен в про- |
||||
дольном направлении здания: |
|
|
|||
cАn |
проемы |
21,4 0,64 119 600 0,819 |
186 327т/м ; |
||
|
|
||||
|
|
|
3 2,4 |
|
|
|
|
|
1,1м 0,64м |
0,154; |
|
|
|
21,4м 0,64м |
|||
|
|
|
|
|
|
37
γпр 1 0,154 0,819; 0,85
cБn проемы 21,4 0,38 119 600 0,758 102 407т/м; 3 2,4
1,1м 0,38м 4шт. 0,206; 21,4м 0,38м
|
|
|
|
|
γпр 1 |
0,206 |
|
0,758 |
; |
|
||||||||||
|
|
|
|
|
|
|||||||||||||||
|
|
|
|
|
|
|
|
|
0,85 |
|
|
|
|
|
|
|
|
|||
|
cВn проемы |
21,4 0,38 119 600 0,879 |
|
118 744 т/м; |
||||||||||||||||
|
|
|
|
|
|
|
|
|
||||||||||||
|
|
|
|
|
|
|
|
|
3 2,4 |
|
|
|
|
|
|
|
||||
|
|
|
1,1м 0,38м 2шт. |
|
0,103; |
|||||||||||||||
|
|
|
|
|
||||||||||||||||
|
|
|
|
|
|
|
21,4м 0,38м |
И |
||||||||||||
|
|
|
|
|
|
|
|
|
|
|
||||||||||
|
|
γпр 1 |
0,103 |
0,879. |
|
|
|
|
||||||||||||
|
|
|
|
|
|
|
|
|||||||||||||
|
|
|
|
|
|
|
|
|
0,85 |
Д |
||||||||||
|
cГn |
проемы |
21,4 0,64 119 600 0,758 |
172 474т/м; |
||||||||||||||||
|
|
|
|
|
||||||||||||||||
|
|
|
|
|
|
|
|
|
|
3 2,4 |
|
|
|
|
|
|
|
|||
|
|
|
1,1м 0,64м 4шт. |
0,206; |
||||||||||||||||
|
|
|
|
|||||||||||||||||
|
|
|
|
|
|
|
21,4м 0,64м |
|
|
|
|
|||||||||
|
|
|
|
|
γпр 1 |
0,206 |
0,758; |
|
|
|||||||||||
|
|
|
|
|
|
|
|
|||||||||||||
|
|
и |
А0,85 |
|
|
|
|
|||||||||||||
|
ckay |
С |
|
|
|
|
|
|
|
|
|
|
|
|
||||||
|
lxa2 ckax lya2 б(3954771 0,862 27180 4,662 |
|||||||||||||||||||
|
70949 3,042 |
|
|
|
|
|
|
|
|
|
|
|
|
|
||||||
Kn |
27180 1,662 |
70949 0,662 70949 7,522 395477 10,542 ) |
||||||||||||||||||
|
(186327 9,32 102407 32 |
118744 32 |
172474 9,32 ) |
|||||||||||||||||
|
106 (95,87 33,03) 128,9 106 |
тм. |
|
|
|
|
||||||||||||||
Определим сейсмическую силу на каждую конструкцию подвального этажа без учета поворота (распределение сейсмической силы Sn=77 т между вертикальными конструкциями в уровне перекрытий производится пропорционально их жесткости на этаж).
Общая жесткость конструкций в уровне подвального этажа:
38
сп 115 243 70 697 2 300 000 131 200 2
77 900 114 660 1 638 113т/м.
спопер 395 477 2 70 949 3 27 180 2 1 058 161т/м. спродол 186 327 102 407 118 744 172 474 579 952 т/м.
S1n глух |
|
|
|
|
|
|
77т |
|
|
395 477т/м 28,78т. |
||||||||||
|
|
|
|
|
|
|
|
|
|
|
||||||||||
|
1 058161т/м |
|
|
|
|
|
||||||||||||||
Sаn проемы |
|
|
|
77т |
|
|
27 180т/м 1,98т. |
|||||||||||||
|
|
|
|
|
|
|
|
|
|
|||||||||||
|
|
|
|
|
|
|
1 058 161т/м |
|
|
|||||||||||
Sа'n |
глух |
|
|
|
|
|
|
77т |
|
|
|
|
|
70 949т/м 5,16т. |
||||||
|
|
|
|
|
|
|
|
|
|
|
|
|||||||||
|
|
1058161т/м |
|
|
|
|
|
|||||||||||||
Sбn |
проемы |
|
77т |
|
|
|
27180т/м 1,98т. |
|||||||||||||
|
|
|
|
|
|
|
|
|
|
|||||||||||
|
|
|
|
|
|
|
|
1 058 161т/м |
|
|
||||||||||
Sб'n глух |
|
|
|
|
77т |
|
|
|
|
|
|
70949т/м 5,16т . |
||||||||
|
|
|
|
|
|
|
|
|
|
|
||||||||||
|
|
|
|
|
1058161т/м |
|
|
|
|
|
||||||||||
Sвn |
глух |
|
|
|
|
77т |
|
|
|
|
|
|
70949т/м 5,16т. |
|||||||
|
|
|
|
|
|
|
|
|
|
|||||||||||
|
|
|
|
1058161т/м |
|
|
|
|
И |
|||||||||||
S2n |
глух |
|
|
|
|
|
|
|
77т |
|
|
|
395477 т/м 28,78т. |
|||||||
|
|
|
|
|
|
|
|
|||||||||||||
|
|
1058161т/м |
|
|
|
Д |
||||||||||||||
|
|
|
|
|
|
|
Проверка |
S т. |
||||||||||||
|
|
|
|
|
|
|
|
|
|
|
А |
|
||||||||
5. Полная сейсм ческая сила с учетом поворота: |
||||||||||||||||||||
|
|
|
|
|
|
|
|
|
б |
la |
n |
|||||||||
|
|
Sполн |
Ska |
|
cka |
Sj dkj. |
||||||||||||||
|
|
kk |
||||||||||||||||||
|
и |
|
|
|
|
|
|
j k |
||||||||||||
ОпределениеСсейсмической силы на каждую конструкцию 1-го этажа с учетом поворота (см. рис. 4.2) :
39
S11 проемы 30,2т
115 243т/м 14,6м 249,3 2,8 230,3 2,8 153,5 3,9 69 106 тм
30,2т 115 243т/м 14,61941,53тм 30,2т 69 106 тм
115 243т/м 14,6м 28,1 10 6 30,2т 47,3т 77,5т/ 17,1т .
Подвал
|
|
|
|
И |
|
|
|
Д |
|
|
|
А |
|
|
|
б |
|
|
|
и |
|
|
|
|
С |
|
|
|
|
Рис. 4.4. Поворот в плане подвального этажа здания, имеющего эксцентриситет между центрами тяжести (масс) и жесткости
40