Материал: 15109 Патент - Гусеничная машина

Внимание! Если размещение файла нарушает Ваши авторские права, то обязательно сообщите нам

BY 15109 C1 2011.12.30

ратный клапан 43 подается во всасывающую магистраль насоса 38. При заполнении маги- страли насоса 38 и достижении давлением в подкачивающей магистрали давления настройки клапана 49 жидкость насоса 41 сбрасывается в бак 48.

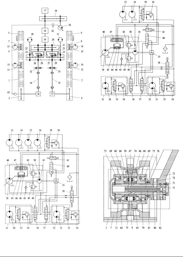
Мощность, снимаемая с коленчатого вала двигателя 17, передается через муфту сцепле- ния 18, коробку перемены передач 19 на ведущий вал раздаточной коробки 20, обеспечи- вающей деление потока мощности по бортам гусеничной машины, и далее на дифферен- циальный механизм поворота 21. Вращение ведомых валов раздаточной коробки 20 передается на коронные шестерни 24, 25 планетарных рядов 22, 23 дифференциального механизма поворота 21 и через водила 26, 27, карданные валы 34, 35, конечные передачи 36, 37 к ведущим звездочкам 3, 4, передающим движение гусеничным цепям 1, 2. При движении гусеничной машины тормозные механизмы 32, 33 разблокированы.

При движении прямым ходом гусеничной машины, при выполнении технологических операций, требующих реализации высоких тяговых усилий, в автоматическом режиме блок управления 62 подает сигнал, и гидрораспределитель 61 переводится во вторую по- зицию, соединяя торцевую управляющую полость гидрораспределителя 60 с напорной магистралью насоса 41. Гидрораспределитель 60 переводится во вторую позицию, соеди- няя напорные магистрали гидромоторов 13, 14, 15, 16 с напорной магистралью насоса 38. Одновременно при переводе гидромоторов 13, 14, 15, 16 в ведущий режим датчик 63 ча- стоты вращения звездочки 3 дает информацию в блок управления 62 о скорости движения машины на прямом ходу, откуда поступает управляющее воздействие на электромагниты гидрораспределителя 47, переводящее гидрораспределитель 47 в первую позицию. Рабо- чая жидкость насоса 41 подается в полость 45 гидроцилиндра управления блоком цилин- дров насоса 38, поршень 44 перемещается, перемещая блок цилиндров насоса 38 и доводя его подачу до уровня, задаваемого блоком управления 62. При изменении скорости дви- жения гусеничной машины, задаваемой передачей коробки перемены передач 19, гидро- распределитель 47 переводится в необходимую позицию, соединяя полости 45, 46 с напорной магистралью насоса 41 и сливом в бак 48 по команде блока управления 62 и обеспечивая необходимую подачу насоса 38.

Рабочая жидкость насоса 38 поступает через подводящий канал 78, продольный канал 76 цапфы 77 в полость кольцевой канавки 74 и оттуда в рабочие полости 67 гидро- мотора. Поршни 66 перемещаются, передавая нагрузку на шарики 68, взаимодействующие с шайбами 69, закрепленными на валу 71. Из рабочих полостей 67 рабочая жидкость по- ступает в полость кольцевой канавки 75 и через кольцевую канавку 79 и отводящий канал 80 аксиально-поршневого гидромотора 13 на слив в бак 48 гидросистемы. Блок цилиндров 64 активного катка 7 проворачивается, приводя в движение каток 7 и звездочку 9. Анало- гично посредством гидромоторов 14, 15, 16 активизируются катки 7, 8 и ведущие звездоч- ки 10, 11, 12 бортов. Поскольку звездочки 9, 10, 11, 12 имеют постоянное зацепление с гусеничными цепями 1, 2, появление дифференциального эффекта при параллельной ра- боте гидромоторов 13, 14, 15, 16 исключается.

Тяговое усилие передается на остов гусеничной машины через ведущие звездочки 3, 4, дополнительные звездочки 9, 10, 11, 12 и балансиры 72 подвесок катков 7, 8. Рассредото- ченная передача движущей силы двигателя 17 на гусеничные цепи 1, 2 обеспечивает раз- грузку гусеничных цепей 1, 2, снижает износ шарниров гусеничных цепей, повышает надежность работы гусеничной машины.

При маневрировании гусеничной машины, при начале поворота рулевого колеса ма- шины блок управления 62 подает сигнал, возвращающий гидрораспределитель 61 в первую позицию и соединяющий торцевую управляющую полость гидрораспределителя 60 со сливом в бак 48. Гидромоторы 13, 14, 15, 16 переводятся в ведомый режим. Гидро-

6

BY 15109 C1 2011.12.30

распределитель 47 переводится в первую либо третью позицию, обеспечивающую воз- вращение блока цилиндров насоса 38 в исходное положение.

Одновременно гидрораспределители 58, 56, 57 переводятся в первую либо третью по- зицию. Каналы подачи рабочей жидкости в торцевые управляющие полости гидрораспре- делителей 56, 57 дросселированы, гидрораспределители включаются плавно. При таком положении гидрораспределителей 56, 57 гидромоторы 30, 31 обеспечивают вращение солнечных шестерен 28, 29 в разные стороны. Так, например, при повороте вправо звез- дочка 4 вращает отстающую гусеницу, а 3 - забегающую. Для обеспечения данного ма- невра гидрораспределители 58, 56, 57 переводятся в первую позицию. По мере увеличения объема насоса 38 при повороте рулевого колеса гусеничной машины рабочая жидкость подается через гидрораспределитель 60 в первой позиции в подводящий канал делителя потока 55 и через отводящие каналы его в напорные магистрали гидромоторов 30, 31. Ча- стота вращения гидромоторов 30, 31 в разные стороны увеличивается. Частоты вращения коронной 24 и солнечной 28 шестерен суммируются, увеличивая частоту вращения звез- дочки 3 забегающей гусеницы 1, а частоты вращения коронной 25 и солнечной 29 шесте- рен вычитаются, уменьшая частоту вращения звездочки 4 отстающей гусеницы 2. Радиус поворота гусеничной машины плавно уменьшается. Аналогично, для поворота в левую сторону гидрораспределителя 58, 56, 57 переводятся в третью позицию. В данном случае забегающей является звездочка 4, а отстающей - звездочка 3. По мере увеличения объема насоса 38 частота вращения гидромоторов 30, 31 в разные стороны увеличивается. Часто- ты вращения коронной 24 и солнечной 28 шестерен вычитаются, уменьшая частоту вра- щения звездочки 3 отстающей гусеницы 1, а частоты вращения коронной 25 и солнечной 29 шестерен суммируются, увеличивая частоту вращения забегающей звездочки 4 гусени- цы 2. Радиус поворота гусеничной машины плавно уменьшается.

Применение делителя потока 55 позволяет исключить из состава трансмиссии насос, систему управления им, что обеспечивает уменьшение сложности и материалоемкости трансмиссии гусеничной машины.

Таким образом, отличительные признаки предлагаемого технического решения обес- печивают уменьшение сложности и материалоемкости трансмиссии гусеничного шасси за счет исключения из трансмиссии одного насоса, агрегатов привода и управления им. Также передача тягового усилия с остова гусеничной машины на движитель основными веду- щими звездочками и дополнительными, установленными на опорных катках гусеничной машины, позволит рассредоточить усилие, передаваемое на каждую гусеничную цепь, и пропорционально уменьшить нагрузку каждого пальца гусеничной цепи и проушин тра- ков, их износ и увеличить надежность гусеничной машины.

Источники информации:

1.Платонов В.Ф., Леиашвили Г.Р. Гусеничные и колесные транспортно-тяговые ма- шины. - М.: Машиностроение, 1986. - С. 146.

2.Платонов В.Ф., Кожевников B.C., Коробкин В.А., Платонов С.В. Многоцелевые гусе- ничные шасси / Под. ред. В.Ф.Платонова. - М.: Машиностроение, 1998. - С. 105 (прототип).

3.Патент РБ 3674, МПК7 F 15В 11/22, 2007.

4.Петров В.А. Гидрообъемные трансмиссии самоходных машин. - М.: Машинострое-

ние, 1988. - С. 87).

7

BY 15109 C1 2011.12.30

Фиг. 2

Фиг. 3

Фиг. 4

Фиг. 5

Национальный центр интеллектуальной собственности. 220034, г. Минск, ул. Козлова, 20.

8