Материал: Участок контактной сети

Внимание! Если размещение файла нарушает Ваши авторские права, то обязательно сообщите нам

Определяем окончательную длину пролета с учетом  по формуле (24)

 м

Расчет длин пролетов на открытом месте

Для определения расчетного режима, при котором определяем длины пролетов сравниваем ветровые нагрузки на контактный провод в режиме максимального ветра и режиме гололеда.


За расчетный режим принимаем режим максимального ветра.

Определяем длину пролета при условии, что :

, м (25)

Для данного контактного провода 2МФ-100 принимаем К=10 кг*1мм2 т.е. К=10*100*2=2000; а=0,3; .

 м

Определяем нагрузку  по формуле:

, кг

где  - результирующая нагрузка на трос для расчетного режима, =2,82 [2]

Т-натяжение несущего троса, определяется по формуле

 кг

С-длина электрической струны, определяется по формуле

, м (23)

где h - конструктивная высота подвески по исходным данным h=2,2 м

Т0 - натяжение троса при бес провесном положении контактного провода, определяется по формуле

, кг.

 м

Определяем окончательную длину пролета с учетом  по формуле (24)

 м


Место расчета длины пролета

L без учета L с учетом Окончательная длина пролета



станция

Главные пути

81,76

74,26

70


Боковые пути

63

64,8

64,8

перегон

Насыпь

65,5

60,72

60


Выемка

85,8

77,7

60


Открытое место

65,36

71,1

60


Кривая

65,36

71,1

40




3. Схема питания и секционирования

На электрифицированных железных дорогах ЭПС получает энергию через контактную сеть от тяговой подстанций расположенных на таком расстоянии друг от друга чтобы было обеспечены необходимое напряжение на ЭПС и защита от токов короткого замыкания. Каждый участок контактной сети должен иметь питание от двух независимых источников. Консольное питание допускается на тупиковых участках.

При оперативных отключениях или при к.з. зона отключения должна быть минимально возможной.

При системе энергоснабжения постоянного тока в контактную сеть электрическая энергия поступает от шин положительной полярности напряжением 3,3 кВ и возвращается после прохождения через тяговые двигатели электроподвижного состава по рельсовым цепям, присоединенных к шинам отрицательной полярности.

Контактную сеть делят на отдельные электрически не связанные участки - секции, для этого у тяговой подстанции и постов секционирования устраивают вдоль электрифицированной линии изолирующие сопряжения и каждая секция получает электроэнергию от разных питающих линий. (Продольное секционирование)

На крупных станциях, имеющих несколько электрифицированных парков, к.с. отдельных парков выделяют в самостоятельные секции с питанием непосредственно от тяговой подстанции. Секции между собой соединяются секционными разъединителями, каждая из секций может быть отключена этими разъединителями.

Совокупность устройств, начиная от генераторов электростанций и кончая тяговой сетью, составляет систему электроснабжения электрифицированных железных дорог. От этой системы питаются электрической энергией, помимо собственного электрической тяги (электровозы и электропоезда), также все не тяговые железнодорожные потребители и потребители прилегающих территорий. Поэтому электрификация железных дорог решает не только транспортную проблему, но и способствует решению важнейших народнохозяйственных проблем электрификации всей страны.

На двухпутных участках также электрически разъединяют к.с. каждого главного пути, перегона, станции от других (поперечное секционирование).

При поперечном секционировании на станциях к.с. группы путей выделяют в отдельные секции (с питанием от тяговой подстанции) и питают их электроэнергией от главных путей через секционные разъединители, которые при необходимости могут быть отключены. Секции к.с. на соответствующих съездах между главными и второстепенными путями изолируют секционными изоляторами. Этим достигается независимое питание каждого пути и каждой секции в отдельности, что облегчает устройство защиты и дает возможность при повреждении или отключении одной из секций осуществлять движение по другим секциям.

Все разъединители к.с. оборудуют приводами: ручными или моторными для дистанционного управления в зависимости от назначения и частоты переключения. На участках с ТУ моторные приводы разъединителей введены в систему ту и переключают их непосредственно с энергодиспетчерского пункта.

Отражают также и нормативное положение (Вкл и Откл) для каждого из разъединителей и его обозначение.

Продольные разъединители и соответствующие им изолирующие сопряжения обозначают обычно первыми буквами русского алфавита А, Б, В, Г, Д и т.д. Разъединители устанавливаемые на фидерах обозначают буквой Ф, поперечные - буквой П. К каждой из указанных букв в случае необходимости добавляют цифровой индекс, соответствующий номерам путей и направлений.

На схемах питания и секционирования, кроме обозначений разъединителей и соответствующих изолирующих сопряжений, указывают номера путей, секционных изоляторов, воздушных стрелок, которые должны соответствовать номерам стрелочных переводов.

Каждая схема запитывается от тяговой подстанции через питающие фидера. В случае повреждения питающих фидеров на станции запитку можно сделать от перегона через секционные разъединители.

Контактная подвеска боковых путей станции запитываются от контактной подвески главных путей, т.е. четные от четного пути, а нечетные от нечетного. Так же запитываются и тупиковые пути.

В случае повреждения питающего фидера контактной подвески одного из главных путей, этот путь можно - запитать от контактной подвески второго главного пути через разъединитель, который в нормальном положении отключен.

Контактная подвеска перегона, прилегающего к станции с западной стороны запитывается линейным разъединителем Фл1. Разъединитель А служит для того, чтобы переводить питание с перегона к.с. главного пути на станцию или со станции на перегон. Линейный фидерный разъединитель Фл3 запитывает контактную подвеску главных путей станции. Контактная подвеска перегона, прилегающего к станции с восточной стороны запитывается линейным разъединителем Фл5.

Разъединители ФС1, ФС3, ФС5 устанавливаются около тяговой подстанции для большей безопасности отключений т.к. при системе постоянного тока токи гораздо больше чем на переменном. Этот разъединитель с моторным приводом и телеуправлением нормально включен.

Разъединители ПС запитывают контактную подвеску боковых путей от главных путей, номера этих разъединителей соответствуют номерам путей, которые они запитывают. Разъединитель Т10 с заземляющим ножом служит для запитки контактной подвески тупикового пути.



4. Порядок составления монтажного плана станции

План контактной сети станции составляют в увязке с существующими и выполняемыми проектами путевого развития станции, мостов, переходов линий электропередачи, и других поземных коммуникаций, а также в увязке с генпланами тяговых подстанций, постов секционирования и электродепо. Основным исходным документом для составления плана контактной сети является план станции в масштабе 1:1000. Положение опор контактной сети на плане определяется, как правило, расстоянием от оси ближайшего пути (габаритом) и расстоянием от оси пассажирского здания, измеренным по оси базисного пути, чаще всего главного. Поэтому ось пассажирского здания принимают за нулевой пикет и от него в обе стороны тонкими вертикальными линиями через каждые 100 мм (в действительности - 100 м) наносят станционные пикеты.

На плане показывают пути, подлежащие электрификации, а также стрелочные переводы, сигналы, искусственные сооружения, указывая их расположение относительно оси пассажирского здания и ближайших путей. Число и назначение путей, оборудуемых контактной сетью устанавливают в зависимости от размеров движения, рода поездов, переводимых на электрическую тягу, специализации путей, принятых организации движения и тяги локомотива (тепловоз, электровоз), выполняющего маневровую работу.

При переводе сборных поездов на электрическую тягу на станциях, не обслуживаемых автономными маневровыми локомотивами, должны электрифицироваться, кроме приемоотправочных, также погрузочно-выгрузочные пути.

План контактной сети станции обычно составляют в следующем порядке:

намечают места фиксации контактных проводов в горловинах станции;

выбирают наилучший вариант расстановки несущих и фиксирующих опор, опор изолирующих сопряжений, опор средней части станции, у пассажирского здания и искусственных сооружений;

выполняют трассировку анкерных участков;

намечают места для анкерных опор;

производят трассировку питающих и отсасывающих линий, и других проводов, увязывая их между собой;

подбирают тип опор, консолей и фиксаторов.

Местами фиксации контактных проводов являются все стрелочные переводы, над которыми будут смонтированы фиксированные воздушные стрелки, переходные стрелочные кривые, и другие места, где контактные провода изменяют свое направление.

На одиночных стрелочных переводах наилучшее расположение контактных проводов, образующих воздушную стрелку, получается в том случае, когда пересечение проводов прямого и отклоненного путей находится между их осями и стоит от каждого из них на расстоянии 0,36-0,40 м. Эта точка находится там, где расстояние между внутренними гранями головок соединительных рельсов крестовины равно 0,73-0,8 м. На перекрестных стрелочных переводах и при глухих пересечениях точек контактных проводов должна находится над центром стрелочного перевода или пересечения. Наилучшие условия для прохода токоприемника по воздушным стрелкам зависит от марки крестовины стрелочного перевода и расстояния от центра стрелочного перевода до места установки опоры (места фиксации контактных проводов) обычно принимают при марке крестовины 1/9 - 8 м, 1/11 - 9,5 м, 1/18 - 17 м, 1/22 - 21 м.

Допускается приближение фиксирующей опоры к центру стрелочного перевода на расстоянии 1-2 м от него для стрелок всех марок. Смещение опоры от наилучшего места установки опоры в сторону крестовины допускается для стрелок 1/9 и 1/11 на 1 м, для других стрелок -2 м.

Расстояние между контактными проводами в плане у фиксирующего устройства воздушной стрелки должно быть не менее 100 мм.

При указанных выше оптимальных расстояниях от центра стрелочного перевода до места фиксации контактных проводов и при расстоянии между контактными в плане 100 мм зигзаги контактных проводов подвесок пути и съезда получаются равными 40 см.

После того, как намечены все необходимые места фиксации контактных проводов, выбирают места, где рационально установить несущие и анкерные опоры.

Все воздушные стрелки полукомпенсированных подвесок выполняют фиксированными, причём фиксация должна осуществляться, как правило, с несущих опор.

При расстановке опор в горловинах станции учитывают возможность устройства анкеровок всех проводов с путей, заканчивающихся (или начинающихся) в горловинах, без установки дополнительных анкерных опор различного назначения (несущих, анкерных и фиксирующих).

Кроме того, учитывают возможность размещения секционных изоляторов вблизи опор, установки и удобного присоединения к проводам контактных подвесок секционных разъединителей в соответствии с принятой схемой питания и секционирования станции, а также подвески питающих и других проводов на опорах контактной сети.

После расстановки несущих и фиксирующих опор в горловинах станции намечают места установки опор изолирующих сопряжений анкерных участков контактных подвесок станций и примыкающих к ней перегонов. При этом, кроме отмеченных выше положений, принимают во внимание следующее:

крайняя опора изолирующего сопряжения должна быть расположена не

ближе 5 м от входного сигнала в сторону станции;

длина анкерных участков контактных подвесок главных путей станции не должна быть более 1 600 м в редких случаях допускается 1 800 м;

опоры и анкерные ветви контактных подвесок не должны ухудшать видимость сигналов; это следует учитывать при выборе габаритов опор и расстояний от опор до сигналов. Анкерные опоры лучше располагать на расстояние не менее 15 м, в том случае, когда это невозможно сделать, следует сократить все пролёты сопряжения и его опоры расположить до сигнала; в качестве анкерной опоры для станционной подвески может быть использована крайняя переходная опора.

Расположение опор изолирующих сопряжений анкерных участков увязывают с намеченными опорами в горловинах. для этого размечают зигзаги контактного провода и проверяют правильность принятых пролетов, поскольку длина пролета зависит от размера и направления зигзагов. При этом допустимые длины пролетов были определены с учетом разносторонних зигзагов равных 30 см.

Схему изолирующих сопряжений анкерных участков и нейтральных вставок принимают по типовым чертежам в зависимости от вида электрической тяги (электровозная, мотор-вагонная) и рода тока. При вычерчивании изолирующих сопряжений увязывают зигзаги контактных проводов у опор изолирующих сопряжений и ближайших к ним стрелок станции.

При разметке зигзагов может получиться, что на двух смежных опорах зигзаги имеют одинаковое направление. В таком случае зигзаги увязывают, размещая контактный провод у одной из опор без зигзага (с нулевым зигзагом) и сокращая, когда это требуется по условиям ветроустойчивости контактной подвески, длину одного - двух пролетов.

После расстановки опор по концам станции, расстанавливают опоры в средней части станции. Здесь следует применять максимально допустимые пролеты, стремясь к установке наименьшего числа жестких поперечин.

В качестве основного типа несущих конструкций контактной сети на станциях принимают жесткие поперечины, перекрывающие от З до 8 путей.

На крупных станциях с числом путей более 8 при отсутствии необходимых междупутий для установки опор жестких поперечен и невозможности раздвижки или снятия пути устанавливают гибкие поперечины.

В качестве поддерживающих устройств для проводов контактной сети при их соответствующих габаритах допускается использовать верхние элементы мостов, своды тоннелей, конструкции путепроводов, пешеходных и сигнальных постов. В случаи использования, например, пешеходного моста в качестве поддерживающего устройства ближайшие к нему опоры располагают на расстоянии, равном или в близком к допустимому пролету на станции.

В том случаи, когда пешеходный мост не используют как поддерживающее устройство, ближайшие к нему опоры размещают так, чтобы мост по возможности ближе к середине пролета. Выбирают места установки опор у пассажирских зданий. При расстановке опор на станции и в особенности опор гибких и жестких поперечин габариты и мощность опор выбирают с учетом будущего развития станции.

После расстановки опор у искусственных сооружений намечают места установки опор жестких поперечин.

При этом длину одного - двух пролетов, расположенных примерно по середине анкерных участков главных путей станции, принимают на 10% меньше длины допустимого пролета, чтобы разместить в них средние анкеровки контактных проводов.

Пролеты между двумя - тремя жесткими поперечинами, расположенными около горловин станции, предусматривают (сохраняя минимальное необходимое количество опор поперечин) короче допустимых, чтобы не устанавливать специально фиксирующие опоры для фиксации контактных проводов на стрелочных кривых, а также иметь возможность монтировать контактные провода на одной из жестких поперечин с нулевым зигзагом. Последнее необходимо делать в некоторых случаях для увязки зигзагов контактных проводов на воздушных стрелках, расположенных в разных горловинах станции.

После расстановки опор по всей станции осуществляют трассировку анкерных участков контактных подвесок электрифицируемых путей и окончательно выбирают места установки анкерных опор.

На съездах, как правило, предусматривают отдельные анкерные участки. Количество анкерных опор должно быть минимальным. Анкерные участки контактных подвесок главных путей обычно трассируют от крайних в сторону перегона анкерных опор изолирующих сопряжений в одном конце станции до таких же опор в другом конце. Если при этом длины анкерных участков превышают допустимые, то контактную подвеску каждого главного пути размещают в двух анкерных участках, устраивая трех пролетное сопряжение в наиболее удобном для этого месте. Пересечение на воздушных стрелках главных путей станции различных цепных подвесок не допускается.

После того как все анкерные участки протрассированы, подсчитывают их длину. Анкерные участки длиной более 800 м устраивают с двух сторонней компенсацией контактного провода и несущего троса в компенсированных подвесках и контактного провода в полукомпенсированных. В одном из средних пролетов таких анкерных участков предусматривают средние анкеровки. Если средние анкеровки не попадают в намеченные ранее уменьшенные пролеты, то в таких местах осуществляют соответствующую перестановку опор.

В анкерных участках длиной менее 800 м делают одностороннюю компенсацию проводов контактных подвесок.

При этом компенсированную анкеровку проводов обычно выполняют в наиболее удаленной от воздушных стрелок анкерной опоры.

Длину и номер анкерного участка указывают у каждой анкерной опоры. Анкерные участки главных путей обычно номеруют римскими цифрами, других путей арабскими.

У каждой опоры на вертикальной линии указывают ее пикет (расстояние от оси пассажирского здания) и габарит установки. На плане показывают все длины пролетов, которые для отличия от других цифр подчеркивают одной линией.

Все опоры показанные на плане станции (включая специальные опоры для питающих и отсасывающих линий), нумеруют в направлении счета километров, начиная с первой анкерной опоры изолирующего сопряжения на одном конце станции до последней анкерной опоры на другом. При этом стремятся, чтобы опоры, расположенные со стороны чётных путей, имели четные номера, а со стороны нечётных путей - нечётные.

Секционные изоляторы у стрелочных переводов располагают между стрелкой и предельным столбиком, у входных и маневровых светофоров - за светофором (по направлению движения локомотива). Такое расположение секционных изоляторов позволяет лучше использовать станционные пути, так как при остановках локомотивов у предельных столбиков или у выходных и маневровых светофоров токоприёмник электровоза не будет перекрывать секционный изолятор. Чтобы улучшить проход токоприёмников по секционному изолятору, его врезают в контактную подвеску по возможности ближе к точке подвеса несущего троса.

Секционные разъединители показывают у тех опор, на которых они должны быть установлены. На анкерных железобетонных опорах установка секционных разъединителей не допускается.



5. Порядок составления монтажного плана перегона

План перегона выполняем на листе миллиметровой бумаги в масштабе 1:2000. В зависимости от числа путей на перегоне на плане вычерчиваем одну или две прямые линии (на расстоянии 1 см друг от друга), представляющие оси путей.

Пикеты на перегоне размечают вертикальными линиями через каждые 5 см (100 м в действительности) и нумеруют их в направлении счета километров, начиная с пикета входного сигнала, указанного в задании.

Если при трассировке контактной сети станции в правой горловине оказалось трех пролетное изолирующее сопряжение контактных подвесок станции и перегона, расположенное до входного сигнала, то для его повторения на плане перегона нумерацию пикетов нужно начать за два - три пикета до заданного пикета входного сигнала.

При наличии справа от станции нейтральной вставки, находящейся за входным сигналом, нумерацию пикетов достаточно начинать е пикета входного сигнала. Выше и ниже прямых линий, представляющих оси путей, вдоль всего перегона размещаем данные в виде таблиц.

Под нижней таблицей вычерчиваем спрямленный план линии. Пользуясь размеченными пикетами, в соответствии е заданием на проект на плане путей показывают искусственные сооружения, а на спрямленном плане линии показываем километровые знаки, направление, радиус и длину кривого участка пути, границы расположения насыпей и выемок, повторяем изображение искусственных сооружений.

Пикеты искусственных сооружений, сигналов, кривой, насыпи, и выемки обозначают в графе Пикетаж искусственных сооружений» нижней таблицей в виде дроби, числитель которой обозначает расстояние в метрах от одного пикета, знаменатель до другого. В сумме эти числа должны быть равными ста метрам, т.к. расстояние между двумя нормальными пикетами равно 100 м.

Разбивка перегона на анкерные участки.

Расстановку опор перегона начинаем с переноса на план перегона опор изолирующих сопряжений станции, к которой примыкает перегон, или опор нейтральной вставки. Расположение этих опор на плане перегона должно быть увязано с их расположением на плане станции. Увязку осуществляем по входному сигналу, который обозначен и на плане станции, и на плане перегона следующим образом:

определяют расстояние между сигналом и ближайшей к нему опорой по меткам на плане станции. Это расстояние прибавляем (или отнимаем) к пикетной метке сигнала и получаем пикетную отметку опоры. Затем откладываем от этой опоры длины следующих пролетов, указанных на плане станции, и получаем пикетные отметки опор изолирующего сопряжения на плане перегона.

После этого вычерчиваем изолирующее сопряжение или нейтральную вставку, т.к. это показано на плане станции, и расставляем зигзаги контактного провода.

Далее намечаем анкерные участки контактной сети и примерное расположение мест их сопряжений. После этого в серединах анкерных участков намечаем примерное расположение мест средних анкеровок с тем, чтобы при разбивке опор пролеты со средней анкеровкой сократить по сравнению с максимальной расчетной длиной на данном участке перегона.

Намечая анкерные участки подвески, необходимо исходить из следующих соображений:

количество анкерных участков на перегоне должно быть минимальным;

максимальная длина анкерного участка принимается не более IбООм;

на участках с кривыми длину анкерного участка уменьшают в зависимости от радиуса и расположения кривой;

сопряжение анкерных участков рекомендуется, как правило, устраивать на прямых.

Если кривая по протяженности не больше половины длины анкерного участка (800 м) и расположено в одном конце или в середине анкерного участка, то длина такого анкерного участка гйожет быть принята равной средней длине, допустимой для прямой или кривой данного радиуса.

Примерное расположение опор сопряжений анкерных участков на плане отмечаем вертикальными линиями, расстояние между которыми в масштабе примерно равно трем допустимым для соответствующего участка пути пролетам.

Затем намечаем каким-либо условным знаком места расположения пролетов со средней анкеровкой и только после этого переходим к расстановки опор.

Расстановка опор производится пролетами, по возможности равными допустимым для соответствующего участка пути и местности, полученным в результате расчетов длин пролетов.

Намечая места установки опор, следует сразу же заносить их пикетаж в соответствующую графу, между опорами указывать длины пролетов, возле опор показывать зигзаги контактных проводов.

На прямых участках пути зигзаги должны быть поочередно направлены у каждой из опор то в одну, то в другую сторону от оси пути, начиная с зигзага анкерной опоры, перенесенного с плана контактной сети станции.

На кривых участках пути контактным проводам дают зигзаги в направлении от центра кривой.

В местах перехода с прямого участка пути в кривую зигзаг провода у опоры, установленной на прямом участке пути может оказаться не увязанным с зигзагом провода у опоры, установленной на кривой. В этом случаи следует несколько сократить длину одного - двух пролетов на прямом участке пути, а в некоторых случаях и пролета, частично расположенного на кривой, чтобы можно было у одной из этих опор разместить контактный провод над осью пути (с нулевым зигзагом), а у смежной с ней опорой сделать зигзаг контактного провода в нужную сторону.

6. Подбор консолей, фиксаторов и жестких поперечин

.1 Подбор консолей

Консоли подбираем для монтажного плана перегона. Тип консоли по уровню изоляции согласно исходным данным - неизолированная. При подборе консолей также учитываем габариты опор, тип опор и профиль пути.

Подбираем консоли и сводим в таблицу.

Тип опоры

Место установки

Тип опоры

Ветвь подвески

Тип консоли при габарите





3,1-3,2

3,3

3,4-3,5

4,9

Промежуточная

Прямая

-

-

НР-I-5

НР-III - 6,5


Внешняя сторона кривой

R=750






Внутренняя сторона кривой

R=1500



НС-I - 6,5

НС-III - 6,5

Переходная

Прямая


А*

Рабочая

НР-I-5

НР-III - 6,5





Анкеруемая

НС-I-5

НС-III-6,5п




Б*

Рабочая

НР-I-5

НР-II-5

НР-III - 6,5





Анкеруемая

НС-I-5

НС-II-5

НС-III-6,5п


Внешняя сторона кривой

R=750

А, Б

Рабочая

НР-I-5

НР-III - 6,5





Анкеруемая


НС-III-6,5п



R=1800

А, Б

Рабочая


НР-III - 6,5





Анкеруемая


НС-III-6,5п


Внутренняя сторона кривой

R=750

А, Б

Рабочая

НС-I-5

НР-III - 6,5





Анкеруемая


НС-III-6,5п



R=1800

А, Б

Рабочая

НС-I - 6,5

НР-III - 6,5





Анкеруемая


НС-III-6,5п

*А - зигзаг к опоре; Б - зигзаг от опоры.

НР-I-5 - Неизолированная консоль с растянутой тягой. Длина кронштейна - 4730 мм, длина тяги - 2600 мм. Швеллер №5.

НС-II-5 - Неизолированная консоль со сжатой тягой. Длина кронштейна - 5230 мм, длина тяги - 3400 мм. Швеллер №5.

НС-III-6,5п - Неизолированная консоль со сжатой тягой. Швеллер №6,5. С подкосом.

6.2 Подбор жестких поперечин

Подбор жестких поперечин производится с помощью формулы:


Где  - габариты опор поперечин;

 - суммарная ширина междупутий, перекрываемых поперечиной;

 - строительный допуск на установку опор поперечин.

Номера опор

Расчетная длина

Стандартная длина

Тип поперечин

21,20

5,3+7,49+3,1+3,2+0,49+2*0,15=19,88

20,12

П21-29,1

23,22

5,3+7,49+3,2+3,3+0,49+2*0,15=20,08

20,12

ПО21-29,1

25,24

5,3+7,49+3,1*2+0,49+2*0,15=19,78

20,12

П21-22,5

27,26

5,3+7,49+3,1+3,25+0,49+2*0,15=19,93

20,12

ПО21-29,1

29,28; 31,30; 33,32

5,3*2+7,49+3,2+3,1+0,49+2*0,15=25,18

32,72

ПО43-39,2

35,34; 37,36; 39,38

5,3*2+7,49+3,1*2+0,49+2*0,15=25,08

32,72

ПО43-39,2

41,40; 47,46; 51,50

5,3*2+7,49+3,3+6,0+0,49+2*0,15=28,18

32,72

ПО43-39,2

43,42; 45,44; 49,48

5,3*2+7,49+3,1+6,0+0,49+2*0,15=27,98

32,72

ПО43-39,2

53,52

5,3*2+7,49+11,8+3,3+3,1+0,49+2*0,15=37,08

43

ПО43-39,2

55,54

5,3*2+7,49+11,8+3,1+3,25+0,49+2*0,15=37,03

43

П43-39,2

57,56; 59,58; 61,60

5,3*3+7,49+11,8+3,2+3,1+0,49+2*0,15=36,98

43

ПО43-39,2

63,62

5,3*2+7,49+11,8+3,1*2+0,49+2*0,15=36,88

43

П43-39,2

65,64

5,3*2+7,49+11,8+3,2+3,3+0,49+2*0,15=37,18

43

ПО43-39,2

67,66

5,3*2+7,49+3,3+3,1+0,49+2*0,15=25,28

32,72

П43-39,1

69,68; 71,70

5,3+7,49+3,25+3,3+0,49+2*0,15=25,43

32,72

ПО43-39,2

ПО22 - 29,1 - жесткая поперечина с освещением и с несущей способностью 22 тс*м и основным расчетным пролетом 29,1 м.

П43 - 39,2 - жесткая поперечина с несущей способностью 43 тс*м и основным расчетным пролетом 39,2 м.

6.3 Подбор фиксаторов

При подборе фиксаторов учитываем направление зигзагов, габарит опоры, тип консоли, профиль пути и тип опоры.

Подбираем фиксаторы и сводим в таблицу.

Тип опоры

Место установки

Прочие условия

Тпи фиксатора при габарите




3,1-3,2

3,3

3,4-3,5

4,9

Постоянный ток, неизолированная консоль


Зигзаг к опоре

ФП-I

ФП-III



Зигзаг от опоры

ФО-II

ФО-III

ФО-V


Внешняя сторона кривой

R≥1501

ФП-II

ФП-V



R≤1500

УФП-II

УФП-V



R≥601

ФГ



R≤600

ФГ-II


Внутренняя сторона кривой

R≥1501

ФО-I

ФО-II

ФО-IV



1500≤R≥601

УФО-I

УФО-II



R≤600

УФО2-I

УФО2-II


ФП-I - фиксатор прямой, неизолированных консолей. Римская цифра характеризует длину основного стержня фиксатора.

I=1200 мм;=1600 мм;=2000 мм;=2400 мм;

V=3000 мм;

VI=3600 мм;

VII=5400 мм.

ФП-I - фиксатор обратный, неизолированных консолей. Римская цифра характеризует длину основного стержня фиксатора.

I=3000 мм;=3400 мм;=3800 мм;=4200 мм;

V=4600 мм;

VI=5000 мм;

VII=5400 мм.

ФГ - фиксатор гибкий.

7. Подбор и расчет опоры

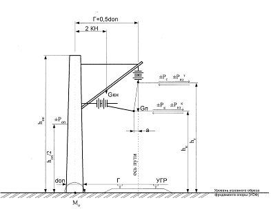
Производим расчет промежуточной опоры, определяем максимальный изгибающий момент для промежуточной опоры на уровне условного обреза фундамента и подбираем опору по максимально изгибающему моменту.

Расчет промежуточной опоры производим на перегоне на кривой радиусом R на внутренней и на внешней стороне кривой.

Нагрузки, действующие на опору, принимаем из выше приведенных расчетов и сводим в таблицу:

Нагрузки

Режим Режим Режим



Вес проводов 2,7172,7172,717




Вес гололеда --1,48




Ветровая нагрузка на несущий трос-1,091




Ветровая нагрузка на контактный провод -1,370,88





Составляем расчетную схему опоры.

7.1 Определение вертикальную нагрузку от веса контактной подвески

для режима максимального ветра и минимальной температуры

, кг/п.м

где- вес проводов цепной подвески,  кг/п.м;

- длина пролета, ;

 - вес подвесной гирлянды изоляторов (для контактной подвески с учетом части веса фиксатора, приходящийся на несущий трос), кг/п.м

для режима гололеда с ветром

, кг/п.м

где- вес проводов цепной подвески,  кг/п.м;

- вес гололеда,  кг/п.м

- длина пролета, ;

 - вес подвесной гирлянды изоляторов (для контактной подвески с учетом части веса фиксатора, приходящийся на несущий трос),  кг/п.м

 кг/п.м

7.2 Определение горизонтальной нагрузки от давления ветра на провода цепной подвески

для режима максимального ветра

, кг/п.м

, кг/п.м

где-ветровая нагрузка на несущий трос, ;

 -ветровая нагрузка на контактный провод,  ;

 кг/п.м

 кг/п.м

для режима гололеда с ветром

, кг/п.м

, кг/п.м

где-ветровая нагрузка на несущий трос, ;

 - ветровая нагрузка на контактный провод,  ;

 кг/п.м

 кг/п.м

7.3 Определение горизонтальной нагрузки от давления ветра на опору

для режима максимального ветра

, кг/п.м

где- аэродинамический коэффициент лобового сопротивления ветру, ;

 - площадь диаметрального сечения опоры, ;

 (кг/п.м)

для режима гололеда с ветром

, кг/п.м

(кг/п.м)

7.4 Определение горизонтальной нагрузки от изменения направления несущего троса

для всех трех режимов

, кг/п.м

где - натяжение троса, для троса М-95=1600 кг;

- длина пролета на кривой, ;

- радиус кривой, .

(кг/п.м)

7.5 Определяем нагрузку от изменения направления контактного провода на кривой

, кг/п.м

где - натяжение контактного провода, для 2МФ-100 К=2000 кг

 (кг/п.м)

7.6 Определяем вертикальную нагрузку от веса консоли

Режим Режим Режим




На внешней стороне

70

70

90

На внутренней сторне

80

80

100


Результаты расчетов сводим в таблицу:

Расчетные режимы

Нормативные нагрузки


Q













внеш.

внутр.

138,7--85,33106,6-7080









197,94035,285,33106,68090100









138,743,654,885,33106,6223,37080










7.7 Определение максимального изгибающего момента по формуле


где Г - габарит опоры, Г=3,45 - для внутренней стороны кривой и Г=3,15 - для внешней стороны кривой R=750;

d - диаметр опоры на уровне головок рельсов, d=0,29 м;

- высота контактного провода, ;

 - высота троса, ;

 - высота опоры, ;

 - плечи вертикальных усилий от веса консоли,

Режим

Внешняя сторона кривой, ветер в сторону к оси пути

Внешняя сторона кривой, ветер в сторону от оси пути

Внутренняя сторона кривой, ветер в сторону к оси пути

Внутренняя сторона кривой, ветер в сторону от оси пути

Режим

Внешняя сторона кривой, ветер в сторону к оси пути

Внешняя сторона кривой, ветер в сторону от оси пути

Внутренняя сторона кривой, ветер в сторону к оси пути

Внутренняя сторона кривой, ветер в сторону от оси пути

Режим

Внешняя сторона кривой, ветер в сторону к оси пути

Внешняя сторона кривой, ветер в сторону от оси пути

Внутренняя сторона кривой, ветер в сторону к оси пути

Внутренняя сторона кривой, ветер в сторону от оси пути


7.8 Выбираем опору по нормативному изгибающему моменту

Обозначение несущей способности

Марка стоек

Нормативный изгибающий момент

Количество проволок диаметром, мм

Диаметр стержней, мм




4

5


2

СС136.6-2

59 (6,0)

48

32

12


Типоразмер стойки

Размеры стойки, мм

Справочная масса, кг


L

D1

D2

δ


СС136.6

13600

290

492

60

2? 1



8. Определение натяжения нагруженного (контактным проводом) несущего троса в зависимости от температуры и построение монтажной кривой Тx (tx). Определение натяжений несущего троса при всех расчетных режимах и при температуре беспровесного положения контактных проводов. Составление монтажной таблицы

.1 Определение длины эквивалентного и критических пролетов и установление расчетного режима

Определение длины эквивалентного пролета


, м (1)

где L-длина пролета, L1=44; L2=45; L3=49; L4=50; L5=46; L6=48; L7=60; L8=65; L9=52; м,

n - число пролетов в анкерном участке, n1=1; n2=2; n3=1; n4=3; n5=2; n6=4; n7=1; n8=5; n9=2.

Установление исходного расчетного

Определим длину критического пролета :

для режима максимального ветра

, м (2)

для режима гололеда с ветром

, м (3)

где -максимальное натяжение троса, для троса М-95=1600 кг;

-температурный коэффициент линейного удлинения материала троса для М-95 ;

- температура при которой наблюдается максимальны ветер

- температура при которой наблюдается гололед

- минимальная температура, согласно исходным данным

- результирующая нагрузка на несущий трос в режиме максимального ветра,  кг/п.м

- результирующая нагрузка на несущий трос в режиме гололеда с ветром, кг/п.м

- вес проводов,  кг/п.м

- вес проводов с учетом гололеда,  кг/п.м

для режима максимального ветра

для режима гололеда с ветром

По результатам расчетов делаем вывод, что расчетный режим - режим минимальной температуры  т.к.  и .

8.2 Расчет зависимости  по уравнению состояния несущего троса цепной полукомпенсированной подвески

Определим натяжение нагруженного (контактным проводом) несущего троса в зависимости от температуры по упрощенному уравнению состояния несущего троса.


где - т.к. исходный расчетный режим минимальной температуры;

- т.к. исходный расчетный режим минимальной температурыкг/п.м;

 - длина эквивалентного пролета, ;

-температурный коэффициент линейного удлинения материала троса для М-95 ;

 - т.к. исходный расчетный режим минимальной температуры  кг

- модуль упругости материала определяется по формуле

;

- сечение троса расчетное для М-95,  мм2;

 - принимается при отсутствии дополнительных нагрузоккг/п.м.


Определим коэффициент А


Определим коэффициент В


Определим коэффициент С



8.3 Подставляя в уравнение состояния различные значения  определим соответствующие им температуры. Начиная с , далее через 1-2 кН

Определим  при кг

Определим  при кг

Определим  при кг

Определим  при кг

Определим  при кг

Результаты расчетов сводим в таблицу.

16001400120011001000













По полученным данным строим монтажную кривую .

.4 Определим положение несущего троса при беспровесном положении контактных проводов по формуле


где -максимальная температура по исходным данным ;

- минимальная температура по исходным данным ;

- величина, зависящая от типа и количества контактных проводов для 2МФ-100



8.5 Определение стрел провеса нагруженного несущего троса

, м

где - длина пролета, м, для которого рассчитывается стрела провес несущего троса;

- расстояние от опоры до первой нерессорной струны,;

- натяжение контактного провода, К=2000 даН;

- натяжение несущего троса при беспровесном положении контактных проводов, даН;

- натяжение несущего троса, соответствующее температуре , для которой рассчитывается значение стрелы провеса, даН;

- вертикальная нагрузка на несущий трос от веса всех проводов цепной подвески при беспровесном положении контактных проводов  даН/м;

- вертикальная нагрузка на несущий трос от всех проводов цепной подвески, соответствующая расчетным условиям т.е.  даН/м.

- нагрузка от веса несущего троса при расчетных условиях т.е. , даН/м.

Определим  при кг

м

м

м

м

м

м

Определим  при кг

м

м

м

м

м

м

Определим  при кг

м

м

м

м

м

м

Определим  при кг

м

м

м

м

м

м

Определим  при  кг

м

м

м

м

м

Определим  при кг

м

м

м

м

м

м

8.6 Определение стрел провеса контактных проводов

, м

где - длина пролета, м, для которого рассчитывается стрела провес несущего троса;

- расстояние от опоры до первой нерессорной струны,;

- натяжение контактного провода, К=2000 даН;

- натяжение несущего троса при беспровесном положении контактных проводов, даН;

- натяжение несущего троса, соответствующее температуре , для которой рассчитывается значение стрелы провеса, даН;

- вертикальная нагрузка на несущий трос от веса всех проводов цепной подвески при беспровесном положении контактных проводов  даН/м;

Определим  при кг

м

м

м

м

м

м

Определим  при  кг

м

м

м

м

м

м

Определим  при кг

м

м

м

м

м

м

Определим  при кг

м

м

м

м

м

м

Определим  при  кг

м

м

м

м

м

Определим  при  кг

м

м

м

м

м

м

8.7 Определение величины вертикального перемещения несущего троса и контактных провода


где - длина пролета, м, для которого рассчитывается стрела провес несущего троса, м;

- расстояние от опоры до первой нерессорной струны,;

- натяжение несущего троса при беспровесном положении контактных проводов, даН;

- натяжение несущего троса, соответствующее температуре , для которой рассчитывается значение стрелы провеса, даН;

- вертикальная нагрузка на несущий трос от веса всех проводов цепной подвески при беспровесном положении контактных проводов  даН/м;

- нагрузка от веса несущего троса при расчетных условиях т.е. , даН/м.

Определим  при кг

м

м

м

м

м

м

Определим  при кг

м

м

м

м

м

м

Определим  при  кг

м

м

м

м

м

м

Определим  при кг

м

м

м

м

м

м

Определим  при  кг

м

м

м

м

м

м

Определим  при кг

м

м

м

м

м

м

Результаты расчетов сводим в таблицу.















16000,485-0,012-0,0740,588-0,017-0,0830,973-0,041-0,111











14400,529-, 0051-0,0350,642-0,007-0,0391,09-0,018-0,053











13200,569000,689001,1500











12200,6090,00450,0350,7340,00660,0391,220,0160,052











10800,6750,01150,0940,8110,01680,1051,340,04060,142











10200,7060,01730,1240,8470,0250,1391,40,0610,187













Список использованной литературы

1.  Горошков Ю.И., Бондарев Н.А. - Контактная сеть - М.: Транспорт, 1981. 400 с.

2.       Дворовчикова Т.В., Зимакова А.Н. Электроснабжение и контактная сеть электрифицированных железных дорог: Пособие по дипломному проектированию: Учебное пособие для техникумов ж.-д. транспорта. - М.: Транспорт, 1989. - 166 с.

.         Фрайфельд А.В. Проектирование контактной сети. - М.: Транспорт, 1984. - 328 с.