Технологически необходимое (явочное) число рабочих определяется по
формуле:
Рт = Тг / Фт (1.12)
где Тг - годовой объём работ по зонам ТО, ТР или участку чел.-ч; Фт - годовой (номинальный) фонд времени технологически необходимого рабочего при 1-сменной работе, ч. Фонд определяется продолжительностью смены (в зависимости от продолжительности рабочей недели) и числом рабочих дней в году, принимаем:
ч. - для нормальных условий труда;
ч. - для вредных условий производства.
Штатное (списочное) число рабочих определяется как:
Рш = Тг / Фш (1.13)
где Фш - годовой (эффективный) фонд времени рабочего, ч; Фш - фактическое время, отработанное исполнителем непосредственно на рабочем месте. Фш < Фт за счет отпусков и невыходов рабочих по уважительным причинам (выполнение государственных обязанностей, по болезни и пр.)
Согласно ОНТП:
Фш = 1820 ч. - для нормальных условий труда ;
Фш = 1820 ч. - для вредных условий труда
|
Етг, чел.×час |
2977 |
1429,6 |
6433,2 |
6998,7 |
9331,6 |
1174,8 |
1434, |
19065 |
7149,3 |
3971,8 |
1985,9 |
794,37 |
1588,7 |
397,18 |
397,18 |
1191,5 |
794,37 |
397,18 |
397,18 |
397,18 |
397,18 |
- |
- |
68703 |
||
|
Трудоёмкость по видам работ (годовой объём) |
Вспом. работы |
чел.×час |
|
|
|
|
|
|
|
|
|
|
|
|
|
|
|
|
|
|
|
|
|
|
|
20610,88 |
|
|
|
% |
|
|
|
|
|
|
|
|
|
|
|
|
|
|
|
|
|
|
|
|
|
|
|
100 |
|
|
ТР |
чел.×час |
|
|
|
|
|
397,18 |
397,18 |
19065 |
7149,3 |
3971,8 |
1985,9 |
794,37 |
1588,7 |
397,18 |
397,18 |
1191,5 |
794,37 |
397,18 |
397,18 |
397,18 |
397,18 |
- |
|
39718 |
|
|
|
% |
|
|
|
|
|
1 |
1 |
48 |
18 |
10 |
5 |
2 |
4 |
1 |
1 |
3 |
2 |
1 |
1 |
1 |
1 |
- |
|
100 |
|
|
ТО-2 |
чел.×час |
|
|
|
|
9331,6 |
|
1036,8 |
|
|
|
|
|
|
|
|
|
|
|
|
|
|
|
|
10368 |
|
|
|
% |
|
|
|
|
90 |
|
10 |
|
|
|
|
|
|
|
|
|
|
|
|
|
|
|
|
100 |
|
|
ТО-1 |
чел.×час |
|
|
|
6998,7 |
|
777,64 |
|
|
|
|
|
|
|
|
|
|
|
|
|
|
|
|
|
7776,4 |
|
|
|
% |
|
|
|
90 |
|
10 |
|
|
|
|
|
|
|
|
|
|
|
|
|
|
|
|
|
100 |
|
|
ЕОт |
чел.×час |
628,39 |
|
|
|
|
|
|
|
|
|
|
|
|
|
|
|
|
|
|
|
|
|
|
628,39 |
|
|
|
% |
100 |
|
|
|
|
|
|
|
|
|
|
|
|
|
|
|
|
|
|
|
|
|
|
100 |
|
|
ЕОс |
чел.×час |
2348,62 |
1429,6 |
6433,18 |
|
|
|
|
|
|
|
|
|
|
|
|
|
|
|
|
|
|
|
|
10211,4 |
|
|
|
% |
23 |
14 |
63 |
|
|
|
|
|
|
|
|
|
|
|
|
|
|
|
|
|
|
|
|
100 |
|
Наименование площади |
Уборочно-моечные |
Заправочные |
Остальные |
ТО-1 (кроме диагн.) |
ТО-2 (кроме диагн.) |
Д-1 (общая) |
Д-2 (углуб.) |
ТР постовые (кроме диагн.) |
Агрегатный |
Слесарно-механический |
Электротехнический |
Аккумуляторный |
Ремонт приборов системы питания |
Шиномонтажный |
Вулканизационный |
Кузнечно-рессорный |
Медницкий |
Сварочный |
Жестяницкий |
Арматурный |
Обойный |
Таксометровый |
Общая территория (вспомогательные) |
Всего |
||
|
|
Зона ЕО |
|
|
|
|
|
|
|
|
|
|
|
|
|
|
|
|
|
|
|
|
|
||||
|
|
Зоны |
Участки (цеха) |
|
|
||||||||||||||||||||||
Коэффициент штатности определяется по формуле
hш = Рт / Рш = Фш./ Ф (1.14)
hш =1820/2070 = 0,879
Таблица 1.9 - Численность производственных рабочих
|
Место выполнения по видам работ |
Годовой объём работ åТг, чел.-ч |
Годовой фонд времени |
Кол-во технологически необходимых рабочих |
Кол-во штатных рабочих |
Коэфициент штатности |
|||
|
|
|
Фт, ч |
Фш, ч |
Расч. Рт, чел. |
Прин. Рт, чел. |
Рш= Тг/Фш,чел. |
hш= Рт/Рш |
|
|
1 |
2 |
3 |
4 |
5 |
6 |
7 |
8 |
|
|
Зона ЕО |
Уб.-моечные |
2977,02 |
2070 |
1820 |
1,4 |
2 |
1,63 |
0,86 |
|
|
Заправочные |
1429,6 |
|
|
0,69 |
|
0,79 |
0,87 |
|
|
Остальные |
6433,18 |
|
|
3,12 |
|
3,54 |
0,81 |
|
Зона ТО-1,кроме диагн. |
6998,74 |
|
|
3,38 |
3 |
3,85 |
0,88 |
|
|
Зона ТО-2, кроме диагн. |
9331,65 |
|
|
4,51 |
4 |
5,13 |
0,88 |
|
|
Д1 |
1174,82 |
|
|
0,57 |
1 |
0,65 |
0,88 |
|
|
Д2 |
1434,03 |
|
|
0,69 |
|
0,79 |
0,87 |
|
|
ТР(постовые,кроме диагн.) |
19064,8 |
|
|
9,21 |
9 |
10,5 |
0,88 |
|
|
1 |
Агрегатный |
7149,29 |
|
|
3,45 |
4 |
3,93 |
0,88 |
|
2 |
Слесарно-механический |
3971,83 |
|
|
1,92 |
2 1 |
2,18 0,22 0,22 0,22 0,22 |
0,88 0,86 0,86 0,86 0,86 |
|
3 |
Арматурный |
397,18 |
|
|
0,19 |
|
|
|
|
4 |
Обойный |
397,18 |
|
|
019 |
|
|
|
|
5 |
Жестяницкий |
397,18 |
|
|
0,19 |
|
|
|
|
6 |
Сварочный |
397,18 |
|
|
0,19 |
|
|
|
|
7 |
Электротехнический |
1985,91 |
|
|
0,96 |
1 |
1,09 0,44 |
0,88 0,86 |
|
9 |
Аккумуляторный |
794,37 |
|
|
0,38 |
|
|
|
|
9 |
Ремонт приборов системы питания |
1588,73 |
|
|
0,77 |
1 1 |
0,87 0,66 |
0,89 0,88 |
|
10 |
Кузнечно-рессорный |
1191,55 |
2070 |
1820 |
0,58 |
|
|
|
|
11 |
Медницкий |
794,37 |
|
|
0,38 |
1 |
0,44 |
0,86 |
|
12 |
Шиномонтажный |
397,18 |
2070 |
1820 |
0,19 |
1 1 |
0,22 0,22 |
0,86 0,86 |
|
13 |
Жестяницкий |
397,18 |
|
|
0,19 |
|
|
|
После составления таблицы, обьединим следующие работы:
). Шиномонтажные -Вулканизационные -1 чел.
). Аккумуляторные-Электротехнические -1 чел.
). Медницкий-Сварочный-Жестяницкие-Кузнечные- Арматурно-Обойное-1 чел.
Расчет числа постов ТО и ТР вторым методом (укрупненным) в отличие от первого, производится не через t и R, а исходя из объема работ, фонда времени поста и числа рабочих, одновременно работающих на посту.
Число постов ЕОс (по видам работ, кроме механизированных), а также Д-1,
Д-2, ТО-1, ТО-2, и ТР (постовых):
Хi = Тг.j/Драб.г.Тсм.С.Рср.hп, (1.15)
ХЕОс=10211,4.1,5/305.8.1.1,375.0,93=6,75=7;
Хд=1814,44.1,25/255.8.1.2.0,93=0,6=1
ХТО1=6998,7.1,25/255.8.1.2,5.0,69=1,84=2;
ХТО2=9331,6.1,25/255.8.1.2,5.0,93=2,5=3;
ХТР=19065.1,25/255.8.1.1,5.0,93=8,37=8;
где Тг ─ годовой объём работ соответствующего вида технического воздействия, чел.-ч; j ─ коэффициент неравномерности загрузки постов, Драб.г ─ число рабочих дней в году; Тсм ─ продолжительность смены, ч; С ─ число смен; Рср ─ среднее число рабочих, одновременно работающих на
посту; hп ─
коэффициент использования рабочего времени поста (hп = 0,85…0,98 по ОНТП 01-91)
.13 Определение состава и расчёт площадей производственных и складских
помещений, площадей зон хранения
Площади зон ТО и ТР рассчитываются по формуле:
ео = fа X3 KП (1.16)
еос= 16,8.7.7=823,2 м2;
Fд= 16,8.1.7=117,6 м2;
Fто1 = 16,8.2.7=235,2 м2;
Fто2 = 16,8.3.7=352,8м2;
Fтр = 16,8.8.7=940,8 м2;
где fа ─ площадь, занимаемая автомобилем в плане (по габаритным размерам), м2;
=a.b (1.17)
где a и b длина и ширина автомобиля
=6,685.2,516=16,8 м2─ принятое число постов
зоны;еос=7д=1то1=2то2=3тр=8П ─ коэффициент плотности расстановки постов
(отношение площади зоны, занимаемой автомобилями, проездами, проходами,
рабочими местами, к сумме площадей проекции всех автомобилей в плане).KП
зависит от габаритов автомобиля и расположения постов. При одностороннем
расположении постовП = 7
Таблица 1.10 - Площади АТП
|
Наименование площади |
Расчетное значение, м2 |
Площадь принятая по планировке, м2 |
|
|
|
По площади оборудования |
По числу рабочих в наиболее загруженную смену |
|
|
ЕОс |
- |
823,2 |
|
|
Д |
- |
117,6 |
|
|
ТО1 |
- |
|
|
|
ТО2 |
- |
352,8 |
|
|
ТР |
- |
940,8 |
|
|
Сумма |
- |
2469,6 |
|
Площади участков рассчитываются по формуле:
=f1+f2. (Рт-1) (1.18)
f1- площадь на одного рабочего, м2
f1- площадь на каждого последующего рабочего, м2
Рт- принятое число технологически необходимых рабочих в наиболее загруженную смену .
Fагрегатный =22+14. (3-1)=64 м2;
Fслесарный =18+12. (2-1)=30 м2;
Fэлектрот-ий=36+14. (1-1)=36 м2;
Fрем.сист.пит =14+8. (1-1)=14 м2;
Fкузн.медн.свар.=81+41. (1-1)=81 м2;
Fкомпрессорная =6+1. (1-1)=6 м2;
Fкаб.глав.механика=23+14. (1-1)=23 м2;
Fобойный, армат. =30+11. (1-1)= 30м2;
Fшиномонтажный =30+21. (1-1)=30 м2;
Таблица 1.11 - Площади производственных участков
|
Участок |
Площадь, м2 |
|
Агрегатный |
64 |
|
Слесарно-механический |
30 |
|
Электротехнический участок и аккумулятоpный Участок ремонта приборов системы питания |
36 14 |
|
Кузнечно-рессорный, Медницкий, Сварочный, Жестяницкий участок |
81 |
|
Шиномонтажный Вулканизационный |
30 |
|
Компрессорная |
6 |
|
Кабинет главного механика |
23 |
|
Общая сумма |
286 |
Площади складов рассчитывается по формуле:
=(Aи/10) .F (1.19)
Аи- списочное число ПС
F- удельная площадь на 10едениц ПС, м2.
Fшин=(120/10) .2,6=31 м2;
Fинструментов=(120/10) .0,15=2 м2;
Fсмаз.материалов=(120/10) .1,8=22 м2;
Fзап.частей=(120/10) . 4,4=53 м2;
Fлак.крас.мат.=(120/10) . 0,6=8 м2;
Fпром.хранения=(120/10) . 0,9=11 м2;
Fтуалет=(120/10) . 1=12 м2;
Fдуш.комнота=(120/10) . 1=12 м2;
Fраздевалка=(120/10)
. 1=12 м2;
Таблица 1.12 - Площади складов
|
Наименование |
Площадь , м2 |
|
Склад шин |
31 |
|
Склад инструментов |
2 |
|
Склад смазки |
22 |
|
Склад запасных частей |
53 |
|
Туалет |
12 |
|
Душевая комната |
12 |
|
Раздевалка |
12 |
|
Склад промежуточного хранения |
11 |
|
Склад лакокрасочных материалов |
8 |
|
Всего |
163 |
. РАЗРАБОТКА ПЛАНИРОВОЧНЫХ РЕШЕНИЙ
В курсовом проекте по заданию рассматривается автомобиль ЗИЛ-130 - он относится ко второй категории автомобилей, по габаритным размерам.
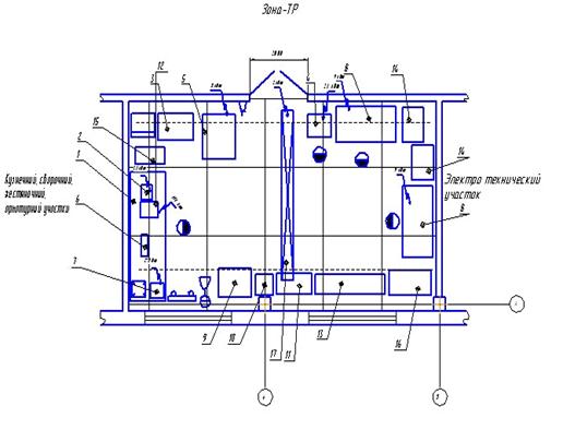
Планировочное решение агpегатного участка.
Сетка колонн 6 на 6 м2.
Сетка колонн ТО1 - 6 на 18 х 2м2
Сетка колонн ТО2 - 6 на 18 х 3 м2
Сетка колонн ТР - 6 на 18 х 8 м2
Сетка колонн Д- 6 на 18 м2
2.1 Компоновка корпуса
Главный производственный корпус рисунок 2.1
Рисунок 2.1 - Планировка главного производственного корпуса
Конструктивная схема здания - стены крупнопанельные. Покрытие крыши - мягкая кровля по перекрытию. Фундамент - железобетонный. Перегородки в здании выполняются из кирпича, ширина перегородки 200 мм. Наружные стены - крупнопанельные, утеплённые чистым бетоном.
Оконные проёмы - деревянные двойные. Высота пояса остекления - 3 м, что позволяет получить достаточную освещенность производственного корпуса. Искусственное освещение корпуса осуществляется люминесцентными лампами. Пол в производственных корпусах выложен согласно технологическому процессу асфальтированным, керамическим. Стены производственного корпуса, за исключением кирпичных, не штукатурятся. Для защиты от коррозии стен применяются различные окрасочные и клеевые материалы. Вентиляция цехов, имеющих вредные выбросы - местная, в остальных помещениях - приточно-вытяжная, через шахты с дефлекторами. Теплоснабжение корпуса идёт от тепло пункта предприятия. В качестве нагревательных элементов применены стальные сварные трубы, нагревательные приборы устанавливаются под окнами наружных стен
Условные обозначения компоновки корпуса представлены на чертеже КК
02068982-190600-02-14, приведены на рисунке 2.2.
Рисунок 2.2 - Условные обозначения главного производственного корпуса
Экспликация помещений предоставлена на чертеже КК 02068982-190600-02-14,
приведена на рисунке 2.3
Рисунок 2.3 Экспликация помещений производственного корпуса
Площадь производственного корпуса АТП:
Согласно технологического расчета составила : 2096 м2
По результатам конструирования составила: 2633 м2
Площади участков и складов :
Склад лакокрасочных материалов
Согласно технологического расчета составила : 8 м2
По результатам конструирования составила: 16 м2
Помещение для промежуточного хранения
Согласно технологического расчета составила : 11 м2
По результатам конструирования составила: 19 м2
2.2 Технологическая планировка Агрегатного
участка
Проектируемая участок в курсовом проекте - Агрегатный
Расчетная площадь: 64 м2
Спроектированная площадь: 64 м2
Характеристика агрегатного участка
Агрегатный участок служит для разборки, сборки и ремонта агрегатов и узлов, снятых с автомобиля. К данным узлам и агрегатам относятся: КПП, раздаточные коробки, ведущие мосты, отдельно взятые редуктора и т.д.
Технологическая планировка агрегатного участка представлена чертеже ТП
02068982-190600-02-14, приведена на рисунке 2.4
Рисунок 2.4 Технологическая планировка агpегатного участка
Условные обозначения технологической планировки представлены на чертеже
ТП 02068982-190600-02-14, приведены на рисунке 2.5