Материал: Технологический процесс сборки редуктора и изготовления крышки корпуса

Внимание! Если размещение файла нарушает Ваши авторские права, то обязательно сообщите нам

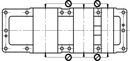
Рис.8. Схема контроля отклонения соосности тихоходного и быстроходного вала.

Контроль выполнения этого требования достигается с помощью индикаторов 1 и 2. В контролируемые полу отверстия устанавливаются контрольные валы и фиксируются хомутами за имеющиеся в корпусе отверстия. Индикатор 1 используется для определения отклонения от параллельности между 3 и 4 валом, щупы индикаторов настраиваются на размер 250 мм. Индикатор 2 используется для определения отклонения от параллельности между 4 и 5 валом, щупы индикаторов настраиваются на размер 400 мм. Отклонение от параллельности оценивается как разность показаний индикатора (Индикаторы часового типа TESA DIGICO 12 модель НР с ценой деления - 0,001 мм) при измерении расстоянии между различными концами валов.

.3 ОТРАБОТКА ДЕТАЛИ НА ТЕХНОЛОГИЧНОСТЬ


Существующая конструкция двухступенчатого цилиндрического редуктора является оптимальной с точки зрения технологичности, о чем свидетельствует многолетний опыт изготовления изделия в действующем производстве. Размеры и поверхности детали имеют экономически и конструктивно обоснованные оптимальные точность и шероховатость. Форма и размеры детали соответствуют требованиям технологии изготовления, хранения и транспортирования.

При детальном анализе конструкции детали не было выявлено нетехнологичных элементов, поэтому данная конструкция не нуждается в отработке на технологичность.

.4 ЗАГОТОВКА И МЕТОД ЕЕ ИЗГОТОВЛЕНИЯ. ТЕХНИКО-ЭКОНОМИЧЕСКОЕ ОБОСНОВАНИЕ ВЫБРАННОГО МЕТОДА ПОЛУЧЕНИЯ ЗАГОТОВКИ

Деталь крышка изготавливается из чугуна марки СЧ 21-40 ГОСТ 1412-70 методом литья, поскольку конфигурацию наружного контура и внутренних поверхностей возможно получить только данным способом. В крышке имеются два отверстия, требующие высокоточной обработки и взаимного расположения, так как от их точности зависит работа цилиндрических передач и всего механизма в целом.

В остальном деталь технологична и довольно проста по конструкции, допускает применение высокопроизводительных режимов обработки.

Размеры и формы поверхностей позволяют вести обработку стандартным инструментом. В целом изготовление крышки можно вести на оборудовании нормальной точности, а также используя стандартные измерительные инструменты для проведения контроля крышки.

Изучив конфигурацию детали, можно сделать вывод, что наиболее подходящими методами изготовления заготовок в данном случае являются:

литье в песчаные формы;

литье под давлением.

При расчете предпочтение следует отдавать той заготовке, которая обеспечивает меньшую технологическую себестоимость детали.

а) рассчитаем себестоимость заготовок, полученных методом литья в песчаные формы

 

 - масса заготовки, кг,

 - масса готовой детали, кг.

 - коэффициенты, зависящие от класса точности, группы сложности, массы, марки материала и объема производства заготовок, выбираются по таблицам.

 

- базовая стоимость 1 т заготовок;

;

;

;

;

;

;

 

б) рассчитаем себестоимость заготовок, полученных методом литья под давлением:

.

 - затраты на материал заготовки.

 

;

;

 

 

 - резка заготовок дисковыми пилами;

 

Таким образом, получение заготовки методом литья в песчаные формы обеспечивает меньшую себестоимость, поэтому выбираем этот метод.

4.5 МЕТОДЫ ОБРАБОТКИ ПОВЕРХНОСТЕЙ ЗАГОТОВКИ


В зависимости от требований, предъявляемых к точности размеров, формы, относительного расположения и шероховатости поверхностей детали с учетом ее размеров, конструкции, ориентируясь на таблицы средней экономической точности различных методов обработки, выбираем следующие методы обработки поверхностей заготовки - плиты приспособления (таблица 3). Эскиз детали см. на рис. 9.

Рис. 9. Эскиз детали - Крышка редуктора

Выбор методов обработки поверхностей Таблица 3

Вид поверхности

Метод обработки


Вариант 1

Вариант 2

Плоские поверхности 1,2,3,4,7,8,10,11,13,14,15

Фрезерование чистовое

Фрезерование чистовое

Плоские поверхности 9,25,26,27,30,31,32

Фрезерование черновое Фрезерование чистовое

Фрезерование черновое Фрезерование чистовое

Плоские поверхности 24

Фрезерование черновое Фрезерование чистовое Фрезерование тонкое

Фрезерование черновое Фрезерование чистовое Фрезерование тонкое

Отверстие 5,6,12,16,17

Сверление Нарезание резьбы

Сверление Нарезание резьбы

Отверстие 29

Сверление Зенкерование Развертывание

Сверление Зенкерование Развертывание

Отверстие 33,34

Сверление

Сверление

Отверстие 18,19,20,21,22,23

Растачивание черновое Растачивание чистовое

Растачивание черновое Растачивание чистовое


Выбор технологических баз и сами технологические процессы представлены в графической части (см. лист 1).

.6 МАРШРУТНО-ОПЕРАЦИОННЫЙ ТЕХНОЛОГИЧЕСКИЙ ПРОЦЕСС ИЗГОТОВЛЕНИЯ ДЕТАЛИ

При составлении технологического маршрута учитывался материал, вид обрабатываемой поверхности, точности ее размеров и положение относительно других поверхностей. Так как в качестве материала крышки используется чугун, при составлении маршрута обработки по возможности учитываем характерные свойства данного материала.

Выбранные маршруты обработки каждой поверхности представлены в таблице 4 (для первого варианта ТП) и таблице 5 (для второго варианта ТП).

Технические характеристики используемого оборудования приведины в приложении 1.

Маршрут обработки крышки редуктора (Вариант 1) Таблица 4

№ операции

№ установа

№ позиции

№ перехода

Наименование и содержание операции

Оборудование

05

 А     Б

 1     1  

 2 3 4 4 5 2 3 4 5 6 7

Вертикально-фрезерная с ЧПУ Фрезеровать поверхность 24 предварительно Фрезеровать поверхность 24 окончательно Сверлить 8 отверстий 33 Сверлить 6 отверстий 34 Фрезеровать поверхность 24 тонко Фрезеровать поверхность 9 предварительно Фрезеровать поверхность 1,3,7,10,14 Фрезеровать поверхность 2,4,8,11,15 Фрезеровать поверхность 9 окончательно Сверлить 6 отверстий 28 Нарезать резьбу в 6 отверстиях 28

Вертикально-фрезерный станок с ЧПУ CMBI-F10

10




Сборочная операция


15

 А

 1 

 2 3 4

Вертикально-сверлильная с ЧПУ Сверлить 2 отверстия 29 Зенкеровать 2 отверстия 29 Развернуть 2 отверстие 29

Вертикально-сверлильный с ЧПУ модель LK MP 2010

20

 А

 1 2 1 2 3 1 2 1 2 3 1 2 1 2 3 1 2 1 2

 2 3 4 5 6 7 8 9 10 11 12 13 14 15 16 17 18 19 20

Фрезерно-расточная с ЧПУ Фрезеровать поверхность 25,26,27 предварительно Фрезеровать поверхность 30,31,32 предварительно Фрезеровать поверхность 25,26,27 окончательно Фрезеровать поверхность 30,31,32 окончательно Фрезеровать поверхность 13 Сверлить 12 отверстий 5 Сверлить 12 отверстий 6 Сверлить 4 отверстия 16 Сверлить 4 отверстий 17 Сверлить отверстие 12 Нарезать резьбу в 12 отверстиях 5 Нарезать резьбу в 12 отверстиях 6 Нарезать резьбу в 4 отверстиях 16 Нарезать резьбу в 4 отверстиях 17 Нарезать резьбу в отверстии 12 Растачивать отверстия 18,20,22 предварительно Растачивать отверстия 19,21,23 предварительно Растачивать отверстия 18,20,22 окончательно Растачивать отверстия 19,21,23 окончательно

Горизонтально-расточной станок напольного типа WFT 13


Маршрут обработки крышки редуктора (Вариант 2) Таблица 5

№ операции

№ установа

№ позиции

№ перехода

Наименование и содержание операции

Оборудование

05

 А

 1      2

 2 3 4 4 5 6 7

Программная Фрезеровать поверхность 24 предварительно Фрезеровать поверхность 24 окончательно Сверлить 14 отверстий 33 Сверлить 6 отверстий 34 Фрезеровать поверхность 24 тонко Фрезеровать поверхность 1,3,7,10,14 Фрезеровать поверхность 2,4,8,11,15

Вертикальный обрабатывающий центр TRIMILL VU 2313

10




Сборочная операция


15

 А  

 1 1 2 2 1 2 3 1 2 1 2 3 3 3 3 3 1 2 1 2 1 2 1 2

 2 3 4 5 6 7 8 9 10 11 12 13 14 15 16 17 18 19 20 21 22 23 24 25

Программная Фрезеровать поверхность 9 предварительно Фрезеровать поверхность 25,26,27 предварительно Фрезеровать поверхность 30,31,32 предварительно Фрезеровать поверхность 9 окончательно Фрезеровать поверхность 25,26,27 окончательно Фрезеровать поверхность 30,31,32 окончательно Фрезеровать поверхность 13 Сверлить 12 отверстий 5 Сверлить 12 отверстий 6 Сверлить 4 отверстия 16 Сверлить 4 отверстий 17 Сверлить отверстие 12 Сверлить 2 отверстия 29 Зенкеровать 2 отверстия 29 Развернуть 2 отверстие 29 Нарезать резьбу в отверстии 12 Нарезать резьбу в 12 отверстиях 5 Нарезать резьбу в 12 отверстиях 6 Нарезать резьбу в 4 отверстиях 16 Нарезать резьбу в 4 отверстиях 17 Растачивать отверстия 18,20,22 предварительно Растачивать отверстия 19,21,23 предварительно Растачивать отверстия 18,20,22 окончательно Растачивать отверстия 19,21,23 окончательно

Вертикальный обрабатывающий центр TRIMILL VU 2313


Вывод:

. Второй вариант технологического процесса обеспечивают заданную точность по всем линейным и угловым размерам, и имеет меньшее количество оборудования (см. лист 1 графической части).

. Принимаем для реализации второй вариант технологического процесса.

.7 РАСЧЕТ МЕЖОПЕРАЦИОННЫХ ПРИПУСКОВ МЕХАНИЧЕСКОЙ ОБРАБОТКИ ЗАГОТОВКИ

Используя чертеж крышки редуктора и технологический процесс его механической обработки, выполняем расчет межоперационных припусков.

Расчет будем проводить на основе методики, изложенной в справочнике [10]. Поверхность для расчета припуска - сопрягаемая поверхность крышки с корпусом редуктора.

Качество поверхности после литья в песчаную форму [9]:= 60 мкм, h = 150 мкм.

Качество поверхности после механической обработки по данным [9] следующие:

1.       Фрезерование черновое Rz = 50 мкм, h = 60 мкм;

2.      Фрезерование чистовое Rz = 10 мкм, h = 15 мкм;

.        Фрезирование тонкое Rz = 3,2 мкм, h = 4 мкм;

Суммарное пространственное отклонение будем определять по формуле

 

где,  - коэффициент уточнения;  - суммарное пространственное отклонение на заготовительной операции;

 

где, ρ кор - величина коробления заготовки, определяемая по формуле

 

где, ∆к - величина удельного коробления заготовки.

Для корпусной детали, получаемой литьем, ∆к принимаем 0,8.

 

после фрезерования чернового D = 0,06 × 0,034= 0,002мм;

после фрезерования чистового D = 0,04 × 0,034= 0,001 мм;

после фрезерования тонкого D = 0,02 × 0,034= 0,0007 мм;

Определим значение минимального припуска  после каждой операции по формуле:

 

где ,  - высота неровностей и дефектный слой, образовавшиеся на обрабатываемой поверхности при предыдущей обработке;  - суммарное значение пространственных отклонений с предыдущей операции;  - погрешность установки (определяем по табл.13 [15] для закрепления в тисках);

1)      

2)      

3)      

Определяем предельные размеры для каждого перехода по формулам:

 

 

 

1)       ;

;

;

;

2)       ;

;

;

;

1)       ;

;

;