Материал: Техника и технологии в животноводстве

Внимание! Если размещение файла нарушает Ваши авторские права, то обязательно сообщите нам

Эти механизмы бывают трех видов: ручные, приводные от двигателя и самодействующие. К числу применяемых в сельскохозяйственном водоснабжении принадлежат: ручные насосы; приводные поршневые насосы; центробежные насосы; эрлифтные (компрессорные) установки; гидравлический таран и др.

Поршневой насос "РН-100"

Этот насос - двойного действия. Он предназначен для подъема воды из мелких (глубиной до 15 м.) шахтных колодцев и открытых водоисточников. Насос приводят в движение руками или механической силой. Для подъема воды этим насосом на 5 м. достаточно усилий 1 чел., на 10 м. - 2 чел., а свыше 10 м. - необходим конный или механический привод. Производительность насоса при ходе поршня 150 мм. и 30 оборотах в минуту составляет 30 л., при 60 оборотах шкива - 60 л., а в час соответственно 1,8 и 3,6 куб. м.

Установка насоса "РН-100" может обеспечить водой небольшую животноводческую ферму или водопой на пастбищах.

Насос "РН-100" состоит из цилиндра диаметром 75 мм., штанг, привода, всасывающей трубы с приемным клапаном и нагнетательных труб. В корпусе насоса имеется цилиндр, с обеих сторон которого отлиты заодно с ним два обводных канала. В нижней части расположены два всасывающих клапана, а в верхней - два нагнетательных клапана. На корпус поршня надеты 5 колец: среднее, или направляющее, из бронзы, рядом с обеих сторон расположены чугунные кольца и еще 2 крайних бронзовых кольца, пружинящие, с прорезами. Воздушный колпак - чугунный; к его патрубку присоединена нагнетательная труба диаметром 38 мм. Всасывающая труба, диаметром 38 мм. и длиной 3 м., заканчивается приемным клапаном (рис. 19).

Рис. 19. Насос 'РН-100' для шахтного колодца: 1 - Насос 'РН-100'. 2 - направляющие ролики. 3 - Штанга. 4 - Ручной и механический приводы. 5 - Приемный клапан с сеткой. 6 - Всасывающая трубка. 7 - Нагнетательная трубка. 8 - Сруб из бревен диам. 18 мм

Ручной и механический приводы состоят из чугунного кронштейна с отлитыми заодно двумя разъемными подшипниками, в которые посажены концы коленчатого вала с шатуном; на концах вала закреплены два маховика диаметром 800 мм. Нижний конец шатуна шарнирно соединен с ползуном, в отверстие которого ввертывается верхняя штанга.

Работа насоса происходит следующим образом. При вращении маховиков штанги приходят в возвратно-поступательное движение. При движении поршня вверх происходит всасывание через клапан под поршнем в нижнюю часть цилиндра, а вода над поршнем через нагнетательный клапан подается в нагнетательный трубопровод. При движении поршня вниз вода через всасывающий клапан обводного канала всасывается в полость цилиндра над поршнем, а вода, находящаяся под поршнем, вытесняется через другой обводной канал в нагнетательный трубопровод.

Сборку насоса и привода производят согласно инструкций, прилагаемой при их приобретении.

В зимнее время необходимо утеплить колодец. Чтобы предохранить от замерзания верхнюю часть нагнетательной трубы, на расстоянии 2 м. от поверхности земли в ней высверливают отверстие диаметром 2-4 мм., через которое вода будет вытекать при остановке насоса. В теплое время отверстие закрывают пробкой.

Насос типа "Альвейер"

В насосе "Альвейер" всасывание и нагнетание происходят вследствие колебательного движения крыла. Он может подавать лишь чистую воду (незагрязненную песком, илом и т. д.). Допустимая высота нагнетания-до 40 м.

Установку насоса "Альвейер" в шахтном колодце необходимо производить так, чтобы от рычага насоса на поверхность земли были выведены две тяги, присоединяемые к рычагам качалки.

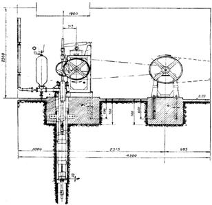
Приводной поршневой насос "НПП-3,5"

Этот насос - конструкции ВИМ - двойного действия, предназначен для подъема воды из открытых источников и шахтных колодцев, глубиной до 50 м. Насос приводится в действие двигателем или конным приводом через специальную приводную лебедку. Рекомендуемая мощность двигателя при общем напоре до 20 м. - 1,4 л/с, от 20 до 30 м. - 2,0 л/с, от 30 до 50 м. - 3,0 л/с.

Диаметр цилиндра насоса - 75 мм., длина хода поршня - 150 мм. Производительность при 50 двойных ходах в минуту- 3,6 куб. м. в час. Внутренний диаметр всасывающих и нагнетательных патрубков - 38 мм. (рис.20).

Рис. 20. Приводной насос 'НПП-3,5' конструкции ВИМ для шахтных колодцев: 1. Насос 'НПП-3,5'. 2. Всасывающая труба с приемным клапаном и сеткой. 3. Нагнетательная труба. 4. Коромысло (балансир), соединенное с двойными штангами. 5. Натяжные муфты штанг. 6. Брус. 7. Деревянная рама. 8. Лебедка. 9. Двигатель

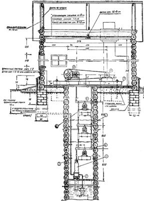
Насос представляет собой фасонную чугунную отливку (корпус насоса), в которой находятся цилиндр насоса, клапанная коробка и каналы (рис. 21).

Рис. 21. Насос 'НПП-3,5' (разрез)

Цилиндр имеет две крышки - верхнюю и нижнюю, которые закреплены болтами. В верхней крышке закреплена направляющая рамка со втулкой и имеется гнездо, с крышкой сальника, сквозь которое проходит шток поршня; таким устройством обеспечивается прямолинейность движения штока. Внутри цилиндра помещается "поршень с металлическими пружинящими кольцами. В клапанной коробке находятся 2 всасывающих и 2 нагнетательных клапана, расположенных в стороне от цилиндра, чем обеспечивается свободный доступ к ним. Клапаны эти - тарельчатого типа, чугунные, с резиновыми прокладками и прижаты к своим седлам коническими латунными пружинами. Для регулировки посадки клапанов служат регулировочные болты, при помощи которых регулируют натяжение пружин.

Чтобы осмотреть нагнетательные клапаны, необходимо снять воздушный колпак. Доступ к всасывающим клапанам осуществляется снятием специальной клапанной рамки.

В корпусе насоса для всасывающей трубы имеется отверстие с фланцами. Оно соединяет трубу с пространством, расположенным под нижней парой клапанов. Для нагнетательной трубы имеется такое же отверстие с фланцем, соединяющее ее с пространством над верхней парой клапанов.

Лебедка состоит из чугунной станины, на которой расположены 3 вала: приводной - со шкивом, диам. 400 мм., промежуточный и коленчатый. Движение от приводного вала к коленчатому передается через две пары шестерен. Передаточное отношение между зубчатыми шестернями 64:9. Обработанная шейка коленчатого вала соединена с головкой шатуна; второй конец шатуна соединен с концом верхнего балансира штангового привода через серьгу.

Передача движения поршню осуществляется двойным штанговым приводом, который состоит из двух параллельных штанг диаметром 15 мм., при длине каждого отсека 4,16 м., соединенных между собой натяжными муфтами. Шток поршня насоса соединен шарнирно с вилкой нижнего шатуна, другой конец которого приключен к серьге нижнего балансира. Балансиры устанавливают через каждые 8,5 м. по глубине колодца.

При движении поршня вверх в нижней камере создается разрежение, и вода поступает в эту камеру через всасывающий клапан; одновременно из верхней камеры вода вытесняется поршнем через нагнетательный клапан. При движении поршня вниз вода из нижней камеры вытесняется по каналу через другой нагнетательный клапан и одновременно, вследствие разрежения в верхней камере, вода засасывается в эту камеру через другой всасывающий клапан. Таким образом, при любом движении поршня вода всасывается и нагнетается (рис. 22).

Рис. 22. Схема действия насоса 'НПП-3,5'

Насос и балансиры монтируют внутри ствола колодца на деревянных брусках, укрепленных в срубе. Бруски для насоса закрепляют на расстоянии не более 2 м. от поверхности воды.

Приводную лебедку монтируют на поверхности земли, над стволом колодца, на деревянной раме.

Монтаж начинают с разметки мест расположения насоса и крайнего нижнего балансира. При этом следует помнить, что поршень при движении не должен доходить до крышек цилиндра. Затем намечают места средних и верхнего балансиров. Далее монтируют лебедку и систему приводных штанг.

Нагнетательную трубу укрепляют по стенке колодца крючьями или скобами (через каждые 2 м.) и плавным поворотом выводят ее из колодца в бак водонапорной башни.

Перед первым пуском необходимо залить воду в корпус насоса.

При работе насоса от конного привода № 11/2 с диаметром передаточного шкива 1150 мм., шкив лебедки насоса не требует замены. При работе от электромотора мощностью 2,5 квт., при 1450 оборотах в минуту, диаметр шкива должен равняться 100 мм. При работе от других двигателей необходимое число качаний обеспечивают путем соответствующего подбора шкивов.

Насос может быть принят к эксплуатации, если он удовлетворяет следующим требованиям:

. Ведро, емкостью в 10 л., наполняется водой в течение 10 секунд.

. Насос начинает подавать воду при первых же оборотах приводного шкива лебедки.

. Насос, лебедка, балансиры не вибрируют и в шарнирных соединениях привода нет стука.

. В сальниках и соединениях труб нет течи воды.

. Насос и трубы предохранены от замерзания в зимнее: время.

. Приняты меры, предупреждающие попадание внешних загрязнений в колодец.

. Устроены защитные ограждения лебедки, ременной передачи и двигателя.

Наблюдение за насосом и уход за ним следует поручить; определенному лицу, хорошо знакомому с машинами.

Не реже одного раза в месяц необходимо проверять плотность соединения всех труб и штанг, крепление всех элементов насосной установки, а также смазывать трущиеся части установки, за исключением поршня (последний в смазке не нуждается). Для наполнения колпака воздухом спускают воду раз в месяц из нагнетательной трубы и колпака. После этого открывают пробку в верхней части колпака и впускают в него воздух.

Мелкотрубчатый колодец с ручным поршневым насосом (абиссинский)

Для добывания и подъема воды из подземных водоносных горизонтов (до 6-7 м.) служат мелкотрубчатые колодцы. Такой колодец состоит из трубы и смонтированной заодно с нею насосной колонки. Поршневой насос, расположенный в колонке, приводится в движение рычагом. Всасывающей трубой служит дырчатый фильтр, заглубленный в водоносный горизонт (рис. 23).

Рис. 23. Мелкотрубчатый колодец с поршневым насосом (абиссинский)

Производительность насоса этого типа при диаметре цилиндра 38 мм. - 35 л. в минуту, при диаметре 50 мм. - 60 л. в минуту.

Для углубления абиссинских колодцев в землю применяют два способа, в зависимости от твердости грунта: 1) забивка труб с помощью копра в отверстие, предварительно пробуренное ручным буром в земле; 2) ввинчивание труб в землю. При забивке труб фильтр должен иметь наконечник в виде пирамидального острия; при ввинчивании труб в землю надевают на фильтр наконечник, снабженный винтовой поверхностью.

Насосные лебедки

Эти лебедки применяют при глубоких динамических уровнях, в особенности же тогда, когда забор воды производят из водоносных пластов небольшой мощности. Такие лебедки широко применяются для подъема воды с глубин до 100 м. и даже более, из артезианских скважин малого диаметра. Эти же лебедки находят применение и для подъема воды из шахтных колодцев и других водоисточников.

В комплект указанных водоподъемников включаются: 1) лебедка, приводимая в движение двигателем; 2) поршневой насос со штангами, всасывающими и нагнетательными трубами; 3) воздушный колпак и обратный клапан; 4) уравновешивающий механизм.

Насосная лебедка является промежуточным механизмом между двигателем и поршневым насосом. Она служит для преобразования вращательного движения кривошипного вала в возвратно-поступательное движение штанг поршневого насоса.

Насосная лебедка "Бурвод-Ш" (рис.24.)

Состоит из сварной рамы, передаточного и направляющего механизмов, масляно-пневматического буфера и поршневого насоса простого действия

Рис. 24. Насосная лебедка 'Бурвод-Ш'. Монтажная схема установки насосного оборудования с лебедкой

На раме в подшипниках скользящего трения расположен вал, на одном конце которого насажены два шкива - рабочий и холостой. На этом же валу, снаружи подшипников, имеются 2 цилиндрические шестерни, которые входят в сцепление с двумя большими насосными шестернями. Шестерни стальные с фрезерованными зубьями. Каждая из больших шестерен имеет по 3 отверстия для пальца шатуна. Шатуны одной своей головкой надеты на парные пальцы шестерен, а другой - на концы траверса.

При вращении шестерен с надетыми шатунами траверс обеспечивает движение по вертикали в двух направляющих (скалках). Среднюю часть траверса соединяют с концом насосной штанги, которая воспринимает возвратно-поступательное движение траверса. В зависимости от того, на какие парные пальцы будут надеты головки шатунов, можно получить ход траверса, а, следовательно, и ход поршня насоса - 300, 220 или 170 мм.

Масляно-пневматический буфер лебедки "Бурвод-Ш" состоит из двух закрытых цилиндров - наружного и внутреннего. Во внутреннем цилиндре движется поршень с манжетами. В цилиндр наливают масло и накачивают через автомобильный ниппель (золотник) воздух. Давление в цилиндре измеряют установленным на верхней крышке манометром. Степень сжатия в каждом отдельном случае зависит от установочных условий. Воздух накачивают при верхнем положении поршня. Если в грузовом типе вес штанг уравновешивается грузом, то в масляно-пневматическом буфере он уравновешивается сжатым воздухом.

Преимущество насосной лебедки "Бурвод-Ш" заключается в том, что ее устанавливают на поверхности, - она не требует устройства шахты.

Насосная лебедка "Бурвод-Ш" может работать через трансмиссию от электромотора, двигателя внутреннего сгорания, ветродвигателей "ТВ-8" и "Д-12", локомобиля и проч.

Приводная универсальная лебедка ветродвигателя "ТВ-8" позволяет получать от вертикального вала ветродвигателя как возвратно-поступательное движение, необходимое для работы поршневого насоса, так и вращательное движение шкива, который может быть соединен ременной передачей с какой-либо рабочей машиной. При выключении одной из малых шестерен, лебедка приводит в движение или шкив или насос. При желании можно иметь возвратно-поступательное и вращательное движение одновременно (рис. 25).

Рис.25. Насосная лебедка ветродвигателя 'ТВ-8' с грузовым уравновешиванием

Возвратно-поступательное движение осуществляется шатунно-кривошипным механизмом. На большой насосной шестерне лебедки имеются два гнезда для пальца, на который надета головка шатуна. В зависимости от того, в какое гнездо вставлен палец, шатун обеспечивает ход поршня насоса 250 или 450 мм.

В безветренные часы лебедку отключают от вертикального вала ветродвигателя, и она может быть приведена в движение каким-либо другим двигателем.

Уравновешивание неравномерной работы поршневого насоса простого действия в универсальной лебедке достигается при помощи балансира с контргрузом. Подбор веса груза и длины плеч балансира (как переднего, так и заднего) определяют в каждом отдельном случае с учетом общего напора, веса штанг и длины хода поршня.

Список литературы

1. Алешин В.Р., Рощин П.М. Механизация животноводства. / Под ред. С.В. Мельникова. - М.: Агропромиздат, 1985. - 336 с.

. Батанов, С.Д. Практикум по технологии производства продукции животноводства / ИжГСХА. - Ижевск: Удмуртский университет,2003. - 112с.

.     А.П. Калашников, В.И. Фисинин, В.В. Щеглов, Н.И. Клейменов и др. /Нормы и рационы кормления сельскохозяйственных животных: справочное пособие. - 3-е изд., перераб. и доп.- Москва, 2003.- 456 с.

.     Механизация и технология производства продукции животноводства /В.Г. Коба, Н.В. Брагинец, Д.Н. Мурусидзе, В.Ф. Некрашевич. - М.: Колос, 1999. - 528 с.

. Д.Н.Мурусидзе, Технология производства продукции животноводства / Д.Н. Мурусидзе, А.Б. Левин. - М.: ВО Агропромиздат, 1992. - 222 с