Материал: Системы отопления

Внимание! Если размещение файла нарушает Ваши авторские права, то обязательно сообщите нам

Быстрый запуск системы и, как следствие, быстрый прогрев помещений - достоинство насосной системы. К недостаткам относится то, что при отключении электропитания она не работает. А это может привести к замораживанию и разгерметизации системы. Сердце системы водяного отопления - источник теплоснабжения, теплогенератор. Именно он создает энергию, обеспечивающую тепло. Такое сердце - котлы на разных видах топлива. Наиболее популярны газовые котлы. Другой вариант - котел на дизельном топливе. Электрические котлы выгодно отличаются отсутствием открытого пламени и продуктов горения. Твердотопливные котлы не удобны в эксплуатации из-за необходимости частой топки. Для этого надо иметь десятки кубометров топлива, площади для его хранения. А добавьте сюда трудозатраты на загрузку и заготовку! Кроме того, режим теплоотдачи твердотопливного котла цикличен, и температура воздуха в отапливаемых помещениях заметно колеблется в течение суток. Место для хранения запасов топлива также необходимо и для котлов на жидком топливе. [4]

.1 Виды водяного отопления

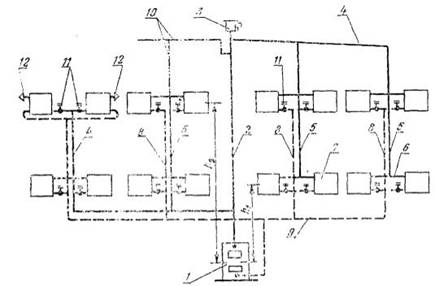
Системы отопления по способу создания циркуляции делятся на с естественной циркуляцией (гравитационные) и с механическим побуждением циркуляции воды при помощи насосов. Принципиальная схема системы водяного отопления с естественной циркуляцией теплоносителя показана на рис. 2. Вода от котла к приборам теплообменника и обратно двигается под действием гидростатического напора, возникающего благодаря различной плотности охлажденной и нагретой жидкости (теплоносителя). Какая же сила заставляет воду циркулировать в системе, т.е. двигаться по трубам из котла в нагревательные приборы и обратно в котел? Эта сила возникает при нагревании воды в котле и охлаждении ее в нагревательных приборах. Вода, нагретая в котле 1, как более легкая, поднимается по главному подающему стояку 2 вверх. Из стояка она поступает в разводящие магистральные трубопроводы 3, а из них через подающие стояки 4 - в нагревательные приборы. Здесь вода остывает и поэтому становится более тяжелой. Например, плотность воды при 400С составляет 992,24 кг/м3, при 70 °С - 977,8 кг/м3, при 95°С -961,9 кг/м3. Охлажденная вода через обратные стояки 5 и обратную линию 6 опускается вниз и своим весом вытесняет нагретую воду из котла вверх - в главный подающий стояк.

Описанный процесс непрерывно повторяется и в результате происходит постоянная циркуляция воды в системе.


Сила циркуляции, или, как принято говорить, циркуляционное давление, зависит от разности весов столба горячей и столба охлажденной (обратной) воды, следовательно, она зависит от разности температур горячей и обратной воды. Кроме того, циркуляционное давление обуславливается ещё высотой расположения нагревательного прибора над котлом: чем выше расположен прибор, тем больше для него циркуляционное давление.

В системах водяного отопления наибольшая температура горячей воды обычно равна 95°С, а охлажденной - 70°С. Если пренебречь охлаждением воды в трубах, то можно считать, что в нагревательный прибор вода поступает с температурой 95°С, а уходит из него с температурой 70°С. При этом условии определим сначала для верхнего, а затем для нижнего нагревательного прибора циркуляционное давление, под влиянием которого происходит через них движение воды.

По температуре теплоносителя различаются системы низкотемпературные с предельной температурой горячей воды tГ<70°С, среднетемпературные при tГ от 70 до 100°С и высокотемпературные при tГ> >100°С. Максимальное значение температуры воды ограничено в настоящее время 150 СС.

По положению труб, объединяющих отопительные приборы по вертикали или горизонтали, системы делятся на вертикальные и горизонтальные.

В зависимости от схемы соединения труб с отопительными приборами бывают системы однотрубные и двухтрубные. В каждом стояке или ветви однотрубной системы приборы соединяются одной трубой, и вода протекает последовательно через все приборы. Если каждый отопительный прибор, установленный в помещении, разделен на две равные части («а» и «б»), в которых вода движется в противоположных направлениях и теплоноситель последовательно проходит сначала через все части «а», а затем через все части «б», то такая однотрубная система носит название бифилярной (двухпоточной).

Главное устройство такой системы, как одноконтурная система отопления, - это котел. Чаще всего топливом для котла является газ, но иногда может применяться и топливо твердых сортов. Такой вариант лучше всего подходит для таких домов, где централизованная газовая система отсутствует.

Элементами для отопления служат радиаторы. Если раньше в домах были установлены радиаторы из такого материала, как чугун, то сейчас большей популярностью пользуются биметаллические батареи. Чугунные радиаторы имеют несколько больших недостатков. В первую очередь, они не всегда соответствуют всем требованиям технического характера, а во-вторых, обогрев помещения проходит не на самом высоком уровне. Биметаллические радиаторы выглядят более эстетично и лучше обогревают помещение.

Рис.3 Принципиальная схема однотрубной системы водяного отопления с тупиковым движением искусственной циркуляцией теплоносителя

В двухтрубной системе приборы отдельно присоединяются к двум трубам - подающей и обратной, и вода протекает через каждый прибор независимо от других приборов. 2.

В двухтрубных системах отопления нагревательные приборы, расположенные на одном уровне с котлом или ниже его, работать не будут или же будут очень слабо прогреваться. Для указанных систем практикой установлено наименьшее расстояние между центром нагревательных приборов нижнего этажа и центром котла в 3 метра. В связи с этим котельные для систем отопления должны иметь достаточное заглубление. Указанного недостатка лишены однотрубные системы отопления. В этом случае гидростатический напор, заставляющий циркулировать воду в системе, будет образовываться из-за охлаждения воды в трубопроводах, подводящих нагретую воду к нагревательным приборам, а также отводящих охлажденную воду от приборов к котлу.

Рис.4 Принципиальная схема двухтрубной системы отопления с тупиковым движением воды магистралях и естественной циркуляцией теплоносителя

Это охлаждение полезно, во-первых, для создания гидростатического напора, а во-вторых, для дополнительного, обогрева помещения, поэтому указанные трубопроводы прокладывают открыто и не изолируют. Напротив, охлаждение воды в главном стояке (подъемном трубопроводе) вредно, ибо приводит к снижению температуры и увеличению плотности и, как следствие, к уменьшению гидростатического напора. В связи с этим подъемный стояк от котла необходимо тщательно теплоизолировать.

Количество тепла, отдаваемого помещению нагревательными приборами, зависит от количества поступающей в прибор воды и ее температуры. В свою очередь, количество воды, которое может быть пропущено через трубопровод к прибору, зависит от циркуляционного давления, заставляющего воду двигаться по трубе. Чем больше циркуляционное давление, тем меньше может быть диаметр трубы для пропуска определенного количества воды и наоборот чем меньше циркуляционное давление, тем больше должен быть диаметр трубы.

Но для нормального действия системы отопления требуется еще одно условие: чтобы циркуляционное давление было достаточным для преодоления всех сопротивлений, которые встречает движущаяся в этой системе вода. Известно, что вода при своем движении в системе отопления встречает сопротивления, вызываемые трением воды о стенки труб, а кроме них, еще и местные сопротивления, к которым относятся отводы, тройники, крестовины, краны, нагревательные приборы и котлы.

Сопротивление вследствие трения зависит от диаметра и длины трубопровода, а также от скорости движения воды (если скорость увеличится в два раза, то сопротивление - в четыре раза, т.е. в квадратичной зависимости). Чем меньше диаметр и больше длина трубопровода и чем выше скорость воды, тем больше сопротивление создается на пути воды и наоборот. В схеме отопления, изображенной на рис. 1. (а) имеется два кольца: одно, проходящее через ближайший к котлу стояк, и другое, которое проходит через дальний стояк. Так как первое кольцо короче второго, то при одинаковой в обеих кольцах тепловой нагрузке и одинаковых диаметров труб будет проходить по короткому кольцу больше воды, чем требуется по расчету, ж в результате по длинному кольцу будет проходить меньше воды, чем следует по расчету. Чтобы этого избежать необходимо для дальнего стояка применять трубы большего диаметра, чем для ближайшего стояка, и таким образом уравнять сопротивления в обеих кольцах. При большей длине труб сопротивление возрастает, с увеличением диаметра труб оно падает. [5]

Величина местного сопротивления зависит, во-первых, от скорости воды, следовательно, и от изменения сечения, вызывающего изменение этой скорости (например, в кранах, нагревательных приборах, котлах и т.д.), во-вторых, от изменения направления, по которому движется вода, и изменения количества воды (например, в отводах, тройниках, крестовинах, вентилях).

По принципу действия система отопления с нижней разводкой не отличается от системы с верхней разводкой. И тут, и там циркуляция создается потому, что горячая вода, как более легкая, вытесняется обратной водой вверх по стоякам; остывая в нагревательных приборах, эта вода опускается вниз через обратные стояки и снова поступает в котел.

В системах с естественным побуждением в зданиях небольшой этажности величина циркуляционного давления невелика, и поэтому в них нельзя допускать больших скоростей движения воды в трубах; следовательно, диаметры труб должны быть большими. Система может оказаться экономически невыгодной. Поэтому применение систем с естественной циркуляцией допускается лишь для небольших зданий.

Перечислим недостатки систем отопления с естественной циркуляцией воды:

сокращен радиус действия (до 30м по горизонтали) из-за небольшого - - циркуляционного давления;

повышена стоимость (до 5-7% стоимости здания), в связи с применением труб большого диаметра;

увеличены расход металла и затраты труда на монтаж системы;

замедлено включение системы в действие;

повышены опасность замерзания воды в трубах, проложенных в - неотапливаемых помещениях.

Вместе с тем, отметим преимущества системы с естественной циркуляцией воды, определяющие в отдельных случаях ее выбор:

относительная простота устройства и эксплуатации;

независимость действия от снабжения электрической энергией;

отсутствие насоса, а соответственно шума и вибраций;

саморегулирование, обусловливающее ровную температуру помещений.

В системе при изменении температуры и плотности воды изменяется и расход вследствие возрастания или уменьшения естественного циркуляционного давления. Одновременное изменение температуры и расхода воды обеспечивает теплопередачу приборов, необходимую для поддержания заданной температуры помещений, т.е. придает системе тепловую устойчивость.

По температуре теплоносителя различаются системы низкотемпературные

В системах водяного отопления с естественной циркуляцией циркуляционные давления измеряются всего лишь десятками миллиметров водяного столба. Столь малые давления не позволяют устраивать данные системы в зданиях, имеющих большую протяженность, кроме того, они требуют применения труб значительных диаметров, что ведет к большому расходу металла.

Перечисленных недостатков лишены системы водяного отопления с искусственной циркуляцией. В них циркуляция воды создается центробежными насосами. Насосы, действующие в замкнутых кольцах системы: отопления, заполненных водой, воду не поднимают, а только ее перемещают, создавая циркуляцию, и поэтому называются циркуляционными.

Циркуляционный насос включает, как правило, обратную магистраль системы отопления для увеличения срока службы деталей, взаимодействующих с горячей водой. На рис. 1. (б) изображены системы отопления с искусственной циркуляцией. Расширительный бак подсоединяют не к подающей, а к обратной магистрали.

В системах отопления целесообразно применять специальные циркуляционные насосы перемещающие значительное количество воды и развивающие сравнительно небольшие давления. Это малошумные горизонтальные лопастные насосы центробежного типа, соединенные в единый блок с электродвигателями и закрепляемые непосредственно на трубах (без фундамента).

Применение насосных: систем отопления позволяет существенно увеличить протяженность, трубопровода и уменьшить металлоемкость системы отопления за счет уменьшения диаметров разводящих трубе проводов. Кроме того, с установкой циркуляционного насоса появляется возможность применения новых схемных решений системы отопления, например, отказ от верхней разводки трубопроводов. Однако применение насосных систем отопления возможно только при условии надежного электроснабжения.

При отсутствии теплогенераторов на твердом топливе с топками длительного горения могут найти применение системы водяного отопления с баком аккумулятором и циркуляционным насосом типа ЦВЦ такая система позволяет значительно сократить эксплуатационные затраты по обслуживанию генератора теплоты.

Принцип подобной системы отопления состоит в том, что тепловую мощность теплогенератора выбирают в 3 раза больше, чем теплопотери отапливаемого дом, за счет чего появляется возможность не только обеспечивать компенсацию теплопотерь дома, но и аккумулировать теплоту в специальном баке, которы начинает работать по прекращении эксплуатации теплогенератора. Объем бака-аккумулятора подбирают таким образом, чтобы время его разрядки составляло не менее 8 часов (при работе теплогенераторов два раза в сутки по 4 часа). [6]

3. Воздушное отопление

Системы воздушного отопления различают в зависимости от способа создания циркуляции воздуха: гравитационные и вентиляторные. Гравитационная воздушная система отопления основана на разности плотности воздуха при различных температурах. В процессе прогрева возникает естественная циркуляция воздуха в системе. В вентиляторной системе используется электрический вентилятор, который повышает давление воздуха и распределяет его по воздуховодам и помещениям (принудительная механическая циркуляция).

Воздух нагревается в калориферах, подогревающихся изнутри водой, паром, электричеством или горячими газами. Калорифер размещается либо в отдельной вентиляторной камере (центральная система отопления), либо непосредственно в помещении, которое отапливается (местная система).

Отсутствие замерзающего теплоносителя делает удачным этот вид отопления для домов с непостоянным использованием. Воздушное отопление быстро прогреет дом, а автоматические регуляторы будут поддерживать заданную вами температуру. К недостаткам такого отопления можно отнести разве что опасность распространения движущимся воздухом вредных веществ.[6]

.1 Виды воздушного отопления

При воздушном отоплении циркулирующий нагретый воздух охлаждается, передавая теплоту при смешении с воздухом обогреваемых помещений и иногда через их внутренние ограждения. Охлажденный воздух возвращается в тепловой центр.

Системы воздушного отопления по способу создания циркуляции воздуха разделяются на системы с естественной циркуляцией (гравитационные) и с механическим побуждением движения воздуха с помощью вентилятора.