Рисунок 54 - Траектория скорости потока жидкости
Эпюра интенсивности турбулентности показана на рисунке 55.
Рисунок 55 - Эпюра интенсивности турбулентности
По результатам анализа видно, что давление, действующее на поверхность фланца крышке, немного уменьшилось и составило примерно 794000 (Па) вместо 800000 (Па) в предыдущем расчете потока жидкости.
График изменения скорости потока воды представлен на рисунке 56.
Рисунок 56 - График изменения давления в рабочей емкости
Стоит отметить, что в действительности после первичного испытания установки фланец крышки был выпучен под давлением воды изнутри емкости. После чего на производственном участке сняли крышку и к фланцу доварили по месту дополнительные ребра жесткости. С учетом того, что помимо ребер были приварены 18 втулок, поверхность фланца извело в процессе сварки. Поэтому прочностной анализ с будет производиться без ввода в исследуемую модель ребер жесткости.
Граничные условия, а также условия закрепления и плотность сетки конечных элементов остаются неизменными. Меняется только величина приложенной нагрузки и толщина фланца, которая равняется 12 мм.
Для начала оценим напряжения в местах контакта головки болта и фланца. В ходе проведения расчета получились следующие результаты.
) Нормальные напряжения по Мизесу представлены на рисунке 57.

Рисунок 57 - Эпюра нормальных напряжений
2) Диаграмма перемещений показана на рисунке 58.
Рисунок 58 - Диаграмма перемещений
) Эпюра деформаций изображена на рисунке 59.

Рисунок 59 - Эпюра деформаций.
Как видно из диаграммы максимальное напряжение не превышает предел текучести материала фланца. Это означает, что исследуемый объект выдержит давление, которое возникает вследствие прохождения потока жидкости в рабочей емкости.
Полученные в результате анализа значения, оформим в итоговую таблицу 4
результатов исследования.
Таблица 4 - Итоговая таблица результатов исследования
|
|
Первоначальная геометрия |
Оптимизированная геометрия |
Разница в напряжениях,% |
||
|
|
σ, МПа |
ΔW, мм |
σ, МПа |
ΔW, мм |
|
|
Место контакта болта и фланца (max) |
107,79 |
0,564 |
84,9 |
0,4 |
21,24 |
|
В местах сварных швов |
54,001 |
0,3 |
45 |
0,2 |
16,67 |
Заключение
В ходе выполнения магистерской диссертации был осуществлен анализ по литературным источникам, в которых рассматриваются:
. Технология очистки и обеззараживания воды с применением совместного действия ультразвукового и ультрафиолетового излучений;
. Гидравлические процессы, проходящие во время УЗ-очистки;
. Прочностные свойства резервуаров, работающих под давлением;
. Применение современных программных вычислительных сред для выполнения различных инженерных расчетов и т. д.
На первом этапе осуществлен анализ течения потока жидкости в рабочей емкости установки. Полученное значение давления было в использовано в дальнейших расчетах на прочность.
На втором этапе произведен прочностной анализ фланцевого соединения установки обеззараживания воды серии УОВ-ПВ. Расчеты выполнялись не только для твердотельных, но и для оболочковых моделей. Дана оценка получившимся результатам при расчете различных типов моделей. В расчете с "виртуальным" болтом в свойствах материала в таблице были введены необходимые механические анизотропные свойства соединителя в цилиндрической системе координат. На основе полученных результатов прочностного анализа была проведена оптимизация конструкции, выполнены соответствующие расчеты потока жидкости с последующим расчетом на прочность оптимизированной модели.
Также была дана оценка о применимости существующих нормативных документов в качестве руководства для расчета установок обеззараживания воды, производимые производственным предприятием ООО "Александра-Плюс".
Разработана методика инженерного анализа сосудов, работающих под давлением, в которой пошагово описана последовательность действий при выполнении инженерных расчетов.
Список использованных источников
1. Алямовский, А.А. COSMOSWorks. основы расчета конструкций на прочность в среде SolidWorks / А.А. Алямовский. - Москва: ДМК Пресс, 2010, - 784 с.
. Алямовский, А.А. Инженерные расчеты в SolidWorks Simulation / А.А. Алямовский. - Москва: ДМК Пресс, 2010, - 464 с.
. Алямовский А.А. SolidWorks Simulation. Как решать практические задачи / А.А. Алямовский. - СПб.: БХВ-Петербург, 2012, - 448 с.: ил. + DVD.
. Бергман, Л. Ультразвук и его применение в науке и технике / Л. Бергман. - Москва: Издательство иностранной литературы, 1957. - 726 с.
. Эльпинер, И.Е. Ультразвук. Физико-химическое и биологическое действие / И.Е. Эльпинер. - Москва: Физматгиз, 1963. - 420 с.
. Основы физики и техники ультразвука / Б.А. Агранат, М.Н. Дубровин, Н.Н. Хавский, Г.И. Эскин. - Москва: Высшая школа, 1987. - 352 с.
. Ультразвук. Маленькая энциклопедия / под ред. И.П. Голяминой. - Москва: Советская энциклопедия, 1979. - 400 с.
. Гидравлика, гидромашины и гидроприводы: учебник для машиностроительных вузов / Т.М Башта, С.С. Руднев, Б.Б. Некрасов [и др.]. - Москва: Машиностроение, 1982. - 423 с.
. Драгинский, В.Л. Образование токсичных продуктов при использовании различных окислителей для очистки воды / В.Л. Драгинский, Л.П. Алексеева // Водоснабжение и санитарная техника. - 2002. - №2.
. Развитие систем обеззараживания сточных вод на московских станциях / А.Н. Пахомов, М.Н. Козлов, Д.А. Данилович, Н.А. Белов // Водоснабжение и санитарная техника. - 2005. - №12. - Ч.1.
. О введении в действие санитарно-эпидемиологических правил и нормативов "Питьевая вода. Гигиенические требования к качеству воды, расфасованной в емкости. Контроль качества. СанПин 2.1.4.1116-02": постановление Гл. гос. санитар. врача РФ от 19 марта 2002 г. № 12 // Российская газета. - 2002. - 22 марта. - С. 40.
. СанПиН 2.1.4.1074-01. Питьевая вода. Гигиенические требования к качеству воды централизованных систем питьевого водоснабжения. Контроль качества. Гигиенические требования к обеспечению безопасности систем горячего водоснабжения: утв. Гл. гос. санитар. врачом РФ 26.09.2001. - Введ. 01.01.2002. - Санкт-Петербург: Деан, 2002. - 68 с.
. ПБ 03-576-03. Правила устройства и безопасной эксплуатации сосудов, работающих под давлением: утв. постановлением Госгортехнадзора России от 11.06.2003 №91. - Введ. 22.12.2014. - ОАО НТЦ Промышленная безопасность, 2008 г. - 186 с.
. ГОСТ 3242-79. Соединения сварные. Методы контроля качества. - Введ. 02.08.1979. - Москва: Издательство стандартов, 1991. - 10 с.
. ГОСТ Р 52857.1-2007. Нормы и методы расчета на прочность. Общие требования. - Введ. 27.12.2007. - Москва: Стандартинформ, 2009. - 22 с.
. ГОСТ Р 52857.4-2007. Нормы и методы расчета на прочность. Расчет на прочность и герметичность фланцевых соединений. - Введ. 27.12.2007. - Москва: Стандартинформ, 2009. - 36 с.
. ГОСТ Р 52630-2012. Сосуды и аппараты стальные сварные. Общие технические условия. - Введ. 27.12.2006. - Москва: Стандартинформ, 2012. - 117 с.
. РД 37.001.131-89. Затяжка резьбовых соединений. Нормы затяжки и технические требования. - Введ. 01.07.90. - Бор: Борская типография Нижегородского областного управления издательств, 1990. - 20 с.
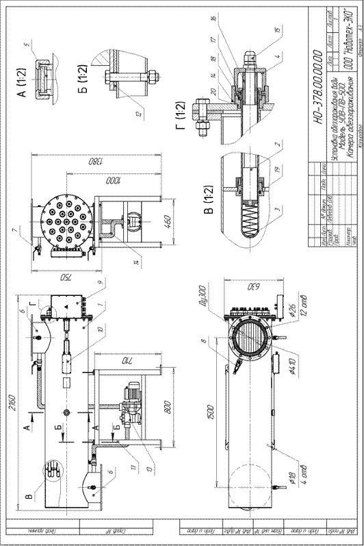
Приложение 1
(обязательное)
Общий вид установки обеззараживания воды
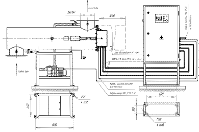
Приложение 2
(рекомендуемое)
Подключение и монтаж установки
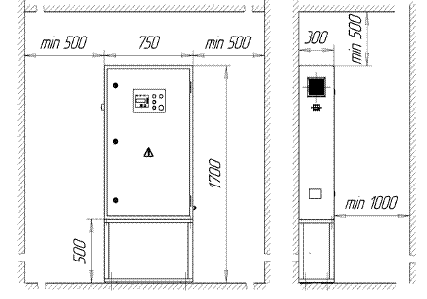
Приложение 3
(справочное)
Технические характеристики камеры обеззараживания
Таблица 2.1 - Технические характеристики установки УОВ-ПВ-500
|
Параметр |
Ед. изм. |
Значение |
|
Производительность 4, не более |
м 3/ч |
550 |
|
Рабочее давление в камере обеззараживания, не более |
бар |
10 |
|
Разряжение в камере обеззараживания, не более |
бар |
0,1 |
|
Тип лампы 5 |
амальгамная |
GPHHA 1554 T6L, SEAN GA 1554 T6L, SEAN GLHA 19310 |
|
Количество ультрафиолетовых ламп |
шт. |
18 |
|
Срок службы УФ-ламп |
час |
13 000 |
|
Количество включений/выключений в течение срока службы, не более |
- |
2 000 |
|
Напряжение питания |
В |
220/380 |
|
Частота питающего напряжения |
Гц |
50 |
|
Потребляемая мощность: - камера обеззараживания и блок управления; - насос промывки |
кВт |
6,3 0,25 |
|
Диаметр патрубков камеры обеззараживания 6 |
мм |
300 |
|
Объем камеры обеззараживания |
л |
274 |
|
Датчик ультрафиолета с прибором контроля |
- |
есть |
|
Габаритные размеры, не более: - камера обеззараживания с подставкой; - блок управления с подставкой; - насос промывки |
мм |
2160×630×1380 750×300×1700 500×190×230 |
|
Масса, не более: - камера обеззараживания с подставкой; - блок управления с подставкой; - насос промывки |
кг |
162 88 5 |
Очищенная вода, по физ-хим. показателям соответствующая СаНПиН 2.1.4.1074-01 и поверхностного источника с коэффициентом пропусканием не менее 70%
Очищенная вода, по физ-хим. показателям соответствующая СаНПиН 2.1.4.1074-01 из поверхностного источника или любая вода, прошедшая сорбционную фильтрацию с коэффициентом пропусканием не менее 80%
Вода, прошедшая очистку с применением ультрафильтрации или обратного осмоса с коэффициентом пропусканием не менее 90%
Производительность установки зависит от коэффициента пропускания воды
Безозоновое исполнение. Возможно применение любой из представленных в таблице марок ламп.
Диаметр входного и выходного патрубков определяется проектом и согласуется с заказчиком при изготовлении установки. Указано базовое значение.