Материал: Системи підтримки прийняття фінансових рішень

Внимание! Если размещение файла нарушает Ваши авторские права, то обязательно сообщите нам

Системи підтримки прийняття фінансових рішень

План

Визначення результатів в ході розв’язання конкретного завдання, яке треба виконати в середовищі системи Exel (пошук рішення)

Список використаної літератури.

прийняття рішення таблиця запит

1. Інвестиційний фонд може інвестувати кошти в 4 підприємства, які отримали гаранти. Загальний розмір інвестицій не повинен перевищувати 15 млн.грн. Кошти спрямовуються на виробництво товарів легкої промисловості. Необхідно довести загальну кількість товарів, в які будуть вкладені кошти, до 20.

Різні підприємства можуть вкладати різні кошти в один вид товарі.

Треба запропонувати розподіл коштів між підприємствами таким чином, щоб досягнути виробництва 20 або більше товарів за мінімальними коштами фонду.

Обмеження:

Кожне підприємство повинно вкласти кошти в більш ніж 4 види продукції;

Загальна сума для підприємств 3 та 4 не повинна перевищувати 45% від загальної суми інвестицій.

Розв'язання.

. Складемо таблицю даних в середовищі системи Exel.

Рисунок 1.1 - Дані до задачі в середовищі системи Exel.

2.  Задамо значення для колони «Кількість видів товарів» - будь-які цілі числа.

Рисунок 1.2 - Заповнення ланок колонки «Кількість видів товару» .

. Знаходимо загальну вартість для кожного підприємства окремо, для всіх значень від D1 - D5, використовується однакова формула: «Dn = Bn*Cn». Отримаємо такі дані:

Рисунок 1.3 - Загальна вартість для кожного підприємства.

Також знайдемо суму інвестицій для підприємств 3 та 4 тобто для ланки «D11 = 0.45*D7».Отже таблиця має такий вигляд:

Рисунок 1.4 - Знаходження значень «Всього».

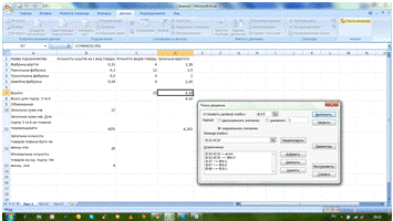
. Маючи потрібні показники та обмеження, використовуємо функцію «Пошук рішення», що знаходиться на вкладці «Дані». Заповнюємо вікно-запит таким чином:

Цільова ланка - «D7»; Зміні ланки - «C2-C5»;

Обмеження: «С2 - С5» - цілі ; «С2 - С5»  ≥ «В10» - загальна сума яку не можуть перевищувати інвестиції; «С7» ≥  «В12» - загальна кількість товарів; «D7» ≤ «В10» ; «D8»  ≤  «D11».

Дорівнює мінімальному значенню.

Рисунок 1.5 - Заповнення вікна «Пошук рішення».

. Натискаємо на кнопку «Виконати» і отримаємо рішення. Таблиця приймає такий вигляд:

Рисунок 1.6 - Результати пошуку рішення.

. Тип звіту «Результати» і підводимо підсумок.

Рисунок 1.7 - Звіт результатів.

Список літератури

1. Олексюк О. С. Системи підтримки прийняття фінансових рішень на макрорівні. - К.: Наукова думка, 1998.

. Рогач І. Ф., Сенедзюк М. А., Антонюк В. А. Інформаційні системи у фінансово-кредитних установах: Навч.посіб.: - К. Н КНЕУ,2001

. Соколовська З. М., Н.В. Яценко. Методичні вказівки до виконання лабораторних робіт з курсу « Інформаційно-обчислювальні системи в економіці» ( Використання модуля «Пошук рішень» для розв’язання оптимальних економічних задач) для студентів ІV курсу денної форми навчання всіх спеціальностей. - Одеса: ОДЕУ, 2002р. - 24с.