Материал: Штанговые насосы двойного действия, их приводы

Внимание! Если размещение файла нарушает Ваши авторские права, то обязательно сообщите нам

Штанговые насосы двойного действия, их приводы













Штанговые насосы двойного действия, их приводы

Аннотация


Целью данного курсового проекта является закрепление знаний, полученных в ходе изучения курса Буровые машины и механизмы. В проекте рассматриваются вопросы о работе штанговых насосов двойного действия, их привода. Производится расчет основных элементов оборудования для откачки воды из скважины.

Summery


The purpose of this academic year project is fixing of the knowledge received during studying of a course Drilling machines and mechanisms. In the project questions of operation of shtangovy pumps of double action, their drive are considered. It is settled an invoice basic elements of the equipment for water pumping from a well.

Оглавление

Аннотация

Summery

Введение

1. Общие сведения о штанговых насосах двойного действия

2. Общие сведения о приводе насоса

3. Расчет основных параметров насоса

4. Расчет штанг на выносливость

Заключение

Список литературы

Приложения

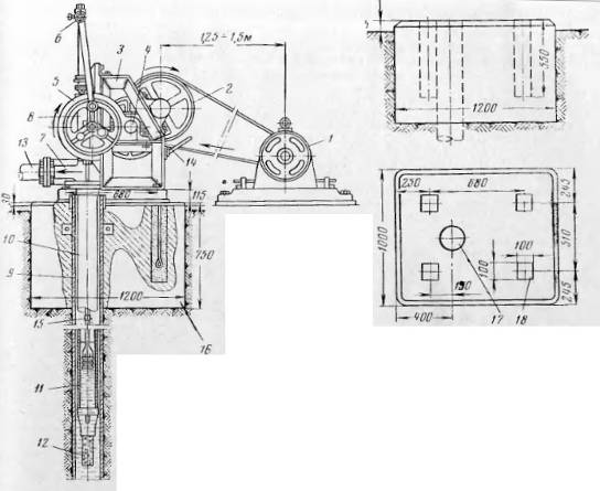
Приложение 1. Насосная лебедка Бурвод-III-А

 

Введение


Выбор типа водоподъемника для эксплуатации скважин нормативными документами не регламентируется, а зависит от конкретных условий его эксплуатации и технологии проведения откачек.

Диапазон применяемых водоподъемных средств достаточно широк. Применяют поверхностные и погружные (глубинные артезианские) центробежные насосы, эрлифты, водоструйные и штанговые погружные насосы. Для откачек воды применяются водоподъемники следующих типов:

- насосы и двигатели, устанавливаемые вне самой скважины (обычно поршневые и центробежные);

- насосы, устанавливаемые внутри скважины с двигателями на поверхности (штанговые насосы, эрлифты);

- насосы и двигатели, устанавливаемые внутри скважины (винтовые и электроцентробежные погружные насосы).

Основным определяющим фактором выбора насосов является положение динамического уровня в скважине, и по этому признаку насосы делят на насосы для неглубоких динамических уровней (насосы 1-го типа) и насосы для глубоких динамических уровней (насосы 2-го и 3-го типов).

1. Общие сведения о штанговых насосах двойного действия


Штанговые поршневые насосы применяют для временных откачек главным образом с приводом от буровых ударно-канатных станков и реже с приводом от стационарных насосных качалок. Для постоянной эксплуатации штанговые поршневые насосы используются исключительно с приводом от стационарных качалок. Высота подъема воды штанговыми поршневыми насосами достигает 150 м, производительность их колеблется от 3 до 50 м3 в зависимости от типа насоса, диаметра насосного цилиндра, длины хода поршня и количества ходов поршня в единицу времени (в минуту).

К основным частям штангового поршневого насоса относятся цилиндр с поршнем и приемным клапаном, штанги с направляющими роликами, качалка (лебедка), создающая возвратно-поступательное движение поршня и водоподъемные трубы.

В качестве водоподъемных труб, по которым вода подается на поверхность и к которым присоединяется насосный цилиндр, обычно используют обсадные трубы тонкостенного стандарта одинакового диаметра с цилиндром.

Производительность штангового поршневого насоса определяется диаметром цилиндра, длиной хода поршня и количеством обходов (числом качаний).

Штанговые насосы двойного действия (ШНД) предназначаются для откачки воды из буровых скважин при помощи насосных качалок различных систем, обеспечивающих необходимую длину хода поршня.

Насосы ШНД с водоподъемными трубами и рабочими штангами различных диаметров можно применять для откачек из скважин, имеющих наименьшие диаметры эксплуатационных колонн обсадных труб.

Насос ШНД присоединяется к колонне водоподъемных труб при помощи муфты. Поршень штангового насоса соединен с пустотелыми рабочими штангами, которые соединены между собой муфтами. Для предохранения штанг от продольного изгиба между ними устанавливают специальные фонари с направляющими роликами, расположенными под прямым углом друг к другу.

Цилиндр насоса, соединенный с водоподъемными трубами, спускают в скважину, закрепленную обсадными трубами, на необходимую глубину в зависимости от конкретных условий (положения динамического уровня при определенном дебите), но не больше предельных глубин.

2. Общие сведения о приводе насоса


Насосная лебедка со штанговым поршневым насосом представляет собой стационарную установку (табл. 1) и предназначена для эксплуатационной откачки воды из скважин (прил. 1).

Таблица 1. Техническая характеристика Бурвода - III - А.

Высота напора максимальная, м: с цилиндром диаметром 145 мм с цилиндром диаметром 90 мм

 60 90

Число ходов в минуту

25-40

Производительность максимальная, м3/ч: с цилиндром диаметром 145 мм с цилиндром диаметром 90 мм

 10 4

Коэффициент наполнения

0,9

Длина хода поршня, мм

300 220 170

Мощность двигателя максимальная, кВт

7

Диаметр приводного шкива лебедки, мм

450

Ширина полотна шкива, мм

90

Шестерня приводная

z=15: M-7

Шестерня рабочая

z=60: M-7

Диаметр цилиндров пневматического амортизатора, мм

54

Подшипники шариковые трансмиссии

№ 1310

Смазка подшипников приводного вала

кольцевая

Смазка подшипников рабочего вала

кольцевая

Направление вращения приводного вала

со стороны холостого шкива против часовой стрелки

Габариты насосной лебедки, мм: высота ширина длина

 1380 960 1100

Вес лебедки без штангового насоса и принадлежностей, кг

400


Кинематическая схема механизма заключается в следующем. Пара шестерен приводного вала вращает шестерни рабочего вала, а последние своими пальцами передают возвратно-поступательное движение траверсе, движущейся по направляющим скалкам. С траверсой сплайна колонна штанг, соединенная с поршнем насоса.

Насос приводится в действие от любого двигателя. Динамические нагрузки при подъеме воды и движении штанг вниз устраняются пневматическим амортизатором, соединенным с приводным механизмом через коромысло, траверсу и шатуны.

Переходная коробка кренится к плите при помощи шпилек и выполнена в виде тройника, отводной патрубок которого служит соединением с нагнетательной линией. Верхняя часть переходной коробки имеет расточку, в которой помещен сальник и проходит плунжер. Плунжер имеет вид цилиндра с резьбой в верхней и нижней частях, служащей для соединения со штоком и штангами насоса.

Рама лебедки наготовлена из уголкового железа 75х75. Детали рамы соединены при помощи электросварки. Жесткость и прочность рамы достигнуты при помощи косынок и соединительных углов. В передней части рамы привернут скалкодержатель, в котором, посредством гаек, крепятся скалки.

Приводной вал несет на себе три насаженные шестерни, укрепленные шпонками. На консоли контрприводного вала насажен рабочий шкив диаметром 450 мм и шириной 90 мм.

Рабочий вал приводного механизма на своих консолях имеет две насаженные чугунные шестерни z=60. На каждой шестерне сделаны три гнезда для пальца кривошипа на расстоянии от центра вала на 85, 110 и 150 мм, что обеспечивает длину хода поршня 170, 220 и 300 мм. С шестернями в одном из гнезд при помощи пальцев соединены шатуны, другие концы которых посажены на цапфы траверсы.

Траверса имеет два отверстия, через которые пропускаются скалки рамы лебедки. В центре траверсы укрепляется шток, к которому крепится плунжер и колонна штанг. Пневматический амортизатор предназначен для устранения инерционных сил при ходе штока вниз и более равномерной работы лебедки.

На переходной коробке укреплены два цилиндра с отверстием диаметром 8 мм для наполнения их воздухом. На штоке при помощи коромысла закреплены две штанги с поршнями. При ходе штока вниз воздух в цилиндрах сжимается поршнями и создается давление до 10 - 11 кгс/см2, что соответствует сопротивлению 150 - 500 кг, в результате устраняется инерция от падения колонны штанг насоса.

Привод лебедки осуществляется ремнем на шкив лебедки непосредственно от двигателя.

При включении рабочего шкива лебедки приводится во вращение контрприводной и приводной валы, с которых при помощи шестерен z =15 сцепления с шестернями z=60 рабочего вала последнему передается вращение.

С шестерен рабочего вала через шатуны возвратно-поступательное движение передается траверсе, которая через шток передает это движение насосным штангам и соответственно поршню насоса.

Выбранный привод будет обеспечивать заданную производительность 30 м3/сут, обеспечивать необходимую длину хода поршня.

3. Расчет основных параметров насоса


Объем жидкости, подаваемой при ходе поршня вверх, равен (F-fш) *S и объем жидкости, подаваемой при ходе поршня вниз, также равен (F-fш) *S. Следовательно, объем жидкости, подаваемой за один оборот кривошипного вала качалки (за один двойной ход) будет равен:

, (1)

где F - площадь поршня, м2; fш - площадь штока (по наружному диаметру), м2; (F-fш) - полезная площадь поршня; S - ход поршня, м. На основании значения наружного диаметра насоса, который равен 150 мм, и конструктивных соображений, принимаем D1=135 мм - диаметр поршня; S=300 мм; dш=40 мм - диаметр штока.

 (2)

 (3)


Дебит скважины вычисляется по следующей формуле:

, (4)

где n - число двойных ходов насоса, об/мин. Заданная производительность насоса равна:


Такая производительность насоса учитывает работу насоса 24 часа в сутки. Тогда число двойных ходов насоса с учетом формулы (1) при заданном дебите вычисляется следующим образом:


Исходя из последнего выражения, можно найти период одного двойного хода насоса:

 

Т=60/n=60/3=20 сек. (5)

Мощность двигателя, необходимая для привода штангового насоса, может быть приближенно определена:

 (6)

где H - высота подъема жидкости, м; γж - удельный вес жидкости; η1 - КПД штангового насоса, (0,3÷0,4); η2 - КПД передач от двигателя до точки привеса штанг, (0,75÷0,85).

Расчетная мощность обеспечивается техническими характеристиками Бурвода.

4. Расчет штанг на выносливость


Колонну штанг проверяют на усталостную прочность в точке подвеса штанг к балансиру по следующей формуле:

, (7)

где кзап - коэффициент запаса прочности, кзап =1,3÷1,5;  - допускаемое приведенное напряжение, для стали марки 20Н2М ;  - расчетное приведенное напряжение.

Приведенное напряжение рассчитывается по формуле:

 (8)

где  - максимальное напряжение в теле штанги за цикл нагружения;  - амплитуда напряжения в теле штанги за цикл нагружения.

Амплитуда напряжения равна:

 (9)

где  - минимальное напряжение в теле штанги за цикл нагружения.

В колонне штанг в точке подвеса действуют как статические силы, так и силы трения (трения поршня о цилиндр и штанг о насосные трубы). Силы трения можно не учитывать при малой кривизне скважины и исправном насосе, но они могут быть велики в искривленной скважине.

При ходе поршня вверх и вниз статические силы равны соответственно:

 

, (10)

, (11)

где p - вес столба поднимаемой жидкости; q - вес колонны штанг.

Вес колонны штанг можно вычислить по следующей формуле:

 (12)

где f - площадь сечения штанг; Н - высота излива жидкости над поршнем; γ - удельный вес материала штанг.

Принимаем диаметр насосных штанг d=25 мм и их площадь будет равна:

,


Вес столба поднимаемой жидкости будет равен:

 (13)

 

Определение усилий:

 

,

 

После определения максимального и минимального усилий рассчитывается максимальное и минимальное напряжения в теле штанги за цикл нагружения:

 (14)

 (15)

Далее находим амплитуду напряжения в теле штанги за цикл нагружения:


Находим приведенное напряжение в теле штанг:


Далее проверяем колонну штанг на усталостную прочность:

 


Таким образом, колонна штанг соответствует условиям усталостной прочности при заданных условиях эксплуатации насоса.

штанговый насос двойное действие

Заключение


В ходе расчета курсового проекта были определены основные параметры, соответствующие заданию, штангового насоса двойного действия, рассмотрена работа его привода - Бурвода - III-A.

Привод насоса посредством превращения вращательного движения в поступательное, начинает поднимать/опускать через колонну штанг поршень насоса. За счет этого через клапаны происходит всасывание и нагнетание воды из скважины в колонну водоподьемных труб. Таким образом происходит откачка воды из скважины. Выбранный привод насоса обеспечивает заданную производительность.

Выполнение курсового проекта позволило закрепить знания, полученные в курсе Буровые машины и механизмы, более подробно разобраться в механизме работы узлов заданного оборудования.

В заключение работы был выполнен чертеж, в котором наглядно отображены основные рассчитанные параметры насоса.

Список литературы


1.      Бродов Г.С. Бурение и оборудование скважин на воду, практическое руководство, проектирование и расчет. Спб. 2010 154 с.

2.      Дубровский В.В. Справочник по бурению и оборудованию скважин на воду. Изд. 2, переработанное и дополненное. М.: Недра, 2012.512 с.

.        Шелковников И.Г. Прикладная буровая механика: Учебное пособие. Часть 2 / Санкт-Петербургский государственный горный ин - т. СПб, 2008.112 с.

Приложения


Приложение 1. Насосная лебедка Бурвод-III-А


а                                                               б