Материал: Разработка установки подогрева шихты

Внимание! Если размещение файла нарушает Ваши авторские права, то обязательно сообщите нам

Разработка установки подогрева шихты

Министерство образования Республики Беларусь

Учреждение образования

“Гомельский государственный технический университет имени П.О. Сухого”

Кафедра “Машины и технология литейного

производства”






РАСЧЁТНО-ПОЯСНИТЕЛЬНАЯ ЗАПИСКА

к курсовому проекту по курсу

“Оборудование литейных цехов”

на тему “Разработка установки подогрева шихты”











Гомель, 2015

Содержание

Введение

. Анализ и выбор конструктивно-технологической схемы

. Техническая характеристика, описание работы

. Анализ разработанного узла

. Расчёт элементов, узлов и агрегатов установки

. Правила эксплуатации установки, описание работы схемы управления установки

. Мероприятия по повышению эффективности работы установки, обеспечению безопасности работы и охране окружающей среды

. Правила ухода за установкой, организация труда и планово-предупредительных ремонтов

Заключение

Список литературы

Приложение

Введение

В настоящее время в связи с расширением использования электроплавки возрастает актуальность разработки ресурсосберегающих технологий и металлургического оборудования. Очевидные технологические и производственные достоинства электроплавильных печей сочетаются с высокими затратами наиболее дорогостоящего энергоносителя - электроэнергии. При энтальпии жидкого чугуна и стали, примерно, 1300 и 1500 МДж/т соответственно затраты при плавке составляют от 2 до 2,7 тыс. МДж/т или 550-650 кВт×ч/т, т.е. термический к.п.д. печи не превышает 45-55%..

На нагрев и расплавление металлозавалки в плавильной печи расходуется, примерно, 70-75 % энергии, перегрев и доводку жидкого металла ~ 25-30 %. «Теряемая» тепловая энергия в действительности не теряется, а расходуется на «производство» загрязнений окружающей среды: образование пыли, вредных веществ, высокотемпературных газов и отходов.

Наиболее экономичным является предварительный подогрев шихты. При нагреве шихты происходит удаление влаги, выжигание масел, СОЖ и др. загрязнений, частичное удаление пыли за счет продувки слоя. Более чистая шихта, сокращение времени пребывания в печи способствует повышению качества жидкого металла за счет уменьшения количества неметаллических включений и газонасыщенности. Устраняются выбросы металла из печи при загрузке холодной шихты (особенно в зимнее время) на “болото”.

Предварительный подогрев шихты позволяет существенно повысить экономичность электроплавки чугуна и стали, производительность печей и улучшить экологические характеристики плавки.

Целью курсового проекта является разработка установки подогрева шихты, позволяющая производить высокотемпературный нагрев шихты.

1. Анализ и выбор конструктивно-технологической схемы

Установки подогрева шихты предназначены для подогрева шихты перед завалкой в электроплавильные агрегаты. Главные преимущества газового подогрева шихты для электропечной плавки:

снижение на 25-30 % удельных затрат на электроэнергию при плавке в печи за счет более низкой стоимости природного газа и соответственно снижение себестоимости отливок ;

сокращение времени плавки и соответствующее повышение производительности печи;

сокращение расхода электродов (для дуговой плавки), легирующих и модифицирующих добавок;

сокращение угара металла и повышение его качества;

снижение количества вредных выбросов пыли и газа за счет использования эффективной системы очистки от локального источника.

Установки данного типа в основном все аналогичны. Главный параметр, характеризующий данные установки,- это температура, до которой подогревается шихта. В зависимости от этого параметра изменяется и конструкция данных агрегатов.

В установке подогрева шихты, разработанной Институтом газа АН УССР (см. рис.1), осуществляется нагрев шихты до 3000С. Нагрев производится в грейферной бадье (см. рис.2) газовой горелкой. При нагреве корпус нагревается до такой же температуры, что и шихта. Производить нагрев выше указанной температуры невозможно, что обусловлено перегревом корпуса загрузочной бадьи. Это требование обусловлено необходимостью обеспечения надёжности несущей способности подвесных элементов при транспортировании бадьи с нагретой шихтой от установки подогрева до места выгрузки шихты в печь.

Установка имеет высокую производительность, но при сравнительно невысокой температуре нагрева шихты у неё значительные размеры (5320x6531x4250).

В разработанной установке (см. рис.3) средняя температура подогрева шихты составляет 550-6500С. Нагрев производится в двухкорпусной бадье (внутри бадьи вставлена сменная обечайка с зазором) (см. рис.4). По кольцевому зазору продувается холодный воздух. При этом температура нагрева корпуса бадьи не превышает 2500С. Данная установка позволяет производить высокотемпературный нагрев, имеет сравнительно небольшие размеры (3210x7130x5190) и вес (12 тонн). Высокопроизводительна.

Ещё одна подобная установка разработана КУЗЛИТМАШ (г.Пинск,РБ)- установка термоподготовки шихты и дожигания выбросов модель 10278 (см. рис.5). Предназначена для термоподготовки шихты и дожигания выбросов в литейных цехах перед плавкой в индукционных печах типа ИЧТ-10 и ИЧТ-6-10278.

Рис. 1 - Установка подогрева шихты, разработанная Институтом газа АН УССР: 1 - кожух отбора продуктов горения, 2- площадка обслуживания, 3- камера сжигания газа, 4- газовая горелка, 5-трубопровод подачи воздуха

Рис. 2 - Грейферная бадья установки подогрева шихты, разработанной Институтом газа АН УССР: 1- цепь, 2- корпус, 3- зубчатый сегмент, 4- сектор

Рис. 3 Разработанная установка подогрева шихты

Рис. 4 - Двухкорпусная бадья, разработанной установки подогрева шихты

Рис. 5 - Установка термоподготовки шихты и дожигания выбросов модель 10278 (КУЗЛИТМАШ, РБ)

Таблица 1

Показатель

Установка подогрева шихты УПО-14к (Институт газа АН УССР)

Разработанная установка подогрева шихты

Установка подогрева шихты (КУЗЛИТ-МАШ, РБ)

1.

Производительность, т/ч

20

18-24

6

2.

Температура подогрева шихты (средняя), 0С

300

550-650

500-600

3.

Время подогрева шихты, мин

15

15-20

4.

Топливо

природный газ

природный газ

природный газ

5.

Расход газа при нормальных условиях, м3/ч

90

250-270

100

6.

Ёмкость загрузочной корзины, т

5

6

1,5

7.

Количество отходящих дымовых газов, м3/ч

3000

6000

2000


Термоподготовка включает в себя сушку шихты для удаления влаги и масел, подогрев до температуры 500-6000, дожигание образовавшихся паров и других газов с целью исключения загрязнения ими окружающей среды, а так же для использования тепла от их дожигания на нагрев шихты.

Установка позволяет осуществлять высокотемпературный нагрев, но имеет малую ёмкость загрузочной корзины и следовательно невысокую производительность, большие габариты (3450x3000x4100) и большой вес (21,3 тонны).

Сравнение основных характеристик установок представлено в таблице 1.

Произведя сравнение основных параметров рассматриваемых установок, можно сказать, что разработанная установка подогрева шихты позволяет производить высокотемпературный нагрев, имеет высокую производительность и компактные размеры, что в свою очередь позволяет сэкономить производственные площади.

Разработанная установка подогрева шихты представляет собой термический агрегат и состоит из следующих основных узлов:

корпус, на который устанавливается корзина с шихтой;

траверса поворотная;

свод;

вентилятор для обдува верхней части корзины;

три горелки инжекционные с номинальным расходом 90 м3/ч природного газа;

электрозапальник с расходом газа (1 - 2 м3/ч);

переносной запальник;

система КИП, включающая: щит управления и контроля, приборы и датчики, установленные по месту.

Угол поворота траверсы составляет 450. На своде установлены три горелки. Для снабжения газом установки используется существующая газовая магистраль.

Для повышения эксплуатационной надежности установка подогрева шихты оснащена вспомогательными устройствами. К их числу относятся: установка охлаждения цепей загрузочной корзины (бадьи), в которой производится нагрев шихты, система КИП, система очистки и отсоса газов.

2. Техническая характеристика, описание работы

Технические данные установки подогрева шихты:

расход природного газа 250…270 м3/ч;

давление газа 0,4 - 0,6 кгс/см2;

количество горелок - 3 шт;

тип горелки - инжекционная среднего давления;

производительность - 18 т/ч;

температура подогрева шихты (средняя) - 550…650°С;

ёмкость загрузочной корзины - 6 т;

время подогрева 1 корзины - 15…20 мин.

Надежность работы системы и срок службы во многом зависит от квалифицированного обслуживания, поэтому перед вводом системы в эксплуатацию, а также перед допуском к ее обслуживанию производственного персонала, необходимо ознакомиться с инструкцией к установке подогрева шихты и строго ее соблюдать.

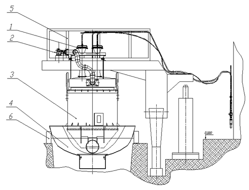
Установка работает следующим образом (см. рис.6):      на корпус установки (поз.4) с помощью мостового крана устанавливается корзина с шихтой (поз.3). Включается система КИПиА. Производится проверка и подготовка к работе газового оборудования (поз.1). Корзина с шихтой накрывается сводом (поз.2) с установленными в нем газовыми горелками. Включается вентилятор для обдува верхней части корзины. Включается дымосос. После включения дымососа производится розжиг электрозапальника, от электрозапальника разжигаются последовательно газовые горелки. В случае погасания электрозапальника во время розжига или в процессе работы установки, сработает система КИПиА, отключит автоматически весь газ, срабатывает световая и звуковая сигнализация. В случае остановки дымососа или падении разряжения под корзиной система КИПиА отключит автоматически весь газ, срабатывает световая и звуковая сигнализация. При открывании свода во время работы установки система КИПиА отключит автоматически весь газ, срабатывает световая и звуковая сигнализация.

Установки подогрева шихты представляют собой термический агрегат, в котором нагрев шихты производится с помощью газовых горелок. Продукты горения природного газа с температурой 1200-1300°С продуваются сквозь слой шихты высотой 1,5-2,0 м и нагревают шихтовые материалы до 750-800°С в слое, прилегающем к факелу, и до 300-350°С в противоположном (выходном) сечении слоя. Средняя температура материалов достигает при этом 550-650°С.

В систему аспирации удаляется от 5 до 7 тыс. м3 газов в час. Газы перед выбросом в атмосферу подвергаются эффективной очистке и охлаждению. Эффективность пылеулавливания в системе не менее 90 %.

Порядок размещения шихты в загрузочной корзине принят следующий:

габаритный листовой лом, мелкий скрап и стружка в брикетах (пакетах), если используется в завалке, затем крупные куски плотного лома, затем мелкий скрап. Загрузка шихты в печь производится с помощью корзин, емкость которых равна емкости печи. Иногда для осаждения шихта уплотняется с помощью свода (подъем - опускание), что также занимает 5 - 10 мин. На верх металлозавалки забрасывается флюс (известняк, доломит) - 1,5-2,0%.

Рис. 6 - Установка подогрева шихты: 1- система сжигания газа; 2- свод; 3- загрузочная бадья; 4- стенд; 5- траверса; 6- опора печи

3. Анализ разработанного узла

По показателю сокращения удельных затрат электроэнергии наибольший эффект среди всех методов интенсификации процессов плавки обеспечивает предварительный подогрев шихты, который осуществляется в загрузочных ёмкостях. Резерв повышения эффективности такого решения лежит в повышении средней температуры нагрева шихты, т.е. в реализации процессов высокотемпературного подогрева (до 500-700 ºC). При этом определяющим фактором средней конечной температуры подогрева шихты является максимальная температура прогрева корпуса загрузочной корзины (не более 250 ºC). Это требование обусловлено необходимостью обеспечения надежности несущей способности подвесных элементов при транспортировании бадьи с нагретой шихтой от установки подогрева до места выгрузки шихты в печь.

Осуществлять высокотемпературный нагрев стало возможным после разработки двухкорпусной бадьи или так называемой “бадьи-термоса”. Сущность этой разработки заключается в том, что внутри бадьи устанавливается дополнительная сменная обечайка с зазором 30-50 мм. По кольцевому зазору с помощью вентилятора (сверху - вниз) продувается холодный воздух. Скорость потока охлаждающего воздуха 2м/с. Для того чтобы в зазор не попадали высокотемпературные продукты горения газа, диаметр свода (крышки) делается меньшим, чем внутренний диаметр вставки, а зазор между сводом и поверхностью шихты (~ 350 мм) перекрывается огнестойкой тканью. Применение вентилятора для продувки кольцевого зазора позволяет не только защитить корпус загрузочной бадьи (корзины), но и охладить днище с запорными устройствами.

4. Расчёт элементов, узлов и агрегатов установки

Расчёт толщины стенки корпуса бадьи.

Корпус бадьи должен обладать необходимой прочностью, так как он непосредственно взаимодействует с шихтой. К тому же в бадье производится и нагрев шихты. Прочность обуславливается в основном толщиной стенки корпуса.

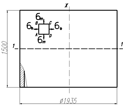
На рис.7 показаны сечение бадьи плоскостью 1-1, перпендикулярной оси x симметрии корпуса бадьи, и элемент стенки с действующими на него напряжениями σ0 и σm. По боковым граням элемента AB и CD, совпадающим с меридиальными плоскостями, в силу симметрии бадьи и нагрузки касательные напряжения равны нулю; по этим граням действуют лишь нормальные напряжения σ0 (окружные напряжения).

Рис. 7 - Эскиз корпуса бадьи

Из закона парности ([3], с.571) касательных напряжений следует, что касательные напряжения по боковым граням BC и AD также равны нулю; по этим граням действуют лишь нормальные напряжения σm (меридиальные напряжения). Радиусы кривизны этого элемента равны ρ0=D/2 и ρm=∞.

Уравнение Лапласа используется для определения напряжений в стенке тонкостенной оболочки ([3], c.571):

σ0/ ρ0 + σm/ ρm = р/δ (1)

где σ0- окружные напряжения, Па;

σm- меридиальные напряжения, Па;

δ- толщина элемента оболочки, м.

Подставим значения ρ0 и ρm в формулу (1):

σ0/( D/2) + σm/∞ = р/δ (2)


σ0= рD/(2 δ) (3)

Для определения напряжений σm составим условие равновесия части корпуса бадьи, расположенной по одну сторону от сечения 1-1, в виде суммы проекций сил на ось x:

Σx = pπD2/4- σm δπD =0 (4)

где pπD2/4- равнодействующая давления;

σm δπD- результат действия одной части корпуса на другую (внутренняя сила, возникающая в сечении 1-1).

Решим уравнение (4) относительно σm:

σm= рD/(4 δ) (5)

Таким образом, главные напряжения, возникающие в стенке корпуса, имеют следующие значения:

σ1 = σ0= рD/(2 δ); σ2 = σm= рD/(4 δ); σ3=0 (6)

По третьей теории прочности ([3],с.344):

σ1 - σ3 ≤ [σ] (7)

рD/(2 δ) ≤ [σ] (8)

δ ≥ рD/(2[σ] ) (9)

При исходных данных D=1935мм, р=3 МПа, [σ]= 370МПа ( для Ст3, [4], c.526), производим расчёт по формуле (9):

δ ≥ (м) =7,8 (мм)

Полученный результат удовлетворяет ранее принятой толщине стенки

корпуса бадьи, равной 10 мм. При такой толщине стенки выполняются прочностные требования к корпусу бадьи.

Расчёт допускаемого значения силы, действующей на крюк.

Крюк является элементом замка для открывания загрузочной корзины, который удерживает цепи, являющиеся днищем бадьи.

Опасным является поперечное сечение 1-1 (см. рис.8), в котором возникают наибольшие изгибающий момент и продольная сила (N=P). Определяем радиус кривизны нейтрального слоя (при N=0) ([3], c.421):

= h / [ln(rн/rв)] (10)

где h- высота поперечного сечения, h= 33 мм;н, rв- наружный и внутренний радиусы волокон крюка соответственно, rн= 60 мм, rв= 25 мм.= 0,033 / [ln(0,06/0,025)] = 0,038 (м)

Расстояние от центра тяжести сечения до нейтральной оси:

с= r - r0 (11)

Рис. 8

где r- радиус кривизны оси крюка, r= 42,5 мм.

с= 0,042-0,038= 0,004 (м)

Находим нормальные напряжения в сечении 1-1 рис.8 Эскиз крюка КП ОЛЦ 04.00.00.07 крюка: σн - у наружного края сечения, σв - у внутреннего края и σ0 - на расстоянии r0 от центра кривизны:

σн= Р/bh- (2Pr/bhc)[( rн- r0)/ rн] (12)

где b- ширина поперечного сечения, b= 20 мм;

σн=  (Па)

σв= Р/bh- (2Pr/bhc)[( rв- r0)/ rв] (13)

σв=  (Па)

σ0= Р/bh = P/ (0,02. 0,036)= 1388,89P (Па), (14)

где сила Р выражена в ньютонах. Знаки минус перед членами, учитывающими влияние момента, поставлены потому, что этот момент вызывает у наружного края сечения отрицательные (т.е. сжимающие) нормальные напряжения.

При силе Р, равной допускаемому значению [P], наибольшее напряжение равно допускаемому, т.е.

σв= 15171,44[P] = [σ] = 500 МПа, (15)

значение [σ] для стали марки 13Х18М10Т ([4], c.526). Тогда

[P] = 500.106/15171,44= 32956,66 Н= 32,96 кН

Полученной значение допускаемой силы удовлетворяет прочностным условиям, поскольку максимальная нагрузка, при которой работает крюк, не превышает 25 кН.

Расчёт коэффициента запаса прочности для штанги.

Штанга (см. рис.9) является элементом замка для открывания загрузочной корзины (бадьи) и удерживает крюк, за который крепятся цепи корзины.

Для прямоугольного поперечного сечения определяем пластический момент сопротивления ([5], c.461) :

пл = bh2/4, (16)

где b и h- ширина и высота поперечного сечения штанги соответственно, b = h = 20 мм.пл = 0,023/4= 2.10-6 (м3),

Материал штанги - сталь 35, для которой предел текучести σт= 650 МПа, нормативный коэффициент запаса прочности [n]= 1,2 ([4], c.528)

Коэффициент запаса прочности определяем из условия прочности ([5], c.460):
= σт . Wпл / Mmax ≥ [n], (17)

где Mmax- максимальный изгибающий момент, действующий на штангу. Если представить штангу в виде балки и рассчитать для неё максимальный изгибающий момент при исходных данных P=qa= 25 кН, а= 0,025м, b= 0,08м, с= 0,06м, то Mmax= 937,5 Н.м (см. рис.10).

Мmax = -q.a. ( a+a/2)= -103. 0,025 (0,025+ 0,025/2)= -0,9375 (кН.м)= -937,5 (Н.м)

Тогда коэффициент запаса прочности:= 650.106 . 2.10-6 / 937,5= 1,39

Условие прочности выполняется, т.к. n ≥ [n], т.е. имеется коэффициент запаса до наступления предельного напряжения для данного материала.

Рис. 9 - Эскиз штанги

Рис. 10 - Эпюра изгибающих моментов для штанги

5. Правила эксплуатации установки, описание работы схемы управления установки

Порядок запуска установки:

. Включить автоматические выключатели QF1, QF2, QF3.

. На пульте управлении нажать кнопку SB10 (СЪЕМ СИГНАЛА) для отключения звуковой сигнализации.

. Открыть крышку установки.

. С помощью мостового крана установить корзину с шихтой на корпус установки.

. Закрыть крышку установки. Убедиться, что свод опустился на корзину с шихтой.

. Включить обдувочный вентилятор.

Порядок розжига горелок:

. Розжиг горелок производится одновременно двумя рабочими.

. Открыть кран, подающий газ к системе.

. Прибором ТС410 производится контроль герметичности газовых задвижек, после проверки герметичности замыкаются управляющие контакты ТС410 - установка готова к розжигу. Если контроль герметичности не прошел - звучит сирена, дальнейший розжиг не возможен до устранения неисправности.

. Ручной вентиль должен быть закрыт.

. По показаниям манометра 20 убедиться в наличии газа в сети.

. Нажатием кнопки SB4 (ЗАПАЛЬНИК) на пульте управления произвести розжиг запальника. При этом открывается электромагнитный клапан, на пульте загорается лампочка (КЛАПАН ЗАПАЛЬНИКА ВКЛ.). Включается устройство электророзжига КВИ-10/30. Постепенно открывая ручной вентиль произвести розжиг электрозапальника.

. Если розжига электрозапальника не произошло, система КИПиА заблокирует электромагнитный клапан. На пульте загорается сигнальная лампа (НЕТ ФАКЕЛА). Закрыть вентили. Для повторного розжига повторить действия п.п. 8.8.2-8.8.7.

. Разжечь газовую горелку №1, для этого на пульте управления нажать кнопку SB5 (ГОРЕЛКА №1). При этом открывается электромагнитный клапан горелки. На пульте загорается лампа (КЛАПАН ГОРЕЛКИ №1 ВКЛ.). Постепенно, открывая ручной кран, разжигаем горелку. На приборе Ф24 (КОНТРОЛЬ ФАКЕЛА) загорается соответствующая сигнальная лампа. Медленно приоткрыть воздушную шайбу, подать в горелку дополнительный воздух. Увеличивая поочередно подачу газа и воздуха, отрегулировать работу горелки по цвету пламени на полное сгорание газа и устойчивый спокойный факел.

. Разжечь газовую горелку №2 , для этого на пульте управления нажать кнопку SB6 (ГОРЕЛКА №2). При этом открывается электромагнитный клапан горелки. На пульте загорается лампа (КЛАПАН ГОРЕЛКИ №2 ВКЛ.). Постепенно открывая ручной кран разжигаем горелку. На приборе Ф24 (КОНТРОЛЬ ФАКЕЛА) загорается соответствующая сигнальная лампа. Медленно приоткрыть воздушную шайбу, подать в горелку дополнительный воздух. Увеличивая поочередно подачу газа и воздуха, отрегулировать работу горелки по цвету пламени на полное сгорание газа и устойчивый спокойный факел.

. Разжечь газовую горелку №3, для этого на пульте управления нажать кнопку SB7 (ГОРЕЛКА №3). При этом открывается электромагнитный клапан горелки. На пульте загорается лампа (КЛАПАН ГОРЕЛКИ №3 ВКЛ.). Постепенно открывая ручной кран разжигаем горелку. На приборе Ф24 (КОНТРОЛЬ ФАКЕЛА) загорается соответствующая сигнальная лампа. Медленно приоткрыть воздушную шайбу, подать в горелку дополнительный воздух. Увеличивая поочередно подачу газа и воздуха, отрегулировать работу горелки по цвету пламени на полное сгорание газа и устойчивый спокойный факел.

. По показаниям приборов убедиться в нормальной работе установки:

температура газов под сводом 900…1200°С;

давление газа в магистрали 4…6 кПа (0,4…0,6 атм);

отсутствие выбивания пламени из под свода и корзины.

Включение установки производит вводной автомат QF1, автомат управления QF2, автомат QF3. На панели управления горят индикаторные лампы HLR1 (НАПРЯЖЕНИЕ ПОДАНО), HLR3 (КРЫШКА ЗАКРЫТА), HLR4 (НЕТ ФАКЕЛА), HLR6 (ДАВЛЕНИЕ ГАЗА НИЗКО), работает сирена. Нажатием кнопки SB10 (СЪЕМ СИГНАЛА), включается контактор КМ9, отключается сирена.

Нажимаем кнопку SB9 (ДЫМОСОС ВКЛЮЧИТЬ), включается контактор КМ3 дымососа, при этом на табло загорается лампа HLR7 (ДЫМОСОС ВКЛЮЧЕН). Потоком воздуха в дымоходе включается датчик S1 (контроль тяги). Замкнувшимся контактом КМ3 подготавливается цепь включения газового тракта.

Нажимаем кнопку SB4 (ЗАПАЛЬНИК). При нормальном давлении газа в магистрали замкнут контакт датчика давления газа SQ3 (контроль давления газа), гаснет лампочка HLR6 (ДАВЛЕНИЕ ГАЗА НИЗКО), включается КМ4, включается реле времени Р1, включается устройство электророзжига
КВИ-10/30. Включается КМ5, загорается сигнальная лампа HLR5 (КЛАПАН ЗАПАЛЬНИКА ВКЛ.). Срабатывает газовый клапан СВМГ запальника. Открытием крана газового тракта запальника подаем газ к электрозапальнику. Происходит розжиг факела запальника. На контрольном приборе Д1 (КОНТРОЛЬ ФАКЕЛА) загорается соответствующая сигнальная лампа контроля наличия факела и блокируются контакты магнитного пускателя КМ4. Гаснет сигнальная лампа HLR4 (НЕТ ФАКЕЛА).

В том случае, если в течение контрольного времени ( ~ 7 секунд) розжиг запальника не произошел, сработает реле времени Р1, отключается КМ5 и газовый клапан СВМГ запальника отключит подачу газа на запальник, при этом включается сирена и загорается лампочка HLR4 (НЕТ ФАКЕЛА).

При горящем запальнике нажимаем кнопку SB5 (ГОРЕЛКА №1), включается контактор КМ6, срабатывает клапан СВМГ горелки №1, загорается сигнальная лампа HLR8 (КЛАПАН ГОРЕЛКИ №.1 ВКЛ.). Открываем соответствующую газовую задвижку горелки №1. Происходит розжиг. Контроль наличия пламени - по прибору Ф24, контроль давления газа на горелке №1 - по манометру.

Нажимаем кнопку SB6 (Горелка № 2), включается контактор КМ7, срабатывает газовый клапан СВМГ горелки №2, загорается сигнальная лампа HLR9 (КЛАПАН ГОРЕЛКИ №.2 ВКЛ.). Открываем соответствующую газовую задвижку горелки №2. Происходит розжиг. Контроль давления газа на горелке №2 - по манометру.

Нажимаем кнопку SB7 (Горелка № 3), включается контактор КМ8, срабатывает газовый клапан СВМГ горелки №3, загорается сигнальная лампа HLR10 (КЛАПАН ГОРЕЛКИ №.3 ВКЛ.). Открываем соответствующую газовую задвижку горелки №3. Происходит розжиг. Контроль давления газа на горелке №3 - по манометру.

При превышении температуры дымовых газов под бадьей сработает датчик Д2 (ТЕМПЕРАТУРА ДЫМОВЫХ ГАЗОВ ПОД БАДЬЕЙ) и отключатся газовые клапаны СВМГ газовой горелки №2 и №3.

Контроль температуры под сводом производится прибором Д3 (ТЕМПЕРАТУРА ДЫМОВЫХ ГАЗОВ ПОД СВОДОМ).

В случае понижения давления газа в системе или прекращении подачи газа, сработает датчик давления газа S1 и отключится газовый клапан ПКН. Сработает световая и звуковая сигнализация.

При пониженном разряжении или аварийном отключении работающего дымососа отключится газовый клапан ПКН, прекратится подача газа на запальник и горелки, сработает световая и звуковая сигнализация.

Перед открыванием крышки бадьи закрыть все газовые задвижки. При этом отключаются газовые клапана СВМГ и газовый клапан ПКН, загорается сигнальная лампа HLR4 (НЕТ ФАКЕЛА), работает сирена. Нажатием кнопки SB10 (СЪЕМ СИГНАЛА), сирену отключить.

Затем, нажимаем кнопку SB2 (КРЫШКУ ОТКРЫТЬ). При этом контактором КМ1 включается электродвигатель М2 открывается крышка бадьи до срабатывания конечного выключателя SQ1, загорается сигнальная лампа HLR2 (КРЫШКА ОТКРЫТА).

Для закрытия крышки бадьи нажимаем кнопку SB3 (КРЫШКУ ЗАКРЫТЬ), при этом контактором КМ2 включается электродвигатель М2, закрывается крышка бадьи до срабатывания конечного выключателя SQ2, загорается сигнальная лампа HLR3 (КРЫШКА ЗАКРЫТА). Звонит звонок, горит сигнальная лампа HLR4 (НЕТ ФАКЕЛА). Подготавливается цепь подачи газа.

Для аварийного отключения электродвигателя М2 (открытие/закрытие крышки бадьи) - нажать кнопку SB1 (АВАРИЙНОЕ ОТКЛЮЧЕНИЕ ЭЛЕКТРОДВИГАТЕЛЯ КРЫШКИ). При этом концевым выключателем SQ2 отключатся газовые клапана СВМГ, прекратится доступ газа к горелкам, сработает световая и звуковая сигнализация, дымосос остается включенным.

При возникновении аварийной ситуации во время работы установки - нажать кнопку SB11 (АВРИЙНЫЙ СТОП). При этом отключатся все газовые клапана СВМГ и газовый клапан ПКН, прекратится доступ газа к горелкам, остановится дымосос, сработает световая и звуковая сигнализация.

6. Мероприятия по повышению эффективности работы установки, обеспечению безопасности работы и охране окружающей среды

Мероприятия по повышению эффективности работы установки заключаются в следующем:

.автоматизация процесса нагрева шихты (контроль тепловой мощности горелок, контроль температуры нагрева корпуса бадьи, контроль температуры отходящих газов от установки и т.д.);

.обеспечение рациональной загрузки шихты для предварительного нагрева в корзину;

.обеспечение соблюдение правил техники безопастности.

Система КИПиА имеет следующие средства контроля: термопара ТПП в паре с милливольтметром Ш4541; термопара ТХА в паре с потенциометром КСП-3; Ф-24 для контроля наличия пламени на электрозапальнике; контроль разряжения под корзиной с шихтой; манометр технический со шкалой до 0,6 кгс/см2.

Система имеет следующую аварийную сигнализацию: световую - об исправности и включении системы КИПиА; световую - о положении свода (КРЫШКА ОТКРЫТА, КРЫШКА ЗАКРЫТА); световую - о давлении газа в сети; световую - о контроле пламени на электрозапальнике; световую - об аварийном отключении подачи газа; звуковую - об аварийном отключении подачи газа; звуковую - об отсутствии пламени на электрозапальнике.

Установка оснащена автоматикой безопасности, которая сработает:

в случае превышения температуры дымовых газов под бадьей 500°С потенциометр подает сигнал на отключение горелок и, путем закрытия электромагнитных клапанов;

в случае понижения давления газа в системе или прекращении подачи газа, сработает датчик давления газа и отключатся газовые клапаны на горелках и запальнике. Включается световая и звуковая сигнализация;

при пониженном разряжении или аварийном отключении работающего дымососа сработает датчик контроля тяги, отключатся газовые клапаны на горелках и запальнике, прекратится подача газа на запальник и горелки, сработает световая и звуковая сигнализация;

во время работы установки при открывании крышки автоматически отключаются все электромагнитные клапаны. Включается световая и звуковая сигнализация.

Ответственность за исправность и эксплуатацию системы подогрева шихты несёт мастер участка плавки или лицо, назначенное приказом по заводу.

При интенсивном воздействии горячих газов на поверхность шихтовых

материалов происходит т.н. «ветровая эрозия» - разрушение и унос слоев пыли, окалины, пригара, покрывающих скрап. При температурных перепадах, особенно при температурах более 500°С, может происходить

полное отслоение отложений, т.н. денудация. Эти явления приводят к повышению концентрации взвешенных частиц в отходящих газах до 0,3-0,5 г/м3.

Дисперсный состав пыли характеризуется наличием фракций от 2-5 до 500 мкм, при максимальном содержании фракции 120-250 мкм - 40-45%.

Химический состав пыли представляет собой смесь оксидов (Fe3O4, Fe2O3, SiO2, Al2O3, Mn2O5, CaO и др.) с преобладанием оксидов железа (65-70%).

Количество отходящих газов зависит от удельного расхода газов и разбавления подсасываемым воздухом, что в свою очередь определяется уровнем разряжения под слоем шихты (на выходе из слоя).

Удельное количество отходящих газов колеблется в широких пределах, зависящих не только от режимов нагрева, но и от качества (чистоты) шихтовых материалов. При расходе природного газа 12-15 м3/т количество образующихся газов (без разбавления) - 130-160 м3/т с температурой ~ 1300°С. При разбавлении температура снижается до 1200°С и расход соответственно увеличивается до 200-250 м3/т шихты. Состав отходящих газов: СО2 - 15%; Н2О - 19%, N2 - 65%, остальное СО, SO2, NO и др. Концентрации СО колеблются в пределах 0,1-1 г/м3 (0,01-0,1%), SO2 - 20-30 мг/м3, NO - 10-20 мг/м3.

В случае загрязненного скрапа количество выбрасываемой пыли составляет 0,1-0,2 кг на 1 т шихты, при относительной чистой шихте - 0,05-0,1 кг на тонну.

Система аспирации должна обеспечить полный отбор образующихся газов, чтобы предотвратить их попадание в атмосферу цеха. Сопротивление столба шихты в загрузочной корзине емкостью 6 т составляет 150-250 Па. Соответственно для поддержания пониженного давления в рабочей зоне установки необходимо обеспечить разряжение, примерно, 500 Па под загрузочной корзиной.

Учитывая, что после дожигания отходящих (аспирируемых) газов температура повышается от 300-350°С до 700-750°С, перед подачей их в аппараты очистки и дымосос газы необходимо охладить. С этой целью на трассе отходящих газов устанавливаются коллекторы орошения. К коллекторам подается техническая вода в количестве необходимом для охлаждения газов до температуры 80-100°С при полном испарении воды. При последующем снижении температуры по тракту очистки происходит конденсация паров и образование капель воды. Отделение капельной влаги происходит в лопастном каплеотделителе, устанавливаемом перед дымососом. Очищенные и охлажденные газы выбрасываются в атмосферу через дымовую трубу высотой 25 м.

Управление, всеми элементами системы, включая дымосос, осуществляется автоматически или дистанционно с пульта управления установкой подогрева шихты.

шихта установка эксплуатация безопасность

7. Правила ухода за установкой, организация труда и планово-предупредительных ремонтов

Перед эксплуатацией машины необходимо внимательно ознакомиться с руководством и уяснить особенности конструкции всех механизмов.

Подготовка системы к пуску включает следующие мероприятия:

. Произвести осмотр всего оборудования системы подогрева шихты и убедиться в его исправности и отсутствии утечки газа.

. Проверить положение кранов и электромагнитных вентилей. Все краны и электромагнитные вентили на газопроводе должны быть закрыты, кроме крана на продувочной свече и манометре.

. Включить автоматические выключатели QF1, QF2, QF3.

. Произвести контрольный запуск обдувочного вентилятора. Убедиться в его запуске и исправности. Отключить обдувочный вентилятор.

. Произвести контрольный запуск привода крышки установки. Для этого нажатием соответствующей кнопки на пульте управления открытием/закрытием свода открыть крышку установки, нажатием соответствующей кнопки закрыть крышку установки.

Перед производством ремонтных работ необходимо отключить все виды энергии и вывесить плакаты «Не включать! Работают люди!».

Вся запорная арматура должна иметь бирки с номерами позиций на схеме, вывешенной на площадке обслуживания системы подогрева шихты.

Периодически осуществлять проверку зануления и заземления электрических аппаратур, соединительных коробок, нагревательных элементов и искрового разрядника в соответствии с правилами эксплуатации установок.

Место установки щитов должно быть снабжено соответствующими защитными и противопожарными средствами.

Замена вышедших из строя термопар и электрозапальника только после остановки и охлаждения свода - в ремонтный день.

Планово-предупредительные ремонты осуществляются в ремонтный день.

К работе с системой подогрева шихты допускаются лица не моложе 18 лет, прошедшие специальный инструктаж по «Правилам безопасности в газовом хозяйстве», имеющие удостоверение на право обслуживания установок на природном газе и ознакомленные с данной инструкцией.

Заключение

В результате курсового проектирования была разработана новая модель установки подогрева шихты, которая позволяет производить высокотемпературный нагрев шихты без перегрева корпуса загрузочной бадьи, что в свою очередь обусловлено необходимостью обеспечения надежности несущей способности подвесных элементов при транспортировании бадьи с нагретой шихтой от установки подогрева до места выгрузки шихты в печь.

Подогрев шихты положительно влияет на качество получаемого металла, а также сокращает удельные энергозатраты, позволяет улучшить экологические характеристики плавки.

Установка имеет к.п.д. - до 60-65 % и отличается высокой производительностью, компактностью и простотой.

Список литературы

.        И.Б. Зайгеров “Машины и автоматизация литейного производства”, “Высшая школа”:Мн., 1969г.

.        А.В. Дарков, Г.С. Шпиро “Сопротивление материалов”, “Высщая школа”: М., 1989г.

.        А.И. Горский “Расчёт машин и механизмов”, “Машиностроение”: М., 1978г.

.        Г.М. Ицкович, А.И. Винокуров, Л.С. Минин “Руководство к решению задач по сопротивлению материалов”, “Высшая школа”: М., 1970г.

.        П.Н. Аксёнов “Оборудование литейных цехов”, “Машиностроение”:М., 1968г.