Материал: Разработка стальных конструкций рабочей площадки

Внимание! Если размещение файла нарушает Ваши авторские права, то обязательно сообщите нам

Разработка стальных конструкций рабочей площадки

Содержание

Введение

1. Исходные данные

2. Компоновка конструктивной схемы

2.1 Расчёт балки настила

2.2 Расчёт главной составной балки

2.2.1 Назначение размеров составной балки

2.2.2 Изменение сечения составной балки по длине

2.2.3 Проверка местных и приведённых напряжений

2.2.4 Проверка местной устойчивости стенки

2.2.5 Расчёт поясных швов

2.2.6 Расчёт опорного конца балки

3. Расчёт центрально-сжатой колонны

4. Общие требования к текстовой и расчетно-графической части

Библиографический список

Приложение А

Приложение Б

Приложение В

Приложение Г

Введение


Целью курсового проектирования является практическое закрепление освоенного теоретического материала в процессе занятий, консультаций и самостоятельной работы. Студент должен приобрести навыки пользования нормативной и справочной литературой.

Курсовой проект выполняется на основании исходных данных по варианту, заданному преподавателем.

Тема: Разработка стальных конструкций рабочей площадки.

Задание: скомпоновать конструктивную схему рабочей площадки (балочной клетки), прокатную балку настила, главную составную балку и стойку - колонну из колонного прокатного профиля.

Компоновка конструктивной схемы рабочей площадки графически выполняется на формате А4 с соблюдением необходимых масштабов. Следует показать: план и разрезы рабочей площадки, схему связей, характерные узлы сопряжения конструктивных элементов, угловой штамп.

Расчетно-пояснительная записка должна содержать:

титульный лист;

исходные данные;

конструктивные расчеты балки настила;

конструктивные расчеты главной составной балки;

конструктивные расчеты центрально сжатой колонны.

стальная конструкция рабочая площадка

1. Исходные данные


Выполнение курсового проекта начинается с установления исходных данных для проектирования, расчётных сопротивлений стального проката и нагрузок, действующих на рабочую площадку.

Исходными данными при проектировании являются:

пролет главной балки L (шаг колонны вдоль площадки);

расстояние между главными балками В шаг колонн поперек площадки);

расстояние между балками настила а;

суммарная нормативная распределённая нагрузка на площадку qn (включающая постоянные и временные нагрузки);

материал для конструкций рабочей площадки (сталь);

геометрическая длина колонны l;

осредненный коэффициент надежности по нагрузке γf;

предельный прогиб главной балки fu (в долях от L).

Исходные данные для проектирования принимаются по таблицам 1.1 и 1.2 в зависимости от варианта

Таблица 1.1 Исходные данные

№ варианта

L, м

В, м

a, м

qn, кПа (кН/м2)

2

16

6

0,8

14,5


Таблица 1.2 Исходные данные

№ варианта

Металл конструкций (сталь)

l, м

γf

fu, см

2

С345

5,8

1,25

L/250


В зависимости от заданного материала конструкций определяются расчётные сопротивления стали и сварных соединений. Расчётные характеристики стали приведены в таблице 1.3, расчётные характеристики сварных соединений с угловыми швами - в таблице 1.4.

Таблица 1.3 Расчетные сопротивления стального проката, МПа

Сталь

Вид проката

Толщина проката, мм

Расчетное сопротивление




Ry

Rs

Rp

С345

Фасон и лист

до 10 вкл.

335

195

480



св 10 до20

315

180

460



св 20 до 40

300

175

450


. За толщину фасонного проката следует принимать толщину полки (размер t в сортаменте).

. R у - расчётное сопротивление стального проката при растяжении, сжатии и изгибе;

Rs - расчётное сопротивление стального проката при сдвиг; Rp - расчётное сопротивление стального проката при смятии торцевой поверхности (при наличии пригонки).

Таблица 1.4 Расчётные сопротивления сварных соединений с угловыми швами, МПа.

Сталь

Сварочные материалы

Напряженное состояние


Тип электрода

Марка проволоки

Срез по металлу шва, Rwf

Срез по металлу границы сплавления, Rwz

С345

Э50, Э50А

Св - 10 ГА

215

205

 С375




 215



2. Компоновка конструктивной схемы


В курсовом проекте необходимо скомпоновать конструктивную схему рабочей площадки и дать её описание в расчётно-пояснительной записке. Рекомендуется применить шарнирное опирание колонн (стоек) на фундаменты в обоих направлениях и шарнирное сопряжение колонн с балками, при этом пространственная неизменяемость каркаса обеспечивается устройством продольных и поперечных связей между колоннами. Колонны выполняются из прокатных широкополочных двутавров колонного типа.

Размер ячейки балочной клетки, то есть шаг колонн в продольном и поперечном направлениях, указывается в исходных данных к курсовому проекту. Главные балки рекомендуется располагать вдоль длинной стороны ячейки и опирать её на полки колонн сбоку. Главные балки выполняются из составных сварных двутавров.

Шаг балок настила устанавливается таким образом, чтобы он целое число раз укладывался в пролете вспомогательной балки. Это учтено в исходных данных к курсовому проекту. Рекомендуется поэтажное опирание балок настила на главные балки. Сам настил выполняется из листовой стали. Балки настила выполняются из прокатных двутавров, к верхним поясам которых приваривается настил.

Заглубление низа базы колонны относительно уровня пола может приниматься в пределах 0,3…0,4 м.

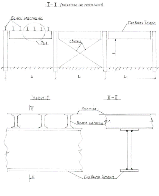
Общую длину рабочей площади принимать равной трем продольным шагам колонн, а общую ширину - трем поперечным шагам колонн. Примерная схема рабочей площадки с необходимыми размерами и характерными узлами сопряжения конструктивных элементов представлены на рис.1, 2 и 6. Окончательные размеры на схеме проставляются после завершения расчётов.

2.1 Расчёт балки настила


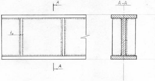
Балочная клетка представляет собой систему пересекающихся несущих балок, предназначенных для опирания настила перекрытий (рис.1).


Рис.1. Балочная клетка

Балки настила обычно проектируют прокатными. Расчётная схема балки настила - однопролётная шарнирно опёртая балка, пролёт которой равен поперечному шагу колонн рабочей площадки B, нагруженная равномерно распределённой нагрузкой q1 (рис.2).

Рис.2. Расчетная схема балки настила

Равномерно распределённая нагрузка на балку:

нормативная, кН/м:

 

qn1 = qn × а=14.5*0.8=11.5;

расчётная:

 

q1 = qn1 × γf =11.5*1.25=14.5, (2.1)

где qn - нормативная нагрузка на рабочую площадку, кН/м2;

γf - осреднённый коэффициент надёжности по нагрузке;

а - расстояние между балками настила, м.

Максимальный расчётный изгибающий момент, кН×м:

 

Мmax = (q1 × В2) / 8= (14.5*62) /8=65.25кНм; (2.2)

Максимальная поперечная сила, кН:

 

Qmax = (q1 × В) / 2= (14,5*6) /2=43,5кНм; (2.3)

По расчётному моменту определяют значение требуемого момента сопротивления сечения двутавровой прокатной балки:

 

Wx,cal = (Мmax × γn) / (Ry × γc) = (65,25*1) / (335*1) =0,2кн/см2, (2.4)

где Ry - расчётное сопротивление фасонной стали, кН/см2;

Для расчетов в курсовом проекте коэффициент надёжности по назначению и коэффициент условия работы принимаем равными 1:

 

γn = 1 и γc = 1

После определения требуемого момента сопротивления Wx,cal (относительно оси наибольшей жёсткости х-х) по сортаменту принимаем номер двутавра и выписываем геометрические характеристики его сечения, соблюдая при этом

условие - фактическое Wx ≥ Wx,cal.

Проверка жёсткости балки сводится к определению её относительного прогиба от действия нормативных нагрузок, которые не должны превышать допускаемого значения:

а) выполняем проверку жёсткости балки по формуле:

= (5 × qn1 ×В3) / (384 ×Е ×Ix) ≤ fu = (5*11,5*63) /384*206000*1840) =0,00000516444≤3см, (2.5)

где f - фактический прогиб балки, см;

qn1 - нормативное значение погонной нагрузки на балку, кН/см;

В - пролет балки, см;

 

Е = 2,06 ×10 4 (кН/см2) = 20,6 ×106 (Н/см2) - модуль упругости стали;

 

Ix - момент инерции сечения балки, см4;

fu = В /200 - предельный прогиб балки настила, см.

Если условие f > fu, не обеспечивается, то необходимо принять больший номер двутавра и повторить проверку жёсткости.

б) касательные напряжения в изгибаемых элементах проверяют в местах наибольшей поперечной силы по формуле:

 

τmax = (Qmax × Sx) / (Ix × tw) ≤ Rs × γc = (43,5*104) / (1840*5,2) =0,47≤195*1, (2.6)

где τmax - максимальное касательное напряжение, кН/см2;

Sx - статический момент половины сечения балки относительно нейтральной оси, см3;

tw - толщина стенки балки, см;

Rs - расчетное сопротивление фасонной стали сдвигу, кН/ см2;

Ix - момент инерции поперечного сечения балки, см4.

Проверка прочности по касательным напряжениям проводится в учебных целях, так как она обеспечивается по условиям проката двутавровых балок.

в) проверка общей устойчивости балки настила не требуется, так как к ее сжатому поясу прикреплен стальной настил.

г) местная устойчивость стенки и полок прокатных балок обеспечена по условиям их прокатки.

2.2 Расчёт главной составной балки


Составные балки применяют в тех случаях когда прокатные не удовлетворяют условиям прочности, жёсткости, общей устойчивости, то есть при больших пролётах и изгибающих моментах.

Расчетная схема главной составной балки рабочей площадки - однопролетная балка пролетом L с шарнирным опиранием, нагруженная расчетной равномерно распределенной нагрузкой q, к которой приводятся сосредоточенные силы в местах опирания балок настила (рис.2).

Расчётная погонная нагрузка на главную балку, кН/м:

q = qn × γf × В=14,5*1,25*6=108,75,где qn - в исходных данных.

Максимальный расчётный изгибающий момент, кН/м:

 

Мmax = (q × L2) / 8= (108,75*162) /8=3480кН/м;

Максимальная поперечная сила, кН:

 

Qmax = (q × L) / 2= (108,75*16) /2=870кН/м, (2.7)

где L - пролёт главной балки, м.

2.2.1 Назначение размеров составной балки

Проектирование составных балок выполняют в два этапа. На первом компонуют и подбирают сечение, на втором - проверяют прочность и устойчивость балки.

Компоновку составного сечения начинают с установления высоты балки.

Из условия экономичности, характеризующейся наименьшим расходом стали, вначале вычисляют оптимальную высоту балки:

 

hopt = 3√ (1,5 × λw × Wcal) = 3√ (1,5*6,77*10,4=1,6, (2.8)

где гибкость стенки λw = hef / tw при отсутствии подвижной нагрузки на поясе балки принимают для балок со стенкой, укреплённой поперечными рёбрами жёсткости

λw = 5 √ (Е / Ry),

где Е = 2,06× 105 МПа - модуль упругости стали;

Ry - расчётное сопротивление для листовой стали толщиной до 20 мм.

Требуемый момент сопротивления определяют по формуле:

 

Wcal = Мmax / Ry × γс =3480/335*1=10,4.

Минимальную высоту балки, обеспечивающую предельный прогиб, определяют по формуле:

 

hmin = ( Ry × L) / (24× Е× γf × fu) = (5*335*16) / (24*206000*1,25*0,003) =14,7, (2.9)

где fu - предельный прогиб главной балки (исходные данные);

γf - осредненный коэффициент надежности по нагрузке;

Ry - расчетное сопротивление листовой стали толщиной более 20 мм.

Назначаемая окончательно высота составной балки должна быть близкой к hopt (обычно на 5 - 10 % меньше полученного по формуле hopt, но не меньше hmin)

Балки в целях унификации конструкций рационально принимать высотой, кратной 100мм. После установления высоты балки определяют толщину стенки tw из следующих условий:

а) обеспечения прочности стенки на срез на опоре (при опирании балки на опорное ребро):

 

tw = (к× Qmax) / (h ×Rs × γc) = (1,5*870) / (1,6*180*1) =4,5, (2.10)

где к - коэффициент, принимаемый при опирании балки с помощью опорного ребра, приваренного к торцу балки равным к = 1,5;

h - высота составной балки назначенная;

Q - максимальная поперечная сила;

б) обеспечение местной устойчивости стенки без дополнительного укрепления её продольным ребром:

 

tw h / λw =4,5≥0,2;

Рекомендуемые толщины стенки балки:

(8…12мм) - кратно 1мм;

при большей толщине кратно 2мм.

Стенки толщиной (14…24 мм) проектируют в балках высотой 2…5 метров при значениях h / tw = 160…230.

Окончательно толщина стенки назначается, если соблюдается условие (Ry в МПа):

 

tw = (hef / 5,5) √ (Ry / Е) = (155,6/5,5) √ (335/206000) =8; (2.11)

В сварных балках пояса обычно принимают из одиночных листов универсальной стали, в связи с чем толщина tf и ширина bf поясных листов должны соответствовать сортаменту на эту сталь (приложение А).

При назначении размеров пояса толщина поясных листов tf предварительно назначается в пределах 18 - 32мм (в соответствии с сортаментом на широкополосную сталь - приложение А).

Из условия свариваемости поясов со стенкой необходимо соблюдать требование:

 

tw < tf ≤ 3 tw =8≤22≤24,где tw - толщина стенки.

Вычислим высоту стенки:

 

hef = h - tf =155,6.

Требуемую ширину поясного листа bf определяют из расчёта геометрических характеристик сечения. Для этого вычисляют:

)        Требуемый момент инерции всего сечения балки, см4:

 

I = Wcal × (h / 2) =10,4* (1,6/2) =832см4;

 

2)      Момент инерции стенки, см4:

 

Iw = (tw × hef3) /12= (0,8*155,63) /12=25115,25см4;

 

3) Требуемый момент инерции поясов, см4:

 

If = I - Iw =25115,25-832=24283,25;

 

4)      Требуемая площадь одного пояса, см2:

 

Af = 2 If / (h - tf) 2=2*24283,25/ (160-2,2) 2=1,95см2;

 

5)      Требуемая ширина пояса, см:

 

bf = Af / tf =1,95/2,2=0,89см;

 

Ширину пояса bf рекомендуется выдерживать в пределах (1/3 - 1/5) h из условия обеспечения общей устойчивости балки.

По конструктивным соображениям ширину пояса принимают:

 

bf ≥ 180 мм или h / 10;

Требование по обеспечению местной устойчивости балки:

 

bеf / tf ≤ 0,5 √ (Е / Ry) =0,5 √206000/315=12,8

где bеf - свободный свес поясного листа (bеf bf / 2);

Ry - расчетное сопротивление листовой стали в соответствии с принятой толщиной tf.

Если размеры пояса не отвечают указанным требованиям, то изменяют толщину поясного листа в ту или иную сторону и определяют новую ширину пояса. По полученным данным компонуют сечение составной балки, вычисляют для него геометрические характеристики:

I - требуемый момент инерции:

 

I = Iw + If = (tw × hef3) / 12 + bf × tf [0,5 (h - tf)] 2 =832; (2.12)

 

W - требуемый момент сопротивления:

 

W = 2× I / h = I / (h/2) =2*832/160=10,4;

В учебных целях производят проверку прочности по нормальным напряжениям:

 

σ = Мmax / W Ry × γc =3480/10,4=334,5≤335 *1 (2.13)

Перенапряжение не допускается, а недонапряжение для удовлетворительно подобранного сечения балки должно составлять не более 5%.

2.2.2 Изменение сечения составной балки по длине

Сечение составной балки, подобранное по максимальному моменту в середине пролёта, можно уменьшить на приопорных участках. Учитывая увеличение трудоёмкости изготовления, рекомендуется уменьшать сечения поясов в балках пролётом 10 - 12 метров и более (рис.4).

Рис.4. Изменение сечения балки за счет уменьшения ширины пояса

При равномерной нагрузке наиболее выгодное место изменения сечения поясов в однопролётной балке находится на расстоянии примерно 1/6 пролёта балки от опоры. Сечения поясов изменяют различными способами. Наиболее простым способом является изменение ширины пояса, так как при этом не изменяется высота балки. Уменьшенная ширина поясов должна отвечать условиям:

bf 1 180мм; bf 1 h /10;

bf 1 0,5× bf.

Расчёт изменения ширины пояса главной балки производят в следующем порядке:

. Расстояние до места изменения сечения, см:

 

Х = L / 6=16*6=2,7см;

. Расчётный изгибающий момент в месте изменения сечения, кН×см:

 

Мх = (q×х× (L - х)) / 2= (108,75*2,7* (16-2,7)) /2=1952,6кН*см;

. Поперечную силу в месте изменения сечения, кН:

 

Qх = q × (L/2 - х) =108,75* (16/2-2,7) =576,375кН;

. Требуемый момент сопротивления на опоре, см3:

 

Wcall = Mx / Ry× γc =1952,6/315=6,2см3;

. Требуемый момент инерции сечения на опоре, см4:

 

I call = Wcall × (h /2) =6,2* (160/2) =496см4;

. Требуемый момент инерции поясов, см4:

 

I1f = I1cal - Iw =496-27=469см4,где Iw - момент инерции стенки, см4

. Требуемая площадь пояса, см2:

А1f = ( I1f) / (h - tf) 2=36780см2;

. Требуемая уменьшенная ширина пояса, см:

 

b1f = А1f / tf =18см;

Полученное сечение называют опорным. Уменьшенная ширина пояса согласуется с сортаментом на широкополосную сталь. Значение b1f должно соответствовать вышеприведённым конструктивным условиям.

Затем, после назначения b1f, определяют действительные геометрические характеристики уменьшенного опорного сечения:

 

I1 = (tW ×h3ef) /12+2 b1f × tf × ( (h - tf) /2) 2 =0.2 см4; (2.14)

W1 = 2×I1/h =6.2 см3;

S = Sw + Sf = (tW× 23ef) /8 + b1f × tf × (h - tf) /2=2578.9;

а) В учебных целях проверяют сечение на опоре на прочность по касательным напряжениям:

 

τ = (Qmax × S) (I1 × tW) ≤ RS × γc;

б) Проверку общей устойчивости составной балки не производят в связи с тем, что на её сжатый пояс через 0,6…1,2 метра (значения а) опираются балки настила, надёжно приваренные к ней.

в) Проверку прогиба также не выполняют, так как принимаемая высота сечения составной балки всегда больше минимальной и регламентированный прогиб будет обеспечен.

2.2.3 Проверка местных и приведённых напряжений

а) В местах опирания балок настила (прокатных) на главную балку определяют местные напряжения:

 

σloc =Fe / tW × lb ≤ Ry × γc =255,2<315, (2.15)

где Fe = q×a - расчётное значение (сосредоточенной силы), прикладываемой к составной балке;

а - расстояние между балками;

lb =bp+2 tf - условная длина распределения нагрузки;

bp - ширина полки балки настила;

tf - толщина полки составной балки;

б) Расчёт по приведённым напряжениям. Проверка выполняется в месте фактического изменения сечения составной балки на уровне поясных швов.

Проверку приведённых напряжений выполняют с учётом совместного действия нормальных и касательных напряжений по формуле:

 

σef =  σх2 - σх× σу - σу2 +3× τху2 ≤ 1,15 Ry × γc, (2.16)

где σх = МХ ×hef / (W1×h) - нормальные напряжения в стенке;

МХ - изгибающий момент в месте изменения сечения, кНсм;

σу - напряжения, перпендикулярные оси балки. Для рассматриваемых балок

 

σу = σloc.

τху = Qx / (/ tW ×hef) - среднее касательное напряжение;

 

Qx - поперечная сила в месте изменения сечения, кН.

Если балки настила опираются на главную балку в стороне от места фактического изменения сечения пояса, то местное напряжение принимают равным нулю - σloc = 0.

2.2.4 Проверка местной устойчивости стенки

Потерей местной устойчивости стенки или пояса называют местное выпучивание отдельных элементов конструкций под действием сжимающих нормальных или касательных напряжений.

Местная устойчивость сжатого пояса обычно обеспечивается при подборе сечения составной балки.

Стенка балки подвергается воздействию нормальных и касательных напряжений. Для повышения устойчивости стенки её укрепляют специальными рёбрами жёсткости, которые располагают с двух сторон стенки нормально к поверхности выпучивания листа. Увеличение толщины стенки экономически не выгодно, поскольку оно ведёт к перерасходу материала. Рёбра жёсткости разбивают стенку на ряд отсеков (панелей), которые теряют устойчивость независимо один от другого. Согласно СНиП II-23-81* стенки балок следует укреплять поперечными ребрами жесткости, если значения условий гибкости стенки:

 

λw = (hef / tw) √ (Ry / E) ≥ 3,2 (2.17)

Расстояние между поперечными ребрами жесткости - а1 (рис.5), должно отвечать следующему условию:

 

a1 2 hef при - λw ≥ 3,2

a1 2,5hef при - λw ≤ 3,2.

Рис.5. Ребра жесткости

Рёбра жёсткости принимаются парными, симметричными по обе стороны стенки. Ширину выступающей части ребра bh для парных симметричных поперечных ребер жесткости определяют по формуле:

 

bh = hef / 30 + 40 мм=0,09мм; (2.18)

Толщину ребра ts вычисляют по формуле:

 

ts = 2 bh ×√ (Ry / E) =7мм. (2.19)

Размеры рёбер жёсткости согласовываются с сортаментом на полосовую сталь

По условиям транспортировки балки пролетом более 9 метров разбиваются на отправочные марки, которые в последующем стыкуются на монтаже. Поэтому при расстановке поперечных рёбер жесткости необходимо следить, чтобы ближайшее от монтажного стыка ребро находилось на расстоянии не менее 500 миллиметров.

Ребра устанавливают на равном расстоянии друг от друга, но из-за выполнения выше названного условия приопорные отсеки часто назначают длиной меньшей, чем 2hef.

Наметив расстановку рёбер жёсткости проверяют местную устойчивость стенки по формуле:

 

√ [ (σ / σcr + σloc / σloc,cr) 2 + (τ / τcr) 2] ≤ γc, (2.20)

где σ и τ - нормальные и касательные напряжения определяют по разъяснениям к формуле (2.16);

Значения критических напряжений σcr и σloc,cr определяют:

а) При а1/hef ≤ 0,8 по формуле:

σcr = (Ccr×Rу) / (-λ2w) =461, (2.21)

где Ccr - коэффициент, принимаемый в зависимости от значения σ, учитывающего степень упругого защемления стенки в поясах (таблица 2.1).

 

σ = β× (bf / hef) × (tf / tw) 3 =1,9,

где β= 0,8 - коэффициент для всех балок, кроме подкрановых;

bf и tf - соответственно ширина и толщина сжатого пояса балки.

 

σloc,cr = (C1 ×Rу) / (-λ2w) =329, (2.22)

где С1 - коэффициент, принимаемый по таблице 2.2 в зависимости от отношения а1/hef и значений σ;

 

λ2w = (a1 /tw) × Rу / E =122;

б) при a1/hef > 0,8 и отношении σloc / σ больше значений, указанных в таблице 2.3.

 

σcr = (С2 · Ry) / - λw2 =461,9, (2.23)

где С2 принимают по таблице 2.4.;

σloc,cr - принимают по формуле (2.22);

в) при a1/hef > 0,8 и отношении σloc /σ не более значений, указанных в таблице 2.3;

σcr - принимать по формуле (2.21);

σloc,cr - по формуле (2.22), но с постановкой (a1/2) вместо a1 в формулу для - λa и в таблице 2.2.

Критическое касательное напряжение определяют по формуле:

 

τcr = 10,3× (1 + (0,76/μ2)) × (Rs / - λw2) =6, (2.24)

где μ - отношение большей стороны (а или hef) к меньшей d, (практически отношение a1/hef)

Таблица 2.1.

Значения Сcr, при σ равном

σ

≤ 0,8

1,0

2,0

4,0

6,0

10,0

30

Сcr

30,0

31,5

33,3

34,6

34,8

35,1

35,5


Таблица 2.2.

Значения С1 для сварных балок при a1/hef, равном

 σ

 


≤ 0,5

0,6

0,8

1,0

1,2

1,4

1,6

1,8

2,0

1

11,5

12,4

14,8

18,0

22,1

27,1

32,6

38,9

45,6

2

12,0

13,0

16,1

20,4

25,7

32,1

39,2

46,5

55,7

4

12,3

13,3

16,6

21,6

28,1

36,3

45,2

54,9

65,1

6

12,4

13,5

16,8

22,1

29,1

38,3

48,7

59,4

70,4

10

12,4

13,6

16,9

22,5

30,0

39,7

51,0

63,3

76,5

30

12,5

13,7

17,0

22,9

31,0

41,6

53,8

68,2

83,6


Таблица 2.3.

Предельные значения σloc / σ, при a1/hef, равном

 σ

 


0,8

0,9

1,0

1,2

1,4

1,6

1,8

2,0

1

0

0,146

0,183

0,267

0,356

0,445

0,540

0,618

2

0

0,109

0,169

0,277

0,406

0,543

0,652

0,799

4

0

0,072

0,129

0,281

0,479

0,711

0,930

1,132

6

0

0,066

0,127

0,288

0,536

0,874

1, 192

1,468

10

0

0,059

0,122

0,296

0,574

1,002

1,539

2,154

30

0

0,047

0,112

0,300

0,633

1,283

2,249

3,939


Таблица 2.4.

Значения С2, при a1/hef, равном

a1/hef

≤ 0,8

0,9

1,0

1,2

1,4

1,6

1,8

2,0

 С2

По табл. 2.3., т.е. С2 = Сcr

 37,0

 39,2

 45,2

 52,8

 62,0

 72,6

 84,7

2.2.5 Расчёт поясных швов

При изгибе составных балок между поясом и стенкой возникают сдвигающие силы, стремящиеся сместить один элемент относительно другого. Чтобы все составляющие балку элементы работали монолитно, сдвигающие силы должны восприниматься связями, соединяющими пояса со стенкой. В качестве связей применяют поясные швы.

Сдвигающее усилие Т, приходящееся на 1см длины балки, составит:

 

Т = (Qmax × Sf) / I1 =6696, (2.25)

где Qmax - расчётная поперечная сила, равная опорной реакции балки;

Sf - статический момент пояса;

I1 - момент инерции сечения на опоре;

Sf и I1 принимают по формулам (2.14).

Сдвигающая сила Т воспринимается двумя швами с катетом kf, соблюдая при этом два условия:

при расчёте по металлу шва Т ≤ 2×βf ×kf ×Rwf ×γwf ×γc;

при расчёте по металлу границы сплавления Т ≤ 2×βz ×kf ×Rwz ×γwz ×γc,

где βf и βz - коэффициенты глубины проплавления угловых швов, принимаемые по таблице 2.5 в зависимости от вида сварки и положения шва для сталей с пределом текучести до 580 МПа;

kf - катет шва;

Rwf и Rwz - расчётные сопротивления углового шва срезу по металлу и по металлу границы сплавления принимают из таблицы 1.4;

γwf и γwz - коэффициенты условий работы шва, равные 1 для сварных конструкций, работающих при температуре не ниже ( - 400С);

Таблица 2.5 Коэффициенты глубины проплавления угловых швов

Вид сварки при

Положение шваКоэф

фициент

βЗначение β при катетах швов, мм







3…8

9…12

14…16

18 и более

 Автоматическая d = 3…5

 Нижнее

βf

1,1

0,9

0,9

0,7



βz

1,15

1,05

1,05

1,0

Ручная; полуавтоматическая проволокой сплошного сечения при d≤1,4

В лодочку, нижнее, горизонтальное, вертикальное, потолочное

βf

0,7

0,7

0,7

0,7



βz

1,0

1,0

1,0

1,0


Определяют необходимый катет сварного поясного шва:

 

kf ≥ (Q×Sf) / (βf ×I × Rwf ×γwf ×γc); (2.26)

kf ≥ (Q×Sf) / (βz ×I ×Rwz ×γwz ×γc);

При расчёте для катета шва принимается большее из полученных двух значений kf. Полученный катет углового поясного шва сохраняется по всей длине балки. Минимальные значения катетов поясных швов зависят от толщины наиболее толстого из свариваемых элементов (таблица 2.6).

Таблица 2.6 Минимальные размеры катетов угловых швов в стальных конструкциях

 Вид соединения

 Вид сварки

Предел текучести стали σу, МПа

Минимальные катеты швов kf, мм, при толщине более толстого из свариваемых элементов t, мм.




4 - 5

6 - 10

11 - 15

17 - 22

23 - 32

33 - 40

41 - 80

 Тавровое с двусторонними угловыми швами; нахлёсточное и угловое

ручная

До 430

4

5

6

7

8

9

10



Свыше 430 до580

5

6

7

8

9

10

12


Автомати ческая и полуавто матичес кая

До 430

3

4

5

6

7

8

9



Свыше 430 до580

4

5

6

7

8

9

10

2.2.6 Расчёт опорного конца балки

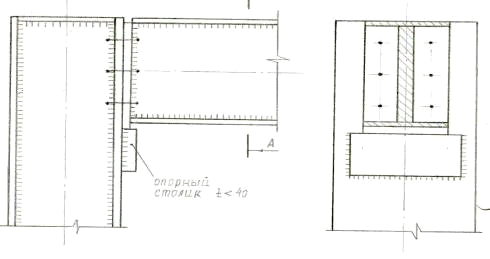
Балка опирается на колонну фрезерованным торцом сплошного опорного ребра, приваренного к балке. Установленные по торцам балок опорные рёбра выпускают ниже кромки нижнего пояса на расстояние ar = 15…20 мм и не более чем на 1,5 толщины ребра (рис.6). Вся опорная реакция передаётся с балки на опорный столик колонны через это ребро. Опорные рёбра приваривают к стенке двумя сварными угловыми швами (рис.6).

Рис.6. Крепление опорного ребра

Торец опорного ребра строгают для плотного касания этого ребра с опорной поверхностью колонны. Площадь сечения опорного ребра определяют из условия его работы на смятие по формуле:

 

Ar = F / Rp× γc =870/460*1=1,89, (2.27)

где F - расчётная опорная реакция, F = Qmax;

Rp - расчётное сопротивление стали смятию торцевой поверхности;

Толщину опорного ребра определяют по формуле:

tsr = Ar b1f =1,89/0,18=10,5, (2.28)

где br = b1f - ширина опорного ребра. Значение tsr должно соответствовать сортаменту на полосовую или широкополосную сталь.

Сварные швы, прикрепляющие опорное ребро к стенке балки (два угловых шва), проверяют на действие опорной реакции. Расчёт сводится к определению требуемого катета углового шва:

 

kf = (1/ βf) ×  F / 85× Rwf =0,2, (2.29)

где βf = 0,7 так как при ручной сварке расчёт по металлу шва является решающим.

Болты, прикрепляющие составную балку к колонне, устанавливают конструктивно.

3. Расчёт центрально-сжатой колонны


Центрально сжатые колонны применяют для поддержания междуэтажных перекрытий и покрытий зданий, в рабочих площадках и т.п. Производят расчёт наиболее загруженной колонны в средней части рабочей площадки.

Расчётная схема колонны - шарнирно-опёртый по концам стержень (рис.7).

Рис.7. Шарнирное опирание колонны

Геометрическая длина колонны l (см. исходные данные) принимается от подошвы базы колонны, заглубленной на 0,3…0,4 метра, до точки опирания опорного конца главной балки на столик колонны (рис.1 и 6). При шарнирном опирании колонны в двух направлениях поправочный коэффициент приведения длины μx = μу = 1.

Определяют расчётную длину сжатого элемента:

 

lef = μ×l=1,4,где l - геометрическая длина элемента;

Расчётное значение нормальной сжимающей силы, кН:

 

N = q ×L + Nкол =108,75+16+0,3=125,05 (3.1)

где - q - нагрузка от балочной клетки, кН/м, формула 2.7.

L - шаг колонн вдоль балочной клетки, м;

Nкол - собственный вес колонны, ориентировочно принимаемый равным

Nкол = l, (кН).

Подбор сечения колонны начинают с предварительного назначения гибкости колонны в пределах λу = 90…100. По назначенной гибкости находят значение коэффициента продольного изгиба φ (приложение Г) в зависимости от расчётного сопротивления Rу.

Требуемую площадь поперечного сечения стержня колонны определяют:

 

Аcal = N/ (Rу × φ× γc) =125,05/ (315*485*1) =131,4, (3.2)

где значение расчётного сопротивления Rу принимают для фасонной стали толщиной до 20 мм.

По принятой гибкости находят требуемый радиус инерции сечения:

iy, cal = lef / λу =30,4/4,03=7,54. (3.3)

Прокатные колонны подбирают по сортаменту, используя полученные значения требуемых площади и радиуса инерции сечения. Из приложения В выписываются фактические геометрические характеристики сечения двутаврового профиля колонного типа (К).

Для проверки устойчивости колонны определяют её фактическую гибкость:

λу = lef / iу =30,4/7,54=4,03. (3.4)

Далее по фактической гибкости определяют коэффициент φу и проверяют устойчивость:

 

σ = N/ (φу×А) ≤ Rу × γc, (3.5)

где А и iу - фактические площадь и радиус инерции подобранного сечения колонны (приложение В).

В случае перенапряжения или значительного недонапряжения конструкции подбирается другой профиль и повторяется проверка устойчивости колонны. Необходимо проверить превышение гибкости колонны допустимой величины

 

λ пр:

λуλ пр = 180 - 60×α=104, (3.6)

 

α = N/ (A× φmin× Rу × γc) =210МфцыуЦфФ0020,если α ˂ 0,5, то принимается α = 0,5;

 

Rу - для фасонной стали с соответствующей толщиной полки.

4. Общие требования к текстовой и расчетно-графической части


Титульный лист курсовой работы заполняется согласно Приложению Д. Рекомендуется общий курсовой работы до 30 страниц текста компьютерного набора с таблицами, графиками в текстовой части. Чертежи и карты, а при необходимости подробные табличные данные приводятся в приложениях. Формат страницы А4, поля: слева - 30 мм, справа - 1,5 вверху и снизу - 20 мм. Текст в формате WinWord, шрифт - Times New Roman, кегль - 14 пт, межстрочный интервал - 1,5, абзац 1,0. Графики, чертежи и карты предоставляются оформленными по требованиям ГОСТ с соответствующими подписями и печатями. Графики и чертежи желательно выполнить компьютерными средствами, например, с помощью программ Avtocad, Microsoft Excel, Adobe Acrobat и др., формулы с помощью редактора формул. При выполнении расчетно-графических работ вручную, формулы выписывать аккуратно, чтобы была читаемость, а графики и чертежи и подписи к ним с соблюдением требований ГОСТ и картографического черчения.

Библиографический список


1. СНиП I I - 23 - 81*. Стальные конструкции. Нормы проектирования / Госстрой СССР - М.; ЦИПТ Госстроя СССР, 2002.

. Инженерные конструкции. Под. ред. проф. Бергена Р.И. - М.: Высшая школа, 1989, 407 с.

. Примеры расчёта металлических конструкций. Мандриков А.П. - М.: Стройиздат, 1991, 427с.

. Металлические конструкции. Справочник проектировщика. Под. ред. акад. Мельникова Н.П. - М.: Стройиздат, 1980, 775с.

. Инженерные конструкции. Дукарский Ю.М., Расс Ф.В., Семёнов В.Б. - М.: КолосС, 2008.

Приложение А


Выборка из сортамента

1. Сталь широкополосная (универсальная), ГОСТ 82-70*.

Ширина листов, мм: 200, 210, 220, 240, 250, 260, 280, 300, 320, 340, 360, 380, 400, 420, 450, 480, 500, 530, 560, 600, 630, 650, 670, 700, 750, 800, 850, 900, 950, 1000, 1050.

Толщина листов, мм: 6, 7, 8, 9,10, 11, 12, 14,16, 18, 20, 22, 25, 28, 30, 32, 36, 40.

2. Сталь толстолистовая по ГОСТ 19903-74*

Ширина листов, мм: 1000, 1250, 1400, 1500, 1600… и далее через 100 мм до 3600 мм.

Толщина листов, мм: 6, 7, 8, 9, 10, 11, 12, 14, 16, 18, 20, 22, 24, 26, 28, 30.

3. Сталь полосовая по ГОСТ 103-76*

Ширина листов, мм: 60, 63, 65, 70, 80, 85, 90, 95, 100, 105, 110, 120, 125, 130, 140, 150, 160, 170, 180, 190, 200.

Толщина листов, мм: 6, 7, 8, 9, 10, 11, 12, 14, 16, 18, 20.

Приложение Б


Балки двутавровые (выборка из ГОСТ 8239 - 89)

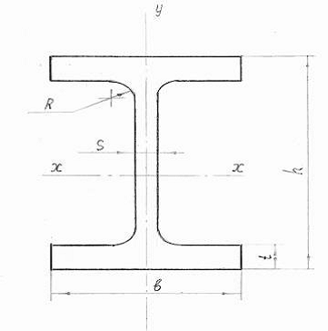
Обозначения: h - высота балки; b - ширина полки; t - средняя толщина полки; s - толщина стенки; R - радиус внутреннего закругления; I - момент инерции; W - момент сопротивления; i - радиус инерции; S - статический момент полусечения.

 

№ бал ки

Размеры, мм

Ли ней ная плотнос ть, кг/м

Пло щадь сече ния, А, см2

Справочные данные для осей: Х - Х У - У





 Iх, см4

 Wх, см3

 i х, см

 Sх, см3

 Iу, см4

 Wу, см3

 i у, см


 h

 b

 s

 t

 R

 r










10

100

55

4,5

7,2

7

2,5

9.48

12

198

39,7

4,06

23,0

17,9

6,49

1,22

12

120

64

4,8

7,3

7,5

3

11,5

14,7

350

58,4

4,88

33,7

27,9

8,72

1,38

14

140

73

4,9

7,5

8

3

13,7

17,4

572

61,7

5,73

46,8

41,9

11,5

1,55

16

160

81

5,0

7,8

6,5

3,5

15,9

20,2

873

109

6,57

62,3

58,6

14,5

1,70

18

180

90

5,1

8,1

9,0

3,5

18,4

23,4

1290

143

7,42

81,4

82,6

18,4

1,88

20

200

100

5,2

8,4

9,5

4

21

26,8

1840

184

8,28

104

115

23,1

2,07

22

220

110

5,4

8,7

10

4

24

30,6

2550

232

9,13

131

157

28,6

2,27

24

240

115

5,6

9,5

10,5

4

27

34,8

3460

289

9,97

163

198

34,5

2,37

27

270

125

6,0

9,8

11

4,5

31,5

40,2

5010

371

11,2

210

260

41,5

2,54

30

300

135

6,5

10,2

12

5

36,5

46,5

7080

472

12,3

268

337

49,9

2,69

33

330

140

7,0

11,2

13

5

42,2

53,8

9840

597

13,5

339

419

59,9

2,79

36

360

145

7,5

12,3

14

6

48,6

61,9

13380

743

14,7

423

516

71,1

2,89

40

400

155

8,3

13,0

15

6

57

72,6

19062

953

16,2

545

667

86,1

3,03

45

450

160

9,0

14,2

16

7

66,5

84,7

27696

1231

18,1

708

808

101

3,09

50

500

170

10

15,2

17

7

78,5

100

39727

1589

19,9

919

1043

123

3,23

55

550

180

11

16,5

18

7

92,6

118

55962

2035

21,8

1181

1356

151

3,39

60

600

190

12

17,8

20

8

108

138

78806

2560

23,6

1491

1725

182

3,54

 


Приложение В


Двутавры стальные горячекатаные с параллельными гранями полок по ГОСТ 26020-83. Колонный профиль.


№ про филя

Ли ней ная плот ность (кг/м)

Размеры, мм

Пло щадь сече ния, А, см2

Справочные данные для осей Х - ХУ - У



 h

 b

 s

 t

 R


 Iх, см4

 Wх, см3

 Sх, см3

 i х, см

 Iу, см4

 Wу, см3

 i у, см

20К1 20К2

41,5 46,9

195 198

200 200

6,5 7

10 11,5

13 13

52,82 59,70

3820 4422

392 447

216 247

8,50 8,61

1334 1534

133 153

5,03 5,07

23К1 23К2

52,2 59,5

227 230

7 8

10,5 12

14 14

66,51 75,77

6589 7601

580 661

318 365

9,95 10,02

2421 2766

202 231

6,03 6,04

26к1 26К2 26К3

65,2 73,2 83,1

255 258 262

260 260 260

8 9 10

12 13,5 15,5

16 16 16

83,08 93, 19 105,90

10300 11700 13560

809 907 1035

445 501 576

11,14 11,21 11,32

3517 3957 4544

271 304 349

6,51 6,52 6,55

30К1 30К2 30К3

84,8 96,3 108,9

296 300 304

300 300 300

9 10 11,5

13,5 15,5 17,5

18 18 18

108,00 122,70 138,72

18110 20930 23910

1223 1395 1573

672 771 874

12,95 13,06 13,12

6079 6980 7881

405 465 525

7,50 7,54 7,54

35К1 35К2 35К3

109,7 125,5 144,5

343 348 353

350 350 350

10 11 13

15,0 17,5 20,0

20 20 20

139,70 160,40 184,10

31610 37090 42970

1843 2132 2435

1010 1173 1351

15,04 15,21 15,28

10720 12510 14300

613 715 817

8,76 8,83 8,81

40К1 40К2 40К3 40К4 40К5

138,0 165,6 202,3 242,2 291,2

393 400 409 419 431

400 400 400 400 400

11 13 16 19 23

16,5 20,0 24,5 29,5 35,5

22 22 22 22 22

175,80 210,96 257,80 308,60 371,00

52400 64140 80040 98340 121570

2664 3207 3914 4694 5642

1457 1767 2180 2642 3217

17,26 17,44 17,62 17,85 18,10

17610 21350 26150 31500 37910

880 1067 1307 1575 1896

10,00 10,06 10,07 10,10 10,11


Приложение Г


Коэффициенты φ продольного изгиба центрально-сжатых стальных элементов

Гибкость элемента, λу

Значения φ при Rу, МПа


200

240

280

320

360

400

60

0,827

0,805

0,785

0,766

0,749

0,721

70

0,782

0,754

0,724

0,687

0,654

0,623

80

0,734

0,686

0,641

0,602

0,566

0,532

90

0,665

0,612

0,565

0,522

0,483

0,447

100

0,599

0,542

0,493

0,448

0,408

0,369

110

0,537

0,478

0,427

0,381

0,338

0,306


Ry = 20 кН/см2

Гиб кость,λу

0

1

2

3

4

5

6

7

8

9

30

939

936

932

929

926

923

919

916

913

909

40

906

903

899

896

893

889

885

881

877

873

50

869

865

861

856

852

848

844

840

835

831

60

827

823

818

814

809

805

800

796

791

787

70

782

777

772

768

763

758

753

748

744

739

80

734

727

720

713

706

700

693

686

679

672

90

665

658

652

645

639

632

625

619

612

606

100

599

593

587

580

574

568

526

556

459

543

110

537

531

525

520

514

508

502

496

491

485

120

479

474

468

463

457

452

477

441

436

430

130

425

420

415

410

405

401

396

391

386

381

140

376

371

366

362

327

352

347

342

338

333

150

328

324

320

317

313

309

305

301

298

294


Ry = 24 кН/см2

Гибкость, λу0 123456789











30

931

928

924

920

916

913

909

905

901

898

40

894

890

886

882

878

874

870

865

861

857

50

852

847

843

838

833

829

824

819

814

810

60

805

800

796

790

785

780

774

769

764

759

70

754

747

740

734

727

720

713

706

700

693

80

686

679

671

664

656

649

642

634

627

619

90

612

605

598

591

577

570

563

556

549

100

542

536

529

523

516

510

504

497

491

484

110

478

472

466

460

454

449

443

437

431

425

120

419

414

408

403

397

392

386

381

375

370

130

364

359

354

349

344

340

335

330

325

320

140

315

311

307

303

299

296

292

288

284

280

150

276

273

270

266

263

260

257

254

250

247

 

Ry = 28 кН / см2

Гиб кость, λу

0

1

2

3

4

5

6

7

8

9

30

924

920

916

911

907

903

899

895

891

887

40

883

787

873

869

864

860

856

850

845

840

50

836

831

826

821

816

811

805

800

795

790

60

785

779

773

767

762

755

748

743

736

730

70

724

716

707

699

691

683

674

666

658

649

80

641

633

626

618

611

603

595

588

580

573

90

565

558

551

543

536

529

522

518

507

500

100

493

486

480

473

467

460

453

447

440

434

110

427

421

415

409

403

437

390

384

378

379

120

366

361

355

350

345

340

334

329

324

318

130

313

309

305

301

297

293

288

284

280

276


Ry = 32 кН/см2

Гибкость, λу0 123456789











30

917

912

908

903

899

894

890

886

881

878

40

873

868

863

858

853

848

842

837

832

827

50

822

816

811

805

800

794

788

783

777

772

60

766

758

750

742

734

727

729

711

703

695

70

687

679

670

662

653

645

636

628

619

611

80

602

594

586

578

570

562

554

546

538

530

90

522

514

507

499

492

485

478

470

463

455

100

448

441

435

428

421

415

408

401

394

388

110

381

375

369

363

357

351

345

339

333

327

120

321

317

312

308

303

299

294

290

285

281

130

276

272

269

265

262

258

254

251

247

244

140

240

237

237

231

228

226

223

220

217

214

150

211

209

207

204

202

199

197

194

192

189

Гибкость, λу0 123456789











30

911

906

901

897

892

887

882

877

873

868

40

863

858

852

847

841

836

831

825

820

814

50

809

803

798

791

785

779

773

767

761

755

60

749

740

730

721

711

702

692

683

673

664

70

654

645

636

628

619

610

601

592

584

575

80

566

558

549

541

533

525

516

508

500

549

90

483

476

468

461

453

446

438

431

423

416

100

408

401

394

387

380

373

366

359

352

345

110

338

333

328

323

318

313

307

302

297

292

120

287

283

279

275

271

276

263

259

255

251

130

247

244

241

237

234

231

228

225

221

218

140

215

212

210

207

205

202

199

197

194

192

150

189

187

185

182

180

178

176

174

171

169

 

Ry = 40 кН/см2

Гибкость, λу0 123456789











30

905

900

895

890

885

880

874

869

864

859

40

854

848

842

837

831

825

819

813

808

802

50

796

789

781

774

766

759

751

744

736

729

60

721

711

701

692

682

672

662

652

643

633

70

623

614

605

596

687

578

568

559

550

541

80

532

524

515

507

498

490

481

473

464

456

90

447

439

431

424

416

408

400

392

385

377

100

369

363

356

350

344

338

331

325

319

312

110

306

301

297

292

288

283

278

274

269

265

120

260

256

253

249

245

241

238

234

230

227

130

223

220

217

215

212

209

206

203

201

198

140

195

193

190

188

185

183

181

178

176

173

150

171

169

167

165

163

162

160

158

156

154


Примечание: Значения коэффициентов φ в таблицах увеличены в 1000 раз.


Не нашли материал для своей работы?
Поможем написать уникальную работу Без плагиата!