Материал: Расчет себестоимости и формирование плановой калькуляции затрат по выполнению работ для создания одноранговой ЛВС

Внимание! Если размещение файла нарушает Ваши авторские права, то обязательно сообщите нам

Расчет себестоимости и формирование плановой калькуляции затрат по выполнению работ для создания одноранговой ЛВС













Курсовая работа

Расчет себестоимости и формирование плановой калькуляции затрат по выполнению работ для создания одноранговой ЛВС

Введение

себестоимость заработный цена затраты

Исходя из того, что темой курсовой работы является расчёт себестоимости и формирование плановой калькуляции затрат по выполнению работ для создания одноранговой ЛВС, я сформулировал следующие цели и задачи:

Цели:

.        Усвоение и практическое закрепление учебного материала по дисциплине «Экономика отрасли».

.        Формирование рабочего материала по экономической части будущего дипломного проекта.

.        Развитие уровня экономических знаний и умений студента.

.        Развитие широкого кругозора и эрудиции, а так же формирование навыков самостоятельной работы

Задачи:

Анализ основных критериев и показателей, определяющих себестоимость изготовления изделия или выполнения плановой калькуляции или работ по теме.

Формирование умений по составлению сметы затрат выполнения диагностических работ.

Выполнение расчёта показателей по статьям плановой калькуляции или сметы затрат согласно выбранного алгоритма действий

Алгоритм действий по выполнению задания курсовой работы может включать следующие позиции:

. Анализ задания, формирование целей и задач и подбор необходимой литературы, баз данных и другого учебно-практического материала.

. Изучение, закрепление в рамках теоретической части курсовой работы основных показателей и критериев определяющих плановую калькуляцию или смету затрат и рентабельность работ по теме.

. Последовательный математический расчёт показателей, определяющих себестоимость изготовления изделия или выполнения работ по теме.

. Формирование плановой калькуляции или сметы затрат на выполнение работ по теме.

В данном курсовом проекте я рассчитаю:

·        Произведу осмотр помещения, замеры для приобретения комплектующих и материалов.

·        Заработную плату мастера по созданию беспроводной локальной сети.

·        Количество затраченного времени на создание сети.

·        Затраты на приобретение комплектующих для данной сети:

1.      Компьютеры

.        Сетевое оборудование

.        Розетки

.        Короб для провода

·        Проверка работоспособности

1.     
Теоретическая составляющая

Так как задача курсовой работы - расчёт себестоимости и формирование плановой калькуляции затрат по выполнению работ для создания одноранговой ЛВС, то необходимо рассмотреть следующие экономические термины и определения:

Себестоимость промышленной продукции - это текущие затраты предприятия на производство и реализацию продукции, выраженные в денежной форме. В России действует постановление правительства о составе затрат по производству и реализации продукции (работ, услуг, включаемых в их себестоимость) и о порядке формирования финансовых результатов, учитываемых при налогообложении прибыли.

Наибольший удельный вес во всех расходах предприятия занимают затраты на производство продукции. Они называются издержками производства. К ним относятся выраженные в стоимостной форме:

·потребляемые в процессе производства средства и предметы труда (амортизация основных

·фондов; сырье, материалы, топливо, энергия и т.п.);

·используемые в производстве покупные изделия и полуфабрикаты, а также производственные услуги других предприятий;

- часть стоимости живого труда (заработная плата).

Многие из этих затрат можно планировать и учитывать в натуральном выражении, т.е. в кг., метрах, тоннах, штуках и т.п. Однако, для полного подсчета всех расходов, их приводят к единому измерению и представляют в денежном выражении (рублях).

Предприятия имеют также затраты по реализации (сбыту) продукции, т.е. осуществляют непроизводственные (коммерческие) расходы (транспортировка, упаковка, хранение, реклама и т.п.).

Вместе производственная себестоимость и коммерческие расходы составляют полную (коммерческую) себестоимость продукции.

Не все издержки предприятия включают в себестоимость выпускаемой продукции. Сюда, например, не относятся расходы непромышленных подразделений предприятия (поликлиника, столовая, клуб и т.п.).

Все затраты предприятия можно разбить на прямые и косвенные:

Прямые затраты - это затраты непосредственно связанные с производством продукции (например затраты на материалы, полуфабрикаты, заработную плату производственного персонала, расходы по содержанию и эксплуатации оборудования и т.п.).

Эти затраты могут быть непосредственно отнесены на конкретный вид изделий и распределены между ними на основании технико-экономических расчетов (например, по нормативам).

Косвенные затраты - это затраты, которые не могут быть прямо распределены по объектам отнесения затрат (например, административные и управленческие расходы, расходы на освещение, отопление, страхование имущества и т.п.)

При учете и анализе затрат на производство важное значение имеет связь затрат с объемом производства. По этому признаку выделяют постоянные и переменные издержки предприятия.

Постоянные издержки (затраты) остаются неизменными и осуществляются независимо от объема производства. Постоянные издержки иначе называются накладные расходы (арендная плата, оплата административно-управленческого персонала и т.п.).

Переменные издержки (затраты) находятся в прямо пропорциональной зависимости от объема производства (затраты на сырье, материалы, оплата производственного персонала и т.п.), и труда, качество управления, маркетинга и т.п. Она выступает как исходная база формирования цен. а также оказывает непосредственное влияние на величину прибыли и уровень рентабельности.

Понятие износа и амортизации основных средств. Нормы амортизации. Виды амортизационной политики предприятия. Метод (способ) уменьшаемого остатка. Способ списания стоимости пропорционально объему продукции. Сравнительный анализ методов амортизации.

Цена - количество денег, в обмен на которое продавец готов передать (продать), а покупатель согласен получить (купить) единицу товара. По сути, цена является коэффициентом обмена конкретного товара на деньги. Величину соотношений при обмене товаров определяет их стоимость.

Виды цен:

По характеру обслуживаемого оборота:

- оптовые цены, по которым предприятия реализуют произведенную продукцию другим предприятиям или сбытовым организациям, обычно крупными партиями (оптом);

закупочные цены, по которым государство покупает продукцию у сельскохозяйственных предприятий или у фермеров; по характеру сделок их также можно отнести к оптовым ценам;

розничные цены, по которым торговые организации реализуют продукцию населению;

- сметная стоимость - цена, по которой оплачивается продукция строительства (здания, сооружения);

цены и тарифы на услуги. Тарифы могут относиться к сфере оптовой торговли (грузовые транспортные тарифы) и розничной (пассажирские тарифы).

По степени регулирования:

- свободные цены, устанавливаемые производителями продукции и услуг на основе спроса и предложения в соответствии с конъюнктурой рынка;

- фиксированные цены или тарифы, устанавливаемые на определенном уровне;

регулируемые цены - цены, в отношении которых соответствующие государственные органы управления устанавливают какиелибо ограничения. Как правило, регулируемые цены устанавливаются государством на продукты, товары и тарифы социального назначения, допускаются изменения цен в некоторых пределах. Регулирование цен может также осуществляться с помощью установления предельного уровня рентабельности или предельных коэффициентов изменения цен;

- гарантированные цены. Их поддержание обеспечивается государственным финансированием. В России с 1995 г. введены в действие гарантированные цены на сельскохозяйственную продукцию, закупаемую для государственных нужд (в федеральный и региональный фонды), в тех случаях, когда свободные рыночные цены оказываются ниже уровня гарантированных;

- рекомендуемые цены устанавливаются на важнейшие виды продукции; такая практика имеет место в некоторых западных странах. Если цена превышает рекомендуемый уровень, может применяться прогрессивное налогообложение прибыли, полученной от реализации товаров по ценам, превышающим рекомендуемые;

- залоговые цены выполняют функции минимальных гарантированных цен. Например, они защищают фермеров в США в условиях, когда рыночные фермерские цены падают ниже их уровня, гарантируя минимальный уровень дохода от реализации сельскохозяйственной продукции на рынке.

По времени действия:

- твердые (постоянные) цены, которые не меняются в течение всего срока поставки продукции по данному соглашению или контракту, обычно в договоре делается оговорка: «цена твердая, изменению не подлежит»;

- текущие цены, по которым осуществляется поставка продукции в данный период времени. Они могут меняться в рамках одного контракта и отражают состояние рынка;

скользящие цены устанавливаются на изделия, требующие длительного срока изготовления. В договоре устанавливаются исходная цена И порядок внесения поправок в случае изменения ценообразующнх факторов (издержек производства) за период, необходимый для их изготовления. Эти виды цен широко используются в международной торговле. Возможен вариант, когда установлен предел в процентах к договорной цене, в рамках которого пересмотр цены не производится; этот предел называется лимитом скольжения. Например, цена может быть пересмотрена не более чем на 20% от общей суммы затрат. Скольжение также может распространяться не на всю сумму затрат, а на определенные виды затрат, указанные в договоре;

сезонные цены действуют в течение определен ного периода времени;

ступенчатые цены представляют собой ряд последовательно снижающихся (повышающихся) цен на продукцию в заранее обусловленные моменты времени по предварительно определенной шкале.

По формам продаж:

контрактные (договорные) цены устанавливаются по соглашению сторон;

биржевые котировки - уровни цен товаров, реализуемых через биржу; биржа способствует формированию оптовых рыночных цен на массовые качественно однородные стандартизированные товары;

цены ярмарок и выставок (часто льготные);

аукционные цены отражают ход продаж на аукционе; могут быть открытые аукционные торги и тендерные;

трансфертные цены применяются при реализации продукции между подразделениями одной фирмы или разных фирм, входящих в одну ассоциацию.

По степени обоснованности:

базисные цены применяются в качестве исходной базы при установлении цены на аналогичные изделия; они представляют собой фиксированные в соглашениях или прейскурантах цены товаров с определенными качественными параметрами;

справочные цены публикуются в каталогах, прейскурантах, экономических журналах, справочниках и в специальных экономических обзорах; они используются в качестве ориентировочной информации при установлении цен на аналогичную продукцию пли при анализе уровней и соотношений цен;

- прейскурантные цены представляют собой вид справочной цены и публикуются в прейскурантах фирм-продавцов;

расчетные цены применяются в договорах, контрактах на нестандартное оборудование, производимое обычно по индивидуальным заказам;

- фактическая цена сделки учитывает применение различных надбавок и скидок к базисной цене.

По условиям поставки и продажи, в том числе по способу отражения транспортных расходов:

цена-нетто - цена на месте купли-продажи;

цена-брутто (фактурная цена) определяется с учетом условий купли-продажи (вида и размера потоварных налогов, наличия и уровня скидок, вида «франко» и условий страховки).

Прибыль в торговле является денежным выражением стоимости прибавочного продукта, созданного производительным трудом работников торговли, которые заняты продолжением процесса производства в сфере товарного обращения, а также прибавочного продукта, созданного трудом работников других отраслей народного хозяйства (промышленности, сельского хозяйства, транспорта и др.) и направляемого в торговлю через механизм цен на товары, тарифов, торговых надбавок как плата за реализацию товаров (продукции, услуг).

Прибылью для торговли служит разница между продажной ценой товаров и ценой их приобретения, включая издержки обращения. Прибыль торгового предприятия является денежным выражением части прибавочного продукта, характеризующего результаты их коммерческо-финансовой деятельности.

Различают несколько прибылей: прибыль от реализации, балансовая и чистая прибыль.

Прибыль от реализации - это разность между валовым доходом и затратами на реализацию товаров (издержками обращения). Прибыль является результирующим показателем хозяйственной деятельности торговой фирмы.

Балансовая прибыль - сумма прибыли предприятия от реализации продукции и доходов от других видов деятельности. Балансовая прибыль, как конечный финансовый результат выявляется на основании бухгалтерского учета.

Чистая прибыль - представляет собой разницу между балансовой прибылью и суммами отчислений и платежей в бюджеты разных уровней.

Рентабельность - это относительный показатель уровня доходности бизнеса. Показатели рентабельности характеризуют эффективность работы предприятия в целом, доходность различных направлений деятельности (производственной, коммерческой, инвестиционной и т.д.). Они более полно, чем прибыль, отражают окончательные результаты хозяйствования, потому что их величина показывает соотношение эффекта с наличными или потребленными ресурсами. Их используют для оценки деятельности предприятия и как инструмент инвестиционной политике и ценообразовании.

2.     
Практическая составляющая

Исходя из того, что создается ЛВС, а это предполагает собой структуру изделия, т.е. вид готовой продукции то я буду рассчитывать плановую калькуляцию затрат.

Расчёт показателей себестоимости изготовления изделия или выполнение работ по теме и формирование плановой калькуляции затрат. В своем курсовом проекте я выбираю плановую калькуляцию, создам локальную сеть кабинета, рассчитаю затраты на покупку и наладку оборудования, трудозатраты рабочего и заработную плату.

За основу взята плановая калькуляция затрат изготовления единицы продукции в производственных подразделениях ФГОУ СПО Петровский колледж.

Таблица 1. Плановая калькуляция затрат на изготовление единицы продукции

Наименование статей расходов

Обозначение

Сумма, %

1

Основание и вспомогательные материалы комплектующие

3 м

Согласно Расчёта

2

Основная заработная плата

3По

« -» -»

3

Дополнительная заработная плата

3Пд

30% 3По

4

Отчисление страховых взносов налога

ОСВ

26% (3По + 3Пд)

5

Цеховые расходы, ВСЕГО:

ЦР

133% 3По


Амортизация и текущий ремонт зданий и сооружений

3А.З.

41% ЦР


Эксплуатация зданий (отопление, освещение, водоснабжение и т.д.)

3 э.з.

37% ЦР


Заработная плата административно-управленческого персонала

3 ПАУП

20% ЦР


Прочие расходы

ПРцр

2% ЦР

6

Ремонт, содержание и эксплуатация оборудования, ВСЕГО:

3 р.с.о.

112% 3По


Амортизация оборудования, оснастки

3А.О.

61% 3 р.с.о.


Эксплуатация оборудования (силовая электроэнергия, текущий ремонт и т.д.)

3э.о.

30% 3 р.с.о.


Износ режущего и мерительного инструмента, приспособлений и т.д.

3и.и.п.

8% 3 р.с.о.


Прочие расходы

ПРр.с.о.

1% 3 р.с.о.

7

Общие расходы (охрана труда, экология и т.д.)

ОР

5% 3По

8

Себестоимость изготовления единицы продукции (работ)

С

Сумма статей с 1 по 7

9

Внепроизводственные расходы

3в.п.

1% 3По

10

Общая себестоимость

Со

Сумма 8 и 9 статей

11

Плановая прибыль

П

15…20% Со

12

Оптовая цена

Цоит

Сумма статей 10 и 11

13

Налог на добавленную стоимость

НДС

18% Цоит

14

Отпускная цена

Ц

Сумма статей 12 и 13


За основу взята плановая калькуляция затрат изготовления единицы продукции в производственных подразделениях ФГОУ СПО Петровский колледж.

Далее все расчеты идут постатейно.

2.1 Расчёт затрат на основные, вспомогательные материалы, комплектующие (Зм)

Задачи:

·        Осмотр помещения.

·        Произведение замеров.

·        Составление списка основных и вспомогательных материалов и комплектующих

·        Расчет затрат на приобретение основных и вспомогательных материалов и комплектующих.

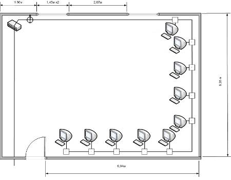
Схема кабинета, в котором производится создание сети.

Условные обозначения

 - Рабочая станция - 10 шт.                                                - Витая пара - 270 м

   - Активное сетевое оборудование - 1 шт.     

 - Подъём кабеля

Покупка сетевого оборудования, ПК и все что с ним связано, в компьютерном магазине «КЕЙ», поиск производил в интернете. Покупка розеток, короба для провода на рынке «Компьютерный рай».

В Таблицах 2 и 3 я распишу комплектующие и вспомогательные материалы для создания беспроводной сети, подсчитаю суммарные затраты на все.

Таблица 2. Затраты на комплектующие материалы

Наименование комплектующих

Единицы измерения

Кол-во

Цена (шт.)

Общая стоимость (руб.)

Кабель Витая пара (AESP Cat 5e BC5E-4)

Метры

270

7

1890

Короб

шт.

18 (35 м)

96

1728

Сетевая розетка RJ-45

шт.

10

99

990

Патч-корд

шт.

10

75

750

HUB D-Link DES-1024D

шт.

1

950

950

Патч-панели 19», 1U, 24 порта RJ-45, категория 5e

шт.

1

907

907

Кронштейн для коммутатора

шт.

1

200

200

ИТОГО




7415


Таблица 3. Затраты на основные материалы

Наименование материала

Обозначение

Единицы измерения

Стоимость Единицы Измерения (руб.)

Всего единиц

Общая Стоимость (руб.)

1

Процессор:

Intel® Pentium™ Dual Core E2200 2.2 ГГц

Штук

2140

10

21400

2

Память:

DDR2 1024Mb 667MHz

Штук

799

10

7990

3

Винчестер:

160 Гб Western Digital WD1601ABYS

Штук

2190

10

21900

4

CD-ROM:

DVD RW Asus DRW-1814BLT

Штук

1290

10

12900

5

Видеокарта:

256Mb GeForce 8400GS

Штук

1390

10

13900

6

Звуковая карта: Интегрированная

-

Штук

-

-

-

7

Материнская плата:

MB ASRock 4Core1600-GLAN

Штук

2190

10

21900

8

Клавиатура:

Genius KB-06X/06XE

Штук

290

10

2900

9

Мышь:

Genius XScroll Optical

Штук

230

10

2300

10

Монитор:

15» Acer AL-1517As

Штук

5300

10

53000


ИТОГО





158190



Суммарные затраты на Комплектующие, вспомогательные и основные материалы.

Зм = ЗКВМ + Зо.м.= Зм =7415+158190=165605 руб. где

Зм - суммарные затраты

ЗКВМ - затраты на комплектующие и вспомогательные материалы (руб.)

Зо.м. - затраты на основные материалы.

2.2 Расчёт основной заработной платы. (З По)

Для расчета основной заработной платы понадобится:

.        Перечень выполняемых работ.

.        Время на выполнение работ.

.        Часовые тарифные ставки и сдельные расценки.

Для выполнения всех работ по нам понадобится один техник, работающий на окладе 25000 руб.

Т.к. на всех операциях работает техник, рассчитаем условную часовую тарифную ставку специалиста.

Для определения заработной платы необходимо сформировать последовательный перечень с нормами по времени:

·        Подключение и настройка коммутатора при подключении абонента в процесс пользования услугой доступа в сеть. Время на выполнение работ -1,4 часа.

·        Добавление одного ПК в сеть. Время - 0,3 часа.

·        Сборка ПК. Время - 1,0 часа.

·        Установка розетки. Время - 0,1 часа.

·        Установка короба. Время - 0,1 часа.

·        Установка кронштейна под точку доступа. Время - 0,3 часа.

Месячный оклад техника по техническому обслуживанию средств:

Ом=25000 руб. в месяц

Оклад техника за день работы:

ОД =Ом / Тм = 25000/22 = 1136 руб., где

ОД - оклад за день работы (руб.)

Ом - оклад в месяц (руб.)

Тм - число рабочих дней в месяц (среднее за год)

Продолжительность работы инженера по обслуживанию ВТ в день:

часов = Тg, где

Тg - продолжительность рабочего дня.

Определяет стоимость 1 нормо / часа работы специалиста (целостную ЧТС)

ЧТСусл = Оg/ Tg = 1136/8 = 142 руб.

ti = 19,4 часов

Общая стоимость работы специалиста составила (условная сдельная расценка).

ЗПо = ЧТСусл*ti = 142*16,9 = 2399,8 руб.

Основная заработная плата рабочих и специалистов по созданию сети и добавлению ПК в ее. (Выполнение объема работ).

В первом пункте установка и наладка сетевого оборудования и введение в использование одного ПК, далее ввод в работу оставшихся 9 ПК, в третьем пункте указывается количество ПК которые надо собрать(10), далее установка 11-ти розеток (11 т.к. 12 ПК и сетевое оборудование), короб для провода и кронштейн 1 для точки доступа.

Таблица 5. Расчет сдельных расценок на выполнение всех видов работ

Наименование операции согласно технологическому процессу

Профессия рабочего (специалиста)

Норма времени tn(час) на операцию

ЧТС (руб.)

СР (руб.)

1

Подключение и настройка комутатора при подключении абонента в процесс пользования услугой доступа в сеть.

Техник по ТО СВТ

1,4

142

198,8

2

Добавление одного ПК в сеть

Техник по ТО СВТ

0,3

142

42,6

3

Сборка ПК

Техник по ТО СВТ

1,0

142

142

4

Установка розетки

Техник по ТО СВТ

0,1

142

14,2

5

Установка короба

Техник по ТО СВТ

0,1

142

14,2

6

Установка кронштейна под точку доступа

Техник по ТО СВТ

0,3

142

42,6

ИТОГО:




454,4


Рассчитаем заработную плату окончательно:

Количество затраченных часов на всю работу:

tn1+(tn2*ПК)+(tn3*ПК)+(tn4*Р)+(tn5*КО)+(tn6*КР)==1,4+(0,3*10)+(1,0*10)+(0,1*11)+(0,1*11)+(0,3*1)= 16,9 (час)

tn1: tn - Норма времени на операцию; 1 - № операции в таблице 5

ПК - Количество компьютеров

Р - Количество розеток

КО - под установку Короба (22/2) - нам необходимо 22 метра, при установке это составит 11 штук т.к. короб продается по одному метру

КР - Кронштейн под HUB

СР=СР1+СР2+СР3+СР4+СР5+СР6=198,8+42,6+142+14,4+14,2+42,6=384 руб.

Количество затраченных часов на всю работу:

2.3 Расчёт дополнительной заработной платы (ЗПд)

Согласно калькуляции затрат дополнительная заработная плата составляет 30% от основной заработной платы.

ЗПд = 30% ЗПо = 0,3 * 2399,8 = 719,94 руб.

.4 Отчисления страховых взносов

С 01.01.2010 года единый социальный налог(ЕСН) заменяется отчислениями страховых взносов в социальные фонды(ОСВ).

В 2010 году суммарная ставка страховых взносов составит от 26% от суммы основной и дополнительной заработной платы работника.

ОСВ =26%(3По+3Пд)=0,26*(3По+3Пд)=0,26*(2399,8 +826,2)=838,552 руб.

Причём страховые взносы распределяются следующим образом:

- Страховые взносы в пенсионный фонд (СВПФ) составляет 20% от суммы основной и дополнительной заработной платы работника.

СВПФ=20%(3По+3Пд)=0,20*(3По+3Пд)=0,20*(2399,8 +826,2)=645,2 руб.

- Страховые взносы в фонд социального страхования (СВФСС) составляет 2,9% от суммы основной и дополнительной заработной платы работника.

СВФСС=2,9%(3По+3Пд)=0,029*(3По+3Пд)=0,029*(2399,8 +826,2)=93,554 руб.

- Страховые взносы в федеральный фонд обязательного медецинского страхования (СВФФОМС) составляет 1,1% от суммы основной и дополнительной заработной платы работника

СВФФОМС=1,1%(3По+3Пд)=0,011 (3По+3Пд)=0,011*(2399,8 +826,2)=39,38 руб.

- Страховые взносы в территориальный фонд обязательного медицинского страхования (СВТФОМС) составляет 2% от суммы основной и дополнительной заработной платы работника

СВТФОМС=2%(3По+3Пд)=0,02*(3По+3Пд)=0,02*(2399,8 +826,2)=64,52 руб.

В плановую калькуляцию затрат включаются суммарные отчисления страховых взносов(ОСВ).

.5 Расчёт цеховых расходов (ЦР)

Суммарные цеховые расходы ЦР, включающие ряд составляющих расходов (ЗЭ.З., ЗА.З., ЗАУП, ПРЦР.) определены в калькуляции, как 133% от основной заработной платы.

ЦР = 133% ЗПо = 1,33*ЗПо =1,33*2399,8 =3191,73 руб.

Причём составляющие цеховых расходов можно рассчитать:

- Затраты на эксплуатацию зданий (отопление, освещение, водоснабжение и т.д.) (Зэ.з.)

Зэ.з. = 37% ЦР = 0,37*ЦР = 0,37*3191,73 =1180,94 руб.

Затраты на амортизацию и текущий ремонт зданий и сооружений А.з.):

ЗА.з. = 41% ЦР = 0,41*ЦР = 0,41*3191,73 =1308,60 руб.

- Затраты на заработную плату административно - управленческого персонала (Зауп):

ЗАУП = 20% ЦР = 0,20*ЦР = 0,20*3191,73 =638,34 руб.

- Прочие расходы включения в статью цеховые расходы (ПРцр):

ПРцр = 20% ЦР = 0,02*ЦР = 0,02*3191,73 =63,83 руб.

ЦР = ЗА.З. э.з.АУП+ПРцр=1308,60 +1180,94 +638,34 +63,83 =3191,73 руб.

2.6 Расчёт затрат на ремонт, содержание и эксплуатацию оборудования и оснастки. (Зр.с.о)


Суммарные затраты на ремонт, содержание и эксплуатацию оборудования составят:

Зр.с.о. = 112% ЗПо = 1,12 * ЗПо = 1,12*2399,8 =2687,77 руб.

Причём составляющие этой статьи так же рассчитываются:

Затраты на амортизацию оборудования и оснастки (З А.О.)

З А.О. = 61% З р.с.о. = 0,61 * Зр.с.о. = 0,61*2687,77 =1639,53 руб.

- Затарты на эксплуатацию оборудования (силовая электроэнергия, текущий ремонт и т.д.) (З э.о.)

З Э.О. = 30% З р.с.о. = 0,3 * З р.с.о. = 0,3*2687,77 =806,33 руб.

Затраты на износ мерительного и другого инструмента и приспособлений (З и.и.п.)

З и.и.п. = 8% З р.с.о. = 0,08 * Зр.с.о. = 0,08*2687,77 =215,02 руб.

- Прочие затраты (расходы) по этой статье (ПРрсо)

ПРр.с.о. = 1% Зр.с.о. = 0,01 * Зр.с.о. = 0,01*2687,77 =26,87 руб.

Зр.с.о. = ЗА.О. + З э.о. + З и.и.п. + ПР р.с.о.=1639,53 +806,33 +215,02 +26,87 =2687,75 руб.

 

.7 Расчёт общих расходов (ОР).


Это расходы связанные с обеспечением охраны труда, экологической безопасности и т.д.

ОР = 5% ЗПо = 0,05 * ЗПо = 0,05*2399,8 =119,99 руб.

2.8 Расчёт себестоимости изготовления единицы продукции (объёма работ) (С)

Себестоимость рассчитывается как сумма затрат по статьям 1-7.

С = Зм + ЗПо + ЗПд + ОСВ + ЦР + З р.с.о. + ОР=165605+2399,8 +719,64+838,552+3191,73 +2687,77 +119,99 =175562,48 руб.

2.9 Расчёт внепроизводственных расходов (З в.п.)


Они составляют 1% от величины основной заработной платы.

З в.п. = 1% ЗПо = 0,01 ЗПо = 0,01*2399,8 =23,99 руб.

2.10 Расчёт общей себестоимости изготовления единицы продукции (объёма Работ) (Со)


Она составляет сумму затрат по статьям 8 и 9.

Со = С + З в.п. = 175562,48 +23,99 =175586,47 руб.

2.11 Расчёт плановой прибыли (П)


Величина плановой прибыли при изготовлении единицы продукции (объёма работ 15% от величины общей себестоимости.

П = 15% СО = 0,15*СО = 0,15*175586,47 =26337,97 руб.

2.12 Расчёт оптовой цены на единицу продукции (объема работ)


Она составляет сумму величины общей себестоимости и плановой прибыли.

Цоит = Со + П = 175586,47 +26337,97 =201924,44 руб.

2.13 Расчёт налога на добавленную стоимость (НДС)


Согласно закона на 01.01.2010 года она составляет 18% от величины оптовой цены.

НДС = 18% Цопт = 0,18*Цоит = 0,18*201924,44 =36346,39 руб.

2.14 Расчёт отпускной цены (Ц) на продукцию


Она равняется сумме значений по статьям 12 и 13.

Ц = Цоит + НДС = 201924,44 +36346,39 =238270,83 руб.

Сформулируем итоговую калькуляцию затрат:

Таблица 6. Плановая калькуляция затрат на изготовление единицы продукции.

Наименование статей расходов

Обозначение

Сумма руб.

1

Основание и вспомогательные материалы комплектующие

3 м

165605

2

Основная заработная плата

3По

2399,8

3

Дополнительная заработная плата

3Пд

719,94

4

Отчисление страховых взносов налога

ОСВ

838,55

5

Цеховые расходы, ВСЕГО:

ЦР

3191,73


Амортизация и текущий ремонт зданий и сооружений

3А.З.

1308,60


Эксплуатация зданий (отопление, освещение, водоснабжение и т.д.)

3 э.з.

1180,94


Заработная плата административно-управленческого персонала

3 ПАУП

638,34


Прочие расходы

ПРцр

63,83

6

Ремонт, содержание и эксплуатация оборудования, ВСЕГО:

3 р.с.о.

2687,77


Амортизация оборудования, оснастки

3А.О.

1639,53


Эксплуатация оборудования (силовая электроэнергия, текущий ремонт и т.д.)

3э.о.

806,33


Износ режущего и мерительного инструмента, приспособлений и т.д.

3и.и.п.

215,02


Прочие расходы

ПРр.с.о.

26,87

7

Общие расходы (охрана труда, экология и т.д.)

ОР

119,99

8

Себестоимость изготовления единицы продукции (работ)

С

175562,48

9

Внепроизводственные расходы

3в.п.

23,99

10

Общая себестоимость

Со

175586,47

11

Плановая прибыль

П

26337,97

12

Оптовая цена

Цоит

201924,44

13

Налог на добавленную стоимость

НДС

36346,39

14

Отпускная цена

Ц

238270,83


2.15 Расчёт рентабельности продукции (Рп)


Рентабельность продукции представляет собой отношение величины возможной прибыли к величине общей себестоимости.

Рп = П / Со * 100% = 26337,97 /175586,47 *100=15%

Рп - рентабельность продукции, %

П - плановая прибыль (руб.)

Со - общая себестоимость продукции (руб.)

Заключение

В данному курсовом проекте я:

·        Произвел осмотр помещения, сделал замеры для приобретения комплектующих и материалов.

·        Рассчитал заработную плату мастера по созданию беспроводной локальной сети.

·        Количество затраченного времени на создание сети.

·        Затраты на приобретение комплектующих для данной сети:

1.      Компьютеры

.        Сетевое оборудование

.        Розетки

.        Короб для провода

·        Произвел проверку работоспособности.

Список используемой литературы

1. Экономика предприятия: Учебник для ВуЗов, изд. 2 / Под ред. Проф. В.Я. Горфинкеля, проф. В.А. Швандара. М.: Банки и биржи, ЮНИТИ, 2008.

2.      Экономика предприятия: Учебник для ВУЗов/под ред. Поф. В.Я. Горфинкеля, проф. Е.М. Купрякова. М.: Банки и биржи, ЮНИТИ, 2011.

.        Взяты данные из курсового проекта по дисциплине - Компьютерные сети.

.        http://www.key.ru/

5.      http://www.ric-computers.ru/