Материал: Расчет сборной плиты пустотного настила по первой и второй группам предельных состояний

Внимание! Если размещение файла нарушает Ваши авторские права, то обязательно сообщите нам

Расчет сборной плиты пустотного настила по первой и второй группам предельных состояний

Содержание

Введение

1. Расчёт плиты пустотного настила по первой группе предельных состояний

.1 Определение воздействий и эффектов воздействий на плиту

.1.1 Исходные данные

.1.2 Определение нагрузок и усилий в плите

.1.3 Геометрические размеры многопустотной плиты перекрытия

.2 Проверки предельных состояний несущей способности

.2.1 Подбор продольного армирования и проверка несущей способности нормальных сечений

.2.2 Расчёт прочности плиты по наклонным сечениям

.2.3 Назначение величины предварительного напряжения в напрягаемой арматуре

.2.4 Расчёт потерь предварительного напряжения

.2.5 Проверки предельных состояний в стадии изготовления и монтажа

.3 Проверки предельных состояний эксплуатационной пригодности

.3.1 Расчёт по образованию нормальных трещин

.3.2 Расчёт плиты по деформациям (расчет прогиба плиты)

. Расчет и конструирование монолитной железобетонной балочной плиты

.1 Исходные данные

.2 Определение предварительных размеров поперечных сечений элементов для выбранного оптимального варианта перекрытия

.3 Компановка монолитного перекрытия

2.4     Подсчёт нагрузок на плиту

2.5    Определение внутренних усилий в плите

2.6 Расчёт прочности нормальных и наклонных сечений

.7       Конструирование плиты

3. Расчёт второстепенной балки

3.1 Исходные данные

3.2 Определение расчётных пролётов

3.3 Подсчет нагрузок на второстепенную балку

.4 Построение эпюр изгибающих моментов и поперечных сил

.5 Расчет прочности нормальных сечений и подбор арматуры в расчетных сечениях балки

3.6 Расчёт прочности наклонных сечений по поперечной силе

.7 Построение эпюры материалов и определение мест обрывов арматуры второстепенной балки

.8 Определение длины анкеровки обрываемых стержней

Заключение

Список использованных источников

Введение

Железобетон применяется в строительстве сравнительно недавно - в конце XIX века, когда началось интенсивное развитие промышленности и строительство фабрик, заводов, многоэтажных зданий, транспортных сооружений и т.д. Благодаря своим качествам этот материал стал наиболее массово применяемым в строительстве XX века.

В начальный период применения железобетона его армирование стержнями и профильным железом осуществлялись без должного понимания роли и места расположения металла в сечении элементов.

В 1861 г. французский инженер Куанье сделал большой шаг вперед, подытожив в своей книге опыт по изготовлению различных железобетонных конструкций (балок, сводов, труб и т.д.) для строительства жилых домов, указав, что металлические стержни работают с бетоном совместно, тем самым, повышая несущую способность перекрытий.

В 70-х-80-х годах в разных странах был внесен ряд предложении по армированию железобетонных плит, но только в начале восьмидесятых годов XIX столетия сложилось определенное представление о возможностях и перспективах применения железобетона. Особенностью монолитной системы было то, что бетон был с крупным заполнителем, а армирование выполнялось вязаными каркасами с замкнутыми хомутами.

Таким образом, к концу XIX столетия были сформулированы и закреплены в первых нормативных документах основные предпосылки практического метода расчета железобетонных конструкций по допускаемым напряжениям.

В основу методики расчета изгибаемых балок была положена гипотеза Навье, и использовался так называемый переходный коэффициент «т».

Дальнейшее совершенствование методики расчета сечений по стадии разрушения и переход к единой методике расчета обычных и предварительно напряженных конструкций по расчетным предельным состояниям впервые был объединен в одном нормативном документе СНиП П.В.1-62. В дальнейшем в разработанных под руководством А.А. Гвоздева нормах СНиП П-21-75 были установлены две группы предельных состояний железобетонных конструкций: по несущей способности и по пригодности к нормальной эксплуатации.

Переход к расчету железобетонных конструкций по предельным состояниям, массовое применение сборного обычного и предварительно напряженного железобетона высокой степени унификации и типизации. Этот этап характерен ещё и массовой химизацией бетона, что существенно повысило его качество и эффективность и снизило энергоемкость.

Наряду с большими достижениями были и определенные просчеты в выборе стратегии развития индустрии массового сборного железобетона. Яркий пример - это ликвидация в начале 60-х годов стендов системы Шеффер (Германия) безопалубочного формования предварительно напряженных многопустотных плит и последующий переход на изготовление массового сборного железобетона по поточно-агрегатной технологии с использованием электротермического способа натяжения стержневой арматуры.

Так же положительным примером международного сотрудничества является разработка в рамках Европейского союза единых норм проектирования строительных конструкций, в том числе бетонных и железобетонных (Еврокод-2).

1. Расчёт плиты пустотного настила по первой группе предельных состояний

.1      Определение воздействий и эффектов воздействий на плиту

.1.1 Исходные данные

Размер сборной плиты в плане: b = 1200 мм; l = 6000 мм.

Расчётные характеристики бетона (табл.6.1, [1]):

,  - нормативное сопротивление бетона осевому сжатию;

 - частный коэффициент безопасности для бетона;

 - расчётное сопротивление бетона сжатию для железобетонных и предварительно напряжённых конструкций;

 - нормативное сопротивление бетона осевому растяжению;

 - расчётное сопротивление бетона растяжению для железобетонных и предварительно напряжённых конструкций;

 - средняя прочность на осевое растяжение;

 - модуль упругости бетона.

 - модуль упругости стали.

Расчётные характеристики арматуры (табл.6.5, п.6.2.1.4 [1]):

1.      Класс ненапрягаемой арматуры S500:

- , нормативное сопротивление арматуры;

, расчётное сопротивление арматуры для ф6-22 мм;

, расчётное сопротивление арматуры для ф4-5 мм, ф25-40 мм;

, расчётное сопротивление поперечной арматуры ф4-5 мм, ф25-40 мм;

, расчётное сопротивление поперечной арматуры ф6-22 мм.

2.      Класс напрягаемой (стержневой) арматуры S800:

- , нормативное сопротивление арматуры;

, расчётное сопротивление арматуры.

.1.2 Определение нагрузок и усилий в плите

Нагрузки, действующие на плиту, представим в табличной форме:

Таблица 1.1-Нормативные нагрузки конструкции перекрытия

Вид нагрузки

Нормативное значение, кН/м2

Нормативное значение, кН/м

  Расчётное значение, кН/м


Постоянные нагрузки

Мозаичное покрытие  0,720,8641,351,166





Стяжка из цементно-песчаного раствора М150   0,720,8641,351,166





Плита пустотного настила ,

25·(1,19·0,22 - 6·3,14·(0,159/2)²)/1,19=2,9993 3,61,354,86





Итого

4,44

5,328


7,192

Переменная полезная нагрузка (по заданию)

9

10,8

1,5

16,2

Итого

13,44

16,128


23,392


В соответствии с CНБ 5.03.01-02 расчёт конструкции по предельным состояниям выполняется при действии и сочетаний нагрузок:

расчёт по первой группе предельных состояний на основное сочетание нагрузок

расчёт по второй группе предельных состояний на действие частного сочетания (расчёт по образованию и раскрытию трещин) и на действие практически постоянного сочетания нагрузок (расчёт по деформациям).

Основные сочетания нагрузок:

1. , (А 4, [1])

где - частный коэффициент безопасности для постоянных нагрузок, ; (табл. А 2, [1])

- i-тая постоянная нагрузка;

- частный коэффициент безопасности для переменных нагрузок, ; (табл. А 2, [1])

-j-тая переменная нагрузка;

- коэффициент сочетания переменной нагрузки, =0,7; (табл. А1, п.1.2[1])

 

. , (А5, [1])

где  - коэффициент уменьшения для неблагоприятно действующей постоянной нагрузки.

 

Нормативное (редкое) сочетание нагрузок (А.8, [1]):

Частное сочетание нагрузок (А.6, [1]):


Практически постоянное сочетание нагрузок:


Рассмотрим расчётную схему многопустотной плиты перекрытия:

Рисунок 1.1- Расчётная схема плиты


Рассчитываем усилие, действующее в расчётной схеме плиты для соответствующего сочетания нагрузок:

Усилия в расчётной схеме при действии:

основного сочетания нагрузок:


Рисунок 1.2 - Эпюры M,V расчётной схемы плиты.

- нормативного сочетания нагрузок:


частного сочетания нагрузок:


практически постоянного сочетания нагрузок:


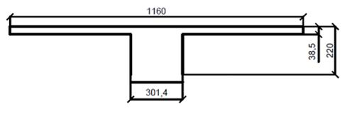
.1.3 Геометрические размеры многопустотной плиты перекрытия

Рисунок 1.3 - Геометрические размеры многопустотной плиты перекрытия

Приведенное сечение плиты имеет следующий вид:

Рисунок 1.4 - Приведенное сечение плиты

Принимаем  

где с - расстояние от наиболее растянутой грани до сечения до центра тяжести рассматриваемой арматуры.

Приведение сечения плиты к двутавровому осуществляется путем вычитания суммы ширины квадратных пустот, эквивалентных по площади круглым (а=0,9 d). Поэтому рабочая высота сечения:


Минимальный размер защитного слоя продольной арматуры согласно классу по условиям эксплуатации ХС1=25мм. В проекте принимаем а=32 мм.

Расчетное сечение для расчета по I-ой группе предельных состояний будет иметь следующий вид:

Рисунок 1.5 - Расчетное сечение для расчета по I-ой группе предельных состояний

.2 Проверки предельных состояний несущей способности

1.2.1 Подбор продольного армирования и проверка несущей способности нормальных сечений



Следовательно, граница сжатой зоны проходит в сжатой полке, и сечение рассматривается, как прямоугольное.


-коэффициент, зависящий от вида бетона,


Принимаем 6 стержней 14 S800

Рисунок 1.6 - Схема армирования многопустотной плиты перекрытия

 

 

 


Следовательно, граница сжатой зоны проходит в сжатой полке, и сечение рассматривается, как прямоугольное.

.2.2 Расчёт прочности плиты по наклонным сечениям

При расчёте принимаем bw=301,4 мм;

Поперечная сила от действия основной комбинации нагрузок Vsd=65,154 кН;

Рабочая высота плиты

Поперечная сила, воспринимаемая железобетонным элементом без поперечного армирования:

,

где , принимаем k=2

 принимаем

(здесь знак “-” указывает на сжатие).

Принимаем

Так как , то поперечная сила может быть воспринята бетоном и поперечная арматура устанавливается конструктивно.

Принимаем ненапрягаемую арматуру S500  с шагом 100 мм.

Рисунок 1.7 - Схема установки конструктивной арматуры в многопустотной плите перекрытия

Рисунок 1.8 - Плоский каркас в многопустотной плите перекрытия

1.2.3 Назначение величины предварительного напряжения в напрягаемой арматуре

Начальная величина предварительного напряжения стержневой арматуры  устанавливается из следующих условий (9.2, [1]):

,

где  - начальное контролируемое предварительное напряжение арматуры, Мпа;

Р - максимально допустимое отклонение значения предварительного напряжения, вызванное технологическими причинами.

При электро-термическом способе натяжения отклонение Р принимают равным:


 

где  - расстояние между наружными гранями упоров;

- нормативное сопротивление напрягаемой арматуры; для арматуры S800

Принимаем

.2.4 Расчёт потерь предварительного напряжения

Усилия предварительного напряжения не остаётся постоянным во времени в результате потерь, начинающихся фактически с момента натяжения арматуры и развивающиеся в течении всего периода эксплуатации конструкции.

Потери от релаксации напряжений арматуры:

Для стержневой арматуры при электротермическом способе натяжения (9.9, [1]):


Потери от температурного перепада (9.10, [1]):


Потери, вызванные деформациями стальной формы:


Потери от деформации анкеров (п.9.12, [1]):


 

∆l - обжатие опрессованных шайб, смятие высаживаемых головок

Потери предварительного напряжении в результате упругих деформаций бетона(при натяжении на упоры):

Значение потерь при натяжении на упоры (9.19, [1]):

,

где α - отношение модулей упругости стали и бетона;


 - для бетона класса С 22/27,5 (табл.6.2, [1])

- коэффициент продольного напряжения;


Zcp - расстояние от центра тяжести сечения до центра тяжести арматуры;


Zc-расстояние от нижней грани до центра тяжести приведенного сечения;


Sc - статический момент приведенного сечения относительно нижней грани ребра;


Ас-площадь бетонного сечения плиты;


 - усилие предварительного напряжения с учетом потерь, реализованных к моменту обжатия бетона;


Усилие предварительного обжатия бетона с учётом технологических потерь:

 (9.21, [1])


Данное условие выполняется.

Эксплуатационные потери (реологические потери)

Потери, происходящие после обжатия бетона, определяются по формуле:


где -потери предварительного напряжения в напрягаемой арматуре, вызванные ползучестью, усадкой и длительной релаксацией напряжений в арматуре.

 (9.25, [1])

Для получения величины  вычисляем последовательно:

1.      ожидаемые относительные деформации усадки бетона к моменту времени t=100 суток


здесь -физическая часть усадки при высыхании бетона;


-предельное значение части усадки бетона, ‰; определяется по таблице 6.3. :

при RH=80%;

-функция развития усадки бетона во времени, определяемая по формуле:

h0 - приведенный размер поперечного сечения образца, см,


U - внешний периметр сечения плиты, см,


Величину части усадки бетона  следует определять по формуле:

 (6.10, [1])

 (6.12, [1])

 (6.11, [1])


t - время, сут.

По рисунку 6.1.  принимаем Ф(t,t0)=2,0;

2.      напряжение в бетоне на уровне центра тяжести напрягаемой арматуры от практически постоянной комбинации нагрузок:


3.      начальное напряжение в бетоне на уровне центра тяжести напрягаемой арматуры от усилия предварительного обжатия:


4.      изменение напряжений в напрягаемой арматуре, вызванные длительной релаксацией напряжений в арматурной стали . Для этого:

- вычисляем напряжения в арматуре, вызванные натяжением (с учётом первых потерь) и от действия практически постоянной комбинации нагрузок:



- принимая по табл. 9.2.  в зависимости  для третьего релаксационного класса арматуры (стержневая арматура) потери предварительного напряжения составляют 5,5%.

получаем  

Среднее значение усилия предварительного обжатия с учётом всех потерь:


Условие выполняется.

1.2.5 Проверки предельных состояний в стадии изготовления и монтажа

В стадии изготовления и монтажа в качестве внешней нагрузки на плиту действует усилие в напрягаемой арматуре  (усилие обжатия бетона) и ее собственный вес. Петли расположены в продольных ребрах на расстоянии 0,2 от всей длины от торцов плиты, в этих же местах должны укладываться прокладки при перевозке плиты и ее складировании.

Рисунок 1.9 - Расчётная схема плиты в стадии изготовления и монтажа

Собственный вес плиты найдём по формуле:


где k - коэффициент динамичности при подъёме, k=1,4;

Находим опорный момент (момент от собственного веса плиты):



Рисунок 1.10 - Расчётное сечение для расчёта прочности плиты при монтаже

Подбираем арматуру для верхней части сечения плиты (сжатая зона):

Находим коэффициент αm:


Условие  выполняется, следовательно находим требуемую площадь армирования для рабочей арматуры класса S500:


Исходя из полученного значения требуемой площади сечения продольной арматуры по сортаменту подбираем 4 Ø 5 S500 площадью 0,79 см2.

Находим высоту сжатой зоны бетона xeff:


Находим усилие, воспринимаемое арматурой в растянутой зоне бетона:


Проверяем выполнение условия:

 

Условие выполняется, следовательно принятой арматуры достаточно для обеспечения прочности сечения плиты в местах установки монтажных петель.

Для средних стандартных условий хранения конструкции среднюю прочность бетона на сжатие в возрасте t, сут, fcm(t) допускается определять по формуле:


Где fcm(t) - средняя прочность бетона на сжатие в возрасте t (> 28 сут);- средняя прочность бетона на сжатие в возрасте 28 сут, принимаемая по таблице 6.1[1];- средняя прочность бетона на сжатие после окончания тепловой обработки в момент времени tp < t (для предварительно напряженных конструкций - средняя передаточная прочность);- возраст бетона (> 28 сут.);1 = 1 сут.;- возраст бетона, сут, при окончании тепловой обработки (для предварительно напряжённых конструкций - при передаче усилия обжатия на бетон).

0,75∙25,35=19,013˃4,781, следовательно напряжение обжатия в бетоне меньше предельного на 10 суток.

.3 Проверки предельных состояний эксплуатационной пригодности

.3.1 Расчёт плиты по образованию нормальных трещин

Определяем момент трещинообразования:


Следовательно, трещины в стадии эксплуатации не образуются, и расчёт по раскрытию трещин производить не требуется.

Здесь rinf =0,9 - коэффициент, определяющий нижний предел усилия предварительного обжатия.

Статический момент приведённого сечения относительно нижней грани ребра:


Расстояние от нижней грани до центра тяжести приведённого сечения:


Момент сопротивления сечения относительно нижней грани:


Приведенная площадь сечения плиты:


.3.2 Расчёт плиты по деформациям (расчёт прогиба плиты)

Расчет по деформациям железобетонной плиты производят по условию:

 - прогиб ж/б конструкции от действия внешней нагрузки, мм;

 - предельно допустимый прогиб.

Из табл.19, [5] принимаем =30 мм (для L=6,0 м);

Изгибная жёсткость плиты для сечений без трещин в растянутой зоне, как при эксплуатации, так и при предварительном обжатии:


 - изгибная жесткость предварительно напряженного элемента;

 (8.28, [1])

-эффективный модуль упругости бетона;

Усилие предварительного обжатия при нижнем пределе его значения:


-коэффициент, определяющий нижний предел значения усилия предварительного обжатия; =0,9;

Прогиб плиты в середине пролёта:


- коэффициент зависит от схемы приложенной нагрузки =5/48;

- коэффициент зависит от трассировки напрягаемого стержня=1/8 (для стержней с прямолинейной осью трассы);

Допустимый прогиб αlim=30мм>7,95мм

Таким образом, максимальный прогиб в середине пролёта плиты не превышает допустимый.

2. Расчет и конструирование монолитной железобетонной балочной плиты

.1 Исходные данные

По размерам плиты и второстепенной балки необходимо определить армирование и выполнить конструирование монолитной железобетонной балочной плиты перекрытия используя бетон класса  при действии переменной нагрузки

Для армирования плиты применяются сварные рулонные сетки из арматурной обыкновенно проволоки диаметром 3, 4, 5 мм класса S500.

Требуется определить наиболее выгодный (рациональный) вариант перекрытия. Здание имеет размеры в плане 21x36м и сетку колонн в осях 7x6м.

План балочного перекрытия приведён на рисунке 2.1

Рисунок 2.1 - Компоновка балочного перекрытия

2.2 Определение предварительных размеров поперечных сечений элементов для выбранного оптимального варианта перекрытия

Толщину плиты принимаем hs =80 мм.

Высоту второстепенной балки подбираем по конструктивным требованиям из условий жесткости:

hsb =(1/12 ¸ 1/20) lsb = (1/12 ¸ 1/20). 6000 = (500 ¸ 300) мм.

Принимая во внимание требования градации размеров балок, окончательно принимаем hsb=450 мм.

Ширина балки bsb = (0.3 ¸ 0.5) hsb = (0.3 ¸ 0.5)*450 = (135 ¸ 225) мм.

Принимаем bsb = 200 мм.

Высоту главной балки подбираем по конструктивным требованиям из условий жесткости:

hsb =(1/8 ¸ 1/15) lmb = (1/8 ¸ 1/15)*7000 = (875 ¸ 467) мм.

Окончательно принимаем hsb=600 мм.

Ширина главной балки bmb= (0.3 ¸ 0.5) hmb = (0.3 ¸ 0.5). 600 = (180 ¸ 300) мм.

Принимаем bmb = 300 мм.

Принимаем:

- опирание плиты ts=120мм;

опирание второстепенной балки tsb=250мм;

опирание главной балки tmb=380мм;

Сторона квадратного сечения колонны


где lmb - пролет главной балки, м;

gs, gsb, gmb - постоянные расчетные распределенные нагрузки соответственно на плиту, второстепенную и главную балки;

qs, qsb, qmb - переменные (полезные) расчетные распределенные нагрузки соответственно на плиту, второстепенную и главную балки;

Hf l - высота этажа, принимаем равной 3,6 м;

nf l - количество этажей, имеющих колонны. nf l =3

(gmb + qmb) - полная расчетная нагрузка на главную балку

 (3.8,[3])

=384,2 мм

+0,07·1·1,75·7²=232,273 кн/м

Принимаем с учетом градации размеров сечения колонны hc=bc=400 мм

.3 Компановка монолитного перекрытия

К расчету принимаем схему расположения элементов монолитного ребристого перекрытия представленную на рисунке.

Определение расчетных пролетов.

Статический расчет плиты выполняем, рассматривая ее как многопролетную неразрезную балку шириной b=1000 мм.

Привязку кирпичных стен принимаем a=250 мм.

Крайний расчетный пролет (см. рис. 2.2):

 

Средний расчетный пролет:

 

Размер поля плиты в длинном направлении для крайних пролётов:


Для средних пролётов:


Так как , следовательно, плита рассчитывается как балочная.

Рисунок 2.2 - К определению расчетных пролетов монолитной плиты.

2.4 Подсчет нагрузок на плиту


Принимаем следующую конструкцию пола перекрытия: плиточный пол, цементно-песчаная стяжка.

Нагрузку на 1 м2 поверхности плиты в кПа приведена в таблице 2.1.

Таблица 2.1 - Подсчет нагрузок на 1 м2 перекрытия

Вид Нагрузки

Нормативная нагрузка, кПа

Расчетные нагрузки, кПа


1. Постоянные - g

 - Плитка «Грес» ГОСТ 6787-2001, t=10мм, ρ = =20кН/м3

0,20

1,35

0,27

 - Стяжка из цементно-песчаного раствора М150  мм, ρ=18 кН/м30,631,350,851




- собственный вес плиты   мм, ρ=25 кН/м32,01,352,70




Итого g:

2,83


3,821

1. Переменная - q - по заданию

9

1,5

13,5

 ИТОГО:

11,83


17,321


.5 Определение внутренних усилий в плите

Плита рассматривается как неразрезная многопролетная балка, загруженная равномерно распределенной нагрузкой (g+q). Моменты в таких конструкциях определяют с учетом перераспределения усилий вследствие развития пластических деформаций по готовым формулам.

Расчетная схема плиты и эпюры внутренних усилий представлены на рис. 2.3.

При ширине полосы bs = 100 см или 1 м нагрузка, приходящаяся на 1 м2 плиты, равна по величине нагрузке на 1 м погонный полосы, таким образом расчетная нагрузка на плиту: постоянная нагрузка g = 3,821 кН/м, переменная - q = 13,5 кН/м.

Для определения усилий в плите определяем максимальное расчётное сочетание действующих нагрузок:

Первое основное сочетание:


Второе основное сочетание:


К дальнейшим расчётам принимаем второе основное сочетание.

Тогда изгибающий момент в характерных сечениях монолитной плиты перекрытия будет равен:

в крайних пролётах и на крайних опорах при непрерывном армировании.


в случае раздельного армирования на первой промежуточной опоре.


в средних пролётах и на средних пролётах для плит не окаймлённых по контуру балками независимо от способа армирования.


в средних пролётах и на средних опорах, где плиты окаймлены по всему контуру монолитно связанными с ними балками.


Поперечные силы:


2.6 Расчет прочности нормальных и наклонных сечений

Для бетона класса C22/27,5 (табл.1, [1]) принимаем нормативные и подсчитанные расчетные характеристики бетона:   - частный коэффициент безопасности для бетона;

  


По таблице 6.5 [2] для бетона С22/27,5 находим ecu = 3,5 ‰, по таблице 6.5 wc = 0,810, k2 = 0,416, .

Расчетные характеристики для арматуры класса S500 (ф6-22 мм) (см. табл.6.5, [1]):   

Размеры сечения, принятые для расчета:

мм; мм;

где: сmin - защитный слой бетона арматуры плиты, принимаемый по таблице 6.5 [1];

Æ - предполагаемый максимальный диаметр арматуры плиты.

Рабочая высота сечения плиты:  мм.

Расчет требуемой площади арматуры в расчетных сечениях плиты выполняем по алгоритму стр. 24[3], а результаты расчета сводим в таблицу.

‰,


в крайних пролётах и на крайних опорах при непрерывном армировании:


в средних пролётах и на средних пролётах для плит не окаймлённых по контуру балками независимо от способа армирования:


в случае раздельного армирования на первой промежуточной опоре:


в средних пролётах и на средних опорах, где плиты окаймлены по всему контуру монолитно связанными с ними балками:

Результаты расчётов требуемой арматуры в расчётных сечениях плиты сводим в таблицу 2.2:

Таблица 2.2 - Требуемая площадь сечения арматуры на 1м погонный плиты.

Сечение

М,Площадь сечения,см2










Расчётная класса S500

Минимальная

1. Крайний пролёт и крайняя опора при непрерывном армировании

3,245

50

0,088

0,073

1,551

0,5

2. Первая промежуточная опора при раздельном армировании

2,55

50

0,069

0,072

1,214


3. Средние пролёты и средние опоры без учёта окаймления балками

2,55

50

0,07

0,073

1, 23


4. Средние пролёты и средние опоры с учётом окаймления балками

2,012

50

0,055

0,057

0,96



Расчет прочности железобетонных элементов на действие поперечных сил производится из условия  где - расчетная поперечная сила от внешних воздействий;  - поперечная сила, воспринимаемая железобетонным элементом без поперечного армирования:

Но не менее


Здесь

 принимаем k=2,

  принимаем


 - при отсутствии осевого усилия (сжимающей силы).

Принимаем

Поскольку условие выполняется, расчёт поперечной арматуры не производится и согласно конструктивным требованиям постановка поперечной арматуры не требуется.

.7 Конструирование плиты

Рассматриваем вариант армирования сварными рулонными сетками с продольной рабочей арматурой.

Между главными балками можно уложить 2, 3 или 4 сетки с нахлестом распределительных стержней 50 - 100 мм, причем ширина сеток принимается не менее 2 м.

При 2-х сетках необходима ширина сетки:

мм;

где: с - минимальная длина нахлестки распределительных стержней;

с1 - минимальная длина свободных концов распределительных стержней.

Можно принять между главными балками 2 сетки с шириной В=2940 мм с действительным нахлёстом:

мм.

При 3-х сетках необходимая ширина сетки:

мм;

Можно принять сетки шириной B = 2350мм с действительной величиной нахлёста:

с = 50+(2350-1953,3)=446,7 мм.

При 4-х сетках необходимая ширина сетки:

 ;

Можно принять сетки шириной B=1540 с величиной нахлёста:

c = 50 + (1540-1482,5)=107,5 мм.

Окончательно принимаем вариант с 2-мя сетками с наименьшей длиной нахлёста с = 95 мм.

Ширина дополнительной сетки в этом случае принимается такой, чтобы смогла перекрыть первый пролет, плюс 1/4 величины второго пролета плиты:


Принимаем сетки шириной В=2350 мм.

Над главными балками устанавливаются конструктивно верхние сетки, площадь сечений поперечных рабочих стержней которых должна составлять не менее 1/3 площади пролетной арматуры плиты:

Длину рабочих стержней (ширину сетки) назначают из условия, что расстояние от грани балки в каждую сторону было не менее 1/4 пролета плиты. Над главными балками ширина сеток равна:

.

Принимаем сетки шириной равной B = 1220 мм.

Подбор арматуры и конструирование сеток начинаем со средних пролетов и выполняем в табличной форме (табл. 2.3).

Условное обозначение марки сеток:

;

где: с1 - ширина свободных концов продольных стержней; с2 - то же поперечных стержней;

В - ширина сетки; L - длина сетки.

Таблица 2.3 - Армирование плиты рулонными сетками

Сечение

Ast, см2 треб. по расчету

Принятое армирование

Марка сетки



рабочей

Ast, см2 (прин.)

распределительной




Æ

шаг


Æ

Шаг


1.Средняя плита и опора без учета окаймления

1,214

4

100

1,26

3

350

2. Средние плиты и опоры с учетом окаймления

0,96

5

200

0,98

3

350

3. Крайняя плита и опора при непрерывном армировании без учета окаймления:  - основная сетка: -дополнительная сетка:  1,551-1,26=0,291               1,551 0,291          4 3          100 200 1,26 0,35              3             350        

 

4. Крайняя плита и опора с учетом окаймления:  - основная сетка: -дополнительная сетка:  1,551-0,98=0,571

1,551 0,571

5 4

200 150

0,98 0,84

3

350

5.Над главными балками:  1/3 x 1,551=0,517          0,517     3             125         0,57        3             350        



Определение массы сеток сводим в таблицу 2. 4.

Таблица 2.4 - Определение массы сеток

Марка Сетки

Количество

Масса

Масса сетки


продольной арматуры

Поперечной арматуры

Продольной арматуры

поперечной арматуры


 306055,929,0064,92






 156043,189,0052,18






 12183,652,165,81






 16188,602,1610,76






 116011,624,1015,72







3. Расчёт второстепенной балки

.1 Исходные данные

Размеры второстепенной балки:  (размеры в осях), bsb = 200 мм, hsb =450мм, шаг второстепенных балок ssb = ls = 1,75 м. Размеры сечения главной балки: bmb = 300 мм, hmb =600мм.

Характеристики бетона класса C22/27,5 см. выше в пункте 2.6.

Расчетные характеристики для продольной арматуры класса S500 см. выше в пункте 2.6.

.2 Определение расчетных пролетов

Расчетный пролет для крайних пролетов:

 

Расчетный пролет для средних пролетов:

 

Рисунок 3.1 - К определению расчётных пролётов второстепенной балки.

3.3 Подсчет нагрузок на второстепенную балку

Второстепенная балка работает совместно с прилегающими к ней участками плиты, то есть расчетное сечение будет тавровое с шириной полки в сжатой зоне  равной расстоянию между осями (шагу) второстепенных балок, то есть .

Определение погонной нагрузки в кН/м на второстепенную балку сведем в таблицу 3.1.

Таблица 3.1 - Определение погонной нагрузки.

Вид Нагрузки

Нормативная нагрузка, кПа

Расчетные нагрузки, кПа


1. Постоянные - g

 - Плитка «Грес» ГОСТ 6787-2001, t=10мм, ρ = =20кН/м3

0,35

1,35

0,473

 - Стяжка из цементно-песчаного раствора М150  мм, ρ=18 кН/м31,1031,351,488




- собственный вес плиты   мм, ρ=25 кН/м33,51.354,725




- от собственного веса второстипенной балки: 1,851,352,498




Итого g:

6,803


9,184

1. Переменная - q - по заданию q·1.75

 15,75

 1,5

 23,625


Нагрузки:

Для первого основного сочетания:

Для второго сочетания:

3.4 Построение эпюр изгибающих моментов и поперечных сил

Статический расчет второстепенной балки выполняется с учетом перераспределения усилий в стадии предельного равновесия конструкции.

Рисунок 3.2 - Расчётная схема второстепенной балки.

Ординаты огибающей эпюры изгибающих моментов определяются с помощью рисунка 5-1 и таблицы 5-1 приложения 5 [3]. Величины коэффициентов  для эпюр положительных моментов крайних и средних пролетов приведены на рисунке, а для эпюры отрицательных моментов приведены в таблице приложения в зависимости от величины отношения:

Величина ординат огибающей эпюры моментов определяется по формуле:


Результаты расчета сведены в таблицу 3.2.

Таблица 3.2 - Величины ординат эпюры изгибающих моментов

№ пролёта

N точек

В долях пролёта

β

Изгибающий момент






+Msd

-Msd


1

0,2

0,065



66,961



2

0.4

0,09


31,431·

 92,715


1

max

0,425

0,091


·5,725²=

93,746



3

0,075


=1030,171

77,263



4

0,8

0,02



20,603



5

1


0,0715



73,657


6

0,2

0,018

0,037

31,431·5,7²=

18,381

37,784


7

0,4

0,058

0,019

=1021,193

59,229

19,403

2

max

0,5

0,0625



63,825



8

0,6

0,058

0,017


59,229

17,360


9

0,8

0,018

0,031


18,381

31,657


10

1


0,0625



63,825


11

0,2

0,018

0,029

31,431·5,7²=

18,381

29,615


12

0,4

0,058

0,013

=1021,193

59,229

13,276

3

max

0,5

0,0625



63,825



13

0,6

0,058

0,013


59,229

13,276


14

0,8

0,018

0,029


18,381

29,615


15

1


0,0625



63,825


3.5 Расчет прочности нормальных сечений и подбор арматуры в расчетных сечениях балки

Определение требуемой площади сечения арматуры при действии положительного момента ведем как для таврового сечения с полкой в сжатой зоне. При действии отрицательного момента (полка) находится в растянутой зоне, следовательно, расчетное сечение будет прямоугольным.

Размеры сечения принятые к расчету:

 мм; мм;  мм;  мм;

Принимаем величину мм в пролете и мм на опоре, тогда:

мм;

мм;

Определяем положение нейтральной оси при расчете тавровых сечений (сечений в пролете). Нейтральная ось находится в полке если:


условие выполняется.


Для бетона класса  по табл. 6.5, [2]:

 

Для арматуры класса S500 по табл. 6.5 и п.6.2.1.4 [1]:


В пролёте 1 (нижняя арматура):

, ,


В пролёте 2 (нижняя арматура):

, ,



В опорных сечениях действуют отрицательные моменты, плита расположена в растянутой зоне, поэтому сечения балки рассматриваются как прямоугольные с шириной b=0,2 м.

На опоре В (верхняя арматура):

, ,



В пролёте 2 (верхняя арматура):

, ,

На опоре С (верхняя арматура):

, ,

Результаты расчетов и подбор арматуры в расчетных сечениях сводим в таблицу 3.3.

Таблица 3.3 - Определение площади сечения рабочей арматуры второстепенной балки.

Положение сечения            Расположение Арматуры              М, kН м                Расчетное сечение           ,

см2,

см2Принятая арматура





1 пролет Нижняя 93,746   0,0212 0,9895,255,34214

212






 

1 пролет

Верхняя

-

Монтажная конструктивная арматура

2,26

212

Опора В  Верхняя               -73,657  0,15690,91164,645,34214

212






2 пролет Нижняя 63,825   0,01440,9933,564,21214

12






 

2 пролет

Верхняя

-18,382

0,0364

0,981

1,04

2,26

212

Опора С  Верхняя               -63,825  0,1360,92443,674,21214

12







.6 Расчет прочности наклонных сечений по поперечной силе

Для второстепенной балки поперечное армирование принимается в виде вязаных открытых или закрытых хомутов (открытые в пролете, закрытые на опорах). Хомуты выполняются из арматуры класса S500. Диаметр хомутов в вязаных каркасах определяется расчетом и по конструктивным требованиям должен быть на менее: при мм мм, и при мм мм (для сварных каркасов диаметр назначается из условия свариваемости). Поперечное армирование необходимо устанавливать по расчёту в приопорном участке  и в пролёте .

Опора B слева:


Определим поперечную силу, которую может воспринять бетон по формуле:

 но не менее


 - расчётное сопротивление бетона при растяжении;

Так как  - необходимо установить поперечное армирование в приопорном участке.

Шаг стержней поперечного армирования:

Принимаем

Площадь поперечной арматуры в сечении.


 - минимальный коэффициент поперечного армирования, который для класса арматуры S500


Принимаем 2Ǿ6

Определяем угол наклона сжатых подкосов , соблюдая условие




 - прочность обеспечена

Проверим следующее условие


Где  - коэффициент, учитывающий снижение прочности бетона при сжатии в условиях растяжения и равен для тяжёлого бетона


Условие выполняется.

В средних частях пролётов шаг поперечных стержней должен назначаться независимо от высоты сечения не более 3/4h и не более 30см. Принимаем S=30см, что не превышает 3/4h=3/4*45=33,75см.

.7 Построение эпюры материалов и определение мест обрывов арматуры второстепенной балки

Минимальный диаметр рабочих стержней для вязаных каркасов принимается равным 12 мм, максимальный - 32 мм.

При размещении стержней в сечении должны также соблюдаться следующие требования:

а) расстояние в свету между стержнями должно быть не менее диаметра и не менее 25 мм при нижнем расположении арматуры и не менее 30 мм - при верхнем, что обеспечивается обычно при назначении количества стержней в сечении в зависимости от его ширины;

б) расстояние в свету между рядами при двухрядовом расположении должно быть не менее диаметра и не менее 25 мм;

в) стержни с отгибами рекомендуется располагать на расстоянии не менее 2d от боковых граней элемента, где d - диаметр отгибаемых стержней;

г) толщина защитного слоя у нижней и верхней граней принимается не менее величины указанной в табл.11.4, [1] в зависимости от класса по условию эксплуатации. В нашем случае по условию эксплуатации ХС1 принимаем 35 мм. Толщина защитного слоя у боковых граней должна быть во всех случаях не менее 25 мм для продольной арматуры и не менее 15 мм - для хомутов.

Несущая способность сечений балки по арматуре определяется по формуле:


где: d - уточненное значение рабочей высоты сечения

h - табличный коэффициент, определяемый по выражению:

,

где: ξ - коэффициент, определяемый по выражению:

Для бетона класса  по табл. 6.5, [2]:  

 При построении эпюры материалов считают, что обрываемый стержень необходимо завести за точку теоретического обрыва.

Из точек теоретического обрыва проводят перпендикулярные линии до пересечения их с горизонтальными линиями  и окончательно строят эпюру материалов, которая имеет ступенчатый вид в местах теоретического обрыва стержней, и наклонный вид в местах отгиба стержней. Следует иметь в виду, что начало каждого отгиба в растянутой зоне располагают на расстоянии от точки теоретического обрыва не меньше, чем . С целью восприятия изгибающего момента от возможного частичного защемления балки на стене в первом пролете арматуру не обрывают, а отгибают на крайнюю опору. Начало отгиба располагают на расстоянии 60 мм, от внутренней грани стены.

Из точек теоретического обрыва обрываемых стержней по горизонтали откладывают длину анкеровки W, и окончательно устанавливают место фактического обрыва стержня.

Расчеты, необходимые для построения эпюры материалов выполняем в табличной форме (таблица 3.4.)

Таблица 3.4. Вычисление ординат эпюры материалов для продольной арматуры.

Количество и диаметр стержней

Уточненная высота сечения d=hsb-с,см

Ast, см2

fyd, МПа

, кН м



1-ый пролёт(нижняя арматура, b=bf=175см, c=3,5 см)

2Æ14+2Æ12 2Æ12

41,5 41,5

5,34 2,26

435 435

0,027 0,0114

0,9865 0,9943

95,099 40,566

1-ый пролёт (верхняя арматура b=bsb=20 см, c=3,5 см)

2Æ12

41,5

2,26

435

0,10

0.95

38,76

Опорная арматура. Опора А (верхняя арматура b=bsb=20 см, c=5,0 см)

2Æ14+2Æ12

40,0

5,34

435

0,244

0,878

81,564

Опорная арматура. Опора В (верхняя арматура, b=bsb=20 см, c=5,0 см)

2Æ12+2Æ14 2Æ12

40,0 40,0

5,34 2,26

435 435

0,244 0,103

0,878 0,948

81,564 37,291

2-ой пролёт (нижняя арматура b= bf’=175см, c=3,5 см)

2Æ14 1Æ12 1Æ12

41,5 41,5

4,21 1,13

435 435

0,021 0,006

0,989 0,997

75,195 20,34

2-ой пролёт (верхняя арматура b=bsb=20 см, c=3,5 см)

2Æ12

41,5

2,26

435

0,0997

0,950

38,759

Опорная арматура. Опора С (верхняя арматура b=bsb=20 см, c=5,0 см

2Æ14 1Æ12 1Æ12

40,0 40,0

4,21 1,13

435 435

0,193 0,052

0,904 0,974

66,198 19,154


3.8 Определение длины анкеровки обрываемых стержней

Анкеровка растянутой арматуры

Сечение А-А; Г-Г.

В сечении обрываются стержни Æ 14 мм класса S500. Требуемая площадь сечения арматуры Аs,red =2.26 см 2 (2Æ 12), принятая Аs,prov =3,078 см 2 (2Æ 14). По табл. 14 [3] . Длина анкеровки обрываемых стержней определяем по формуле (*)[3]


 

Значения остальных параметров составляют:

 


Æ=15*14=210мм

Окончательно принимаем lbd1=510мм.

Сечение Б-Б

В сечении обрываются стержни Æ 12 мм класса S500. Требуемая площадь сечения арматуры Аs,red =2,26 см 2 (2Æ 12), принятая -Аs,prov =5,34 см 2 (2Æ 12+2Æ 14). По табл. 14 [3] .

 

 

Значения остальных параметров составляют:

15Æ=15*12=180мм

Окончательно принимаем lbd2=470мм.

Сечение В-В, Ж-Ж, Е-Е.

В сечении обрываются стержни Æ 12 мм класса S500. Требуемая площадь сечения арматуры Аs,red =3,078 см 2 (2Æ 14), принятая Аs,prov =4,21 см 2 (2Æ 14+1Æ 12). По табл. 14 [3] .

 

Значения остальных параметров составляют:


Æ=15*12=180мм

Окончательно принимаем lbd1=470мм.

Опора С слева и справа

Сечение Д-Д, И-И

В сечении обрываются стержни Æ 14 мм класса S500. Требуемая площадь сечения арматуры Аs,red =2,26 см 2 (2Æ 12), принятая -Аs,prov =3,078 см 2 (2Æ 14). По табл. 14 [3] .

 

 

Значения остальных параметров составляют:


Æ=15*14=210мм

Окончательно принимаем lbd4=510мм.

Анкеровка сжатой арматуры

Опора В. Из первого пролета нижние стержни Æ 12 мм класса S500 (lb=540 мм.) должны заходить за грань опоры (грань главной балки) на длину зоны анкеровки равной: lbd,an1= 162 мм, что равно 0,3 lb=0,3*540= 162мм

Min=250мм

Из второго пролета нижние стержни Æ 14 мм класса S500 (lb=540 мм.) должны заходить за грань опоры (грань главной балки) на длину зоны анкеровки равной:

lbd,an2= 162 мм, что равно 0,3 lb=162 мм

Min=250мм.

Опора C.

Из второго и третьего пролета нижние стержни Æ 14 мм класса S500 (lb=540 мм.) должны заходить за грань опоры (грань главной балки) на длину зоны анкеровки равной: lbd,an3= 162мм,

,3 lb=162 мм

Min=250мм

Окончательно принимаем lb=250 мм

Анкеровка арматуры на свободной опоре.

Длина анкеровки продольной арматуры Æ 14 мм на свободной опоре должна быть не более 5 Æ=5*14=70мм

Анкеровка продольной арматуры обеспечивается.

Соединение стержневой арматуры.

Верхняя пролетная арматура Æ 14 мм в крайних и средних пролетах стыкуется с верхней опорной арматурой Æ 14 мм. Стыкуемые стержни необходимо завести друг на друга (нахлест) на величину длины анкеровки большего диаметра, т.е.

{0,6· lb=0,6·44·14=370 мм или 15·Æ=15·14=210мм

Принимаем lb=380 мм

Заключение

железобетонный балочный плита анкеровка

В данной курсовой работе выполнили расчет сборной плиты пустотного настила по первой и второй группам предельных состояний, расчет плиты монолитного балочного перекрытия и второстепенной балки, а также выполнили рабочие чертежи плиты пустотного настила и монолитного балочного перекрытия.

Список используемых источников

1.      Бетонные и железобетонные конструкции. СНБ 5.03.01-02 (с изменениями №1-№5). Официальное издание. Разработаны Техническим комитетом по техническому нормированию и стандартизации в строительстве «Бетонные и железобетонные конструкции, бетоны и растворы» (ТКС 08) при РУП «Стройтехнорм».

.        Железобетонные конструкции. Основы теории расчёта и конструирования //Учебное пособие для студентов строительной специальности. Под редакцией профессора Т.М. Петцольда и профессора В.В. Тура. - Брест, БГТУ, 2003.-380 с. с илл.

.        Расчёт и конструирование монолитного ж/б ребристого перекрытия с балочными плитами //Методические указания для студентов строительной специальности 70 02 01 дневной и заочной формы обучения. Под редакцией Малиновского В.Н. Шалобыты Н.Н. - Брест, БГТУ, 2010

.        ТКП EN 1992-1-1-2009 (02250). Еврокод 2. Проектирование ж/б конструкций. Часть 1-1. Общие правила и правила для зданий. - Министерство архитектуры и строительства Республики Беларусь. Минск 2010

.        СНиП 2.01.07-85* Нагрузки и воздействия.