Материал: Расчет редуктора для ленточного конвейера

Внимание! Если размещение файла нарушает Ваши авторские права, то обязательно сообщите нам

Условия пригодности заготовок колес выполняются

4. Предварительный расчёт валов

Ведущий вал.

Рисунок 4.1 Конструкция ведущего вала.

Выполняется расчёт выходного конца.

 (4.1)

где Т1 - вращающий момент на ведущем валу;

кр] - допускаемое напряжение кручения для стали 40ХН, [τкр]=25 МПа

1вых=0,75×dэл; (4.2)

где dэл=28 мм - диаметр выходного конца электродвигателя.1вых=0,75×28=22 мм

Принимается d1вых=22 мм.

Рассчитывается диаметр под подшипник

1п=d1вых+3 мм (4.3)

1п=22+3=25 мм

Принимаем d1п=25 мм.

Рассчитывается диаметр под шестерню

=d1п+5 мм=25+5=30 мм

На ведущий вал выбираются подшипники 205 средний серии.

d=25 мм; D=52 мм; В=15 мм; r=1,5 мм; С=14 кН; С0=6,95кН. (4.4)

Ведомый вал

Рисунок 4.2 Конструкция ведомого вала.

Выполняется расчёт выходного конца ведомого вала.

 (4.5)

Принимается окончательно d2вых=30 мм.

Рассчитывается диаметр под подшипники.

2п=d2вых+5 (4.6)

2п=30+5=35 мм

Принимаем окончательный d2п=35мм

Рассчитывается диаметр под колесо.

=d2п+5 (4.7)

=35+5=40 мм

На ведомый вал выбираются подшипники 207 средней серии.

d=35 мм; D=72мм; В=17 мм; r=2 мм; С=25,5 кН; С0=13,7 кН.

5. Конструирование зубчатых колёс

Шестерня выполняется по размерам: d1=48 мм; dа1=51 мм; b1=33 мм.

Колесо кованое: d2=143 мм; dа2=146 мм; b2=30 мм.

Рисунок 5.1 Конструкция колеса

Рассчитывается диаметр ступицы

ст=1,6×dк2 (5.1)

где dст - диаметр ступицы, мм;к2 - диаметр вала под колесо, мм.ст=1,6×40=64 мм

Рассчитывается длина ступицы

ст=(1,2÷1,5)×dк2 (5.2)

где lст - длина ступицы, мм.ст=(1,2÷1,5)×40 = 48÷60мм

Принимается lст=50 мм.

Рассчитывается толщина обода

δ0=(2,5÷4)×mп (5.3)

где δ0 - толщина обода, мм;

тп - модуль зубьев, мм.

δ0=(2,5÷4)×1,5 = 3,75÷6 мм

Принимается δо=8 мм.

Рассчитывается толщина диска

С=0,3×b2 (5.4)

где С - толщина диска, мм;2 - ширина венца, мм.

С=0,3×30=9 мм

Определяется диаметр центровой окружности

отв=0,5×(D0+dст) (5.5)

где Dотв - диаметр центровой окружности, мм;0 - внутренний диаметр обода, мм;ст - диаметр ступицы, мм.отв=0,5×(124+64)=95 мм

Определяется диаметр отверстий

 (5.6)

где dотв - диаметр отверстий, мм.

Принимается dотв=20 мм.

6. Конструирование корпуса редуктора

Рассчитывается толщина стенок корпуса и крышки редуктора.

δ=0,025×аω+1 (6.1)

где δ - толщина стенок корпуса, мм;

аω - межосевое расстояние,мм.

δ=0,025×95+1=3,375 мм

По таблице 10.2 [1] толщина стенок корпуса и крышки δ≥6мм. Окончательно принимается δ=6мм.

δ1=0,02×аω+1 (6.2)

где δ1 - толщина стенок крышки, мм.

δ1=0,02×95+1=2,9мм

Окончательно принимается δ1=6 мм.

Рассчитывается толщина верхнего пояса (фланца) корпуса.

b=1,5×δ (6.3)

где b - толщина верхнего пояса, мм;

δ - толщина стенок корпуса, мм.

b=1,5×6=9 мм

Рассчитывается толщина нижнего пояса (фланца) крышки корпуса.1=1,5×δ1 (6.4)

где b1 - толщина нижнего пояса, мм;

δ1 - толщина стенок крышки, мм.1=1,5×6=9мм

Рассчитывается толщина нижнего пояса корпуса.

р=2,35×δ (6.5)

где р - толщина нижнего пояса корпуса, мм;

р=2,35×9=21,15мм

Принимается толщина нижнего пояса корпуса р=15 мм.

Рассчитывается толщина рёбер основания корпуса.

т=(0,8÷1)×δ (6.6)

где т - толщина рёбер, мм;

δ - толщина стенок корпуса, мм.

т=(0,8÷1)×6=5,1÷6 мм.

Определяется диаметр фундаментных болтов.

1=(0,03÷0,036)×аw+12 (6.7)

1=(0,03÷0,36)×95+12=14,85÷15,42 мм

Принимаются болты с резьбой М16

Определяется диаметр болтов крепящих крышку к корпусу у подшипников.

2=(0,7÷0,75)×d1 (6.8)

d2=(0,7÷0,75)×16=11,2÷12 мм.

Принимаются болты с резьбой М12.

Определяется диаметр болтов соединяющих крышку с корпусом.

3=(0,5÷0,6)×d1 (6.9)

3=(0,5÷0,6)×16=8÷9,6 мм

Принимаются болты с резьбой М10.

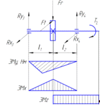
7. Выбор и расчёт подшипников на долговечность

Ведущий вал.[2]

Из предыдущих расчётов имеется Ft=1752H; Fr=657H; Fa=372H; из

первого этапа компоновки l1=103 мм.

Расчетная схема ведущего вала


Определяются реакции опор:

в плоскости xz


где Rх1=Rх2 - реакции опор, Н;t - окружная сила, Н.


в плоскости yz


где Fr - радиальная сила, Н;1 - делительный диаметр шестерни, мм.


Проверка:

Ry1+Ry2-Fr=377 +280-657 =0

Определяются суммарные реакции


Выбираются подшипники по более нагружённой опоре. Намечаются радиальные шарикоподшипники 305 серии: d=25 мм; D=52 мм; B=15мм; С=14 кН; С0=6,95 кН;r=1,5.

Рассчитывается эквивалентная нагрузка

э=(XVPr1+YPaσКτ (7.1)

где Рr1=953,7- радиальная нагрузка, Н; осевая нагрузка Pa = Fa =372H;=1 - коэффициент вращения внутреннего кольца;

Кσ=1; Кτ=1 - коэффициенты безопасности для приводов ленточных конвееров.

Отношение


этой величине соответствует е = 0,26 (по табл. 9,18)

Отношение


Рэ=(0,56×953,7 +1,88´372)х1х1=1233 Н


 (7.2)

где С - динамическая грузоподъёмность, Н

 млн. об

Рассчитывается расчётная долговечность, ч

 (7.3)

где п - частота вращения внутреннего кольца, об/мин.

ч

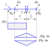
Ведомый вал несёт такие же нагрузки, как и ведущий: Ft=1752H,

Fr=657H, Fa=372H;

Нагрузка на вал от цепной передачи FB=2628H.

Составляющие этой нагрузки

FBX = FBY = FBsinY= 2628sin 45° = 1708H

Из первого этапа компоновки l2=102 мм; l3=51 мм.

Определяются реакции опор:

в плоскости xz


(7.4)


 (7.5)

Проверка:

Rx3+Rx4-(Ft+FBX)=416+3176-(1752+1840)=0

в плоскости yz

 (7.6)


 (7.7)

Проверка:

Ry3 +FBy-(Fr+Ry4)=657+1840-(657+1840)=0

Определяются суммарные реакции

 (7.8)

 (7.9)

Выбираются подшипники по более нагружённой опоре 4.

Намечаем шарикоподшипники радиальные 207 серии: d=35 мм;=72 мм; В=17 мм; С=25,5 кН; С0=13,7кН.

Рассчитывается эквивалентная нагрузка

Отношение


Этой величине соответствует е=0,22 (по табл. 9.18)

Отношение


поэтому Pэ=Pr4VKσKτ (7.10)э=36701´1,2 1=4404Н

Рассчитывается расчётная долговечность, млн. об.

 (7.11)

млн.об.

Рассчитывается расчётная долговечность, ч

 (7.12)

ч

Из расчетов ч, а для зубчатых редукторов ресурс работы подшипников не должен быть менее 10000 ч (минимально допустимая долговечность подшипника), исходя из всего этого выбираем шариковые радиальные подшипники 207 среднесерии.

8. Выбор и расчёт муфт

Для соединения вала электродвигателя с ведущим валом редуктора необходимо подобрать муфту с упругими элементами для того, чтобы гасить вибрации и толчки идущие от электродвигателя.

Наиболее подходящие муфты упругие втулочно - пальцевые МУВП…

Для подбора муфты необходим момент расчётный Мр, диаметр вала электродвигателя dэл и диаметр выходного конца ведущего вала d1вых.

Из предыдущих расчётов имеем: dэл=38 мм, d1вых=22 мм.

Рисунок 8.1 Муфта упругая втулочно-пальцевая

Определяется момент расчётный

Тр=Кm×Т1 (8.1)

где Мр - расчётный момент для подбора муфты, Нм;

к=1,4 - коэффициент режима работы привода.

Тр=1,4×41,6=58,24Нм

Выбираем муфту МУВП1-50-55НН 2096-64

Пальцы проверяются на изгиб по сечению А - А, а резиновые втулки на смятие поверхности, соприкасающейся с пальцами.

Условие прочности пальца на изгиб:

 (8.2)

где σи - наиб.напряжение изгиба в опасном сечении пальца, Н/мм2;

Мр - расчётный момент, Нмм;0 - диаметр окружности, на которой расположены пальцы, мм;- число пальцев;п - длина пальцев, мм;п - диаметр пальца, мм.

[σ]n=80÷90 Н/мм2 - допускаемое напряжение на изгиб для пальцев.

Условие прочности выполняется.

Проверяется условие прочности втулки на смятие:

 (8.3)

где lb - длина втулки, мм;

[σ]см=1,8÷2,0 Н/мм2 - допускаемое напряжение на смятие для резины.

Условие прочности на смятие выполняется.

9. Выбор и расчёт шпонок

Шпонками называются соединительные элементы между валом и ступицей (колеса, шкива, маховика и т. д.). Шпонки в основном изготавливаются из сталей (Сталь 20, Сталь 35, Сталь 45) термообработка специальная не нужна. Шпонки и шпоночные пазы стандартизованы.

Выбираются шпонки призматические со скруглёнными торцами. Размеры сечений шпонок и пазов и длины шпонок - по ГОСТ 23360 - 78.[3] Материал шпонок - сталь 45 нормализованная.

Напряжения смятия и условие прочности определяется по формуле

 (9.1)

где Т - передаваемый момент;- диаметр вала;

(h-t1) - рабочая глубина паза в ступице;

(l-b) - рабочая длина шпонки со скруглёнными торцами;

см]=100МПа - допускаемое напряжение смятия при стальной ступице.

Рисунок 9.1 Шпоночное соединение.

Ведущий вал.

d=22 мм; b×h=8×7 мм; t1=4 мм;

t2=3,3 мм; l=60 мм; Т=41,6×103Нмм.

Условие прочности на смятие выполняется.

Ведомый вал.=30 мм; b×h=10×8 мм; t1=5 мм;t2=3,3мм; l=60мм; Т=116×103Нмм.

Условие прочности на смятие выполняется.

d=40 мм; b×h=12×8 мм; t1=5 мм; l=50 мм; Т=116×103Нмм.

Условие прочности на смятие выполняется.

10. Уточнённый расчёт валов

Ведущий вал.

Материал вала тот же, что и для шестерни (шестерня выполняется заодно с валом), т. е. сталь 45, термообработка - улучшение.

При диаметре заготовки до 90мм (в нашем случае dа1=50 мм) среднее значение σb=780 МПа.[2]

Предел выносливости при симметричном цикле изгиба

σ-10,43σb (10.1)

σ-1=0,43×780=335 МПа

Предел выносливости при симметричном цикле касательных напряжений

τ-10,58σ-1 (10.2)

τ-1=0,58×335=194 МПа

Сечение А - А

Это сечение при передаче вращающего момента от электродвигателя через муфту рассчитывается на кручение. Концентрацию напряжений вызывает наличие шпоночной канавки.

Коэффициент запаса прочности

 (10.3)

где амплитуда и среднее напряжение отнулевого цикла

 (10.4)

При d=22мм; b=6 мм; t1=3,5 мм

 (10.5)

Wк нетто =

Принимается kτ=1,5; ετ=0,83; ψτ=0,1 [1]