Материал: Расчет компьютерной сети организации по технологии Ethernet

Внимание! Если размещение файла нарушает Ваши авторские права, то обязательно сообщите нам

Спецификаций на оптоволокно существует сотни, они охватывают все возможные аспекты от физических размеров до пропускной способности, от прочности на разрыв до цвета материала защитной оболочки. Защитная оболочка (буфер) предохраняет оптоволокно от повреждения, и она обычно маркируется разным цветом из соображений простоты.

Практические параметры, которые необходимо знать, - это длина, диаметр, окно прозрачности (длина волны), затухание, пропускная способность и качество оптоволокна. В спецификациях на оптоволокно длина указывается в метрах и километрах. При получении заказанного оптического кабеля проверьте, чтобы поставляемый кабель имел требуемую длину. Кроме того, на случай, скажем, перестановки стойки с оборудованием в пределах комнаты приобретение дополнительной катушки кабеля для комнаты с оконечным оборудованием вполне оправдано.

Многомодовое оптоволокно может быть нескольких диаметров, но наиболее распространено из них оптоволокно с соотношением диаметров сердечника к оболочке 62,5 на 125 мкм. Именно это многомодовое оптоволокно будет использоваться во всех примерах данной статьи. Размер 65,2/125 называется в спецификации ANSI/TIA/EIA-568A стандартным для проводки в зданиях.

Одномодовое оптоволокно имеет один стандартный размер - 9 мкм (плюс-минус один мкм). Помните, если ваше оконечное оборудование волоконно-оптических линий связи предусматривает применение оптоволокна специального диаметра и вы собираетесь и дальше его использовать, то, скорее всего, оно не будет работать с оптоволокном обычного диаметра.

Задание 2

ethernet топология оборудование затраты


Схема 1- Структура локальной компьютерной сети организации

Так как в технологии Gigabit Ethernet не каждая из спецификаций будет корректно работать на данном расстоянии. То мной будет выбрана 1000Base-LX, она хоть и немного дороже так как использует одноподовое волокно тем самым затраты на сетевое оборудование будут меньше так как используется не комбинированная сеть.

Спецификация 1000Base-LX.

Стандарт 802.3z был утвержден в 1999 году и включен в число стандартов 802.3. Спецификация 1000BASE-X предусматривает использование среды в виде оптических волокон. Лежащая в основе этого стандарта технология сама по себе не нова, поскольку основана на стандарте ANSI Fibre Channel (ANSI X3T11). Используется избыточное кодирование 8B/10B, схемы физического уровня "разогнаны" (по сравнению с Fibre Channel) c 800 Mbit до 1 Gbit. Реальная тактовая частота - 1,25 ГГц.

Технология 1000BASE допускает использование трех различных сред передачи, отсюда три разновидности: 1000BASE-SX, 1000BASE-LX и 1000BASE-CX (позднее приняты ZX и BX).

BASE-SX (Short wavelength) - коротковолновая (850 нм) технология на основе стандартного многомодового волокна.

Наиболее часто используется. Самая дешевая технология среди оптических. За дешевизну приходится платить: максимальное расстояние для 1000BASE-SX составляет 220 м (сравните: полнодуплексная технология 100BASE-FX допускает передачу на расстояние 2 км). Несмотря на вышеуказанное "стандартное" ограничение, почти все производители гарантируют работу SX-модулей до 550 м.

BASE-LX (Long wavelength) - длинноволновая (для ЛВС) 1310 нм, технология. Обычно используется с одномодовыми волокнами, но возможно применение и многомодового (правда в этом случае требуется применение специальных оптических пачкордов).

Обобщенные характеристики технологии 1000 Base LX представлены в таблице 1.

Таблица 1 - Некоторые характеристики технологии.

Скорость передачи данных

1000 Мбит/сек

Тип используемого кабеля

5-8 мкм

Тип используемого излучателя

1300 нм

Максимальная длина сегмента

До 3000 м


1000BASE-LH - вариант 1000BASE-LX увеличенной до 10 км. дальностью. В настоящее время выпускаются совмещенные модули, они так и называются 1000BASE-LX/LH.

BASE-CX использует наиболее своеобразную среду из трех. Это основанное на применении меди решение, в котором используются кабели, выполненные на основе предварительно закрученных (precrimped) экранированных витых пар (категория не ниже 7й). Соединитель - не простой RJ-45, обычно используемый в 10/100/1000BASE-T. Вместо него используется или DB-9, или HSSDS, завершающий эти две пары проводов. Технология 1000BASE-CX пригодна для расстояний до 25 м, что ограничивает ее применение небольшими площадками. 1000BASE-CX трудно отнести к популярным, потому что 1000BASE-T выполняет те же функции за меньшую цену и передает сигналы на вчетверо большее расстояние, причем использует для этого стандартную разводку на основе кабелей категории 5 с четырьмя витыми парами.

BASE-ZX - супердлинноволновая (если мне будет позволено так сказать) работает только на одномодовом волокне и длине волны 1550 нм. Среда и разъемы технологии обычно те же что и для более "взрослой" технологии SONET/SDH.

BASE-BX - простейшая реализация WDM-технологии. В отличии от всех остальных оптоволоконных стандартов, прием/передача идут по одному волокну

. Проанализируем данную сеть на корректность (Схема 1).

В сети используется 1 концентратор вносящий задержку 70 битовых интервала, хаб задержку не вносит. Поэтому остальные задержки только по прохождению сигнала по кабелю. Таким образом, спроектированная по данной схеме сеть не нарушает не одного условия построения сети Gigabit Ethernet.

. Произведем подбор сетевого и сопутствующего оборудования и рассчитаем его стоимость (таблица 2).

Таблица 2 - Сетевое оборудование

Наименование

Цена за единицу

Количество

Сумма

Розетка Rj-45

43 руб.

5шт.

215 руб.

HF0NC01B5 Кабель 9/125 одномодовый, внешний, 6 волокон

56 руб.

2600м

145600 руб.

Сетевая карта (1000mbs)

250 руб.

5 шт.

1250 руб.

Хаб (8port)

2180 руб.

1 шт.

2180 руб.

GE swith (8port 100/1000mbs)

6273 руб.

1 шт.

6273 руб.

Силовые рзетки

40 руб.

15 шт.

600 руб.

Коннектор Rj-45

9 руб.

12 шт.

108 руб.


Т.о. стоимость сетевого оборудования равна 156226 рублей.

. Рассчитаем стоимость монтажных и проектировочных работ (таблица 3).

Таблица 3 - Стоимость монтажных и проектных работ

Услуга

Количество

Цена за единицу

Сумма

Монтаж кабеля

2320 м

42 руб. за метр

97440 руб.

15 шт.

61 руб. за шт.

915 руб.

Обжим

12 шт.

10 руб. за шт.

120 руб.

Монтаж розеток RJ-45

5 шт.

77 руб. за шт.

385 руб.

Тестирование

6 шт.

120 руб. за лин

720 руб.


Т.о. стоимость проектировочных работ равна 99580 рублей.

Общая стоимость на проектирование, монтаж и сетевое оборудование для построения локальной сети организации равна 255806 рублей.

Задание 3

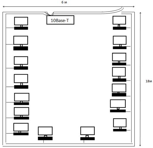
1.   Спроектируем расположение рабочих мест в помещении предприятия (рисунок 1).

Рисунок 1 - План размещения рабочих мест

. Рассчитаем помещение на соответствие нормам САН ПИН 2.22:542-96:

*3=63 (м²)

*3=72 (м²)

+72=66 м²-общая площадь.

/16=8.4 м² - на одно рабочее место, что соответствует нормам САН ПИН на рабочее место с ЖК мониторами.

. Произведем подбор сетевого и сопутствующего оборудования и рассчитаем его стоимость (таблица 4).

Таблица 4 - Сетевое оборудование

Наименование

Цена за единицу

Количество

Сумма

Розетка Rj-45

43 руб.

16

688 руб.

Кабель UTP 2 пары кат.5e

959 руб.

1(305м)

959 руб.

Сетевая карта 10/100/1000Mbps

288 руб.

16

4608 руб.

Коннекторы RJ-45

9 руб.

48

432 руб.

FE-net Switch 24 port

2638 руб.

1

2638 руб.

Силовые розетки

40 руб.

49

1960 руб.

Короб 60 x 40мм²м

420 руб.

24

10080 руб.

Монтажный шкаф

5700 руб.

1

5700 руб.


Т.о. стоимость сетевого оборудования равна 27065 рублей.

. Сравнительная характеристика оборудования

1)D-Link <DGE-530T> Карта PCI 10 / 100 / 1000Mbps Цена 288 руб.

D-Link <DFE-520TX> Карта PCI 10 / 100Mbps Цена 143 руб.

Хотя DGE-530T и дороже в 2 раза, считаю, что лучше выбрать ее, так как она поддерживает скорость 1000mbps. Если технология компьютерной сети организации со временем изменится на более "быструю", то данная сетевая карта не будет нуждаться в замене отличие от DFE-520TX.

) Коннекторы RJ-45 представлены на рынке сетевого оборудования очень многообразно. Например, коннектор RJ-45 Hyperline PLUG-8P8C-UV-C5, стоимость 17 руб. за единицу и коннектор RJ-45, цена - 8 руб.

Из данных двух коннекторов, я выбрал обычный коннектор RJ-45, так как различия между ними только в материале пластика и в окраске. Тем самым, не имея весомых различий влияющих на соединение целесообразней выбрать более экономичный.


Таблица 5 - Стоимость монтажных и проектных работ

Услуга

Количество

Цена за единицу

Сумма

Монтаж кабеля

108 м

12 руб. за метр

2880 руб.

Монтаж короба

48 м

35 руб. за метр

1680 руб.

Монтаж розеток

49 шт.

61 руб. за шт.

2989 руб.

Монтаж шкафа

1 шт.

800 руб. за шт.

800 руб.

Обжим

48 шт.

10 руб. за шт.

480 руб.

Монтаж розеток RJ-45

16 шт.

77 руб. за шт.

1232 руб.

Тестирование

16 шт.

120 руб. за лин.

1920 руб.


Т.о. стоимость проектировочных работ равна 11981 рублей.

Общая стоимость на проектирование, монтаж и сетевое оборудование для построения локальной сети организации равна 39046 рублей.

Заключение

Мы вступили в эпоху перемен, когда в руках пользователей оказались исключительно мощные средства навигации и воздействия на корпоративную сеть. Велики преимущества, получаемые компаниями, взявшими на вооружение новую технологию. Растет производительность труда персонала, укрепляются связи с заказчиками. Персональные сети, в гораздо большей степени, чем Интернет, представляют собой социальное явление, которое изменит характер нашего взаимодействия с компьютерами и друг с другом. Задачей руководителей отделов информатизации на современном этапе является ревизия корпоративной инфраструктуры и ее подготовка к вхождению в новый мир резко возросшего, с трудно прогнозируемым распределением, трафика, в мир еще более высоких требований к качеству сетевых сервисов.

В данной курсовой работе при проектировании локальной сети организации я использовал спецификации 10Base-T, 1000Base-LX, произвел сбор исходных данных пожеланий, оценку размера помещения на соответствие санитарным нормам на данное количество компьютеров. Выбрал размер сети, структуру сети, оборудование, сетевых программных средств сетевого администрирования, а так же произвёл анализ финансовых затрат на проектирование и монтаж и анализ корректности работоспособности сети по основным показателям.

В первом задании я подобрал материал по нужной теме и оформил его в виде Web - страницы, т.к. современные организации и предприятия имеют не только локальные сети, но и Интернет - технологии, следовательно, умение работать и оформлять Web - страницы является актуальным для современного специалиста.

Список литературы

1.  Fast Ethernet / Л. Куинн, Р. Рассел. - BHV-Киев, 2004.

2.      Волоконная оптика в локальных и корпоративных сетях связи / А.Б. Семенов, АйТи. - М.: Компьютер-пресс, 1998.

.        Высокопроизводительные сети. Энциклопедия пользователя / А. Марк Спортак и др.; пер. с англ. - Киев: ДиаСофт, 1998.

.        Вычислительные системы, сети и телекоммуникации / Пятибратов и др. - ФИС, 2006.

5.  Гук М. Аппаратные средства локальных сетей. Энциклопедия - СПб: Питер, 2000. 576 с.

6.      Заика А.А. Компьютерные сети - М.: ОЛМА-ПРЕСС,2006. - 448с.

7.  Коммутация и маршрутизация IP/IPX трафика / М.В. Кульгин, АйТи. - М.: Компьютер-пресс, 2007.

8.  Олифер В.Г., Олифер Н.А. Компьютерные сети: принципы, технологии, протоколы. - СПб.: Питер, 2003. 672 c.

9.      Олифер В.Г., Олифер Н.А. Новые технологии и оборудование IP-сетей. - СПб.: БХВ-Петербург, 2005. 512 c.

10. Персональные компьютеры в сетях TCP/IP. Крейг Хант; пер. с англ. - BHV-Киев, 1997.

11.    Протоколы Internet. С. Золотов. - СПб.: BHV - Санкт-Петербург, 2004.

.        Сети ЭВМ: протоколы стандарты, интерфейсы / Ю. Блэк; пер. с англ. - М.: Мир, 2005.

.        Синхронные цифровые сети SDH / Н.Н. Слепов. - Эко-Трендз, 2003.

14. Таненбаум Э. Компьютерные сети. 4-е изд. - СПб.: Питер, 2006. - 992 с.