Материал: Расчет и проектирование сварной подкрановой балки

Внимание! Если размещение файла нарушает Ваши авторские права, то обязательно сообщите нам

Расчет и проектирование сварной подкрановой балки

КГБОУ СПО Комсомольский-на-Амуре

Авиационно-технический техникум











Курсовой проект

Расчет и проектирование сварной подкрановой балки











г.

Содержание

Введение

. Данные для расчёта

2. Расчет конструкции

2.1 Построение линий влияния и определение величины изгибающего момента для различных сечений балки от веса тяжести

.2 Определение изгибающих моментов в указанных сечениях балки от равномерно распределенной нагрузки

.3 Определение суммарных изгибающих моментов

.4 Построение линий влияния поперечной силы в сечениях балки от сосредоточенной нагрузки

.5 Определение поперечных сил в сечениях балки от равномерно распределенной нагрузки

.6 Определение суммарных поперечных сил

.7 Расчет номинальной высоты балки из условия норм жесткости

.8 Расчет высоты балки из условия ее наименьшего сечения

.9 Расчет ширины горизонтального пояса балки

.10 Проверочный расчет подобранного сечения балки

.10.1 Определение наибольшего нормального напряжения в волокнах балки, наиболее удаленных от центральной оси

.10.2 Определение касательного напряжения на уровне центра тяжести балки

.10.3 Определение эквивалентного напряжения в сечении балки

.11 Расчет балки на местную устойчивость

.12 Расчёт поясных швов

. Конструирование опорных узлов балки

. Краткая технология изготовления балки

Список используемой литературы

Введение



Балка применяется при строительстве более широких пролетов зданий она существенно сокращает вес всей конструкций, стоимость производства и увеличивает рентабельность проектов строительства. Сварная балка двутавровая - прекрасное решение для строительства Краснодара.

Сварная балка (двутавр) может различаться толщиной стенок и полок, по расположению граней полок, по назначению, по техническим характеристикам и по типу производства.

Балка двутавровая - сварная конструкция, из листов стали, которая по форме схожа с горячекатаной балкой. Качество балки сварной контролируется ГОСТом 23118-99. По форме и размерам сечения двутавра соответствуют ГОСТ 26020-83. Кроме того по индивидуальным чертежам и эскизам могут производиться двутавровые сварные балки специальных размеров.

Использование сварной двутавровой балки представляет из себя решение задачи сокращения емкости металла металлической конструкции, а также общее сокращение числа изделий из металла использованных при строительстве. Применение конструкций, в основе которых лежит сварная балка, позволяет изготавливать недорогие и надежные строительные объекты.

Сварная балка производится на линии сварки под флюсом, с использованием современного оборудовании. Что обеспечивает высокие технические характеристики балки

Применение

Двутавровая балка востребована при строительстве промышленных и жилых, сельскохозяйственных зданий, объектов. Кроме того сварная двутавровая балка используется в перекрытиях, рабочих площадках, подкрановых балках, эстакадах и мостах, других металлических конструкциях. Использование двутавровой балки в широких пролетах промышленных объектов отличается высокой эффективностью. Это позволяет избежать повышенных нагрузок на несущие конструкции, экономя при этом металл

Основное преимущество использования сварной балки - это снижение стоимости и сроков монтажных работ

Преимущества сварной двутавровой балки для строительства:

Возможность применения различных типов стали

Снижение массы металлоконструкции на 10%

Заказ при равной цене сварной балки различной длины

Использование нестандартной длины и формы

Надежность

На сегодняшний день балка сварная двутавровая может принадлежать к одному из следующих типов:

Сварная балка двутавровая колонная

Сварная балка для подвесных путей

Сварная двутавровая балка нормальная

Балка сварная широкополочная

Балка сварная двутавровая с параллельными гранями полок

Балка сварная для армирования шахтных стволов.

Балка двутавровая с уклоном граней полок

1. Данные для расчёта


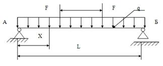
Разработать конструкцию сварной подкрановой балки пролетом L со свободно опертыми концами. Балка нагружена равномерной нагрузкой от собственного веса q и вторая сосредоточенными грузами F(от веса тяжести тележки груза), которые могут перемещаться по рельсам сечением 50x50 мм. Расстояние между осями тележки d. Наибольший прогиб балки f от сосредоточенных грузов не должен превышать 1/500 от L. Допускаемое напряжение в подкрановых балках []р с учетом марки стали и коэффициентом усилия работы m и перегрузки n.

Рисунок 1.1 - Расчетная схема балки

Таблица 1.1- Данные для расчета балки

Марка

F,кН

Q,кН/м

L,м

D,м

m

n

09Г2

100

2

12

2

0,8

1,3


Основной металл данной конструкции- сталь.

Таблица 1.2- Химический состав стали

 Углерод С,%

 Кремний Si,%

 Марганец Mn,%

 Фосфор P,%

 Сера S,%

09Г2

0,14-0,18

 0,17-0,37

1,4 - 1,6

 0,03

 0,04

и Ni ≤ 0,3

Свариваемость стали по величине эквивалента углерода определяют по формуле

Cэ = С+ (1.1)

где C- углерод, %марганец, %кремний, %никель, %хром, %

Сэ = 0,14+0,07+0,02+0,02+0,03= 0,28%

Стали у которых Сэ = 0,2-0,35%, хорошо сваривается.

При расчете величина эквивалентного углерода Сэ = 0,21% следовательно сталь хорошо сваривается.

Допустимое напряжение определяют по формуле

[σ]р= (1.2)

где σт - предел текучести, МПа = 310МПа- коэффициент угловой работы, m = 0.8- коэффициент запаса прочности, n = 1.5



2. Расчет конструкции

.1 Построение линий влияния и определение величины изгибающего момента для различных сечений балки от веса тяжести


Максимальные ординаты yi max линий влияния для различных сечений xi определяется по формуле:

max= xi (2.1)

где xi - координата рассматриваемых сечений, м- Длина пролета балки, м

а - координата перемещения груза, м. а = xi

X1 = 0,1L y1 = = 0,2L y2 = = 0,3L y3 =

X4 = 0,4L y4 = = 0,5L y5 =

По полученным данным строим линии влияния моментов изгиба.

Изгибающие моменты для указанных сечений от сосредоточенных сил- Mf, кНм, определяют по формуле

= yi max (2.2)

где F- величина сосредоточенного груза, кНрасстояние между осями тележки, м

M1F = F = F = F =

M5F =

По полученным данным строим эпюру изгибающих моментов, MF.

.2 Определение изгибающих моментов в указанных сечениях балки от равномерно распределенной нагрузки


Изгибающие моменты в указанных сечениях балки от равномерно распределенной нагрузки Mq, кНм, определяют по формуле:

Miq =  (2.3)= 0,1L M1q = = 0,2L M2q = = 0,3L M3q = = 0,4L M4q = = 0,5L M5q =

По полученным данным строим эпюру изгибающих моментов, Mq

2.3 Определение суммарных изгибающих моментов


Суммарные величины изгибающих моментов в сечениях балки от сосредоточенных сил и равномерно распределенной нагрузки MΣ, кНм, определяют по формуле:

MiΣ = Mif + Miq (2.4)

M1Σ = M1f + M1q = 196+13=209 кНм

M2Σ = M2f + M2q = 344+23=367 кНм

M3Σ = M3f + M3q = 444+30=474 кНм

M4Σ = M4f + M4q = 496+34=530 кНм

M5Σ = M5f + M5q = 500+36=536 кНм

По полученным данным строим эпюру изгибающих моментов

.4 Построение линий влияния поперечной силы в сечениях балки от сосредоточенной нагрузки

Определяется по формуле


;  (2.5)

=0; ; =0.1L; ;  =0.2L; ;  =0.3L; ;  =0.4L; ;  =0.5L; ;

По полученным данным строят линии влияния поперечной силы

Поперечные силы в указанных сечениях от сосредоточенной нагрузки Qf, кН, определяют по формуле:

Qif = yi` (2.6)= 0 Q0f = y0`= 0,1L Q1f = y1`= 0,2L Q2f = y2`= 0,3L Q3f = y3` = 0,4L Q4f = y4`

X5 = 0,5L Q5f = y5`

По полученным данным строят эпюру поперечных сил.

.5 Определение поперечных сил в сечениях балки от равномерно распределенной нагрузки


Поперечные силы в указанных сечениях от равномерно распределенной нагрузки Qq, кН, определяют по формуле:

Qiq= (2.7)= 0 Q0q== 0,1L Q1q== 0,2L Q2q== 0,3L Q3q== 0,4L Q4q== 0,5L Q5q=

По полученным данным строят эпюру поперечных сил.

.6 Определение суммарных поперечных сил


Суммарное значение поперечных сил в указанных сечениях от сосредоточенной силы и равномерно распределенной нагрузки QiΣ,кН, определяется по формуле:

QiΣ = Qif + Qiq (2.8)

Q0Σ = Q0f + Q0q = 183+12= 195кН

Q1Σ = Q1f + Q1q = 156+8.6= 165.6кН

Q2Σ = Q2f + Q2q = 130+7.2= 137.2кН

Q3Σ = Q3f + Q3q =107+4.8= 111.8 кН

Q4Σ = Q4f + Q4q = 86+2.4= 88.4кН

Q5Σ = Q5f + Q5q = 66+0= 66кН

По полученным данным строят эпюру суммарных поперечных сил

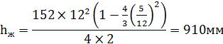
.7 Расчет номинальной высоты балки из условия норм жесткости

Рисунок 2.1 Определение высоты балки из условия жесткости.

Наименьшую высоту балки из условия норм жесткости hж, мм определяют по формуле:


где: а - координата перемещения груза, м.

Модуль продольной упругости, МПа. Е = , МПа

 - уточненное значение допускаемого напряжение, Н/мм2


Уточненное значение допускаемого напряжения , Н/мм2, определяют по формуле:

 = ; МПа

 = МПа

Определяем hж, м


Принимаем hж=910 мм

2.8 Расчет высоты балки из условия ее наименьшего сечения


Требуемую высоту из условия ее наименьшей массы определяют по формуле:

 (2.10)

где - толщина верхней стенки, см

=  (2.11)

= = 0,71мм ≈ 8 мм

Принимают =8 мм

 мм

Для дальнейшего расчета принимают большее из двух полученных значений h, мм

Принимают высоту h= 910 мм

Высоту вертикального листа , мм, определяют по формуле

 (2.12)

где  - толщина горизонтального пояса, мм.