Материал: Расчет железобетонных конструкций многоэтажного здания в монолитном исполнении

Внимание! Если размещение файла нарушает Ваши авторские права, то обязательно сообщите нам

Шаг s1, полученный из расчета прочности наклонных сечений, принимают на концевых участках опор до первой второстепенной балки, но не менее 1/4 пролета. В средней части пролета, где поперечные силы малы, арматуру можно ставить реже с шагом s2, но не более 3/4∙hГБ и не более 500 мм. При этом для удобства сварки рекомендуется s2 принимать кратным s1.

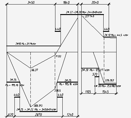
Эпюра материалов.

При известных значениях Мu с принятым армированием пролетных и опорных сечений нам остается определить несущую способность балки при конструктивной верхней арматуре 2 Ø10 AIII и 2 Ø12 AIII

-        при 2 Ø 10 AIII As = 157 мм2= Rs As /( Rb b) = 365* 157 / (13,05 *300 ) = 14,64 мм,

Mu=Rb b x (h0 - 0,5·х) =13,05* 300 *14,64 *( 550 - 0,5* 14,64) = 31,10 кН·м

-        при 2 Ø 12 AIII As = 226 мм2= Rs As /( Rb b) = 365 *226 / (13,05* 300) = 21,07 мм,

Mu=Rb b x (h0 - 0,5·х) =13,05 * 300* 21,07 *(550 - 0,5 *21,07) = 44,5 кН·м

и после обрывов вторых рядов в первом пролете при нижней арматуре 2 Ø25AIII, и во втором - при 2 Ø 20 AIII:

-        при 2 Ø 25 AIII As = 982 мм2= Rs As /( Rb b) = 365* 982 / (13,05 * 2500) = 10,986 мм,

Mu=Rb b x (h0 - 0,5·х) =13,05 * 2500* 10,986 *(550 - 0,5 *10,986) = 195,16 кН м

-        при 2 Ø 20 AIII As = 628 мм2= Rs As /( Rb b) = 365 * 628 / (13,05 * 2500) = 7,026 мм,

Mu=Rb b x (h0 - 0,5·х) =13,05 *2500* 7,026*( 550 - 0,5 * 7,026) = 125,27 кН м

Эпюра материалов главной балки приведена на рисунке.

Рис.17

5.Расчет и конструирование колонны

Исходные данные. Высота этажа hэт=3.6 м; количество этажей 5; сетка колонн - 7 *5.4 м; сечение колонны 400*400мм; бетон тяжелый класса В25 (Rb=13.05 МПа при γb2=0.9), рабочая арматура класса A III(Rs=Rsc=365 МПа)

Нагрузки и воздействия.

Грузовая площадь колонны А=l1*l2 = 7 *5.4 = 37.8 м2

Рис.18

Расчетная нагрузка от перекрытия одного этажа

N1=(g+p)*A=12.45*37.8=470.61 кН

в том числе постоянная и длительная

N1,t=(g+pt)*A= 10.5 *37.8=396.9 кН

Расчетная нагрузка от собственного веса 5 ребер, выступающих под плитой

N2=5*gвб*(l02 - bгб) =5*1.87*(5.1- 0.3)= 44.88 кН

Расчетная нагрузка от собственного веса ребра главной балки, выступающего под плитой

N3=gгб*(l1 - hк) = 4.455*(7- 0,4)= 29.403 кН

Расчетная нагрузка от собственного веса колонны рядового этажа

N4 =0,4*0,4*3.6*25*1,1=15.84 кН5=(g+p)*A =4,74*37.8 =179.172 кН5t =4,11*37.8=155.358 кН

Суммарная продольная сила в колонне 5-этажного здания с учетом коэффициента надежности по назначению γn=0,95

N=(4N1+5N2+5 N3+5 N4+N5)*γn =(4 *470.61 +5*44.88+5*29.403+5*15.84 +179.172)*0,95 =2386.616 кН

в том числе постоянных и длительных нагрузок

Nl =(4*396.9+5*44.88+5*29.403+5*15.84+155.358)*0,95=2083.894 кН

Расчетная длина колонны первого этажа

l0=0,7*(hэт+1) =0,7*4.6=3.22 м

Расчет прочности нормального сечения.

Условие прочности имеет вид:

N<=φ(Rb*Ab+(As+As’)), где Ab=400*400=160000мм2 - площадь бетонного сечения, φ - коэффициент, учитывающий гибкость колонны и длительность действия нагрузок.

Преобразуя формулу, получим:

(As+As’)>=(N - φ*Rb*Ab)/(φ*Rsc),

φ=φ1+2*(φ2 - φ1)*Rsc*(As+As’)/ (Rb*Ab)<=φ2,

где φ1 и φ2 коэффициенты принимаемые по таблице 7(мет.)

При l0/h =3.22/0,400=8.05 и Nl/N =2083.894/2386.616= 0.873, φ1=0,91

φ2=0,91. При φ=φ2 определяем

(As+As’) =(2386.616*1000 - 0,91*13.05*160000)/(365*0,91)= 1464.807 мм2.

Проверяем:

φ =0.902+2*(0,91- 0.902)*365*1464.807/(13.05*160000)= 0.906

Принимаем среднее значение φ между назначенным вначале и полученным повторно φ =(0.906+0.91)/2=0.908

Вторично определяем

(As+As’) =( 2386.616*1000-0.91*13.05*160000)/ (365*0.908) = 1468.046 (мм2).

Принимаем по сортаменту 6 Ø 18 A - III (As= 1527 мм2)

Полученный процент армирования от рабочей площади бетона составляет: μ=As*100/(b*h0) = 1527 *100/(400*300)= 1.273% это больше чем μmin=0,1% (при l0/h=8.05) и меньше μmax=3%. Поэтому шаг поперечных стержней не более s=20ds=360 (мм) с учётом кратности 50 принимаем s=400 мм. По условию сварки d >=0,25 ds, принимаем Ø 8 A - III.

В нашем случае защитный слой бетона до рабочей арматуры составляет 25 мм что соответствует СНиП 2.03.01-84*. Окончательно расстояние от осей продольных стержней до наружных граней принимаем равным 40мм.

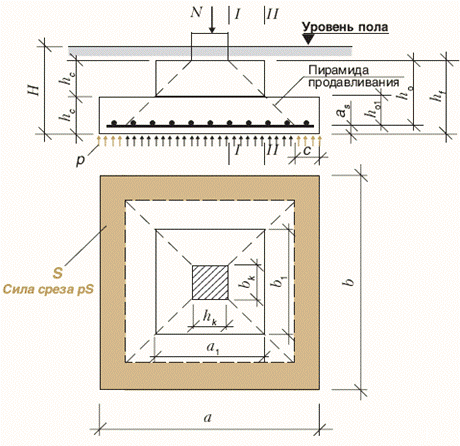
6. Расчет и конструирование фундамента

Монолитные фундаменты под отдельные колонны бывают по форме ступенчатыми и пирамидальными. Монолитные фундаменты армируют сварными сетками по подошве. Для связи с монолитной колонной из фундамента выпускают арматуру с площадью сечения, равной сечению арматуры колонны у обреза фундамента. В пределах фундамента выпуски соединяют хомутами в каркас, которые устанавливают на бетонные подкладки. Арматуру колонн с выпусками соединяют дуговой сваркой.

Бетон тяжелый класса B25 (Rб = 13.05 МПа. при γб2 = 0,9).

Рабочая арматура А-III (Rs = 365 МПа.).

Усилие от нормативных нагрузок:

Nn = N/ γf = 2386.616/1,2 = 1988.846 кН.

Примем глубину заложения фундамента 1 м.

Необходимая площадь подошвы:

А = Nn/(R0m∙H) = 1988.846 /(0.2∙103-1.5∙20) = 5.338 м2.

Принимаем квадратный фундамент со сторонами a = b = 2,4 м.

A=2,4∙2,4= 5.76 м2.

Среднее напряжение на подошве при расчетных нагрузках:

P = N/A = 2386.616 / 5.76= 0.414 МПа.

Определим полезную высоту фундамента:

hf = h0+50 = -(hk+bk)/4+0,5(N/(Rbt+p))0,5+50 = 540.79 мм.

Так как арматурные выпуски должны быть такого же диаметра, что и арматура колонны, то для их анкеровки требуется: 20∙d = 20∙18 = 360 мм.

Полезную высоту принимаем конструктивно, из условия, что подколонник равен 1м и глубина заложения фундамента равна 1,5 м. Принимаем высоту фундамента hf = 600 мм.

Рис.19

Полезная высота фундамента:

h0 = 1500-50 = 1450мм.

Назначаем две ступени:

нижняя высотой 250 мм.

верхняя 300 мм.

Ширина верхней ступени а1 = hr+2hc = 400+600 = 1000 мм.

Полезная высота нижней ступени hot = 250 мм.

Проверим прочность нижней ступени на продавливание:

с = (а-а1-2∙hot)/2 = (2400-1000-2*250)/2 = 450 мм.

Rbt∙hot = 0.945∙250= 236.25 кН. > p∙c = 0.414*450= 186.454 кН.

Прочность обеспечена.

Расчетный изгибающий момент в сечении по грани колонны:

M1 = 0,125∙p∙(a-hr)2∙b = 0,125*0.414*(2400-400)2*2400=497.212∙106 H∙мм.

Требуемая площадь арматуры в этом сечении:

As1 = M1/(0,9∙h0∙Rs) = 497.212∙106/(0,9∙850∙365) = 2751.967 мм2.

Расчетный изгибающий момент в сечении по обрезу верхней ступени:

M2 = 0,125∙p∙(a-a1)2∙b = 0,125∙0.444∙(2400-1000)2∙2400= 243.634∙106 H∙мм.

Требуемая площадь арматуры в этом сечении:

As2 = M2/(0,9∙h0t∙Rs) = 243.634∙106/(0,9∙250∙365) = 2966.62 мм2.

Принимаем по сортаменту 16 Ø 16 А-III        (Аs = 3216 мм2.)

Поскольку фундамент квадратный в плане, стержни арматурной сетки принимаем одинаковыми в обоих направлениях с шагом 200 мм. Защитный слой снизу 25 мм, по бокам 175 мм.

Процент армирования:

μ = As∙100/(b∙h0) = 3216∙100/(2400∙550) = 0.244 % > μ min= 0,05%

Список литературы

1.       СНиП 2.03.01-84* Бетонные и железобетонные конструкции.

2.      СНиП 2.01.07-85* Нагрузки и воздействия.

.        А.П. Мандриков «Примеры расчета железобетонных конструкций», М.-1979г.

.        И.И. Улицкий «Железобетонные конструкции», Киев.-1959г.

.        Методические указания по расчету железобетонных конструкций.

.        Электронная методичка НГАСУ кафедры ЖБК “MUP M”.