Расчёт
экономической эффективности и срока окупаемости участка автосервиса -
Окрасочные работы
Содержание
Введение
. Конкуренция
. Планировка участка
. Подбор оборудования
. Технические характеристики
. Вентиляция
. Расчёт потребления электроэнергии
. Водоснабжение
. Табель рабочего времени
. Расчет заработной платы
10. Отопление
11. Сжатый воздух
. Затраты на оборудование
. Аренда
. Предполагаемая выручка
. Расчёт общих затрат
16. Расчёт предполагаемой прибыли
. Расчёт годовых расходов
18. Расчёт годовой прибыли Заключение
19. Расчёт рентабельности
20. Примерный срок окупаемости участка
21. Техника безопасности на участке
Заключение
Список
литературы
Введение
Я выбрал эту тему, так как хочу углубить свои познания в данной сфере. Хорошее лакокрасочное покрытие кузова не только придаёт автомобилю красивый внешний вид, но и предохраняет его от коррозии и преждевременного разрушения.
Практика эксплуатации автомобилей в разных странах показала, что наиболее эффективными способами борьбы с коррозией кузова является их качественная окраска и дополнительная противокоррозионная обработка. Выполнение рекомендаций по уходу за лакокрасочными покрытиями позволит постоянно поддерживать хороший внешний вид автомобиля.
Цель работы: Подобрать оборудование для участка "Окрасочных
работ" сделать планировку участка, подобрать персонал, провести
экономические расчёты, рассчитать экономические эффекты и срок окупаемости
участка.
1. Конкуренция
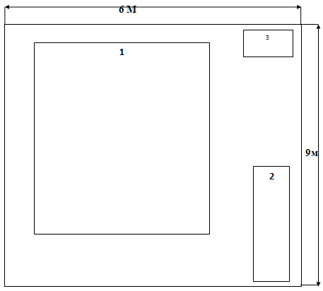
. Планировка участка
S=56 кв. метров
2. Клиент
. Портативная мойка
3. Подбор оборудования

Производитель: TROMMELBERG
Артикул: SB1555
Стандартная комплектация:
2 тепловентиляционных агрегата;
2 теплообменника из нержавеющей стали;
2 дизельных горелки Riello RS28;
2 х 4-створчатые ворота и 2 сервисные двери;
окрашенные стеновые панели с изоляцией из пенополистирола;
16 потолочных светильников х 4 лампы = 64 лампы;
12 боковых вертикальных светильников х 4 лампы = 48 ламп.
комплект фильтров для четырехступенчатой очистки воздуха.
. Технические характеристики
|
Параметры |
Значения |
|
Размеры |
|
|
- внутренние габариты кабины, мм |
15000х5000х5000 |
|
- внешние габариты кабины, мм |
15140х6890х5600 |
|
- въездные ворота, мм |
4400х4500 |
|
- двери для персонала, мм |
650х2000 |
|
Тепловентиляционный агрегат |
|
|
- двигатели приточной вентиляции, кВт |
4х7.5 |
|
- двигатели вытяжной вентиляции, кВт |
2х11.0 |
|
- тепловая мощность горелки, ккал |
до 500000 |
|
- воздухообмен, куб.м/час |
|
|
- мак. потребление дизельного топлива, л/час |
40 |
|
- температура в режиме сушки, °C |
60-80 |
|
Требования к электросети |
|
|
Общая потребляемая мощность, кВт |
56 |
|
Электропитание, В/Гц |
3ф.х380-400/50 |
|
Другие характеристики |
55 |
|
Мощность ламп освещения, Вт |
64х36 + 48х36 = 4032 |
|
Толщина стеновых панелей, мм |
70 |
Цена, рекомендуемая за данный комплект оборудования: 3 881 900,00 руб.
. Вентиляция
Предоставляется арендодателем.
. Расчёт потребления электроэнергии
Расчёт электроэнергии на освещение
Электрическая энергия освещённости
W*56 м=1400 Ват=1,4 Ват
В формуле использовал норматив освещенности для производственных помещений
Расчёт электроэнергии на рекламу
Я обязуюсь оплачивать 2 кВт электроэнергии за 1 смену
Расчёт электроэнергии для работы с оборудованием
Необходимо выбрать коэффициент загрузки в зависимости от востребованного участка и других факторов. Написать про свой участок. Коэффициент выбирать из интервала {0,5-1} Участок шиномонтажа характеризует сезонные пики заказов и поэтому я выбираю коэффициент Кз=0,8
Коэффициент загрузки Кз=0,5
а) Перечислить оборудование:
) Портальная мойка CB2/28 exclusive Kärcher
,13-0,5 кВтч *24
б) Суммарное потребление электроэнергии оборудования =
Электроэнергия оборудования 3,12-19,2 кВт
Произведём корректировку суммарной электроэнергии оборудования на
коэффициент загрузки электроэнергии оборудования
[(x1)3,12-(2x)19,2]*0,5=2.496-15.36 кВт
в) Произведём корректировку суммарной электроэнёргии оборудования на
коэффициент загрузки электроэнергии оборудования.
Общая электроэнергия = 1,4/12+2/24+3.12= 3.32 кВт (x1)
=1,4/12+2/24+19.2= 19.4кВт
(x1) 3.32*2,59=8.26руб/нормо-час (x2) 19.4*2,59=50.24 руб/нормо-час
7. Водоснабжение
Расход на оборудование
-210 л\час *12
Расход на влажную уборку:
*0,5=28 л
Потребность в холодной воде на работников участка:
*15=30 л
Расчёт общей потребности в холодной воде:
л+30=58
Расчёт потребности в горячей воде:
Расчёт ведётся по нормативу 25% от кол-ва холодной воды за исключением
холодной воды на оборудование отдельный счет
*0,25=14,5
Расценки на холодную и горячую воду:
Холодная - 18,7 руб./м2
Горячая - 107 руб./м2
В 1-ом м3=1000 л
Расчёт стоимости холодной и горячей воды:
Холодная оборудование (х1)80-(х2)210 * 18,7/1000 = (х1)1,496 - (х2)3,927
Холодная 58*18,7/1000=1,08
Горячая 14,5*107/1000=1,55
Оборудование 1,496-3,927 н/ч
Расчёт общёй стоимости воды за 1 норма/час
(x1)1,08+1,5+1,496=4.126н/ч (x2) 1,08+1,5+3.927=6.507н/ч
. Табель рабочего времени
|
|
Мастер |
Механик |
Мастер |
Механик |
|
1 |
12 |
В |
В |
|
|
2 |
12 |
12 |
В |
В |
|
3 |
12 |
12 |
В |
В |
|
4 |
В |
В |
12 |
12 |
|
5 |
В |
В |
12 |
12 |
|
6 |
В |
В |
12 |
12 |
|
7 |
12 |
12 |
В |
В |
|
8 |
12 |
12 |
В |
В |
|
9 |
12 |
12 |
В |
В |
|
10 |
В |
В |
12 |
12 |
|
11 |
В |
В |
12 |
12 |
|
12 |
В |
В |
12 |
12 |
|
13 |
12 |
12 |
В |
В |
|
14 |
12 |
12 |
В |
В |
|
15 |
12 |
12 |
В |
|
|
16 |
В |
В |
12 |
12 |
|
17 |
В |
В |
12 |
12 |
|
18 |
В |
В |
12 |
12 |
|
19 |
12 |
12 |
В |
В |
|
20 |
12 |
12 |
В |
В |
|
21 |
12 |
12 |
В |
В |
|
22 |
В |
В |
12 |
12 |
|
23 |
В |
В |
12 |
12 |
|
24 |
В |
В |
12 |
12 |
|
25 |
12 |
12 |
В |
В |
|
26 |
12 |
12 |
В |
В |
|
27 |
12 |
12 |
В |
В |
|
28 |
В |
В |
12 |
12 |
|
29 |
В |
В |
12 |
|
|
30 |
В |
В |
12 |
12 |
|
Итог |
180 |
180 |
180 |
180 |
автосервис прибыль персонал затраты
Суммарное время рабочего времени 720 часов.
|
Должность |
Часовая тарификация |
Кол-во отработанного времени |
Повременная зарплата |
Премия |
Надбавка за интенсивность |
Итого |
||
|
|
|
|
|
% |
∑ |
% |
∑ |
|
|
Механик 1 |
170 |
180 |
30600 |
5 |
1530 |
|
|
32130 |
|
Механик 2 |
170 |
180 |
30600 |
5 |
1530 |
|
|
32130 |
|
Мастер 1 |
130 |
180 |
23400 |
5 |
1872 |
|
|
25272 |
|
Мастер 2 |
130 |
180 |
23400 |
10 |
2340 |
|
|
25740 |
|
Итого |
|
720 |
108000 |
|
7272 |
|
|
115272 |
З.П.=115272/720=160,1руб/н/ч
10. Отопление
Предоставляется арендодателем.
11. Сжатый воздух
Предоставляется арендодателем.
12. Затраты на оборудование
а) Цены оборудования:
Индустриальная окрасочно-сушильная камера = 3 881 900,00 руб.
б) Общая стоимость оборудования:
Индустриальная окрасочно-сушильная камера = 3 881 900,00 руб.
в) Вариант оплаты: Наличными
г) Расчёт стоимости оборудования на 1нормо/час
881 900/4320=898,58 руб./н.ч.
-это действительный эффективный фонд работы оборудования за календарный год
е) Расчёт суммы амортизации оборудования:
Еаморт.= 718.87*0,15%=1.0783 р/н-ч
Норма амортизации по справочным данным составляет 0,15%
ж) 718.87+1.0783 =719,94831 р/н-ч
. Аренда
Справочные данные по аренде:
Название участка, арендующего данное помещение
название участка "автокрас"
телефон 540-40-40
факс 540-40-41
электронный адрес www.avto@mail.ru
адрес пр. Просвещения, д. 75
Категория предприятия - частное
Цель использования арендуемого помещения - организация автосервиса
Организация участка - подготовка к окраски
Балансовая стоимость - СО 12876688 руб.
Общая полезная площадь здания Sобщ.=1089 м3
Площадь, сдаваемая в аренду Sучастка.=56 м2
Коэффициенты:
) Кп.в.=1
) К1=1
) Кб.с.=1
) К2=0,9
) К3=1
) К4=0,6
) К5=1
) К6=1
) К7=1
) К8=0,6
) К9=0,8
) К10=0,8
) К11=1
МРОТ=5000 руб.
Индекс инфляции Ии=11,8%
Год постройки здания- 2013 год
Категория здания - Здание производственного назначения
Балансосодержатель - Директор
Расчёт арендной платы:
) Стоимость
СМ=(СО*К1)/Пл
СО- стоимость здания на данный момент
К1=1
Пл= площадь здания
СМ= (12876688*1)/1089=11824,32 руб./м2
) а. Коэффициент расположения здания
Кр=К2*К3*К4
Кр=0,9*1*0,6=0,54
б. Коэффициент комфортабельности здания
Кк=К5*К6*К7
Кк=1*1*1=1
) Стоимость одного м2 откорректированная с учётом расположения
и комфортабельности
См2=См*Кр*Кк*К8
См2=11824,32*0,54*1*0,6=3831,07 руб./м2
Арендная плата за 1 м2 арендуемой площади в год
АРп=К9*К10*К11*С м2*Кпв
Арп=0,8*0,8*1*3831,07*1=2451,88руб.
4) Стоимость арендной платы за арендуемую S
АПл=АРп*S учаска
АПл=2451,88*56=137305,28 руб.
) Сумма арендной платы за арендную S в нормо/час
АПл=АПл/(12*30*12)АПл=137305,28/(12*30*12)=31,78 руб./н.ч.
) Арендная плата за квартал
АПлкв= EАПл/4 МРОТ
АПлкв=137305,28/(4*5000)=6,86 мрот
)Арендная плата за месяц
АПлкв= EАПл/12 МРОТ
АПлкв=137305,28/(12*5000)=2,28 мрот
. Предполагаемая выручка
В среднем по городу выручка составляет 4000 руб./ н./ч
При том, что коэффициент загрузки 0,8 выручка составит 4000 руб./н./ч
ЕНВД = 600 руб.
15. Расчёт общих затрат
В этот расчёт входят затраты, отнесённые на 1н/час
Необходимо суммировать затраты из следующих пунктов:
электроэнергия = 3.32руб./н-ч - 19.4 руб./н-ч
водоснабжение = 4.12руб./н-ч - 6.50 руб./н-ч - зарплата=160,1 руб./н/ч
затраты на оборудование (с кредитом и амортизацией)=719,94 руб./нч
аренда = 31,78 руб.
ЕНВД =315 руб.
(х1)Езат. =3.32+4.12+160,1+719,94+31,78+315=1234,26 руб.
(х2)Езат. =19.4+6.50+160,1+719,94+31,78+315=1252,77 руб.
. Расчёт предполагаемой прибыли
(х1)Пред. приб. = выр.кз. - Езат. 3400-1234,26=2165,74 руб.
(х2)Пред. приб. = выр.кз. - Езат. 3400-1252,77=2147,23 руб.
. Расчёт годовых расходов
(х1)Год. зат. = Езат.*12*12*30=1224,26*12*12*30=5228803,2 руб.
(х2)Год. зат. = Езат.*12*12*30=1252,77*12*12*30=5411966,4 руб.
. Расчёт годовой прибыли
(х1)Год.приб. = пред.приб.*12*12*30=2165,74*12*12*30=9355966,8 руб.
(х2)Год.приб. = пред.приб.*12*12*30=2147,23*12*12*30=9276033,6 руб
19. Расчёт рентабельности
(х1)Рент.=Пред.приб/Езат.= 2165,74/586,03=3,69
(х2)Рент.=Пред.приб/Езат.= 2147,23/586,03=3,664
. Примерный срок окупаемости участка
(х1)Прим.срок окуп.= год.зат./ гот.приб.= 5228803,2/9276033,6=0,5 года
(х2)Прим.срок окуп.= год.зат./ гот.приб.= 5411966,4/9276033,6=0,58 года
. Техника безопасности на участке
До начала работы:
1. Поддерживайте чистоту на рабочем месте. Беспорядок на рабочем месте может послужить причиной травм.