Материал: Проектування та розрахунок системи автоматичного пожежогасіння

Внимание! Если размещение файла нарушает Ваши авторские права, то обязательно сообщите нам

Проектування та розрахунок системи автоматичного пожежогасіння

Завдання на курсовий проект

Варіант № 002231

1. Приміщення столярної майстерні цирку 12 х 8 х 3,6 м. 96

(деревина вологістю 20%)

. Гардероб 26 х 12 х 2,8 м. 312 (тканина)

. Бібліотека на 150 тис.

одиниць збереження 38 х 20 х 8 м. 760 (папір)

. Відстань від станції пожежогасіння до захищаємого приміщення 45м.

. Додаткові дані:

Координати місця виникнення пожежі: Х = а/2, Y = в/2.

Стіни з межою розповсюдження вогню £ 30.

Температура в приміщеннях з: АУПГ = 16 0С, АПС = 19 0С.

Відносна вологість в приміщеннях з: АУПГ = 85 %, АПС = 60 %.

Швидкість повітряних потоків в прим. з: АУПГ = 1 м/с, АПС = 1,5 м/с.

1. Вступ

Питання розвитку основних галузей техніки, що характеризуються застосуванням все більш ефективних засобів виробництва та технологічних процесів, досягнень науково-технічного прогресу тісно пов'язані з проблемами пожежної безпеки.

В наш час проблема надійного протипожежного захисту об'єктів народного господарства та інших форм власності, окремих  апаратів та установок продовжує залишатися достатньо актуальною.

На допомогу працівникам МНС, які вирішують цю проблему, прийшла електроніка, обчислювальна техніка, установки пожежної автоматики та зв’язку. Саме у галузі пожежної безпеки діють науково-дослідні інститути, лабораторії, працюють відомі вчені. Їм належить пріоритетні розробки зразків пожежної техніки та систем протипожежного захисту будівель та споруд.

Завдяки цій роботі Україна першою серед країн СНД прийняла Закон "Про пожежну безпеку", який визначив головні напрямки діяльності пожежної охорони, статус пожежної охорони в справі забезпечення пожежної безпеки, забезпечив соціальний захист працівників пожежної охорони. Відповідно до цього постановою Кабінету Міністрів України № 508 від 26.07.94 р. було затверджено "Положення про Державну пожежну охорону", а постановою Кабінету Міністрів України від 01.07.02 р. № 870 затверджено “Програму забезпечення пожежної безпеки на період до 2010 року”, яка визначила основні напрямки діяльності підрозділів пожежної охорони в частині формування матеріально-технічної бази та науково-дослідної діяльності, що дозволить забезпечити належний рівень протипожежного захисту народного господарства країни. Саме тому продовжуються наукові дослідження і пошук нових технічних засобів, що здатні боротися з вогнем.

Крім того, сучасні виробництва мають досить великий рівень пожежної небезпеки. Цьому сприяють вибухопожежонебезпечні матеріали та речовини, що використовуютсья у виробництві, складнощі у плануванні територій та будівель підприємств, автоматизація багатьох виробництв, невелика кількість людей, що працюють на об'єкті. Для захисту цих та інших технічних виробництв та приміщень широко використовуються установки пожежної автоматики. Необхідність обладнання приміщень автоматичними установками пожежегасіння викладені в НАПБ Б.06.044-2005 «Перелік однотипних за призначенням об’єктів, які підлягають обладнанню автоматичними установками пожежогасіння та пожежної сигналізації» (затверджених наказом МНС від 22.08.2005 за № 161), що надає право використовувати його для впровадження на різних об'єктах незалежно від форм власності. До того ж на території України проводяться неодноразові науково-практичні конференції та технічні виставки, на яких більшу частину експонатів становлять технічні засоби, серед яких системи виявлення та гасіння пожеж.

Протягом 2005 року в Україні зареєстровано 92 випадки пожеж і вибухів, які віднесено до надзвичайних ситуацій техногенного характеру.

За масштабами ці НС розподілилися наступним чином:

місцевого рівня - 60;

об'єктового рівня - 32.

У 2005 році порівняно з 2004 роком (71 НС) спостерігається тенденція щодо збільшення кількості НС. Кількість загиблих у 2005 р. (184 особи загинуло та 60 - постраждало) збільшилася на 10%, а кількість постраждалих навпаки значно зменшилася - майже у 3 рази (у 2004 р. загинуло - 170 осіб, постраждало - 170 осіб).

Порівняно з 2004 роком відбулося збільшення у 1,3 рази кількості НС у будівлях та спорудах житлового призначення (57 проти 44), внаслідок яких загинуло 160 осіб, з них 28 дітей та постраждало 15 осіб, з них 3 дитини (у 2004 році загинуло 119 осіб, з них 23 дитини та постраждало 54 особи, з них 4 дитини) та у 1,5 рази кількості НС, пов'язаних із пожежами та вибухами в шахтах, підземних та гірничих виробках (у 2005 році зареєстровано 17 НС, внаслідок яких загинуло 9 осіб та постраждало 16 осіб проти 11 НС у 2004 році, 42 особи загинуло та 67 постраждало).

Майже 90% НС на вугільних шахтах у 2005 році були спричиненні незадовільним станом виробничого середовища та порушенням вимог безпеки під час експлуатації устаткування, машин, механізмів тощо.

Серед пошкоджених внаслідок пожеж та вибухів об'єктів переважають об'єкти з недержавною формою власності.

Матеріальні збитки від надзвичайних ситуацій при пожежах та вибухах у 2005 році становлять понад 10,5 млн. гривень, що у 1,2 разів менше ніж у 2004 році (понад 12,9 млн. гривень).

Використання автоматичних установок пожежної сигналізації та пожежогасіння надає можливість вирішувати проблеми автоматичного протипожежного захисту (АППЗ) об'єктів з інженерного боку, усвідомлено ставити перед вогнем перешкоду, яку він не в змозі подолати в той час, коли поруч немає людей. Пожежна автоматика є складовою частиною протипожежного захисту об’єктів, вона дає змогу забезпечити необхідний рівень безпеки, особливо в початковій стадії розвитку пожежі, тому від правильного вибору, правильності проектування та експлуатації установок пожежної автоматики і залежить ефективність їх спрацювання.

2. Стислий аналіз пожежної небезпеки приміщень

автоматичний пожежогасіння приміщення

Пожежна небезпека приміщень, які розглядаються в даному курсовому проекті різноманітна. Розглянемо пожежну небезпеку кожного із приміщень.

Приміщення столярної майстерні цирку одноповерхове ІІ ступеня вогнестійкості розмірами 12×8 м та висотою 3.6 м. Зовнішні стіни будівлі цегляні товщиною 300 мм та межею вогнестійкості 260 хв., перекриття залізобетонне з межею вогнестійкості 60 хв і одним виходом назовні.

В даному приміщені обертається деревина вологістю 20%. Деревина - це природній горючий матеріал, який широко використовується у народному господарстві. Температура спалахування деревини залежить від виду деревини, її вологості, ступеня подрібненості. Так, наприклад, температура спалахування соснової деревини 255 С, а соснової стружки - 230 °С. В умовах пожежі горіння деревини супроводжується виділенням великої кількості нагрітих до високих температур продуктів горіння та інтенсивним випромінюванням. Все це сприяє швидкому розповсюдженню горіння (масова швидкість вигорання деревини в середньому дорівнює 1 кг/м за хв) і збільшенню площі пожежі, спалиме навантаження приблизно становить 40-80 кг/м2

Так як в даному приміщені в технологічному процесі обертається деревина, то утворюється велика кількість стружок та деревинного пилу що являє собою вибухопожежонебезпечне середовище в даному приміщені.

Даний цех обладнаний різноманітними станками та верстатами за допомогою яких обробляють дерев’яні матеріали. Кожний верстат та станок обладнаний місцевою витяжною вентиляцією. Пожежна небезпека у приміщенні столярної майстерні цирку ускладнюється електрофікованістю виробництва, великим пожежним навантаженням, швидкою задимленістю та високими температурами при пожежі (650 - 1100 0С).

Джерелом запалювання може являтися: необережне поводження з вогнем, при неповній ізоляції верстатів можливий виліт іскор із електродвигуна (під час роботи), неповна ізоляція електропроводів. Шляхами розповсюдження пожежі може бути: вентиляційні шахти, місця біля станків та верстатів де знаходиться велика кількість деревини та її відходів. Приміщення деревообробки по вибухопожежній і пожежній небезпеці буде відноситись до категорії "В" та буде мати зону класу П-IIа згідно Правил будови електроустановок (ДНАОП 0.00-1.32-01).

Приміщення гардеробу знаходиться в одноповерховій будівлі ІІ ступеня вогнестійкості розміром 26×12 м та висотою 2.8 м. Зовнішні стіни будівлі цегляні з товщиною стін 300 мм та межею вогнестійкості 260 хв., перекриття залізобетонне товщиною 180 мм і відстані до осі арматури 40 мм з межею вогнестійкості 60 хв. Також будівля має один вихід назовню.

В даному приміщенні зберігається одяг різних видів, в залежності від пори року. Горючим середовищем є, безпосередньо, тканина, така як

бавовна, хлопок, льон, шкіра, а також вироби із синтетичних речовин, які мають дуже велику швидкість розповсюдження полум’я під час пожежі і густе задимлення отруйними речовинами.

Джерелами запалення можуть бути: пожежонебезпечні прояви електричного струму під час експлуатації електрообладання, необережне поводження з вгнем.

Шляхами розповсюдження пожежі в гардеробі може бути, насамперед, сама тканина, а також горюч будівельні конструкції, дерев’яні вішаки та вентиляційні шахти.

Приміщення бібліотека на 150 тис. одиниць збереження одноповерхове ІІ ступені вогнестійкості, розміром в плані 38×20 м та висотою 8 м. Зовнішні стіни будівлі цегляні, товщиною 510 мм з межею вогнестійкості більше 330 хв., внутрішні перегородки цегляні товщиною 380 мм з межею вогнестійкості 330 хв., перекриття залізобетонне товщиною 180 мм і відстані до осі арматури 40 мм з межею вогнестійкості 60 хв

В даному приміщенні горючим середовищем є, безпосередньо, папір, а також дерев’яні стелажі, на яких зберігаються книги.

Джерелами запалення можуть бути необережне поводження з вогнем, а також пожежонебезпечні прояви електричного струму і несправність електрообладання.

Пожежа в бібліотеці може розповсюджуватися як по книгах, так і по стилажах і дерев’яних конструкціях.

. Обґрунтування необхідності використання та виду установок пожежної автоматики

Для вирішення питання щодо необхідності обладнання приміщень установками пожежної автоматики та його виду (автоматична пожежна сигналізація (АПС) чи автоматичні установки пожежегасіння (АУПГ)) використовують нормативний або розрахунково-графічний методи. Під час використання нормативного методу користуються НАПБ Б.06.044-2005 Перелік однотипних за призначенням об’єктів, які підлягають обладнанню автоматичними установками пожежогасіння та пожежної сигналізації (затверджених наказом МНС від 22.08.2005 за № 161).

Беручи до уваги пожежну небезпеку кожного із приміщень, а також умови виконання курсового проекту визначаємо необхідність обладнання приміщень установками пожежної автоматики.

Так, приймаємо рішення обладнати приміщення столярної майстерні автоматичною установкою пожежегасіння. (п.1.4 НАПБ Б.06.044-2005 Перелік однотипних за призначенням об’єктів, які підлягають обладнанню автоматичними установками пожежогасіння та пожежної сигналізації (затверджених наказом МНС від 22.08.2005 за № 161). Підставою є те, що в приміщенні столярної майстерні знаходиться велика кількість матеріальних цінностей (деревина, готова продукція, дороге технологічне обладнання) і під час пожежі матеріальні збитки від неї будуть набагато більші ніж у інших приміщеннях, також в даній майстерні порівняно велика швидкість розповсюдження пожежі (0,2-0,5 м/хв.).

Приміщення бібліотеки на 150 тис. одиниць зберігання обладнуемо автоматичною пожежною сигналізаціею (п.  1.12 НАПБ Б.06.044-2005 Перелік однотипних за призначенням об’єктів, які підлягають обладнанню автоматичними установками пожежогасіння та пожежної сигналізації (затверджених наказом МНС від 22.08.2005 за № 161)

Приміщення гардеробу обладнуємо автоматичною пожежною сигналізацією. Підставою є те, що в даному приміщенні є велика можливість виникнення пожежі (в приміщені гардеробу знаходиться велика кількість горючих матеріалів, але при пожежі матеріальні збитки будуть незначні)

(п. 1.17 НАПБ Б.06.044-2005 Перелік однотипних за призначенням об’єктів, які підлягають обладнанню автоматичними установками пожежогасіння та пожежної сигналізації (затверджених наказом МНС від 22.08.2005 за № 161)

Роблячи висновок ми приймаємо, що:

Обладнати приміщення столярної майстерні цирку автоматичною установкою пожежогасіння.

Обладнати приміщення бібліотеки на 150 тис. одиниці збереження автоматичною пожежною сигналізацією.

Приміщення гардеробу не приймаємо до уваги, враховуючи його незначну пожежну небезпеку.

. Вибір типу системи АПС

Для захисту приміщення бібліотеки на 150 тис. одиниць збереженя, необхідно застосовувати систему автоматичної пожежної сигналізації. Тому необхідно визначити тип сповіщувачів, якими буде обладнано приміщення.

Згідно з додатком К таблиці К-1 приміщення бібліотеки на 150 тис. одиниць збереженя повинно захищатись димовими пожежними сповіщувачами. Тому для захисту приміщення приймаємо димовий пожежний сповіщувач типу ИПК-4, який має сертифікат відповідності за № UA 1.016.04927-01 від 10.03.2003р., що випускається ВАТ “СКБ Електронмаш”.

Характеристика оповіщувача ИПК-4:

Інертність спрацювання від моменту досягання оптичної плотності 0,2 дб/м,с - не більше 5;

захищаєма площа - 86 кв.м;

чутливість в діапазоні - 0,05-0,2 дб/м;

робоча температура від - 25 до +60 град. С.

відносна вологість повітря - до 95%.

Біля виходу з приміщення встановлюємо ручний пожежний сповіщувач СРП-1

Сповіщувач ручний пожежний СРП.

СРП призначений для подачі сигналу тривоги на технічні засоби пожежної сигналізації при ручній дії на нього людини. Сповіщувач спрацьовує при розбитті скла та переведенні (натисканні) перемикача в положення “Тривога”. СРП має схему індикації, яка приймає та відображує зворотній сигнал від технічних засобів пожежної сигналізації, які забезпечують таку можливість.

Технічні характеристики:

Робоча напруга

при роботі без індикації, В 10 - 42

Робочий діапазон температур, °С -10 - +50

Вага, кг до 0,12

Розміри, мм 80х80х44

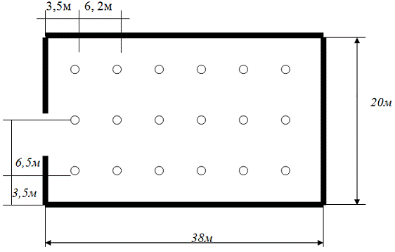
Приміщення бібліотеки на 150 тис. одиниць збережен я має розміри в плані 38 х 20 м і висоту 8 м, враховуючи вимоги ДБН В 2.5.13-98, виконуємо розташування сповіщувачів в захищаємому приміщенні за схемою квадратного розміщення пожежних сповіщувачів.


В якості приймальної апаратури, яка приймає сигнали від сповіщувачів, застосовуємо контрольно-приймальний прилад “ОРІОН-2П” який має сертифікат відповідності за № UA 1.016.31356-01 від 04.12.2001 р. Даний контрольно-приймальний прилад вибираємо з врахуванням вимог ДБН В.2.5-13-98 (необхідно не менше 10 % запасу шлейфів) та економічної доцільності .

Характеристика контрольно-приймального приладу “ОРІОН-2П”:

ємність - 2 шлейфа;

живлення основне - 220 В;

живлення резервне - 12 В (забезпечує роботу в черговуму режимі 24 год. в режимі “Пожежа” - 3 год.);

має наступні виходи:

релейний вихід на ПЦН “Пожежа”;

релейний вихід на ПЦН “Аварія”;

релейний вихід на керування оповіщуванням та вентиляцією;

вихід для живлення сповіщувачів (12 В);

вихід на звукові оповіщувачі

можливе підключення будь-яких сповіщувачів.

Приймальну апаратуру розташовуємо в одному з приміщень де здійснюється цілодобове чергування персоналу об”єкта з урахуванням вимог п.п. 1.6.13 - 1.6.14 ДБН В 2.5-13-98. В якості пристрою для оповіщення про пожежу крім вбудованого в пульт сигналізатору, що видає тонально-модульований сигнал, біля захищаємих приміщень влаштовано додаткові сирени для сповіщення персоналу про пожежу.

Після розташування сповіщувачів здійснюємо трасування лінійної частини системи АПС.


Розрахунок АПС.

Визначаємо необхідну кількість сповіщувачів.


Попередньо приймаємо 9 пожежних сповіщувачів.

Найбільша відстань між димовими сповіщувачами при висоті розташування до 10 м становить 8 м при площі, яка контролюється одним сповіщувачем 86 м2, тоді відстань між сповіщувачами буде до  рівнювати: