строительный фундамент свайной подвал
Цель работы является изучение вопросов проектирования устройства фундаментов и их оснований для жилого 16-этажного дома.
В проекте разработаны вопросы расчета и конструирования ленточного фундамента сборного типа и свайного фундамента с монолитным ростверком.
В ходе выполнения проекта вырабатываются навыки анализа инженерно-геологических условий строительной площадки, определение нагрузок на фундамент и конструирования элементов фундамента.
Полученные в результате работы знания и умения несут необходимый для инженера характер, поскольку от правильно выбранного основания и конструкции фундамента зависит нормальная эксплуатация здания.
Сложность проектирования заключается в том, что основные размеры фундаментов определяются расчетом, исходя из прочности и устойчивости грунтов оснований.
В процессе проектирования были выполнены следующий виды работ:
· Установлены для каждого фундаменты давления на грунт основания.
· Подобраны основные размеры фундаментов.
· Разработаны конструкции.
· Рассчитан
свайный фундамент.
Определение вида песчаных грунтов по размерам минеральных частиц.
3-й слой - песок, глубина взятия образца 10,0 м.
Гранулометрический
состав грунта, %
> 2
2 - 0,5
0,5 - 0,25
0,25 - 0,1
< 0,1
Частные остатки
2,0
22,0
32,0
15,0
29,0
Полные остатки
2,0
24,0
56,0
71,0
100,0
Условные
> 25
> 50
> 50
> 75
< 75
Вид песчаных грунтов
Гравелистые
Крупные
Средней крупности
Мелкие
Пылеватые
Песок средней крупности
Определение плотности сложения слоев
грунта
где: ρ - плотность грунта, т/м3
γ - удельный вес грунта, кН/м3
где: ρS - плотность твердых частиц, т/м3
γS - удельный вес твердых частиц, кН/м3
где: ρ - плотность сухого
грунта, т/м3
W - влажность, %
Определение коэффициента пористости слоев грунта:
где: e - коэффициент пористости грунта
Определение степени влажности грунта:
где: Sr - коэффициент водонасыщения,
ρW - плотность воды, т/м3
По влажности песчаный грунт (песок средней крупности) можно
отнести к насыщенному водой.
Определение числа пластичности
где: JP
- число пластичности;
WL - влажность на границе текучести, %;
WP - влажность на границе раскатывания, %.
слой 1.
В соответствии с индексом пластичности JP грунт слоя 1 можно отнести к супесям
пылеватым.
слой 2.
В соответствии с индексом пластичности JP грунт слоя 2 можно отнести к суглинкам
легким пылеватым.
Определение показателя консистенции (индекса текучести)
где: JL - индекс текучести;
слой 1.
В соответствии с индексом текучести JL грунт слоя 1 можно отнести к супесям пылеватым
пластичным.
слой 2.
В соответствии с индексом текучести JL грунт слоя 2 можно отнести к суглинкам
пылеватым полутвердым.
Определение плотности сложения слоев грунта
слой 1.
слой 2.
Определение коэффициента пористости слоев грунта:
слой 1.
слой 2.
Определение степени влажности грунтов:
слой 1.
слой 2.
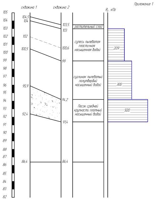
Все физические характеристики грунтов сведем в таблицу 1.
Таблица 1. Физические характеристики слоев грунта строительной
площадки
№ слоя
ρ, т/м3
ρS, т/м3
e
Sr
JP
JL
Литологическое описание
грунта
R0, кПа
1
1,85
2,64
0,867
0,938
0,07
0,829
Супесь пылеватая пластичная насыщенная водой
209
2
2,2
2,7
0,4
0,945
0,08
0
Суглинок легкий пылеватый полутвердый
насыщенный водой
300
3
2,01
2,64
0,528
0,815
-
-
Песок средней крупности плотный насыщенный
водой
500
· для стены с оконными проемами · для глухой стены · для колонны где А1 - грузовая площадь стены с проемами, м2;
gпод - вес подвального перекрытия, кН/м2;
gэт - вес этажного перекрытия, кН/м2;
gкр - вес крыши, кН/м2;
n - количество этажей здания;
В-расстояние
между центрами оконных блоков, м;
t - толщина стены, м;
h - высота этажа, м;
l1, l2 - ширина и высота оконного блока, м;
γст - удельный вес материала стены, кН/м3.
где gснег - нормативное значение снеговой нагрузки,
кПа.
Для города Ижевск нормативное давление снежного покрова
составляет 2,5 кПа (согласноТСН 20-01-05)
где gполезн - нормативная нагрузка от людей, кН/м2;
ψAn - понижающий коэффициент нагрузки.
где A - нормативная грузовая площадь, А
= 9 м2.
где С - нормативная грузовая длина участка стены, С = 1
м.
где f - ширина колонны, f = 0,3 м;
γкол - удельный вес материала колонны (бетон),
кН/м3.
Таким образом, полные нагрузки составили:
· на стену с проемами · на глухую стену · на колонну Глубина заложения фундамента определяется в зависимости от
конструктивных особенностей здания, от его назначения, глубины промерзания.
Расчетная глубина промерзания определяется по формуле:
где kh - коэффициент, учитывающий влияние
теплового режима сооружения, dfn - нормативная глубина промерзания. Для г.
Ижевск она определяется следующим образом:
Принимаем Определяем предварительные размеры фундамента в плане.
Принимаем плиту железобетонную для ленточных фундаментов
(фундаментную подушку) марки ФЛ.28.12-1 ГОСТ 13580-85.
Принимаем стеновой блок подвала марки ФБС 12.5.6-Т ГОСТ 13579-78
Определяем количество блоков:
Принимаем 1 блок.
Определяем фактическое напряжение под подошвой фундамента:
Вес одного погонного метра фундамента:
где Gгр - вес грунта на обрезах фундамента
Определяем расчетное сопротивление грунта основания под подошвой
фундамента.
где γС1, γС2 - коэффициенты условий работы, для супеси пылеватой
пластичной Mγ, Mq, MC - коэффициенты, принимаемые по таблице
5.3 СП50-101-2004 «Проектирование и устройство оснований и фундаментов зданий и
сооружений»;
d1 - глубина заложения фундаментов, м, бесподвальных
сооружений от уровня планировки или приведенная глубина заложения наружных и
внутренних фундаментов от пола подвала. При плитных фундаментах за d1 принимают наименьшую глубину от подошвы плиты до уровня
планировки, м;
b - ширина подошвы фундамента, м;
db - глубина подвала, расстояние от уровня планировки до пола подвала,
м (для сооружений с подвалом глубиной свыше 2 м принимают равным 2 м);
kz - коэффициент, учитывающий ширину подушки
фундамента (при b<10 м kz =1);
k - коэффициент, принимаемый равным 1,1 если прочностные
характеристики грунта (φ и С) приняты по таблицам;
CII - удельная сила сцепления грунта, кПа.
Сравнивая с фактической нагрузкой, получаем, что грунт перегружен
на 175%. В связи с этим принимаем решение о полной замене несущего слоя грунта
с супеси пылеватой на песок средней крупности (слой 3 данной строительной
площадки).
Физические характеристики этого грунта:
Удельный вес Удельный вес частиц Влажность Угол внутреннего трения Удельная сила сцепления Построим новый геологический разрез.
Определим размеры фундамента с учетом нового грунта.
Определяем предварительные размеры фундамента в плане.
Принимаем плиту железобетонную для ленточных фундаментов
(фундаментную подушку) марки ФЛ.16.12-4 ГОСТ 13580-85.
Принимаем стеновой блок подвала марки ФБС 12.5.6-Т ГОСТ 13579-78
Определяем количество блоков:
Принимаем 1 блок.
Определяем фактическое напряжение под подошвой фундамента:
Вес одного погонного метра фундамента:
где Gгр - вес грунта на обрезах фундамента
Определяем расчетное сопротивление грунта основания под подошвой
фундамента.
где γС1, γС2 - коэффициенты условий работы, для песка средней крупности
Mγ, Mq, MC - коэффициенты, принимаемые по таблице
5.3 СП50-101-2004 «Проектирование и устройство оснований и фундаментов зданий и
сооружений»;
d1 - глубина заложения фундаментов, м, бесподвальных
сооружений от уровня планировки или приведенная глубина заложения наружных и
внутренних фундаментов от пола подвала. При плитных фундаментах за d1 принимают наименьшую глубину от подошвы плиты до уровня
планировки, м;
b - ширина подошвы фундамента, м;
db - глубина подвала, расстояние от уровня планировки до пола подвала,
м (для сооружений с подвалом глубиной свыше 2 м принимают равным 2 м);
kz - коэффициент, учитывающий ширину подушки
фундамента (при b<10 м kz =1);
k - коэффициент, принимаемый равным 1,1 если прочностные
характеристики грунта (φ и С) приняты по таблицам;
CII - удельная сила сцепления грунта, кПа.
Определим Найдем удельный вес грунта слоя 1 с учетом взвешивающего действия
воды:
Осредненное значение удельного веса грунтов ниже подошвы
фундамента:
Принимаем под стену с проемами фундаментную подушку ФЛ.16.12-4
ГОСТ 13580-85.
Определяем предварительные размеры фундамента в плане.
Принимаем плиту железобетонную для ленточных фундаментов
(фундаментную подушку) марки ФЛ.20.12-4 ГОСТ 13580-85.
Принимаем стеновой блок подвала марки ФБС 12.5.6-Т ГОСТ 13579-78
Определяем количество блоков:
Принимаем 1 блок.
Определяем фактическое напряжение под подошвой фундамента:
Вес одного погонного метра фундамента:
где Gгр - вес грунта на обрезах фундамента
Определяем расчетное сопротивление грунта основания под подошвой
фундамента.
Определим Найдем удельный вес грунта слоя 1 с учетом взвешивающего действия
воды:
Осредненное значение удельного веса грунтов ниже подошвы
фундамента:
Принимаем фундаментную подушку марки ФЛ.20.12-4 ГОСТ 13580-85.
Определяем предварительные размеры фундамента в плане.
Принимаем фундамент стаканного типа 1Ф13: Вес фундамента
Полная высота фундамента:
Вес грунта на обрезах фундамента:
Полный вес фундамента с грунтом:
Определяем расчетное сопротивление грунта основания под подошвой
фундамента.
Определим Найдем удельный вес грунта слоя 1 с учетом взвешивающего действия
воды:
Принимаем фундамент стаканного типа 1Ф13 и под него квадратную
железобетонную двухступенчатую монолитную плиту 2,4 х 2,4 м.
Определяем предварительные размеры фундамента в плане.
Принимаем плиту железобетонную для ленточных фундаментов
(фундаментную подушку) марки ФЛ.16.12-1 ГОСТ 13580-85.
Принимаем стеновой блок подвала марки ФБС 12.5.6-Т ГОСТ 13579-78
Принимаем 3 блока.
Вес одного погонного метра фундамента:
где Gгр - вес грунта на обрезах фундамента
Осредненное значение удельного веса грунтов выше подошвы
фундамента:
Суммарное усилие, действующее в плоскости подошвы фундамента:
Расчетный угол внутреннего трения (средневзвешенное значение):
Приведенная высота
где q - величина пригрузки, q=10 кПа.
Боковое давление на уровне подошвы фундамента определим по
формуле:
где Равнодействующую активного давления грунта определим по
формуле:
Высоту точки приложения равнодействующей активного давления,
считая от подошвы фундамента, определим по формуле:
Момент равнодействующей активного давления грунта относительно
подошвы фундамента:
Эксцентриситет нагрузки от перекрытия подвала относительно оси
стены фундамента определим с учетом глубины заделки подвального перекрытия 10
см.
Момент от внецентренного приложения нагрузки от перекрытия подвала
найдем по формуле:
Момент от веса грунта на уступах фундамента
где е3 - величина эксцентриситета, b - ширина подошвы фундамента, м;
bc - ширина стены фундамента, м.
Суммарный момент всех сил относительно подошвы фундамента:
Эксцентриситет приложения равнодействующей активного давления
Поэтому проверим условие
Условие соблюдается.
Проверим выбранный фундамент с учетом слабого подстилающего слоя.
Для определения влияния слабого подстилающего слоя определим давление на его
кровлю.
Для ленточного фундамента при где Следовательно давление на кровлю слабого грунта будет:
Площадь условного фундамента:
Определим расчетное сопротивление грунта с учетом Таким образом, фундамент подходит.
Принимаем фундаментную подушку марки ФЛ.16.12-4 ГОСТ
13580-85.
Определяем предварительные размеры фундамента в плане.
Принимаем плиту железобетонную для ленточных фундаментов
(фундаментную подушку) марки ФЛ.20.12-1 ГОСТ 13580-85.
Принимаем стеновой блок подвала марки ФБС 12.5.6-Т ГОСТ 13579-78
Определяем количество блоков:
Принимаем 3 блока.
Вес одного погонного метра фундамента:
где Gгр - вес грунта на обрезах фундамента
Суммарное усилие, действующее в плоскости подошвы фундамента:
Расчетный угол внутреннего трения (средневзвешенное значение):
Приведенная высота
где q - величина пригрузки, q=10 кПа.
Боковое давление на уровне подошвы фундамента определим по
формуле:
где Равнодействующую активного давления грунта определим по формуле:
Высоту точка приложения равнодействующей активного давления,
считая от подошвы фундамента, определим по формуле:
Момент равнодействующей активного давления грунта относительно подошвы
фундамента:
Эксцентриситет нагрузки от перекрытия подвала относительно оси
стены фундамента определим с учетом глубины заделки подвального перекрытия 10
см.
Момент от внецентренного приложения нагрузки от перекрытия подвала
найдем по формуле:
Момент от веса грунта на уступах фундамента
где е3 - величина эксцентриситета, b - ширина подошвы фундамента, м;
bc - ширина стены фундамента, м.
Суммарный момент всех сил относительно подошвы фундамента:
Эксцентриситет приложения равнодействующей активного давления
Поэтому проверим условие
Проверим выбранный фундамент с учетом слабого подстилающего слоя.
Для определения влияния слабого подстилающего слоя определим давление на его
кровлю.
Для ленточного фундамента при где Следовательно давление на кровлю слабого грунта будет:
Площадь условного фундамента:
Определим расчетное сопротивление грунта с учетом Таким образом, фундамент подходит.
Принимаем фундаментную подушку марки ФЛ.20.12-1 ГОСТ 13580-85.
Определяем предварительные размеры фундамента в плане.
Принимаем фундамент стаканного типа 1Ф21: Вес фундамента
Полная высота фундамента:
Вес грунта на обрезах фундамента:
Определяем расчетное сопротивление грунта основания под подошвой
фундамента.
Принимаем фундамент стаканного типа 1Ф21 и под него квадратную
железобетонную двухступенчатую монолитную плиту 3,9 х 3,9 м.
Предварительно принимаем сплошную сваю с поперечным
армированием ствола и с не напрягаемой арматурой длиной 8 м и сечением 40х40
см. Марка С80.40 ГОСТ 19804-91.
Расчетное сечение сваи по грунту:
где γс - коэффициент условий работы сваи в грунте, γg - коэффициент надежности по грунту, γсR и γсf - коэффициенты условий работы грунта
соответственно под нижним концом и на боковой поверхности сваи, учитывающие
влияние способа погружения сваи на расчетные сопротивления грунта.
А - площадь
опирания сваи на грунт;
R - расчетное сопротивление грунта под нижним концом сваи;
U - наружный периметр поперечного сечения сваи;
fi - расчетное сопротивление i-го слоя грунта основания на боковой поверхности сваи;
hi - толщина i-го слоя грунта, соприкасающегося с боковой поверхностью сваи.
Для определения расчетной силы трения по боковой поверхности сваи
каждый пласт грунта делим на слои не более 2 м.
Результаты определения:
Для стены с проемами:
Полученное расстояние удовлетворяет условию Для глухой стены:
Полученное расстояние удовлетворяет условию Для стены с проемами:
Полученное расстояние удовлетворяет условию Определяем количество свай под колонну:
Принимаем сваи С80.40 и расстояние между ними Расстояние от края ростверка внешней стороны сваи при
свободной заделке её в ростверк в вертикально нагруженных сваях принимается при
однорядном их расположении:
Ширина Высота ростверка Определяем высоту h1 из
условия прочности на продавливание ростверка сваей по формуле:
где Тогда высота ростверка Принимаем высоту ростверка Для определения параметров ростверка под колонну используем
следующие формулы:
Ширина Глубина заделки колонны - 60 см.
Расчет на продавливание колонной квадратного сечения центрально
нагруженного ростверка проведем следующим образом:
где c - расстояние от грани колонны до боковой грани сваи,
расположенной за пределами фигуры продавливания;
α - коэффициент, учитывающий частичную
передачу продольной силы на плитную часть через стенки стакана, определяемый по
формуле
здесь Af - площадь боковой
поверхности колонны, заделанной в стакан фундамента, определяемая по формуле
здесь bcol, hcol - размеры сечения колонны;
hапс - глубина заделки
колонны в стакан фундамента.
Примем значение Расчетная продавливающая сила
Таким образом, Полная высота ростверка Определяем величины расчетных нагрузок на сваи с учетом нагрузок
от веса ростверка и грунта на его уступах.
Вес ростверка Вес грунта на полках ростверка Полная нагрузка на сваи
Нагрузка на одну сваю Расчет ростверка на продавливание угловой сваей выполним по
следующим формулам:
где Fai - расчетная нагрузка на угловую сваю с учетом
моментов в двух направлениях, включая влияние местной нагрузки (например, от
стенового заполнения), h01 - рабочая высота сечения на проверяемом участке, равная
расстоянию от верха свай до верхней горизонтальной грани плиты ростверка или
его нижней ступени;
01; b02 - расстояния от внутренних граней угловых свай до наружных
граней плиты ростверка;
c01; c02 - расстояния от внутренних граней угловых
свай до ближайших граней подколенника ростверка или до ближайших граней ступени
при ступенчатом ростверке;
Определяем предельную нагрузку на сваю, которую может воспринять
плита ростверка из условия ее продавливания угловой сваей
Исходные данные: Определяем ординаты эпюры вертикального напряжения от действия
собственного веса грунта и вспомогательной эпюры Скачок эпюры вертикального напряжения на границе водоупорного слоя
характеризуется следующей ординатой:
Дополнительное давление под подошвой фундамента:
где Определяем ординаты эпюры дополнительного давления
где α - коэффициент, учитывающий уменьшение дополнительного
напряжение по глубине.
Разобьем сжимаемую толщу на элементарные слои толщиной
Полную осадку определим по формуле:
где Рассчитаем модули деформации каждого слоя. Воспользуемся формулами:
где: mv
- коэффициент относительной сжимаемости;
m0 - коэффициент сжимаемости.
По заданию В случае если слой высотой h попадает на границу слоев грунта, рассчитываем средневзвешенное
значение модуля деформации.
Все результаты сведем в таблицу:
0
0
1
319,60
20372
0,00755
0,64
0,8
0,881
281,57
20372
0,00612
1,28
1,6
0,642
205,18
20372
0,00449
1,92
2,4
0,477
152,45
20372
0,00342
2,56
3,2
0,374
119,53
14010
0,00397
3,2
4
0,306
97,80
14010
0,00329
3,84
4,8
0,258
82,46
14010
0,00281
4,48
5,6
0,223
71,27
14010
0,00245
5,12
6,4 62,64
14010
0,00217
5,76
7,2
0,175
55,93
14010
0,00194
6,4
8
0,158
50,50
14010
0,00176
7,04
8,8
0,143
45,70
20372
0,00110
7,68
9,6
0,132
42,19
20372
0,00102
8,32
10,4
0,122
38,99
20372
0,00094
8,96
11,2
0,113
36,11
20372
0,00088
9,6
12
0,106
33,88
20372
0,00043
Суммарная осадка
0,04435
Полная осадка равна 4,4 см < 10 см, условие выполняется.
Исходные данные: Ординаты эпюры вертикального напряжения от действия собственного
веса грунта и вспомогательной эпюры Дополнительное давление под подошвой фундамента:
где Определяем ординаты эпюры дополнительного давления
где α - коэффициент, учитывающий уменьшение дополнительного
напряжение по глубине.
Разобьем сжимаемую толщу на элементарные слои толщиной
Полную осадку определим по формуле:
где Все результаты сведем в таблицу:
0
0
1
305,30
20372
0,00902
0,8
0,8
0,881
268,97
20372
0,00730
1,6
1,6
0,642
196,00
16793
0,00651
2,4
2,4
0,477
145,63
14010
0,00593
3,2
3,2
0,374
114,18
14010
0,00474
4
4
0,306
93,42
14010
0,00393
4,8
4,8
0,258
78,77
14010
0,00335
5,6
5,6
0,223
68,08
14010
0,00292
6,4
6,4
0,196
59,84
20372
0,00178
7,2
7,2
0,175
53,43
20372
0,00160
8
8
0,158
48,24
20372
0,00144
8,8
8,8
0,143
43,66
20372
0,00132
9,6
9,6
0,132
40,30
20372
0,00124
10
10
0,126
38,47
20372
0,00030
Суммарная осадка
0,05140
Полная осадка равна 5,1 см < 10 см, условие выполняется.
Исходные данные: Ординаты эпюры вертикального напряжения от действия собственного
веса грунта и вспомогательной эпюры Определяем ординаты эпюры дополнительного давления
где α - коэффициент, учитывающий уменьшение дополнительного
напряжение по глубине.
Разобьем сжимаемую толщу на элементарные слои толщиной
Полную осадку определим по формуле:
где Все результаты сведем в таблицу:
0
0
1
469,93
20372
0,01594
0,96
0,8
0,8
375,94
14010
0,01609
1,92
1,6
0,449
211,00
14010
0,00909
2,88
2,4
0,257
120,77
14010
0,00537
3,84
3,2
0,16
75,19
14010
0,00345
4,8
4
0,108
50,75
14010
0,00238
5,76
4,8
0,077
36,18
20372
0,00120
6,72
5,6
0,058
27,26
20372
0,00091
7,68
6,4
0,045
21,15
20372
0,00072
8,64
7,2
0,036
16,92
20372
0,00058
9,6
8
0,029
13,63
20372
0,00026
Суммарная осадка
0,05599
Полная осадка равна 5,6 см < 10 см, условие выполняется.
Исходные данные: Ординаты эпюры вертикального напряжения от действия собственного
веса грунта и вспомогательной эпюры Дополнительное давление под подошвой фундамента:
где Определяем ординаты эпюры дополнительного давления
где α - коэффициент, учитывающий уменьшение дополнительного
напряжение по глубине.
Разобьем сжимаемую толщу на элементарные слои толщиной
Полную осадку определим по формуле:
где Все результаты сведем в таблицу:
0
0
1
305,80
20372
0,00723
0,64
0,8
0,881
269,41
17092
0,00698
1,28
1,6
0,642
196,32
14010
0,00625
1,92
2,4
0,477
145,87
14010
0,00476
2,56
3,2
0,374
114,37
14010
0,00380
3,2
4
0,306
93,57
14010
0,00315
3,84
4,8
0,258
78,90
14010
0,00269
4,48
5,6
0,223
68,19
14010
0,00234
5,12
6,4
0,196
59,94
14010
0,00207
5,76
7,2
0,175
53,52
16098
0,00162
6,4
8
0,158
48,32
20372
0,00116
7,04
8,8
0,143
43,73
20372
0,00106
7,68
9,6
0,132
40,37
20372
0,00098
8,32
10,4
0,122
37,31
20372
0,00090
8,96
11,2
0,113
34,56
20372
0,00043
Суммарная осадка
0,04541
Полная осадка равна 4,5 см < 10 см, условие выполняется.
Исходные данные: Дополнительное давление под подошвой фундамента: где Определяем ординаты эпюры дополнительного давления
где α - коэффициент, учитывающий уменьшение дополнительного
напряжение по глубине.
Разобьем сжимаемую толщу на элементарные слои толщиной
Полную осадку определим по формуле:
где Все результаты сведем в таблицу:
0
0
1
292,40
20372
0,00864
0,8
0,8
0,881
257,60
14010
0,01017
1,6
1,6
0,642
187,72
14010
0,00747
2,4
2,4
0,477
139,47
14010
0,00568
3,2
3,2
0,374
109,36
14010
0,00454
4
4
0,306
89,47
14010
0,00377
4,8
4,8
0,258
75,44
15998
0,00281
5,6
5,6
0,223
65,21
20372
0,00192
6,4
6,4
0,196
57,31
20372
0,00170
7,2
7,2
0,175
51,17
20372
0,00153
8
8
0,158
46,20
20372
0,00138
8,8
8,8
0,143
41,81
20372
0,00066
Суммарная осадка
0,05029
Полная осадка равна 5,0 см < 10 см, условие выполняется.
Исходные данные: Ординаты эпюры вертикального напряжения от действия собственного
веса грунта и вспомогательной эпюры Определяем ординаты эпюры дополнительного давления
где α - коэффициент,
учитывающий уменьшение дополнительного напряжение по глубине.
Разобьем сжимаемую толщу на элементарные слои толщиной
Полную осадку определим по формуле:
где Все результаты сведем в таблицу:
0
0
1
138,90
14010
0,01114
1,56
0,8
0,8
111,12
14010
0,00773
3,12
1,6
0,449
62,37
14010
0,00437
4,68
2,4
0,257
35,70
20372
0,00177
6,24
3,2
0,16
22,22
20372
0,00068
Суммарная осадка
0,02569
Полная осадка равна 2,6 см < 10 см, условие выполняется.
Определим параметры условного фундамента.
Подошва условного фундамента располагается на глубине 8,3 м
от уровня планировки. Определим ширину условного фундамента из расчета того,
что подошва ростверка располагается на отметке 0,3 м ниже уровня планировки.
Для свайного фундамента с однорядным расположением свай
ширина условного фундамента равна:
где d - ширина сечения сваи;
где где Вес погонного метра ростверка:
Вес одной сваи:
Вес сваи с учетом шага:
Вес грунта в объеме условного фундамента:
Давление под подошвой условного фундамента определим по формуле:
Условный фундамент опирается на песок средней крупности. Определим
осредненный удельный вес грунтов, залегающих выше подошвы условного фундамента:
Определим расчетное сопротивление грунта основания под подошвой
условного фундамента:
Для определения осадки найдем природное напряжение на уровне
подошвы условного фундамента.
Дополнительное напряжение под подошвой условного фундамента:
Разобьем сжимаемую толщу на элементарные слои толщиной
Полную осадку определим по формуле:
где Все результаты сведем в таблицу:
0
0
1
240,70
20372
0,00789
0,888
0,8
0,881
212,06
20372
0,00639
1,776
1,6
0,642
154,53
20372
0,00470
2,664
2,4
0,477
114,81
20372
0,00200
Суммарная осадка
0,02098
Полная осадка равна 2,1 см < 10 см, условие выполняется.
Определение параметров условного фундамента для данного
участка совпадает с предыдущими расчетами.
Вес сваи с учетом шага:
Давление под подошвой условного фундамента определим по формуле:
Расчетное сопротивление грунта основания под подошвой условного
фундамента:
Для определения осадки найдем природное напряжение на уровне
подошвы условного фундамента.
Дополнительное напряжение под подошвой условного фундамента:
Разобьем сжимаемую толщу на элементарные слои толщиной
Полную осадку определим по формуле:
где Все результаты сведем в таблицу:
0
0
1
299,70
20372
0,00983
0,888
0,8
0,881
264,04
20372
0,00796
1,776
1,6
0,642
192,41
20372
0,00585
2,664
2,4
0,477
142,96
20372
0,00249
Суммарная осадка
0,02613
Полная осадка равна 2,6 см < 10 см, условие выполняется.
Определим параметры условного фундамента.
Подошва условного фундамента располагается на глубине 9,3 м
от уровня планировки. Определим ширину условного фундамента из расчета того,
что подошва ростверка располагается на отметке 1,35 м ниже уровня планировки.
Ширина условного фундамента равна:
где где где Вес ростверка: Вес свай: Вес грунта в объеме условного фундамента:
Давление под подошвой условного фундамента определим по формуле:
Условный фундамент опирается на песок средней крупности. Определим
осредненный удельный вес грунтов, залегающих выше подошвы условного фундамента:
Определим расчетное сопротивление грунта основания под подошвой
условного фундамента:
Для определения осадки найдем природное напряжение на уровне
подошвы условного фундамента.
Дополнительное напряжение под подошвой условного фундамента:
Разобьем сжимаемую толщу на элементарные слои толщиной
Полную осадку определим по формуле:
где Все результаты сведем в таблицу:
0
0
1
296,42
20372
0,00780
0,7
0,4
0,96
284,56
20372
0,00701
1,4
0,8
0,8
237,14
20372
0,00560
2,1
1,2
0,606
179,63
20372
0,00241
Суммарная осадка
0,02282
Полная осадка равна 2,3 см < 10 см, условие выполняется.
Библиографический список
1. Далматов
Б.И. Механика грунтов, основания и фундаменты - Л.: Стройиздат, Ленингрю отд.,
1988.
2. Кнаупе
В. Устройство котлованов и водопонижение. под ред. Бурлакова В.Н., Сорокина
В.В. - М.: Стройиздат, 1988.
. Петрухин
В.П., Колыбин И.В., Разводовский Д.Е. (НИИОСП) Ограждающие конструкции
котлованов, методы строительства подземных и заглубленных сооружений
4. Лабораторный практикум. ТулГУ. 2008 г.
5. Прохоров
Н.И. Проектирование оснований и фундаментов горнотехнических зданий и
сооружении. - Тула. ТулГУ. 2010
. СП
50-101-2004 Проектирование и устройство оснований и фундаментов зданий и
сооружений. - М.; 2005
. СП
50-102-2003 Проектирование и устройство свайных фундаментов. - М.; 2004.
. СП
22.13330.2011 Основания зданий и сооружений Актуализированная редакция СНиП
2.02.01-83*, Москва, 2011
. СП
20.13330.2011 Нагрузки и воздействия Актуализированная редакция СНиП
2.01.07-85* Москва, 2011
. СП
24.13330.2011 Свайные фундаменты Актуализированная редакция СНиП 2.02.03-85
Москва, 2011
. Пособие
по проектированию железобетонных ростверков свайных фундаментов под колонны
зданий и сооружений (к СНиП 2.03.01-84). Москва. Центральный
институт типового проектирования, 1985.
(1)
(2)
(3)
(4)
- песок средней крупности плотный.
(5)
1.2
Характеристики глинистых грунтов
(6)
(7)
- супесь, насыщенная водой.
- суглинок, насыщенный водой.
2.
Определение нагрузок на фундамент
2.1
Определение размеров грузовых площадей
.2
Сбор нагрузок
Для
стены с проемами
(8)
, (9)
(10)
, (11)
, где (12)
(13)
, (14)
Для глухой стены
,
Для колонны
,
3. Глубина заложения фундамента
,
,
.
4.
Определение параметров ленточного фундамента в части здания без подвала
4.1 Определение размеров фундаментов
Под
стену с проемами
,
,
, вес плиты
.
,
,
, бетон 0,33 м3, сталь 1,46 кг, масса блока
.
,
,
;
- осредненное расчетное значение удельного веса грунтов,
залегающих ниже подошвы фундамента, кН/м3;
- то же, для грунтов, залегающих выше подошвы фундамента, кН/м3;
,
,
,
.
,
,
, вес плиты
.
,
,
, бетон 0,33 м3, сталь 1,46 кг, масса блока
.
,
,
;
- осредненное расчетное значение удельного веса грунтов,
залегающих ниже подошвы фундамента, кН/м3;
- то же, для грунтов, залегающих выше подошвы фундамента, кН/м3;
,
,
для глубины
ниже подошвы фундамента.
.
, недонапряжение составляет 16,1%.
Под
глухую стену
,
,
, вес плиты
.
,
,
, бетон 0,33 м3, сталь 1,46 кг, масса блока
.
,
для глубины
ниже подошвы фундамента.
.
, недонапряжение составляет 30%.
Под
колонну
,
,
и под него квадратную железобетонную
двухступенчатую монолитную плиту:
,
,
.
.
для глубины
ниже подошвы фундамента.
.
, недонапряжение составляет 27,2%.
5.
Определение параметров ленточного фундамента в части здания с подвалом
.1
Определение размеров фундаментов
Под
стену с проемами
,
,
, вес плиты
.
,
,
, бетон 0,33 м3, сталь 1,46 кг, масса блока
.
,
,
.
,
.
.
.
,
,
.
.
,
.
найдем
. Тогда
,
- глубина кровли слабого подстилающего
слоя.
.
.
,
,
,
.
.
Под
глухую стену
,
,
, вес плиты
.
,
,
, бетон 0,33 м3, сталь 1,46 кг, масса блока
.
,
,
.
,
.
.
.
,
,
.
.
,
.
.
найдем
. Тогда
,
- глубина кровли слабого подстилающего
слоя.
.
.
,
,
,
.
.
Под
колонну
,
,
и под него квадратную железобетонную
двухступенчатую монолитную плиту:
,
,
.
.
Полный вес фундамента с грунтом:
![]()
, недонапряжение составляет 14,7%.
6.
Определение параметров свайного фундамента в части здания без подвала
.1
Определение несущей способности сваи
,
;
;
,
,
,
,
,
,
,
,
,
,
,
,
,
,
,
,
Определяем количество свай под стены по формуле:
.
.
.
.
.
6.2
Определение параметров ростверка под стены
.
, где
- заделка сваи в ростверк.
,
- расчетное сопротивление бетона В25 на
растяжение.
.
.
.
6.3
Определение параметров ростверка под колонну
. Принимаем значение
.
.
,
- расчетная продавливающая сила, равная
сумме реакций всех свай, расположенных за пределами нижнего основания пирамиды
продавливания, определяемая из условия
, где n - число
свай в ростверке, n1 - число свай, расположенных за пределами
нижнего основания пирамиды продавливания;
- расчетное сопротивление бетона растяжению для железобетонных
конструкций с учетом коэффициента условий работы бетона,
для бетона В25;
- рабочая высота сечения ростверка на проверяемом участке, равная
расстоянию от рабочей арматуры плиты до низа колонны, условно расположенного на
5 см выше дна стакана;
- ширина сечения колонны;
, при этом полная высота плиты ростверка будет равна
.
.
. Прочность ростверка на продавливание колонной обеспечена.
.
.
.
.
.
, следовательно, несущая способность свай обеспечена.
,
;
и
- значения коэффициентов принимаются по
таблице Пособия по проектированию железобетонных ростверков свайных фундаментов
под колонны зданий и сооружений (к СНиП 2.03.01-84).
.
.
,
, следовательно, прочность плиты ростверка на продавливание
угловой сваей обеспечена.
7. Расчет осадок фундамента
7.1
В части здания без подвала
Под
стену с проемами
,
,
.
,
,
.
- удельный вес грунта слоя 1 с учетом взвешивающего действия
воды.
,
,
- удельный вес грунта слоя 2 с учетом взвешивающего действия
воды.
,
,
,
- удельный вес грунта слоя 3 с учетом взвешивающего действия
воды.
,
,
.
,
- вертикальное нормальное напряжение от
собственного веса грунта на уровне подошвы фундамента.
,
.
,
- среднее дополнительное напряжение в i-м элементарном слое, принимаемое равным полусумме напряжений
на подошве i-го и (i-1) - го слоев;
- модуль деформации для i-го
элементарного слоя.
.
,
, м
α
, кПаE, кПаS, м

Под
глухую стену
,
,
возьмем из предыдущего расчета.
,
- вертикальное нормальное напряжение от
собственного веса грунта на уровне подошвы фундамента.
,
.
,
- среднее дополнительное напряжение в i-м элементарном слое, принимаемое равным полусумме
напряжений на подошве i-го и (i-1) - го слоев;
- модуль деформации для i-го
элементарного слоя.
, м
α
, кПаE, кПаS, м

Под
колонну
,
,
возьмем из предыдущего расчета.
,
.
,
- среднее дополнительное напряжение в i-м элементарном слое, принимаемое равным полусумме напряжений
на подошве i-го и (i-1) - го слоев;
- модуль деформации для i-го
элементарного слоя.
, м
α
, кПаE, кПаS, м
7.2
В части здания с подвалом
Под
стену с проемами
,
,
возьмем из предыдущего расчета.
,
- вертикальное нормальное напряжение от
собственного веса грунта на уровне подошвы фундамента.
,
.
,
- среднее дополнительное напряжение в i-м элементарном слое, принимаемое равным полусумме
напряжений на подошве i-го и (i-1) - го слоев;
- модуль деформации для i-го
элементарного слоя.
, м
α
, кПаE, кПаS, м
Под
глухую стену
,
, ![]()
,
- вертикальное нормальное напряжение от
собственного веса грунта на уровне подошвы фундамента.
,
.
,
- среднее дополнительное напряжение в i-м элементарном слое, принимаемое равным полусумме
напряжений на подошве i-го и (i-1) - го слоев;
- модуль деформации для i-го
элементарного слоя.
, м
α
, кПаE, кПаS, м
Под
колонну
,
,
возьмем из предыдущего расчета.
,
.
,
- среднее дополнительное напряжение в i-м элементарном слое, принимаемое равным полусумме
напряжений на подошве i-го и (i-1) - го слоев;
- модуль деформации для i-го
элементарного слоя.
, м
α
, кПаE, кПаS, м
7.3
Свайный фундамент
Под
стену с проемами
,
- длина сваи;
,
- осредненный угол внутреннего трения
грунтов, прорезаемых сваей.
,
- расчетные значения угла внутреннего
трения для отдельных пройденных сваей слоев грунта толщиной
.
,
,
. Основное условие при расчете свайных фундаментов по второй
группе предельных состояний удовлетворяется.
.
.
.
,
- среднее дополнительное напряжение в i-м элементарном слое, принимаемое равным полусумме
напряжений на подошве i-го и (i-1) - го слоев;
- модуль деформации для i-го
элементарного слоя.
, м
α
, кПаE, кПаS, м
Под
глухую стену
,
. Основное условие при расчете свайных фундаментов по второй
группе предельных состояний удовлетворяется.
.
.
.
,
- среднее дополнительное напряжение в i-м элементарном слое, принимаемое равным полусумме
напряжений на подошве i-го и (i-1) - го слоев;
- модуль деформации для i-го
элементарного слоя.
, м
α
, кПаE, кПаS, м

Под
колонну
,
- шаг свай под колонной;
,
- осредненный угол внутреннего трения
грунтов, прорезаемых сваей.
,
- расчетные значения угла внутреннего
трения для отдельных пройденных сваей слоев грунта толщиной
.
,
. Основное условие при расчете свайных фундаментов по второй
группе предельных состояний удовлетворяется.
.
.
.
,
- среднее дополнительное напряжение в i-м элементарном слое, принимаемое равным полусумме
напряжений на подошве i-го и (i-1) - го слоев;
- модуль деформации для i-го
элементарного слоя.
, м
α
, кПаE, кПаS, м