Материал: Проектирование участка установки по абсорбции-десорбции сероводорода из топливных газов

Внимание! Если размещение файла нарушает Ваши авторские права, то обязательно сообщите нам

Начальная концентрация Н2S в жидкой фазе Xн = 0,

Конечная концентрация Н2S в жидкой фазе рассчитывается по формуле


По найденным начальным и конечным концентрациям Н2S в жидкой и газовой фазах строим на диаграмме Y-X линию рабочих концентраций Y = АХ + В

По теоретическим тарелкам рассчитывают действительное число тарелок

,

где  - теоретическое число тарелок (между равновесной и рабочей линиями); - средний коэффициент полезного действия тарелки (принимается  = 0, 6).

,

К1 Абсорбер предназначен для абсорбции кислых компонентов (H2S) 13%-ным водным раствором МЭА.

Рабочие условия: Р = 0, 30-0, 65 МПа, Т = 40-44°С.

Действительное число тарелок - 4.

Тип элементов в колонне:ректификационные, клапанные,

однопоточные.

Расстояние между тарелками 600мм.

Тип брызгоуловителя - сетчатый.

Габариты колонны: D = 1 м, Н = 5, 4 м.

Материал: корпус - сталь В стЗ сп4, тарелка - сталь В стЗ сп4, 08X13, отбойник - сталь В стЗ сп4, лавсан, термообработка.

Подбор основного оборудования

Теплообменник Т2 - предназначен для проведения процесса теплопередачи (передачи тепла от горячего теплоносителя к холодному) и представляет собой кожухотрубчатый теплообменник. В аппарате происходит охлаждение регенерированного раствора МЭА посредством передачи теплоа насыщенному раствору МЭА. Таким образом, реализуется более полное использование ресурсов предприятия за счет использования меньших количеств охлаждающей оборотной воды.

Исходные данные:

§  массовый расход раствора МЭА LМЭА = 32946, 28 кг/ч

§  начальная температура регенерированного раствора МЭА tНМЭА1 = 98 оС;

§  конечная температура регенерированного раствора МЭА tКМЭА1 = 73 оС;

§  начальная температура насыщенного раствора МЭА - tНМЭА2 = 73

§  конечная температура насыщенного раствора МЭА - tКМЭА1 = 100, 5

Выбираем теплообменник 600 ТНГ-25-М1-0/25-4-4 гр. Б ГОСТ 15122-79

Поверхность теплообмена 67, 2 м2. Материал: кожух - стали Ст3сп5; 16ГС; 20; трубы - сталь 10 или 20.

Кипятильник Т5 - предназначен для проведения процесса теплопередачи (передачи тепла от горячего теплоносителя к холодному) и представляет собой вертикальный кожухотрубчатый теплообменник. В аппарате происходит нагрев насыщенного раствора МЭА посредством передачи тепла от конденсирующегося насыщенного водяного пара, находящегося под давлением.

Исходные данные:

§  массовый расход раствора МЭА LМЭА = 32946, 28 кг/ч

§  начальная температура насыщенного раствора МЭА - tНМЭА = 100 оС;

§  конечная температура насыщенного раствора МЭА - tКМЭА = 125 оС;

§  давление пара Pпар = 3, 0 кгс/см2 (0, 3 МПа)

§  начальная температура греющего пара -  tнпар = 133, 54

§  конечная температура греющего пара -  tкпар = 133, 54

Выбираем теплообменник 600 ИК-2-16-6-М1-0/4 гр.Б ГОСТ 15119-79.

Поверхность теплообмена 81 м2. Материал: кожух - стали Ст3сп5; 16ГС; 20; трубы - сталь 10 или 20.

Десорбер К2 - насадочная колонна. Аппарат предназначен для регенерации раствора МЭА. В колонне установлена насадка кольца Палля. По высоте разделенеа на две части: десорбционную и конденсационную.

Условия работы:

§  температура низа колонны t = 125 оС;

§  температура верха колонны t = 50 оС;

§  давление P = 0, 15 МПа;

§  температура кислой циркуляционной воды на входе в конденсационную часть - tн = 45 оС;

§  температура кислой циркулирующей воды на выходе из конденсационной части tк = 70 оС;

§  температура кислой циркуляционной воды на входе в десорбционную часть

t = 70 оС;

§  расход кислой циркулирующей воды в конденсационную часть

Q = 7-9 м3/ч.

§  Расход кислой циркулирующей воды в десорбционную часть

Q=0.3-1 м3/ч.

Внутренний диаметр D = 1400 мм

Высота H = 21700

Объём V = 30, 18 м3.

Материал корпуса и колец Палля: сталь 09Г2С.

Водяной холодильник сдвоенный Т3 (кожухотрубчатый теплооб-менник) - 600 ХНГ-6-25-М1-0/25-4-4 гр.Б ГОСТ 15120-79. Предназначен для охлаждения оборотной водой регенерированного раствора МЭА.

Условия работы:

§  Трубное пространство (вода) tн =25 оС; tк = 45 оС;

§  Межтрубное пространство (раствор МЭА) tн =70, 5 оС; tк = 55 оС.

§  Поверхность теплообмена S = 140 м2.

§  Наружный диаметр D = 140 м2.

§  Длина L = 4910 мм.

Материал: кожух - стали Ст3сп5; 16СГ; 20; трубы - сталь 10 или 20.

Рекуперативный теплообменник Т4 (кожухотрубчатый теплообменник) - 600 ТНГ-25-М1-0/25-4-4 гр.Б ГОСТ 15122-79. Предназначен для охлаждения регенерированного раствора МЭА и нагрева насыщенного раствора МЭА путём передачи тепла от горячего регенерированного раствора МЭА холодному насыщнному раствору МЭА. Трубное пространство (насыщенный раствор МЭА) tв = 35 оС; tк = 63 оС. Межтрубное пространство (регенерированный раствор МЭА) tн = 98 оС; tк 70, 5 оС.

Условия работы:

§  Поверхность теплообмена S = 67, 2 м2.

§  Длина L = 4950 мм.

§  Наружный диаметр D = 630 мм.

§  Материал: кожух - стали Ст3сп5; 16ГС; 20; трубы - сталь 10 или 20.

Водный холодильник Т6 (кожухотрубчатый теплообменник) - 400 ХНГ-6-16-М1-0/20-2-2 гр.А ГОСТ 15120-79. Предназначен для охлаждения кислой циркуляционной воды, поступающей на орошение конденсационной части колонны К2, оборотной водой.

Условия работы:

§  Трубное пространство (вода) tн = 25 оС; tк = 45 оС.

§  Межтрубное пространство (кислая циркуляционная вода)

tн = 70 оС; tк = 45 оС.

§  Поверхность теплообмена S = 47 м2.

§  Длина L = 6710 мм.

Материал: кожух - стали Ст3сп5; 16ГС; 20; трубы - сталь 10 или 20.

Сепаратор неочищенного топливного газа С1 - предназначен ждя отделения от поступающего на установку газа газового конденсата. Тип: ГЭЭ1-1-100-1, 0

Условия работы:

§  Давление P = 0, 6 МПа;

§  Температура t = 35 оС.

§  Давление предохранительного клапана: Рпк = 0, 9 МПа.

Размеры:

§  Диаметр D = 3000 мм;

§  Длина L = 14735 мм;

§  Высота Н = 3895 мм;

§  Рабочий объём V = 85, 4 м3.

Материал6 сталь 09Г2С.

Сепаратор очищенного топливного газа С2 - предназначен для отделения от очищенного топливного газа капельной влаги (насыщенного раствора МЭА) уносимой с газовым потоком из абсорбера К1) и для её накопления с целью возвращения отбитого МЭА в абсорбционный цикл.

Тип: ГЭЭ1-1-25-1, 0

Условия работы:

§  Давление P = 0, 6 МПа;

§  Температура t = 35 оС.

§  Давление предохранительного клапана Pпк = 0, 9 МПа.

Размеры:

§  Диаметр D = 2400 мм;

§  Длина L = 5955 мм;

§  Высота H = 3280 мм.

§  Рабочий объём V = 20, 9 м3.

Материал: сталь 09Г2С.

Сепаратор сероводорода С3 - предназначен для отделения капельной влаги (насыщенного раствора Мэа) уносимой с газовым потоком из десорбера К2 и для её накопления с целью возвращения отбитого МЭА в абсорбционный цикл.

Тип: ГЭЭ1-1-16-0, 6

Условия работы:

§  Давление P = 0, 15 МПа;

§  Температура t = 50 оС.

Размеры:

§  Диаметр D = 2000 мм;

§  Длина L = 5390 мм;

§  Высота H = 2870 мм;

§  Рабочий объём V = 13, 7 м3.

Материал: сталь 12Х18Н10Т.

Сборник регенерированного раствора МЭА Е1 - предназначен для сохране- ния нормального хода технологического процесса при изменении расхода расхода раствора МЭА.

Тип: ГЭЭ1-1-16-0, 6

Условия работы:

§  Давление P = 0, 2 МПа;

§  Температура t = 125 оС.

Размеры:

§  Диаметр D = 2000 мм;

§  Длина L = 5390 мм;

§  Высота H = 2870 мм.

§  Рабочий объём V = 13, 7 м3.

Материал: сталь 09Г2С.

Сборник КЦВ Е2 - предназначен для сохранения нормального хода технологического процесса при изменении расхода кислой циркуляционной воды.

Тип: ГЭЭ1-1-25-0, 6

Условия работы:

§  Давление P = 0, 15 МПа;

§  Температура t = 70 оС.

§  Давление предохранительного клапана: Pпк = 0, 5 МПа.

Размеры:

§  Диаметр D = 2400 мм;

§  Длина L = 5935 мм;

§  Высота H = 3280 мм;

§  Рабочий объём V = 20, 9 м3.

Материал: сталь 09Г2С.

Н1 - насос подачи регенерированного МЭА в абсорбер К1.

Предназначен для подачи регенерированного раствора МЭА в абсорбер К1. С его помощью поддерживается циркуляция раствора МЭА на установке.

Центробежный насос Х 80-50-250-К-5-УЗ ТУ 26-06-1169-86 с двигате- лем В180М2 во врывозащищенном исполнении.

Условия работы:

§  Среда: водный растовр МЭА с массовой долей МЭА 13%;

§  Плотность среды ρ = 991, 3 кг/м3;

§  Температура среды t=45 оС.

Рабочие параметры:

§  Подача Q = 50 м3/ч.

§  Напор H = 80 м.

§  Частота вращения n = 2950 об/мин.

§  Мощность N = 30 кВт.

Материал проточной части: сталь 12Х18Н9ТЛ.

Н2 - насос подачи КЦВ в десорбер К2.

Предназначен для подачи КЦВ в десорбер К2. С его помощью поддерживается циркуляций кислой циркуляционной воды.

Центробежный насос Х 80-50-250-К-5-УЗ ТУ 26-06-1169-86 с двигате- лем В180S2 во врывозащищенном исполнении.

Условия работы:

§  Среда: вода с содержанием кислых компонентов не более 20 мг/дм3;

§  Плотность среды около 1000 кг/м3;

§  Температура среды t = 70 оС.

Рабочие параметры:

§  Подача Q = 50 м3/ч.

§  Напор H = 80 м.

§  Частота вращения n = 2950 об/мин.

§  Мощность N = 30 кВт.

Материал проточной части: сталь 12Х18Н9ТЛ.

H3 - насос для откачивания отбитого МЭА из сепаратора С3.

Предназначен для откачки отбитого раствора МЭА из сепаратора сероводорода С3 и подачи его в линию насыщенного раствора МЭА перед теплообменниками Т2, Т4.

Центробежный насос Х 50-32-250а-Е-55-УЗ ТУ 26-06-1187-85 с двигателем В180S2 во взрывозащищённом исполнении.

Условия работы:

§  Среда: насыщенный водный раствор МЭА (с высоким содержанием сульфидов);

§  Плотность среды около 960 кг/м3;

§  Температура среды t = 40-50 оС.

Рабочие параметры:

§  Подача Q = 12, 5 м3/ч.

§  Напор H = 80 м.

§  Частота вращения n = 2950 об/мин.

§  Мощность N = 15 кВт.

Материал проточной части: сталь 10Х17Н13М2Т.[9]

6. Монтажно-строительная часть проекта

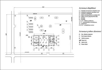
План размещения оборудования

Установка расположена на открытой площадке, так как сероводород в смеси с воздухом дает взрывоопасные смеси и кроме того является токсичным газом. Размер площадки 50 м на 90 м. Имеются дороги для проезда транспорта, теплообменики, абсорбер и десорбер расположены на улице. В помещении расположены насосы, кладовая, операторная, вент-камеры, пожарные посты, лафетные стволы.

Заключение

•        Выполнен литературный обзор по теме курсового проекта.

•        Составлена технологическая схема выделения сероводорода из топливного газа

•        Рассчитан материальный баланс процесса и определены основные отходы производства

•        Произведён расчет основного аппарата и подбор обрудования по технологической схеме

•        Представлено расположение оборудования на открытой площадке

Список использованной литературы

1.       Абсорбция[Электронный ресурс]: http://www.ecologyside.ru/ecosids-566-1.html

.        Методы расчета процессов и аппаратов химической технологии (2009). П.Г. РоманковП.Г. Романков, В.Ф. Фролов, О.М. Флисюк, Изд.: ХИМИЗДАТ, 2009 г.

.        Равновесие при абсорбции. Закон Генри.[Электронный ресурс]:

http://fbr-hall.ru/ravnovesie-pri-absorbcii-zakon-genri/ <https://clck.yandex.ru/redir/dv/*data=url%3Dhttp%253A%252F%252Ffbr-hall.ru%252Fravnovesie-pri-absorbcii-zakon-genri%252F%26ts%3D1481748575%26uid%3D3380913431476526601&sign=8d0f618719aa1348697cfb7b2512b37e&keyno=1>

4.       Основы технологии переработки природного газа и конденсата: учеб. пособие / Г.В. Тараканов, А.К. Мановян; под ред. Г.В. Тараканова; Астрахан. гос. техн. ун-т. - Изд. 2-е, перераб. и доп. - Астрахань: Изд-во АГТУ, 2010. - 192 с.

.        Процесс Клауса. Материал из Википедии - свободной энциклопедии

6.       Современный справочник по нефтяным топливам и технологиям их производства. М. И. Рустамов, А. С. Гайсин, Д. Н. Мамедов/Под редакцией Т. Н. Шахтахтинского Фонд «Химик».Баку <https://clck.yandex.ru/redir/dv/*data=url%3Dhttps%253A%252F%252Fru.wikipedia.org%252Fwiki%252F%2525D0%252591%2525D0%2525B0%2525D0%2525BA%2525D1%252583%26ts%3D1481748575%26uid%3D3380913431476526601&sign=590cd2704f57305fbba7cebea04a9274&keyno=1>, 2005. 640 с.

.        Ф.Р.Исмагилов, А.А.Вольцов, О.Н.Аминов, Р.Р.Сафин, А.В.Плечев Экология и новые технологии очистки сероводородсодержащих газов Уфа: изд-во «Экология», 2000. 214 с.

8.       СТП 701-2005, 702-2005, 706-2006. Документы текстовые учебные. Требования к оформлению.

9.       Тимонин А.С. Инженерно-экологический справочник В 3-х томах, Калуга: Изд-во Н.Бочкаревой, 2003. - 2825 с.