Материал: Проектирование системы санитарно-технических устройств жилого здания

Внимание! Если размещение файла нарушает Ваши авторские права, то обязательно сообщите нам

Проектирование системы санитарно-технических устройств жилого здания

Содержание

 

Введение

1. Характеристика объекта

2. Система внутреннего водоснабжения здания

2.1 Выбор системы и схемы

2.2 Выбор норм водопотребления

2.3 Определение расчетных расходов в сети

2.4 Гидравлический расчёт в сети

2.5 Конструирование сети водоснабжения

2.6 Выбор счётчика воды

2.7 Определение требуемого напора

3. Система внутреннего водоотведения

3.1 Конструирование сети

3.2 Расчёт выпусков

4. Система дворовой канализации

4.1 Конструирование сети

4.2 Расчет дворовой сети водоотведения

5. Список литературы

Введение

В населённых пунктах построены и строятся здания или группы зданий различного назначения, в том числе и жилые. Все здания расположенные в канализованных районах или имеющие систему местной канализации, оборудуют системами централизованного снабжения холодной, а в ряде случаев и горячей водой. Такие системы водоснабжения здания предназначены для обеспечения потребителей водой, в нужном количестве, под необходимым напором и заданного качества. Требования к качеству воды зависят от назначения действующей системы водоснабжения.

Водоснабжение, канализация и санитарно-техническое оборудование являются системами жизнеобеспечения зданий. Правильное решение инженерных задач по водоснабжению и канализации определяет уровень благоустройства жилых зданий, а так же рациональное использование природных ресурсов.

Задачей данной курсовой работы является проектирование системы санитарно-технических устройств жилого здания, включающую системы холодного водоснабжения и канализации.

Данная система разрабатывается для 5-этажного здания квартирного типа.

водоснабжение водоотведение сеть дворовая

1. Характеристика объекта


Жилое 5-и этажное здание для застройки в городе Тюмени на 20 квартир, каждый этаж содержит 4 квартиры. Одна двухкомнатная и три однокомнатных.

Фундамент здания ленточный в качестве вертикальной гидроизоляции применена обмазка горячим битумом, горизонтальной гидроизоляции два слоя рубероида на битумной мастике.

Стены выполнены из обыкновенного силикатного кирпича, в качестве утеплителя применен пенополистирол. Толщина стены 500мм.

Перекрытия выполнены из пустотных железобетонных плит. Полы выполнены из различных материалов в соответствии с функциональностью помещения.

Чердак - холодный. Кровля дома выполнена из металочерепицы с уклоном 0.3 м/м для наилучшего водостока и отсутствия снеговой нагрузки.

В здании имеется централизованная система отопления.

Дом оборудован системой водоснабжения питающейся от городской водной сети и системой внутренней хозяйственно-бытовой канализацией подключенной к городской канализационной сети.

Грунты в непосредственной близости здания сухие, глинистые. Ландшафт имеет естественный уклон i=0.005.

2. Система внутреннего водоснабжения здания

2.1 Выбор системы и схемы


Комплекс инженерных устройств и трубопроводов, предназначенный для подачи воды из водопроводной сети населенного пункта к водоразборным устройствам, находящимся внутри здания, называется системой внутреннего водопровода.

Для жилого здания рядовой застройки устраивается система холодного, горячего водоснабжения. Расчет системы горячего водоснабжения не рассматривается, однако, расчет ввода системы холодного водоснабжения ведется при условии, что горячая вода готовится в водонагревателе, расположенном в подвале здания, то есть по вводу поступает общий расход воды на нужды холодного и горячего водоснабжения. Система предназначена для подачи воды питьевого качества (хозяйственно-питьевая).

По конструктивному положению в жилых зданиях устраивается тупиковая сеть с нижней разводкой. Тупиковая схема устраивается в тех зданиях, где разрешается перерыв в подаче воды. В жилом здании устраивается хозяйственно-питьевая система водоснабжения.

Расчет ведется для системы, работающей под напором городской водопроводной сети.

2.2 Выбор норм водопотребления


Нормы водопотребления для жилых зданий зависят от степени их благоустройства и приведены СНиП 2.04.01-85*.

Из СНиП 2.04.01-85* для ЖИЛЫХ домов квартирного типа с ваннами длиной от 1500 до 1700 мм принимаем:

= 0,3 л/с Общий расход воды, санитарно-техническими приборами.  = 0,2 л/с Расход холодной воды, санитарно-техническими приборами. =15,6 л/ч Общая норма расхода воды, потребителем в час наибольшего водопотребления.

 =5,6 л/ч Норма расхода холодной воды. Потребителем в ч наибольшего водопотребления.

 =300 л/сут Общая норма расхода воды потребителем в сутки наибольшего водопотребления.

 =120 л/сут Норма расхода горячей воды, потребителем в сутки наибольшего водопотребления;

2.3 Определение расчетных расходов в сети


Расчет сети ведется на пропуск максимального секундного расхода воды на расчетном участке по формуле:

q = 5q0α,

где q0 - секундный расход воды одним прибором.

α - коэффициент, определяемый согласно таблице 2 приложению 4 СНиП в зависимости от общего числа приборов N на расчетном участке сети и вероятности их действия Р. вычисляемой согласно формуле:

 

где U - количество потребителей (жителей) для жилых зданий допускается принимать в данной работе N=80 (Приборов),U=80 (чел)

1)      для любого участка сети холодного водоснабжения

)        для ввода водопровода

2.4 Гидравлический расчёт в сети


Основным назначением гидравлического расчет является определение наиболее экономичных диаметров трубопроводов для пропуска расчетных расходов воды, а также условий, обеспечивающих подачу волы ко всем потребителям в необходимом количестве и с наименьшими потерями напора. Путевые потери напора по участку вычисляются

 

hl=i*l

где l - длина участка. Потери напора по расчетному направлению определяются как

Для расчета на аксонометрической схеме сети водопровода выделяют расчетное направление - это самый неблагоприятный путь подачи воды от ввода водопровода до диктующего устройства. Диктующим считают наиболее удаленное и высокорасположенное от ввода водоразборное устройство. Выделенное расчетное направление разбивают на участки. Расчетный участок определяется как расстояние между расчетными точками. Расчетной является та точка сети, где происходит изменение расхода. Расчет ведется в табличной форме (Прил. 1)


2.5 Конструирование сети водоснабжения


Внутренний водопровод представляет собой систему устройств, обеспечивающих подачу волы к санитарно-техническим приборам, технологическому оборудованию и пожарным кранам, расположенным внутри зданий.

Системы внутреннего водопровода включают: вводи в здание, водомерные узлы, разводящую сеть, стояки, подводки к санитарным приборам, водоразборную, смесительную, запорную и регулирующую арматуру.

Устройство ввода. Ввод состоит из следующих элементов:

узла подключения ввода куличной сети, располагаемого в колодце, с размещением в нем отключающей задвижки или вентиля;

трубопровода от узла подключения до водомерного узла;

водомерного узла с запорной арматурой, размещаемого внутри здания.

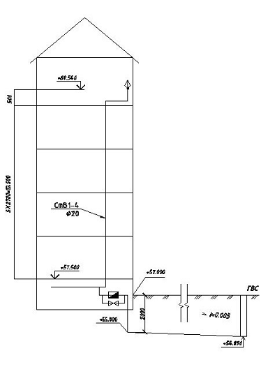
Ввод необходимо прокладывать только под прямым углом относительно стены здания. При наличии подвала ввод осуществляется в подвал с обеспечением свободного доступа работников службы эксплуатации к водомерному узлу для снятия показаний со счетчика.

Ввод водопровода прокладывается ниже глубины промерзания грунта на 0,5 м, считая до низа трубы. Минимальная глубина укладки труб - 1 м до верха трубы. Расстояние по горизонтали между вводом хозяйственно-питьевого водопровода и выпуска водоотведения должно быть не менее 1,5 м при диаметре ввода до 200 мм. Ввод прокладывается с уклоном 0,005 в сторону городской сети водопровода.

Водомерный узел размещается вдоль внутренней стены здания в удобном и легко доступном помещении, имеющем освещение и температуру воздуха не ниже 5°С. Счетчик воды размещают на высоте от 0,8-1,0 м от чистого попа, до и после него размещают запорную арматуру, между счетчиком и вторым вентилем или задвижкой (по движению воды) следует устанавливать спускной кран. Счетчики воды устраиваются на вводе не ближе чем 1,5-2 м от наружной стены Необходимо применять меры от возможного замораживания счетчика.

При наличии в здании одного ввода счетчик должен иметь обводную пинию с запорной задвижкой для пропуска воды при ремонте или замене счетчика.

Разводящая сеть. Разводящая сеть (магистраль) прокладывается в подвале, а в здании без подвалов - в подпольных каналах. При прокладке в подвале магистраль удобно располагать под потолком подвала на 0,3-0,5 м ниже потолка, преимущественно вдоль внутренней несущей стены здания с закреплением трубопроводов к ней на кронштейнах. Магистральные трубопроводы должны прокладываться с уклоном 0,002-0,005 в сторону ввода для возможности спуска воды из них и периодического удаления воздуха. На ответвлениях разводящей сети устанавливают запорные вентили. При пересечении водопроводных и водоотводных трубопроводов расстояние в свету должно быть не менее 0,4 м.

Стояки. Стояки должны располагаться в местах установки водоразборных устройств (в ванной комнате, туалете, кухне) и в зависимости от качества отделки помещения прокладываться открыто вдоль стен или скрыто. На основании каждого стояка должен устанавливаться запорный вентиль.

Управление работой системы и распределение воды в ней осуществляется с помощью арматуры: водоразборная, запорная, регулировочная.

В жилом здании рядовой застройки на сети водопровода установлена следующая водоразборная арматура: смеситель мойки, смеситель умывальника, смеситель ванной, клапан сливного бочка унитаза.

Водоразборная арматура устанавливается над полом на высоте: смеситель ванны - 1м; смеситель умывальника - 1м; смеситель мойки - 1м; подводка к смывному бачку унитаза - 0,55 м.

Запорная арматура установлена: на вводе в здание (задвижка), на ответвлении разводящей сети (вентиль), на подводках в отдельные квартиры и к смывному бачку унитаза (вентили), на подводке к поливочному крану (вентиль).

На подводках в каждую квартиру устанавливают запорный вентиль, а также счетчик воды диаметром 15 мм.

2.6 Выбор счётчика воды


Счетчики воды бывают крыльчатыми и турбинными. Крыльчатые счетчики имеют калибр 15-50 мм (диаметр условного прохода).

Потери напора на счётчике вычисляются:

=S*q2,

где S - сопротивление счётчика;2 - расчётный расход воды, проходящий ч/з участок, где стоит счётчик;

Потери напора на счётчике не должны превышать значения 5м в. с. Принимаем счётчик диаметром условного прохода 32мм. Проверяем условие:

=1,3*1,552=3,1 м. в. с

2.7 Определение требуемого напора


Величина требуемого напора определяется по формуле

,

где:

геометрическая высота подачи воды, определяется как разница отметок положения диктующего устройства и точки присоединения ввода к городской сети водопровода;

 - потери напора, на трение по расчётному направлению, результат из таблицы l;

 - потери напора на местных сопротивлениях в сети, составляют 30% от потерь напора на трение;

потери напора, на счетчике воды на вводе в здание;

 - свободный напор у диктующего водоразборного устройства;

Полученный требуемый напор сравнивают с заданным гарантийным напором. При, имеем наиболее простую экономичную систему, действующую под напором в наружном водопроводе.

Hгеом = 14,65 м. (69,54-54,89=14,65м)cч = S × q2 = 1,3 × 1,55 2 = 3,1 м. (dсч=32)

∑ hl = 5,78 м.мест = 0,3 × ∑ hl = 1.73 м.f = 2 м. (смеситель мойки)тр = Hгеом + Hcч + ∑ hl + hмест + Hf = 27,26 м (Hгар = 28м.)


3. Система внутреннего водоотведения

3.1 Конструирование сети


Комплекс инженерных устройств и трубопроводов, предназначенный для приема сточных вод в местах их образования и передачи по системе закрытых трубопроводов за пределы здания в ГКС называется внутренней системой канализации.

Проектирование сети внутренней канализации произведено на основе СНиП 2.04.0I-85*.

Основные элементы системы: приемники сточных вод, отводные линии, стояки, горизонтальные участки, объединяющие основания стояков, вы- пуск, прочистные устройства, элементы вентиляции сети канализации.

В жилом здании рядовой планировки устраиваются следующие приемники: мойка (кухня), умывальник и ванна (ванная комната), унитаз (туалет).

Отводные линии сточные воды от приемников в стояки. Они прокладываются открыто вдоль стен кухонь, ванных комнат, туалетов на высоте 15 см от чистою пола, лежат ниже подводок водопровода и имеют уклон в сторону стояка, От ванны, умывальника, мойки диаметр 50мм i=0,03, от унитаза диаметр 100мм i=0,02.

Диаметр последующего участка должен быть не менее присоединяемого к нему участка.

Стояки расположены в туалетах и кухнях, выполнены строго вертикально, закреплены к стене.

Горизонтальные участки прокладываются в подвале открыто, подвешиваются на хомутах к конструкциям здания или крепятся к стенам

(согласно плану подвала) размещаются ниже сети водопровода на 40см. Геомстрия этих элементов должна быть как можно проще (меньше длина, минимум углов поворота). От подъезда на сети канализации выполняется выпуск.