|
Мультиплексор
ввода
|
Мультиплексор
вывода
|
|
|
A
|
B
|
C
|
D
|
|
|
A
|
-
|
3
|
10
|
4
|
18
|
|
B
|
3
|
-
|
4
|
2
|
9
|
|
C
|
11
|
4
|
-
|
7
|
22
|
|
D
|
2
|
1
|
4
|
-
|
7
|
Общее число первичных цифровых трактов на каждом
участке кольца определяется формулами (4.13 - 4.16):
|
;(4.13)
|
|
|
;(4.14)
|
|
|
;(4.15)
|
|
|
.(4.16)
|
|
В ходе расчётов получены следующие
значения количества первичных цифровых трактов на каждом участке:
=26,
=27,
=31,
=25.
Требуемая скорость цифрового кольца
определяется максимальным значением пропускной способности отдельного участка.
Максимальной пропускной способностью обладают третий участок.
Таким образом, требуемая скорость
рассчитывается по формуле (4.17):
|
.(4.17)
|
|
Полученное значение скорости
Мбит/с.
Такую скорость передачи может
обеспечить система передачи первого уровня иерархии SDH - STM-1 (скорость 155
Мбит/с) [2].
При этом необходимо выполнение
условия (4.18):
|
,(4.18)
|
|
где
-
коэффициент запаса на развитие сети [2].
Подставляя числовые значения в
формулу (4.18), получим следующее выражение:
Мбит/с - условие выполняется.
5. Расчет объема оборудования
Alcatel 1000 S12
.1 Расчет объема абонентского
оборудования
Модуль аналоговых абонентских линий ASM
позволяет подключить до 8 плат абонентских комплектов ALCN, при этом каждая
плата содержит 16 портов для подключения аналоговых абонентских линий [1].
Таким образом, один модуль ASM может обслужить
128 абонентов [1], а требуемое число блоков ASM определяется по формуле
(5.1.1):
|
,(5.1.1)
|
|
где
- число аналоговых абонентских
линий.
Один статив позволяет разместить до
12 модулей ASM [1], поэтому число стативов модулей абонентских линий EA
определяется следующим образом (5.1.2):
|
,(5.1.2)
|
|
где
- число блоков аналоговых
абонентских линий.
Таким образом, получим следующие
расчётные значения числа блоков абонентского оборудования:
=108,
=9.
5.2 Расчёт объёма оборудования
цифровых трактов
Число модулей цифровых трактов DTM
определяется числом подключенных к АТС цифровых трактов ЕA со скоростью
передачи 2,048 Мбит/с, используемых для связи с другими АТС сети:
,
|
(5.2.1)
|
|
где
и
- число исходящих и входящих
трактов ИКМ межстанционной связи.
|
;(5.2.2)
|
|
|
.(5.2.3)
|
|
В одном стативе можно разместить до
8 модулей DTM [1]; следовательно, число стативов ED определяется по формуле
(5.2.5):
|
.(5.2.5)
|
|
Таким образом, получим следующее
значение числа стативов:
=5.
5.3 Расчет числа модулей служебных
комплектов SCM
Модуль SCM предназначен для обработки сигналов
многочастотной сигнализации и сигналов набора номера от тастатурных телефонных
аппаратов (DTMF). Всего поддерживается 6 систем сигнализации: R1, R2, МСЭ-Т №
5, многочастотная сигнализация с кодом «2 из 6», многочастотный набор номера
DTMF и контроль связности соединения ССТ. Помимо этого, модуль SCM обеспечивает
функцию конференцсвязи.
Расчет числа модулей SCM осуществляется исходя
из поступающей на них нагрузки, требований, к качеству обслуживания и
дисциплины обслуживания. Поскольку SCM обслуживает вызовы по системе с
ожиданием, то расчет числа модулей осуществляется по второй формуле Эрланга
[1].
Интенсивность нагрузки на модули SCM от
телефонных аппаратов с многочастотным набором номера определяется по формуле
(5.3.1):
|
,(5.3.1)
|
|
где
- доля телефонных аппаратов с
многочастотным набором по отношению к общей емкости станции (
;
- возникающая нагрузка на АТС, Эрл;
- время набора номера многочастотным
способом, равное
, с;
- значность номера;
- среднее время слушания сигнала
"Ответ станции", с (
=3 с);
- среднее время одного занятия при
местной связи, с (
=72 с).
Тогда интенсивность нагрузки на
модули SCM:
= 55,72 Эрл.
Интенсивность нагрузки на SCM,
вызванной обслуживанием процессов установления соединений между АТС с
использованием многочастотной сигнализации, определяется по формуле (5.3.2)
[1]:
, (5.3.2)
,
(5.3.3)
где
и
- интенсивности исходящей и входящей
нагрузок в i-м направлении при обмене сигнальной информацией многочастотным
кодом «2 из 6» соответственно;
- среднее время занятия
соединительной линии, с (
=65 с);
и
- время занятия одного SCM при
исходящей и входящей связи соответственно:
- время обмена и распознавания
линейных сигналов, которое для системы сигнализации многочастотного кода «2 из
6» (
=200 мс);
- время передачи одной цифры номера
при использовании многочастотной сигнализации, которое для системы сигнализации
многочастотного кода «2 из 6» (
=80 мс);
- число передаваемых в исходящем
направлении цифр номера (
=6).
Тогда интенсивность нагрузки на SCM,
в соответствии с формулой (5.3.2), равна
=0,769 Эрл.
На основе полученного значения
можно
определить требуемое число модулей SCM методом подбора по формуле (5.3.4) [1]:
|
,(5.3.4)
|
|
где
- вероятность ожидания свыше
допустимого времени t;
- число приемопередатчиков обработки
многочастотной сигнализации;
- средневзвешенное время занятия SCM,
которое определяется по формуле (5.3.5):
|
,(5.3.5)
|
|
где
- интенсивность нагрузки в i-м
исходящем или входящем направлении, использующем многочастотную сигнализацию,
Эрл.
Согласно формуле (5.3.5):
=
с.
Величина
определяется
по формуле:
|
,(5.3.6)
|
|
где
- первая формула Эрланга.
Норма на вероятность ожидания свыше
одной секунды в данном случае удовлетворяет условию:
[1].
Методом подбора получим требуемое
число модулей SCM:
, при этом
вероятность ожидания свыше одной секунды равна
- норма на вероятность ожидания
свыше 1 секунды выполняется.
(5.3.7)
где
- первая формула Эрланга.
Методом подбора получим требуемое
число модулей SCM:
Норма на вероятность ожидания свыше
одной секунды в данном случае удовлетворяет условию:
[1].
В состав одного модуля SCM входит до
32 приемопередатчиков (с учётом резервного) [1], поэтому число модулей SCM
определяется по формуле (5.3.7):
|
,(5.3.8)
|
|
где
- число приемопередатчиков,
обслуживающих многочастотную сигнализацию.
- интенсивность нагрузки на модуле
SCM
Тогда, согласно формуле (5.3.7),
число модулей SCM:
= 3.
5.4 Расчет объема оборудования ОКС
№7
В случае использования АТС в качестве ОПС или
ОПТС могут быть использованы модули общего канала сигнализации (HССМ), каждый
из которых обрабатывает сигнальную информацию 8 звеньев сигнализации [1]. Таким
образом, расчет числа модулей HССМ выполняется по формуле (5.4.1):
|
,(5.4.1)
|
|
где
- количество звеньев сигнализации,
подключенных к АТС.
По формуле (5.4.2) определим число
звеньев сигнализации ОКС №7 с учетом резервирования
|
,(5.4.2)
|
|
где
- интенсивность нагрузки на звено
сигнализации ОКС №7, Эрл.
|
,(5.4.3)
|
|
где
- общее число вызовов в секунду,
обслуживаемых системой сигнализации ОКС №7;
- средний объем данных в прямом
направлении на один вызов, октетов (
=57 октетов);
- средний объем данных в обратном
направлении на один вызов, октетов (
=41 октет).
Знаменатель со значением 8000
означает скорость передачи информации в служебном канале сигнализации в байт/с.
Общее число вызовов, обслуживаемых
системой сигнализации ОКС №7 равно [1]:
|
.(5.4.4)
|
|

|
,(5.4.5)
|
|
3,1
где
- исходящая нагрузка от ОПТС к
другим ОПС сети, Эрл;
- средняя длительность занятия при
местном соединении, с (
=72 с).
Количество входящих вызовов от
абонентов других АТС к абонентам данной станции определяется выражением
(5.4.6):
|
,(5.4.6)
|
|
где
-
суммарная входящая нагрузка от всех ОПС сети к ОПТС, Эрл;
- средняя длительность занятия при
местном соединении, с (
=72 с).
Количество исходящих междугородних
вызовов от абонентов данной АТС к АМТС определяется выражением (5.4.7):
|
,(5.4.7)
|
|
где
- суммарная исходящая междугородная
нагрузка от ОПТС к АМТС, Эрл;
- средняя длительность занятия при
исходящем международном соединении, с (
=150 с).
Количество входящих междугородних
вызовов от АМТС к абонентам проектируемой АТС определяется выражением (5.4.8):
|
,(5.4.8)
|
|
где
- суммарная входящая междугородная
нагрузка от АМТС к ОПТС, Эрл;
- средняя длительность занятия при
входящем международном соединении, с (
=126 с).
Количество вызовов к УСС
определяется выражением (5.4.9):
|
,(5.4.9)
|
|
где
- нагрузка в направлении к УСС,
Эрл;
- средняя длительность занятия при
связи с УСС, с (
=45 с).
Вычислив общее число вызовов,
обслуживаемых системой сигнализации, по формуле (5.4.4) и подставив в (5.4.3),
найдём интенсивность нагрузки на звено сигнализации:
=0,115 Эрл.
Согласно (5.4.1), число звеньев
сигнализации ОКС №7:
=2.
Число модулей HССМ, вычисленное по
формуле (5.4.1):
=1.
Для размещения модулей ОКС
выделяется отдельный статив.
5.5 Расчет объема оборудования
коммутационного поля DSN
ЦКП станции Alcatel 1000 S12 имеет
многоступенчатую структуру с использованием нескольких плоскостей и работает по
принципу пространственно-временной коммутации. Первая ступень представлена
коммутаторами доступа, основной задачей которых является подключение различных
терминальных модулей к плоскостям групповых коммутаторов (с одновременным
выполнением функции распределения нагрузки). Ступеней групповых коммутаторов
может быть от одной до трех. Количество плоскостей и ступеней групповых
коммутаторов коммутационного поля определяется числом терминальных модулей и
общей нагрузкой, создаваемой этими модулями [1].
Основной структурной единицей
цифрового коммутационного поля DSN является цифровой коммутационный элемент
DSE. Каждый DSE имеет 16 двусторонних коммутационных портов, передающих данные
со скоростью 4,096 Мбит/с. Данный цифровой тракт позволяет передавать данные
32-х временных каналов со скоростью 128 кбит/с [1].
Определим число коммутаторов доступа
AS по формуле (5.5.1):
|
,(5.5.1)
|
|
где
- общее число терминальных модулей
ASM и DTM.
Используя полученное значение числа
коммутаторов доступа, определим общую число ступеней групповых коммутаторов,
число плоскостей и общее число DSE. Для этого используется таблица [3], в
которой указано число цифровых коммутационных элементов DSE для первой (GS1),
второй (GS2) и третьей (GS3) ступеней группового искания соответственно, а
также общее число DSE на всех ступенях группового искания и суммарное число DSE
для разного числа плоскостей (2, 3 или 4 плоскости) [1].
Для числа коммутаторов доступа
=18
требуется 4 DSE на первой ступени и 4 DSE на второй ступени для каждой
плоскости DSN, всего - 8 DSE на групповых ступенях коммутации [3].
Число плоскостей зависит от нагрузки
на коммутационное поле и определяется исходя из условия (5.5.2):
|
(5.5.2)
|
|
где
,
и
- внутристанционная, исходящая и
входящая нагрузки проектируемой АТС соответственно, Эрл;
- общее количество трактов ИКМ,
включаемых в коммутационное поле АТС.
Так как
,
следовательно, число плоскостей DSN:
=3.
Общее количество DSE при
использовании трех плоскостей, рассчитанное по формуле (5.5.3) составит:
=42.
|
.(5.5.3)
|
|
5.6 Расчет числа дополнительных
элементов управления АСЕ
Число модулей АСЕ, необходимых для
модулей аналоговых абонентских линий ASM, рассчитывается исходя из следующих
особенностей: каждый модуль АСЕ обслуживает 8 модулей ASM, а каждая пара
модулей ASM работает в режиме перекрестного включения [1]. Число дополнительных
элементов ACE, необходимых для обслуживание блоков ASM, вычисляется согласно
формуле (5.6.1)
|
,(5.6.1)
|
|
где
- число модулей аналоговых
абонентских линий ASM.
Для обслуживания группы из четырех
модулей SCM требуется один модуль АСЕ. Таким образом, расчётная формула (5.6.2)
имеет вид:
|
,(5.6.2)
|
|
|
|
|
где
- число модулей служебных
комплектов SCM.
Произведя по формулам (5.6.1 -
5.6.2) соответствующие вычисления получим:
=27,
=1.
Кроме перечисленных выше модулей,
требуются четыре модуля АСЕ для технической эксплуатации, два АСЕ для устройств
ввода-вывода и один модуль АСЕ для текстового монитора, т.е.:
=35.
5.7 Комплектация и размещение
оборудования Alcatel 1000 S12
Конструкция, используемая в S12,
обеспечивает быструю и простую установку, легкое наращивание и хороший доступ
для ремонта и техобслуживания. Она состоит из следующих конструктивных
компонентов: модулей, секций, стативов, стативных рядов.
Основу каждого модуля составляют
сборки печатных плат стандартного размера (221x254 мм) и сборки
преобразователей питания, которые непосредственно вставляются в секции.
В J-семействе системы S12 достигнута
высокая степень совместимости между платами в позициях стативов. Каждый тип
статива имеет собственную конфигурацию, определяемую числом сборок печатных
плат, в которой строго определено лишь число модулей. Это означает, что никакой
связи между типом статива и содержащимися в нем модулями нет.
Любая конфигурация статива является
гибкой, т.е. обеспечивает возможность размещения различных модулей на разных
станциях. В зависимости от числа составляющих модуль печатных плат они делятся
на четыре класса:
V01M - объединяет все модули,
состоящие только из одной печатной платы (например, модуль АСЕ);
V02M - включает все модули,
состоящие из двух печатных плат (например, модуль IPTM);
V03M - это модули, имеющие 8-12
печатных плат (например, модуль ASM и ISM);
V04M - включает все двухплатные
модули класса V02M, а также модуль DIAM и ему подобные.
В таблице 10 приводится
распределение по классам наиболее важных модулей системы.
Таблица 10 - Распределение по
классам модулей системы
|
Модуль
|
V01М
|
V02М
|
V03М
|
V04М
|
|
ACE
|
*
|
|
|
|
|
ASM
|
|
|
*
|
|
|
DTM
|
|
*
|
|
*
|
|
IRIM
|
|
*
|
|
*
|
Статив состоит из ряда секций, в которые
вставляются платы (около 30 плат в 1 секции). В каждом стативе можно
оборудовать до семи секций в виде 1, 2 или 3 полок.
Платы в секциях соединяются кроссплатами в
задних рамах, которые тоже представляют собой печатные платы. Контакты,
вставляемые в эти кросс-платы, обеспечивают сухое прессованное соединение с
платами. Задние рамы разных секций соединяются сигнальными и питающими
кабелями.
Отдельные стативы имеют высоту 2200, ширину 900
и глубину 520 мм. Стативы собраны из стального литого каркаса, закрываемого
съемными передней и задней дверьми. Двери поворачиваются на 180°. Чтобы
отводить теплый воздух, поднимающийся от нижних секций за пределы статива,
нижние секции от верхних могут отделяться воздухоотражателем, расположенным в
средней секции.
Ряды стативов рассчитаны на установку в зданиях
с минимальной высотой потолка 2,4 м, считая от фальшпола, если межрядовые
кабели проходят под полом или по желобам, закрепленным на потолке. Специальных
мер по укреплению перекрытий не требуется.
Ниже приведены основные типы стативов и их
назначение для станций средней и большой емкости:
стативы JA00-A1 и JB00-A1 в основном применяются
для размещения оборудования оконечных станций;
статив JH01-A1 применяется для размещения
оборудования станций всех типов;
статив JJ01-A1 применяется для размещения
оборудования станций всех типов;
статив JZ00-A1 представляет собой статив питания
для станций всех типов;
статив JZ01-A1 представляет собой расширяемый
статив питания для станций всех типов;
При монтаже стативы соединяются между собой
крепежными элементами, образуя стативные ряды, на окончаниях каждого из которых
устанавливаются кольцевые панели с индикаторами. Длина стативных рядов определяется
емкостью станции и размерами помещения.
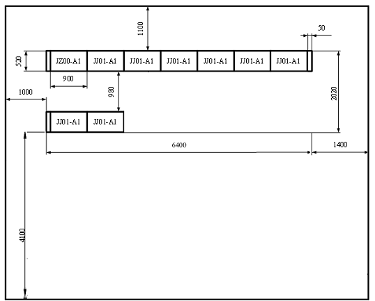
По данным расчетов необходимо разместить
следующее оборудование:
108 модулей аналоговых абонентских линий ASM (9
стативов);
102 модулей цифровых трактов DTM (13 стативов);
модуль служебных комплектов SCM (21плата);
модуль общего канала сигнализации HCCM (1
плата);
56 коммутационных элементов DSE(56 плат);
35 дополнительных элементов управления ACE (35
плат).
Так как не существует связи между типом статива
и содержащимися в нем модулями, будем использовать для размещения всего
оборудования стативы типа JJ01-A1, применяемые для размещения оборудования
станций всех типов. Для плат DSE, ACE, SCM и HCCM (всего 85 плат) необходим 1
статив типа JJ01-A1. Также необходим статив питания JZ00-A1.
Таким образом, общее количество необходимых
стативов равно 24.
На рисунке 3 приведен план размещения
оборудования станции Alcatel 1000 S12.
Рисунок 3 - План размещения оборудования станции
Alcatel 1000 S12
6. Расчет объема оборудования ПСЭ №6
.1 Расчет объема абонентского
оборудования
Модуль аналоговых абонентских линий ASM
позволяет подключить до 8 плат абонентских комплектов ALCN, при этом каждая
плата содержит 16 портов для подключения аналоговых абонентских линий [1].
Таким образом, один модуль ASM может обслужить
128 абонентов [1], а требуемое число блоков ASM определяется по формуле
(6.1.1):
|
,(6.1.1)
|
|
где
- число аналоговых абонентских
линий.
Один статив позволяет разместить до
12 модулей ASM [1], поэтому число стативов модулей абонентских линий EA
определяется следующим образом (5.1.2):
|
,(6.1.2)
|
|
где
- число блоков аналоговых
абонентских линий.
Таким образом, получим следующие
расчётные значения числа блоков абонентского оборудования:
=38,
=4.
6.2 Расчёт объёма оборудования
цифровых трактов
Число модулей цифровых трактов DTM определяется
числом подключенных к АТС цифровых трактов ЕA со скоростью передачи 2,048
Мбит/с, используемых для связи с другими АТС сети:
,
|
(6.2.1)
|
|
где
и
- число исходящих и входящих трактов
ИКМ межстанционной связи,
|
;(6.2.2)
|
|
|
.(6.2.3)
|
|
В одном стативе можно разместить до
8 модулей DTM [1]; следовательно, число стативов ED определяется по формуле
(6.2.5):
|
.(6.2.5)
|
|
Таким образом, получим следующее
значение числа стативов:
=3.
6.3 Расчет числа модулей служебных
комплектов SCM
Модуль SCM предназначен для обработки сигналов
многочастотной сигнализации и сигналов набора номера от тастатурных телефонных
аппаратов (DTMF). Всего поддерживается 6 систем сигнализации: R1, R2, МСЭ-Т №
5, многочастотная сигнализация с кодом «2 из 6», многочастотный набор номера
DTMF и контроль связности соединения ССТ. Помимо этого, модуль SCM обеспечивает
функцию конференцсвязи.
Расчет числа модулей SCM осуществляется исходя
из поступающей на них нагрузки, требований, к качеству обслуживания и
дисциплины обслуживания. Поскольку SCM обслуживает вызовы по системе с ожиданием,
то расчет числа модулей осуществляется по второй формуле Эрланга [1].
Интенсивность нагрузки на модули SCM от
телефонных аппаратов с многочастотным набором номера определяется по формуле
(6.3.1):
|
,(6.3.1)
|
|
где
- доля телефонных аппаратов с
многочастотным набором по отношению к общей емкости станции (
;
- возникающая нагрузка на АТС, Эрл;
- время набора номера многочастотным
способом, равное
, с;
- значность номера;
- среднее время слушания сигнала
"Ответ станции", с (
=3 с);
- среднее время одного занятия при
местной связи, с (
=72 с).
Тогда интенсивность нагрузки на
модули SCM:
= 18,096
Эрл.
Интенсивность нагрузки на SCM,
вызванной обслуживанием процессов установления соединений между АТС с
использованием многочастотной сигнализации, определяется по формуле (6.3.2)
[1]:
, (6.3.2)
,
(6.3.3)
где
и
- интенсивности исходящей и входящей
нагрузок в i-м направлении при обмене сигнальной информацией многочастотным
кодом «2 из 6» соответственно;
- среднее время занятия
соединительной линии, с (
=65 с);
и
- время занятия одного SCM при
исходящей и входящей связи соответственно:
где
- время обмена и распознавания
линейных сигналов, которое для системы сигнализации многочастотного кода «2 из
6» (
=200 мс);
- время передачи одной цифры номера
при использовании многочастотной сигнализации, которое для системы сигнализации
многочастотного кода «2 из 6» (
=80 мс);
- число передаваемых в исходящем
направлении цифр номера (
=6).
Тогда интенсивность нагрузки на SCM,
в соответствии с формулой (6.3.2), равна
=0,322 Эрл.
На основе полученного значения
можно
определить требуемое число модулей SCM методом подбора по формуле (6.3.4) [1]:
|
,(6.3.4)
|
|
где
- вероятность ожидания свыше
допустимого времени t;
- число приемопередатчиков обработки
многочастотной сигнализации;
- средневзвешенное время занятия
SCM, которое определяется по формуле (6.3.5):
|
,(6.3.5)
|
|
где
- интенсивность нагрузки в i-м
исходящем или входящем направлении, использующем многочастотную сигнализацию,
Эрл.
Согласно формуле (6.3.5):
=
с.
Величина
определяется
по формуле:
|
,(6.3.6)
|
|
где
- первая формула Эрланга.
Норма на вероятность ожидания свыше
одной секунды в данном случае удовлетворяет условию:
[1].
Методом подбора получим требуемое
число модулей SCM:
, при этом
вероятность ожидания свыше одной секунды равна
- норма на вероятность ожидания
свыше 1 секунды выполняется.
(6.3.7)
где
- первая формула Эрланга.
Методом подбора получим требуемое
число модулей SCM:
Норма на вероятность ожидания свыше
одной секунды в данном случае удовлетворяет условию:
[1].
В состав одного модуля SCM входит до
32 приемопередатчиков (с учётом резервного) [1], поэтому число модулей SCM
определяется по формуле (6.3.7):
|
,(6.3.7)
|
|
где
- число приемопередатчиков,
обслуживающих многочастотную сигнализацию.
- интенсивность нагрузки на модуле
SCM
Тогда, согласно формуле (6.3.7),
число модулей SCM:
= 1.
6.4 Расчет объема оборудования ОКС
№7
В случае использования АТС в качестве ОПС или
ОПТС могут быть использованы модули общего канала сигнализации (HССМ), каждый
из которых обрабатывает сигнальную информацию 8 звеньев сигнализации [1]. Таким
образом, расчет числа модулей HССМ выполняется по формуле (6.4.1):
|
,(6.4.1)
|
|
где
- количество звеньев сигнализации,
подключенных к АТС.
По формуле (6.4.2) определим число
звеньев сигнализации ОКС №7 с учетом резервирования:
|
,(6.4.2)
|
|
где
- интенсивность нагрузки на звено
сигнализации ОКС №7, Эрл.
|
,(6.4.3)
|
|
где
- общее число вызовов в секунду,
обслуживаемых системой сигнализации ОКС №7;
- средний объем данных в прямом
направлении на один вызов, октетов (
=57 октетов);
- средний объем данных в обратном
направлении на один вызов, октетов (
=41 октет).
Знаменатель со значением 8000
означает скорость передачи информации в служебном канале сигнализации в байт/с.
Общее число вызовов, обслуживаемых
системой сигнализации ОКС №7 равно [1]:
|
.(6.4.4)
|
|
Количество исходящих вызовов,
возникающих от абонентов данной АТС к абонентам других станций определяется
выражением (6.4.5):
|
,(6.4.5)
|
|
1,543
где
- исходящая нагрузка от ОПТС к
другим ОПС сети, Эрл;
- средняя длительность занятия при
местном соединении, с (
=72 с).
Количество входящих вызовов от
абонентов других АТС к абонентам данной станции определяется выражением
(6.4.6):
|
,(6.4.6)
|
|
где
-
суммарная входящая нагрузка от всех ОПС сети к ОПТС, Эрл;
- средняя длительность занятия при
местном соединении, с (
=72 с).
Количество исходящих междугородних
вызовов от абонентов данной АТС к АМТС определяется выражением (6.4.7):
|
,(6.4.7)
|
|
где
- суммарная исходящая междугородная
нагрузка от ОПТС к АМТС, Эрл;
- средняя длительность занятия при
исходящем международном соединении, с (
=150 с).
Количество входящих междугородних
вызовов от АМТС к абонентам проектируемой АТС определяется выражением (6.4.8):
|
,(6.4.8)
|
|
где
- суммарная входящая междугородная
нагрузка от АМТС к ОПТС, Эрл;
- средняя длительность занятия при
входящем международном соединении, с (
=126 с).
Количество вызовов к УСС
определяется выражением (6.4.9):
|
,(6.4.9)
|
|
где
- нагрузка в направлении к УСС,
Эрл;
- средняя длительность занятия при
связи с УСС, с (
=45 с).
Вычислив общее число вызовов,
обслуживаемых системой сигнализации, по формуле (6.4.4) и подставив в (6.4.3),
найдём интенсивность нагрузки на звено сигнализации:
=0,033 Эрл.
Согласно (6.4.1), число звеньев
сигнализации ОКС №7:
=2.
Число модулей HССМ, вычисленное по
формуле (6.4.1):
=1.
Для размещения модулей ОКС
выделяется отдельный статив.
6.5 Расчет объема оборудования
коммутационного поля DSN
ЦКП станции Alcatel 1000 S12 имеет
многоступенчатую структуру с использованием нескольких плоскостей и работает по
принципу пространственно-временной коммутации. Первая ступень представлена
коммутаторами доступа, основной задачей которых является подключение различных
терминальных модулей к плоскостям групповых коммутаторов (с одновременным
выполнением функции распределения нагрузки). Ступеней групповых коммутаторов
может быть от одной до трех. Количество плоскостей и ступеней групповых
коммутаторов коммутационного поля определяется числом терминальных модулей и
общей нагрузкой, создаваемой этими модулями [1].
Основной структурной единицей
цифрового коммутационного поля DSN является цифровой коммутационный элемент
DSE. Каждый DSE имеет 16 двусторонних коммутационных портов, передающих данные
со скоростью 4,096 Мбит/с. Данный цифровой тракт позволяет передавать данные
32-х временных каналов со скоростью 128 кбит/с [1].
Определим число коммутаторов доступа
AS по формуле (6.5.1):
|
,(6.5.1)
|
|
где
- общее число терминальных модулей
ASM и DTM.
Используя полученное значение числа
коммутаторов доступа, определим общую число ступеней групповых коммутаторов,
число плоскостей и общее число DSE. Для этого используется таблица [3], в
которой указано число цифровых коммутационных элементов DSE для первой (GS1),
второй (GS2) и третьей (GS3) ступеней группового искания соответственно, а
также общее число DSE на всех ступенях группового искания и суммарное число DSE
для разного числа плоскостей (2, 3 или 4 плоскости) [1].
Для числа коммутаторов доступа
=7 требуется
4 DSE на первой ступени и 4 DSE на второй ступени для каждой плоскости DSN,
всего - 8 DSE на групповых ступенях коммутации [3].
Число плоскостей зависит от нагрузки
на коммутационное поле и определяется исходя из условия (6.5.2):
|
(6.5.2)
|
|
где
,
и
- внутристанционная, исходящая и
входящая нагрузки проектируемой АТС соответственно, Эрл;
- общее количество трактов ИКМ,
включаемых в коммутационное поле АТС. Так как
, следовательно, число плоскостей
DSN:
=3. Общее
количество DSE при использовании трех плоскостей, рассчитанное по формуле (6.5.3)
составит:
=42.
|
.(6.5.3)
|
|
6.6. Расчет числа дополнительных
элементов управления АСЕ
Число модулей АСЕ, необходимых для
модулей аналоговых абонентских линий ASM, рассчитывается исходя из следующих
особенностей: каждый модуль АСЕ обслуживает 8 модулей ASM, а каждая пара
модулей ASM работает в режиме перекрестного включения [1]. Число дополнительных
элементов ACE, необходимых для обслуживание блоков ASM, вычисляется согласно
формуле (6.6.1):
|
,(6.6.1)
|
|
где
- число модулей аналоговых
абонентских линий ASM.
Для обслуживания группы из четырех
модулей SCM требуется один модуль АСЕ. Таким образом, расчётная формула (6.6.2)
имеет вид:
|
,(6.6.2)
|
|
где
- число модулей служебных
комплектов SCM.
Произведя по формулам (6.6.1 -
6.6.2) соответствующие вычисления получим:
=10,
=1.
Кроме перечисленных выше модулей,
требуются четыре модуля АСЕ для технической эксплуатации, два АСЕ для устройств
ввода-вывода и один модуль АСЕ для текстового монитора, т.е.:
=18.
6.7 Комплектация и размещение
оборудования ПСЭ №6
Рисунок 3 - План размещения
оборудования станции ПСЭ №6
Заключение
В ходе выполнения курсового проекта
были получены практические навыки и компетенции, в частности умения проводить
расчёты по проектированию сетей, сооружений и средств связи в соответствии с
техническим заданием. В частности, были получены практические навыки
проектирования цифровой АТС, расчёта интенсивности нагрузки и числа каналов
связи на различных направлениях [1].
Получены значения возникающей,
внутристанционной, исходящей нагрузки, отдельно рассчитана нагрузка, исходящая
на УСС и АМТС, для всех АТС города. Составлена матрица распределения
межстанционных нагрузок.
Определено требуемое число
соединительных линий при заданной вероятности потерь между станциями сети, при
этом использованы метод эффективной доступности для АТСК, и первая формула
Эрланга для АТСЭ.
Рассчитана скорость цифрового
«кольца» SDH с учетом резерва (63,488 Мбит/с); данную скорость может обеспечить
система передачи первого уровня синхронной цифровой иерархии SDH - STM-1 (155
Мбит/с) [2].
Определено количество следующих
плат: аналоговых абонентских линий ASM, цифровых соединительных линий DTM,
дополнительных элементов управления ACE, служебных комплектов SCM, модулей
общего канала сигнализации высокой производительности HCCM. Также определено
число выносных абонентских блоков RSU. Исходя из этого были выбраны число и тип
необходимых стативов по каждому виду оборудования проектируемой АТС.
Выбраны размеры помещения для
автозала и составлен план размещения соответствующего оборудования.
Список использованных источников
1. Заленская,
М.К. Системы коммутации: учеб. пособие по курсовому проектированию / М.К.
Заленская, В.В. Золотухин - Красноярск: СФУ, 2010. - 101 с.
2. Росляков,
А.В. Проектирование городской телефонной сети: учебник для вузов. - 2-е изд.,
перераб. и доп. - М.: Связь - Самара: 1998. - 88 с.
. РД
45.120.2000 Нормы технологического проектирования. Городские и сельские
телефонные сети. Введен взамен ВНТП 112-92; дата введ. 26.10.2000. - М.:
Министерство Российской Федерации по связи и информатизации, 2000. - 104 с.