Материал: Приводная станция

Внимание! Если размещение файла нарушает Ваши авторские права, то обязательно сообщите нам

Подшипник подбираем по=65.

- международное обозначение подшипника.

Направление воспринимаемых нагрузок - радиальное. Допускают значительные перекосы внутреннего кольца (вала) относительно наружного кольца (корпуса).

Подшипник соответствует стандарту ГОСТ 28428.

Характеристики подшипника 1313

Параметр

Обозначение

Значение

Единицы

Внутренний диаметр подшипника

d

65

мм

Наружный диаметр подшипника

D

140

мм

Ширина подшипника

В

33

мм

Радиус монтажной фаски подшипника

r

3,5

мм

Статическая грузоподъемность

C0

31000

Н

Динамическая грузоподъемность

C

62000

Н

Масса подшипника

2,45

кг


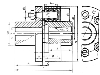
Рис. 7

Крышку подшипника выбирают, опираясь на внешний диаметр: D=140:

УМ 140 ГОСТ 13218.1к=140, мм; В=52, мм; В1=58, мм

Интересующие размеры, см. [5]

Рис. 8

7. Выбор стандартной муфты. Проверка элементов муфты

Основной характеристикой нагруженности муфты является номинальный вращающий момент (Tн), установленный стандартом. Муфты выбирают по большему диаметру концов соединяемых валов и по расчетному вращающему моменту.

Расчетный вращающий момент, действующий на муфту:

, Н×м

Муфта упругая втулочно-пальцевая.

Муфты получили широкое распространение в приводах машин с малыми и средними вращающими моментами, благодаря относительной простоте конструкции и удобству замены резиновых упругих элементов. Однако они имеют небольшую компенсирующую способность, и их применение целесообразно при установке соединяемых изделий на рамах большой жесткости (сварных рамах). Сборку соединяемых изделий необходимо проводить с высокой точностью.

Муфта между валом электродвигателя и входным валом редуктора.

, Н×м

к=2,0-коэффициент динамической нагрузки, для данного случая.

Н×м

Зная ТР= 100,26Н×ми d=38мм,d1=45мм подбираем муфту.(из ГОСТ 21424-93)

Муфта упругая втулочно-пальцевая 250-38-2-45-4 У3 ГОСТ 21424-93

Резиновые упругие элементы муфты проверяют на смятие. При этом полагают, что все пальцы нагружены одинаково, а напряжения смятия распределены равномерно по длине втулки.

,

см]=2, допускаемое напряжение смятия.

см=

Пальцы муфты проверяют на изгиб


где с - зазор между полумуфтами, мм;

и]=(0,4-0,5)Т - допускаемые напряжения изгиба,

Материал пальцев - сталь 45 ГОСТ 1050-88, Т=360, Радиальную силу Fм, действующую на вал, вследствие несоосности соединяемых валов, определяют по эмпирической формуле:

, Н

, Н

Где Тi- вращающий момент на соединяемом валу привода, Н∙м.

Интересующие размеры и параметры, муфты упругой втулочно-пальцевой 250-38-2-45-4 У3 ГОСТ 21424-93 находим из ГОСТ 21424-93.

Рис. 9

Номинальный вращающий момент Тн, Н∙м

Частота вращения n, мин -1, не более

Размеры, мм



d;d1

D

на длинные концы валов

на короткие концы валов

С

D1

B

b

dп

lвт

d0

Кол-во паль- цев,z





L

lц h14

lк h14

L

lц h14

lк h14










250

3780

48; 45

140

165

80

65

121

58

38

5

105

18

14

28

28

М10

6

Муфта между выходным валом редуктора и валом открытой передачи.=55, мми d3=50, мм

ТР=к ТI ТН, Н×м

ТР=2,0 299,57=599,14н]=1600Н×м

Муфта 1 - 1600- 50 - 1 - 55 - 2 У2 ГОСТ 50895-96

Проверка на смятие и изгиб.

,

см=2000ТР/0,9(d0)2bсм],Н/мм2,

Где Tp- расчетный вращающий момент, Н∙м;d0 - делительный диаметр зубчатого соединения, d0=m, мм; m-модуль зубьев, мм; z-число зубьев полумуфты, b- длина зуба, мм; см] - допускаемое напряжение смятия,

см]=(12-15) =2,5×38=95, мм;

, Н;

Н

Где Тi - вращающий момент на соединяемом валу привода, Н×м.

Номинальный вращающий момент Тн, Н∙м

Частота вращения n, мин -1 , не более

Размеры, мм

Зубья



d; d1

D







B

C1

C

b

модуль, m, мм

z





D1

D2

L

A

Lц h14

Lк h14







1600

4800

50; 55

170

125

80

174

75

82

65

34

22

5

15

2,5

38


Рис. 10

Список литературы

1.     «Кинематические расчеты приводов машин»: методические указания для самостоятельной подготовки студентов к выполнению курсового проекта/ сост. А.Л.Кириленко, А.Б. Коновалов, М.В. Аввакумов.-Изд.2-е, испр.- СПБГТУРП. СПБ., 2011.

2.      «Расчет цепных передач»: методические указания / сост. М.В. Аввакумов, А.Б. Коновалов; СПбГТУРП.-Спб.,2013.

.        «Конструирование узлов и деталей машин»: Учеб. Пособие для студ. техн. спец. вузов / П.Ф.Дунаев.- 8-е изд., перераб. и доп. - М.: Издательский центр «Академия», 2003.

.        М.В. Аввакумов, В.О. Варганов, В.А. Романов «ПРИКЛАДНАЯ МЕХАНИКА» Методические указания для выполнения курсовой работы, 2014г.