Материал: Приводная станция

Внимание! Если размещение файла нарушает Ваши авторские права, то обязательно сообщите нам

Приводная станция

МИНЕСТЕРСТВО ОБРАЗОВАНИЯ И НАУКИ РОССИЙСКОЙ ФЕДЕРАЦИИ

ФЕДЕРАЛЬНОЕ ГОСУДАРСТВЕННОЕ ОБРАЗОВАТЕЛЬНОЕ

УЧРЕЖДЕНИЕВЫСШЕГО ПРОФЕССИОНАЛЬНОГО ОБРАЗОВАНИЯ

«САНКТ-ПЕТЕРБУРГСКИЙ ГОСУДАРСТВЕННЫЙ

ТЕХНОЛОГИЧЕСКИЙ УНИВЕРСИТЕТ РАСТИТЕЛЬНЫХ ПОЛИМЕРОВ»

Кафедра основ конструирования машин






Курсовая работа по теме:

Приводная станция








Санкт-Петербург

г

1. Описание привода и редуктора

Привод - это устройство для передачи энергии от двигателя к рабочей машине.

Привод установлен на общей сварной раме и включает в себя:

электродвигатель АИР 132МS6;

редуктор типовой цилиндрический;

цепную передачу с промежуточным валом;

Редуктор - агрегат, содержащий одну или несколько механических передач, заключенных в герметичный корпус.

Редуктор предназначен для уменьшения частоты вращения и увеличения вращающего момента (Т) приводного вала.

Открытая цепная передача - тихоходная передача; в приводе стоит между редуктором и рабочей машиной.

Исходные данные

Синхронная частота вращения вала электродвигателя 1000 мин-1;

Редуктор типовой цилиндрический одноступенчатый;

Другие виды передач: цепная передача с промежуточным валом;

Муфты стандартные;

Основные параметры:

Наименование

Вариант 4

Требуемая мощность на валу рабочей машины, Pрм, кВт

4,5

Частота вращения вала рабочей машины, nрм, мин-1

56

Допускаемое отклонение частоты вращения вала машины [Δn], %

5


Режим работы трехсменный;

Условия эксплуатации: нагрузка-постоянная, равномерная.

Срок службы привода при трехсменной работе- 8 лет.

Кинематический расчет привода

Составление кинематической схемы привода

Кинематическая схема привода представлена на рис. 1.

Рис. 1 - Кинематическая схема привода

2. Определение расчетной мощности электродвигателя и выбор его по каталогу

Мощность, которую получает рабочая машинаPр.м.(требуемая мощность),всегда меньше мощности, отдаваемой электродвигателем (затраченная мощность), так как при передаче к рабочей машине она теряется во всех узлах трения привода. Это - закон для всех приводов. Общие потери мощности учитываются коэффициентом полезного действия (КПД) привода.

, кВт,

где ηо- коэффициент полезного действия привода, ;

КПД цилиндра одноступенчатого редуктора, ;

 - КПД открытой цепной передачи, ;

;

0,95×0,95×0,99=0,8935

кВт

ЭлектродвигательАИР132S6УЗГОСТР.51689-2000

Размеры электродвигателей серии АИР и RA исполнения IM 1081

Рис. 2

∂. ном. = 5,5кВТ;n∂=960мин-1; d1=38мм;l1=80мм; l30=460мм; b1=10мм; h1=8мм; d30=288мм; l10=140мм; l31=89мм; d10=12мм; b10=216мм; h=132мм; h10=13мм; h31=325мм.[1] с. 26, табл.3 и с. 28, табл. 5.

3. Определение общего передаточного числа привода и разбивка его на составляющие

Общее передаточное число Uо привода определяется по формуле:
о=

- асинхронная (рабочая) частота вращения вала двигателя, мин-1;

- частота вращения вала рабочей машины, мин-1;

Расчетное передаточное число редуктора:р.р., где Uо.п. - передаточное число открытой цепной передачи;

ПринимаемUо.п.=2,7[1]с.25, табл.2.

Тогда

Необходимый вращающий момент на тихоходном валу редуктора:

Т2== (Н.∙м)

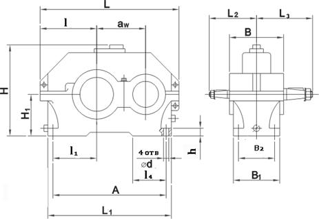
Выбираем типовой одноступенчатый цилиндрический редуктор ЦУ-160 с передаточным числом Uр.=6,3 и Тт=1000 Н∙м. Допускаемая радиальная нагрузка на входном валу - 1000 Н; на выходном валу - 4000 Н.

Редуктор ЦУ - 160-6,3-21-КУЗ(см. приложение 2)

=2,7

Передаточное число открытой цепной передачи оказалось в пределах рекомендуемых величин [1]с. 25, табл.2.

Рис. 3

Размеры, мм


L

L1

L2

L3

L4

L5

B

B1

B2

H

H1

H2

d

dвых

ЦУ - 160

475

412

355

136

218

218

185

175

125

335

170

28

30

36


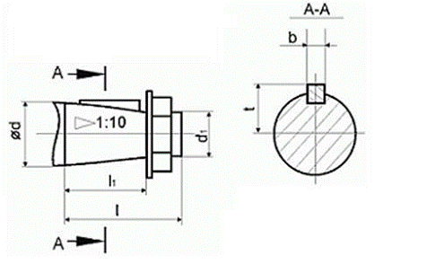
Размеры конического конца входного и выходного вала с наружной резьбой.

Рис. 4

Типоразмер редуктора

Вал

d, мм

d1, мм

I, мм

I1, мм

t, мм

b, мм

ЦУ-160

Входной

45

М30×2,0

110

82

14

5,5

ЦУ-160

Выходной

55

М36×3,0

1707

60

85

22


Фактическая расчетная мощность электродвигателя

 кВт

привод муфта вал мощность

4. Определение мощностей, частот вращения и вращающих моментов на валах привода

Определение мощности на валах.

на валу рабочей машины: кВт

− на выходном валу редуктора:кВт

− на входном валу редуктора: кВт

− на валу электродвигателя:кВт

на промежуточном валу: кВт

Определение частоты вращения валов.

− на валу электродвигателя:

− на входном валу редуктора:

− на валу рабочей машины:

на промежуточном валу:

Отклонение от заданной частоты вращения вала рабочей машины.

,

Определение вращающих моментов на валах.

− на валу двигателя: Н×м

− на входном валу редуктора: Н×м

− на выходном валу редуктора:Н×м

− на валу машины:Н×м

на промежуточном валу:Н×м

5. Расчет цепной передачи

Исходные данные для расчета:

Передаточное число u =2,7;

Частота вращения шестерни n1=152,38мин-1;

Частота вращения колеса n2=56,44мин-1;

Вращающий момент на шестерне Т1=299,57Н×м;

Срок службы привода при трехсменной работе - 8 лет.

Передача нереверсивная, нагрузка постоянная, производство мелкосерийное.

Минимальное число зубьев ведущей звездочки.

z1min=29-2×U=29-2×2,7=23,6

Принимаем z1=25

Определение числа зубьев ведомой звездочки.

z2=U×z2=23×2,7=67,5

Принимаем z2=67

Определение коэффициента эксплуатации.

При умеренных ударных нагрузках принимаем КД=1,5; коэффициент влияния межосевого расстояния КА=1,0 при a=(30-50)p; при горизонтальном расположении передачи КН=1,0; при нерегулируемом натяжении цепи КРЕГ=1,25; при периодической смазке КСМ=1,3; при трехсменной работе КРЕЖ=1,45 [2]с. 25 табл. 9.

С учетом принятых значений коэффициентов получаем

КЭ =КД×КА×КН×КРЕГ×КСМ×КРЕЖ=1,5×1,0×1,0×1,25×1,3×1,45=3,54

Определение шага цепи.

Среднее допускаемое давление в шарнирах приn1=152,38 мин-1;

МПа

Тогда шаг цепи

мм

Принимаем цепь ПР-38,1-127 ГОСТ 13568-97 с шагом Р=38,1 мм и разрушающей нагрузкой Fp=127 кН [2] с.8 табл.1.

Диаметры делительной окружности звездочек.

Ведущей звездочки:

мм;

Ведомой звездочки:

мм;

Средняя скорость цепи.

м/с;

Окружная сила, передаваемая цепью.

Н;

Давление в шарнирах цепи.

 МПа,

где А=394 мм2 - площадь опорной поверхности шарнира [2] с.24 табл.7.

Допускаемое давление в шарнирах цепи с шагом 38,1 мм [Р0]=29 МПа [2] с.24 табл.8. Поэтому условие Р0≤[Р0] выполняется.

Предварительное значение межосевого расстояния.

а=(30-50)×Р=(30-50)×38,1=(1143÷1905) мм

Принимаема=1500 мм.

Необходимое число звеньев цепи.

Lp=

Полученное значение округляем до целого четного числа Lp=126.

Уточненное значение межосевого расстояния.


Для необходимого провисания цепи необходимо уменьшить межосевое расстояние на (0,002 - 0,004)α. Уменьшаем α на величину 0,003×α=3,02 мм с последующим округлением до целого числа. Получаем α=1499 мм.

Проверка цепи по числу ударов о зубья звездочек.

с-1 <[U]=20 c-1

Здесь [U]=20 c-1[2] с.26 табл.11.

Проверка цепи на прочность.

Коэффициент запаса прочности


где Fц - натяжение цепи от центробежных сил,

,

m - масса одного метра цепи,m=5,5 кг [2] с.8 табл.1.- натяжение цепи от силы тяжести. Для горизонтально расположенной передачи F0=Kf×m×g×α=6×5,5×9,81×1,499=485H;

[S] - допускаемый коэффициент запаса прочности, [S]=8,9 [2] c.27 табл.12.


Условие прочности соблюдается

Определение размеров звездочек.

Диаметр окружности выступов ведущей звездочки


где k - коэффициент высоты зуба. При d1=22,23 мм [2] c. 8 табл1; k=0,575 [2] c.16 табл.5.

мм.

Диаметр окружности впадин ведущей звездочки

мм.

Диаметр окружности выступов ведомой звездочки

мм.

Диаметр окружности впадин ведомой звездочки

мм.

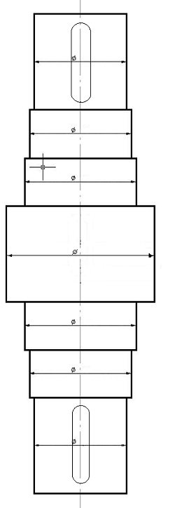
6. Предварительный расчет и конструирование промежуточного вала

Ведущий вал - вал шестерня.

Из условия на кручение:


где

;


где ;

;

мм,

где d1 - диаметр выходного конца;

;=50 мм=d1+10=50+10=60 мм

Рис. 5

По диаметру  подбираем манжету:

Рис. 6

Манжета 2.1. 6085-1 ГОСТ 8752-79;

Манжета типа 2, выбранная нами, предотвращает вытекание жидкости и защищает от проникновения пыли.

где  большой диаметр манжеты;

ширина манжеты.

Из условия подбора подшипников  должен быть кратен 5:

мм,

где - диаметр под подшипник.=d3+5=65+5=70 мм,=50 мм.

Выбор подшипников промежуточного вала.

Подшипник - сборочный узел, являющийся частью опоры или упора и поддерживающий вал, ось или иную подвижную конструкцию с заданной жёсткостью. Фиксирует положение в пространстве, обеспечивает вращение, качение или линейное перемещение с наименьшим сопротивлением, воспринимает и передаёт нагрузку от подвижного узла на другие части конструкции.