ВВЕДЕНИЕ
В данной курсовой работе необходимо разработать проект недвижимости «Планировка помещений жилого фонда, ее влияние на рынок недвижимости».
В неё входят: планы расположения объектов недвижимости, планы
перепланировки помещений недвижимости, паспорт объектов с основными
технико-экономическими характеристиками, расчет рыночной стоимости объекта
недвижимости, сравнительный анализ помещений до и после перепланировки,
зависимость рыночной цены от характеристик объекта недвижимости, подбор сделок
с объектами недвижимости, описание необходимых документов для их совершения и
регистрации прав.
1. Однокомнатная квартира
.1 План расположения помещений квартиры
Однокомнатная квартира в Железнодорожном районе по улице Красноармейская:
материал стен - кирпич, площадь 28/17,2/6, изолированная комната, совмещенный
с/у, 5 этаж (крайний), балкона нет, состояние удовлетворительное, год постройки
1956, имеется телефон. В квартире проживает гражданка Самсонова И. В.
(собственница).
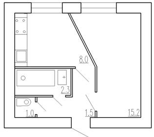
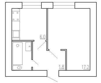
План однокомнатной квартиры до перепланировки
1.2 План перепланировки помещений однокомнатной
квартиры
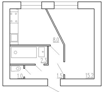
План однокомнатной квартиры после перепланировки
1.3 Паспорт объекта с основными
технико-экономическими характеристиками
МИНИСТЕРСТВО ЖИЛИЩНО - КОММУНАЛЬНОГО ХОЗЯЙСТВА
РЕСПУБЛИКИ БЕЛАРУСЬ
РЕСПУБЛИКАНСКИЙ ЦЕНТР УЧЕТА И РЕГИСТРАЦИИ НЕДВИЖИМОСТИ
ТЕХНИЧЕСКИЙ ПАСПОРТ
НА КВАРТИРУ (ЖИЛУЮ КОМНАТУ)
ЖИЛИЩНОГО ФОНДА РЕСПУБЛИКИ БЕЛАРУСЬ
. Область ___________________________________________
. Район ___________________________________________
. Сельский совет __________________________________________
. Населенный пункт Гомель____________________________________
. Район в городе Железнодорожный___________________________
. Улица Красноармейская_____________________________
7. Инвентарный номер ______350/Д-7364_________________________
Адрес________________________________________________________
Подъезд №_____ Этаж №__5
|
Дата |
Регистрационный номер |
Правообладатель |
Доля в жилом помещении |
Основание владения |
|
1 |
2 |
3 |
4 |
5 |
|
|
|
Самсонова И.В. |
|
Договор дарения |
Составлен по состоянию на «___»______________20__г.
__________________________________________________________________________________________________________________________________________________________________________________________
(наименование органа регистрации и технической инвентаризации)
. План квартиры
. Сведения о жилом доме
|
1. Серия, тип проекта жилого дома |
|
|
2. Инвентарный номер |
350/С-000600 |
|
3. Количество этажей, шт. |
5 |
|
4. Материал стен |
Кирп. |
|
5.Год постройки |
1956 |
|
6. Год реконструкции |
1997 |
|
7. Число квартир в доме, шт. |
15 |
|
8. Общая площадь жилых помещений (квартир) жилого дома, м2 |
1150 |
. Характеристика помещений квартиры (жилой комнаты)
|
Количество комнат |
Общая площадь,м2 |
В том числе |
Стоимость |
||||||||||||||||
|
|
|
Жилая площадь,м2 |
В том числе жилые комнаты |
Подсобные помещения |
|
||||||||||||||
|
|
|
|
1 |
2 |
3 |
4 |
5 |
кухня |
передняя прихожая |
коридоры внутреквартир. |
Шкафы встроенные |
санузел |
кладовая |
лоджия |
балконы |
|
|
Высота, м |
|
|
1 |
2 |
3 |
4 |
5 |
6 |
7 |
8 |
9 |
10 |
11 |
12 |
13 |
14 |
15 |
16 |
17 |
18 |
19 |
20 |
|
1 |
28 |
15,2 |
15,2 |
- |
- |
- |
- |
8,0 |
- |
1,5 |
- |
3,3 |
- |
- |
- |
- |
- |
2,50 |
|
. Техническое описание конструктивных элементов инженерного оборудования
|
|
Наименование |
Описание конструктивных элементов, материал, конструкция, отделочные покрытия |
|
|
1 |
Стены |
Наружные |
Кирп. |
|
|
|
Внутренние |
Кирп. |
|
2 |
Перегородки |
Кирп. |
|
|
3 |
Полы |
ДВП - окрашены |
|
|
4 |
Перекрытия |
ж/бет плиты |
|
|
5 |
Крыша |
совмещенная |
|
|
6 |
Проемы |
Оконные |
типовые дерев. переплеты с остеклением |
|
|
|
Дверные |
филенчатые деревянные |
|
7 |
Балконы |
- |
|
|
8 |
Лоджии |
- |
|
|
9 |
Инженерное оборудование |
Электроосвещение |
скрытая проводка |
|
|
|
Водопровод |
стальные трубы |
|
|
|
Канализация |
чугун. Стояк |
|
|
|
Электроплиты |
- |
|
|
|
Горячее водоснабжение |
стальные трубы, ЦТП |
|
|
|
Ванная |
эмалированная |
|
|
|
|
|
|
|
|
Отопление |
теплоцентраль |
|
|
|
Газоснабжение |
стальные трубы, природный газ |
|
|
|
Вентиляция |
вент. Каналы |
|
|
|
Телевидение |
антенная общ. Пользования |
|
|
|
Радио |
радиотранс. сеть |
|
|
|
Телефон |
каблирован |
|
|
|
Мусоропровод |
асб/ц стояк |
Особые отметки __________________________________________________________________________________________________________________________________________________________________________________________________________________________________________________________________________________________
Паспорт составил:
«__04__»__декабря_____20_13_г.______Городкова И.И.___ ________
Паспорт
проверил: «_04___»__декабря______2013__г.____Титова Т.В.__ _____
Руководитель органа регистрации
и технической инвентаризации ______Пархимович И.В.____________
1.4 Расчет рыночной стоимости
объекта недвижимости до перепланировки
Исходный вариант квартиры включал в себя кухню 6,0 кв.м, 1 жилую комнату площадью 17,2 кв.м, коридор 1,8 кв. м, совмещенный санузел 3 кв.м.
Для расчёта рыночной стоимости однокомнатной квартиры выберем из СМИ объекты аналоги и используя поправки на отдельные факторы рассчитаем их цену. Учитывая что из практики оценщиков для более точного расчёта необходимо брать не менее 3-х пар, возьмём за основу 5-ть вариантов.
Порядок оценки:
1) Определяем рыночную стоимость объектов аналогов
в у.е. по курсу нац. банка Республики Беларусь в долларах США, используя фактор
отличия наружных стен жилых домов с квартирами находящимися не на крайних
этажах в хорошем состоянии:
|
Материал стен |
объекты аналоги № 1 |
объекты аналоги № 2 |
объекты аналоги № 3 |
объекты аналоги № 4 |
объект аналог № 5 |
Средняя величина |
|
Кирпичные |
35000 |
38000 |
38000 |
39000 |
42000 |
38400 |
|
Панельные |
34000 |
36000 |
37000 |
37000 |
37000 |
36200 |
|
Разность |
1000 |
2000 |
1000 |
2000 |
5000 |
2200 |
|
Медиана |
1000 |
|||||
Расчёт поправки будем делать исходя из усреднённых показателей найденных цен:
П=38400-36200=2200
Тогда рыночная стоимость квартиры с учётом поправки на кирпичный дом будет следующая:
+ 2200 = 38200 долл.
При использовании показателя медианы на разницу полученных цен, мы можем определить поправку в размере 1000 долл. тогда рыночная стоимость квартиры будет:
+ 1000 = 37000 долл.
Аналогично данному примеру рассчитаем поправки на цену и по другим
факторам. При подборе вариантов аналогов квартир для расчёта, в данных объектах
должны присутствовать факторы, поправки к которым уже проводились. Например,
если мы посчитали поправку на материал стен, то при расчёте на следующую
поправку, берутся квартиры с одинаковыми наружными стенами, в противном случае
в определяемой поправке будет находиться и предыдущая. Не редко из-за
отсутствия возможности выделить каждую поправку отдельно, берутся объекты с
несколькими факторами отличия, и поправки определяются в совокупности.
|
Этажность и наличие балкона |
Объекты аналоги №1 |
Объекты аналоги № 2 |
Объекты аналоги № 3 |
Объекты аналоги № 4 |
Объекты аналоги № 5 |
Средняя величина |
|
Не крайние этажи с балконом |
35000 |
36000 |
38000 |
40000 |
42000 |
38200 |
|
Крайний (первый или последний) этаж без балкона. |
32000 |
32000 |
33000 |
35000 |
35000 |
33400 |
|
Разность |
3000 |
4000 |
5000 |
5000 |
7000 |
4800 |
|
Медиана |
5000 |
|||||
На основании данных приведенных в таблице по объектам аналогам вычисляются поправки на этаж и наличие балкона.
П=38200-33400=4800
С применением медианы поправка будет составлять 5000 долл.
Расчёт оставшихся поправок с подбором объектов аналогов
|
Наименование фактора отличия |
Объекты аналоги № 1 |
Объекты аналоги № 2 |
Объекты аналоги № 3 |
Объекты аналоги № 4 |
Объекты аналоги № 5 |
Средняя величина |
|
Площадь кухни более 7 м. кв.; с/у раздельный с ванной комнатой |
35000 |
35000 |
37000 |
38000 |
38000 |
36600 |
|
Площадь кухни от 6 до 7 м. кв.; с/у совмещён с ванной комнатой. |
32000 |
33000 |
34500 |
35000 |
35000 |
33900 |
|
Разность |
3000 |
2000 |
2500 |
3000 |
3000 |
2700 |
|
Медиана |
2500 |
|||||
|
Состояние квартиры хорошее. |
36000 |
36000 |
38000 |
39000 |
42000 |
38200 |
|
Состояние квартиры удовлетворительное. |
34500 |
35000 |
35000 |
36000 |
36000 |
35300 |
|
Разность |
1500 |
1000 |
3000 |
3000 |
6000 |
2900 |
|
Медиана |
3000 |
|||||
|
Хорошо развитая инфраструктура. |
39000 |
39000 |
40000 |
42000 |
42000 |
40400 |
|
Плохо развитая инфраструктура. |
35000 |
35000 |
36000 |
37000 |
37000 |
36000 |
|
Разность |
4000 |
4000 |
4000 |
5000 |
5000 |
4400 |
|
Медиана |
4000 |
|||||
Как видно из таблицы 5 поправки на отличия квартир аналогов по различным факторам будут составлять:
На площадь кухни и совмещённость санузла с ванной комнатой:
П=36600-33900=2700
С применением показателя «медианы» - 2500 у.е.
На состояние квартиры:
П=38200-35300=2900
С применением показателя «медианы» - 3000 у.е.
На имеющуюся инфраструктуру:
П=40400-36000=4400
Вычислив необходимые поправки, берём среднюю рыночную стоимость объекта аналога из любых пар анализа и слаживаем (вычитаем) полученные данные. Для расчёта из табл. 3 возьмём среднюю рыночную цену квартиры в панельном доме и проведём её к рыночной стоимости заданной квартиры:
- 4800 - 2700 - 2900 + 4400 = 32400 у.е.
Учитывая наличие погрешностей при расчёте поправок делаем корректировку на точность расчёта в размере 5% от полученной суммы.
δ =
V*5/100=1620
у.е., тогда рыночная стоимость квартиры с учетом корректировки составит 34020
у.е.
При
использовании медианы рыночная стоимость квартиры составит 31900 у.е.
1.5 Расчет рыночной стоимости объекта
недвижимости после перепланировки
В ходе перепланировки было перенесена стена кухни, вследствие чего кухня стала площадью 8,0 кв.м, коридор 1,5 кв.м., жилая комната 15,2 кв.м. и санузел сделали раздельным, в итоге ванна стала площадью 2,3 кв.м., а туалет 1 кв.м. . Сделан ремонт, оконные рамы заменены на стеклопакеты.
Для расчёта рыночной стоимости однокомнатной квартиры выберем из СМИ объекты аналоги и используя поправки на отдельные факторы рассчитаем их цену. Учитывая что из практики оценщиков для более точного расчёта необходимо брать не менее 3-х пар, возьмём за основу 5-ть вариантов.
Порядок оценки:
2) Определяем рыночную стоимость объектов аналогов
в у.е. по курсу нац. банка Республики Беларусь в долларах США, используя фактор
отличия наружных стен жилых домов с квартирами находящимися не на крайних
этажах в хорошем состоянии:
|
Материал стен |
объекты аналоги № 1 |
объекты аналоги № 2 |
объекты аналоги № 3 |
объекты аналоги № 4 |
объект аналог № 5 |
Средняя величина |
|
Кирпичные |
35000 |
38000 |
38000 |
39000 |
42000 |
38400 |
|
Панельные |
34000 |
36000 |
37000 |
37000 |
37000 |
36200 |
|
Разность |
1000 |
2000 |
1000 |
2000 |
5000 |
2200 |
|
Медиана |
1000 |
|||||
Расчёт поправки будем делать исходя из усреднённых показателей найденных цен: