Материал: Обґрунтування раціональної технологічної схеми гірничотехнічної рекультивації залишкових вироблених просторів кар’єру з урахуванням екологічних проблем регіону

Внимание! Если размещение файла нарушает Ваши авторские права, то обязательно сообщите нам

. Було створено загальну класифікаційну таблицю видів кар’єрних полів згідно за параметрами типових кар’єрів, що дає змогу використовувати її для характеристики родовищ.

. За аналізом будівельних відходів було представлено склад будівельних відходів, та за рахунок проведеного аналізу було створено класифікацію з 4 класів небезпечності відходів. Так як нас цікавили саме будівельні відходи, то за цією класифікацією я відніс їх до 4 класу небезпечності, так як вони не містять в собі високотоксичних речовин і матеріалів, що роблять їх більш сприятливим матеріалом для заповнення залишкового виробленого простору.

. Сформульовані заходи згідно з положенням документу «Державні будівельні норми України Проектування полігонів твердих побутових відходів основні положення проектування» ДБН В.2.4-2-2005[4], для забезпечення безпечної штучним матеріалом.

3. На основі аналізу існуючих полігонів та складу будівельних відходів було створено класифікацію полігонів для складування відходів та вимоги щодо їх розміщення у обводненому залишеному просторі кар’єру на основі положенням документу «Державні будівельні норми України Проектування полігонів твердих побутових відходів основні положення проектування» ДБН В.2.4-2-2005 [4].

гірничотехнічний рекультивація обводнений кар’єр

3. РОЗРОБКА ТИПОВИХ ТЕХНОЛОГІЧНИХ СХЕМ ГІРНИЧОТЕХНІЧНОЇ РЕКУЛЬТИВАЦІЇ ОБВОДНЕНИХ ЗАЛИШКОВИХ ВИРОБЛЕНИХ ПРОСТОРІВ КАР’ЄРУ ВІДХОДАМИ ІНШИХ ГАЛУЗЕЙ ПРОМИСЛОВОСТІ

3.1 Розробка технології гірничотехнічної рекультивації при складування будівельних відходів в залишковий простір в умовах обводнення кар’єру

Метою магістерської роботи є обґрунтування можливості рекультивації залишених вироблених просторів обводнених кар’єрів, шляхом використання твердих будівельних відходів для відновлення земель порушених відкритою розробкою родовищ будівельних матеріалів.

Виходячи з даних табл. 2.2 можливі наступні схеми складування відходів: майданчикова і висотна.

Майданчикова схема приймається на неглибоких кар’єрах глибиною 20-40 м і малих об’ємах залишених вироблених просторів (рис. 3.4).

Дана схема передбачає селективну відсипку відходів у вироблений простір. Такий спосіб складування дозволяє здійснювати захоронення декілька видів будівельних відходів. Після підготовки на сортувальному пункті відходи транспортують в залишений вироблений простір і селективно складують в тимчасовий відвал, звідки селективно відсипають в сміттєвий навал за допомогою грейдера. Після цього з відвалу породи насипають зверху породну подушку із зовнішнього відвалу розкривних порід, створюючи основу для подальшої рекультивації.

Пропоную розглянути етапи селективного складування відходів в залишений вироблений простір кар’єру за даною схемою.

Примітка: при складуванні двох видів відходів зберігається така ж послідовність етапів.

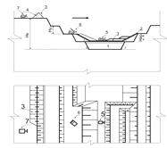
Рис. 3.6 - Майданчикова технологічна схема складування відходів у залишковий вироблений простір кар’єру

- розподільчий пункт прийому відходів, 2- тимчасові навали, 3 - грейфер, 4- драглайн, 5 - висота відходів, 6 - відвал розкривних порід, 7 - транспортні шляхи, Hу - висота уступу ( висота ЗВП) м; Шд - ширина дна ЗВП, м; hп - висота відвалу породи, м; ho - висота відвалу відходів (тимчасовий відвал, м); z - безпечна відстань від драглайну до краю бровки, м; а - безпечна відстань від робочого грейфера до відвалу відходів, м; y - кут укосу природнього відвалу розкривних порід, град; β - кут природнього укосу відвалу відходів, град.; ɸ - кут укосу борта кар’єру, град.

Для подальшого розробки технології гірничотехнічної рекультивації обводненого залишкового виробленого простору обираємо висотну схему.

Висотна схема в умовах обводнення кар’єрного дна залишкового виробленого простору кар’єру.

Етап

Висотна схема складування відходів, передбачена для великих кар’єрів глибиною 40-100м і при великих об’ємах залишкового виробленого простору (рис. 3.7).

Рис. 3.7 Висотна технологічна схема підготовки і створення ізоляційного шару виробленого простору кар’єру та осушення обводненого дна кар’єру для подальшого складування будівельних відходів

. Водоймище; 2 насип глини на дні кар’єру; 3. відвал будівельних відходів і розкривних порід; 4 відвал глини, 5 грейфер; 6 автосамоскид. Нк - глибина кар’єру, м; Нг - висота гірничої маси, м; А - довжина насипу глини, м; Шд - ширина дна кар’єру, м; ѱ- кут укосу бортів, град; в - ширина заходки грейфера, м; Z - безпечна відстань від грейфера до верхньої брівки уступу.

За даною схемою, перед тим як складувати відходи у залишковий вироблений простір кар’єру в умовах обводнення дна кар’єру водоймищем чи ґрунтовими водами, необхідно для безпечного захоронення відходів осушити дно кар’єру та створити ізоляційний шар на дні та на бортах виробленого простору - протифільтраційний екран полігону будівельних відходів, екран, який вважається і має відповідність з європейськими стандартами, коефіцієнт фільтрації води не більше 10-9 м/с. Потік глини направлений в вироблений простір кар’єру за допомогою автомобільного та залізничного транспорту. Глину (4) вкладають грейфером (5) з вищого уступу де розташовується тимчасовий навал глини (4), яку відвантажують автосамоскиди (6); утворюється навал, висота якого буде становити не менше 2 метри вище рівня ґрунтових вод та рівня води в водоймищ, згідно з документу «Основні положення проектування полігонів твердих побутових відходів ДБН В.2.4-2-2005.Офіційне видання.». Таким чином заповнюється вироблений простір та ізолюється дно кар’єру для подальшої по етапної рекультивації залишеного простору кар’єру.

. Етап

Висотна технологічна схема підготовки і створення ізоляційного шару на бортах залишкового виробленого простору кар’єру. (рис. 3.8).

Рис. 3.8 Висотна технологічна схема підготовки і створення ізоляційного шару на бортах залишкового виробленого простору кар’єру

- осушена ділянка дна кар’єру глиною і розкривних порід; 2 - ізоляційний шар глини висотою 1-2 м.; 3 - навал глини для ізоляція залишеного виробленого простору кар’єру. 4; 5 - бульдозери; 6 - автосамоскид; 7 - рівень ґрунтових вод; 8 - навал будівельних відходів; 9 - навантажувач.

За даною схемою, підготовка бортів залишеного виробленого простору кар’єру, відбувається наступним чином, ізолюємо борти шаром глини висотою 1-2 м (згідно вимогами документу «Основні положення проектування полігонів твердих побутових відходів ДБН В.2.4-2-2005.Офіційне видання.» за допомогою бульдозерів (4) і (5), автосамоскид(6) доставляє глину на уступ вищий за уступ який ізолюється і відвантажує глину на нижче лежачий уступ, попередньо автосамоскид(6) завантажується глиною на поверхні навантажувачем (9). Бульдозер(4) вирівнює дану ділянку транспортуючи глину на нижче лежачий під уступ, який є дном кар’єру і майбутнім дном полігону, на якому, бульдозер утрамбовує глину і паралельно формує ізоляційний шар на неробочому борту виробленого простору кар’єру.

Етап

Складування будівельних відходів, у вироблений простір кар’єру (рис.3.9)

Рис. 3.9 Висотна технологічна схема складування відходів у залишковий вироблений простір

- ізоляційний шар 1-2 м; 2 - ізолюванні борти; 3 - навал глини на поверхні для створення ізолюючого шару у виробленому просторі кар’єру; 4 - навал будівельних відходів на поверхні для закладки у вироблений простір кар’єру; 5 - бульдозери, для утрамбування та транспортування глини та відходів у залишений вироблений простір кар’єру; 6 - автосамоскид; 7 - навантажувач Нк - глибина кар’єру, м; Ну - висота уступу, м; β - кут укосу навалу будівельних відходів, град; А - ширина заходки навалу будівельних відходів; ѱ- кут укосу бортів кар’єру. Няр - висота ярусу складування, за умов (ДБН В.2.4-2-2005.) складає 2 -3 м;

За даною схемою, засипка залишкового виробленого простору відбувається наступним чином, перед тим, як відвантажити будівельні відходи у вироблений простір, навантажувач (7), який знаходиться на поверхні кар’єру, відвалом відвантажує будівельні відходи в автосамоскид (6). Після чого автосамоскид транспортує будівельні відходи до залишеного виробленого простору кар’єру, розвантажує у місці складування відходів. Після чого бульдозер (5) який знаходиться на дільниці складування, поярусно складує у залишений вироблений простір відходи висотою 2-2.5м за положенням ( Проектування полігонів та складування відході ДБН В.2.4-2-2005.) і утрамбовує відходи для подальшого складування наступних ярусів.

Етап

Схема завершення гірничотехнічної рекультивація шляхом використання будівельний відходів, як матеріалу закладки залишкового виробленого простору кар’єру та відновлення земель і можливість використання рекультивованого простору для сільськогосподарських та промислово-цивільного будівництва (рис. 3.10).

За даною схемою, поярусно висотою ярусу 2-2,5 метрів, продовжуємо засипати залишений вироблений простір використовуючи будівельні відходи як матеріал закладки гірничих виробок до самої поверхні кар’єру, після чого вкладаємо ізолюючий шар глини поверх відходів з протифільтраційним коефіцієнтом не менше 9-10м/с, для безпечного експлуатації полігону (з положення про проектування полігонів і складування відходів ДБН В.2.4-2-2005) та шару ґрунту потужністю 0,6-0,8 м.

Рис. 3.10 Схема завершення гірничотехнічної рекультивації з використання будівельних відходів, як матеріал для закладки залишкового виробленого простору кар’єру

- осушена ділянка водоймища; 2 ізолюючий шар глини потужність шару 2м.; 3 - шару ґрунту 0,6 - 0,8м; 4 - навал будівельних відходів; 5 - бульдозер; 6- автосамоскид; 7 - навантажувач; Нг - висота шару ґрунту, м; Няр - висота ярусу відходів, 2-2.5 м; Нк - глибина кар’єру,м; Ну - висота уступу,м;β - кут укосу ізолюючого шару, град; ѱ - кут укосу борта кар’єру, град.

Поярусне складування твердих будівельних відходів та селективне вкладання ізоляційних шарів, як було представлено на майданчиковій схемі в умовах обводнення дна кар’єру, дозволяє знизити приток підземних вод та при правильному осушенні дна кар’єру при дотриманні нормативних умов з положення проектування полігонів ДБН В.2.4-2-2005, що дає змогу безпечно складувати відходів, у залишковий вироблений простір кар’єру, а також знизити накопичення та вплив шкідливих газів СО на природне середовище, за рахунок параметрів протифільтраційної ізоляційних шарів на поверхні рекультивованої площі землі.

3.2 Розробка методики встановлення параметрів технологічної схеми гірничотехнічної рекультивації обводненого залишеного виробленого простору кар’єру

.2.1 Підготовки вихідних даних для визначення параметрів обводненого залишкового виробленого простору кар’єру

Основними параметрів кар’єру є - ширина та довжина кар’єрного поля, ширина та довжина кар’єру поверху та понизу, глибина кар’єру, кут укосу бортів, ширина уступу Від цих параметрі залежать отримання результати розрахунку об’єму залишеного виробленого простору, об'єм відходів необхідний для засипки виробленого простору площі відновлених земель.

Згідно за попереднього аналізу за табл. 1.2 класифікацією типів кар’єрів, візьмемо данні для розрахунку об’ємів, та площ та для визначення залежності.

.2.2 Розробка методики визначення необхідного об’єму заповнювача для засипки обводненої та звичайної частин залишкового виробленого простору кар’єру

При застосуванні розробленої технологічної схеми гірничотехнічної рекультивації на відпрацьованих або діючих будівельних кар’єрів слід мати уяву про об'єм залишеного виробленого простору, і як наслідок встановити необхідний об'єм відходів, який можна там розмістити.

Але перед тим як розрахувати об'єм відходів слід, розглянути види кар’єрних полів, що в результаті дасть більш чітку інформацію про розміри залишених вироблених просторах, а також, з’ясувати, до якого виду можна віднести будівельні кар’єри.

Для визначення об’ємів залишкового виробленого простору кар’єрів, пропоную взяти найбільш типову форму відпрацювання кар’єрів з внутрішнім відвалоутворенням (рис. 3.10), а також побудова графіків залежності зміни об’єму відходів від глибини залишкового виробленого простору для будівельних кар’єрів (Рис. 3.11, 3.12)

Об'єм залишеного виробленого простору кар’єру дорівнює

, (3.1)

де: : - середня ширина залишкового виробленого простору, м.

 - середня довжина залишкового виробленого простору, м

Нк - глибина кар’єр,м.

Необхідний об'єм породи для заповнення обводненого дна виробленого простору кар’єру визначається за формулою (рис. 3.11)

Рис. 3.11 Розрахункова схема необхідного об’єму заповнення залишкового виробленого простору кар’єру

Lк - довжина кар’єру поверху, м

Lк.ср.- середня довжина кар’єру, м

Lк.п. - довжина кар’єру понизу, м

Вк - ширина кар’єру поверху,м

Вк.ср. - середня ширина кар’єру, м

Вк.п. - ширина кар’єру понизу,м

Нк. - глибина кар’єру,м

Нобв. - висота обводненого залишкового виробленого простору

 (3.2)

де:  - середня ширина обводненої території,м

 - середня довжина обводненої території,м

Н обв - глибина обводненого залишкового виробленого простору

Н обв.= Ноб.уст.+2, м. (3.2.1)

де: Нобв.уст - висота обводненого уступу,

- згідно нормативним положення документа[4] висота засипаної обводненої території повинна бути на 2 метри вища рівня ґрунтових вод і водоймищ.

 (3.2.2)

де: -ширина кар’єрного,м

 -довжина кар’єрного,м

 -глибина кар’єру, м

Рис. 3.12 Розрахункова схема для визначення параметрів залишеного виробленого простору (типового кар’єру з внутрішнім відвалоутворенням)

Згідно формулі (3.2) встановлюємо залежність необхідного об’єму відходів від кутів укосу первісної виїзної траншей табл. 3.3

Таблиця 3.3

Розрахунок необхідного об'єм у відходів в залежності від параметрів, кутів укосу первісної і виїзної траншеї при глибині кар’єру 40 м

Кут укосу борта виїзної та первісної траншеї,град

Значення кутів tg

Значення кутів ctg

Глибина кар'єру, м

Об'єм виїзної траншеї, м3

Об'єм первісної траншеї, м3

Об'єм залишеного виробленого простору

40

0,83

1,19175

40

376020

255013,7

631033,656

45

1

1

40

330000

223831,4

553831,418

50

1,91

0,8391

40

291384

196919,1

488303,136

55

1,42

0,70021

40

2580504

175139,7

433190,146

60

1,73

0,57735

40

228564

155172,7

383736,713

65

2,144

0,46631

40

201914,4

137132,6

339047,017

70

2,74

0,36397

40

177352,8

120509,4

297862,24

75

3,73

0,26795

40

154308

104908,7

259216,712

80

5,67

0,17633

40

132319,2

90024,58

222343,781