Материал: Нормирование точности детали вал, изделия - вал приводной

Внимание! Если размещение файла нарушает Ваши авторские права, то обязательно сообщите нам

Нормирование точности детали вал, изделия - вал приводной

Министерство образования и науки России

ФГБОУ ВПО "Ижевский государственный технический университет"

Кафедра "КТПМП"










Курсовой проект

Нормирование точности детали вал, изделия - вал приводной


Проверил:

преподаватель Попова З.Е.






Ижевск

Содержание

Введение

. Служебное назначение изделия

. Обоснование выбора основных сопрягаемых размеров из рядов предпочтительных чисел: ГОСТ 8032-56, ГОСТ 6636-69

. Выбор и назначение посадок на остальные сопрягаемые поверхности с графическим изображением полей допусков

. Соединения с подшипниками качения. Назначение полей допусков

. Выбор и назначение посадок на шпоночные и резьбовые соединения

.1 Шпоночное соединение

.2 Посадка на резьбу

. Описание служебного назначения детали "вал"

. Обоснование назначения допусков, отклонений формы, взаимного расположения поверхностей

. Обоснование назначения размеров шероховатости поверхности

Заключение

Список литературы

Введение

Дисциплина нормирование точности представляет собой минимум специальных знаний, которыми обязаны владеть все кто хочет считать себя специалистом в области машиностроительного производства. Поэтому главной целью курса является научить будущего специалиста "читать чертеж с точки зрения точности выполнения его элементов". А поскольку требуемая точность указывается чаще всего в виде условных знаков, то естественно надо знать расшифровку этих знаков уметь их объяснить и находить те элементы детали, к которым относятся эти точностные требования.

Большой объем догматичных сведений, содержащихся в этой дисциплине, не подлежащих доказательству и признаются беспрекословными и обязательными для всех. Любая наука, особенно связанная с точностью изготовления и проектирования деталей требует практических навыков. Поэтому целью данной работы является применение на практике теоретических основ нормирования. Зачастую инженер-технолог создает новые и модернизирует существующие изделия, занимается подготовкой чертежной документации, способствующей обеспечению необходимой технологичности и высокого качества изделий.

Решение этой задачи связано с выбором необходимой точности изготовления изделий, расчетом размерных цепей, выбором шероховатости поверхностей, а так же выбором допусков отклонений от геометрической формы и расположения поверхностей. Основной задачей данной работы является приобретение навыков работы с нормативной документацией (непосредственно со стандартами, а не выдержками из них) и рабочими чертежами машиностроения.

При проектировании деталей машин их геометрические параметры задаются размерами элементов, а также формой и взаимным расположением их поверхностей. При изготовлении возникают отступления от геометрических параметров реальных деталей от запроектированных значений. Эти отступления называются погрешностями. Погрешности могут возникать также в процессе хранения и эксплуатации машин под воздействием внешней среды, внутренних изменений в структуре материала, износа и.т.д.

Степень приближения действительных параметров к идеальным называется точностью. Понятие о точности и погрешности взаимосвязаны. Точность характеризуется действительной погрешностью или пределами, ограничивающими значение погрешности (нормированная точность). Чем уже эти пределы, тем меньше погрешность и выше точность.

1. Служебное назначение изделия

Приводной вал.

Приводной вал передает вращение от электродвигателя к рабочим органам и состоит из двух валов 12 и 10, соединенных зубчатой муфтой.

Вращение передается со звездочки 1, закрепленной на валу 12 шпонкой 26, на левую полу муфту 3, соединенную с валом 12 шпонкой 26. Правая полумуфта 5 закреплена на валу 10 шпонкой 25. В рабочем положении обойма соединяет обе муфты, и валы 10 и 12 вращаются совместно.

Звездочки 6 и 9 передают вращение к рабочим органам машины. Звездочка 6 сидит на правой полумуфте 5 на шпонке 25, а звездочка 9 - на валу 10 на шпонке 25.

Чтобы отключить рабочие органы машины, нужно повернуть ручку 4 в положение, показанное на чертеже. При этом вилка 16, замедленная на конце оси 13 штифтом 30, передвинет обойму 5 влево (вилка с обоймой соединены с помощью осей 17 и сухарей 10). Полумуфта 6 выйдет из зацепления и отключит вал 20. Поворот вилки зафиксируется шариком 38, который попадет во второе углубление ступицы 1.

Вал 12 установлен в шарикоподшипниках 7, смонтированных в стакане 15. Вал 10 установлен в шарикоподшипниках 23, смонтированных в корпусе машины. Для соосности валов в полумуфте 5 установлен шарикоподшипник 34. Смазываются подшипники при монтаже.

2. Обоснование выбора основных сопрягаемых размеров из рядов предпочтительных чисел: ГОСТ 8032-56, ГОСТ 6636-69

Номинальные линейные размеры (диаметры, длины, уступы, глубины, расстояния между осями и т.д.) деталей, их элементов и соединений должны назначаться из числа стандартных по ГОСТ 6636-69. При этом полученное расчетом или иным путем исходное значение размера, если оно отличается стандартного, следует округлить обычно до ближайшего большего стандартного размера. Применение стандартных номинальных размеров дает большой экономический эффект, так как создает основу для сокращения типов размеров изделий и деталей, а также технологической оснастки, в первую очередь размерных режущих инструментов, калибров и т.п.

На основе общего стандарта в рамках отрасли или отдельного предприятия целесообразно разработать ограничительный стандарт на нормальные линейные размеры, что позволяет в еще большей степени упорядочить и сократить размерный ряд изделий и инструментальное хозяйство с учетом конкретных требований и условий производства. Особенно важно сокращение многообразия размеров сопрягаемых поверхностей, для которых применяется наибольшее количество размерной оснастки.

Ряды предпочтительных чисел.

Стандарт на нормальные линейные размеры построен на основе рядов предпочтительных чисел (ГОСТ 8032-56), принятых во всем мире, в том числе в странах ИСО и СЭВ, в качестве универсальной системы числовых значений параметров и размеров продукции всех отраслей народного хозяйства. Ряды предпочтительных чисел представляют собой геометрические прогрессии со знаменателями  которые в каждом десятичном интервале содержат соответственно 5, 10, 20 и 40 чисел, что отражено в обозначениях рядов. В нашем случае Ø25 -R5, Ø35 -R10.

Действительные и предельные размеры. Допуск размера.

Действительным размером (Dд, dд) называется размер, установленный измерением детали с допускаемой погрешностью. Два предельно допускаемых размера, между которыми должен находиться действительный размер годной детали, называется предельными размерами. Деталь считается годной и в том случае, если действительный размер равен предельному. Больший из двух предельных размеров называется наибольшим предельным размером (Dmax, dmax), меньший - наименьшим предельным размером (Dmin, dmin).

Разность между наибольшим и наименьшим предельными размерами называется допуском размера:

для отверстия


для вала


Допуск является мерой точности размера. Чем меньше допуск, тем выше требуемая точность детали, тем меньше допускается колебание действительных размеров деталей и, следовательно, колебание зазоров или натягов в соединении. И наоборот низкая точность характеризуется большим допуском. Допуск непосредственно влияет на трудоемкость изготовления и себестоимость деталей. Чем больше допуск, тем проще и дешевле изготовление. От допуска в значительной степени зависит выбор оборудования и средств контроля, разрядность рабочей силы, производительность обработки.

Номинальный размер.

Номинальным размером (Dн, dн) называется размер, который служит началом отчета отклонений и относительно которого определяются предельные размеры.

Номинальный размер указывают в чертежах деталей.

Отклонением размера называется алгебраическая разность между размером (действительным, предельным и т.д.) и соответствующим номинальным размером.

Отклонения, в отличие от размеров, которые всегда выражаются положительными числами могут быть и положительными (со знаком +), если размер больше номинального, и отрицательными (со знаком -), если размер меньше номинального. Если размер равен номинальному, то отклонение равно нулю.

Действительным отклонением называется алгебраическая разность между действительным и номинальным размерами:

для отверстия


для вала


Предельным отклонением называется алгебраическая разность между предельным и номинальным размерами.

Различают верхнее и нижнее предельные отклонения, применяя при этом краткие термины - верхнее и нижнее отклонение.

Верхнее отклонение - алгебраическая разность между наибольшим предельным и номинальным размерами:

для отверстия

для вала


Нижнее отклонение - алгебраическая разность между наименьшим предельным и номинальным размерами:

для отверстия


для вала



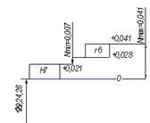
3. Выбор и назначение посадок на остальные сопрягаемые поверхности с графическим изображением полей допусков

Назначим на все сопрягаемые поверхности червячного редуктора посадки:

Посадка крышки поз.39 - Æ52

Единственное назначение крышек - закрыть отверстие корпусной детали. Точное центрирование таких крышек по отверстию корпуса не требуется. Поэтому поле допуска центрирующей поверхности крышки принимают согласно ГОСТ 18511-73 -Н7/d11.


Посадка стакана поз.3 - Æ72

Стаканы применяют для удобства сборки. Стаканы для подшипников вала конической шестерни, как правило, перемещают при сборке для регулирования осевого положения конической шестерни.

Посадка переходная  - "напряженная". Наиболее характерный и применяемый тип переходных посадок. Вероятности получения натягов и зазоров в соединении примерно одинаковые. Однако из-за влияния отклонений формы, особенно при большей длине соединения, зазоры в большинстве случаев не ощущаются.

Небольшой натяг, получающийся в большинстве соединений, достаточен для центрирования деталей и предотвращения их вибраций в подвижных узлах при вращении со средними скоростями.

Эта посадка предпочтительна по СТ СЭВ 144-75: зубчатые колеса на валах редукторов станков и других машин, шкивы, маховики, рычаги, съемные муфты на валах средних электромашин, втулки в головках шатуна тракторного двигателя, подшипниковые щитки в корпусах крановых электродвигателей, грунт-буксы и подшипниковые втулки в корпусах и др.

Так как в отверстиях стаканов устанавливают подшипники качения, то поля допусков отверстий выбирают в соответствии с посадками подшипников.

Для легкости установки стаканов в корпусные детали желательно применение посадок с зазором. Но тогда возможно их смещение в пределах зазоров, что вызовет изменение положения оси вращения вала и, как следствие, увеличение концентрации нагрузки. Поэтому в соединении стаканов с корпусом зазоры нежелательны.

В связи с этим рекомендуется применить следующие переходные посадки для стаканов: нерегулируемых в осевом направлении H7/k6; H7/m6; регулируемых в осевом направлении H7/js6 .


Соединение ступени вала с отверстием зубчатого колеса. Посадка с натягом , чтобы свободно можно было собирать и разбирать изделие. Если же посадка будет с зазором, то при вращении колеса возникнет повышенное радиальное биение и эксцентриситет.

Аналогично назначим посадки на остальные шпоночные соединения.


Допуск под внутренний диаметр уплотнения (манжеты) дет. №40.

Поверхность вала обработана Æ32h11.


Важно также, чтобы манжета не была перекошена. Для этого задают допуск параллельности торца для базирования манжеты к поверхности фланца крышки. Допуск параллельности на диаметре D крышки принимают Т ≈JT12.

На диаметр DM посадочного места под манжету задают по ГОСТ18512 -73 поле допуска H8.


4. Соединения с подшипниками качения. Назначение полей допусков

Соединения подшипников качения с валами (осями) и корпусами осуществляется в соответствии с ГОСТ 3325-55.

Диаметр наружного кольца подшипника D и диаметр внутреннего кольца d приняты соответственно за диаметры основного вала и основного отверстия, следовательно, посадки наружного кольца с корпусом осуществляются по системе вала, а посадки внутреннего кольца с валом - по системе отверстия.

При назначении полей допусков на вал и отверстие корпуса соответственно под внутренние и наружное кольца подшипника качения необходимо учитывать следующее: вращается кольцо вместе с валом или корпусом, или оно неподвижно; величину, направление или характер действующих на подшипник нагрузок; режим работы; тип и размер подшипника и т.д.

Выбор посадок колец подшипников определяется характером их нагружения, зависящим от того, вращается или не вращается данное кольцо относительно действующей на него радиальной нагрузки. Под последней понимается результирующая всех радиальных нагрузок.

Отклонения формы и расположения поверхностей валов и корпусов приводят при установке подшипников качения к деформации колец и дорожек качения, нарушению нормальной работы узла. Для ограничения отклонений формы допуск цилиндричности посадочных мест валов (осей) и отверстий корпусов не должен превышать: под подшипники классов точности P0 и P6 - четверти допуска, а под подшипники классов P5 и P4 - одной восьмой допуска на диаметр посадочной поверхности.

Основное отклонение посадочных мест колец подшипника обозначаются латинской буквой L для диаметра отверстия и буквой l - для наружного диаметра. Поле допуска образуется основным отклонением и рядом точности, который характеризует допуск на размер.

Для среднего диаметра отверстия подшипника (внутреннего кольца) установлены поля допусков L0, L6, L5, L4, L2. Для среднего диаметра вала (наружного кольца подшипника) установлены поля допусков l0, l6, l5, l4, l2. Расположение поля допуска для среднего диаметра отверстия dm внутреннего кольца отличается от расположения поля допуска для основного отверстия в системе допусков и посадок.

Рис. 1. Схема расположения полей допусков на наружный диаметр и диаметр отверстия подшипников качения.