
Типы жилых домов, их объемная характеристика (башенные или протяженные, криволинейной или ступенчатой конфигурации и пр.), параметры (высота, габариты в плане), профильность (однородно жилой дом или совмещенный с общественными помещениями в первых либо в верхних этажах) в значительной степени определяются социальными, экономическими, техническими, климатическими и градостроительными условиями.
В формировании планировочных решений многоэтажных жилых домов главную роль играют жилые квартиры. Отдельно стоящие дома точечного типа формируются по преимуществу из 5-8 угловых квартир на этаже, сгруппированных вокруг центрально-размещенного лестнично-лифтового узла. Преимущества угловых квартир характеризуются угловым проветриванием, хорошей обзорностью, планировочной структурой и т. д.
Протяженные жилые дома, ориентированные в широтном направлении и сформированные из секций с наборами комнат в квартире 2,2,3,3 или 1,1,1,3,3, предназначаются для размещения в застройке городов с ориентацией на север: лестнично-лифтового узла и двух 3-комнатных квартир. В таких квартирах две комнаты ориентируются на север и одна - на юг. Остальные двух- либо однокомнатные квартиры должны быть ориентированы на юг.
Протяженные жилые дома меридиональной ориентации состоят из рядовых квартир, сгруппированных по обе стороны коридора, в середине которого либо в торцах размещаются лестницы. В этом случае количество квартир в секции определяется протяженностью коридора и способом его освещения.
Усложнение конфигурации зданий в плане путем устройства сдвижки или выступов Т-образной, трех-четырехлучевой форм секций позволяет увеличить количество квартир, общую жилую площадь без увеличения протяженностисекций, что и обусловливает применение этого приема вобъемно-планировочных решениях многоэтажных жилых домов. Усложнение конфигураций зданий приводит к увеличению периметра наружных стен, к увеличению теплопотерь, усложнению организации строительства (размещение монтажных механизмов, увеличение их количества.
Планировка квартир отличается в первую очередь количеством комнат и размерами общей площади, состоящей из жилой и подсобной. Тип квартиры определяется численным составом семьи и расчетной нормой общей площади на одного члена семьи. В городской застройке наибольшее распространение получили 1-, 2-, 3-й 4-комнатные квартиры.
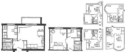
Однокомнатные квартиры предназначены для семей
из одного или двух человек. Их размещение предусматривается в секционных и
коридорных домах гостиничного типа.
Рисунок 4 - Примеры планировочных решений
однокомнатных квартир
Однокомнатная квартира включает комнату, кухню,
прихожую, санитарно-технический узел. Комната служит местом для различных
занятий, отдыха, сна. Кухню и совмещенный санузел располагают со входом из
передней. Двухкомнатные квартиры предназначены для заселения семей из двух-трех
человек. Они могут иметь планировку с изолированными или смежными комнатами.
Санитарный узел, как правило, раздельный. Большую комнату используют как
гостиную, меньшую - как спальню.
Рисунок 5 - Примеры планировочных решений
двухкомнатных квартир
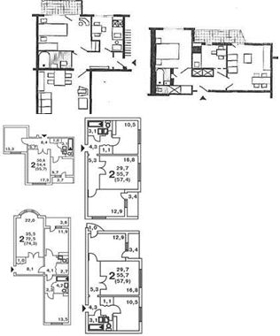
Трехкомнатные квартиры предназначены для
заселения семей из трех-четырех человек. Комнаты могут быть изолированные или
одна из них смежная. Санитарный узел - раздельный. Одну из комнат используют
как гостиную, другую (изолированную) как спальню, третью как детскую (рис. 6).
Для больших семей из четырех-шести человек предусматривают четырехкомнатные и
пятикомнатные квартиры (рис. 7). Возможно расположение комнат в подобных
квартирах в двух уровнях на двух верхних этажах секционных домов. Общая комната
располагается смежно с передней и в удобной связи с кухней. Такую связь
осуществляют через раздвижную перегородку или специальное передаточное окно в
шкафу-буфете, являющемся перегородкой между комнатой и кухней. Многокомнатные
квартиры ориентируются на две противоположные стороны здания (квартиры со
сквозным проветриванием).
Рисунок 6 - Примеры планировочных решений
трехкомнатных квартир
Рисунок 7 - Примеры планировочных решений
четырехкомнатных и пятикомнатных квартир
В последнее время стали проектировать квартиры с гибкой планировкой, которая позволяет удовлетворить требования различных семей.
При гибкой планировке помещения квартиры разделяются сборно-разборными перегородками. Стационарное положение в таких квартирах занимают кухни и санитарные узлы.
При проектировании квартир в двух уровнях их
площадь увеличивается на 6 м
для размещения
внутриквартирных лестниц.
.3 Конструктивные решения объектов аналогов
На выбор конструктивного решения здания влияют его объемно-пространственные характеристики и планировочное решение. До недавнего времени самой распространенной схемой являлась система с несущими поперечными стенами (реже продольными). В этом случае дом выполняется из кирпича или других отвечающих норме прочности естественных и искусственных материалов (силикатных, шлакобетонных блоков, известняка). При этом надо стремиться к унификации шага несущих стен, что дает возможность использовать ограниченный набор типоразмеров перекрытий и других деталей. Наиболее распространенным шагом в осях являются 3,0, 3,60, 4.20, 6,0 м. В отдельных случаях рекомендовано использовать шаг 7,2 м.
Сейчас в широкое употребление введена комбинированная каркасно-мополитная схема или полностью монолитная, так называемой "монолитной этажерки", которая позволяет за короткие сроки справиться со строительством домов самой сложной в плане конфигурации и неординарного пространственного решения. Шаг колонн выбирается 7,2 или 6,0 метров.
Дом может быть полностью выполнен из монолитного бетона, особенно в случаях сложной пластичной формы. Сборно-монолитная система применяется при несущих или каркасных степах и монолитных перекрытиях сложной формы.
Не теряет своей актуальности требование "гибкой" планировки как самого жилого дома, так и квартир. Гибкость в решении дома обозначает достаточный набор поворотных, торцевых секций для обеспечения градостроительной мобильности. Гибкость в решении квартиры предполагает возможность ее быстрого приспособления к меняющимся во времени требованиям семьи. Для этого применяются гибко трансформирующиеся перегородки при широком шаге несущих конструкций в 7,2 м.
Высота этажей от пола до потолка принимается
3,30 м. В элитных домах она может быть повышена до 3,5-4 м. В отдельных случаях
возможна интересная компоновка двухсветного пространства обшей комнаты с
остальными помещениями квартиры. Разнообразию пространственного решения
способствует применение лоджий, балконом, террас, эркеров, которые повышают
эстетической облик домов, выполняя и утилитарные функции.
2. Основные направления проектного решения
.1 Характеристика градостроительных особенностей
территории проектирования
Город Белгород, заложенный как крепость для защиты южных рубежей России, в настоящее время также является пограничным городом (центром контактной зоны России и Украины).
Белгород занимает, в основном, территорию двух склонов (бывшей Меловой горы и Харьковской горы), с севера и юга, спускающихся к реке Везёлке при её впадении в реку Северский Донец. Склоны третьей горы (условно называемой "Западной") в настоящее время свободны от застройки (примерно на 2/3).
Внешние связи Белгорода осуществляются железнодорожным, автомобильным и воздушным транспортом. Территорию Белгорода пересекают железнодорожные линии: с северо-востока на юго-запад - Москва- Харьков, с северо-запада на юго-восток - Брянск-Купянск.
Сложившаяся сеть основных линий железных дорог и долина р. Северский Донец делят территорию города на отдельные планировочные районы, условно названные - Центральный, Южный, Западный и Восточный, а районы, насыщенные промышленными предприятиями и коммунально-складскими организациями, в западной и восточной частях города условно названы Западной и Восточной промышленными зонами.
Центральный планировочный район
В самой старой части города (севернее р. Везёлки) сохранилась историческая сетка улиц с небольшими прямоугольными кварталами(~150х250 м), застроенными 2-3- и 4-5-этажными зданиями, и жилой и общественной застройки с встроенными и отдельно стоящими учреждениями обслуживания.
В последние годы здесь построены жилые здания повышенной этажности (9-18 этажей), а также здания банков, контрастирующих с 1-2-этажными историческими зданиями и памятниками истории и архитектуры.
Севернее исторической части города в 50-60е годы построены микрорайоны многоэтажной застройки (4-5-этажной) со встроенными и отдельно стоящими предприятиями обслуживания.
В настоящее время многоэтажное строительство в районе ведётся в кварталах северо-западнее новой площадки университета и строится квартал по ул. Победы и ул. Б Хмельницкого. Сделаны отводы под многоэтажную застройку кварталов по ул. Парковой, кварталов, ограниченных улицами Садовая, Мичурина, Н. Чумичова и Павлова, а также улицами Победы, пр. Славы, Гостянская и Пушкина.
В северной части района (северо-западнее психиатрической больницы) ведётся коттеджное строительство, но с нарушением охранной зоны газопровода высокого давления, проходящего в этом районе.
В западной части района (севернее ул. Сумской) строятся коттеджи по улицам Черникова, Автодорожная и Декабристов (севернее этих площадок находятся поля фильтрации завода "Цитробел" с санитарно-защитной зоной 300 м).
В непосредственной близости от жилой застройки в северной части города располагается аэропорт (с шумовой зоной 2 км) с аэровокзалом и южнее - автовокзал на ул. Б. Хмельницкого.
Железнодорожный вокзал размещается в центральной части города (на завершении пр. Гражданский).
В шумовой зоне аэропорта находится значительная часть усадебной застройки, психиатрическая больница, небольшая часть капитальной застройки и часть спецтерритории т. н. "автодрома".
Комбинат строительных материалов расположен в восточной части района с санитарно-защитной зоной 300 м и его карьеры нарушают экологию этой части города. Территория усадебной застройки, расположенная в санитарно-защитной зоне комбината, является зоной запрещения нового строительства.
Отрицательное влияние на экологию района оказывает также площадка цементного завода (с санитарно-защитной зоной 1000 м) и его карьеры. Значительные территории жилой застройки (в основном усадебной) попадают в санитарно-защитную зону и также являются территориями запрещения нового строительства.
В центральной части района непосредственно рядом с жилой застройкой находится консервный комбинат "Конпрок". В пойме реки Везёлки размещаются склады комбината и кварталы усадебной застройки.
На Белгородском проспекте (севернее рынка) размещается СИЗО, новая площадка которого строится в Восточной промзоне.
Южнее аэропорта находится городское кладбище, которое не имеет возможности для расширения.
Зелёные насаждения общего пользования в районе представлены бульварами, скверами, садами и парками (в том числе Центральный парк в долине р. Везёлки).
Южный планировочный район
В 70-80е годы основное жилищное строительство в городе осуществлялось в южной части - на Харьковской горе. Здесь строились микрорайоны многоэтажных зданий (5-9 этажей и более) с учреждениями обслуживания, а также был построен общественный центр этого района. Планировочное решение более свободное, чем в исторической части города, очертания микрорайонов примерно отвечают характеру рельефа. Однако, при сравнении с небольшими кварталами старой части города эти микрорайоны диссонируют, подавляют своими размерами.
В настоящее время в южном планировочном районе ведётся основное (по городу) многоэтажное жилищное строительство:
строятся микрорайоны "Луч" и №11;
сделаны отводы под строительство микрорайона "Магистральный", квартала по ул. Лермонтова ("Тальвег"), квартала "Луч", 2-ой очереди микрорайона "Салют";
ведётся коттеджное строительство в районах "Репное" и "Новый".
Расположенные в районе промышленные площадки (завод "Луч" и государственное учреждение поддержки предпринимателей) не нарушают экологию района.
В восточной части района находится лесопарк, кроме него там имеются памятники природы - "Архиерейская роща", парк и бульвары.
Западный планировочный район
Склоны "Западной" горы заняты в настоящее время сельскохозяйственными землями и коллективными садоводствами, а также отводом ботанического сада, спускающегося в долину р. Везёлки при впадении в неё р. Гостянки. Кроме того, в юго-западной части имеется усадебная застройка и значительная территория отдана под строительство коттеджей (район "Юго-Запад").
Трасса газопровода высокого давления пересекает территорию района с юго-запада на северо-восток.
В северной части района (у городской черты) размещаются мусороперерабатывающий завод и полигон твердых бытовых отходов.
Восточный планировочный район
Планировка восточной части территории г. Белгорода, так называемого "Старого города" (на левом берегу Северского Донца), выполнена небольшими прямоугольными кварталами капитальной малоэтажной и усадебной застройки.
Отводы под многоэтажное строительство сделаны на левом берегу Северского Донца по ул. Волчанской (от ул. Корочанской до Михайловского шоссе). Коттеджи строятся в районе "Восточный" и по улицам Дальняя, Старогородская.
Сделан отвод под коттеджную застройку в районе Дорогобужино.
Значительная часть района занята лесопарком и учреждениями отдыха (в южной части района). На ул. Волчанской (в лесопарковой зоне) размещается ГУП "Учреждение ЮС 321/5".
Во всех планировочных районах города расположены садоводческие кооперативы, нередко также являющиеся территориями запрещения нового строительства ввиду размещения их в санитарно-защитных зонах промышленных предприятий.
генеральный благоустройство градостроительный инженерный
2.2 Объёмно-планировочное решение
Проектирование жилья в структуре
интегрированного комплекса, размещаемого в центральных районах больших городов,
часто бывает связано с трудностями, вызываемыми расположением жилища в
экстремальной для него ситуации. Чаще всего это связано с размещением жилых зданий
в неблагоприятные экологические условия - шум, загазованность воздуха и
вибрация от транспортных магистралей, шум от транзитных пешеходных потоков
посетителей, встроенных в комплекс учреждений обслуживания, стесненность
территории, уменьшение площади озеленения и другие сложные условия требуют
особых решений. Мировая архитектурная практика дает сегодня варианты решений, в
которых преодолеваются негативные влияния окружающей среды на жилую часть МФЖК.
Так, например, жилые дома, размещаемые вблизи магистралей, делаются
двухслойными, типа "сэндвич". В сторону магистрали обращены офисные
помещения, а квартиры ориентированы во двор. Шумозащитный эффект возникает при
расположении жилья выше четвертого этажа. В этих случаях в нижних четырех этажах
располагают офисы или общественные учреждения, совмещение которых с жилищем
допускается строительными нормами.