Материал: Многоэтажный жилой дом с монолитным каркасом

Внимание! Если размещение файла нарушает Ваши авторские права, то обязательно сообщите нам

Многоэтажный жилой дом с монолитным каркасом

Введение

Темой выпускной квалификационной работы является многоэтажный жилой дом с монолитным железобетонным каркасом. Многоэтажные жилые дома являются основным типом жилища в городах России. Такие сооружения позволяют максимально полно и рационально использовать территорию застройки, сокращают протяженность инженерных сетей, улиц, сооружений городского транспорта. А монолитное строительство на сегодняшний день - одна из наиболее перспективных технологий возведения жилых зданий.

Преимущества монолитного строительства:

1) максимально быстрые темпы строительства;

2)      равномерная и небольшая усадка монолитного здания дает возможность практически сразу после его возведения приступить к внутренней и внешней отделке;

)        прочность каркасно-монолитной конструкции обеспечивается отсутствием швов;

)        практически на любом грунте возможно строительство монолитных сооружений;

)        данная практика позволяет возведение конструкций любой этажности и использование различных архитектурных приемов.

Несущие конструкции проектируемого здания выполнены с использованием монолитного железобетона.

Жесткое сопряжение монолитных перекрытий и стен обеспечивает жесткость и устойчивость здания.

При возведении ненесущих наружных стен используются мелкоштучные элементы с добавлением прослойки утеплителя.

1. Архитектурно-строительный раздел

.1 Характеристика участка строительства

строительство здание железобетонный каркас

Район строительства - город Вологда.

Климатический район - II [1].

Снеговой район - IV [1].

Средняя скорость ветра зимой - 5 м/с [1].

Ветровой район - I [1].

Расчетная зимняя температура наружного воздуха - (-32 0С) [2].

Средняя температура периода со среднесуточной температурой воздуха ниже или равной 8 0C - (-4,1 0C) [2].

Продолжительность периода со среднесуточной температурой воздуха ниже или равной 8 0C - 231 сут [2].

Нормативная ветровая нагрузка - 0,23 кПа [1].

Нормативная снеговая нагрузка - 2,4 кПа [1].

.2 Обоснование объемно-планировочного решения здания

Данный проект здания по своему назначению относится к типу жилых (гражданских) зданий.

Размеры здания в плане - 57,6  16,8 м, высота этажа - 2,9 м.

Здание запроектировано переменной этажности. В осях 1-9 здание имеет 8 этажей, в осях 9-17 - 10 этажей.

Схема планировки дома выполнена на конструктивных шагах внутренних несущих монолитных железобетонных стен - 3000, 3600, 4200 мм.

Планировка этажа - посекционная, с расположением по 4 квартиры на одной лестничной клетке.

Все этажи между собой связаны вертикальными коммуникациями - лифтами лестницами.

Планировка повторяется поэтажно.

По огнестойкости проектируемому зданию присвоена - II степень, уровень ответственности - II.

.3 Обоснование конструктивного решения здания

Проектируемое здание - с комбинированной конструктивной системой, которая включает в себя поперечные и продольные монолитные железобетонные стены с применением бетона марки В20, толщиной t = 0,16 м.

Характеристика перекрытий - монолитные, железобетонные, безбалочные, бетон марки В20. Толщина монолитной плиты перекрытия t = 0,16 м.

Каркас здания опирается на монолитную фундаментную плиту толщиной 0,6 м.

Наружные стены - многослойные. Состоят из слоя известково-песчаной штукатурки, газозолобетонных блоков толщиной 0,2 м, теплоизоляционного слоя из минераловатной плиты «Rockwool» толщиной 0,15 м и наружного облицовочного слоя толщиной 0,12 м из кирпича. Опираются наружные стены на междуэтажные перекрытия.

Лестницы - сборные железобетонные по серии 1.050.1-2 и монолитные железобетонные.

Кровля здания - малоуклонная (i = 0,02). В состав кровли входят:

1)     ковер гидроизоляции - 2 слоя «Бикрост»;

2)      стяжка - цементно-песчаная, армированная сеткой - 40 мм;

)        слой керамзитовый гравия γ = 600 кг/м по уклону - 5…150 мм;

)        минераловатная плита в качестве утеплителя, ППЖ - 150 мм;

)        пароизоляция - 1 слой полиэтиленовой пленки δ = 0,35 мм.

При наружной отделке здания проводится затирка, штукатурка, латексная окраска.

При внутренней отделке потолка технического и жилых этажей - затирка и латексная окраска.

При внутренней отделке стен на техническом этаже - затирка, штукатурка, латексная окраска. При отделке общих комнат, спален и прихожих на жилых этажах - затирка, штукатурка и улучшенная оклейка обоями. При отделке кухни - затирка, штукатурка, оклейка моющимися обоями и укладка керамической плитки. В санитарных узлах укладывается керамическая плитка.

Полы в жилых комнатах, прихожих, коридорах и кухнях выполняются в три слоя:

1) слой линолеума на теплозвукоизоляционной основе - 3 мм;

2)      слой армированной цементно-песчаной стяжки - 40 мм;

)        слой пенопласта - 25 мм.

Полы в ванных комнатах и санитарных узлах также выполняются в три слоя:

)   слой керамической плитки - 10 мм;

2)      слой армированной цементно-песчаной стяжки - 30 мм;

)        слой гидроизоляции - 2 слоя рубероида - 8 мм.

Оконные переплеты и балконные двери - ПВХ, остекление тройное.

Остекление лоджий - металлический профиль с частично тонированным остеклением.

.4 Технико-экономические показатели здания

Таблица 1.1 - Технико-экономические показатели здания

Наименование

Единица измерения

Показатель

Строительный объем здания

м3

28230

Площадь застройки

м2

880

Жилая площадь квартир

м2

3648,5

Площадь квартир

м2

4745,8

Количество квартир Однокомнатные Двухкомнатные Трехкомнатные  Четырехкомнатные

шт шт шт шт шт

72 18 18 18 18


.5 Теплотехнический расчет стенового ограждения

Количество конструктивных слоев - 4 (рисунок 1.1):

1)     Штукатурка известково-песчаная:

δ1 = 0,015 м - толщина отдельного слоя многослойной конструкции;

λ1 = 0,7 Вт/(м2  0С) - расчетный коэффициент теплопроводности материала [4].

2)     Газозолобетонные блоки:

δ2 = 0,2 м;

λ2 = 0,29 Вт/(м2  0С) [4].

3)     Минераловатная плита “Rockwool”:

δ3 = 0,15 м;

λ3 = 0,044 Вт/(м2  0С) [4].

4)     Кладка из керамического пустотного кирпича:

δ4 = 0,12 м;

λ4 = 0,58 Вт/(м2  0С) [4].

Приведенное сопротивление теплопередаче ограждающих конструкций R0 следует принимать в соответствии с заданием, но не менее требуемых значений Rтр0, определяемых исходя из санитарно-гигиенических и комфортных условий и условий энергосбережения [3].тр0 должно быть не менее значений:

1)   Rтр0, исходя из условий энергосбережения, определяют с учетом градусо-суток отопительного периода [3]:

ГСОП = (tв - tот.пер.)  zот.пер., 0С  сут, (1.1)

гдеtв - расчетная температура внутреннего воздуха, 0С [3];

tот.пер. - средняя температура периода со средней суточной температурой воздуха ниже или равной 8 0С, 0С [3];

zот.пер. - продолжительность периода со средней суточной температурой воздуха ниже или равной 8 0С, сут [3].

ГСОП = (20 0 + 4,1 0)  231 сут = 5567 0С  сут

Тогда Rтр0 = 2,87 м2  0С/Вт

)     Rтр0 исходя из санитарно-гигиенических (комфортных) условий [3]:

тр0 = м2  0С/Вт, (1.2)

гдеn - коэффициент, принимаемый в зависимости от положения наружной поверхности ограждающих конструкций по отношению к наружному воздуху [3];

tв - расчетная температура внутреннего воздуха, 0С [3];

tн - расчетная зимняя температура наружного воздуха, равная средней температуре наиболее холодной пятидневки обеспеченностью 0,92, 0С [3];

Δtн - нормативный температурный перепад между температурой внутреннего воздуха и температурой внутренней поверхности ограждающей конструкции, 0С [3];

αв - коэффициент теплоотдачи внутренней поверхности ограждающих конструкций, Вт/(м2  0С) [3].тр0 = (1 (20+32))/(4  8,7) = 1,5 м2  0С/Вт

Из полученных значений выбираем наибольшее:тр0 = 2,87 м2  0С/Вт0 определяем в зависимости от конструкции стены [3]:

R0 = 1/αв + δ/λ + 1/αн, м2  0С/Вт, (1.3)

гдеαв - коэффициент теплоотдачи внутренней поверхности ограждающих конструкций, Вт/(м2  0С) [3];

δ - толщина слоя, м [3];

λ - расчетный коэффициент теплопроводности материала, Вт/(м2  0С) [3];

αн - коэффициент теплоотдачи (для зимних условий) наружной поверхности ограждающих конструкций, Вт/(м2  0С) [3].0 = 1/8,7 + 0,015/0,7 + 0,2/0,29 + 0,15/0,044 + 0,12/0,58 + 1/23 = 4,5 м2  0С/Вт

Условие выполняется.

2. Расчетно-конструктивный раздел

.1 Расчет монолитного железобетонного каркаса здания

Проектируемое здание - жилой дом переменной этажности, выполненный в монолитном железобетоне.

Здание проектируется для возведения в I ветровом районе, типе местности В и в IV снеговом районе.

Толщина несущих стен составляет 160 мм. Толщина перекрытия составляет 160 мм. Наружные стены выполнены из мелкоштучных элементов и поэтажно оперты на кромки плит перекрытий.

Каркас опирается на монолитную фундаментную плиту толщиной 600 мм.

Расчет требуемого количества арматуры в плите перекрытия типового этажа и фундаментной плите выполнен с использованием программного комплекса STARK ES. В качестве расчетной модели каркаса здания используется пространственная оболочечно-стержневая конечно-элементная модель.

Информация о статических нагрузках на каркас сведена в таблицу 2.1.

Расчет элемента производится по двум предельным состояниям:

)        по несущей способности (первая группа предельных состояний);

)        по пригодности к нормальной эксплуатации (вторая группа предельных состояний).

Результат расчета армирования плиты перекрытия приведен в приложении 3.

Результат расчета армирования фундаментной плиты приведен в приложении 4.

Таблица 2.1 - Сбор статических нагрузок на каркас здания

Наименование нагрузки

Единица измерения

Расчетное значение

Коэффициент надежности γf (Кн)

Длительная часть (Кд)

 

Постоянные и длительные нагрузки

Собственный вес несущих железобетонных конструкций

кН/м3

27,5

1,1

1,0

 

Вес полов и перегородок

кН/м2

3,0

1,2

1,0

 

Вес ограждений балконов

кН/м

4,0

1,2

1,0

 

Вес парапетов

кН/м

6,0; 12,0

1,2

1,0

 

Вес конструкции кровли

кН/м2

1,95

1,2

1,0

 

Временные распределенные нагрузки

На фундаментную плиту

кН/м2

2,4

1,2

0,35

 

На балконах: сплошная нагрузка полосовая нагрузка вдоль края балконов, приведенная к линейной нагрузке

кН/м2  кН/м

2,4  3,84

1,2  1,2

0,35  0,35

 

На перекрытия жилых этажей в квартирах

кН/м2

1,95

1,3

0,2

 

На перекрытия жилых этажей на общих коридорах и лестницах

кН/м2

3,6

1,2

0,33

 

На кровле

кН/м2

0,65

1,3

0

 

Снеговая нагрузка на покрытие (с учетом образования снеговых мешков)

кН/м2

3,43

1,43

0,5

 

Ветровая нагрузка: на наветренную сторону на заветренную сторону

кН/м2

 0,32 0,23

1,4

0

 


.2 Научно-исследовательская часть

Для максимально удачного выбора стенового ограждения рассмотрим три варианта с различным составом материалов и устройством системы теплоизоляции.

Вариант 1: кирпичная кладка (380 мм) с наружным минераловатным утеплителем «Rockwool» Фасад Баттс (150 мм) и с защитой утеплителя - штукатуркой «Rockwool».

Минеральная продукция «Rockwool» является высокоэффективным изоляционным материалом, имеющим высокую сопротивляемость механическим воздействиям благодаря особой структуре волокон. Основой теплоизоляции является импрегнированное базальтовое волокно. Базальтовое волокно для теплоизоляции экологически безопасно, оно не пылит, не имеет канцерогенных свойств, не вызывает аллергических реакций, удобно в работе [5].

В процессе производства минераловатных материалов применяются только экологически чистые вещества, которые не содержат свободных фенолформальдегидных и других вредных соединений.

Примененная в данном ограждении минеральная вата Фасад Баттс представляет собой жесткие и плотные теплоизоляционные плиты, устойчивые к различного вида деформациям, эти плиты используются в качестве теплоизоляции на внешней стороне фасадов. Они обеспечивают не только теплоизоляцию, но также являются и основанием для нанесения штукатурного слоя.

Технические характеристики минеральной ваты Фасад Баттс:

)        теплопроводность λ = 0,045 Вт/(мС) [5];

)        водопоглощение по объему составляет не более 1% [5];

)        является негорючим материалом в соответствии с ГОСТ 30244 - 94;

)        паропроницаемость m = 0,15 мг/ мчПа [5];

)        прочность на сжатие при 10% деформации не менее 0,045 МПа [5].

Теплоизоляционные плиты крепятся на кирпичную стену и закрепляются изолировочными дюбелями.

Кроме использования эффективного высококачественного утеплителя, к преимуществам данного варианта можно отнести сравнительную простоту возведения стенового ограждения, так как в процессе работы применяется только один материал - кирпич, и высокую технологическую подготовленность монтажа утеплителя снаружи стены.

Недостатком этого способа является только наличие мокрого процесса, что обуславливает сезонность выполнения работ.

Вариант 2: кладка из газозолобетонных блоков (200 мм) с минераловатным утеплителем «Rockwool» Кавити Батс и облицовкой кирпичом под расшивку с наружной стороны.

Повышенные требования к уровню теплозащиты наружных ограждений жилых домов на втором этапе строительства привели к применению слоистых наружных стен с использованием более эффективных, по сравнению с кирпичом, материалов. Одним из них является газозолобетон.

Газозолобетон представляет собой искусственный камень с равномерно распределенными по объему сферическими порами диаметром до 1 мм. Такой вид структуры определяет ряд достаточно высоких физико-механических свойств газозолобетона и делает его весьма эффективным строительным материалом, который, если сравнивать его с другими видами легких бетонов, является наиболее перспективным вариантом.

Легкость газозолобетона (600 кг/м³) позволяет значительно снизить транспортные расходы и расходы по монтажным работам, а также трудовые затраты. Стандартный мелкий блок из газозолобетона, размером 588*300*188 мм, марки по плотности D 600, имеет массу 25 кг и способен заменить в ограждающей кирпичной стене толщиной 640 мм 28 кирпичей, вес которых около 120 кг. Из этого следует и пониженная трудоемкость кладки, так как вместо 28 кирпичей достаточно будет уложить всего один блок. В этом случае скорость процесса кладки увеличивается в четыре раза, а расход раствора уменьшается в 5 - 7 раз [6].

Прекрасные теплофизические качества позволяют газозолобетонным домам хорошо удерживать уровень тепла и делают поверхности стен приятно теплыми на ощупь.

Дома с применением газозолобетона пожаробезопасны. Экологическая чистота используемых сырьевых материалов позволяет утверждать полную безопасность изделий для человека, это подтверждает наличие гигиенического сертификата, выданного органом Госсанэпиднадзора.

Еще одно, имеющее большое значение в строительстве свойство газозолобетона - этот вид материала хорош в обработке простейшими инструментами: пилится, сверлится, гвоздится, строгается, штрабится.

Технические характеристики газозолобетона:

)        класс по прочности на сжатие В2,5 [6];

)        марка по морозостойкости более F35 [6];

)        усадка при высыхании (максимальная) 0,7 мм/м [6];

)        коэффициент теплопроводности 0,29 Вт/(мС) [6];

)        отпускная влажность 25-30% [6];

)        паропроницаемость 0,16 мг/ мчПа [6];

)        огнестойкость 1,5-3 часа [6].

Устойчивость данной многослойной кладки обеспечивается установленными гибкими связями с шагом 600*600 мм.

Вариант 3: кладка из кирпича (380 мм) с наружным утеплителем «Rockwool» Венти Баттс (120 мм) и устройством вентилируемого фасада облицовочными плитами ФАССТ.

За последнее время получило очень широкое распространение и развитие устройство вентилируемого зазора при отделке фасадов.

ФАССТ-А - это прочная строительная плита высокого качества, приятная по своей цветовой гамме (16 базовых оттенков), ее каменная шероховатая поверхность вместе с эпоксидной смолой образует водонепроницаемый слой [7].

Основой для плит ФАССТ является асбоцементная плита, выпускаемая в России на новейшем европейском оборудовании и отвечающая мировым стандартам качества. Использование в строительстве данного типа плит безопасно для человека. Плита имеет гигиенический сертификат [7].

Технические характеристики плит ФАССТ:

)        плотность 1800кг/м³ [7];

)        морозостойкость 100 циклов [7];

)        водопоглощение 7% за 48 часов [7];

)        теплопроводность 0,3 Вт/(мС) [7];

)        деформация при влаге 30-50% 0,3 мм/м [7].

Немаловажными достоинствами этого варианта являются:

)        долговечность - камень образует стойкую лицевую поверхность;

)        утепляемость - эффективное утепление здания снаружи;

)        технология вентилируемых фасадов - наличие вентиляционного зазора 22 мм между основной стеной и плитой является препятствием для скопления конденсата и увеличивает долговечность фасада;

)        круглогодичность процесса монтажа - сухая технология дает возможность производить монтажные работы круглый год;

)        быстрота монтажных работ - скорость монтажа до 40 м² в смену в зависимости от геометрии фасада;

)        выравнивание и эстетичность фасадов;

)        высокая ремонтопригодность.

Основными недостатками третьего варианта стенового ограждения являются трудоемкость и высокая стоимость монтажных работ вентилируемого фасада, необходимость разработки проектных решений узлов и организации комплектации необходимыми деталями.

Технические показатели трех вариантов стенового ограждения сведены в таблицу 2.2.

Таблица 2.2 - Сводная таблица технических показателей стеновых ограждений

Показатели

Вариант 1

Вариант 2

Вариант3

Трудоемкость монтажа, чел.-дн

1,82

1,78

2,50

Продолжительность возведения, дн

46

44,5

63

Вес 1 м ограждения, кг

2064

1248

2252

Применение местных материалов, %

50

50

50

Долговечность, годы

15

50

50

Ремонтопригодность, %

40

40

90

Наличие мокрых процессов

+

+

-


Рассмотрев три варианта стенового ограждения, можно сделать следующий вывод: при проведении сравнительной характеристики основных технических показателей вариант с применением газозолобетонных блоков является наиболее привлекательным.

Этот вариант имеет самую низкую из трех трудоемкость монтажных работ, высокую скорость возведения, низкий вес ограждения, высокую долговечность.

Из вышеперечисленного следует, что строительство с применением газозолобетонных блоков является оптимальным решением поставленной задачи.

3. Технологический раздел

Технологическая карта разработана на возведение монолитных конструкций типового этажа (стены и перекрытие) многоэтажного жилого дома в городе Вологда и предназначена для организации труда рабочих.

.1 Условия и подготовка выполнения процесса

Перед началом работ по устройству монолитных конструкций на типовом этаже должны быть завершены все работы по возведению перекрытий и стен нижерасположенного этажа и установлены сборные лестничные марши.

Технологическая последовательность выполнения работ по возведению типового этажа здания:

)        монтаж опалубки, арматуры и бетонирование стен;

)        возведение стен лестничных клеток и лифтовых шахт;

)        демонтаж опалубки стен;

)        установка опалубки плит перекрытия;

)        бетонирование плит перекрытия.

Монтаж конструкций надземной части ведется башенным краном КБ-403 с длиной стрелы 30 м, максимальным подъемом крюка 43,6 м, грузоподъемностью до 10 тонн и мощностью 320 кВт.

Доставка бетонной смеси производится автобетоносмесителями СБ159А.

Бетонная смесь подается краном КБ-403 с помощью поворотных бадей БПВ-1.0.

Преимущества использования кранового оборудования:

)        возможность транспортировки бетонной смеси в любую точку в пределах вылета стрелы и высоты подъема крюка;

)        универсальность кранов как грузоподъемных механизмов - они подают к месту производства бетонных работ арматуру, опалубку, строительный инвентарь, так и механизмов, обслуживающих в пределах своей зоны действия другие виды строительно-монтажных работ.

Для возведения монолитных конструкций стен используется инвентарная опалубка фирмы «PERI TRIO», для перекрытия - щиты, балки, стойки «PERI Мультифлекс», укрупненные в столы. Перестановка опалубки перекрытий ведется при помощи траверсы «утиный нос» фирмы «PERI» [8].

.2 Технология возведения стен

Устройство опалубки стен ведется в определенной технологической последовательности. Спецификация на опалубку стен приведена в таблице 3.1.

Таблица 3.1 - Спецификация на опалубку стен

Наименование

Единица измерения

Количество

1. Балка СТ 24-300

шт.

5

2. Швеллер N12, 1 = 1740

шт.

4

3. Балочные крепления

шт.

10

4. Гайка М8

шт.

40

5. Гайка крыльчатая

шт.

8

6. Планка под гайку

шт.

8

7. Фанера ламинированная

м2

5,0

8. Фанера обыкновенная

м2

0,5

9. Стойки парапета

шт.

4

10. Планка под раскосы

шт.

8

11. Тяжи, 1 = 1,2  1

шт.

4

12. Крановые захваты

шт.

2

13. Раскос

шт.

2

14. Подкос

шт.

2


Сначала по хорошо выровненной бетонной поверхности плиты перекрытия наносят краской оси стен. По этим осям кладут деревянные пробки 4х4 на каждые 150 мм, длина которых должна быть равной толщине стены. Пробки прибивают гвоздями длиной 120 мм к бетонной поверхности.

Предназначение этих пробок заключается в фиксации толщины стены. Для фиксации проектного положения стен верхних этажей при отбивке нижней стены оставляется маркировочная арматура, препятствующая сдвигу оси стены при бетонировании.

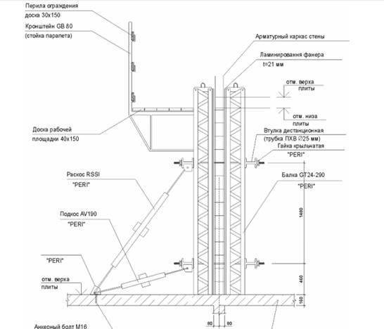
Затем предусмотренный по плану щит (рисунок 3.1) устанавливается таким образом, чтобы нижняя часть фанеры плотно опиралась на пробки.

Рисунок 3.1 - Схема опалубки стен

Вертикальное положение щитов и их укрепление обеспечивается подкосами и раскосами (рисунок 3.2).

Установку щита в вертикальное положение производят двое рабочих, первый из которых прикручивает или откручивает вертикальный стабилизатор, а второй обеспечивает вертикальное положение щита (гладкой внутренней обшивки). Опалубочный щит необходимо смазать бетоноотделяющей жидкостью.

Рисунок 3.2 - Схема установки и закрепления щитов опалубки стен

После у опалубочного щита монтируется сетка, которая отделяется от фанерной обшивки щита пластмассовыми фиксаторами. К сетке прикрепляют пластмассовые трубы для электропроводок.

В фиксированных местах по фанерной обшивке монтируют злектроустановочные консоли и коробки. По дверным проемам монтируют рамы.

Второй щит, предварительно смазанный опалубочной смазкой, устанавливают в проектное положение на расстоянии толщины стены от первого и присоединяют к нему тяжами с закручивающимися крыльчатыми гайками.

Стены под прямым углом, конструктивно связанные между собой, опалубливают прямыми стеновыми щитами, причем в местах нахождения предварительно согнутых хомутов к их обшивке прикрепляют пенопласт или другую прокладку в целях защиты хомутов от бетонной смеси. После выпрямления хомутов выполняется перпендикулярная стена.

С помощью крана выполняют армирование в виде готовых пространственных каркасов. Каркасы выверяют и временно закрепляют с помощью фиксаторов относительно выпусков арматурных стержней нижнего яруса стены. Снимают временные крепления после прихватки электросваркой и вязкой каркасов к выпускам арматуры ранее установленных элементов.

При бетонировании стен бетонную смесь разгружают непосредственно в опалубку в нескольких точках по длине участка. Для подачи смеси используют бадью. Бетонирование стен произв горизонтальными слоями толщиной 0,35-0,4 м [9].

При возведении стен бетонную смесь уплотняют глубинными вибраторами ИВ-66 (рисунок 3.3) с диметром наружного корпуса 76 мм, длиной рабочей части 450 мм, мощностью 0,8 кВт, массой 19 кг и частотой колебаний 11000 мин-1.

Рисунок 3.3 - Глубинный вибратор ИВ-66:

- электродвигатель; 2 - гибкий вал; 3 - вибронаконечник

При уплотнении бетонной смеси вибраторы не должны касаться частей опалубки, так как из-за передачи колебаний на опалубку происходит разрушение ранее уложенных слоев.

После того, как бетон наберет 70% прочности, производится распалубка стен. Порядок распалубки:

)        отвинчивают крыльчатые гайки, вынимают шпильки;

)        стропуют краном первый опалубочный щит и отделяют от бетонной стены, после чего щит очищают от бетона и оставляют на месте, предусмотренном для хранения опалубки;

)        производят внимательный осмотр распалубленной стены и устраняют все деформации.

Демонтированную щитами опалубку перемещают на место очистки, смазки и подготовки к последующему использованию.

.3 Технология устройства плиты перекрытия

Применяют два вида балок для устройства опалубки плиты перекрытия: первый ярус - продольные балки GT24, второй ярус - поперечные балки VT20К (рисунок 3.4).

Рисунок 3.4 - Схема опалубки перекрытия

Щиты, применяемые для опалубки - листы ламинированной фанеры толщиной 21 мм и размером 1,2 м  1,5 м.

До начала монтажных работ необходимо проверить комплектность завезенной опалубки. При приемке опалубки обязательно необходимо проверить:

)        соответствие геометрических размеров и формы опалубки рабочим чертежам;

)        совпадение с разбивочными осями конструкций осей опалубки;

)        точность выносок на отдельных опалубочных плоскостях;

)        вертикальность и горизонтальность опалубочных щитов и элементов опалубки;

)        правильность установки закладных деталей;

)        плотность стыковки щитов.

К месту установки столы опалубки «PERI Мультифлекс» поднимают башенным краном.

На готовую опалубку устанавливают арматурные стержни. Их связывают между собой вязальной проволокой. Устанавливают и закрепляют закладные детали. Для зачистки закладных деталей и арматуры от ржавчины применяют ручную шлифовальную машинку ИЭ-6103 (0,8 кВт).

После проверки состояния опалубки, правильности установки арматуры, а также установки прокладок, обеспечивающих толщину защитного слоя бетона, производят укладку бетонной смеси.

На строительную площадку бетонную смесь доставляют автобетоносмесителями и разгружают в бадьи с боковой выгрузкой емкостью 1,0 м3 в зоне действия башенного крана. Бетонирование перекрытия производят раздельно по захваткам. Во время бетонирования периодически (1-2 раза в час) дежурный рабочий производит внешний осмотр опалубки, в которую укладывается бетонная смесь. Все исправления, связанные с нарушением структуры уложенного бетона в опалубку, допускаются не позднее чем через 1-2 часа после его укладки [9]. Устанавливают и нивелируют маячки из приваренных арматурных стержней для строгого фиксирования горизонтальности укладываемого бетона и толщины плиты.

Для выравнивания и уплотнения бетонной смеси применяют виброрейку СО-131А (рисунок 3.5) с шириной захвата 1500 мм, габаритами 1750430245 мм, мощностью электродвигателя 0,26 кВт, производительностью 90 м2/ч и массой 45 кг.

При возобновлении бетонирования удаляют цементную пленку с поверхности ранее уложенного бетона и промывают водой.

Рисунок 3.5 - Виброрейка СО-131А:

- скобы; 2 - вибратор; 3 - рукоятки; 4 - тяги

Обеспечение качества укладки бетона:

)        контроль подвижности и однородности бетонной смеси;

)        контроль уплотнения (вибрирования) бетонной смеси;

)        контроль правильности ухода за бетоном.

После завершения бетонирования производят контрольную геодезическую съемку выполненной работы.

.4 Технический выбор монтажного крана

Определяем требуемые технические параметры монтажного крана:

)        высоту подъема крюка (Нкр);

)        грузоподъемность крана (Q);

)        вылет стрелы, при котором осуществляется монтаж конструкций (L).

Поднимаемый элемент - бадья для бетона

Определяем требуемую высоту подъема крюка:

Нкр = Н1 + Н2 + Н3 + Н4, м, (3.1)

где Н1 = 35,0 м - расстояние от уровня стоянки крана до опоры элемента на верхнем монтажном горизонте;

Н2 = 1,00 м - высота подъема элемента выше горизонта опирания;

Н3 = 3,61 м - высота поднимаемого элемента;

Н4 = 1,50 м - высота грузозахватного устройства.

Нкр = 35,0 + 1,00 + 3,61 + 1,50 = 39,11 м

Определяем требуемую грузоподъемность крана:

= Q1 + Q2, т, (3.2)

где Q1 = 3,5 т - масса элемента;2 = 0,04 т - масса грузозахватного устройства.= 3,5 + 0,04 = 3,54 т

Определяем требуемый минимальный вылет стрелы крана:

= В12+Rпл, м, (3.3)

где В1 = 19,3 м - расстояние от грани здания, обращенного к крану, до центра тяжести наиболее удаленного от крана элемента;

В2 = 2,4 м - расстояние между гранью здания и поворотной платформой (не менее 1 м);пл = 3,8 м - радиус поворотной платформы.= 19,3 + 2,4 + 3,8 = 25,5 м

Требуемые параметры крана сведены в таблицу 3.2.

Таблица 3.2 - Требуемые параметры крана

Наименование элемента

Вылет, м

Грузоподъемность, т

Высота подъема, м

Бадья с бетоном

25,5

3,54

39,11


Требуемым техническим характеристикам соответствует башенный кран КБ-403.

.5 Калькуляция трудовых затрат и машинного времени

Калькуляция трудовых затрат и машинного времени приведена в приложении 1 [10].

.6 Машины, механизмы, инвентарь и приспособления

Ведомость на используемые машины, механизмы, инвентарь и приспособления приведена в приложении 2.

.7 Допуски и отклонения

Допустимые отклонения и расположение конструктивных элементов:

1)      отклонение от проектных межосевых расстояний для несущих железобетонных элементов: +4 мм;

)        отклонение в расстояниях между внутренними лицевыми поверхностями стен: +5 мм.

Допуски размеров стен определяются:

)        по высоте: +5 мм на этаж;

)        по толщине: +5 мм на этаж;

)        по длине: -10 мм на 10м ширины;

)        смещение осей окон и дверей: +10 мм.

Допустимые отклонения от вертикальной плоскости стен:

)        на 1м высоты: +2мм;

)        на один этаж: +5мм;

)        для всего здания: +20мм.

Самые большие неровности отдельных участков лицевых поверхностей стен: до +3 мм и не более трех таких участков.

.8 Техника безопасности при бетонировании

Бетонирование конструкций зданий и сооружений необходимо производить с соблюдением требований СНиП 12-03-2001 «Безопасность труда в строительстве. Часть 1. Общие требования» [11] и СНиП 12-04-2002 «Безопасность труда в строительстве. Часть 2. Строительное производство» [12].

Перед началом укладки бетона в опалубку ежедневно необходимо проверять состояние тары, опалубки и средств подмащивания и в случае обнаружения неисправностей следует незамедлительно их устранять.

Поворотные бункера (бадьи) для бетонной смеси должны удовлетворять ГОСТ 21807-76. Перемещение загруженного или порожнего бункера разрешается только при закрытом затворе.

При укладке бетона расстояние между нижней кромкой бадьи или бункера и ранее уложенным бетоном или поверхностью, на которую укладывают бетон, должно быть не более 1 м.

Бетонщик должен осуществлять открывание бункера после остановки стрелы крана и находясь не под стрелой крана и бункером. Разгрузка тары на весу должна производиться равномерно в течение не менее 5 секунд. Мгновенная разгрузка тары на весу недопустима.

Перед началом укладки бетонной смеси виброхоботом необходимо проверять исправность и надежность закрепления всех звеньев виброхобота между собой и к страховочному канату.

При уплотнении бетонной смеси электровибраторами не допускается перемещать вибратор за токоведущие шланги, а при перерывах в работе и при переходе с одного места на другое электровибраторы необходимо выключать.

Переход бетонщиков разрешается только по закрепленным в проектное положение конструкциям и средствам подмащивания, имеющим ограждения или страховочный канат.

В каждой смене должен быть обеспечен постоянный технический надзор со стороны прорабов, мастеров, бригадиров и других лиц, ответственных за безопасное ведение работ. Необходимо следить за исправным состоянием лестниц, подмостей и ограждений, а так же за чистотой и достаточной освещенностью рабочих мест и проходов к ним, наличием и применением предохранительных поясов и защитных касок.

4. Организационный раздел

.1 Определение продолжительности строительства

Продолжительность строительства 10-этажного жилого здания общей площадью 4745,8 м2 по нормативу составляет 14 месяцев, в том числе подготовительный период -1 месяц [13].

.2       Определение состава работ

Календарный план строительных работ включает в себя работы подготовительного и основного периодов, содержащих четыре технологических комплекса работ: подготовительный период, подземная часть, надземная часть и отделочные работы.

В состав работ подготовительного периода входит:

)        внеплощадочное устройство подъездных дорог;

)        вертикальная планировка территории;

)        работы по ограждению площадки;

)        работы по созданию опорной геодезической сети;

)        работы по прокладке сетей временного электроснабжения, водоснабжения и канализации;

)        работы по монтажу временных инвентарных зданий;

)        работы по созданию складского хозяйства;

)        перекладка канализационных сетей, сетей теплотрассы.

В состав комплекса работ этапа «подземная часть» входит:

)        работы по разработке котлована и траншей;

)        работы по устройству плитного фундамента;

)        работы по возведению конструкций подземной части здания;

)        работы по устройству гидроизоляции;

)        работы по устройству вводов подземных коммуникаций;

)        обратная засыпка котлована и траншей.

В составе комплекса работ этапа «надземная часть» в строящемся здании планируется выполнение следующих работ:

)        работы по монтажу строительных конструкций с сопутствующими изоляционными работами;

)        кладка стен с облицовочными работами наружных поверхностей лицевым кирпичом;

)        устройство рулонной кровли;

)        плотнично-столярные работы: заполнение оконных и дверных проемов блоками, установка подоконных досок;

)        работы по санитарно-техническому обеспечению: монтаж систем отопления, стояков и трубопроводов водопровода, канализации;

)        электромонтажные работы: прокладка скрытой проводки, установка электрощитов, слаботочные работы;

)        монтаж лифтов;

)        работы по устройству систем дымоудаления и пожаротушения.

В составе комплекса «отделочные работы» по зданию производятся:

)        штукатурные работы: оштукатуривание кирпичных стен, заделка отверстий в местах, где проходят трубопроводы, затирка негладких поверхностей сборных элементов, обработка мест примыкания элементов;

)        облицовка поверхностей стен керамической плиткой, природным камнем;

)        работы по устройству монолитных отделочных покрытий: цементных стяжек под полы, чистых цементных полов;

)        устройство плиточных полов с применением керамических и бетонных плиток;

)        плотнические работы: устройство паркетных полов;

)        устройство полов с линолеумным покрытием по готовому основанию;

)        санитарно-технические работы: установка фаянсовых изделий, арматуры, промывка систем;

)        малярные и клеевые работы: окраска известковая и клеевая эмульсионными и масляными составами, покрытие лаком полов, оклейка обоями стен;

)        электромонтажные работы: установка электроарматуры и приборов, электрических плит.

Вне здания производятся работы по благоустройству и озеленению территории.

.3 Методы производства работ

.3.1 Земляные работы

До начала производства земляных работ в местах расположения действующих подземных коммуникаций разрабатываются и согласовываются с организациями, эксплуатирующими эти коммуникации, мероприятия по безопасным условиям труда, а расположение подземных коммуникаций на местности обозначается соответствующими знаками или надписями.

При проведении земляных работ в зоне действующих подземных коммуникаций должен осуществляться контроль прорабом или мастером, а в охранной зоне кабелей, находящиеся под напряжением, также и работниками электрохозяйства.

Производство земляных работ выполняется в соответствии со СНиП 3.02.01-87 «Земляные сооружения, основания и фундаменты» [14]. Земляные работы выполняются в зимнее время, поэтому предусматриваются следующие мероприятия по защите грунта от промерзания:

)        вспахивание грунта с последующим боронованием, удержание снегового покрова или засоление грунта, а также глубокое механическое рыхление и утепление грунта теплоизолирующим материалом;

)        путем недобора грунт оснований котлована траншей предохраняется от промерзания, а грунт, разработанный экскаватором в отвал, укрывается утеплителем (слой опилок толщиной 40-60 см).

Работы по зачистке оснований производятся непосредственно перед возведением фундаментов.

Планировка территории производится бульдозером Д-217А с мощностью 79 кВт, длиной отвала 3,03 м, высотой отвала 1,1 м и с неповоротным типом отвала.

Снимаемый слой растительного грунта вывозится автосамосвалами в отвал на расстояние 15 км.

Разработка грунта котлована производится по захваткам при помощи одноковшового экскаватора ЭО-5121, оборудованного обратной лопатой с емкостью ковша 1 м3, с погрузкой грунта в автосамосвалы и отвозкой в места по указанию заказчика.

Экскаватор ЭО-5121 обратная лопата: мощность 74 кВт, вместимость ковша 1 м3, наибольшая глубина копания 9,4 м, наибольший радиус выгрузки 12,2 м.

Доработка дна производится тем же экскаватором с использованием съёмного зачистного ковша.

Грунт, используемый для обратной засыпки, разрабатывается в отвал, остальной грунт грузят в автосамосвалы и перевозят на 15 км в отвал.

Обратную засыпку производят после завершения работ нулевого цикла и подписания акта на скрытые работы.

.3.2 Устройство плитного фундамента

После устройства котлована используют песок и щебень для сооружения подушки, которая в большей мере позволит распределить нагрузку проектируемого здания на монолит и на весь грунт. Песок и щебень разравнивается и утрамбовывается.

В устроенной опалубке производят монтаж арматурного каркаса, который осуществляется в 2 уровня. Затем заливают бетон и выдерживают до набора необходимой прочности. Бетонирование производится при помощи автобетононасоса СБ126Б с производительностью 65 м3/ч и дальностью подачи бетонной смеси по горизонтали 80 м.

Уплотнение бетонной смеси производят глубинными вибраторами ИВ-66.

.3.3 Изоляционные работы

Гидроизоляцию подземной части производят автогудронатором ДС-39А на базе автомобиля ЗИЛ-130 (ЗИЛ 130 В-1) с вместимостью цистерны 3500 (6000) л, длиной подачи 10 м, шириной распределения 3,8 (4) м, площадью обрабатываемой поверхности с одной стоянки 20×2 (ширина×высота) м и мощностью базового автомобиля 110 кВт.

.3.4 Каменные работы

После возведения несущих конструкций производят возведение наружных стен, которое осуществляется самостоятельным потоком - стен и плит перекрытий. Кладка выполняется с верхнего этажа и ведется поэтажно вниз.

После набора бетоном перекрытий проектной прочности производится каменная кладка наружных и внутренних стен. Сначала на поверхности перекрытия размечают контуры будущих стен. После проведения разметки начинают кладку стен.

Наружные стены возводят в следующей последовательности: возводят наружную сторону на высоту этажа (кирпичная кладка в 0,5 кирпича), потом 1 ряд блоков БГМ с внутренней стороны. После этого укладывают между ними плитный утеплитель, устраивают гидроизоляцию (1 слой полиэтиленовой пленки на клее 1М-60), поднимают на ту же высоту внутреннюю часть стены (блоки БГМ) и укладывают гибкие стеклопластиковые связи. Затем снова поднимают наружную сторону, и т. д. Кладку стен высотой больше 1,5 м выполняют с переносных площадок-подмостей (ширина настила 2 м).

.3.5 Кровельные работы

Кровельные работы производятся в летний период. Перед началом работ поверхность плиты должна быть очищена подметальной машиной КУ-405А (1,1 кВт).

Работы по устройству кровли начинают с укладки пароизоляции - одного слоя бикроста на мастике. По нему укладывается плитный утеплитель и засыпается слоем керамзитового гравия с устройством уклона в сторону водосборных воронок. После устройства утеплителя устраивается цементно-песчаная стяжка. Стяжки разбивают температурно-усадочными швами на квадраты размером не более 66 м. Для образования таких швов при устройстве стяжки необходимо заложить деревянные рейки толщиной 10 мм, которые затем требуется удалить [15].

Рулонный ковёр наклеивают послойно: сначала первый слой по всей площади, затем, после его проверки и приёмки, второй слой.

При устройстве рулонных кровель необходимо особенно тщательно оклеивать места примыкания рулонного ковра к отдельно стоящим вытяжным шахтам, стойкам ТВ антенн, а также места примыкания к стенам, выводам и водоприёмным воронкам. Для этого заранее подготавливают рулонный материал по соответствующим размерам. Оклейку выполняют дополнительными слоями выше основного ковра кровли [15].

При производстве кровельных работ используются машины СО-100А (60 кВт), СО-122 и СО-99А (1 кВт) для устройства битумной грунтовки. Битум доставляется на строительную площадку автобитумовозом БВ-41 на базе ЗИЛ-130 с вместимостью цистерны 4000л и мощностью базового автомобиля 110 кВт.

Для устройства наплавляемой кровли используют ручную горелку ОТС-005 в комплекте с СО-12А и СО-7А с производительностью 150 м2/ч, мощностью 4 кВт и массой 29 кг.

Цементно-песчаный раствор для стяжки доставляется на крышу машиной СО-126 (7,5 кВт). Уплотнение производится виброрейкой СО-131А (0,26 кВт). В труднодоступных местах для уплотнения используют пневмовиброгладилку ПГ-2 + СЩ-7А (4,5 кВт).

Контейнеры, машины, механизмы и материалы подаются на крышу краном КБ-403.

.3.6 Отделочные работы

Внутренние отделочные работы в жилых зданиях в условиях зимнего периода производятся при наличии постоянно действующих систем отопления и вентиляции. Для этого по проекту предусмотрено, что все предшествующие работы в строящемся здании и внутри площадки будут выполнены до наступления зимних холодов и к моменту начала отделочных работ будет пущено тепло [15].

При низких наружных температурах в отделываемых помещениях в течение двух суток до начала отделочных работ необходимо круглосуточно поддерживать температуру не ниже плюс десяти градусов при относительной влажности воздуха не выше 70%. После окончания отделочных работ эта температура должна поддерживаться в течение не менее 12 суток, а после окончания обойных работ - постоянно.

Малярные работы выполняют на всех этажах одновременно с разбивкой в два этажа. На первом этапе малярных работ проводится шпаклевка и окраска потолков, наружных откосов окон, подготовка под оклейку обоями и окраску стен и столярных изделий. Завершение работ по клеевой окраске потолков позволяет начать выполнение смежных работ. Также вне потока после последнего мокрого процесса можно выполнять настилку паркета, линолеума с установкой плинтусов. По мере окончания этих работ можно приступать ко второму этапу малярных работ [15].

На втором этапе малярных работ выполняют оклейку стен обоями и окончательную окраску стен и столярных изделий. Малярные работы по лестничным клеткам выполняют после окончания работ по квартирам.

Высококачественная масляная окраска осуществляется станцией СО-115 в комплекте с красконагнетательным бачком СО-12А, пистолетом пневмораспылителем СО-71А и компрессором СО-7А (4,5 кВт).

Для окраски используются различные средства подмащивания: на высоте до 4 м - передвижные подмости, в труднодоступных местах - столики и лестницы стремянки.

Для механизированного нанесения раствора при оштукатуривании фасада используется штукатурная станция ПШС-4 (34 кВт).

Выполняют высококачественную штукатурку толщиной 20 мм, которая состоит из слоя обрызга, двух слоев грунта и слоя накрывки с разравниванием грунта по маякам и затиркой накрывочного слоя теркой.

После этого устанавливают оконные блоки и балконные двери.

При устройстве полов по монолитным плитам перекрытия укладываются плиты утеплителя (пенополистирол ПСБ-С), затем устраивают пароизоляцию - 1 слой полиэтиленовой пленки и цементно-песчаную стяжку.

Для уплотнения раствора используют виброрейку СО-131А (0,26 кВт), а в труднодоступных местах - пневмовиброгладилку ПГ-2 + СО-7А (4,5 кВт).

Заглаживание стяжки производят машиной СО-170 с производительностью 60 м2/ч и мощностью 1,5 кВт. В зависимости от назначения помещения по стяжке устраивают различные покрытия.

При устройстве паркетного пола производят циклевку и шлифовку машиной СО-111А (3 кВт). Обработанную поверхность натирают или покрывают двумя слоями лака.

В санитарных узлах и ванных комнатах по стяжке устраивают гидроизоляцию из 1 слоя изопласта ХПП-4, а затем укладывают керамическую плитку по соединительной прослойке из цементно-песчаного раствора.

.3.7 Благоустройство

По проекту благоустройство территории производится в зимнее время, поэтому асфальтобетонные покрытия допускается укладывать только в сухую погоду по очищенному и сухому основанию.

Температура воздуха при укладке асфальтобетонных покрытий из горячих и холодных смесей должна быть не ниже плюс пяти градусов весной и летом, а осенью - не ниже плюс десяти градусов.

Температура воздуха при укладке асфальтобетонных покрытий из тепловых смесей должна быть не ниже минус десяти градусов.

.4 Расчет численности персонала строительства

В состав персонала строительства входят рабочие основного и не основного производств, инженерно-технические работники, младший обслуживающий персонал, ученики и практиканты.

Численность рабочих основного производства определяется по эпюре движения рабочих как максимальная численность рабочих в 1 смену.

Численность рабочих не основного производства принимается в размере 20% от численности рабочих основного производства.

Численность инженерно-технических работников принимается в размере 6-8%, младшего обслуживающего персонала - 4%, практикантов и учеников - 5% от численности рабочих основного и не основного производства.

Определяем расчетную численность персонала строительства:

N = 1,06  (Nосн + Nн.о.+ Nитр + Nмоп + Nуч.), чел., (4.1)

где 1,06 - коэффициент, учитывающий отпуска и невыходы рабочих по болезни;

Nосн. − численность рабочих основного производства, чел.;

Nн.о − численность рабочих неосновного производства, чел.;

Nитр − численность инженерно-технических работников, чел.;

Nмоп − численность младшего обслуживающего персонала, чел.;

Nуч. − численность учеников и практикантов, чел.

Nосн. = 34 чел.

Nн.о = 34  0,2 = 7 чел.

Nитр = (34 + 7)  6% = 2 чел.

Nмоп. = (34 + 7)  4% = 2 чел.

Nуч. = (34 + 7)  5% = 2 чел.

N = 1,06  (34 + 7 + 2 + 2 + 2) = 50 чел.

4.5 Расчет потребности во временных зданиях и сооружениях

Таблица 4.1 - Расчет временных зданий и сооружений

Наименование зданий и сооружений

Расчетная численность персонала

Норма на одного человека

Требуется

Принято


Всего

% одновпольз.

Ед. изм.

Кол-во

Ед изм.

Кол-во

Марка

Кол-во

 

1

2

3

4

5

6

7

8

9

 

Проходная

-

-

м2

7

м2

7

Вагончик 3х6

1

 

Контора прораба

5

100

м2

3

м2

15

Вагончик 3х6

1

 

Медицинское помещение

-

-

м2

12

м2

12

Вагончик 3х6

1

 

Помещение для приема пищи

50

30

м2

1

м2

15

Вагончик 3х6

1

 

Помещение для обогрева

50

100

м2

0,1

м2

5

Вагончик 3х6

1

 

1

2

3

4

5

6

7

8

9

 

Кладовая

-

-

м2

15

м2

15

Вагончик 3х6

1

 

Гардеробные с умывальными

50

70

м2

0,5

м2

15,4

Вагончик 3х6

1

 

Душевые

50

30

1рожок 1рожок

8 чел 4 м2

1рожок м2

2  8

Контейнерная «Днепр» 3х6

 1

 

Туалет

50

100

1очко 1очко

20 чел 2 м2

1 очко м2

3 6

Вагончик 3х6

1

 


.6 Расчет потребности в электроэнергии

Таблица 4.2 - Расчет потребности в электроэнергии

Наименование

Мощность, кВт

Силовые потребители шт.

Кран КБ-403

121

Технологические потребители

Вибратор глубинный ИВ-66

0,8

Шлифовальная машинка ИЭ-6103

0,8

Виброрейка СО-131А

0,26

Подметальная машина КУ-405А

1,1

Сварочный агрегат ПС-300М

Растворонасос СО-126

7,5

Пневмовиброгладилка ПГ-2

4,5

Наружное освещение

Прожектор ПКН-1000 с лампой ПЖ-53

10

Внутреннее освещение

Временные помещения

20,9

Итого:

186,86


Электроэнергия при строительстве расходуется на питание силовых потребителей, технологические нужды, внутреннее освещение зданий и сооружений и наружное освещение строительной площадки и дорог.

Определяем требуемую мощность трансформатора для строительной площадки:


, кВт, (4.2)

где1,1 - коэффициент, учитывающий потери в сети;

к1, к2, к3, к4 - коэффициенты спроса, учитывающие несовпадение нагрузок, к1 = 0,3-0,8; к2 = 0,7; к3 = 0,8; к4 = 1;

 - сумма мощностей силовых потребителей, кВт;

 - сумма мощностей аппаратов, участвующих в технологических процессах, кВт;

 - сумма мощностей приборов внутреннего и наружного освещения, кВт;

 - коэффициенты мощностей, зависящие от загрузки потребителей, .

Определяем требуемую мощность:

 = 162,2 кВт

Подбираем 2 трансформатора, суммарная мощность которых близка к расчетной, при этом один трансформатор должен быть малой мощности:

1)      КТПМ-100/10/0,4, Р = 100 кВт;

)        КТПМ-63/10/0,4, Р = 63 кВт.

Определяем сечение проводов во временной электросети:

, мм2, (4.3)

где Руч - сумма мощностей потребителей на рассмотренном участке сети, кВт;

L - длина участка, м;

q - удельная проводимость материала провода: медь - 57, алюминий - 34,5, сталь - 20;

U - номинальное напряжение: для силовых - 380 В, освещение - 220 В;

N - потери напряжения, принимаются 6-8%.

Принимаем диаметр 6 мм2.

Принимаем диаметр 6 мм2.

.7 Расчет потребности в тепле

Тепло на строительной площадке используется на отопление зданий или технические нужды.

Определяем общую потребность тепла для строительных нужд:

, кДж/час, (4.4)

где Q1 - расход тепла на отопление зданий;

Q2 - расход тепла на технологические нужды;

к1 = 1,15 - коэффициент, учитывающий потери в сети;

к2 = 1,2 - коэффициент на учтенные расходы тепла.

, кДж/час, (4.5)

где а - коэффициент, зависящий от расчетной температуры наружного воздуха;

tн ³ -10 0С Þ а = 1,2;

tн ³ -20 0С Þ а = 1,1;

tн ³ -30 0С Þ а = 1;

q - удельная тепловая характеристика здания, q = 1,8 кДж/час∙м3∙град для жилых домов;

V - объем здания по наружному обмеру, V = 28230 м3;

tв и tн - расчетные температуры внутри помещения и снаружи, tH = -32 0C, tв = 21 0C;

Q2 - зависит от времени, вида и объема работ.

Q1 = 1 ∙ 1,8 ∙ 28230 ∙ (20 - (-32)) = 2642,3 МДж/час

Qобщ = (2642,3 + 0) ∙ 1,15 ∙ 1,2 = 3646,4 МДж/час

.8 Расчет потребности в воде

Вода на строительной площадке используется на хозяйственно-бытовые, производственные нужды и пожаротушение. Ее количество определяется по формуле:

Р = Рпож + 0,5(РБ + Рпр), л/сек, (4.6)

где Рпож - расход воды на пожаротушение, Рпож = 10 л/сек;

РБ - расход воды на бытовые нужды, л/сек;

Рпр - расход воды на производственные нужды, л/сек.

Определяем расход воды на бытовые нужды:

, л/сек, (4.7)

где  - расход воды для принятия душа, л/сек;

 - расход воды для умывания, приготовления пищи, л/сек.

, л/сек, (4.8)

где N - расчетная численность персонала строительства;

а - норма потребления на принятие душа 1 чел/день, при отсутствии канализации - а = 30-40 л, при ее наличии - 80 л;

к1 - коэффициент, учитывающий количество моющихся, к1 = 0,3-0,4;

t - время работы душевой установки, t = 0,75 ч;

 = 0,17 сек

, л/сек, (4.9)

где b = 10-15 л - норма водопотребления на одного человека в смену при отсутствии канализации, при ее наличии - 20-25 л;

n - продолжительность смены, ч;

к2 - коэффициент неравномерности потребления воды, к2 = 1,2-1,3.

 = 0,03 л/сек

РБ = 0,17 + 0,03 = 0,2 л/сек

Расход воды на производственные нужды:

, л/сек, (4.10)

где 1,2 - коэффициент на неучтенные потребности;

к3 - коэффициент неравномерности водопотребления, к3 = 1,3-1,5;

 - суммарный расход воды в смену в метрах по норме,  = 630 л.

= 0,036 л/сек

Р = 10 + 0,5  (0,2 + 0,036) = 10,118 л/сек

Определяем диаметр трубы временного трубопровода:

, м, (4.11)

где Р - требуемый расход воды для нужд строительства, л/с;

π = 3,14;

 м/с - скорость движения воды по трубопроводу.

 = 80,3 мм

Принимаем диаметр трубопровода 100 мм для подачи воды на площадку.

.9 Расчет потребности в сжатом воздухе

Сжатый воздух на площадке используется при работе пневмоинструментов.

Определяем требуемую мощность компрессорной передвижной установки ПКУ:

 = 1,3  Sq  к, м3/мин, (4.11)

где Sq - суммарный расход воздуха приборами;

,3 - коэффициент учитывающий потери в сети;

к - коэффициент одновременно работающих аппаратов, при 1 аппарате к = 1, при 2-3 к = 0,9, при 4-6 к = 0,8.

Q = 1,3 × 3,4× 0,9 = 3,98 м3/мин

Принимаем компрессоры ПКС-3М - 4 штуки.

Определяем диаметр подводящих шлангов:

 = 5,0 см

.10 Расчет и проектирование складов

Расчет площадей складов представлен в таблице 4.3.

Таблица 4.2 - Расчет площадей складов

Наименование материалов и конструкций

 Ед. изм.

Q

Т

n

P=Qαnк/T

r

S=P/(rKn)

Тип склада

Конструкции сборные ж/б

шт

74,0

5

3

63,5

2

53,0

Открыт.

Металлические конструкции

т

211,2

13

3

69,7

0,8

145,3

Закрыт.

Пиломатериалы

м3

1325

265

3

21,45

0,5

71,5

Навес

Столярные изделия

м2

3854

265

3

62,4

8

13,0

Навес

Рулонные материалы

м2

10620

13

3

3505,0

300

19,5

Открыт.

Плитка

м2

243,0

61

3

17,1

10

2,9

Навес

Лакокрасочные материалы

т

6,06

50

3

0,56

0,2

4,7

Закрыт.


Q - количество материалов, требуемых на расчетный период;

Т - продолжительность расчетного периода, дн;

n - норма запаса материала, дн;

Р - количество материала, хранимого на складе;

r - норма хранения материала на 1 м2 площади;

S - площадь склада, м2;

α = 1,1-1,2 - коэффициент неравномерности поступления материалов;

к = 1,3 - коэффициент неравномерности расхода материалов;

кn - коэффициент использования складской площади;

кn = 0,6-0,8 - при открытом хранении;

кn = 0,6-0,7 - при закрытом хранении.

.11 Технико-экономические показатели стройгенплана

Площадь застройки - 808,0 м2.

Строительный объем - 28230,0 м3.

Площадь складов открытого хранения - 72,5 м2.

Площадь складов закрытого хранения - 150 м2.

Площадь под навесом - 62,6 м2.

Площадь временных сооружений - 252,0 м2.

Нормативная продолжительность строительства - 14 месяцев.

5. Безопасность и экологичность проекта

.1 Общеплощадочная техника безопасности

Строительная площадка должна быть оборудована оградительными устройствами в виде ворот на въезде и на выезде.

Аптечка для оказания первой медицинской помощи, состоящая из необходимых лекарственных препаратов и перевязочных средств, должна находиться в помещении прораба [11].

Ношение защитной каски - обязательное требование для всех лиц, находящихся на стройплощадке.

Весь персонал, занятый на строительном объекте (рабочие, служащие, руководители) должны быть обеспечены помещениями санитарно-бытового назначения.

Подготовка санитарно-бытовых помещений к эксплуатации должна быть закончена до начала основного периода строительных работ.

Руководитель строительно-монтажной организации обеспечивает соблюдение правил внутреннего распорядка, относящихся к охране труда всеми работниками. Вводный инструктаж по технике безопасности и инструктаж на рабочем месте перед началом работ должен быть пройден у всех рабочих.

Машины, оборудование и технологическая оснастка, применяемые при производстве строительно-монтажных работ, по своим техническим характеристикам должны соответствовать условиям безопасности выполнения работ.

Устанавливаются границы опасных зон (зоны перемещения грузов, перемещения машин, оборудования или их частей, непосредственная близость к строящемуся зданию, линиям электропередач) [11].

Производство строительных работ в неосвещённых местах не допускается. В темное время суток строительная площадка, участки работ, проезды к ним должны быть обязательно освещены.

Ответственность за надлежащее техническое состояние машин, инструмента, технологической оснастки, включая средства индивидуальной защиты, лежит на организации, на балансе которой они находятся, а при передаче их во временное пользование - на лицо, установленное договором.

.2 Техника безопасности при производстве земляных работ

Земляные работы разрешается проводить при наличии утверждённого и согласованного в установленном порядке проекта производства работ [12].

В соответствии с проектом, все подземные сооружения, которые попадают в зону разработки грунта, должны быть отмечены на местности до начала производства земляных работ.

Производство земляных работ в зонах нахождения подземных коммуникаций возможно только с письменного разрешения организации, в ведении которой они находятся, и в присутствии их представителя, предварительно приняв соответствующие меры для предохранения сооружений от возможных повреждений. В местах, где располагаются электрические кабели, разработка грунта допускается только с помощью лопат, без применения ударных инструментов [12].

При проведении разработок траншей и котлованов с откосами необходимо в строгом порядке соблюдать установленную правилами техники безопасности крутизну откосов. Состояние откосов необходимо проверять каждую смену, в случае появления трещин в грунте работы должны быть остановлены и крутизна откосов уменьшена.

В случае появления в разрабатываемых выемках вредных газов рабочих необходимо удалить и работу прекратить до момента выявления причин появления этих газов и обезвреживания места производства работ.

Запрещается спуск рабочих в траншею и подъем из нее по распорам. С этой целью используют металлические или деревянные приставные лестницы с врезными ступенями [12].

Глубина выемок, разрабатываемых с вертикальными стенками без креплений, не должна быть больше установленной величины для данного вида грунта.

Запрещается находиться в зоне призмы обрушения и в радиусе действия стрелы экскаватора при разработке выемок одноковшовыми экскаваторами. Передвижение экскаватора с наполненным ковшом запрещается.

Отвалы грунта должны быть расположены на расстоянии не ближе 0,5 м от бровки выемки, а грунт грузится на самосвалы через боковой или задний борт машины, не допуская прохождения ковша экскаватора над кабиной шофера.

.3 Техника безопасности при погрузочно-разгрузочных работах

Если груз находится в неустойчивом положении, при выполнении погрузочно-разгрузочных работ строповка груза не допускается.

Способы строповки элементов конструкций и оборудования должны обеспечивать их подачу к месту установки в положении, максимально приближенном к проектному.

Используемые грузозахватные приспособления оборудуются предохранительными замыкающими устройствами, предотвращающими самопроизвольное выпадение груза [12].

Во время перемещения элементы монтируемых конструкций или оборудования должны удерживаться от раскачивания и вращения гибкими оттяжками.

Категорически не допускается пребывание рабочих на элементах конструкций и оборудования во время их подъема или перемещения.

Не допускается оставлять поднятые элементы конструкций и оборудования на весу во время перерывов в работе.

.4 Техника безопасности при производстве бетонных работ

Опалубка и крепежные элементы опалубки должны находиться в технически исправном состоянии.

Опалубочные и монолитные работы должны проводиться персоналом, который имеет соответствующую квалификацию и прошел инструктаж по технике безопасности, под руководством и наблюдением инженерно-технического работника (мастера или прораба).

Запрещено размещать на опалубке для монолитного строительства <#"902766.files/image005.gif">12

2

Лестница приставная

ЛП-2,5

4

L = 2,5 м

3

Лом

ЛМ

2

L = 2 м

4

Лопата растворная

ЛР

6


5

Скребок

СМ

4


6

Молоток-кирочка

МКИ

4

m = 1,2 кг

7

Кувалда

КМ

2

m = 3 кг

4. Средства измерения и контроля

1

Отвес стальной строительный

ОТ-600

2

L = 5 м

2

Рейка с отвесом

РСО-250

2

L = 2,5 м

3

Рулетка

РЗ-2 РЗ-20

10 1

L = 2 м L = 20 м

4

Правило дюралюминиевое

ПД-2

2

L = 2 м

5

Нивелир, теодолит


1

L = 30 м, точность +3 мм