Материал: Магнитожидкостные уплотнения

Внимание! Если размещение файла нарушает Ваши авторские права, то обязательно сообщите нам

Рисунок 3.2 - Схема экспериментальной установки: 1 - источник сжатого воздуха; 2 - манометр; 3 - испытательный стенд

Установка состоит из источника сжатого воздуха 1, которым служит баллон с азотом газообразным особой чистоты первого сорта ГОСТ 9293-74 с температурой насыщения -53ÅС. Азот накачивается в полость испытательного стенда 3 с установленным в нем магнитожидкостным уплотнением до тех пор, пока не нарушается герметичность устройства. Величина избыточного давления измеряется манометром 2.

Стенд состоит из двух корпусных деталей, вращающихся относительно друг друга на паре подшипников INAFAGCSXF110 3. Внутренние обоймы подшипников сжаты с помощью набора прокладок, подложенных между верхним подшипником и кольцом. Такой преднатяг подшипников минимизирует осевой и радиальный люфты.

Модель МЖУ состоит из магнитной системы с наружным диаметром 342 мм и нескольких сменных колец с разными размерами кольцевых выступов, которые служат концентраторами напряженности магнитного поля.

Магнитная система собрана из равномерно размещенных по окружности кольцевого немагнитного сепаратора 90 цилиндрических магнитов, из магнитотвердого материала марки КС-37 четвертой группы, обладающих стабильными высокими магнитными характеристиками - остаточной индукцией Br=0,9 Т, коэрцитивной силой по индукции Нсв=680 кА/м. Магниты разделены сепаратором из немагнитного материала. Создаваемое ими магнитное поле перераспределяется полюсными приставками из коррозионностойкой магнитопроводящей стали 20Х13.

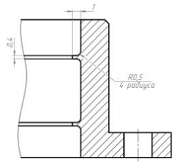
Технология изготовления узла МЖУ должна обеспечивать стабильную заданную величину зазора δ (рисунок 3.5 а) по окружности, т.е. требуется обеспечивать минимально возможные изменения зазора от расчетной величины (Δδ). Кроме этого минимальным должен быть и эксцентриситет зазора ε (рисунок 3.5 б). При наличии эксцентриситета магнитное поле неодинаково по окружности, в области максимального зазора напряженность поля меньше, в области минимального зазора напряженность поля больше. Удерживающая способность уплотнения будет определяться напряженностью в области максимального зазора. Неравномерность поля по окружности приводит к перетеканию по окружности магнитной жидкости. В области максимального зазора магнитожидкостная пробка уменьшается в длину, что дополнительно снижает удерживающую способность уплотнения.

Рисунок 3.3 - Зазоры: а - зазор между валом и полюсной приставкой; б зазор между валом и полюсной приставкой при наличии эксцентриситета

Поэтому при создании магнитожидкостного уплотнения необходимо первоначально детально проработать вопрос обеспечения равномерности выбранного зазора. При разработке уплотнения рассчитываются и контролируются параметры магнитного поля при максимально возможных отклонениях зазора.

Зазор данной конструкции направлен по радиусу, поэтому эксцентриситет определяется в основном радиальными зазорами в посадках и радиальными биениями. Преднатяг подшипников и совместная обработка в сборе рабочей поверхности полюсных приставок приводят к снижению результирующего эксцентриситета, но не к полному их устранению.

Для проведения эксперимента и получения достоверных данных необходимо, чтобы максимальный зазор δmах был равен исследуемой величине зазора. Поэтому сменные кольца свободно вставляются в корпус и закрепляются винтами с цилиндрической головкой, так как это позволяет регулировать положение кольца относительно магнитного устройства. Контроль зазора производился щупами.

Приведем пример анализа равномерности величины зазора. В конструкции принят зазор на сторону 0,1 мм. Полюсные приставки обработаны по342(Н6)-0,036 мм. Измерениями был получен действительный размер поверхности: dmin=341,985мм, dmax=342,008 мм.

Значит, размер внутренней поверхности кольца Ø 342** должен быть Ø 342,2 мм с допуском -0,05 мм.

При таком задании зазора возникают интересные моменты: представим внутреннее телоØ342 в виде овала, максимальный размер которого равен 342,008 мм, а минимальный диаметр 341,985 мм и представим, что выполнили указанный зазор по зубцам МЖУ. В этом случае против максимального размера на зубцах получается зазор 0,103 мм, а против минимального размера - 0,071 мм.

Изложенное выше не претендует на абсолютную точность. Единственной его целью является показ, что даже грубый анализ показывает, что эксцентриситет в рабочем зазоре, может быть существенным, практически соизмеримым, с величиной рабочего зазора, т.е. с одной стороны он может быть удвоенным, а с другой - какой-то минимально возможный, допускающий вращение подвижных частей друг относительно друга.

Для проведения эксперимента сделано четыре кольца (рисунок 3.6), которые позволяют сделать максимальные рабочие зазоры 0,03, 0,1 0,2 и 0,3 мм на сторону.

Важным является выбор соотношений геометрических параметров зубцов - отношение ширины зубца к зазору b/δ, величины площадки на острие зубца к зазору t/δ. Известны наиболее оптимальные соотношения геометрических параметров зубцов с точки зрения удержания максимально возможного перепада давлений. Как правило, их приходится корректировать в процессе разработки МЖУ, т. к. необходимо учитывать различные ограничения и дополнительные требования к МЖУ.

Рисунок 3.4 -Форма кольцевых выступов

Геометрические параметры зубцов рассчитываются относительно величины рабочего зазора δ. Ширину площадки на вершине зубца выбираем исходя из величины максимально возможного рабочего зазора t/δmax≈2. Принимаем t=0,4 мм.

.3 Исследование зависимостей напряженности магнитного поля от параметров конструктивных элементов

После проведения эксперимента было замечено, что через несколько недель магнитная жидкость изменила свою первоначальную структуру и приняла вид неоднородной густой пасты. При этом перестала выполнять свои функции, герметичность устройства была нарушена. Но ресурс работы МЖУ должен быть намного больше и достигать нескольких лет. На рисунке 3.5 показана динамическая характеристика изменения критического перепада давлений МЖУ от времени.

Рисунок 3.5- Зависимость удерживаемого перепада давлений МЖУ от времени

Данная характеристика отображает, как меняется удерживаемый перепад давлений в течение работы МЖУ. На кривой выделяют три участка - этапа. На первом этапе после заправки МЖ в МЖУ (0 - ti) происходит возрастание удерживаемого перепада давления вследствие повышения концентрации частиц магнитной фазы в зоне максимальных индукций. Длительность первого этапа определяется значениями градиента магнитного поля, размера частиц, размера и упругости защитных оболочек, реологических свойств МЖ и может достигать нескольких суток. Второй этап (ti - t2) характеризуется стабильностью критического перепада давления. Этот период может достигать нескольких лет. Здесь имеет место равновесие между диффузионными процессами во всех направлениях. На третьем этапе (t2- оо) старение МЖ и ухудшение ее качества происходит вследствие процесса агрегации частиц, снижения намагниченности вследствие окисления, других изменений дисперсной фазы, испаряемостью и фильтрацией дисперсной среды, что вызывает снижение критического перепада давления. Пробой уплотнения наступает, когда удерживаемый уплотнением перепад давлений в точке tmaxсравнивается с приложенным перепадом давлений.

Кстати, эти эффекты присущи любой магнитной системе, имеющей неоднородную ферромагнитную структуру. Важно, что они есть, и оказывают свое негативное влияние на свойства магнитной жидкости, на ускоренную концентрацию магнитных частиц, образование цепочек и кластеров и пр.

При наличии неоднородностей образуется область магнитной жидкости с существенно измененными свойствами и, что интересно для нашего случая, с резко увеличившейся динамической вязкостью, зависящей, в том числе, от концентрации частиц и от уровня магнитного поля. Известно, что момент трения МЖУ, в общем случае рассчитывается по формуле (3.1).

Мтр=ηRSV/∆, Н*м                                                                        (3.1)

где η - динамическая вязкость магнитной жидкости в реальном магнитном поле,

∆ - величина рабочего зазора, мм.

При работе МЖУ, т.е. его вращении, происходит перемешивание магнитной жидкости и восстановлении ее свойств. При остановке сразу начинается указанный выше процесс старения магнитной жидкости. С течением времени эта область с какой-то скоростью увеличивается. Скорость старения магнитной жидкости существенно замедляется по мере выхода из неоднородного магнитного поля. Для этого необходима достаточная величина рабочего зазора, остающаяся в узком месте, при эксцентриситете. К сожалению, в рассмотренной конструкции запаса по зазору нет и без того, небольшой номинальный зазор может быть значительно уменьшен в некотором секторе рабочего зазора и в этом же секторе резко возрастает как средняя индукция, так и всплески в местах неоднородности. Это ведет к ускоренному перетеканию магнитных частиц в места концентрации поля и резкому возрастанию динамической вязкости магнитной жидкости в данных местах. Через сравнительно короткое время эти микрозазоры полностью заполняются измененной магнитной жидкостью и резкому увеличению момента трения, в соответствии с приведенным выше уравнением (3.1) (вязкость возрастает в разы, а зазор в разы уменьшается в некотором секторе).

При исследовании магнитного поля в зазоре магнитожидкостного уплотнения магнитопроводящего вала обнаружены зоны с повышенной напряженностью поля около кромок зубцов. Проведенный эксперимент подтвердил, что у кромки полюса напряженность поля значительно превышает напряженность в рабочем зазоре. Наличие зон cповышенной напряженностью поля в зазорах устройств, где присутствует магнитная жидкость, отрицательно сказывается на процессах, происходящих в магнитной жидкости, и в конечном итоге на ресурсе таких механизмов. Поэтому представляет интерес исследование закономерностей распределения магнитного поля в околокромочных зонах. В работе ставится задача оценить величину отличия напряженности поля на кромках полюсов от базовой напряженности поля в зазоре, определить границы распространения зон повышенной напряженности, понять, какие факторы влияют на напряженность поля в этих зонах, найти способы снижения проявлений кромочного эффекта.

Исследование выполнялось методом математического моделирования магнитного поля у кромки полюса, образующего воздушный зазор с поверхностью магнитопроводящего вала с помощью программы elcut. Рассматривалась плоскопараллельная картина поля.

Величину зазора между полюсом и поверхностью вала обозначим δ, ширину полюса t, угол между образующими кромку поверхностями, а смежный с ним α. Рассматриваемую геометрию исследуемой зоны зададим в относительных единицах. Геометрия в относительных единицах называется геометрической характеристикой. Такая характеристика - удобный параметр для сравнения однотипных конструкций.

Рисунок 3.6- Распределение линий потока в расчетной области

За базовую геометрическую величину принимаем зазор δ. Ширину полюса выбираем t=6δиз тех соображений, чтобы в зазоре был гарантированный участок с однородным магнитным полем. Высоту полюса задаем равной h=3δ. Полюс и вал выполнены из ферромагнитного материала, имеющего нелинейную кривую намагничивания - сталь Ст.3 с индукцией насыщения 2,1 Тл.

Рассматриваемая задача решалась численным методом - методом конечных элементов. Метод универсален, при использовании не требует сложных математических преобразований, позволяет рассматривать области со сложной геометрией, оперативно менять форму поверхностей отдельных участков, учитывать насыщение магнитных материалов, что важно при решении большинства задач магнитостатики. Исходя из выбранного метода, граничные условия задавались следующим образом: на границе АБ векторный магнитный потенциал А постоянен и равен 0 и на границе ВГ магнитный потенциал А постоянен и определяется из условия, чтобы индукция однородного поля в зазоре составлялаВ=0,1 Тл. Задавая низкую индукцию в зоне однородного поля зазора, реализуем условие отсутствия насыщения материала полюса и вала. На границах БВ и АГ касательное поле Н5 = 0.

Напряженность магнитного поля около кромки полюса напрямую связана с величиной напряженности поля в зазоре δ, поэтому нагляднее напряженность представлять в относительных единицах:

Н = Н/НБ                                                                                        (3.2)

где Н - напряженность магнитного поля в рассматриваемой точке пространства;

НБ- базовая напряженность поля в зазоре, определяемая по формуле (3.3).

Нб = U/δ                                                                                         (3.3)

где U- магнитодвижущая сила, создающая поле в зазоре.

Максимальное значение относительной напряженности Hв рассматриваемой области или на рассматриваемом участке назовем коэффициентом неоднородности kн =Нмах.

Коэффициент неоднородности служит мерой отклонения поля от однородного [29].

4. ОБРАБОТКА ЭКСПЕРИМЕНТАЛЬНЫХ ДАННЫХ

4.1 Удерживающая способность МЖУ

После проведения эксперимента были получены следующие данные, представленные в таблице 4.1.

Таблица 4.1 - Экспериментальные данные

δ, мм

0,03

0,1

0,2

0,3

ΔР, Атм

1,83

1,54

1,1

0,6


Результаты эксперимента в виде графика представлены на рисунке 4.1

Рисунок 4.1- Диаграмма зависимости удерживаемого перепада давлений от зазора

На диаграмме заметно, что с увеличением рабочего зазора удерживающая способность уплотнения падает. Зависимость этих двух факторов друг от друга почти линейна, но ее можно выразить квадратичным уравнением (4.1)

∆Р= -7,36δ 2 - 2,39δ + 1,87, Па                                                     (4.1)

В результате эксперимента получена количественная оценка удерживающей способности МЖУ с двумя зубцами. Таким образом, при проектировании МЖУ можно выбирать между величиной зазора и количеством зубцов. При этом с увеличением числа зубцов увеличиваются габариты узла.

4.2 Результаты моделирования магнитного поля в зазоре

После формирования модели магнитного поля в исследуемой зоне получены данные относительной напряженности. Программа автоматически строит график распределения напряженности вдоль любой линии, указанной вручную.

На рисунке 4.2 представлены кривые распределения относительной напряженности магнитного поля в зазоре у поверхности полюса и поверхности вала.

Рисунок 4.2 - Распределение относительной напряженности поля: 1 - около поверхности полюса (Δ=0,95δ); 2 - на поверхности полюса

Поблизости от кромки полюса наблюдается всплеск напряженности магнитного поля (кривая 1). Напряженность поля на пике кривой 1 в 1,7 раза превышает напряженность поля в равномерном зазоре. Около поверхности вала никаких отклонений напряженности поля напротив кромки не наблюдается.

На рисунке 4.3 показано изменение относительной напряженности поля при перемещении от вала к кромке полюса на линии, лежащей в плоскости ЕК. Зона повышенной напряженности поля начинается на расстоянии ≈0,35δ от поверхности полюса.