Материал: Конструкции цепного экскаватора

Внимание! Если размещение файла нарушает Ваши авторские права, то обязательно сообщите нам

В комплект навесного экскаваторного оборудования входят: цепной рабочий орган с зачистными башмаком и отвальным винтовым конвейером, механизм подъема-опускания рабочего органа и гидромеханический ходоуменьшитель. Однорядная втулочно-роликовая цепь 6 рабочего органа установлена на ведущей 12 и ведомой 14 звездочках и несет на себе сменные резцы 17-19 для послойного срезания грунта и сменные скребки 16 для подъема грунта из траншеи. Резцы и скребки располагаются на цепи по определенной схеме, способствующей равномерному распределению нагрузки на цепь при копании и повышению долговечности цепи. Производя смену резцов и скребков, получают траншеи различной ширины (0,2; 0,27 и 0,4 м). Цепь обегает наклонную раму 4, шарнирно прикрепляемую сзади к базовому трактору, и опирается на ролики 13. Ведущая звездочка 12 цепи, закрепленная на приводном валу 2, получает вращение от вала отбора мощности базового трактора 10 через трехступенчатый редуктор 8 с переменным передаточным числом, обеспечивающим четыре рабочие скорости (0,8-2,1 м/с) и реверсивный ход цепи. В редукторе привода цепи установлена предохранительная фрикционная муфта предельного момента. Натяжение цепи регулируется перемещением натяжной звездочки 14 относительно рамы винтовым натяжным устройством 15. Скребки выносят из траншеи грунт в направлении ведущей звездочки, образуя первоначальный отвал в виде пирамиды. Эвакуацию грунта в боковые отвалы производят два шнека 7 винтового конвейера, установленного на раме рабочего органа. Шнеки имеют общий вал и приводятся во вращение скребковой цепью. Положение конвейера относительно рамы меняется в зависимости от глубины копания. К дополнительной раме 3 рабочего органа за скребковой цепью крепится сменный консольный зачистной башмак 5 для зачистки и сглаживания дна траншеи.

Рисунок 2. Траншейный экскаватор ЭТЦ-1609: а - общий вид; б - схема рабочего органа; в - рабочие цепи: l - универсальная (для талых и мерзлых грунтов); ll - для талых грунтов

Заглубление рабочего органа в грунт с принудительным напором по всему диапазону глубины копания, а также его подъем при переводе в транспортное положение осуществляются гидравлическим подъемным механизмом 1, гидроцилиндр которого связан с рабочим органом рычажной системой. Для получения пониженных рабочих скоростей движения машины при копании траншей и их бесступенчатого регулирования в широком диапазоне 20-800 м/ч в трансмиссию базового трактора включен гидромеханический ходоуменьшитель 9 в виде многоступенчатого цилиндрического редуктора с приводом от аксиально-поршневого гидромотора. При транспортных переездах машины ходоуменьшитель отключается. Гидромотор ходоуменьшителя, гидроцилиндры механизма подъема рабочего органа и управления отвалом бульдозера обслуживаются гидронасосами с приводом от дизеля через редуктор, а управление ими ведется из кабины машиниста с помощью двух золотниковых распределителей.

.2 ФГУП "Дмитровский экскаваторный завод"

Рисунок 3. Экскаватор траншейный цепной этц-201г (гидравлический)

ЭТЦ-201Г на базе трактора "Беларус" МТЗ-1221 и имеет следующие преимущества перед экскаватором с механическим приводом:

увеличение производительности на 30-50% в зависимости от грунта,

повышается эксплуатационная надёжность и долговечность,

предохранение от превышающих моментов осуществляется гидравлически, что позволяет отказаться от предохранительных муфт и значительно снижает нагрузку на вал отбора мощности, мотор и редуктор,

бесступенчатая плавная регулировка скоростей вращения режущей цепи,

возможность включения реверсивного вращения, что немаловажно при попадании в режущую цепь посторонних предметов,

уменьшаются затраты на обслуживание.

Таблица 1. технические характеристики ЭТЦ-201Г

Технические характеристики

Привод копающей цепи

гидростатический: насос НПА-112 (регулируемый); V=112 см3/об; гидромотор МПА-112, V=112 см3/об

Скорость цепи м/с

Размеры траншей:

 

Глубина (наибольшая) ,м

2,0

Ширина, м

0,25 , 0,4;

Диапазон скоростей гидрохода

10-800

Механизм подъёма рабочего органа

гидравлический

Базовый трактор:

МТЗ-1221 "Беларус"

Мощность двигателя кВт (л.с.)

95,6 (130)

Параметры бульдозерного оборудования:

 

ширина отвала, мм

2500

высота отвала, мм

625

угол поворота отвал, град

45

Габаритные размеры в транспортном положении, мм:

 

длина

8150

ширина

2500

высота

3180

Масса экскаватора, кг

8600


.3 ООО "ДорЭлекроМарш"

Экскаватор ЭЦУ-150 с летним рабочим органом.

Предназначен для прокладки газо- и водопроводов, сетей канализации, связи и электропередачи и позволяет производить быструю смену режущего органа для получения траншей разной ширины, используется на разных категориях грунта.

Передняя навеска: Бульдозер-погрузчик, поворотный бульдозерный или жёсткий бульдозерный отвал.

Рисунок 4. Экскаватор цепной универсальный ЭЦУ 150

Таблица 2. Основные характеристики.

Базовый трактор

"Беларус 92П", Беларус 80.1" и его модификации

Редуктор

2-х скоростной; реверс

Привод рабочего органа

от заднего ВОМ

Глубина копания, мм

1600, 1900 (геометрическая)

Тип рабочего органа

цепной скребковый

Ширина копания, мм

210; 270; 410


Таблица 3. Габаритные размеры

длина

7150, в транспортном положении……5650

ширина

2100

высота

2765, в транспортном положении……2900

Вес, кг

5170



3. Патенто аналитический обзор

Из уровня техники известны различные конструкции цепных экскаваторов и гидравлических систем управления рабочим оборудованием.

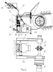
Так, например, известно рабочее оборудование (патент на полезную модель RU 117465).

Полезная модель поясняется чертежами, где на рис.5 показан предлагаемый экскаватор с рабочим органом; на рис. 6 - то же, вид сверху, рис.7 - гидроцилиндр прижима.

Рисунок 5. Предлагаемый экскаватор с рабочим органом.

Рисунок 6. Предлагаемый экскаватор с рабочим органом вид сверзу.

Рисунок 7. Гидроцилиндр прижима.

Привод рабочего органа 6 осуществляется от двигателя трактора 1.

Кроме того, для исключения зазоров, вызывающих вибрации в процессе работы рабочего органа 6, экскаватор снабжен гидроцилиндром 19, предназначенным для прижима корпуса 18 привода поперечного перемещения рабочего органа 6 к раме 2. На корпус 18 крепится болтами гидроцилиндр 19, шток 20 которого проходит между нижними направляющими 5, на резьбовом конце штока 20 установлена задняя пята 21.

После перемещения рабочего органа 6 в поперечном направлении гидроцилиндром 7, например, из положения I в положение II (рис.6) при подаче гидравлической жидкости от гидронасоса в гидромотор ходоуменьшителя (не показаны) (при рабочем движении) одновременно жидкость поступает в подпоршневую полость гидроцилиндра 19. При ходе штока 20 происходит прижатие направляющих 5 к корпусу 18. Таким образом, происходит фиксация рабочего органа 6 с ликвидацией зазоров в направляющих 5. При выключении ходоуменьшителя жидкость прекращает поступать в гидроцилиндр 19 и пружина 22 (рис. 7) освобождает направляющие 5 от фиксации, рабочий орган 6 может быть вновь перемещен в другое положение.

Предлагаемый экскаватор может осуществлять копание траншей любого назначения вблизи фундаментов зданий, а также вблизи других объектов. [5]

Также из уровня техники известна конструкция объемного гидропривода цепного рабочего органа цепного траншейного экскаватора (патент на полезную модель RU 91076).

Полезная модель поясняется чертежами, где на рис.8 изображена связь элементов гидросистемы; на рис. 9 (а, б) - привод рабочего органа; на рис.10 - продольное сечение планетарного редуктора.

Рисунок 8. Связь элементов гидросистемы.

Рисунок 8. (а, б) - привод рабочего органа

Рисунок 9. Продольное сечение планетарного редуктора.

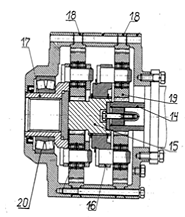
Объемный гидропривод цепи рабочего органа цепного траншейного экскаватора содержит последовательно соединенные между собой посредством рукавов 1 высокого давления (РВД) гидробак 2, фильтр 3, регулируемый гидронасос 4, выполненный реверсивным аксиально-поршневым, гидромотор 5 и соединенные с гидробаком 2 охладители 6 гидросистемы, расположенные впереди водяных радиаторов (не показаны) экскаватора с целью обдува вентилятором двигателя.

На корпусе заднего моста 7 экскаватора с помощью шпилек 8 и стяжек 9 установлен сварной корпус 10, внутри которого расположен повышающий редуктор 11, который в свою очередь установлен на валу 12 отбора мощности экскаватора и кинематически связан с гидронасосом 4 с целью увеличения оборотов гидронасоса 4 и получения его максимальной производительности. Кроме того, на торце корпуса установлен планетарный двухступенчатый редуктор 13, кинематически связанный с гидромотором 5, служащий для увеличения его крутящего момента и содержащий две солнечные шестерни 14 и 15, первая из которых установлена на валу гидромотора 5, двух водил 16 и 17, двух одинаковых коронных шестерен 18 и шести сателлитов 19, вращающихся на роликоподшипниках 20, установленных на осях водил 16 и 17. В корпусе 10 также установлен ведущий вал 21 рабочего органа с закрепленной на нем звездочкой 22 привода цепи.

Объемный гидропривод работает следующим образом: двигатель экскаватора через вал 12 отбора мощности и повышающий редуктор 11 приводит во вращение гидронасос 4, который всасывает рабочую жидкость из гидробака 2 через фильтр 3 и рукав 1 высокого давления, а затем подает ее в гидромотор 5 и приводит во вращение вал гидромотора 5 и установленную на нем солнечную шестерню 14 редуктора 13, которая передает вращение через сателлиты 19 на водило 16, соединенное шлицами с солнечной шестерней 15. Вращение от солнечной шестерни 15 передается через второй ряд сателлитов 19 водилу 17 и валу 21 рабочего органа, при этом коронные шестерни 18 остаются неподвижными.

Передаточное отношение редуктора 11 привода гидронасоса (i=0,5) и передаточное отношение планетарного редуктора 13 (i=24,4) подобраны оптимально для получения максимальной производительности гидронасоса 4 и максимального крутящего момента на ведущем валу 21 цепи экскаватора. Таким образом, при минимальных габаритах гидронасоса 4 и гидромотора 5 достигается крутящий момент на ведущей звездочке 800 кгм, равный моменту серийно выпускаемых экскаваторов с механическим приводом.

Регулировка производительности гидронасоса 4 осуществляется рычагом 23, который соединен посредством тяги 24 с рукояткой 25. При движении рукоятки 25 вперед из нейтрального положения обороты гидронасоса 4 и ведущего вала 21 увеличиваются пропорционально перемещению рукоятки 25, при движении рукоятки 25 назад через нейтраль вал 21 начинает вращаться в обратную сторону.

Для предохранения гидравлической системы от перегрузок при попадании в цепь посторонних предметов в гидросистеме предусмотрены два предохранительных клапана 26, настройка которых производится на момент меньший, чем может передать без буксования вал 12 отбора мощности экскаватора. Регулировка предохранительных клапанов обеспечивает долговечную работу привода вала 12 отбора мощности экскаватора.

Благодаря такому выполнению полезной модели достигается:

упрощение и минимизация размеров гидросистемы;

снижение затрат на изготовление гидросистемы;

повышение надежности за счет отсутствия в приводе дросселирующих гидрораспределителей и уменьшение количества разъемных соединений;

высокий КПД;

бесступенчатое регулирование скорости, обеспечение реверса цепи рабочего органа и момента на ведущей звездочке 22;

низкие затраты на монтаж и обслуживание. [5].

Также из уровня техники известны конструкции выполнения траншейного экскаватора для вскрытия и подкопа трубопроводов (Патент на полезную модель ru №53317).

Задача полезной модели состоит в повышении производительности комплекса машин для капитального ремонта трубопроводов путем сокращения технологических операций и землеройной техники.

На рис.10 изображена предлагаемая машина при работе, вид сзади. На рис. 11 и рис.12 изображены варианты положения рабочих органов при работе машины. [5].

Рисунок 10. Рабочее оборудование обратной лопаты.

Рисунок 11. изображены варианты положения рабочих органов при работе машины

Рисунок 12. Изображены варианты положения рабочих органов при работе машины.

Машина для вскрытия трубопроводов (рис. 10) содержит базовое шасси 1, в качестве которого может быть применена стандартная тракторная база, левое и правое рабочее оборудование, а также устройство для контроля положения левого и правого рабочих органов.

Левое рабочее оборудование содержит левую раму 2, левый рабочий орган 3, левый эвакуатор грунта 4. Левая рама 2 представляет собой телескопическую балку, которая может изменять свою длину посредством гидроцилиндра 5, а также перемещаться вверх и вниз по направляющим 6, закрепленным на базовой машине, при помощи гидроцилиндра 7. На ней установлен левый рабочий орган 3, который содержит цепную секцию 8, силовой привод ее для подъема и опускания, а также удержания в рабочих и транспортном положениях, выполненный в виде гидроцилиндра 9 и привод левого рабочего органа, представляющий собой гидродвигатель 10. Левый эвакуатор грунта 4 представляет собой шнековый отвальный конвейер, имеющий привод от гидромотора.