Материал: Канализационные очистные сооружения

Внимание! Если размещение файла нарушает Ваши авторские права, то обязательно сообщите нам

где Ri - коэффициент рециркуляции, зависит от типа вторичных отстойников, для отстойника радиального Ri не менее 0,3.= 2,3(1 / (2·0,3) + 1) = 6,13г/л.

При проектировании аэротенков с регенераторами продолжительность окисления органических загрязняющих веществ tO, рассчитываем по формуле:

 ч (4.23)

где S - зольность, при очистке городских сточных вод равна 0,3

r - удельная скорость окисления, мг БПКполн на 1 г беззольного вещества ила в 1 ч, определяемая по формуле:

 мг·БПК/(г×ч), (4.24)

где rmax - максимальная скорость окисления, 85 мгБПК/(г×ч);- концентрация растворенного кислорода, 2 мг/л;- константа, характеризующая свойства органических загрязняющих веществ, 33 мг БПКполн/л;

КО - константа, характеризующая влияние кислорода, 0,625 мг О2/л;

j - коэффициент ингибирования продуктами распада активного ила,0,07 л/г.

ρ = ((85·15·2)/(15·2+33·2·0,625·15))·(1/(1+0,07·6,13)) =16,9мгБПК/(г×ч).

Скорость окисления определяется при температуре сточной воды 150С, т.к среднегодовая температура равна 19°С скорость окисления будет выше.

Ρ(19)= ρ·t / 15=16,9·19 / 15 = 21,4 мгБПК/(г×ч).

= (238- 15) / (0,3·6,13·(1- 0,3) ·21,4) = 8,1ч.

Продолжительность регенерации tr, определяем по формуле:

 ч (4.25)

= 8,1- 2 = 6,1ч.

Время прибывания ила в системе ts, определяем по формуле:

= tr · Ri + tat (1+Ri), ч (4.26)

 = 6,1 · 0,3 + 2 (1+0,3) =4,43ч ≈ 4,5ч.

Вместимость аэротенка Wat, м3, определяем по формуле:

м3 (4.27)

где qw - расчетный расход сточных вод, так как время прибытия в системе 4 ч из таблицы №1 выбираем 4 максимальных значения и считаем среднее,

qw = 1372,25м3/ч.= 2 (1+0,3) 1372,25 = 3567,85м3

Вместимость регенераторов Wr, определяем по формуле:

 м3 (4.28)

 = 6,1 · 0,3 · 1372,25 = 1276,19м3

Общий объем аэротенка Wo, м3, определяем по формуле:

= Wat + Wr, м3

= 3567,85 + 1276,19 = 4844м3

Средняя концентрация ила в системе равна:

=( aat + ar )/nk, г/л (4.29)

 =( 2,5 + 6,13)/2=4,3 г/л

Нагрузку на ил qi, мг БПКполн на 1 г беззольного вещества ила в сутки, надлежит рассчитывать по формуле

= 24 · (Lеn - Lех) / (аs · ts ·(1- s)), мгБПК/(г сут) (4.30)

 = 24 · (238 - 15) / (4,3 · 4,5 ·(1- 0,3)) = 396,44 мгБПК/(г сут)

Процент Wr от общего объема:

Размеры аэротенка.

Длина аэротенка:

= Wо / (nк · nс · b · Н), м (4.31)

где Н - глубина коридора, равная 4,4м.

b - ширина коридора, равная 4,5 м.

nк - число коридоров, равное 2.

nс- число секций, равное 2.

Lat = 4844 / ( 2 · 2 · 4,5 · 4,4 ) =60м

Ширина аэротенка:

Вat = nк · nс · b, м (4.32)

Вat = 2 · 2 · 4,5 = 18м

Находим иловый индекс при нагрузке 396,44 мгБПК/(г сут), J=79,6см3/г.

Пересчитываем Ri:

 (4.33)

где ai - доза ила в аэротенке, 1,8 г/л;

Ji - иловый индекс, см3/г.= 2,3 / (1000/79,6 - 2,3) = 0,22, полученное число меньше 0,3, значит аэротенк пересчитывать не надо.

4.2.2 Расчет системы аэрации

Согласно, СНиП 2.04.03-85, п. 6.157. Удельный расход воздуха qair, м3/м3 очищаемой воды, при пневматической системе аэрации надлежит определять по формуле

, (4.34)

где qO - удельный расход кислорода воздуха, мг на 1 мг снятой БПКполн, принимаемый при очистке до БПКполн 15-20 мг/л - 1,1;

K1 - коэффициент, учитывающий тип аэратора и принимаемый для мелкопузырчатой аэрации в зависимости от соотношения площадей аэрируемой зоны и аэротенка faz /fat,принимаем две нитки- коэффициент, зависимый от глубины погружения аэраторов- коэффициент, учитывающий температуру сточных вод. который определяем по формуле

 (4.35)

= 1+ 0,002 (21-20) = 1,002

где Tw - среднемесячная температура воды за летний период, 21°С;- коэффициент качества воды, принимаемый для городских сточных вод 0,85;- растворимость кислорода воздуха в воде, мг/л, определяем по формуле

= (1+4,4/20,6)·8,8=11,2 мг/л

где CT - растворимость кислорода в воде в зависимости от температуры и атмосферного давления, равная 8,8 при температуре 210С;

ha - глубина погружения аэратора, 4,4м;- средняя концентрация кислорода в аэротенке, 2 мг/л.

Таблица 4

faz/fat

0,05

0,1

0,2

0,3

0,4

0,5

0,75

1

K1

1,34

1,47

1,68

1,89

1,94

2

2,13

2,3

Ja max, м3/(м2×ч)

5

10

20

30

40

50

75

100


Таблица 5

ha, м

0,5

0,6

0,7

0,8

0,9

1

3

4

5

6

K2

0,4

0,46

0,6

0,8

0,9

1

2,08

2,52

2,92

3,3

Ja,min, м3/(м2×ч)

48

42

38

32

28

24

4

3,5

3

2,5

= (1,1(238-15)) / (1,68·2,7·1,002·0,85(11,2 - 2) =6,9м3/м3

Интенсивность аэрации Ja, м3/(м2×ч), надлежит определять по формуле

=qair*Hat/tas (4.36)

где Hat - рабочая глубина аэротенка, 4 м;s - период аэрации, 4,5 ч.а = 6,9 · 4 / 4,5 = 6,1м3/м2 ·ч

Jmin >Ja >Jmax,так как условие выполняется, то расчет окончен.

Подбираем воздуходувки. Для этого по формуле находим общий расход воздуха:

песквозд=J ·Sпеск=6 · 3,8=23,18м3/ ч

 - интенсивность аэрации в песколовке;песк - площадь песколовки.

аэрвозд=Jat · Qмакс.ч=6,1 · 1393,02=8497,4м3/ ч

at- интенсивность аэрации аэротенка.

пр.камвозд= Jпр.кам · V=0,5 · 91,58/24=75,53м3/ ч

пр.кам- интенсивность аэрации промывной камеры;

V- объем воды и осадка.о=(23,8+8497,4+75,53) · 0,1+ 23,18+8497,4+75,53=9455,783м3/ ч

воздуходувка

объем засасываемого воздуха

размеры здания в плане

ТВ-175-1,6

1000,00

10х10


4.3 Расчет вторичного отстойника


Рис. 6 - Вторичный радиальный отстойник.

Согласно, СНиП 2.04.03-85, п. 6.161. Вторичные отстойники всех типов после аэротенков надлежит рассчитывать по гидравлической нагрузке qssa, м3/(м2×ч), с учетом концентрации активного ила в аэротенке ai, г/л, его индекса Ji, см3/г, и концентрации ила в осветленной воде at, мг/л. Нагрузка на зеркало отстойника:

 м3/(м2×ч) (4.37)

где Kss -    коэффициент использования объема зоны отстаивания, принимаемый для радиальных отстойников - 0,4;- следует принимать не менее 10 мг/л,; ai - не более 15 г/л.= (4,5·0,4·3,650,8) / (0,1·79,6·2,3)0,5-0,0015 = 1,78 м3/(м2×ч).

Площадь секций:

= qmax/ qss · n, м2

= 1393,02/3 · 1,78 = 260,86м2.

где n - количество отстойников, шт.

Диаметр одной секции:

= (4·F/3,14) 1/2, м

= (4·260,86·1,2/3·3,14)1/2 =11,5 м.

Так как радиальный отстойник имеет минимальный диаметр 18 м, к установке примем вертикальные отстойники.

Площадь секций:

F = 1393,02/4 · 1,78 = 261м2.

где n - количество отстойников, шт.

Диаметр одной секции:= (4·F/3,14·4) 1/2, м

D = (4·261·1,2/3·3,14)1/2 =9,11 м

Принимаем 4 вертикальных отстойника диаметром 9 м.

.3 Расчет скорого фильтра

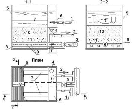
Фильтр представляет собой резервуар, в нижней части расположено дренажное устройство для отвода профильтрованной воды. На дренаж укладывается слой фильтрующего материала. В обычных фильтрах вода подается сверху и отводится снизу - через дренажное устройство.(рис 7)

Рис. 7. Скорый фильтр с боковым карманом и трубчатым дренажом: 1 - подача воды на очистку; 2 - отвод фильтрованной воды; 3 - подача воды на промывку; 4 - сброс промывной воды; 5 - корпус фильтра; 6 - боковой карман; 7 - желоба; 8 - коллектор дренажа; 9 - трубы дренажа (ответвления); 10 - фильтрующая загрузка; 11 - поддерживающие слои.

Устанавливаем скорые фильтры с двухслойной загрузкой, имеющие следующие параметры:

слой: кварцевый песок. Диаметр зерен dmin= 0,5 мм, dmax=1,2 мм, dэкв= 0,7-0,8 мм, коэффициент неоднородности загрузки: К=1,8-2; высота слоя hсл= 0,75 м.

слой: дробленные керамзиты. Диаметры равны: dmin= 0,8 мм, dmax=1,8 мм, dэкв= 0,9-1,1 мм, коэффициент неоднородности загрузки: К=1,6-1,3; высота слоя hсл= 0,45м.

Общая площадь скорых фильтров определяется по формуле:

ф= Qп/(Tст∙Vн-nпр∙qпр-nпр∙τпр∙Vн), (4.38)

где Qп - полезная производительность станции, м3/сут;

Tст - продолжительность работы станции в течении суток, ч;

Vн - расчетная скорость фильтрования при нормальном режиме эксплуатации, Vн= 9 м/ч;

nпр - число промывок одного фильтра в сутки при нормальном режиме эксплуатации, nпр=2-3;

qпр- удельный расход воды на одну промывку одного фильтра,

пр= 0,06∙ω∙tn, (4.39)

где ω и tn - соответственно интенсивность и время промывки;

τпр - время простоя фильтров, в связи с промывкой, равно 0,33ч.

qпр= 0,06∙15∙6,5= 5,85 м3/м2,

Fф= 21300/(24∙9-2∙5,85-2∙0,33∙9)= 107,3 м2,

Количество фильтров на станции определяем по формуле:

ф= √ Fф/2, шт. (4.40)

ф= √ 107,3/2= 5,1.

Принимаю 5 фильтров.

Площадь одного фильтра:

1ф= Fф/ Nф (4.41)

1ф=107,3/5= 21,46 м2.

Находим длину и ширину:ф= x∙1,5x; 21,46=х∙1,5х;

,3=х2; х=3,8; l= 3,8 м; в=5,64 м;

Дренаж принимаем без поддерживающих гравийных слоев, так называемый щелевой дренаж.

Расчет дрен

Расстояние между дренами Ш= 250-300мм.

Число дренажных труб: nдр= в/0,3=5,64/0,3=19 шт.

Расход воды на одно ответвление:

1д= Qпр/nдр= 472,7/13= 36,3 л/с, (4.42)

где Qпр=м3/с → 472,7 л/с; (4.43)

При q1др= 36,3 л/с, V= 2,63 м/с. По таблицам Шевелева подбираем диаметр: dотв= 150 мм.

Принимаем расстояния между осями желобов для сбора и отвода промывной воды равным 2,2м. Количество желобов при этом:

nж= в/2,2= 5,6/2,2= 2,54 - принимаем конструктивно 3 желоба, по обеим сторонам фильтра и в центре.

Расход воды через 1 желоб при промывке:

жел=ω∙fф/1000∙nж (4.44)

жел=15∙31,51/1000∙3= 0,16 м/с.

Ширина желоба определяется по формуле:

Вжел= Кжел∙5√q2жел/(1,57+ажел)3, (4.45)

где Кжел - коэффициент для желобов с полукруглым лотком, равный 2;

ажел - отношение высоты прямоугольной части желоба к половине его ширины, принимаемое от 1 до 1,5.

Вжел= 2∙5√0,0256/(1,57+1,3)3 = 0,255 м.

Расстояние от поверхности фильтрующей загрузки до кромки желобов определяем по формуле:

Нж= Нз∙аз/100+0,3, (4.46)

где Нз- высота фильтрующего слоя, м;

Нз=0,75+0,45=1,2 м;

аз - относительное расширение фильтрующей загрузки, принимаемая 50%.

Нж = (1,2∙50)/100+0,3=0,9 м.

Нф= Нз+ Нв+ Нстр+ Ндоп =1,2+2+0,5+0,39 =4,09 м - высота фильтра

Ндоп- дополнительная высота, определяется по формуле, с учетом требований:

Ндоп= W0 / =36,6/107,3=0,34 м, (4.47)

0 - оббьем воды накопивщийся за время простоя одновременно промываемых фильтров , м3

- суммарная площадь фильтров, м2

=5·21,46=220,57 м2

Промывной расход равен:

н=ω·fф=15·31,51=472,65 л/с (4.48)

Необходимый напор равен:

Н= 19-22 м.

Для промывки принимаем насосы типа Д 3200-33 (1 рабочий и 1 резервный).

5. Сооружения по обработке осадка


Осадок, образующийся в процессе очистки сточных вод (сырой, избыточный активный ил и др.), должен подвергаться обработке, обеспечивающей возможность его утилизации или складирования. При этом необходимо учитывать народнохозяйственную эффективность утилизации осадка и газа метана, организацию складирования неутилизируемых осадков и очистку сточных вод, образующихся при обработке осадка.

Выбор методов стабилизации, обезвоживания и обезвреживания осадка должен определяться местными условиями (климатическими, гидрогеологическими, градостроительными, агротехническими и пр.), его физико-химическими и теплофизическими характеристиками, способностью к водоотдаче.

5.1 Расчет радиального илоуплотнителя


Радиальный илоуплотнитель. Полезная площадь поперечного сечения радиального илоуплотнителя, м2

 <#"818046.files/image028.gif"> <#"818046.files/image029.gif"> <#"818046.files/image030.gif"> <#"818046.files/image031.gif"> <#"818046.files/image032.gif"> <#"818046.files/image033.gif"> <#"818046.files/image034.gif"> <#"818046.files/image035.gif"> <#"818046.files/image036.jpg">

Рис. Метантенк с плавающим перекрытием

1 - железобетонный резервуар; 2 - ограничитель; 3 - металлическая решетчатая ферма; 4 - теплоизоляция перекрытия; 11- газовый колпак; 12 - «фартук» перекрытия; 13 - газосборная труба; 14 - газопровод; 15 - трубопровод сброженного осадка; 16 - трубопровод для подачи свежего осадка; 17 - трубопровод для отвода иловой воды; 18 - паропровод; 19 - трубопровод для термометра сопротивления; 20 - трубопровод для перемешивания осадка.

Метантенки следует применять для анаэробного сбраживания осадков городских сточных вод с целью стабилизации и получения метансодержащего газа брожения, при этом необходимо учитывать состав осадка, наличие веществ, тормозящих процесс сбраживания и влияющих на выход газа. Для сбраживания осадков в метантенках допускается принимать мезофильный (Т = 33 °С) либо термофильный (Т = 55 °С) режим.

 

Количество осадка по беззольному веществу:


Где: S=30% - зольность осадка; Вг=5%гигроскоическая влажность осадка


Влажность смеси:


При термофильном режиме и влажности загружаемого осадка 96,84% Д=18,6%.

Объем метантенка определяем по формуле: