Материал: Инвестиционный проект творожного цеха производственной мощностью 85 т/год

Внимание! Если размещение файла нарушает Ваши авторские права, то обязательно сообщите нам

Инвестиционный проект творожного цеха производственной мощностью 85 т/год

Министерство образования и науки Удмуртской Республики

бюджетное образовательное учреждение Удмуртской Республики

Сарапульский техникум пищевой промышленности










ПОЯСНИТЕЛЬНАЯ ЗАПИСКА

к дипломному проекту

на тему: Инвестиционный проект творожного цеха производственной мощностью 85 т/год.

Специальность Монтаж и техническая эксплуатация промышленного оборудования

Автор проекта Волосков Евгений Михайлович

Руководитель проекта В.В. Громова

Консультанты по разделам:

экономическая часть Л.Н. Липатова

строительная часть Л.В. Смищук

К рецензированию допущен В.В. Громова

Сарапул 2012

СОДЕРЖАНИЕ

Аннотация

Введение

. Технологическая часть

.1 Технологическая схема производства творога

.2 Обоснование выбора схемы

.3 Краткий расчет продуктов

. Специальная часть

.1 Подбор механизированной линии

.2 Расчет и подбор резервуаров

.3 Подбор сепаратора - очистителя

.4 Подбор гомогенизатора

.5 Подбор автомата для фасовки творога

.6 Подбор средств механизации

.7 Расчет пластинчатой пастеризационно - охладительной установки

.7.1 Определение тепловых потоков

.7.2 Определение температурных напоров и истинных температур сред

.7.3 Определение скорости потоков жидкостей

.7.4 Расчет коэффициентов теплоотдачи

.7.5 Расчет коэффициентов теплопередачи

.7.6 Расчет поверхностей теплопередачи

.7.7 Расчет количества пластин и пакетов

.7.8 Гидравлический расчет

.7.9 Подбор насосов

.7.10 Расход условного топлива

.7.11 Определение размеров цеха

. Санитарно-техническая часть

.1 Расчет освещения

.2 Расчет системы водяного отопления

.3 Расчет вентиляции

. Организационная часть

.1 Монтаж оборудования

.2 Эксплуатация оборудования

.3 Техническое обслуживание

.4 Ремонт оборудования

. Охрана труда

.1 Организация службы охраны труда

.2 Техника безопасности при выполнении монтажных, ремонтных работ

.3 Противопожарные мероприятия и план эвакуации

. Автоматизация - описание схемы автоматизации

. Строительная часть - общая характеристика конструкции здания

. Экономическая часть

.1 Расчет капитальных затрат на проект

.2 Расчет текущих затрат

.3 Расчет экономической эффективности проекта

Заключение

Список информационных источников

Аннотация

В основу производственного процесса положена безотходная технология с применением современного отечественного оборудования.

Производство творога базируется на биохимическом способе сквашивания молока закваской и интенсификации процесса синерезисом сгустка под воздействием теплового фактора.

Контроль, регистрация и автоматическое регулирование технологических параметров процесса (расхода, уровня, рН, температуры) предусматривается системой управления и контроля.

Проеком предусмотрено внедрение механизированной линии Я9-ОПТ-2,5.

В PПЗ на основании краткого расчета продуктов по часовой производительности проведен подбор оборудования участка подготовки нормализованной смеси и участка расфасовки и упаковки.

Дополнительно проведен теплотехнический и гидравлический расчет пластинчатого теплообменника, в соответствии с которым подобрана

пластинчатая установка.

В организационном разделе рассмотрели вопросы, связанные с эксплуатацией оборудования.

Проект состоит из 71 страницы и включает в себя 20 таблиц и 4 рисунка.

Введение

Объем рынка творога и творожных сырков в России стабильно рос с 2006 по 2010 гг. Рост рынка не остановило даже резкое повышение цен на творог в 2007-2008 гг, которое было вызвано подорожанием молока. В 2010 г объем продаж творога и творожных сырков в России составил 581,5 тыс т. Большую часть продаваемой продукции составил творог - 425 тыс т.

В целом доли творога и творожных сырков на рынке стабильны, но их доля постепенно увеличиваетс . Если в 2006 г доля сырков составляла 25% рынка, то к 2015 г доля увеличится до 28,8%.

В 2011 г рынок снова покажет положительную динамику. Творожные продукты относительно дешевы и их ассортимент постоянно увеличивается. Новый ассортимент позволил творогу и творожным сыркам позиционироваться в нише десертов и отобрать определенный объем продаж у йогуртов и молочных десертов.

В настоящее время идет третий период развития производства творога он характеризуется дальнейшим совершенствованием техники и технологии производства творога. Были разработаны различные технологические схемы процессов производства творога непрерывным способом в том числе с коагуляцией белков молока в потоке. Совершенствовалось технологическое оборудование для самопрессования и прессования творога, сепараторы для обезвоживания творога. Разработаны схемы и устройства для автоматизации процессов производства творога. В значительной степени, расширился ассортимент творожных изделий с вкусовыми и ароматическими добавками, покрытиями глазурью. Совершенствовалось оборудование для мелкой фасовки творога, смесители, охладители, оборудование для его замораживания, хранения и транспортировки. Было разработано и организовано производство творога и творожных изделий нетрадиционных видов: творог из пахты и сыворотки например альбуминный творог «Надуги», из сухих молока и сливок, зернистый творог со сливками, творог диетический, сухой творог, другие разновидности творога.

Ожидаемые перспективы. Опыт прошлого и современное производство молочных продуктов позволяет утверждать, что человечество и в дальнейшем будет непрерывно совершенствовать технологию и технику производства молочных продуктов, видоизменять и расширять их ассортимент. Все это относится и к производству творога и творожных изделий.

К причинам, способствующим этому процессу можно отнести следующее. Рост численности населения. Развитие человечества идет по пути урбанизации, города будут укрупняться. Не во всех регионах целесообразно организовывать производство молока для местного снабжения. необходимость снабжения молочными продуктами экспедиций, спецконтингента. Все это будет менять характер работы предприятий по переработке молока. Возрастет число крупных мелкоперабатывающих заводов. Сырьем для них будет не только натуральное молоко, но и молоко, молочные компоненты в сгушеном и сухом виде, а также пищевые компоненты немолочного происхождения для производства молочных комбинированных продуктов. Все шире будут использоваться процессы фракционирования молока с применением мембранной техники (обратный осмос, ультрафильтрация, электродиализ, ионный обмен), а также применение биополимеров для фракционирования и концентрирования молока. В перспективе будут создаваться аппараты непрерывного действия различной производительности, управляемые специалистами - технологами через компьютерные системы. Учитывая все выше перечисленные факты предусматривается создание автоматизированной линии производства творога.

. Технологическая часть

.1 Технологическая схема производства творога

- Приемка, сепарирование и нормализация молока

Сырье, проступающее для производства творога, принимают по количеству и качеству лабораторией предприятия.

Цельное молоко сепарируют и нормализуют с учетом фактического содержания жира и белка в перерабатываемом молоке

- Гомогенизация и тепловая обработка смеси

Нормализованное по жиру молоко из емкости (поз.1) подается насосом (поз.2) в пластинчатый теплообменник (поз. 3) в секцию регенерации для подогрева до температуры 55 - 60С, откуда пройдя сепаратор - молокоочиститель (поз.4) направляется в гомогенизатор (поз.5) для придания однородности состава.

Из гомогенизатора нормализованное или обезжиренное молоко возвращается в теплообменник (поз.3), где подвергается пастеризации при температуре 78Сс выдержкой при этой температуре в течение 20 - 30 секунд и последующего охлаждения до температуры заквашивания: 24 - 28С - летом; 26 - 30С - зимой.

Если молоко непосредственно после пастеризации не поступает на переработку, его охлаждают 5С и хранят не более 5 часов.

- Заквашивание или сквашивание обезжиренного молока или смеси

Пастеризованное молоко из пластинчатого теплообменника поступают в емкость (поз.6), в которую задается закваска в количестве, зависящем от сезона года, продолжительности сквашивания, ее активности и массы молока.

Закваска готовится согласно технологической инструкции и дозируется в емкость (поз.6) по трубопроводу.

Окончанием сквашивания является образование сгустка.

Продолжительность сквашивания не более 10 часов.

Для обеспечения получения сгустка с требуемыми показателями во всех используемых емкостях заквашивают последовательно через каждые 2 часа, использую 5 емкостей (поз.6)

Готовый сгусток перемешиваются в емкости (поз.6) мешалкой рамного типа в течение 3 минут. В процессе переработки сгусток периодически через каждые 0,5 часа перемешивается в течение 2 - 5 минут (система автоматики).

- Тепловая обработка сгустка

Винтовым насосом (поз. 7) сгусток подается в теплообменный аппарат ТОС (поз.8), где нагревается в секции нагрева (42 - 52С в зависимости то вида вырабатываемого творога) в течение 4 -7 мин водой С, циркулирует в рубашке ТОС.

Из секции подогрева сгусток поступает в секцию выдерживания, где находится в течении 1,5 - 2,5 минут и далее направляется в секцию предварительного охлаждения, в которой охлаждается до 30 - 40С ледяной водой, циркулирующей в рубашке.

- Обезвоживание сгустка

Из секции охлаждения теплообменного аппарата (поз.8) сгусток поступает в обезвоживатель (поз.9) барабанного типа.

Массовую долю влаги в твороге регулируют путем изменения угла наклона барабана обезвоживателя и температуры подогрева или охлаждения сгустка.

- Охлаждение творога

Обезвоженный творог поступает в охладитель (поз. 10), в котором охлаждается рассолом, поступающим в рубашку цилиндра и барабанов охладителя до конечной температуры 8 - 12Сс последующим доохлаждением в холодильных камерах после расфасовки.

- Расфасовка готового продукта

Охлажденный творог анализируют на соответствие требованиям действующего стандарта по массовой доле влаги и жира, и направляют на фасовочный автомат (поз. 12) с помощью подъемника (поз. 11)

.2 Обоснование выбора схемы

Установка линии производства творога Я9 - ОПТ обеспечивает:

практически полную механизацию и автоматизацию основной части процесса;

поточность процесса на стадиях обработки сгустка и получения творога;

закрытое ведение процесса и улучшение санитарно - технических условий производства;

безразборную циркуляционную мойку оборудования;

для обслуживания работы линии требуется не более 2 операторов.

.3 Краткий расчет продуктов

Принимается режим работы завода:

количество смен в сутки 2

количество рабочих сток в году 300

Распределение сырья между цехами:

в цельномолочный цех 42%

в диетический цех 25%

в сметанный цех 18,5%

в творожный цех 14,5%

Масса молока, поступающего в творожный цех составляет:

 т/смену,

за сутки  т/сутки

Масса сливок от сепарируемой части цельного молока

где масса молока, поступающего в цех.

1,9 - весовая часть сливок

33,5 - весовая часть молока

Масса молока, которое необходимо для сепарирования, чтобы получить 0,69 т сливок

где 33,55 - весовая часть молока на сепарирование

3,95 - весовая часть сливок

Масса обезжиренного молока

об.м=mм -mсл=5,937 - 0,699= 5,238 т/смену

Масса молока, оставшегося в цельном виде

м ц=mм см -mм=12,325- 5,937= 6,388 т/смену

Масса нормализованной смеси

н.см=mм ц +mоб.м=6,388+5,238=11,626 т/смену

Масса заквашиваемой смеси равна mн.см, mз.с=11,626 т/смену

Масса закваски


где 5 - доза закваски, %.

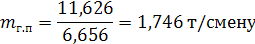
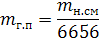
Масса готового полуфабриката


где 6656 - норма расхода полуфабриката привыработка 9% творога, кг/т

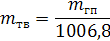
Масса готового продукта - творога 9%


где 1006,8 - норма расхода продукта при выработке творога, кг/т

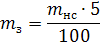
Масса сыворотки



Таблица - 1 Сводная таблица расчета продуктов.

Наименование

Обозначение

на смену

на сутки

на год




т

т

т

1

Масса молока, поступающая в творожный цех

mм см

12,325

24,65

7395

2

Масса сливок

mсл

0,699

1,398

419,4

3

Масса молока для получения сливок

5,937

11,874

3562,2

4

Масса обезжиренного молока

mоб.м

5,238

10,476

3142,8

5

Масса нормализованной смеси,

mн.см

11,626

23,252

6975,6

6

Масса готового полуфабриката

mг.п

1,746

3,492

1047,6

7

Масса творога

mтв

3,468

1040,4

8

Масса сыворотки

mсыв

9,3

18,6

5580



. Специальная часть

.1 Подбор механизированной линии

Часовая производительность определяется исходя из сменного расхода сырья:


где с - плотность нормализованной смеси, кг/л;

НТИ - нормативное время работы норматинодействующего оборудования, ч.

Проектом предусматривается установка одной линии Я9 - ОПТ - 2,5 производительностью 2500 л/ч.

Технические характеристики линии и оборудования, входящего в линию, представлены в таблице 2.2и 2.3

Таблица 2- Техническая характеристика линии Я9 - ОПТ - 2,5

Показатели

Единицы измерения

Величина

Производительность по перерабатываемому молоку

л/ч

2500

Потребляемая мощность

кВт

<13

Расход:  пара  холода

 кг/ч кДж/ч

 165 130000

Занимаемая площадь

мм

13200Ч10200Ч3400

Масса

кг

13300


Производитель: Долматовский завод «Молмашстрой»

В состав линии входят:

емкость Я1 - ОСВ - 5;

одновинтовой насосный агрегат П8 - ОНБ;

аппарат тепловой обработки сгустка ТОС;

обезвоживатель сгустка;

охладитель творога 209 ОТД - 1;

бойлерная установка;

площадка для обезвоживателя;

насос центробежный 36 - Щ - 2,8 - 3,1 - для передачи сыворотки из поддонов обезвоживателя творожного сгустка на дальнейшую обработку;

насос центробежный 50 - 3Ц - 7,1 - 20 - для откачки моющий растворов;

система трубопроводов, включая молочную арматуру и молочные клапана.

Все оборудование, входящее в состав линии Я9 - ОПТ, устанавливается без фундамента.

Продолжительность работы линии в смену:



Таблица 3 - Технические характеристики оборудования линии Я9-ОПТ-2,5

 №

Наименование оборудования

Производительность

Рабочий объем

поверхность

Габаритные размеры

Мощность эл/двигателя

Масса




мі

мІ

мм

кВт

Кг

1

Емкость Я1-ОСВ-5

-

6,3

-

2500Ч2135Ч3912

0,75

1500

2

Одновинтовой насосный агрегат П8-ОНБ

2,25мі/ч

-

-

1125Ч500Ч560

1,5

105

3

Аппарат тепловой обработки сгустка ТОС

-

-

нагрева 9,56 охлаждения 3,58

5000Ч1050Ч2700

-

1105 1850(запол)

4

Обезвоживатель сгустка

-

-

-

2900Ч1080Ч2100

1,1

265

5

Охладитель творога 209 ОТД-1(до 6±2єС)

850 кг/по творогу


3,7

2060Ч970Ч2000

4

704

6

Бойлерная установка (нагрев воды до 60-95єС)

-

0,03

-

1180Ч1040Ч600

5,5

120

7

Площадка для обезвоживателя




3750Ч2690Ч2600

-

440


.2 Расчет и подбор резервуаров

Объем резервуара для нормализованного молока поступающего в творожный цех:


где ???? - коэффициент заполнения.

Принимаются 2 резервуара РМГЦ - 6 горизонтального исполнения с теплоизоляцией из пенопласта

Объем резервуара для сыворотки

Принимается 1 резервуар РМГЦ - 10

Таблица 4 - Технические характеристики резервуаров

Показатели

РМГЦ - 6

РМГЦ - 10

Емкость, м3  геометрическая  рабочая Мощность электродвигателя привода мешалки, кВт Габариты, мм  длина  ширина  высота Масса, кг

 6,42 6,00  0,27  3200 1895 2180 880

 10,73 10  0,27  4600 1950 2400 2240



.3 Подбор сепаратора - очистителя

Сепаратор подбирается по расчетной часовой производительности линии

Таблица 5-Техническая характеристика сепаратора ОМА - 3М.

Показатели

Единица измерения

Величина

Производительность

л/ч

5000

Количество тарелок

-

27

кВт

4

Габариты длина   ширина   высота

мм

900 680 1280


Для устранения простоев во время возможных неисправностей предусматривается установка двух сепараторов ОМА - 3М.

.4 Подбор гомогенизатора

При расчетной часовой производительности линии, проектом предусматривается установка гомогенизатора ОГБ - 5М, представляющего собой трехплунженрный насос высокого давления с одноступенчатой гомогенизирующей головкой.

Таблица 6 - Техническая характеристика гомогенизатора ОГБ - 5М

Показатели

Единицы измерения

Величина

Производительность Давление рабочее Плунжеры  диаметр  max. ход Скорость вращения коленчатого вала Мощность электродвигателя Габариты

л/ч кг/см2  мм мм  об/мин кВт мм

5000 125  45 80  250 30 1280Ч1000Ч1350


Исходя из реальной нагрузки на гомогенизатор определяется необходимый ход поршня:


где Пл - производительность линии, м3/ч;

d - диаметр плунжера, м;

n - число оборотов вала, об/мин;

z - количество плунжеров;

???? - объемный К.П.Д. насоса.

При регулировке производительности гомогенизатора устанавливается ход плунжера 31 мм.

.5 Подбор автомата для фасовки творога

В соответствии с таблицей 1выработка творога составляет 1734 кг/смену. Предусматривается мелкая расфасовка в пергаментные пакеты по 100 грамм.

Количество пакетов в минуту:




Таблица 7 - Техническая характеристика расфасовочно - упаковочного автомата ОЗК:

Показатели

Единица измерения

Величина

Производительность

пакетов/мин

48-50

Мощность электродвигателя

кВт

1,5

габариты длина   ширина   высота

мм мм мм

2335 1690 1920


.6 Подбор средств механизации

Для подачи творога на расфасовку и упаковку в автомат ОЗК устанавливается подъемник с тележкой.

Таблица 8 - Техническая характеристика подъемника

Показатели

Единица измерения

Величина

Вместимость тележки

кг

120

Высота подъема тележки

мм

1810

Мощность электродвигателя

кВт

0.6

габариты длина   ширина   высота

мм мм мм

2105 1140 3050


.7 Расчет пластинчатой пастеризационно - охладительной установки

.7.1 Определение тепловых потоков

Тепловой поток через пластины определяется по формуле[2 ,с.109]



где V - производительность теплообменника по нормализованной смеси, м3/ч;

с - плотность нормализованной смеси, кг/м3;

с - удельная теплоемкость нормализованной смеси, кДж/кг⋅К.

Секция регенерации:

кДж/ч

Секция пастеризации:

кДж/ч

Секция охлаждения:

кДж/ч

Конечная температура холодной воды


где G - расход воды на охлаждение; принимается двукратным по объему нормализованной смеси, кг/ч.


.7.2 Определение температурных напоров и истинных температур сред

Секция регенерации

65 37,5℃

 78 58,5℃

т.к.> 2,

∆t19,99℃

Секция пастеризации

80 81,5℃

 65 71,5℃

∆t9,11℃

Секция охлаждения

39 26 32,5℃

,29  0 13,145℃

∆t19,27℃

.7.3 Определение скорости потоков жидкостей

На основании практических данных принимается скорость движения нормализованного молока между пластинамихм = 0,6м/с с последующим уточнением. При производительности пластинчатых теплообменников до 5мі/ч рекомендуются пластины П1.

Для пластин типа П1:

поверхность теплопередачи 0,146мІ

ширина потока b=0,18

расстояние между пластинами h= 0,0028м

толщина пластин б = 0,0012м

Число параллельных каналов в одном пакете по формуле [2, с.111]



Число параллельных каналов в одном пакете принимается 2.

Реальная скорость молока

Скорость воды для удобства компоновки секций принимается такой же, как скорость молока. При двукратном расходе воды число пакетов для нее будет вдвое больше.

.7.4 Расчет коэффициентов теплоотдачи

Критерий Прандтля


где - динамическая вязкость, Па·с;

- удельная теплоемкость, Дж/кг·К;

- коэффициент теплопроводности, Вт/м·К

Вязкость молока, отличная от температуры 20℃ определяется по формуле [2, с. 16]


Для воды критерий Прандтля определяется по таблице III [1, с.140]

Критерий Рейнольдса

 [ , с.114]

Так как в каналах между пластинами турбулентный режим движения наступает при Re=160….200, то критерий Нуссельта рассчитывается по формуле [1, с.115]


где - множитель, учитывающий направление потока; принимается при нагревании 1,05; при охлаждении 0,95.

Коэффициент теплоотдачи определяется по формуле: [2, с.115]


Секция регенерации

со стороны нормализованной смеси

со стороны пастеризованного молока

Секция пастеризации

со стороны горячей воды

со стороны нормализованного молока

Секция охлаждения

со стороны нормализованного молока

со стороны воды


.7.5 Расчет коэффициентов теплопередачи по формуле

,Вт/м2∙К

где д - толщина пластины, м;

л - коэффициент теплопередачи стали, Вт/м·К

Секция регенерации

2431,85 Вт/м2

Секция пастеризации

2962,55 Вт/м2

Секция охлаждения

2360,15 Вт/м2

.7.6 Расчет поверхностей теплопередачи


Секция регенерации

Секция пастеризации

Секция охлаждения


.7.7 Расчет количества пластин и пакетов

Секция регенерации

Общее количество пластин

Число пакетов

Действительное число пластин

Тогда площадь поверхности теплопередачи секций регенерации

При двукратном расходе теплоносителя число пакетов для пастеризованного молока будет в двое больше, чем для нормализованной смеси, то есть =2,5

Принимается 3 пакета.

Секция пастеризации

Общее число пластин

Число пакетов для молока

Площадь поверхности теплопередачи секции пастеризации

Число пакетов для горячей воды

Секция охлаждения

Общее число пластин

Число пакетов для молока

Площадь поверхности теплопередачи секции охлаждения

Число пакетов для холодной воды

Суммарная площадь теплопередачи пастеризационно-охладительной установки= 2,9 +  +  =4,504мІ

Схема компоновки пластин

Техническая характеристика пластинчатой установки ООТ-М.

Производительность 3000л/ч

Режим работы

начальная температура норм.молока 10℃

конечная температура норм.молока 26℃

Температура горячей воды 83℃

Температура ледяной воды 0℃

Расход горячей воды 6мі/ч

Расход холодной воды 6мі/ч

Тип пластин П1

Общая поверхность теплообменника 6,5 мІ

Рабочее давление 1,8

Габариты:

длина 1400мм

ширина 70мм

высота 1330мм

.7.8 Гидравлический расчет

Необходимый напор для преодоления гидравлических сопротивлений в каналах одной секции теплообменника определяется по следующему уравнению:

м,вод.ст. [1,с.119]

где i - число пакетов в секции;

z - коэффициент сопротивления пакета;

,


Потерянный напор в секции регенерации

 м. вод.ст.

Потерянный напор в секции пастеризации

 м. вод.ст.

Потерянный напор в секции охлаждения

 м. вод.ст.

Суммарная потеря напора при преодолении гидравлических сопротивлений на всем пути движения нормализованного молока между пластинами трех секций теплообменника

 м.

Потери напора при движении тепло-, хладоносителей будут значительно меньше в следствии более короткого пути движения.

.7.9 Подбор насоса

Напор, создаваемый насосом для подачи нормализованного молока на пластинчатый теплообменник, определяется по формуле:


где Нр - рабочий напор, м вод.ст.

Техническая характеристика насоса 36МЦ6 - 31

подача - 6,3 м3/ч

напор - 31,5 м вод.ст.

мощность электродвигателя - 1,5 кВт

2.3.10 Расход условного топлива

Расход условного топлива для получения горячей воды определяется по формуле


где - расход пара, кг/ч;

- энтальпия пара, кДж/кг;

- удельная теплоемкость питательной воды, кДж/кг·К;

- температура питательной воды, ℃;

С учетом использования обратного конденсата

- продолжительность работы линии в смену;

- количество смен;

- продолжительность работы цеха в течение года, сутки;

29330 - теплотворная способность условного топлива, кДж/кг;

 - коэффициент последнего действия котельной установки;

Расход условного топлива на отопление определяется по формуле


где  - удельная тепловая характеристика здания, Вт/[ Литинский, с. 22];

V - объем помещения, мі;

 - температура в помещении, ℃;

 - средняя температура наружного воздуха за отопительный период;

86400 - число секунд в сутках;

 - продолжительность отопительного периода в сутках.

Общий расход условного топлива


В = 22,7+ 14,7 = 37,4 т/год

Таблица 9 - Расчет потребности электроэнергии для силовых целей

Наименование оборудования

кВт

Время работы, ч

Расход эл/н




в смену

за сутки

кВт·ч/сутки

кВт·ч/год

1

Насос

1,5

4,52

9,04

13,56

4068

2

Емкость РМГЦ-6-2шт

0,27

2

4

2,16

648

3

Емкость РМГЦ-10

0,27

2

4

1,08

324

4

Сепаратор ОМА-3М

4

4,52

9,04

36,16

10848

5

Подъемник с тележкой

0,6

4,52

9,04

5,42

1627

6

Гомогенизатор

30

4,52

9,04

271,2

81360

7

Автомат для расфасовки ОЗК

1,5

4,52

9,04

13,56

4068

8

Емкость Я1- ОСВ-5-5шт

0,75

6

12

45

13500

9

Насосный агрегат П8- ОНБ

1,5

4,52

13,56

4068

10

Обезвоживатель сгустка

1,1

4,52

9,04

9,94

2983

11

Охладитель творога 209 ОТД-1

4

4,52

9,04

36,16

10848

12

Бойлерная установка

5,5

6

12

66

19800

 

513,8

154142


.7.11 Определение размеров цеха

В соответствии с технической характеристикой линии Я9 - ОПТ площадь необходимая для установки и обслуживания оборудования, составляет 135м3.

Так как цех по производству творога включает два участка помимо линии, то площадь цеха увеличивается.

При определении размеров цеха учтены габаритные размеры всего оборудования; расстояние между оборудованием и от стен до оборудования соответствует нормам безопасной эксплуатации.

В соответствии с ниже приведенной планировкой оборудования принимаются: ширина цеха 13200 мм , длина цеха 18000 мм

Рисунок 1 - План размещения оборудования цеха

где 1 - емкость для сырной нормализованной смеси;

- центробежный насос;

- пластинчатая пастеризационно-охладительная установка;

- сепаратор-молокоочиститель;

- гомогенизатор;

- емкость для сквашивания молока;

- одновинтовой насос для подачи сгустка;

- аппарат тепловой обработки сгустка;

- обезвоживатель сгустка;

- охладитель творога;

- подъемник тележек;

- автомат для расфасовки творога;

- насос для откачки моющих растворов;

- бойлерная установка;

- насос для откачки сыворотки.

. Санитарно-техническая часть

.1 Расчет освещения

Принимаем светильник (ЛДЦ30) потолочного типа.

Принимается расчетная высота


 м

Определение общей мощности на освещение


где Py - удельная мощность Вт/м2

Sn - площадь освещаемого помещения

Расчетная мощность одной лампы, Вт

Вт

Действительная мощность осветительных установок


Вт

Действительная удельная мощность Вт/м2

 Вт/м2

Действительная освещенность


что является допустимым.

.2 Расчет системы водяного отопления

Объем помещения

·18·5=1620мі

Теплопотери здания


По таблице 11 [6, с. 67] выбирается нагревательный прибор радиатор М-140. Определяется число секций радиатора М-140 в нагревательном приборе, необходимом для отопления помещения с теплопотерей Ф=22810Вт. Температура воды входящей в нагревательные приборы температура воды выходящей из нагревательного прибора температура воздуха помещения .

По таблице 11 находится k=9,76Вт (мІ·град).

Определяется площадь поверхности нагрева нагревательных приборов по формуле [6, стр. 66(45)]


где Ф-тепломощность приборов, равная количеству тепла, теряемого помещением, Вт;

- средняя температура теплоносителя в приборе, ℃;

- температура окружающего воздуха, ℃;

k- коэффициент теплопередачи прибора.

Число секций в приборе

По таблице 11 ѓ= 0,254 мІ - поверхность нагрева.

Годовой расход тепла на отопление здания определяется исходя из понятия удельной тепловой характеристики.



.3 Расчет вентиляции

Проектом предусматривается приточно - вытяжная вентиляция для обеспечения допустимых величин показателей микроклимата. Воздуховоды изготавливаются из тонколистовой оцинкованной стали по ГОСТ 14918-80 толщиной 0,5-0,7мм. Оборудование и материалы, предусмотренные в проекте имеют пожарные и гигиенические сертификаты РФ.

Производительность вентиляторов определяется по формуле


где V- объем помещения, мі;

- кратность воздухообмена

Производительность вытяжного вентилятора

Производительность приточного вентилятора


Рисунок 2 - Схема приточной вентиляции

- Жалюзи на входе, выходе

- Колено с углом поворота 900

- Диффузор вентилятора

- Дефлектор на выходе

- Шахта для входа воздуха

Рисунок 3 - Схема вытяжной вентиляции

Потери сопротивления движению воздуха в воздуховоде определяется по формуле [5,с. 63] :


где l - длина воздуховода, м;

 - приведенный коэффициент сопротивления трения,

[4, прил. 1];

∑ж - сумма коэффициентов местных сопротивлений

- динамическое давление Па [ 4, прилож.1, с. 176];

Воздух на пути встречает следующие местные сопротивления [5, с. 69]:

решетка

поворот на 90°

дефлектор

диффузор вентилятора

шахты

Потери давления в вытяжном воздуховоде составляют

Рвыт= [ 44·0,045+ (0,5·8+1,13·4+0,64+0,15)]101= 1140,29Па

Потери давления в приточном воздуховоде составляют

Рприт= [ 44·0,06+ (0,5·8+1,13·4+0,5+0,15)] 118= 1393,58Па

По графическим характеристикам в соответствии с производительностью и потери давления в воздуховоде подбираются вентиляторы:

вытяжной системы Ц4-70 №3,2Nэл.= 1,5 кВт

приточной системы Ц4-70 №3,2 Nэл.= 1,5 кВт

. Организационная часть

.1 Монтаж оборудования

Монтаж линии Я9-ОПТ-2,5 проводится в соответствии с технической документацией на проект привязки линии, разрабатываемый организацией проектировщиков.

Монтаж щитов управления:

щиты управления и контроля установить на полу, на цементном ленточном фундаменте с заливкой наружных поверхностей подщитовых рам по периметру цементом до половины высоты последних;

монтаж щитов проводить в местах, удаленных от зон мойки технологического оборудования, в помещениях с температурой от +10 до +350С и относительной влажности воздуха не более 85%.

силовые токопроводы прокладывать в газовых трубах, внутри очищенных от ржавчины и покрытых изоляционным лаком.

Монтаж насосов:

при установке на фундамент насос вместе с фундаментной плитой помещается на металлические подкладки, а фундаментные болты отпускаются в колодцы фундамента;

выверка положения насоса производится по монтажным осевым линиям, с которых отпускаются отвесы, и насос устанавливается так, чтобы осевая линия вала совпала с осевой сборочной линией;

после установкинасоса в требуемое положение выверяется его горизонтальность уровнем, укладывается на обработанную поверхность фланца нагнетательного патрубка в двух взаимно перпендикулярных направлениях. Вертикальность выравнивается при помощи отвеса или рамного уровня; -- по окончании выверки насоса вокруг его фундаментной плиты на расстояние 80-100 мм от боковых её стенок ставится опалубка и заливается цементный раствор, одновременно заполняя анкерные колодцы;

через 4 - 5 суток, когда залитый раствор приобретет достаточную прочность, подтягиваются все анкерные болты и снова проверяются горизонтальное и вертикальное положение насоса.

Монтаж вентиляторов:

перед установкой вентилятора размечаются осевые линии машины, отверстия для крепежных болтов и положение электродвигателя. Проверяется балансировка рабочего колеса и отсутствие перекоса кожуха вентилятора относительно рабочего колеса.

вентилятор пододвигается к месту и устанавливается по размеченным осевым линиям. Вал вентилятора устанавливается строго горизонтально, при помощи подстановки под станину прокладок из плоской стали. Горизонтальность расположения вала проверяется с помощью уровня.

после выверки, вентилятор крепится к фундаменту. Затяжка болтов проводится равномерно, после чего еще раз проверяется установка вентилятора.

Монтаж сепаратора:

наносятся осевые линии и центры отверстий установки;

устанавливаются крепежные болты;

сепаратор устанавливается на чистом полу и проверяется правильность установки по отвесу и уровню;

Монтаж автомата фасовки:

намечается место установки на проектной отметке с нанесениемосевых линий и центров отверстий;

проверить правильность оставленных отверстий и заготовить болты с гайками и шайбами для крепления автомата;

автомат устанавливается на фундамент и закрепляется болтами, после чего проверяется правильность установки по уровню;

к автомату подключаются все линии и трубопроводы необходимые для подачи и отвода продукции.

.2 Эксплуатация оборудования

Перед пуском линии необходимо выполнить следующие подготовительные операции:

переключатель выбора режимов управления установить в положение «Дист».

тумблеры для управления электродвигателями и клапанами, расположенные на мнемосхеме щитов управления, установить в положение «Откл».

задатчик регулятора температуры горячей воды в бойлере установить на заданное значение.

автоматический выключатель на щите питания установить в положение «Вкл». При этом на щите загорается контрольная лампа.

открыть вентиль подачи сжатого воздуха и, установить давление воздуха на клапаны, приборы контроля и регулирования соответственно 0,6 МПа и 0,14 МПа.

Проверить рН сгустка в резервуарах с помощью погружных датчиков и прибора рН-222.2, предназначенного для измерения кислотности в отдельных пробах. Если рН достигло заданного значения, подготовить оборудование линии к работе.

Для этого:

открыть соответствующие клапаны для подачи воды на вход насоса сгустка.

подать в линию воды и включить насос подачи сгустка в аппарат тепловой обработки сгустка, включить насос откачки сыворотки.

заполнить бойлер и рубашку аппарата тепловой обработки сгустка водой, выпуская при этом воздух с помощью кранов; подать пар в бойлер давление 0,2-0,3 Мпа.

открыть соответствующий клапан подачи воды для смачивания барабана обезвоживателя и для слива воды из поддонов обезвоживателя в трап; правильность включения клапанов проверить по мнемосхеме, по положению сигнальных ламп.

включить привод барабана обезвоживателя и смачивать поверхности барабанов водой из магистрали в течение5-10 мин.

по достижении температуры горячей воды заданного значения на выходе из бойлера осуществить перемешивание сгустка, перекрыть подачу воды на линиюи одновременно открыть подачу сгустка.

при появлении сгустка в обезвоживателе открыть вентиля выхода и входа ледяной воды.

включить охладитель творога в соответствии с отдельной инструкцией по эксплуатации на него.

В процессе работы линии периодически наблюдать по приборам и включению сигнальных ламп за: температурой сгустка и корректировать ее путем изменения температуры горячей воды и количества подаваемой ледяной воды, работой насосов и клапанов, давлением пара, сжатого воздуха.

После окончания процесса:

по линии подачи сгустка следует подать воду из магистрали и вытеснить сгусток из аппарата тепловой обработки в обезвоживатель.

отключить подачу пара в бойлер и открыть вентиль подачи холодной воды в бойлер.

после выхода всего творога из обезвоживателя поднять барабан до верхнего положения и смачивать поверхность барабана водой из магистрали в течение 5-10 мин.

разборку и обработку охладителя творога осуществить в соответствии с Инструкцией по эксплуатации на него.

Подготовить оборудование к циркуляционной мойке:

снять лоток подачи сгустка из аппарата тепловой обработки сгустка в барабан обезвоживателя;

подсоединить аппарат тепловой обработки сгустка к магистрали возврата моющих растворов.

Если в процессе работы опорожнился один из резервуаров можно приступить к его мойке.

После окончания мойки открыть дренажные клапаны слива остатков воды.

.3 Техническое обслуживание

Проверка крепления деталей рабочих органов;

Проверка работы контрольно- измерительных приборов;

Проверка уплотнений;

Устранение мелких дефектов, обнаруженных в течение рабочей смены;

Проверка блокировок, и сигнальных устройства;

Обтирка, промывка, чистка оборудования и содержание в чистоте рабочего места;

Контроль за натяжением и состоянием приводных ремней, тросов, цепей, особенно в местах их соединения и крепления;

Контроль стыковых и сальниковых уплотнений, действия тормозных систем для аварийной остановки машин;

Наблюдение за состоянием подшипников;

Проверка состояния болтовых, шпоночных и клиновых соединений, наличия и исправности защитных устройств;

.4 Ремонт оборудования

Виды ремонтов:

Профилактический осмотр (О):

проверка состояния электроаппаратуры и заземления;

выявление деталей и узлов, которые необходимо заменить при ближайшем ремонте;

проверка наличии смазки в редукторах;

замена изношенных или утерянных крепежных деталей и прокладок;

проверка крепления фланцев и крышек.

Текущий ремонт (Т):

мероприятия профилактического осмотра;

проверка и регулировка оборудования линии;

ремонт ограждений и защитных устройств;

при необходимости: полная разборка приводов, замена подшипников и валов;

замена масла в редукторах.

Средний ремонт (С):

мероприятия текущего ремонта;

покраска оборудования.

Капитальный ремонт (К):

обновление всех изношенных деталей путем полной разборки линии, дефектации всех деталей и узлов;

восстановление покрытий;

испытание оборудования с проверкой основных технических характеристик.испытание ление деталей и узлов.ей путем полной разборки линии, дефектации всех деталей и узлов.ок.

Таблица 10 - Структура ремонтного цила

Наименование оборудования

Структура ремонтного цикла

Продолжительность вмесяцах до ближайшего ремонта

Кол-во ремонтных циклов



Капитальный

Средний

Текущий

Проф. осмотр

Средний

Текущий

Проф. осмотр

Охладитель творога 209 ОТД - 1

К-О-О-Т-О-О-Т-О-О-Т-О-О-С-О-О-Т-О-О-Т-О-О-Т-О-О-К

24

12

3

1

1

6

16

Насос

К-О-О-Т-О-О-С-О-О-Т-О-О-К

12

6

3

1

1

2

8

Сепаратор ОМА - 3М

К-О-О-Т-О-О-С-О-О-Т-О-О-К

12

6

3

1

1

2

8

Гомогенизатор

К-О-О-О-О-О-Т-О-О-О-О-О-С-О-О-О-О-О-Т-О-О-О-О-О-С-О-О-О-О-О-Т-О-О-О-О-О-С-О-О-О-О-О-Т-О-О-О-О-О-К

48

12

6

1

3

4

40

Автомат для расфасовки ОЗК

К-О-О-О-О-О-Т-О-О-О-О-О-Т-О-О-О-О-О-Т-О-О-О-О-О-С-О-О-О-О-О-Т-О-О-О-О-О-Т-О-О-О-О-О-Т-О-О-О-О-О-К

24

12

3

0,5

1

6

40

Насосный агрегат П8-ОНБ

К-О-О-Т-О-О-Т-О-О-Т-О-О-С-О-О-Т-О-О-Т-О-О-Т-О-О-К

24

12

3

1

1

6

16

Обезвоживатель сгустка

 К-О-Т-О-Т-О-Т-О-Т-О-Т-О-С-О-Т-О-Т-О-Т-О-Т-О-К

36

18

3

1,5

1

9

11

Бойлерная установка

К-О-О-Т-О-О-Т-О-О-Т-О-О-С-О-О-Т-О-О-Т-О-О-Т-О-О-К

24

12

3

1

1

6

16

Подъемник с тележкой

К-О-О-О-О-О-Т-О-О-О-О-О-С-О-О-О-О-О-Т-О-О-О-О-О-К

24

12

6

1

1

2

20


Таблица 11 - График ППР на 2012 год.

Оборудование

Вид предыду-щего ремонта

Проведение ремонта по месяцам



Январь

Февраль

Март

Апрель

Май

Июнь

Июль

Август

Сентябрь

Октябрь

Ноябрь

Декабрь

Охладитель творога 209 ОТД - 1


-

О

О

Т

О

О

Т

О

О

Т

О

О

Насос


-

О

О

Т

О

О

С

О

О

Т

О

Сепаратор ОМА - 3М


-

О

О

Т

О

О

С

О

О

Т

О

О

Гомогенизатор


-

О

О

О

О

О

Т

О

О

О

О

О

Автомат для расфасовки ОЗК


-

О

О

О

О

О

Т

О

О

О

О

О

Насосный агрегат П8-ОНБ


-

О

О

Т

О

О

Т

О

О

Т

О

О

Обезвоживатель сгустка


-

О

Т

О

Т

О

Т

О

Т

О

Т

О

Бойлерная установка


-

О

О

Т

О

О

Т

О

О

Т

О

О

Подъемник с тележкой


-

О

О

О

О

О

Т

О

О

О

О

О



. Охрана труда

.1 Организация службы охраны труда

Управление охраной труда на предприятии - это подготовка, принятие и реализация решений по сохранению здоровья и жизни профессионала в процессе его производственной деятельности. Управление охраной труда является частью общей системы управления предприятием. Объектом управления охраной труда является деятельность функциональных служб и структурных подразделений предприятия по обеспечению безопасных и здоровых условий труда на рабочих местах, производственных участках, в цехах и на предприятии в целом.

В работе по созданию безопасных условий труда необходимо руководствоваться следующими общими принципами:

Комплекс мер и средств безопасности должен быть адекватен возможным угрозам и рискам и достаточен с точки зрения действующего законодательства и нормативных правовых актов, регулирующих вопросы обеспечения безопасности личности.

Организационные и технические меры безопасности не должны мешать персоналу выполнять свое производственное задание. В полной мере этот принцип реализовать невозможно, т. к. любые методы и средства обеспечения безопасности вызывают определённые неудобства.

Применяемые методы и средства сами не должны представлять опасности для работающих. Для реализации этого принципа должны быть предусмотрены дополнительные организационные (а по возможности и технические) меры и жёсткий контроль за их выполнением.

Меры безопасности не должны противоречить действующему законодательству.

Стратегическим направлением политики в области охраны труда является обеспечение приоритета жизни и здоровья работников по отношению к результатам производственной деятельности. Для успешной реализации этой стратегии следует руководствоваться следующими принципами организации работы по охране труда на предприятии (в организации):

Обязательность учета проблем безопасности труда при решении всех вопросов производства и на всех уровнях управления. Это значит, что на всех стадиях, начиная от проектирования, строительства и эксплуатации вплоть до выпуска продукции, должны соблюдаться и выполняться правила и нормы охраны труда.

Ответственность каждого из руководителей, от работодателя до мастера, за безопасность труда на предприятии (в организации). Функциональные обязанности по вопросам охраны труда, права и ответственность каждого руководителя (должностного лица) должны быть четко зафиксированы в должностных обязанностях либо иных документах положениях, приказах .

Общая ответственность за состояние условий и охраны труда на предприятии возлагается на работодателя. Руководители производственных подразделений имеют следующие функциональные обязанности по охране труда:

определение перечней профессий и работ, для выполнения которых необходим предварительный и периодический медосмотр;

определение перечня тяжелых работ, на которых запрещается применение труда женщин детородного возраста и лиц в возрасте до 21 года;

ознакомление работника с условиями и охраной труда на рабочем месте, с возможным риском повреждения здоровья, с должностными обязанностями, включающими в себя требования по охране труда, с льготами и компенсациями по условиям труда;

определение перечня профессий и должностей работников, освобождаемых от первичного инструктажа на рабочем месте, перечня работ, к которым предъявляются дополнительные (повышенные) требования безопасности труда;

проведение инструктажей по безопасности труда;

ознакомление руководителей и специалистов с состоянием условий труда на объекте, средств защиты, травматизмом, нормативными актами и должностными обязанностями по охране труда;

разработка и обеспечение работников инструкциями по охране труда и производственными инструкциями;

разработка перечней работ и профессий, по которым должны выдаваться индивидуальные средства защиты, и осуществление контроля за правильностью их применения;

организация первой помощи пострадавшему и доставка его в медучреждение;

сообщение о несчастном случае в установленные адреса;

разработка мероприятий по предупреждению несчастных случаев, улучшению и оздоровлению условий труда, приведению рабочих мест в соответствие с требованиями норм и правил труда;

проведение сертификации рабочих мест;

оснащение производственных помещений, оборудования и рабочих мест средствами коллективной защиты и организация их эффективной эксплуатации;

организация контроля за уровнем вредных и опасных производственных факторов;

обеспечение работающих санитарно-бытовыми помещениями и устройствами исходя из специфики производства.

Функциональные обязанности руководителей служб предприятия:

Отдела кадров:

- организация предварительного медосмотра при поступлении на работу;

- определение контингента, подлежащего периодическим медицинским осмотрам;

- профессиональный отбор работающих отдельных специальностей;

- определение перечня тяжелых работ с вредными или опасными условиями труда;

- ознакомление поступающих на работу с льготами и компенсациями по условиям труда.

Отдела снабжения:

- обеспечение подразделений предприятия средствами защиты, контроля и сигнализации.

Бухгалтерии:

- выплата работнику возмещения вреда, причиненного трудовым увечьем;

- осуществление обязательного страхования работников от временной нетрудоспособности вследствие заболевания, а также от несчастных случаев на производстве и профессиональных заболеваний.

Отдела главного механика:

- обеспечение безопасности эксплуатируемого производственного оборудования;

- обеспечение безопасного состояния эксплуатируемых зданий и сооружений.

Отдела главного энергетика:

- обеспечение безопасности электрических сетей и электроустановок.

Медсанчасти:

организация лечебно-профилактического обслуживания работающих.

Распределение функциональных обязанностей по охране труда среди руководящего состава должно быть подкреплено изданием приказа по предприятию или утверждением соответствующего Положения.

.2 Техника безопасности при выполнении монтажных, ремонтных работ

При производстве монтажа на производителей работ возлагаются:

осуществление требуемых мероприятий по ТБ и производственной санитарии, обеспечение исправного состояния и правильной эксплуатации подмостей, лесов, лестниц, стремянок, ограждений проёмов, проходов и проездов;

надзор за безопасной эксплуатацией монтажных машин, механизмов, приспособлений и инструментов;

инструктаж мастеров и рабочих, а также обучение рабочих безопасным методам работы;

своевременное расследование несчастных случаев, связанных с производством.

При производстве такелажных работ необходимо выполнять следующие основные требования:

рабочую зону следует ограждать флажками;

масса поднимаемого груза с учетом грузозахватных приспособлений и тары не должна превышать максимальную (паспортную) грузоподъемность крана при данном вылете стрелы;

съемные грузозахватные приспособления после их изготовления и ремонта необходимо осматривать и испытывать под нагрузкой, в 1,25 раз превышающей их номинальную грузоподъемность, с выдержкой нагрузки 10 мин.

при отсутствии данных о положении центра тяжести поднимаемого груза необходимо установить центр тяжести, проведя пробное подвешивание;

электролебедки должны иметь исправные тормоза, а домкраты - исправные устройства, исключающие самопроизвольное опускание груза при снятии усилия с рычага или рукояти.

При монтаже и демонтаже технологического оборудования, трубопроводов и металлоконструкций необходимо выполнять следующие основные требования:

монтажные проемы в наружных стенах и перекрытиях до и после использования должны закрываться сплошными настилами или переносными ограждениями;

использование металлических железобетонных конструкций зданий при подъеме и установке оборудования и металлоконструкций разрешается только при условии расчетной проверки и разрешения проектной организации и заказчика;

леса и подмости допускаются к эксплуатации только после их технической приемки производителем работ;

при выполнении работ на высоте более 1,5 м рабочие должны быть снабжены предохранительными поясами;

работать под подвешенным технологическим оборудованием, элементами металлоконструкций и трубопроводов категорически запрещается;

при внутреннем осмотре аппаратов разрешается пользоваться только переносными лампами (во взрывозащитном исполнении) напряжением не выше 12В;

на все время испытаний нахождение людей, не участвующих в испытании, внутри зовы обвалования запрещается;

во время опробования оборудования запрещается производить ремонт, устранять дефекты монтажа и смазывать машину на ходу.

С целью предотвращения пожара при производстве монтажных работ необходимо выполнять правила пожарной безопасности; для организации тушения пожара разрабатывают расписание постов, схему эвакуации людей и табели боевого расчета.

.3 Противопожарные мероприятия и план эвакуации

Противопожарные мероприятия - мероприятия, направленные на профилактику возникновения пожара и непосредственно на спасение людей и имущества при пожаре.

Противопожарные мероприятия призваны обеспечить пожарную безопасность здания, сооружения, помещения.

К профилактическим противопожарным мероприятиям относятся:

Разработка пожарной инструкции, или инструкции о мерах пожарной безопасности.

В соответствии с ППБ 01-03 (п. 6), такая инструкция обязательна «для каждого взрывопожароопасного и пожароопасного участка (мастерской, цеха и т. п.)». Следует разрабатывать и общую для всего объекта (предприятия, организации) инструкцию, в которой будут прописаны такие режимные моменты, как применение открытого огня, проезд транспорта, проведение пожароопасных работ, места для курения и т.д.

Регулярное прохождение всеми сотрудниками организации противопожарного инструктажа, которое отмечается в специальном журнале регистрации инструктажей. Желательно также обучение специалистов, отвечающих за пожарную безопасность, по программе пожарно-технического минимума. Таким образом обеспечивается правильное информирование людей о правилах и нормах пожарной безопасности и, следовательно, снижается риск возникновения пожара «по неосторожности».

Определение классов складских и производственных помещений по пожаро- и взрывоопансости. Это позволяет своевременно принять меры по соответствующему оснащению данных помещений пожарным оборудованиеми системами безопасности. Предусмотренное проектом здание относится к классу

«Г» - помещения с нахождением негорючих веществ и материалов в горячем, раскаленном или расплавленном состоянии, в процессе обработки которых выделяется лучистое тепло, искры и пламя, а также используемых в качестве топлива горючих газов, жидкостей и твердых веществ.

Оснащение помещений наглядной агитацией по пожарной безопасности, планами эвакуации, знаками безопасности.

Отработка плана эвакуации - проводится в помещениях с одновременным нахождением 50 и более человек. В соответствии с планом эвакуации и инструкцией по эвакуации, раз в полгода необходимо проводить тренировку всех сотрудников - эвакуацию из здания. (ППБ 01-03, п. 16).

Проверка и обеспечение работоспособности пожарного оборудования и систем безопасности. Сюда входят регулярные испытания пожарных кранов, пожарных лестниц, проверка гидрантов, зарядка огнетушителей, а также техническое обслуживание пожароохранной сигнализациии других систем пожарной автоматики (пожаротушения, дымоудаления, оповещения о пожаре).

Установка противопожарных дверей и люков.

Огнезащитная обработка.

Для объектов капитального строительства существует специальный раздел проектной документации, который носит название «Мероприятия по обеспечению пожарной безопасности». Данный раздел разрабатывается еще на стадии проектирования.

 - огнетушитель

Рисунок 4 - План эвакуации творожного цеха.

. Автоматизация - описание схемы автоматизации

Система управления производством творога на линии Я9-ОПТ-2,5 выполняет функции:

Контроль, регистрация и регулирование технологических параметров:

- контроль расхода закваски подаваемый в емкости;

- контроль уровня продукта в емкости для сквашивания молока;

- контроль и регистрация рН продукта в емкостях;

- контроль расхода сгустка, подаваемого в аппарат для тепловой обработки;

- сигнализация предельных уровней продукта в емкости, после секции выдерживателя аппарата ТОС, хладагента на входе в охладитель творога , творога на выходе из каждого барабана охладителя;

- контроль, регистрация и регулирование температуры горячей воды;

- контроль и регистрация температуры сгустка после участка нагрева;

- контроль и регулирование уровня скорости в поддоне обезвоживателя.

Световая сигнализация

- включенный электропривод насосов, мешалок и др.

- положений клапанов РЗ- ОПЛ;

- предельных положений барабана обезвоживателя;

- достижение заданного уровня рН в емкостях;

- предельном давлении пара, поступающего в бойлер.

Светозвуковая сигнализация

- предельных значений уровней продукта в емкостях для сквашивания молока;

- отклонений температуры нагрева сгустка от заданного значения.

Управление

- дистанционное управление оборудованием, насосами, клапанами с помощью тумблеров, установленных на мнемосхеме щита управления;

- автоматическое управление предусматривает предусматривает групповое включение необходимое для данного процесса оборудования, насосов, клапанов.

. Строительная часть - общая характеристика конструкции здания

Прежде чем приступить к выполнению строительно-технической части дипломного проекта, было необходимо произвести расчет и подбор оборудования и скомплектовать технологическую линию в плане и разрезе, в масштабе соответствующем масштабу чертежа проекта.

Исходя из этого, определена площадь и высота здания. Затем по расчетам были определены площади подсобных, складских, административных и производственных помещений, что дало возможность комплектовать план здания, взаимное расположение помещений, диктуемое технологическим процессом и установить длину и ширину здания.

Длина здания 18 м

Ширина здания 18 м

Площадь здания 324 м2

Все помещения размещены в одноэтажном здании. Общая высота помещения установлена исходя из размера наиболее высокого оборудования.

Высота здания 5 м

Объем здания 1620 м3

На разбивочных осях расположены основные несущие конструкции здания. Стены здания спроектированы из кирпича толщиной 510 мм. Под несущие кирпичные стены заложен ленточный фундамент из сборных фундаментных блоков. Глубина заложения фундамента 2,1 м.

Крыша односкатная. Конструкция покрытия - железобетонные балки длинной 18000 мм.

. Экономическая часть

.1 Расчет капитальных затрат на проект

Таблица 12 - Укрупненная смета капитальных затрат

Наименование затрат

Единица измерения

Количество

Цена за единицу, тыс. руб.

Сумма, тыс. руб.

 

1.Стоимость строительства здания

 

1.1 Строительство здания

м3

1188

5,8

6890,4

 

1.2 Стоимость отопления и вентиляции

м3

1188

0,75

891

 

1.3 Стоимость водопровода и канализации

м3

1188

0,95

1128,6

 

1.4 Стоимость электроосвещения

м3

1188

0,58

689,04

 

Итого стоимость строительства здания




9599,04

 

2.Приобретение оборудования

 

2.1 Линия Я9-ОПТ-2,5

шт.

1

9870

6405

 

2.2 Сепаратора ОМА - 3М

шт.

2

750

1500

 

2.3 Гомогенизатор ОГБ - 5М

шт.

1

300

300

 

2.4 Расфасовочно - упаковочного автомата ОЗК

шт.

1

655

655

 

2.5 Подъемник с тележкой

шт.

1

120

120

 

2.6 Пластинчатый теплообменник

шт.

1

380

380

 

2.7 Емкость РМГЦ-6

шт.

2

150

300

 

2.8 Емкость РМГЦ-10

шт.

1

210

210

 

Всего оборудования




9870

 

2.9 Приборы автоматизации

%

5

9870

493,5

 

2.10 Трубопроводы

%

6

9870

592,2

 

2.11 Затраты на запасные части

%

3

10955,7

328,67

 

2.12 Монтаж оборудования

%

20

10955,7

2191,14

 

2.13 Неучтеное оборудование

%

10

10955,7

1095,57

2.14 Транспортные расходы

%

5

10965,57

548,27

Итоговая стоимость оборудования




15119,35

Итого затрат




24718,39


.2 Расчет текущих затрат

Расчет численности рабочих и ФОТ

На работах, связанных с обслуживанием агрегатов, расчет ведется по нормам обслуживания.

Если цех работает в две смены при шестидневной рабочей неделе, то необходимо предусмотреть замену рабочих.

Коэффициент списочного состава:


где - номинальный фонд рабочего времени;

- планируемое число рабочих дней (баланс рабочего времени).

Списочное число рабочих:

В цехе применяется 8 человек: 2 мастера, 2 оператора линии, 2 фасовщика и 2 слесаря.

Расчет фонда оплаты труда представлен в таблице 2

Начисления на заработную плату составляют:

для производственных рабочих 0,34*525,271 =178,592 тыс.руб;

для ремонтных рабочих 0,34*270,108=91,836 тыс.руб;

для цехового персонала 0,34*283,284=96,316 тыс.руб.

Таблица 13 - Расчёт фонда платы труда

Наим. проф.

Разряд

Кол.раб.

Часовая тарифная ставка

Кол-во часов работы

Год-й фонд по тарифу

Премия

Плата за работу в ночное время

Доплата за работу в вечернее

Доплата за работу в праздничные дни

Основ. з/п

Год. фонд





1 раб.

Все раб.

1 раб.

Все раб.

тыс. руб.

%

Сумма руб.

Кол-во часов

За час

Сумма руб.

Кол-во часов

За час

Сумма руб.

Кол-во часов

Сумма руб.

руб.

%

Сумма руб.

руб.

1

2

3

4

5

6

7

8

9

10

11

12

13

14

15

16

17

18

19

20

21

22

23

1.

Аппаратчик

4

2

39

78

2000

4000

156000

50

78000

-

-

-

500

7,8

3900

-

-

237900

9

21411

259,311

2

Слесарь

4

2

41

82

2000

4000

164000

50

82000

-

-

-

500

8,2

4100

-

-

250100

8

20008

270,108

3

Фасовщик

4

2

40

80

2000

4000

160000

50

80000

-

-

-

500

8

4000

-

-

244000

9

21960

265,96

4

Мастер

5

2

43

86

2000

4000

172000

50

86000

-

-

-

500

8,6

4300

-

-

262300

8

20984

283,284

.

Итого





















1078,663


Затраты на сырье и основные материалы

Затраты на сырье и основные материалы определяются по формуле:

З=Ц*Р, тыс. руб.

где З - затраты, тыс. руб;

Ц - цена единицы сырья, тыс. руб;

Р - годовой расход сырья, т.

Затраты на молоко:

З=12,3*7395=90958,5 тыс. руб.

Затраты на сыворотку:

З=5,8*5580=32364тыс. руб.

Таблица 14 - Расчет затрат на вспомогательные материалы

№ п/п

Наименование

Единицы измерения

Норма расхода на 1т продукции

Расход на годовой выпуск продукции(1040,4т)

Цена, руб.

Сумма, тыс. руб.

1

2

3

4

5

6

7

1

Марля

м

0,66

686,664

4,28

2,938

2

Мыло хозяйственное

кг

0,1

104,04

6,82

0,709

3

Мыло туалетное

кг

0,01

10,404

9,64

0,1

4

Кислота азотная

кг

0,15

156,06

22,5

3,511

5

Порошок стиральный

кг

0,02

20,808

15,4

0,32

6

Сода кальцинированная

кг

2,1

2184,84

12,02

26,261

7

Сода каустическая

кг

0,2

208,08

25,13

5,229

8

Кислота сульфаминовая

кг

0,07

72,828

21,5

1,565

9

Известь хлорная

кг

0,1

104,04

13,4

1,394

10

Щетки

шт

0,1

104,04

17,18

1,787

11

Ерши

шт

0,08

83,232

4,68

0,389

12

Шпагат

гр.

40,4

42032,16

22

924,707

13

Клей ПВА

кг.

0,05

52,02

6,83

0,355

14

Пломбы

гр.

43,5

45257,4

14,41

652,159


Итого





1621,424


Расчёт затрат на силовую электроэнергию

Расход силовой электроэнергии зависит от количества энергопотребляющего оборудования, мощности электродвигателей, времени их работы и определяется по формуле:

, кВт.ч

где n - количество работающего оборудования;- мощность электродвигателя, кВт;

(из технической характеристики оборудования)

t - время работы оборудования в год, час;

К - коэффициент использования оборудования.

Таблица 15 - Затраты на силовую электроэнергию

Энергопотребляющее оборудование

Кол-во, шт.

Мощность эл/двигателя, кВт

Время использования, час

К-т исп-я об-я

Тариф на 1 кВт*ч руб.

Затраты на силовую эл-ю, тыс.руб

1

Насос

1

1,5

2712

0,85

3,23

11,168

2

Емкость РМГЦ - 6

2

0,27

1200

0,8

3,23

1,674

3

Емкость РМГЦ - 10

1

0,27

1200

0,8

3,23

0,836

4

Сепаратор ОМА - 3М

1

4

2712

0,8

3,23

28,031

5

Подъемник с тележкой

1

0,6

2712

0,8

3,23

4,204

6

Гомогенизатор

1

30

2712

0,85

3,23

223,373

7

Автомат для расфасовки ОЗК

1

1,5

2712

0,85

3,23

11,168

8

Емкость Я1-ОСВ-5

5

0,75

3600

0,9

3,23

39,244

9

Насосный агрегат  П8-ОНБ

1

1,5

2712

0,8

3,23

10

Обезвоживатель сгустка

1

1,1

2712

0,85

3,23

8,189

11

Охладитель творога 209 ОТД-1

1

4

2712

0,9

3,23

31,535

12

Бойлерная установка

1

5,5

3600

0,8

3,23

51,163

13

Вентилятор Ц4-70 3,2

2

1,5

4800

0,8

3,23

29,767

 


Итого

450,863


Расчёт затраты на содержание и эксплуатацию оборудования

Расчёт затрат на амортизацию оборудования

Затраты на амортизацию оборудования на полное восстановление определяются по формуле:

Аоб =,(тыс. руб.)

где Аоб - сумма амортизационных отчислений на полное восстановление, тыс.руб;

По - стоимость оборудованиясогласно укрупненной сметы капитальных затрат (таблица 1);

Но - норма амортизации на полное восстановление оборудования,принимается равной 11,8%

Ао =  = 1784,083 тыс. руб.

Расчет затрат на ремонт оборудования

Затраты на ремонт оборудования принимаются в размере 4…5% от его стоимости и определяются по формуле:


где П - балансовая стоимость оборудования, тыс. руб.

Расчет затрат на износ малоценныхи быстроизнашивающихся инструментов

Затраты на износ инструментов принимаются в размере 0,8-1,0% от балансовой стоимости оборудования и определяются по формуле:


Расчет затрат на эксплуатацию оборудования

Затраты на эксплуатацию оборудования принимаются в размере 1-3% его стоимости и определяются по формуле:



Таблица 16 - Смета затрат на содержание и эксплуатацию оборудования

№ п/п

Статьи затрат

Сумма, тыс. руб.

1

Фонд оплаты труда слесарей

270,108

2

Начисления на зарплату

91,836

3

Затраты на амортизацию оборудования

1784,083

4

Затраты на ремонт оборудования

604,774

5

Затраты на износ малоценных и быстроизнашивающихся инструментов

151,193

6

Затраты на эксплуатацию оборудования

302,387

Итого

3204,381


Расчёт цеховых расходов

Расчет затрат на амортизацию здания

Затраты на амортизацию здания на полное восстановление определяются по формуле:


где Пз - стоимость здания согласно укрупненной сметы капитальных

затрат, тыс. руб.;

Н - норма амортизации на полное восстановление, принимается

2%

Расчет затрат на ремонт здания

Затраты на ремонт здания (РФ) принимаются в размере 3% от его стоимости и определяются по формуле:

, тыс. руб.

тыс. руб.

Расчет затрат на содержание здания

Затраты на содержание здания принимаются в размере 1…3% от стоимости здания и рассчитываются по формуле:

, тыс. руб.

тыс. руб.

Расчет затрат на износ малоценного и быстроизнашивающегося инвентаря Затраты на износ малоценного и быстроизнашивающегося инвентаря принимаются в размере 0,8% от стоимости здания. Затраты на износ инвентаря составят:

, тыс. руб.

тыс. руб.

Расчёт затрат на охрану труда

Затраты на охрану труда (ОТ) принимаются в размере 5% от ФОТ производственных рабочих и составляют:

ОТ = тыс. руб.

Таблица 17 - Смета цеховых расходов

№п\п

Статьи затрат

Сумма, тыс. руб.

1

Расходы на оплату труда цехового персонала

283,284

2

Начисления на зарплату

96,316

3

Расходы на амортизацию здания

191,98

4

Расходы на ремонт здания

287,971

5

Расходы на содержание здания

191,98

6

Затраты на износ малоценного и быстроизнашивающегося инвентаря

76,792

7

Расходы на охрану труда

26,263

Итого

1154,586


Таблица 18 -Смета цеховой себестоимости

Статьи затрат

Сумма, тыс. руб.

Молоко

90958,5

Сыворотка (вычитается)

32364

Затраты на вспомогательные материалы

1621,424

Фонд оплаты труда основных рабочих

525,271

Начисления на зарплату

178,592

Затраты на силовую электроэнергию

450,863

Затраты на содержание и эксплуатацию оборудования

3204,381

Цеховые расходы

1154,586

Итого

65729,617



Цеховая себестоимость на единицу продукции:


где  - текущие затраты в тыс.руб;

М - годовой выпуск продукции, т/год.

тыс. руб.

Расчет производительности труда

где М - годовой выпуск продукции, т/год

ч - численность работающих в цехе;


Таблица 19 - Сводная таблица экономических показателей

Показатели

Величины

1. Годовая выработка продукции, т/год

1040,4

2. Балансовая стоимость основных фондов тыс.руб  в том числе:  - оборудования  - здания

24718,39  15119,35 9599,04

3. Численность работающих, человек - производственных рабочих - ремонтных рабочих - цехового персонала

8 4 2 2

4. Расходы на оплату труда, тыс.руб - производственных рабочих - ремонтных рабочих - цехового персонала

1078,663 525,271 270,108 283,284

5. Цеховая себестоимость на единицу продукции,тыс.руб

63,177

6. Производительность труда, т/год

130,05



.3 Расчёт экономической эффективности проекта

Расчет дисконтированных притоков и оттоков

Таблица 20 - Свободная таблица дисконтированных притоков и оттоков

Годы

инвестиции (оттоки), тыс. руб.

Текущие затраты (оттоки) тыс. руб.

Чистый доход, тыс. руб. (30%) 0,3*Гр2

Поступление (притоки), тыс. руб. Гр3+Гр4

Коэффициент дисконтирования при 12% норме

Дисконтированные затраты, тыс. руб. Гр3*Гр6

Дисконтированные поступления (притоки) , тыс. руб. Гр5*Гр6

1

2

3

4

5

6

7

8

0

24718,39

-

-

-

-

-

-

1

-

65729,617

7415,517

73145,134

1/(1+0,12)1=0,8929

65729,617*0,8929=58689,975

73145,134*0,8929=65311,29

2

-

65729,617

7415,517

73145,134

1/(1+0,12)2=0,7972

65729,617*0,7972=52399,65

73145,134*0,7972=58311,3

3

-

65729,617

7415,517

73145,134

1/(1+0,12)3=0,7118

65729,617*0,7118=46786,341

73145,134*0,7118=52064,706

4

-

65729,617

7415,517

73145,134

1/(1+0,12)4=0,6355

65729,617*0,6355=41771,171

73145,134*0,6355=46483,732

5

-

65729,617

7415,517

73145,134

1/(1+0,12)5=0,5674

65729,617*0,5674=37294,984

73145,134*0,5674=41502,549

Итого

24718,39

328648,08

37077,585

365725,67


236942,121

263673,577


Расчёт чистого дисконтированного дохода

ЧДД определяется по формуле [1, с. 219, ф. (16.2)]

, тыс. руб.

где Rt - поступления от реализации проекта;

Зt - текущие затраты на реализацию проекта;

 - коэффициент дисконтирования;

t - номер временного интервала реализации проекта;

Кt - капитальные вложения в проект;

Т - срок реализации проекта.

тыс. руб.

Расчёт индекса доходности

Индекс доходности определяется по формуле [1, с. 220, ф. (16.6)]


Расчет окупаемости проекта

Окупаемость проекта рассчитывается по формуле [1, с. 221, ф. (16.8)]


где К - чистые инвестиции, тыс. руб.;

Дср. - среднегодовой приток денежных средств от проекта, тыс. руб.

Вывод: Инвестиционный проект эффективен, т. к. чистый дисконтированный доход больше нуля (ЧДД > 0) и индекс доходности больше нуля (ИД > 0).

Заключение

При проектировании важным параметром является правильный подбор электрооборудования и его автоматизации. Именно с этой позиции рассматривается вопрос о прибыльности предприятия.

Данный дипломный проект не только положительно сказывается на объёме производства продукции, но и на экономических показателях, в частности на сроках окупаемости проектируемого участка.

Список информационных источников

творог механизированный пастеризационный

1Попов В.И. «Примеры расчетов по курсу технологического    оборудования предприятий бродильной промышленности» 1969г.

Стабников В.Н. «Процессы и аппараты пищевых производств» 1985г.

Балашов В.Е. «Дипломное проектирование предприятий по    производству пива и безалкогольных напитков» 1983г.

Калинушкин М.П. «Вентиляторные установки» Москва «Высшая школа» 1979г.

Курдюмов В.И. «Проектирование и расчет средств обеспечения и безопасности» 1987г.

Ястребова Н.А. и др. Техническое обслуживание и ремонт

оборудования 1991г.

Острикова А.Н. «Процессы и аппараты пищевых производств» 2007г.

www.yandex.ru\