В проектах последнего десятилетия предусматривается вскрытие центрально-сдвоенными стволами и фланговыми вспомогательными, капитальными квершлагами на одном двух горизонтах. Шахтное поле разделено на блоки, которые отдельно вскрыты, проветриваются, а уголь транспортируется к главному стволу.
Штреки основных направлений, панельные уклоны, бремсберги, ходки проектируется проводить полевыми с охраной целиками. Для проветривания лав - возвратноточная схема проветривания. Большинство выработок поддерживаются за лавами.
Таким образом, в проектах не учтено влияние природных факторов, которые оказывают решающее значение на выбор схем вскрытия, подготовки, системы разработки, охраны выработок. Факторы: горное давление, газоносность пластов и пород.
На большой глубине в запредельное состояние переходят не только алевролиты, аргиллиты, но и песчаники, известняки. Пластовые, полевые выработки подвержены большим деформациям, особенно выработки примыкающие к лавам. Второй способ их охраны (охрана искусственными ограждениями для повторного использования) не годится. Такие факторы, как крепь повышенной несущей способности и податливости, крепь усиления, тампонаж закрепного пространства, увеличение сечения выработки на 15% снижают смещение пород в выработку и то в первый период в зоне временного опорного давления.
На больших глубинах сплошные и комбинированные системы разработки лучше, по фактору горного давления, но они сложны по проветриванию, транспорту. Действие горного давления на выемочные выработки не снижается.
При высокой газоносности необходима дегазация угольных пластов, выработанного пространства, особенно при сплошной системе разработки.
Разгрузка массива пород, окружающего горные выработки - основное
техническое решение для снижения отрицательного воздействия природных факторов.
12.2 Расположение полевых выработок в разгруженном от горного давления
массиве горных пород
Критерии перехода на охрану полевых выработок с предварительной разгрузкой: смещение кровли, почвы менее 0,5 м, что является предельным для арочной трёхзвенной крепи.
Разгрузка массива осуществляется при отработке разгрузочной лавы, ниже
которой располагаются выработки (рис. 12.1).
Рисунок 12.1 - Характер сдвижения надработанного массива горных пород по
ДонУГИ
Выделяются зоны: полных сдвижений (1); сложных сдвижений (2). В 1 зоне произошла разгрузка массива, породы над выработанным пространством в пределах зоны полных сдвижений передали свой вес на почву пласта.
Во вторых зонах напряжения изменяются от минимальных до гидростатических и превышающих гидростатические под угольным пластом.
Выработки рекомендуется располагать в зоне полных сдвижений на определённых расстояниях от выработанного пространства и границ угольного пласта.
Расстояние между выработками
, м, (2.1)
где Кi - коэффициент, зависящий от глубины разработки и прочности пород междупластья, Кi = 1…5;
b1, b2 - ширина выработок, м.
Крайние
выработки должны стоять от краевой части пласта на величину lн
, (12.2)
где m - мощность пласта, м;
Н - максимальная глубина заложения выработок, м;
Ку - коэффициент, учитывающий устойчивость кровли выработок,
Ку = 1, при неустойчивых породах (G < 40 МПа);
Ку = (0,8 - 0,6), при средней устойчивости пород (G = 40 - 60 МПа);
Ку = (0,5 - 0,4), при устойчивых породах (G > 60 МПа);
Ко - коэффициент, учитывающий обрушаемость пород:
Ко = 1 для легкообрушающейся кровли;
Ко = 1,15 при средней обрушаемости кровли;
Ко = 1,25 для труднообрушающейся кровли;
Кh - коэффициент, учитывающий расстояние от почвы пласта до выработки: при h = 10 м Кh = 1; h = 15 м Кh = 0,95; h = 20 м Кh = 0,85.
Для фланговых полевых выработок расстояние до краевой части пласта равно 0,5∙lн.
Отставание
забоя подготовительной выработки от забоя разгрузочной лавы (рис. 12.2) равно
1,25∙lн.
Рисунок
12.2 - Взаимное положение забоев выработок
При соблюдении параметров lg, lн длина разгрузочной лавы 180 - 200 м. Под ней также необходимо располагать приёмно-отправительные площадки, камеры.
При
подходе основных лав к выработанному пространству разгрузочной лавы оставляются
целики угля шириной
![]()
, (12.3)
где Кд - коэффициент, учитывающий направление движения основной лавы:
если лава движется на целик Кд = 0,8;
параллельно выработкам Кд = 0,6;
от границ целика Кд = 0,4.
Целики не должны разрушаться. Их ширина 23 - 62 м.
Для
сохранения разгрузочных зон, при их создании или при подходе основных лав
предусматривается возведение плотной закладки в краевых частях разгрузочных
лав.
Лекция 13. Создание зон разгрузки массива горных
пород лавой
Разработано 16 схем для условий: мощность пласта (m) 0,8 - 0,9 м; глубина разработки (Н) 700 - 1400 м; угол падения пласта (α) менее 10° - 8 схем, более 10° - 8 схем; газовыделение до 4 м3/мин и более 4 м3/мин; опасные и неопасные по выбросам угля и газа.
На
схемах приняты условные обозначения дорог для доставки вспомогательных
материалов
- напочвенная;
монорельсовая;
канатно - кресельная.
Условия применения схем:
при G менее 40 МПа, Н до 700 м;
при G от 40 до 60 МПа, Н до 700 - 900 м;
при G более 60 МПа, Н более 900 м;
Рассмотрим наиболее простые схемы.
Схема 2.13 (согласно первоисточнику) предусматривает разгрузку главных
полевых штреков при панельной подготовке разгрузочной лавой по простиранию.
Конвейерный и вентиляционный штреки, проводимые вслед за разгрузочной лавой,
периодически соединяются квершлагами с главными полевыми штреками, за
квершлагами пластовые штреки погашаются. На рисунке 13.1 приведён план
расположения очистного и подготовительных забоев и разрез по падению пласта.
Пласт не опасен по внезапным выбросам угля и газа. Угол падения пласта более 10
град. На рисунке 13.1 не уточнена схема проведения откаточного штрека по пласту
за лавой, где расположен конвейер и др. вопросы.

Для пластов, опасных по внезапным выбросам угля и газа, согласно схеме (рис. 13.2) за лавой проводятся 3 выемочных штрека, из которых по двум бортовым поступает свежая струя воздуха, а по третьему проводимому в нижней части лавы, выдаётся исходящая струя воздуха. При этом свежий воздух на верхний штрек подаётся по сбойке, соединяющей бортовые штреки в выработанном пространстве, а исходящая струя воздуха по наклонному вентиляционному квершлагу на главный вентиляционный (полевой) штрек. Материалы доставляются по всем выработкам с помощью монорельсовых дорог.
Лекция 14. Создание зон разгрузки массива горных
пород при проведении пластовых выработок
Массив разгружается после образования щели или скважины по угольному пласту.
Основные принципы:
выработки проводятся только с присечкой почвы;
форма сечения выработок прямоугольная или трапециевидная;
предусматривается упрочнение кровли;
применяется крепь направленной податливости до величины мощности пласта.
14.1 Статистический метод
Смещение кровли и почвы определяется в выработке без разгрузки массива,
; (14.1)
, (14.2)
где Ksk, Ksп - коэффициенты, учитывающие влияние глубины разработки, расчётной прочности пород, опорного давления;
b - ширина выработки.
Смещение
кровли после образования щели по угольному пласту:
, (14.3)
, (14.4)
где l - параметр,
, (14.5)
lщ - длина щели, м.
Необходимо задать значение lщ, учитывая, что оптимальное lщ = 0,75b.
Высота
щели
. (14.6)
Если
вместо щели в пласте бурятся скважины, необходимо вычислить коэффициент (Кскв),
учитывающий влияние межскважинных целиков:
, (14.7)
где d - диаметр скважин, примерно равен высоте щели;
n - число рядов
скважин по мощности пласта.
14.2 Аналитический метод
На рисунке 4.5 приведена схема для определения ширины зоны разгрузки со стороны восстания пласта (Взв) и падения (Взн). Ширина выработки горизонтальная (Вш.п.) и наклонная (Вшн) разгрузочное действие щели распространяется в почве и ограничивается линией АС со стороны восстания и А`C` со стороны падения пласта.
Положение линий определяется углом разгрузки (φ),
который вычисляется по
формуле
, (14.8)
где
В - коэффициент
,
(14.9)
σс - предел прочности почвы на сжатие;
σр - предел прочности на растяжение.
Для определения ширины зоны разгрузки массива (рис. 4.5) изображается в масштабе и определяются Взв и Взп.
Аналитически
, (14.10)
, (14.11)
где α - угол падения пласта, град;
lв, lп -
соответственно высота выработки со стороны восстания и падения.
14.3 Схемы разгрузки при проведении выработок
На
рисунке 14.2 в плане и на разрезе показано расположение крепи, анкеров,
разгрузочной щели при проведении штрека, где: 1 - верхняк; 2 - верхняя, 3 -
нижняя боковые стойки крепи; 4 - щель; 5 - анкеры.
Разгрузка массива может осуществляться буровзрывным способом при кровлях средней устойчивости и устойчивых.
Отставание места производства работ по разгрузке массива от забоя выработки в пределе 15 - 20 м.
При прочности кровли на сжатие менее 60 МПа рекомендуется применять
винтовые анкеры; при прочности 60 - 90 МПа - анкеры с закреплением по всей
длине химическими составами или трубчатые. Длина анкеров 1,8 - 2,0 м.
Лекция 15. Схемы подготовки и системы разработки
пластов на больших глубинах
В зависимости от условий разработки рациональны две группы схем:
главные выработки полевые и расположенные в разгрузочных зонах, создаваемых разгрузочными лавами, примыкающие к лавам выработки проводятся в неразгруженном массиве;
главные и выемочные выработки пластовые проводятся в разгруженных зонах,
создаваемых при проведении выработок.
15.1 Первая группа схем
Предложено 8 систем разработки для пластов с углом падения более 10 град:
1) столбовая система разработки с поддержанием выработки за лавой;
2) столбовая система разработки с погашением двух выработок за лавой; третья выработка поддерживается в выработанном пространстве;
) столбовая система разработки с отработкой через столб;
) столбовая система разработки, но с последовательной отработкой столбов; вентиляционный штрек проводится вприсечку;
) комбинированная система разработки «парные штреки»; за лавой проводятся три штрека;
) сплошная система разработки с полевым штреком; выемочные штреки оформляются за лавой;
) столбовая система разработки; столбы подготавливаются спаренными штреками; схема проветривания с подсвежением;
) то же, но без подсвежения.
Для выбора системы разработки вычисляется безразмерный критерий Кср
, (15.1)
где Uпред - предельная податливость крепи;
Uк2 - смещение кровли в повторно используемой выработке.
По
графику (рис. 15.1) в зависимости от мощности пласта и глубины разработки
выбирается система разработки, номер которой помещён справа от графика.
Рисунок 15.1 - График зависимости kср от мощности пласта и глубины разработки
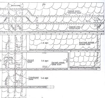
На рисунке 15.2 приведена система разработки по схеме №1. Столбовая система разработки с повторным использованием конвейерного штрека в качестве воздухо-подающего для лавы нижележащего столба, позади которой он погашается. Схема проветривания прямоточная с подачей подсвежающего воздуха по участку конвейерного штрека, расположенному впереди лавы и выдачей исходящего воздуха по остальной части штрека на фланговый вентиляционный ходок.
Рисунок 15.2 - Способ подготовки и система разработки длинными столбами с
повторным использованием штрека при прямоточном проветривании с подсвежением
исходящей струи воздуха
Для пластов, опасных по внезапным выбросам угля и газа, рекомендуется система разработки по схеме №2, изображённая на рисунке 15.3.
Рисунок 15.3 - Способ подготовки и система разработки длинными столбами
при прямоточном проветривании с подсвежением исходящей струи воздуха
Согласно схеме №2 за лавой оба штрека погашаются. Свежая струя подаётся
по откаточному штреку, подсвежающая по верхнему штреку, проведённому вприсечку.
Исходящая струя воздуха выдаётся по специальному вентиляционному штреку,
который проводится вслед за лавой в её верхней части. При подготовке нижнего
столба штрек проводится вслед за лавой от флангового ходка с отставанием от
действующей лавы. Для проветривания этого штрека используется свежий воздух, поступающий
по бывшему вентиляционному штреку отработанного яруса. Схема №2 сложная, но
может применяться на большой глубине при отработки пластов, опасных по
внезапным выбросам угля и газа.
5.2 Вторая группа схем
Основные принципиальные решения для создания второй группы систем разработки:
использование эффекта разгрузки массива вокруг выработок позволяет максимально снизить или исключить проявление горного давления непосредственно в выработке, а переместить их в массив, примыкающий к границам разгруженных зон;