ЗАДАНИЕ № 25
Тема. Электроснабжение
станкостроительного завода
Исходные данные на проектирование:
. Генеральный план завода - рис. 25.
. Сведения об электрических нагрузках завода-табл.25.
. Мощность системы 1700 Мва; реактивное сопротивление системы на стороне 110 кв, отнесенное к мощности системы 0,15.
. Расстояние от подстанции энергосистемы до
завода 12,3 км.
Таблица 25
Ведомость электрических нагрузок завода
|
№ по плану |
Наименование цеха |
Кс |
cosj |
s Вт/м2 |
Установленная мощность, квт |
|
1. |
Инструментальный цех |
0.5 |
0.65 |
4,5 |
3700 |
|
2. |
Термический цех |
0.85 |
0.95 |
3,5 |
3900 |
|
3. |
Литейный цех |
0.65 |
0.65 |
3,5 |
8800 |
|
4. |
Насосная Насосная (6 кв 6х1000) |
0.8 0.85 |
0.85 1 |
3,18 |
400 6000 |
|
5. |
Компрессорная Компрессорная (6 кв 6х1000) |
0.8 0.85 |
0.85 -0.9 |
3,18 |
450 6000 |
|
6. |
Электроцех |
0.5 |
0.7 |
4 |
500 |
|
7. |
Сборочный цех |
0.5 |
0.65 |
4,5 |
3350 |
|
8. |
Токарно-механический цех |
0.35 |
0.6 |
4,5 |
8700 |
|
9. |
Кузнечный цех |
0.4 |
0.65 |
3,5 |
3150 |
|
10. |
Ремонтно-механический цех |
|
|
4 |
------ |
|
11. |
Заводоуправление |
0.5 |
0.9 |
5,17 |
190 |
|
12. |
Центральная заводская лаборатория |
0.55 |
0.75 |
5,17 |
300 |
|
|
Освещение цехов и территории завода |
|
|
|
Определить по площади. |
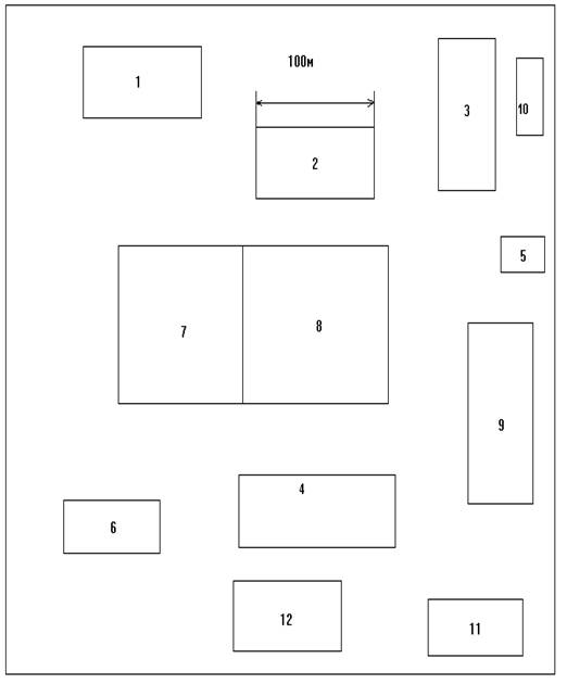
Генеральный план
станкостроительного завода
Рис. 25
1.
определение расчетных электрических
нагрузок
Цеховые сети промышленных предприятий выполняют на напряжение до 1 кВ (наиболее распространенным является напряжение 380 В). На выбор схемы и конструктивное исполнение цехов сетей оказывают влияние такие факторы, как степень ответственности приемников электроэнергии, режимы их работы и размещении по территории цеха, номинальные токи и напряжения.
Потребители электроэнергии относятся к 2 и 3 категории надежности электроснабжения.
) Приемники 2 категории - перерыв электроснабжения, которых приводит к массовому не допуску продукции, массовому простою рабочих, механизмов. Приемники второй категории рекомендуется обеспечивать электроснабжением от двух независимых источников питания;
) Приемники 3 категории - остальные
приемники, неподходящие под определение 1 и 2 категории. Перерыв
электроснабжения этих приемников не приводит к существенным последствиям,
простоям и другим неблагоприятным последствиям. Для таких электроприемников
достаточного источника питания при условии, что перерыв электроснабжения,
необходимый для замены поврежденного элемента СЭС, не превышает 1 суток.
1.1 Определение
расчётных электрических нагрузок цехов
Создание любого промышленного объекта начинается с его проектирования. Не простое суммирование установленных (номинальных) мощностей ЭП предприятия, а определение ожидаемых (расчетных) значений электрических нагрузок является первым и основополагающим этапам проектированием СЭС. Расчетная максимальная мощность, потребляемая электрприемниками предприятия, всегда меньше суммы номинальных мощностей этих ЭП.
Завышение ожидаемых нагрузок приводит к удорожанию строительства, перерасходу проводникового материала и неоправданному увеличению мощности трансформаторов и прочего оборудования. Занижение может привести к уменьшению пропускной способности электросети, к лишним потерям мощности, перегреву проводов, кабелей и трансформаторов, а следовательно, к сокращению срока их службы.
Существующие методы определения расчетных нагрузок основаны на обработке экспериментальных и практических данных об электрических нагрузках действующих промышленных предприятий.
Нагрузка потребителей задана суммарным значением
без указания числа и мощности отдельных приемников, максимальная расчетная
нагрузка определяется по формуле
, (2.1)
Qмс = Рмс∙tgj (2.2)
где Кс - коэффициент спроса, принимается по справочным данным;
Рн - установленная мощность цехов.
Все расчеты сводятся в таблицу 1.1.
Таблица 1.1 Расчетные силовые нагрузки 0,4 кВ
|
№ |
Наименование цехов ( 0,4 кВ ) |
РН, кВт |
Кс |
Cosφ |
Pмс, кВт |
Qмс, квар |
|
1 |
Инструментальный цех |
4000 |
0,40 |
0,70 |
1600 |
1632,33 |
|
2 |
Термический цех |
3000 |
0,35 |
0,65 |
1050 |
1227,59 |
|
3 |
Литейный цех |
1200 |
0,40 |
0,60 |
480 |
640,00 |
|
4 |
Насосная |
900 |
0,45 |
0,70 |
405 |
413,18 |
|
5 |
Компрессорная |
1020 |
0,40 |
0,70 |
408 |
416,24 |
|
6 |
Электроцех |
350 |
0,32 |
0,55 |
112 |
170,07 |
|
7 |
Сборочный цех |
70 |
0,40 |
0,60 |
28 |
37,33 |
|
8 |
Токарно-механический цех |
180 |
0,75 |
0,80 |
135 |
101,25 |
|
9 |
Кузнечный цех |
100 |
0,25 |
0,50 |
25 |
43,30 |
|
10 |
Ремонтно-механический цех |
50 |
0,40 |
0,60 |
20 |
26,67 |
|
11 |
Заводоуправление |
140 |
0,75 |
0,85 |
105 |
65,07 |
|
12 |
Центральная заводская лаборатория |
300 |
0,53 |
0,60 |
159 |
212,00 |
1.2 Определение
расчётной нагрузки завода
Мощность по заводу определяется как
,
где
и
активная и реактивная мощности с
учетом потерь в трансформаторе на пункте приема электроэнергии (ППЭ)
кВт
кВар
кВт
кВар
кВА.
. выбор
компенсирующих устройств и мест их установки
Суммарную расчетную мощность компенсаторных
батарей низкого напряжения (НБК), устанавливаемых в цеховой сети, определяют по
формуле
, (1.1)
где Qнк1 -
суммарная мощность НБК, которую находим по формуле
, (1.2)
где Qmax m -
наибольшая реактивная мощность, которую целесообразно передавать через
трансформаторы данной номинальной мощности, в сеть напряжением 0,38 кВ,
определяемая по формуле
, (1.3)
где Nопт, Кз, Sн.тр - соответственно оптимальное число, коэффициент загрузки трансформаторов единой мощности Sн тр;
Pp, Qp - соответственно расчетные максимальные активная и реактивная мощности нагрузок трансформаторов единой мощности;
Qнк2 -
дополнительная мощность, которую рассчитывают по формуле
, (1.4)
где g - коэффициент, который для двухступенчатой схемы питания трансформаторов от распределительных пунктов определяется по /17/ по формуле
(1.5)
где Кр1 = 9 - коэффициент, который определяется по /17/ в зависимости от числа смен работы предприятия и района его размещения;
коэффициент g для магистрали с числом
трансформаторов более трех находим по формуле
(1.6)
Для ТП, питающихся от РП с синхронными высоковольтными двигателями, Qнк2 не рассчитывается. Кроме того, в случае, если Qнк2 < 0 , то принимается Qнк2 = 0 .
По табл. 4 - 34 /8/ подбираются комплектные конденсаторные установки напряжением Uн = 0,38 кВ с таким расчетом, чтобы их стандартная мощность Qнк ст была максимально приближена к расчетному значению Qнк.
Определяем число и мощность НБК ТП1.
Коэффициент g определяется по формуле (1.7)
Находится наибольшая реактивная мощность, которую целесообразно передавать через трансформатор мощностью Sн тр = 400 кВА по (3.6)
квар
Определяется суммарная мощность НБК Qнк1S для данного цеха по формуле (3.5)
квар.
Дополнительная мощность НБК Qнк2 для ТП1 по формуле (3.7)
квар
Суммарную расчетную мощность конденсаторных батарей низкого напряжения, устанавливаемых в цеховой сети, определяем по формуле (3.4)
квар.
Выбираются конденсаторная установка
типа 4хУКМ 58-04-300-33,3 УЗ суммарной мощностью 1200 квар. Тогда
недокомпенсированная мощность: Qн=1190,79-1200=-9,21 квар.
Таблица 2.1 Выбор компенсирующих устройств на напряжении 0,4 кВ
|
№ |
Qmax m, квар |
Qнк1, квар |
Схема питания ТП |
|
Qнк2, квар |
Qнк, квар |
Кол-во и тип КУ |
Qуст, квар |
Qн, квар |
|
1 |
513,62 |
917,17 |
Двухстпупенчатая |
0,15 |
273,62 |
1190,79 |
4хУКМ 58-04-300-33,3 УЗ |
1200 |
-9,21 |
|
2 |
93,63 |
170,93 |
Двухстпупенчатая |
0,15 |
33,63 |
204,56 |
1хУКМ 58-04-200-33,3 УЗ |
200 |
4,56 |
|
3 |
771,47 |
1730,98 |
Двухстпупенчатая |
0,15 |
351,47 |
2082,45 |
7хУКМ 58-04-300-33,3 УЗ |
2100 |
-17,55 |
|
4 |
110,79 |
227,75 |
Двухстпупенчатая |
0,15 |
50,79 |
278,54 |
1хУКМ 58-04-268-67 УЗ |
268 |
10,54 |
|
5 |
235,84 |
603,04 |
Двухстпупенчатая |
0,15 |
115,84 |
718,88 |
2хУКМ 58-04-337,5 УЗ |
675 |
43,88 |
|
6 |
94,98 |
363,07 |
Двухстпупенчатая |
0,15 |
19,98 |
383,05 |
2хУКМ 58-04-180-30 УЗ |
360 |
23,05 |
|
7 |
342,34 |
422,42 |
Двухстпупенчатая |
0,15 |
192,34 |
614,76 |
4хУКМ 58-04-150-37,5 УЗ |
600 |
14,76 |
|
8 |
447,64 |
273,44 |
Двухстпупенчатая |
0,15 |
297,64 |
571,08 |
4хУКМ 58-04-133-33,3 УЗ |
532 |
39,08 |
. определение
центра электрических нагрузок
Для нахождения места размещения ГПП и ТП на
генеральном плане предприятия наносится картограмма нагрузок Рi,
представляющих собой окружности, площади которых равны pR2
и в выбранном масштабе М равны расчетной нагрузке Рi
данных цехов.
, (3.1)
Круг делится на сектора, каждый из которых равен нагрузке осветительной, силовой на низкой и высокой стороне.
Площадь круга равна расчетной мощности цеха
, (3.22)
, (3.23)
где R - радиус круга данного цеха, мм;
m - масштаб,
принимаем к расчету 1 кВт = 0,1 мм2.
, (3.24)
Находятся углы секторов, соответствующие силовой
нагрузке на низкой и высокой сторонам, осветительной нагрузкам
, (3.25)
, (3.26)
. (3.27)
Все результаты расчетов приведены в таблицу 2.1.
Центром электрических нагрузок является точка с координатами Хо, Уо, где сосредоточенна основная нагрузка
Координаты ЦЭН находятся по:
;
;
Таблицу 3.1.
|
№ |
Наименование цеха |
Рсил, кВт |
Рв/в, кВт |
Рр, кВт |
Ri, мм |
qосв, град |
qсил, град |
qв/в, град |
|
|
1 |
Инструментальный цех |
502,96 |
1600 |
- |
2102,96 |
81,8 |
86,1 |
273,9 |
- |
|
2 |
Термический цех |
114,96 |
1050 |
- |
1164,96 |
60,9 |
35,5 |
324,5 |
- |
|
3 |
Литейный цех |
114,96 |
480 |
- |
594,96 |
43,5 |
69,6 |
290,4 |
- |
|
4 |
Насосная |
123,04 |
405 |
4000 |
4528,04 |
120,1 |
9,8 |
32,2 |
318,0 |
|
5 |
Компрессорная |
103,76 |
408 |
- |
511,76 |
40,4 |
73,0 |
287,0 |
- |
|
6 |
Электроцех |
30,59 |
112 |
- |
142,59 |
21,3 |
77,2 |
282,8 |
- |
|
7 |
Сборочный цех |
7,32 |
28 |
- |
35,32 |
10,6 |
74,6 |
285,4 |
- |
|
8 |
Токарно-механический цех |
20,12 |
135 |
1890 |
2045,12 |
80,7 |
3,5 |
23,8 |
332,7 |
|
9 |
Кузнечный цех |
17,16 |
25 |
- |
42,16 |
11,6 |
146,5 |
213,5 |
- |
|
10 |
Ремонтно-механический цех |
2,03 |
20 |
- |
22,03 |
8,4 |
33,2 |
326,8 |
- |
|
11 |
Заводоуправление |
7,97 |
105 |
2240 |
2352,97 |
86,5 |
1,2 |
16,1 |
342,7 |
|
12 |
Центральная заводская лаборатория |
12,2 |
159 |
- |
171,2 |
23,3 |
25,7 |
334,3 |
- |