Материал: Дифузійне зварювання

Внимание! Если размещение файла нарушает Ваши авторские права, то обязательно сообщите нам

Принципова схема установки для дифузійного зварювання і загальний вид багатопозиційної установки СДВУ-4М та вакуумної камери, система охолодження камери,вакуумної системи, високочастотнго генератора, гідросистеми преса. Для виключення можливості втрати стійкості зварюваних елементів, передачі тиску в зону зварювання та створення умов локально направленої деформації зварюваного металу в зоні стику дифузійну зварювання здійснюють в пристосуваннях із застосуванням для заповнення «порожнеч» (міжреберних просторів) технологічних вкладишів і блоків, які після зварювання демонтують або видаляють хімічним травленням.

Технологічна схема дифузійного зварювання з високоинтенсивним силовим впливом:а - необхідна конструкція, заготовки для зварювання; технологічні елементи-вкладиші; складання; зварювання в пресі; демонтаж; готова конструкція, технологічні вкладиші, технологічний контейнер, прес. При зварюванні з високоінтенсивним силовим впливом локальна деформація металу в зоні з'єднання, як правило, досягає декількох десятків відсотків, що забезпечує стабільне отримання доброякісного з'єднання. Для виготовлення шаруватих конструкцій перспективна дифузійна зварювання з низькоінтенсивним силовим впливом, при якій допустимі стискаючі зусилля обмежені стійкістю тонкостінних елементів. При цьому способі дифузійного зварювання не потрібно складного спеціального обладнання. При виготовленні плоских (або з великим радіусом кривизни) конструкцій стискуюче зусилля найбільш просто може бути забезпечено за рахунок атмосферного тиску повітря Q на зовнішню поверхню технологічного оснащення при зниженні тиску газу в зоні з'єднання. Технологічна схема дифузійного зварювання з низькоінтенсивним силовим впливом плоских конструкцій:а - необхідна конструкція, заготовки для зварювання; складання; зварювання; готова конструкція, несуча обшивка, готовий заповнювач, технологічні листи, мембрана. Наявність технологічних елементів (прокладок, мембрану ін), володіє локальної жорсткістю і поміщених із зовнішнього боку зварюваних елементів, виключає можливість втрати стійкості обшивок у вигляді прогинів підкріплених ділянок. Величина зварювального тиску Р обмежується граничним напруженням втрати стійкості заповнювача σп.з. (Р ≤ σп.з.). При виготовленні конструкцій складного криволінійного профілю може бути використана технологічна схема, при якій тиск нейтрального газу сприймається безпосередньо зовнішніми елементами самої конструкції, наприклад, несучими обшивками, оболонками. У процесі зварювання обшивки на підкріплених ділянках під тиском газу деформуються (прогинаються). Це погіршує умови для формування з'єднання, зменшує перетин сполучених каналів, погіршує аеродинамічний стан поверхні. У цьому випадку Р обмежується напругою, при якому має місце надмірна залишкова деформація обшивок на підкріплених ділянках (Р ≤ σп.о.). Технологічна схема дифузійного зварювання з низькоінтенсивним силовим впливом конструкцій складної форми: необхідна конструкція, заготовки для зварювання; зварювання; характер деформації елементів конструкції при зварюванні; зовнішня оболонка, внутрішня оболонка. У ряді випадків можна виключити застосування зовнішнього тиску для стиснення зварюваних заготовок, використовуючи явища термічного напруження, яке виникає при нагріванні матеріалів з різними коефіцієнтами лінійного розширення. При зварюванні коаксіально зібраних заготовок коефіцієнт лінійного розширення деталі, що охоплює повинен бути менше коефіцієнта лінійного розширення охоплюваній деталі. Якість з'єднання при дифузійному зварюванні у вакуумі визначається комплексом технологічних параметрів, основні з яких - температура, тиск, час витримки. Дифузійні процеси, що лежать в основі формування зварного з'єднання, є термічно активуються, тому підвищення температури зварювання стимулює їх розвиток. Для зниження стискає тиску і зменшення тривалості зварювання температуру нагрівання зварюваних деталей доцільно встановлювати по можливості більш високою, метали при цьому володіють меншим опором пластичної деформації. Разом з тим необхідно враховувати можливість розвитку процесів структурного перетворення, гетеродіффузіі, освіти евтектики та інших процесів, що призводять до зміни фізико-механічних властивостей зварюваних металів. Питомий тиск впливає на швидкість утворення дифузійного з'єднання і величину накопиченої деформації зварюваних заготовок. У більшості випадків чим вищий питомий тиск, тим менше час зварювання і більше деформація. Так, при зварюванні в пресі з використанням високих питомих тисків (до декількох десятків мегапаскалей) час утворення з'єднання може вимірюватися секундами, а деформація металу в зоні з'єднання десятками відсотків. При зварюванні з використанням низьких питомих тисків (десяті частки мегапаскалях) час зварювання може обчислюватися годинами, але деформація з'єднуються заготовок при цьому складає долі відсотка. Таким чином, задачу вибору питомого тиску слід вирішувати з урахуванням типу конструкцій, технологічної схеми і геометричних розмірів з'єднуваних заготовок, а час зварювання вибирати з урахуванням температури та питомої тиску. При зварюванні різнорідних матеріалів збільшення тривалості зварювання може супроводжуватися зниженням механічних характеристик з'єднання через розвиток процесів гетеродіффузіі, що призводять до формування в зоні з'єднання тендітних інтерметаллідним фаз. Для здійснення дифузійного зварювання у даний час створено понад 70 типів зварювальних дифузійно-вакуумних установок. Розробка і створення установок для дифузійного зварювання у даний час ведеться в напрямку уніфікації систем (вакуумної, нагрівання, тиску, управління) і зварювальних камер. Міняючи камеру в цих установках, можна значно розширити номенклатуру зварюваних вузлів[8].

7. Сутність методу

У 1953 р. професором Н.Ф. Козаковим був розроблений принципово новий спосіб з'єднання матеріалів - дифузійне зварювання у вакуумі. При дифузійному зварюванні зварне з'єднання утворюється в результаті спільного впливу тиску і нагріву. Відмінною особливістю дифузійного зварювання є застосування відносно високих температур нагріву і низьких питомих тисків, звичайно перевищують межі текучості зварюваних матеріалів при температурі зварювання. При дифузійному зварюванні виділяють дві основні стадії утворення якісного зварного з'єднання. Перша стадія - створення фізичного контакту, при якому всі точки з'єднуються матеріалів знаходяться один від одного на відстані міжатомних взаємодій. Друга стадія - формування структури зварного з'єднання під впливом процесів релаксації. Дослідження, проведені в нашій країні і за кордоном, показали, що параметрами, що визначають процес з'єднання при дифузійному зварюванні у вакуумі, є тиск, температура, тривалість їх впливу, стан і рельєф поверхонь, що зварюються. При подальших дослідженнях було встановлено, що попередня обробка зварюваних деталей (рельєф) впливає не тільки на створення фізичного контакту, але і в значній мірі визначає протікання дифузійних процесів за рахунок зміни тонкої структури поверхневих шарів. Будь підготовка зварювальних поверхонь (механічна, електролітична, хімічна та ін) Не виключає утворення оксидів на поверхні металу. Однак цей фактор не завжди чинить негативний вплив на протікання процесу, так як для більшості металів нагрів в вакуумі до температури, використовуваної при зварюванні ((0,7-0,8) Тпл), і відповідний витяг у часі при цій температурі достатні для мимовільної очищення зварювальних поверхонь від оксидів. Тиск, що застосовується при способах зварювання без розплавлення матеріалів, за сучасними уявленнями, виконує три завдання: - руйнування в результаті пластичної течії поверхневих шарів металу і часткове видалення окисних плівок і забруднень; - зближення зварювальних поверхонь для забезпечення фізичного контакту і ефективного атомного взаємодії; - забезпечення активації поверхонь для протікання процесів дифузії і рекристалізації. Процес може здійснюватися з використанням різних теплових джерел нагріву. Найчастіше на практиці знаходять застосування індукційний, радіаційний, електронно-променевої нагрів, а також нагрів проходить струмом, тліючим розрядом і в розплаві солей. В останньому випадку розплав солей виконує роль середовища, в якій здійснюється дифузійна зварювання. Крім вакууму, в якості середовища можуть бути використані захисні або відновні гази. При зварюванні матеріалів, що мають відносно невелике спорідненість до кисню, процес можна вести на повітрі. У практиці дифузійного зварювання відомо застосування двох технологічних схем процесу, що розрізняються характером прикладання навантаження. В одній з них використовують постійне навантаження за величиною нижче межі текучості[9]. При цьому процеси, що розвиваються в зварюваних матеріалах, аналогічні повзучості. Таку технологію називають дифузійної зварюванням за схемою вільного деформування. За другою схемою навантаження і пластичне деформування забезпечуються спеціальним пристроєм, який переміщається в процесі зварювання з контрольованою швидкістю. Таку технологію називають дифузійної зварюванням за схемою примусового деформування. Дифузійної зварюванням у вакуумі практично освоєно з'єднання близько 500 композицій металів, сплавів і неметалевих матеріалів. До теперішнього часу створено понад 70 типів установок дифузійного зварювання.

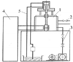
Рис.7.1 Установка дифузійного зварювання

Кожна установка, незалежно від її типу, повинна включати в себе п'ять основних систем (рис.7.1): 1- робоча камера, 2- система охолодження, 3- вакуумна система, 4- джерело нагріву, 5- система тиску. Розробка і створення установок для дифузійного зварювання в даний час ведуться в напрямку уніфікації систем (вакуумної, нагрівання, тиску, управління) і зварювальних камер. Міняючи камеру в цих установках, можна значно розширити номенклатуру зварюваних вузлів. За допомогою дифузійного зварювання у вакуумі, крім уже зазначених сполук металів і сплавів, отримують високоякісні з'єднання кераміки з підступний, міддю, титаном, електровакуумних стекол, оптичної кераміки, сапфіру, графіту з металами, композиційних та порошкових матеріалів та ін Сполучаються заготовки можуть бути дуже різні за своєю формою, мати компактні або розвинені поверхні контактування. Геометричні розміри зварюваних деталей знаходяться в межах від декількох мікрометрів (при виготовленні напівпровідникових приладів) до декількох метрів (при виготовленні шаруватих конструкцій). Спосіб з'єднання дифузійної зварюванням є економічним. Він не вимагає дорогих припоїв, спеціального дроту і електродів, флюсів, захисних газів[2]. Більш того, відпадає подальша механічна обробка і втрата цінного металу, маса конструкції не збільшується, що має місце при зварюванні, пайку і склеюванні. Властивості металу в зоні з'єднання не змінюються, тому термічна обробка необов'язкова. Установки для дифузійного зварювання можна встановлювати в лініях механічної обробки і складання деталей і вузлів. Витрата енергії та потужності споживання їх на зварювання в 4-6 разів менше, ніж, наприклад, при контактному зварюванні. Дифузійну зварювання від інших видів зварювання відрізняє гігієнічність процесу: відсутність ультрафіолетового випромінювання, шкідливих бризок металу, дрібнодисперсного пилу, що вельми важливо для охорони здоров'я працюючих. Досвід багатьох підприємств, НДІ, КБ показав, що дифузійна зварювання успішно конкурує з іншими традиційними видами зварювання. За останній час погляди на дифузійну зварювання принципово змінилися. З процесу для з'єднання матеріалів, які важко або неможливо сполучати звичайними способами зварювання плавленням і пайки, вона перетворилася на загальнодоступний процес з'єднання як невеликих деталей, так і великих, встановлена її конкурентоспроможність з існуючими способами зварювання плавленням і пайкою.

8. Дифузійне зварювання однорідних металевих матеріалів

Мідь знаходить саме широке застосування в електронній промисловості як конструкційний матеріал для виготовлення різних вузлів приладів. Для неї характерні висока електро- і теплопровідність, малі газопроникність і газовиділення, корозійна стійкість, немагнитность, висока пластичність. Мідь марок МБ, MB, MBK, Ml є основним матеріалом для виготовлення анодів і анодних блоків, що уповільнюють систем, вводів енергії магнетронів, клістронів, ламп зворотної хвилі, ламп біжучої хвилі, потужних генераторних і газорозрядних приладів та ін Широко використовується вона і в поєднанні з різноманітними металевими і неметалевими матеріалами. Мідь і її сплави становлять 90-95% від загального обсягу застосування в електроніці металевих матеріалів (у масовому вимірі). Мідь належить до числа матеріалів, ДС яких не викликає особливих утруднень. Равнопрочность сполук міді основного матеріалу досягається при ДС по режиму. ТСВ = 850oС, РСВ = 7-8 МПа, Т = 20 хв, V = 1, ЗЗх10-2 Па, зазвичай принимаемому за оптимальний. Дифузійна зварка міді знаходить найбільш широке і успішне застосування при виготовленні складових пакетованих вузлів НВЧ-приладів: уповільнюють систем, анодних блоків і резонаторів. Заготовки пакетованих високочастотних систем сантіметрового діапазона отримують зазвичай вирубкою з листової міді. Після очищення поверхні вони в необхідній кількості збираються в пристосуваннях, що забезпечують їх точне взаємне розташування, і зварюються один з одним по оптимальному режиму при температурі 850oС. Цей режим забезпечує необхідну точність систем аж до середньої частини міліметрового діапазону. У зоні з'єднання зберігається, як правило, межа розділу, але її ширина такого ж порядку, що і звичайна межзеренное межа. У той же час ДС міді при температурах вище 800oС і питомих тисках більше 5 МПа призводить до пластичної деформації деталей порядку десятих часток - одиниць відсотків. Високочастотні системи міліметрового і субміліметрового діапазонів відрізняються мініатюрністю і високою точністю. Ширина ламелей анодних блоків доходить до 0,2 мм. Ще більш ажурні дрібноструктурні уповільнюють системи, поперечні розміри їх штирів складають десятки мікрон. Заготовки для цих систем отримують прецизійної електроіскровий обробкою, фотогравірованіем або фотоосажденіем. В цих діапазонах навіть незначні деформації систем, вимірювані одиницями мікрон, істотно погіршують параметри приладів. Тому проблема дифузійного зварювання (ДС) з повним збереженням вихідних розмірів деталей при задовільній міцності (пластичності) з'єднань є досить актуальною для електронної промисловості. У відповідності з уявленнями про механізм і кінетику процесу ДС можна виділити наступні шляхи підвищення прецизійних з'єднання при ДС: підвищення класу чистоти обробки поверхонь; застосування прослоєв з пластичних матеріалів, в тому числі розплавляються при зварюванні, зварювання в надвисокому вакуумі. Зазначені прийоми в тій чи іншій мірі полегшують і прискорюють розвиток першій стадії ДС: очищення поверхонь від окисних і жирових плівок і розвиток їх фактичного контакту. Більш груба підготовка поверхонь збільшує час протікання першій стадії і загальну тривалість процесу зварювання і в кінцевому підсумку призводить до більшої пластичної деформації деталей. Це наочно ілюструють кінетичні криві міцності, отримані при зварюванні за одним режимом, але з різною чистотою обробки поверхні міді. Для розробки технологічного процесу, що гарантує отримання вакуумноплотних з'єднань, важливо визначити моменти, в які закінчується процес їх формування. Вважають, що при дифузійному зварюванні процес формування сполук металів з металами і металів з неметалевими матеріалами, що мають міцнісні і вакуумні властивості, ідентичні властивостям основного матеріалу, завершений, якщо в результаті дифузійного заліковування пор в контактній зоні стабілізується потік водню, що протікає через неї. Для експериментального дослідження кінетики формування з'єднань розроблений спеціальний метод активного контролю, що полягає в тому, що в процесі зварювання через контактну зону «продувається» потік газів із суміші гелію і водню, контрольований мас-спектрометром. Момент припинення потоку гелію через зону з'єднання відповідає початковому моменту досягнення вакуумної щільності (закриття наскрізних каналів), а стабілізація потоку водню - моменту завершення дифузійного взаємодії та формування з'єднання, ідентичного основному металу по вакуумній щільності і термостійкості. Про співвідношення технологічних параметрів, при яких мають місце ці моменти, можна судити по малюнку 10.4.Слід зазначити, що немає єдиної думки про оптимальних режимах дифузійного зварювання пар металів, найбільш поширених в електронній техніці, - мідь МБ + мідь МБ і мідь МБ + сталь Е.З використанням методів математичного планування експериментів, зокрема центрального композиційного ротатабельного уніформ-планування другого порядку, отримано регресійні рівняння, що дозволяють в широкому інтервалі параметрів розраховувати наперед задану міцність 0, 1 σ [МПа] (y1) і деформацію ε [%] (у2) при контрольованому рівні вакуумної щільності: для з'єднання мідь МБ + МБ при Т = 700 ... 900 oС:Застосування прокладки з більш м'якого матеріалу, ніж зварюваний, призводить до локалізації в ній пластичної деформації стиснення. Фактичний контакт утворюється при цьому переважно за рахунок активної деформації і повзучості матеріалу прокладки, що заповнює мікронерівності поверхонь, що з'єднуються, що істотно знижує мінімально необхідний рівень тиску стиснення і зміна форми деталей. При ДС високоточних вузлів міді застосовуються проміжні прошаруй золота або срібла. Срібло і тим більше золото володіють більш високою здатністю до релаксації напруг в умовах зварювання. Гідністю цих металів є також висока чистота поверхні, так як золото практично не окислюється, а оксиди срібла дисоціюють вже при нагріванні на повітрі. Дифузійна зварка виконується зазвичай через прослой золота 2-6 мкм, який гальванічно наноситься на одну з контактних поверхонь. При зварюванні порежіму ТСВ = 500oС, Р = 1 МПа, Т = 10 хв., V = л, 33x10-3 Па витримуються задані допуски в межах 5-10 мкм, з'єднання вакуумно-щільні, мають надійний тепловий та електричний контакти. Зварювання пакетованих конструкцій через прошаруй без них може успішно застосовуватися для виготовлення коаксіальних магнетронів зверненої конструкції, що уповільнюють систем типу «хвилеводу», «гребінки», «зустрічних пластин», «штир-кільце» та інших вузлів магнетронів, ламп біжучої хвилі, ламп зворотної хвилі .ДС мідних деталей проводиться також при виготовленні вузлів інших поширених джерел НВЧ-коливань: клістронів, що застосовуються в якості малошумящих генераторів, потужних підсилювачів і генераторів безперервного і імпульсної дії, помножувачів частоти. ДС забезпечує високу якість виготовлення резонаторів клістронів з бессеточная високочастотним зазором і з зазором, обмеженим сітками. В залежності від вимог до точності сіткових вузлів, їх жорсткості, матеріалу для їх з'єднання застосовуються режими ДС без прошарку або з прошарками. Останні застосовуються для з'єднання з сеткодержателямі мікросеток, так як найменші деформації деталей при зварюванні істотно впливають на робочу частоту приладів, а нерідко і на їх вихідну потужність. ДС через тонкі прошаруй золота, срібла і нерозплавленому припоїв на їх основі дозволяє отримати з'єднання з залишковими деформаціями не вище 0,1% і зберегти первісну прозорість сіток. На відміну від пайки, після зварювання не змінюються поверхневі властивості сіток і виключено натікання металу на перемички. Застосування розплавляється прослоєв перспективно для ДС однорідних і різнорідних металевих матеріалів при отриманні високоміцних прецизійних з'єднань. Якщо зварювання міді через тонкий прошарок срібла виконується при температурі, дещо перевищує Тпл евтектики Ag-Cu (але залишається нижче температури плавлення срібла), то розвивається процес контактно-реактивного плавлення. Така технологія по суті аналогічна контактно-реактивного пайку, але при ДС зберігається можливість в широкому діапазоні змінювати тиск стиснення деталей і тим самим впливати на фізико-хімічні процеси, що протікають в контакті. Особливістю кінетики цих процесів є те, що рідка фаза виникає після утворення фактичного контакту поверхонь і хімічної взаємодії між ними. Високоміцні, термостійкі з'єднання виходять після повного розчинення рідкої прошарку в основному матеріалі. Кількісні оцінки тривалості цього процесу вельми прібліженни, так як при зварюванні відбувається часткове видавлювання рідкої фази з стику, і це ускладнює визначення її реальної товщини. Срібло володіє обмеженою розчинністю в міді (не більше 8%), тому товщина його шару повинна бути невеликою. Експерименти по ДС та досвід пайки показали, що оптимальною є товщина гальванічно обложеного на мідь шару срібла 4-7 мкм. При температурі процесу 800oС (V = 1, ЗЗх10-2 Па) равнопрочность з'єднання досягається при часі зварювання 25-30 хв. і тиску стиснення 4 МПа. При зниженні тиску стиснення міцність з'єднання дещо падає. Але і після зварювання за наведеним режиму (РСВ = 4 МПа) залишкова деформація деталей не перевищує 0,1%, що дозволяє рекомендувати таку технологію для отримання не тільки прецизійних з'єднань міді, але і її поєднань з нікелем, підступний, сталями. Зварку мініатюрних вузлів переважно слід вести на установках з радіаційним нагрівом, які забезпечують рівномірний розігрів всього пакету деталей. При використанні установок з індукційним нагріванням необхідне застосування спеціальних екранів. Матеріал екрану повинен бути достатньо тугоплавким і високопроніцаемого для електромагнітного поля. Найбільш широке застосування знаходить графіт, наближається за своїми характеристиками до абсолютно чорного тіла. В якості матеріалу екранів можуть застосовуватися також молібден і інші матеріали. Зварювання можна вести в звичайних вакуумних або водневих печах. Зусилля зварювання забезпечується в цьому випадку вантажем відповідної величини, що поміщається на шток пристосування, або за рахунок різниці температурних коефіцієнтів лінійного розширення зварюваних деталей і пристосування. На малюнку 10,6 показано одномісне пристосування. Зварювальне тиск забезпечується вантажем (2) і повзуном (1) і передається через шток (3) на мікросіткою (4) і сеткодержатель (5). Для підвищення продуктивності зварювання різних вузлів приладів виконується зазвичай в багатомісних пристосуваннях складала в середньому 4 * 108 Па. Зварювання натурних деталей зазвичай проводилася при чистоті обробки поверхонь Ra = 1,25-0,64 в режимі ТСВ = 1 000oС, РСВ = 1,5 * 107 Па, Т = 10 хв., Вакуум не менше 1,33 * 10-2 Па. Процес можна успішно вести в середовищі водню з точкою роси-40oС. Залишкова деформація деталей при цьому не перевищує 0,5%. Більш тривала ізотермічна витримка при температурі зварювання призводить до деякого зниження міцності з'єднання, що, мабуть, обумовлено розвитком рекрісталлізаціонний процесів, що призводять до зняття наклепу та знеміцнення металу в зоні з'єднання. Прикладом ДС натурних конструкцій з нікелю є технологія виготовлення керна оксидного катода водневого тиратрона, зварюваного в спеціальному пристосуванні. Пристосування складається з корпусу, кілець, притискного диска і мідної прокладки, необхідної для більш рівномірної передачі тиску. Для запобігання схоплювання при зварці вводиться проміжна прокладка з збезводненої слюди. Зварювання малогабаритних катодних вузлів з нікелевих сплавів може здійснюватися в багатомісних пристосуваннях із створенням зварювального тиску за рахунок відмінності ТКЛР. Електротехнічні нікелеві сплави типу монель-метал і константам, що містять у своєму складі, крім нікелю, залізо і мідь, також не мають на поверхні термодинамічно стійкою окисної плівки. Технологія і режими їх зварювання не відрізняються істотно від зварювання чистого нікелю. Значно важче зварювати ніхроми - жароміцні сплави на нікелевій основі. Наявність в сплаві хрому і таких легуючих елементів, як титан і алюміній, обумовлює хімічну стійкість плівки окислів на їх поверхні. Найбільш ефективна ДС ніхрому через проміжний шар нікелевої фольги (σ = 13 мкм) або прослой сплаву нікелю з 2% берилію. Міцність одержуваних сполук досягає 90% міцності основного матеріалу. Зварювання алюмінію і його сплавів. Алюміній за обсягом виробництва посідає друге місце після заліза. Його найбільш характерні властивості - невелика щільність (2700 кг/м3) і низька температура плавлення (933 К). В якості основних легуючих елементів для алюмінію використовують магній, марганець, кремній і мідь. Основним ускладненням ДС алюмінію і його сплавів є висока активність до кисню та наявність на поверхні термодинамічно міцної оксидної плівки, а при з'єднанні з багатьма іншими металами також утворення тендітних інтерметалідів. При зварюванні алюмінію і його сплавів особливе місце відводиться хімічній обробці поверхонь перед зварюванням. Оксидна плівка може віддалятися травленням (розчин лугу для алюмінію, ортофосфорна кислота для сплавів АМг і АМц з подальшим висвітленням в азотній кислоті) або зачищають металевою щіткою. Доцільно після очищення від оксидів зварювані поверхні алюмінієвих деталей покривати смолами, лаками та полімерами на основі стиролу, що розкладаються без залишку при нагріванні у вакуумі. Зварювання алюмінію і його сплавів виконують при температурі 773-873 К. В однорідному поєднанні ці матеріали з'єднують ДС вкрай рідко. Зазвичай зварюють алюміній і його сплави в різнорідному поєднанні. При взаємодії алюмінію з залізом утворюється ряд інтерметалідів, охрупчиваются з'єднання, тому процеси взаємодії металів в стику повинні строго контролюватися. Ця небезпека виникає при зварюванні алюмінію АДО зі сталлю 12Х18Н10Т.Міцні та надійні з'єднання алюмінію із сталлю можна отримати, використовуючи проміжні прокладки, що наносяться на сталеві деталі гальванічним або хімічним способом, напиленням у вакуумі або іншими способами. Мінімальну ширину шару інтерметалідів отримують у разі застосування прокладок з цинку, срібла, міді, нікелю, які запобігають або сповільнюють утворення інтерметалідів. Так, сплав АМЦ і алюміній з'єднують зі сталлю 20, сталлю СтЗ, сталлю 15, армко-залізом через нікелеву прокладку, яку наносять на сталеву деталь через подслой міді. Зварювання в вакуумі зі ступенем 10-1 Па при Т = 823 К, р = 12-15 МПа, Т = 2 хв. забезпечує равнопрочность з'єднань з алюмінієм і сплавом АМц відповідно. Зварку сталі з алюмінієм виконують також із застосуванням комбінованих покриттів стали: мідно-цинкового, нікель-цинкового (4-6 мкм міді або нікелю і 30-40 мкм цинку) і срібно-цинкового. При цьому в з'єднанні утворюється прошарок складного складу меншої товщини і твердості. Сплави АМг з'єднують зі сталлю через прокладку алюмінію, який в свою чергу зварюють зі сталлю з представленими вище покриттями. Зварювання алюмінію і його сплавів з вуглецевими, високолегованої сталі, підступний з меднением поверхні сталевої деталі або іншими прокладками виконується у вакуумі зі ступенем 10-1-10-2 Па при температурі 773-823 К і тиску 5-15 МПа протягом Т <30 хв. в залежності від фізико-механічних властивостей алюмінієвих сплавів. У тих же межах змінюються параметри режиму дифузійного зварювання алюмінію з хімічно активними і тугоплавкими металами. Іноді застосовують нікелеві прокладки. Алюмінієві сплави зварюють з тугоплавкими металами через алюмінієві прокладки. Залізо застосовується в електронній техніці лише найбільш чистих сортів - марок А і Е. З сортів магнітномягкого матеріалу виготовляють складові полюсні наконечники, вкладиші, кришки, оболонки електровакуумних приладів. Стійкість по відношенню до ртуті робить сплав армко незамінним матеріалом при виготовленні катодів ртутнонаполненних приладів. Вакуумна щільність деталей з низьковуглецевих сталей істотно залежить від текстури матеріалу, що робить можливим натікання газів в прилад через основний матеріал. Для зниження цього небажаного ефекту пред'являються спеціальні вимоги до конструювання з'єднань з урахуванням текстури матеріалу або застосовуються стали вакуумної плавки. Зварювання титану і його сплавів [6].

Висновок

Зварювання - один із провідних технологічних процесів, який широко застосовується в різних галузях господарства. Підвищення ефективності зварювального виробництва може бути досягнуте як за рахунок удосконалення існуючих способів зварювання, так і застосування нових. Вирішення багатьох технічних проблем стало можливим завдяки розробці спеціальних способів зварювання. Створені для зварювання певних матеріалів або конструкцій, ці способи виявилися більш ефективними, ніж традиційні електродугові та електроконтактні, також при виготовленні деталей, вузлів і конструкцій, що звичайно вироблялися за допомогою традиційних способів. Разом із тим спеціальні способи зварювання змінили уявлення про здатність металів до зварювання: багато з них перейшли з розряду металів, що погано зварюються, у розряд металів із доброю або задовільною здатністю до зварювання. У другій половині двадцятого століття створено десятки нових способів зварювання. Теорія, технологія та обладнання багатьох із них висвітлені в монографіях та наукових статтях.

Розвиток та впровадження багатьох спеціальних способів зварювання і споріднених технологій відбувалися завдяки праці радянських та українських вчених, а також особисто Президента Національної академії наук України академіка Б.Є. Патона. Серед організацій провідну роль у розвитку багатьох із цих способів відіграв Інститут електрозварювання імені Є.О. Патона HAH України.

Перелік літературних джерел

1. Квасницький В.В. Спеціальні способи зварювання: Підручник. - Миколаїв:УДМТУ, 2003. - 110 с.

2. Диффузионная сварка материалов: Справочник/под. ред. Н.Ф.Казакова. - М.: Машиностроение, 1981. - 205 с.

3. Казаков Н.Ф. Диффузионная сварка материалов. - М: Машиностроение, 1976. - 120 с

. Квасницький В.В. Теорія зварювальних процесів. - Миколаев.: УДМТУ, 2002. - 215 с.

. Никалаев Г.А., Ольшанський Н.А. Спеціальніе методи сварки. - М.: Машиностроение, 1975. - 56 с.

. Сварка в машиностроении: Справочник/Поп. ред. Н.А.Ольшанського. -М.:Машиностроение,1978. - Т.1 - 166 с.

. Мусин Р.А., Анциферов В.Н., Квасницький В.Ф. Диффузионная сварка жаропроцньіх сплавов. - М.: Металлургия, 1979. - 121 с.

8. Уєрт Н. Томсон Г. Физика твердого тела. - М.: Мир, 1969. - 144 с.

9. Бакиш О.А. Механическая неоднородность сварних соединений. - Челябинськ: ЧПН, 1981. - 99 с.

10. Дифузионная сварка в вакууме дисперсионно-твердеющих жаропрочніьх сплавов с прокладками/Г.В. Ермолаев, Н.П. Житников, В.М. Заболотський, В.А. Игнатов, В.Ф. Квасницький//Судостроителиная промишленность. Сер.: Сварка. - 1988. - 79 с.

. Технология и оборудование сварки плавлением/А. И. Акулов и др. М.:Машиностроение, 1977. −332 с.