Материал: Бодунов Физика учебник

Внимание! Если размещение файла нарушает Ваши авторские права, то обязательно сообщите нам

реакции, чтобы в этой области было достаточно нейтронов для поддержания цепной реакции. Все это в конце 1942 г. осуществил Э. Ферми с сотрудниками – был запущен первый в мире ядерный реактор.

Цепная реакция сопровождается выделением большого количества энергии. Так, энергия, выделяющаяся при делении одного ядра 92238U, равна

3,87 10–11 Дж. При делении ядер, содержащихся в 1 г урана, выделяется 7,92 1010 Дж. Энергия деления – это кинетическая энергия осколков деления, имеющих огромную скорость.

Образующиеся осколки деления неустойчивы, так как перегружены нейтронами. Эти нейтроны являются избыточными и испускаются осколками. Испускаемые нейтроны вызывают новые акты деления. Возникает цепная реакция. Процесс развития цепной реакции деления зависит от среднего числа нейтронов, приходящихся на один акт деления. При делении ядер ура-

на 92238U среднее число нейтронов равно 2,5.

Необходимым условием протекания цепной реакции является наличие нейтронов перед каждым новым актом деления. Для этого отношение K числа нейтронов, возникших в каком-либо звене реакции, к числу нейтронов, возникших в предыдущем звене, должно быть равно или больше единицы:

K 1. Число K называется коэффициентом размножения.

На развитие цепной реакции оказывают влияние также размеры активной зоны – области пространства, в которой происходит деление. Минимальные размеры зоны, при которых K 1, называются критическими, а минимальная масса делящегося вещества, не превышающая пределов критиче-

ских размеров, – критической массой.

Ядерный реактор. Цепная ядерная реакция, в которой регулируется скорость ее протекания, называется управляемой реакцией деления. Реакция такого типа происходит в ядерных реакторах.

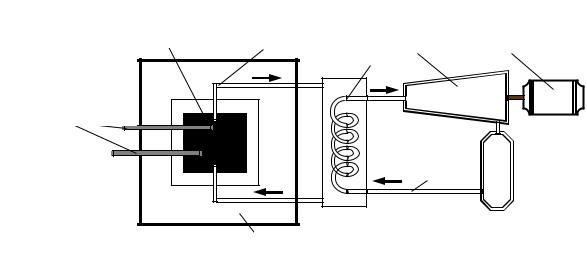
Основными компонентами ядерного реактора являются (рис. 4.8): ядерное топливо (горючее), замедлитель и отражатель нейтронов, теплоноситель для отвода теплоты от реактора и стержни. Стержни регулируют скорость реакции путем захвата лишних нейтронов деления и таким образом снижают коэффициент размножения (чтобы реакция не носила характера взрыва).

Ядерным топливом в реакторе служат изотопы урана 92235 U и 92238 U ,

плутония 94239 Pu , тория 90232 Th . Замедлители и отражатели нейтронов необхо-

димы для увеличения числа медленных нейтронов, способных участвовать в цепнойреакции. Теплоносителями обычно служат вода, жидкий натрий или другие вещества. Теплоноситель охлаждает реактор и передает теплоту воде, превращая ее в пар. Пар поступает на турбину, связанную с генератором электрического тока.

95

ЯдерноеЯдерноегорючеегорючееи замедлитель

 

 

 

и замедлитель

Теплоносительноси ель

 

 

а

 

 

Пар

Турбина

Генератор

Регулирующие

Регулирующие

стержни

Вода

ОтОтражаражатель тель Защитаотрадиации

Рис. 4.8

В настоящее время в России ядерные реакторы производят около 16 % электроэнергии, для сравнения в США – 19, в Германии – 28, в Японии – 29, во Франции – около 74 %.

96

Литература

1.Детлаф, А. А. Курс физики: учеб. пособие для втузов / А. А. Детлаф, Б. М. Яворский. – М.: Высшая школа, 2005. – 720 с.

2.Зисман, Г. А. Курс общей физики: учеб. пособие: в 3 т. Т. 3. Оптика. Физика атомов и молекул. Физика атомного ядра и микрочастиц / Г. А. Зисман, О. М. Тодес. – СПб.:

Лань, 2007. – 498 с.

3.Савельев, И. В. Курс общей физики: учеб. пособие для втузов: в 3 т. Т. 2. Электричество и магнетизм. Волновая физика. Оптика / И. В. Савельев. – СПб.: Лань, 2012. – 336 с.

4.Савельев, И. В. Курс общей физики: учеб. пособие для втузов: в 3 т. Т. 3. Квантовая оптика. Атомная физика. Физика твердого тела. Физика атомного ядра и элементарных частиц / И. В. Савельев. – М.: Лань, 2012. – 256 с.

5.Сивухин, Д. В. Курс физики: в 5 т. Т. 5. Атомная и ядерная физика / Д. В. Сивухин. – М.: Физматлит/МФТИ, 2002. – 782 с.

6.Сивухин, Д. В. Курс физики: в 5 т. Т. 4. Оптика / Д. В. Сивухин. – М.: Физматлит/

МФТИ, 2005. – 794 с.

7.Трофимова, Т. И. Курс физики: учеб. пособие для вузов / Т. И. Трофимова. – М.: Высшая школа, 2006. – 558 с.

8.Физика. Колебания и волны. Оптика. Атом и атомное ядро: учеб. пособие для учащихся факультета довузовской подготовки / Ю. А. Кытин, В. И. Никитченко, А. М. Петухов, Р. А. Романова. – СПб.: ПГУПС, 2007. – 50 с.

9.Физика: учеб. пособие для абитуриентов / Е. Н. Бодунов, Ю. А. Кытин, В. И. Никитченко, А. М. Петухов, Р. А. Романова. – СПб.: ПГУПС, 2012. – 188 с.

10.Фиргант, Е. В. Руководство к решению задач по курсу общей физики: учеб. по-

собие. – СПб.: Лань, 2009. – 352 с.

11.Чертов, А. Г. Задачник по физике: учеб. пособие для втузов / А. Г. Чертов, А. А. Воробьев. – М.: Физматлит, 2009. – 640 с.

97

Содержание

 

Предисловие............................................................................................................................

3

1. Волновая оптика ................................................................................................................

5

1.1. Основные характеристики электромагнитных волн................................................

5

1.2. Геометрическая оптика.............................................................................................

10

1.3. Интерференция света................................................................................................

16

1.4. Дифракция света........................................................................................................

26

1.5. Взаимодействие света с веществом.........................................................................

34

1.6. Поляризация света.....................................................................................................

39

2. Элементы квантовой механики....................................................................................

48

2.1. Тепловое излучение...................................................................................................

48

2.2. Фотоэффект................................................................................................................

53

2.3. Эффект Комптона......................................................................................................

56

2.4. Давление света...........................................................................................................

58

2.5. Длина волны де Бройля.............................................................................................

59

2.6. Волновая функция. Уравнение Шредингера..........................................................

60

2.7. Принцип неопределенностей Гейзенберга..............................................................

63

3. Элементы атомной физики............................................................................................

65

3.1. Строение атома..........................................................................................................

65

3.2. Рентгеновское излучение..........................................................................................

70

3.3. Люминесценция.........................................................................................................

74

3.4. Лазер...........................................................................................................................

78

4. Элементы ядерной физики.............................................................................................

81

4.1. Размер, состав и заряд атомного ядра. Массовое и зарядовое числа...................

81

4.2. Дефект массы и энергия связи ядра.........................................................................

82

4.3. Ядерные силы. Модели ядра....................................................................................

83

4.4. Радиоактивность........................................................................................................

85

4.5. Закон радиоактивного распада.................................................................................

90

4.6. Ядерные реакции синтеза и деления .......................................................................

91

Литература ............................................................................................................................

97

98

Учебное издание

Бодунов Евгений Николаевич Никитченко Валерий Иванович Петухов Александр Михайлович

ИНТЕНСИВНЫЙ КУРС ФИЗИКИ

Волновая оптика, элементы квантовой механики, атомной и ядерной физики

Учебное пособие

Редактор и корректор А. А. Гранаткина Компьютерная верстка А. А. Стукановой

План 2011 г., № 83

Подписано в печать с оригинал-макета 13.02.2014. Формат 60×84 1/16. Бумага для множ. апп. Печать ризография.

Усл. печ. л. 6,2. Тираж 300 экз. Заказ 1196.

ФГБОУ ВПО ПГУПС. 190031, СПб., Московский пр., 9. Типография ФГБОУ ВПО ПГУПС. 190031, СПб., Московский пр., 9.

99