Материал: Базовая компоновка РТК на сверлильную операцию для обработки вала-шестерни в среднесерийном производстве

Внимание! Если размещение файла нарушает Ваши авторские права, то обязательно сообщите нам

где - поправочный коэффициент [1, с. 385, таблица 42];

q, y - показатели степеней [1, с. 385, таблица 42];

Kp - общий поправочный коэффициент, учитывающий фактические условия резания.

,

,

 Н·м

Определяем мощность резания

,

 кВт

Определяем мощность электродвигателя станка

дв =  кВт,

Получившаяся мощность меньше мощности главного привода.

Определяем минутную подачу

,

 мм/мин

Определяем основное время

,

где L - длина резания, мм.

Определяем длину резания

,

 мм,

 мин

Переход 3. Зенкование фасок.

Припуск t=1,6 мм.

Подачу принимаем S=0,17 мм/об [1, с. 381, таблица 35].

Определяем скорость резания

,

где - поправочный коэффициент [1, с. 383, таблица 39];

m, q, y, x - показатели степеней [1, с. 383, таблица 39];

,

,


Определяем частоту вращения шпинделя

,

 мин-1

Принимаем n=840 мин-1.

Определяем действительное значение скорости резания


Определяем крутящий момент

,

x, q, y - показатели степеней [1, с. 385, таблица 42];

Kp - общий поправочный коэффициент, учитывающий фактические условия резания.

,

,

 Н·м

Определяем мощность резания

,

 кВт

Определяем мощность электродвигателя станка

дв =  кВт,

Получившаяся мощность меньше мощности главного привода станка.

Определяем минутную подачу

,

 мм/мин

Определяем основное время


Определяем длину резания

,

 мм,

 мин

Переход 4. Нарезание резьбы.

Подачу принимаем S=1,25 мм/об.

Определяем скорость резания

,

где  - поправочный коэффициент [1, с. 431, таблица 118];- номинальный диаметр резьбы, мм;, q, y - показатели степеней [1, с. 431, таблица 118];

Т - период стойкости, мин [1, с. 431, таблица 118].

=,(13)

где Кmv- коэффициент, учитывающий качество обрабатываемого материала [1, с. 433, таблица 119];

Кtv - коэффициент, учитывающий точность нарезаемой резьбы [1, с. 433, таблица 119];

Кuv- коэффициент, учитывающий материал инструмента [1, с. 433, таблица 119].

,


Определяем частоту вращения шпинделя

,

 мин-1

Принимаем n=405 мин-1.

Определяем действительное значение скорости резания


Определяем крутящий момент

,(14)

где  - поправочный коэффициент [1, с. 433, таблица 120];, y - показатели степеней [1, с. 433, таблица 120];- шаг резьбы, мм;- общий поправочный коэффициент, учитывающий фактические условия резания [1, с. 433, таблица 119].

 Н·м

Определяем мощность резания

,

 кВт

Определяем мощность электродвигателя станка дв =  кВт,

Получившаяся мощность меньше мощности главного привода станка.

Определяем минутную подачу

,

 мм/мин

Определяем основное время

(15)

Определяем длину резания

,

 мм,

 мин

Рассчитаем время перемещения инструмента по выбранной траектории

, (16)

где tр.х. - время выполнения рабочего хода траектории;

n - количество рабочих ходов;

tх.х. - время выполнения холостого хода траектории;

m - количество холостых ходов;

Переход 1.

Определяем время холостого хода

, (17)

где Lх.х. - величина траектории холостого хода, мм;

Sм.б - минутная подача быстрых перемещений, мм/мин.

 мин

Переход 2.

Определяем время холостого хода

 мин

Переход 3.

Определяем время холостого хода

 мин

Переход 4.

Определяем время холостого хода

 мин

Соответственно

 мин

Определяем время автоматической смены инструмента - (8 c) 0,13 мин.

, (18)

где t - время смены одного инструмента, мин;

i - количество используемых на операции инструментов.

 мин

Время зажима или разжима заготовки в приспособлении - 0,05 мин.

. Выбор промышленного робота для РТК

Для выбора промышленного робота, работающего в составе РТК, необходимо отметить основные требования, которым должен соответствовать промышленный робот:

обеспечение заданной грузоподъемности;

размеры рабочей зоны промышленного робота должны определяться размерами, формой и положением рабочих зон обслуживаемого оборудования;

система управления промышленного робота выбирается с учетом способа позиционирования рабочего органа, количества управляющих координат, объема памяти;

захватное устройство ПР выбирается с учетом конструктивно-технологических параметров объекта манипулирования.

грузоподъемность промышленного робота должна превышать массу объекта манипулирования не менее чем на 10%.

Формы и размеры рабочей зоны должны быть такими, чтобы загрузка и выгрузка заготовки из рабочей зоны основного и вспомогательного оборудования осуществлялась беспрепятственно.

Для разгрузки-загрузки станка модели 2206ВМФ4 могут быть использованы ПР с прямоугольной и цилиндрической системой координат.

Для промышленного робота, работающего в составе РТК, число степеней подвижности в наибольшей степени зависит от формы, размеров и положения рабочей зоны оборудования и относительного положения ограничительных поверхностей, образующих зону загрузки-разгрузки.

Погрешность позиционирования влияет на процесс установки заготовки в приспособлении, как основного, так и вспомогательного оборудования.

В соответствии с выше изложенным выбираем промышленный робот модели “JOB’ oT-10”.

грузоподъемность - 50 кг;

число степеней подвижности - 5;

число программируемых координат - 5;

привод основных движений - электромеханический;

система управления - позиционная;

средство программирования - обучение;

погрешность позиционирования - ±2 мм

наибольший вылет руки - 2500 мм;

линейное перемещение, мм: = 1170;= 1000.

скорость линейного перемещения, м/с:= 0,6;= 0,5.

угловые перемещения, °:

φ = 300;

α = 350;

β = 180.

угловая скорость, °/с:

φ =60;

α =60;

β = 60.

- масса - 2400 кг.

Рисунок 4 - Схема ПР

На рисунке 5 представим схему захвата заготовки.

Рисунке 5 - Схема захвата заготовки

4. Выбор вспомогательного оборудования для РТК

Основными функциями вспомогательного оборудования является:

функция накопления;

функция транспортирования и поштучной выдачи изделий;

функция ориентации и переориентации изделий.

Основным требованием к выбору вспомогательного оборудования для РТК является: заготовка при поступлении и удалении должна занимать требуемое положение относительно захватного устройства ПР, а рабочая зона вспомогательного оборудования должна пересекаться с рабочей зоной промышленного робота.

В состав проектируемого РТК в качестве вспомогательного оборудования будет входить тактовый стол. На пластины тактового стола устанавливаются приспособления с заготовками. В качестве приспособления для базирования используются призмы, которые выбираются в зависимости от величины диаметров заготовки, устанавливаемой на ней. Выбираем призмы 7033-0108 ГОСТ 12197-66.

Представим схему укладки заготовки в призму на рисунке 6.

Рисунок 6 - Схема укладки заготовки в призму

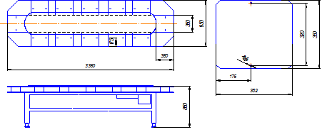
В состав проектируемого РТК будет входить тактовый стол СТ 350, служащий для хранения заготовок (готовых деталей) и подачи их в зону (из зоны) захвата ПР. Время поворота тактового стола Тв=3,5 с. Представим схему тактового стола СТ 350 и пластины к нему на рисунке 7.

Рисунок 7 - Схема тактового стола СТ 350 и пластины к нему

. Анализ возможных вариантов компоновок РТК

При анализе возможных вариантов компоновок РТК мы будем сравнивать компоновочные схемы линейного типа и кольцевого типа.

При линейной компоновке обслуживаемое оборудование расположено в один ряд. Роботизированный технологический комплекс такого типа строится на базе напольных и портальных роботов.

Рисунок 8 - Компоновочная схема линейного типа

- Станок;

- Промышленный робот;

- Тактовый стол.

Представленная линейная схема компоновки оборудования имеет следующие преимущества:

экономия производственной площади;

удобство обслуживание оборудования;

обеспечение беспрепятственного перемещения захватного устройства;

удобство загрузки-разгрузки основного и вспомогательного оборудования.

В кольцевой компоновке оборудование располагается непосредственно вокруг робота.

Кольцевая компоновка РТК дает:

удобство загрузки-разгрузки основного и вспомогательного оборудования;

беспрепятственное перемещение захватного устройства ПР;

возможность расстановки оборудования с учетом удобства подхода к нему оператора или наладчика;

оборудование располагается вокруг робота, что приводит к экономии производственной площади;

кольцевая компоновка РТК дает очень высокую точность позиционирования (углового 7’’).

Рисунок 9 - Компоновочная схема кольцевого типа

В данной курсовой работе мы принимаем компоновочную схему кольцевого типа как более предпочтительную.

. Построение и расчет элементов траектории захватного устройства ПР

Построение траектории выполним в виде графического изображения пути перемещения геометрического центра захватного устройства ПР. Начало траектории свяжем с нулевой (исходной) точкой, определенной в соответствии с исходным положением ПР.

Рисунок 10 - Траектория перемещения захватного устройства ПР

Таблица 3 - Элементы траектории перемещения захватного устройства

Элемент  траектории

Комментарий

Величина перемещения, мм, (град)

r01

Перемещение руки ПР вперед

720


Зажим заготовки схватом ПР

-

z12

Перемещение руки ПР вверх

100

r23

Перемещение руки ПР назад

720

φ34

Поворот руки ПР по часовой стрелки

90

r45

Перемещение руки ПР вперед

720

Z56

Перемещение руки ПР вниз - до оси шпинделя

100


Разжим схвата ПР

-

r67

Перемещение руки ПР назад

720


Выстой руки ПР

-


7. Расчет допустимых скоростей перемещения заготовки (детали)

Определяем допустимую скорость линейного позиционирования в диапазоне вылета руки промышленного робота

,(19)

где Lx - вылет руки ПР, м;

 - погрешность позиционирования, мм;

М - масса объекта манипулирования, кг.


Определяем скорость вертикального перемещения ПР при условии уравновешивания масс

,(20)

где  - коэффициент, зависящий от конструкции привода;

Lz - длина пути при вертикальном перемещении, м.

Определяем допустимую угловую скорость при повороте руки ПР относительно вертикальной оси

, (21)

где  - угловая скорость, рад/с;

 - угол поворота руки, рад;

 - погрешность углового позиционирования, с.

рад/с

. Построение циклограммы функционирования РТК

Циклограмма функционирования РТК включает в выбранной последовательности все действия, выполняемые основным и вспомогательным оборудованием, а также ПР, необходимые для обработки заготовки.

Построение циклограммы функционирования РТК обеспечивает:

быстроту определения рабочего цикла Тр;

значение цикловой производительности Qц;

существенное представление о том как возможно произвести сокращение Тр за счет совмещения времени выполнения отдельных переходов и сокращении длительности не совмещенных переходов.

После того, как мы определи все движения ПР и установили последовательность их выполнения, нам необходимо определить время выполнения каждого движения

,(22)

,(23)

где  - углы поворотов механизмов, рад;

 - линейные перемещения механизмов, м;

 - скорость углового перемещения механизма по соответствующей координате, рад/с;

 - скорость линейного перемещения механизма по соответствующей координате, м/с.

Рисунок 11 - Циклограмма работы РТК

9. Определение основных показателей РТК

Основные показатели, характеризующие работу РТК следующие:

цикловая производительность Qц;

коэффициент относительной загруженности ПР Кгр;

коэффициент использования ПР Кир;

коэффициент использования основного оборудования Кио;

коэффициент нагруженности ПР Кнр;

режим работы робота.

Определяем цикловую производительность

,(24)

где  - длительность рабочего цикла, ч.


Определяем коэффициент относительной загруженности

,(25)

где  - среднее значение рабочей нагрузки, кг;

 - грузоподъемность робота, кг.


Определяем коэффициент использования ПР

,(26)

где  - время работы ПР за рабочий цикл, с.


Определяем коэффициент использования основного оборудования

,(27)

где  - время работы основного оборудования за рабочий цикл, с.


Рассчитав значения коэффициентов, по [2, стр.379, таблица 3] устанавливаем, что режим работы ПР "легкий" при этом коэффициент нагруженности Кнр =1,1.

Заключение

Применение промышленных роботов при обслуживании станков с ЧПУ позволяет исключить участие рабочего в выполнении вспомогательных операциях и полностью автоматизировать процесс механической сборки.

Анализ линейной и кольцевой компоновки показал, что для данного РТК наиболее удовлетворяющая всем условиям эксплуатации является компоновочная схема кольцевого типа. Она позволяет ПР совершать перемещения при подаче заготовки от тактового стола к станку и назад с большей точностью. Время рабочего цикла можно уменьшить за счет рационально назначенных режимов резания.

Режим работы ПР, в составе РТК, соответствует области применения РТК.

Список использованной литературы

1 Справочник технолога-машиностроителя. Т.2 / Под ред. А.Г. Косиловой, Р.К. Мещерякова.- М.: Машиностроение, 1985.

Козырев Ю.Г. Промышленные роботы: Справ. - М.: Машиностроение, 1988. - 392с.: ил.