Материал: Автоматизоване проектування та організація простору житлових і нежитлових приміщень з урахуванням ергономічних показників

Внимание! Если размещение файла нарушает Ваши авторские права, то обязательно сообщите нам

Такий інтер'єр ніколи не набридне, і буде залучати кожного своєю величчю, своїм спокоєм, умиротворенням, а господаря буде занурювати в думи про високе і вічне. Тут всі гармонує один з одним - і сучасний стіл із дзеркальною стільницею на паркеті з дорогого виду дерева, старовинний дзеркала химерної форми і стіни простого м'якого кольору.

Розділ 2. Організація простору у жилому приміщенні


2.1 Завдання єргодізайна в средовом проектуванні


Під ергономічним забезпеченням у середовищному проектуванні розуміється встановлення ергономічних вимог і формування ергономічних властивостей системи людина-предмет-навколишнє середовище в загальному вигляді на стадіях її розробки і використання.

Основні прикладні задачі, які вирішуються ергономікою:

Головне - надання виробам, техніці властивостей, необхідних для найбільш ефективного функціонування системи людина-предмет при мінімальному витраті ресурсів (кількість персоналу, час професіональної підготовки, ймовірність професійних захворювань) і максимальним задоволенням змістом та умовами життєдіяльності.

Потім на основі моделювання діяльності експлуатуючого персоналу ведеться розробка вимог до інструкцій з експлуатації та обслуговування технічних виробів, що полегшує їх освоєння.

Але головне-ергономічні дані дозволяють в середовищному дизайні перейти від волюнтаристського формування середовищних систем до об'єктивно обґрунтуванню їх споживчих якостей, в тому числі-які впливають на естетику середовищного сприйняття. Потому що, як правило, незручності і дискомфорт, що виникають у споживача через помилки в ергономічному вирішенні середовищних компонентів, згубно позначаються і на емоційно-почуттєвої оцінки стану середовища яка є основною формування наших естетичних переживань.

З цієї точки зору ергономіка середовищного проектування має два вектори:

. Обґрунтування та розробка "обмежень" (рекомендацій) з проектування параметрів середовищних елементів і їх поєднань.

. Генерування в зоні, вільній від таких обмежень, нових варіантів розмірних показників та їх комбінацій, продиктованих не стільки утилітарно-практичними, скільки художніми міркуваннями.

В даний час саме ця вільна зона практично не освоєна дизайнерськими пропозиціями, оскільки об'єктивна наукова база їх розробки (теорія композиція в дизайні, основи зорового сприйняття архітектурних об'єктів) ще тільки складається. Але головна можливість розвитку цього напрямку ергономічних методів проектування вже простежується: перехід від оцінки "елементарних" ергономічних якостей окремих доданків середовища до їх угруповання, прихильність до певних поєднанням середовищних компонентів і умов з наступною комплексною оцінкою середовища як єдиного цілого, синтезуючого взаємодія всіх елементів в інтегральному емоційно-якісному показнику.

Відповідно, завдання ергодизайна середовища діляться на наступні:

. Типологія елементів обладнанням

. Визначення видів середовища

. Обладнання окремих видів середовища

. Оцінка комплексного обладнання середових об'єктів та систем.

2.2 Ергономічні вимоги до меблів


Меблі - це пересувні або вбудовані вироби для обладнання житлових і громадських приміщень, садово-парковий та інших зон перебування людини.

Меблі класифікують за такими ознаками: експлуатаційними, функціональним, конструктивно-технологічним, за матеріалами, а також за характером виробництва.

За експлуатаційному призначенням розрізняють нижченаведені види меблів:

Меблі побутові - вироби, призначені для обстановки різних приміщень, квартир, дач, котеджів, для використання на відкритому повітрі. Її також поділяють на меблі загальних кімнат (з суміщеними функціями), для польної, їдальні, вітальні, кабінету, дитячої, для кухонь, передпокоїв ванних кімнат, а також дачну.

Меблі для громадських приміщень - вироби для обстановки приміщень підприємства і установ з урахуванням характеру їх діяльності та специфіки функціональних процесів. Розрізняють такі види меблів: медична (для лікарень, поліклінік та інших медустанов), лабораторний (для лабораторій навчальних і медичних), навчальних закладів (шкіл, коледжів вузів), підприємств торгівлі, громадського харчування (ресторанів, кафе) і побутового обслуговування, готелів, залів очікування транспортних установ, підприємств зв'язку, банків, театрально-видовищних закладів тощо Меблі для міського середовища і відкритих майданчиків рекреаційних територій (зон відпочинку) Меблі для транспорту - вироби, призначені для обладнання різний засобів транспорту.

Меблі для виробничих будівель.

За функціональним призначенням розрізняють такі види меблів:

Ємність для зберігання (корпусні меблі), основне призначення - зберігання і розміщення різних предметів: шафа, тумби, секретери, комоди, серванти, скрині, полиці.

Меблі для сидіння і лежання: ліжка одинарні, полуторні і подвійні, дивани, дивани-ліжка, кушетки, широкі кушетки - тахта, стільці, табуретки, лави, крісла, крісла-качалки, банкетки.

Меблі для роботи і прийому їжі - це, в основному, столи конторські, письмові, обідні, сервіровочні, журнальні, туалетні та інші.

Меблі доповнює, зокрема, вішалки, манежі дитячі і т.д.

Основні розміри виробів меблів залежать від розмірів людського тіла (антропометричних даних), а також розмірів предметів, для зберігання і розміщення яких призначена меблі.

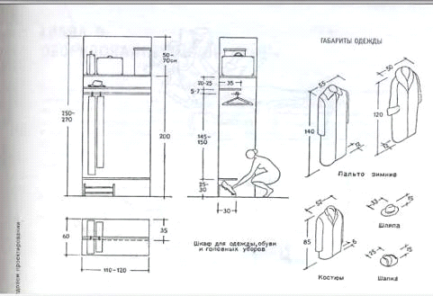
На рисунках 1,2,3 нижче наведені основні габарити меблів, що задовольняють антропометричні вимоги до її експлуатації людиною. З урахуванням антропометричних даних більшість розмірів меблів стандартизовано З урахуванням ергономічних вимог особливо важливий при проектуванні виробів, якими людина має безпосередній тривалий контакт, тобто вироби для сидіння та лежання.

Рис. 1. Антропометричні вимоги до габаритів і розміщення меблів

Рис. 2. Антропометричні вимоги до габаритів і розміщення меблів.


Рис. 3. Антропометричні вимоги до габаритів і розміщення меблів

Комфортабельність виробів-опор обумовлена розмірами людського тіла і взаємозв'язком з іншими виробами. Так, висота стільця від статі залежить від висота столу: при висоті стало 720-780 мм зручний стілець 420-480 мм, висота столу для виконання машинописних робіт, для роботи з клавіатурою комп'ютера зменшується до 680 мм і т.д.

При відпочинку сидячи часто вважають за краще положення тіла з витягнутими вперед ногами. На рис.4а показано крісло для відпочинку літніх людей, що мають опору для голови і дозволяють приймати положення напівлежачи (при підставці для ніг). Для людей з викривленням хребта рекомендується стільці, забезпечують їм зручну позу за рахунок спинки, що складається з двох елементові регулюється по висоті (рис.4б)


Розділ 3. Комп’ютерна реалізація процесу організації простору у приміщеннях відповідно до ергономічних показників


Алгоритм роботи підпрограми - додатку| "організація простору в житлових і не житлових приміщеннях відповідно до ергономічних показниками".

—      Для виклику підпрограми в командному рядку програми AutoCad набираємо Furniture, або на панелі малювання натискаємо на кнопку підпрограми

—      Після виклику підпрограми відкривається діалогове вікно, який містить перелік видів приміщень. Кнопок для створення плану приміщення: пряма і дуга, кнопки "вставка прорізу", кнопки "Таблиці відстаней" та "Контроль відстаней"

—      Після виклику програми необхідно побудувати план приміщення за допомогою команд "Створення стіни": "Пряма" і "Дугова".

—      Потім розставляємо меблі на план. Подвійним натисканням лівою кнопкою миші за назвою одного з типів приміщення відкривається база даних меблів та обладнання. Користувач вибирає меблі і вставляє в план.

—      Після розстановки меблів на плані. Проводиться перевірка організації простору приміщення. Якщо план відповідає, на екран виводиться діалогове вікно. Якщо ж план не відповідає, то на екран виводиться діалогове вікно.

—      Якщо план не відповідає показникам, тоді користувач натискає кнопку "так". Потім програма виділяє пунктирною лінією ті об'єкти, які не відповідають нормам. А вже потім редагує план розстановки. Користувач має можливість залишити план не відредагованим, натиснув кнопку "ні".

Висновки


На сьогоднішній день дизайн інтер'єру набуває все більш широкого значення у житті сучасної людини. Розвиваються сучасні автоматизовані технологій, які показують, що використання комп’ютерної графіки на сьогодення є дуже актуальною сферою діяльності. Рішення і практична реалізація задач, пов’язаних з організацією простору у житлових та нежитлових приміщеннях відповідно з ергономічними показниками, дозволяє не тільки використовувати вже існуючи технології моделювання, але також розробити власні доповнення до них, забезпечуючи інформаційні і облікові функції системи для полегшення та прискорення процесів отримання кінцевих результатів. Організацію простору у житлових та нежитлових приміщеннях доцільно автоматизувати для полегшення створення плану меблів, відповідаючого всім ергономічним показникам і оформлення плану в системі САПР AUTOCAD|.

Список літератури


1.      ДСТУ, БА.2.4-4-95 (ГОСТ 21.101-93), СПДБ. Основні вимоги до робочої документації. - К.: Держкоммістобудування України, 1996.

2.      В.Ф. Рунге, Ю.П. Манусевич.,Єргономика в дизайне среди. −Москва., "Архитектура - С"., 2005. - 328 с.

.        Хилл Ф., Open GL. Программирование компьютерной графики. Для профессионалов. - СПб.: Питер, 2002. - 1088 с.

.        Абламейко С.В., Лагуновский Д.М. Обработка изображений: технология, методы, применение. Мн.: Амалфея, 2000, 304 с.

.        Шикин Е.В., Боресков А.В., Компьютерная графика. Полигональные модели. - М.: ДИАЛОГ-МИФИ, 2000.464 с.