СОДЕРЖАНИЕ
Введение
Ознакомление с объектом практики
Измерительные инструменты и приборы
Способы и методы обмерных работ
Обмерные планы. Обмерные высоты
Съемка генеральных планов и обмер территории
Заключение
Список литературы
ВВЕДЕНИЕ
Обмерные работы широко применяются в наше время, когда отсутствует исполнительная или рабочая документация, а также планируются работы по реконструкции, требующие точного соблюдения размеров здания и отдельных строительных конструкций. Для этой цели необходимо иметь проектное решение и рабочую документацию, которая и создается на основании точных чертежей, полученных в результате обмерных работ. Обмерные работы необходимы для определения фактических размеров зданий, сооружений, внутренних помещений и строительных конструкций на данный момент времени.
Задачи, решаемые обмерными работами:
• восстановление и создание обмерных чертежей фактического состояния зданий и сооружений;
• перевод чертежей в цифровой вид;
• получение точных размеров для проведения инженерных расчетов и проектирования зданий и сооружений или их реконструкции.
Информация, содержащаяся в обмерных чертежах:
• планы помещений, с указанием несущих конструкций, колонн, связей, пилонов, стен, перегородок, балок, дверных и оконных проемов;
• габаритные размеры всех вышеперечисленных конструкций, а также размеры, показывающие их взаимное расположение;
• развертки стен с указание всех ниш и проемов с указанием их размеров и высотных отметок;
• планово-высотная съемка элементов внутренних инженерных сетей, с указанием их расположения на поэтажных планах и разрезах;
• фасады с указанием всех размеров и высотных отметок.
Обмерные работы - важная часть
создания проекта по перепланировке или реконструкции здания.
ОЗНАКОМЛЕНИЕ С ОБЪЕКТОМ
ПРАКТИКИ
Строящееся типовое здание
салона -магазина одежды в г. Челябинск по улице первый переулок Лермонтова 4 а.
Здание занимает 650 кв.м торговой площади. В здании находится 21 организация
Рис.1 Ситуационный план.
Салон- магазина одежды квадратном плане 12м. Потолки во всех основных помещениях - подвесные. Полы керамогранит, керамическая плитка, линолеум. Металлические колонны здания окрашены водоэмульсионной краской. Окна - пластиковые, входные двери - металлические, внутренние двери - деревянные и противопожарные. В здании запроектированы ворота для въезда автотранспорта.
Внутренние стены из кирпича. Кирпичная кладка шириной 380мм.
Остекление: на этажах вспомогательных помещений окна пластиковые размером 3 × 1,2 и 1,2 × 1,5м. По фасаду здания сплошное остекление по высоте автосалона из стеклопакетов.
Двери. Внутренние глухие деревянные двери принимаются одностворчатые с размерами 0,9м × 2,1м и двустворчатые с размерами 2,0(1,3)м × 2,1м, толщиной 30мм. Полотна навешиваются на две петли, замки и ручки устанавливаются на высоте 1м от пола. Наружные двери - пластиковые двустворчатые с размерами 1,5м × 2,1м и одностворчатые с размерами 1м × 2,1м.
Предусматривается пол по
грунту, уплотненному щебнем. В качестве подстилающего слоя предполагается
использовать бетон. На балконе линолеум. В комнатах директора, бухгалтера и
т.п.- линолеум. В туалетах и душевых - керамическая плитка.
ИЗМЕРИТЕЛЬНЫЕ ИНСТРУМЕНТЫ И
ПРИБОРЫ
В обмерных работах используются как издавна известные традиционные инструменты, так и сложные измерительные приборы и новейшие технологии.
Применение тех или иных инструментов зависит от поставленной цели, которой определяется, соответственно, точность и подробность обмеров, а также сроки их проведения. Однако, применяя новые методы обмеров, следует помнить, что их разработка базируется на всем предыдущем опыте и опирается на методы старые. Это положение и послужило одной из причин использования в студенческой практике, как правило, традиционных для архитектурных обмеров инструментов и простых геодезических приборов.
Рулетки (Рис. 2) употребляются как тесьмяные, так и стальные, причем первые более удобны при измерениях от внутренних углов и при измерениях высот (в особенности при помощи шеста), но со временем они вытягиваются и теряют свою точность. Поэтому тесьмяную рулетку время от времени надлежит сверять со стальной, выводить и записывать поправку.
Рис.2 Рулетка
При обмерах какого-либо объекта все большие измерения нужно делать одной рулеткой, так как употребление для этих целей двух может быть причиной расхождения в измерениях.
Лазерный дальномер (Рис.3) -
современный электронно-оптический прибор, используемый для определения
дальности до любого предмета на местности. Погрешность измерений около одного метра.
В зависимости от модели, дальномеры могут производить вычисления объемов и
площадей помещений, а также иметь различный набор сервисных функций. Принцип
действия основан на измерении промежутка времени между посылкой лазерного
импульса и приемом отраженного от предмета сигнала.
Рис.3 Лазерный дальнометр
Очень простой и удобный инструмент для измерения длины - деревянные рейки с нанесенными на них делениями. Наиболее практичны рейки, имеющие 3-4 м длины при ширине от 3 до 5 см и толщине от 1,5 до 2 см. Увеличение размеров поперечного сечения реек хотя и способствует их большей жесткости, но увеличивает вес, что делает их неудобными в работе. Удобны рейки, имеющие треугольное поперечное сечение: они совмещают жесткость с легкостью. Прямизна рейки - главное условие правильности измерения.
Для проведения горизонтальных
линий применяются: прямой уровень с воздушным пузырьком и водяной уровень с
резиновой трубкой.
Рис.4 Прямой уровень
Рис.5 Водяной уровень
Рис. 6 Лазерный уровень
Отвес - самый простой, но и
самый необходимый из всех инструментов, применяемых при обмерах, легко может
быть сделан на месте работы: камень, привязанный к шнуру, является достаточно
хорошим отвесом. Важно, чтобы шнурок отвеса был в одно и то же время и крепким,
и тонким. Для этой цели пригодны рыболовные лески, а при работе с тяжелыми
отвесами - тонкая проволока (лучше всего мягкая медная) (Рис. 7).
Рис.7 Отвес
Используя опыт осуществления обмерных работ классическими методами, были разработаны новые инструменты и технологии, позволяющие проводить более точные обмеры на высоком уровне в гораздо более короткие сроки.
Поскольку применение технически
сложной аппаратуры предполагает специальное обучение пользователей, студентам
целесообразно получить знание классических методов архитектурных обмеров.
СПОСБЫ ОБМЕРНЫХ РАБОТ
После визуального осмотра объекта с учетом особенностей его архитектурной формы и доступности измеряемых элементов определяются способы обмерных работ.
Использование простых
измерительных инструментов предполагает применение основных классических
методов обмеров: триангуляции и прямоугольных, или картезианских, координат.
Суть этих методов сводится к следующим положениям: триангуляция основывается на
системе взаимосвязанных треугольников - простейших геометрических фигур, у
которых каждая вершина может быть точно определена засечками промеренных сторон
из двух других вершин (Рис. 8 а, б); метод прямоугольных картезианских
(ортогональных) координат основан на фиксации каждой точки объекта относительно
взаимно перпендикулярных осей. (Рис. 8 б)


Рис. 8. Обычное применение триангуляции: а - применение триангуляции для
определения площади зала; б - разделение многоугольного зала на треугольные
части; в - построение картезианских координат
«Осями» могут быть выверенные по
отвесу (вертикальные) и по уровню (горизонтальные) прямые. (Рис. 9)

Рис. 9.
Опыт показывает, что сочетая
эти два метода, практически можно обмерять объекты любой по сложности
конфигурации. Однако при обмерах зданий больших размеров, поверхностей с
неровными и сложными очертаниями, а также территорий, эффективнее использовать
геодезические приборы - даже самые простые - теодолиты и нивелиры. (Рис. 10-12)
Рис. 10. Круговая геодезическая
съемка, позволяющая промерить углы и детали фасадов;
Рис.11 Съемка, при которой
промер углов заменен промером треугольников; последние можно построить с
помощью стальной рулетки;
Рис.12 Использование различных
методов съемки.
Определение вершин пересекающихся линий. Точки могут быть определены промером их из разных положений, начиная от С, промеряя длины сторон (треугольников); от Д с помощью полярных координат (углы и размеры между местами пересечений); от Е, опуская перпендикуляры от разных точек, избираемых на линии геодезического промера
Собственно обмерные работы включают в себя: выполнение подготовительных черновых зарисовок, которые называются кроки; снятие натуральных размеров с нанесением их на кроки; камеральное выполнение обмерных чертежей и окончательное оформление выполненной работы.
Кроки представляют собой чертежи, выполненные «от руки», либо линейные рисунки. От тщательности и точности черновых зарисовок во многом зависит качество обмера. Кроки выполняются на плотной бумаге формата 30 х 40 см только с одной стороны. Карандашная линия должна быть четкой и не двоиться. Оптимально - выполнение ортогональных схем планов, разрезов, фасадов всего сооружения или его частей с возможно точной передачей пропорций и всех особенностей изображаемого объекта. Следует отметить, что при необходимости для получения общего впечатления о сооружении можно произвести схематические обмеры здания в целом (общей ширины и длины сооружения) или его отдельных частей. Такие обмеры делаются на основе глазомерной съемки и нескольких основных промеров здания. Схематические обмеры помогают более точно выполнить кроки и дают представление о состоянии здания (рис. 13).
В процессе дальнейшей работы на кроки наносятся все получаемые размеры. Нанесение на кроки основных размеров здания и его частей обычно производится по результатам схематических обмеров на черновых зарисовках, правильно передающих пропорции изображаемого. Особое внимание нужно обращать на простановку размеров. Размерные и выносные линии, а также соответствующие им цифры, должны быть четкими и ясно указывать, к каким частям здания они относятся. При обмерах крупных сооружений и зданий сложной конфигурации общие схемы проекций выполняются на кроки отдельно от изображения фрагментов и деталей. Рисунки последних делаются в более крупном масштабе, т.к. требуют подробных измерений с нанесением большого количества размеров. Здесь размерные линии часто образуют сложное переплетение, и поэтому лучше не изображать их на рисунке, а делать цифровые или буквенные обозначения отдельных точек и выносить экспликацию измерений на поля чертежа или за пределы рисунка. Выполненные в крупном масштабе кроки фрагментов и деталей идентифицируются с их расположением на общих схемах при помощи соответствующих обозначений. На каждом листе кроки пишется наименование объекта, его адрес, дата проведения работы, фамилии исполнителей, руководителей и название учебного заведения. Все кроки нумеруются и соотносятся с чертежами. Кроки - основной документ натурной (полевой) стадии работ, они являются важной составляющей всего комплекта фиксационной документации по архитектурному сооружению.
Обмерные чертежи основных проекций здания, т.е. планов, фасадов и разрезов, обычно выполняются в масштабе 1:50. Этим определяется необходимая точность обмера - до 0,5 см, что дает в масштабе чертежа 0,1 мм - предельно мелкую, ощутимую на глаз величину. Для деталей здания, если они вычерчиваются в крупном масштабе, обмер производится с точностью до 1 мм.
Обмер обычно начинают с отбивки
нулевой линии по всему периметру, по всем этажам или ярусам здания отдельно.
Все эти нулевые линии должны быть надежно связаны между собой системой отвесов,
которые рекомендуется привязывать к выверенным точкам. Для того чтобы
произведенные обмеры оставались полноценными, независимо от давности их
проведения, и в любой момент могли быть использованы для реставрации и
реконструкции здания, следует увязывать нулевые линии с абсолютными отметками
от единых государственных реперов, указывающих положение данной местности
относительно уровня моря. Отбивается нулевая линия при помощи водяного уровня,
а при больших размерах здания - нивелиром. Отбивка нулевой линии позволяет
получить как бы горизонтальный срез здания, его план, который может быть
обмерен сравнительно простыми средствами. (Рис. 14)

Рис. 14. Москва. Церковь Зачатья Анны «что в углу». Южный фасад. Кроки. Обмер
северного портала.
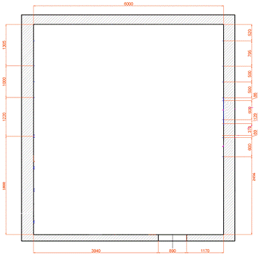
ОБМЕРНЫЙ ПЛАН.
Рис.15 План на отметке 0,000 М
1:100
Рис.17 Стеллаж №1
Рис.18 Стеллаж №2
Рис. 19 стеллаж № 4
Рис. 20. Стеллаж № 6
СЪЕМКА
ГЕНЕРАЛЬНЫХ ПЛАНОВ И ОБМЕР ТЕРРИТОРИИ
Съемку генеральных планов архитектурных ансамблей, например, городских площадей, усадеб, парков и других территорий, можно производить как при помощи геодезических инструментов, так и без них, пользуясь отвесом, уровнем и мерной рулеткой. При этом используются те же основные методы обмеров: триангуляция, метод прямоугольных (картезианских) координат и метод полярных точек. Практика показывает, что, как правило, в зависимости от конкретной ситуации применяются все три метода.
Так, при обмерах генерального
плана группы зданий, стоящих на открытом пространстве или окруженных оградой,
можно, обмерив план каждого здания по внешним контурам, измерить расстояния
между углами различных зданий связав измерениями угол с двумя другими и разбив
всю измеряемую площадь на треугольники. (Рис. 19)
Рис. 19 Обмер генерального плана комплекса зданий засечками
архитектурный обмер инструмент засечка
Характерные точки ограды, окружающей обмеряемую территорию, равно как и находящиеся на последней отдельно стоящие деревья, точки, определяющие границы водоемов, направления дорог и т.п., каждую так же связывают промерами с двумя другими точками плана. Там, где расстояние между углами превышает длину рулетки, следует обозначать направление линии, соединяющей углы, шнурком или какими-либо вешками, а затем измерять.