Материал: PPR_na_trubu_Bondarenko_PZ

Внимание! Если размещение файла нарушает Ваши авторские права, то обязательно сообщите нам

Федеральное государственное бюджетное образовательное учреждение высшего образования

Петербургский государственный университет путей сообщения Императора Александра I

Кафедра «Строительство дорог транспортного комплекса»

Проект производства работ на трубу

выполнил студент

 

 

 

А.С. Бондаренко

факультет

 

 

ТС

группа

 

V – СЖД – 304

 

 

 

 

 

 

 

 

 

руководитель

 

 

 

 

 

А. П. Тиханович

Санкт-Петербург

2017 г

Оглавление

 

Введение................................................................................................................

3

2

Комплекс работ по постройке трубы ..............................................................

4

3

Разработка календарного графика производства работ на строительство

 

ПЖБТ, графика поставки строительных материалов, графика движения

 

строительных машин по объекту .......................................................................

9

Из Лист

№ докум.

Подп.

Дата

 

 

 

 

Пояснительная записка

Лист

2

 

Введение

Строительство малых искусственных сооружений ведется в соответствии с проектом производства работ (ППР), составляемым строительномонтажной организацией. Водопропускные трубы сооружаются генподрядными организациями – строительными управлениями (СУ) и

строительномонтажными поездами, входящими в структуру генподрядного территориального треста.

Исходными данными для составления ППР служат:

-проект организации строительства (ПОС) железной дороги. Графиком ПОС ориентировочно устанавливаются специализированные потоки постройки малых ИССО, их численность, направление развертывания в увязке с объектными потоками других основных работ, календарные сроки выполнения работ;

-рабочая документация и сметы на ИССО;

-продольный профиль участка ж.д. линии, с указанием высоты насыпи

вместе расположения ИССО, типа сооружения, инженерной геологии;

-сборники нормативных документов;

и т.д.

В состав ППР входят:

1.Сетевой или календарный график производства работ, в котором на основе объёмов работ и передовой технологии устанавливают последовательность и сроки выполнения работ, определяют потребность в средствах механизации и трудовых ресурсах;

2.Схематический план участка с расположением земляных и водоотводных сооружений, землевозных дорог, временных зданий и устройств, используемых для нужд строительства;

3.Пояснительная записка с обоснованиями решений по производству работ, расчётами потребности в основных ресурсах, мероприятиями по организации работ методом бригадного хозрасчёта, технологическими

Из Лист

№ докум.

Подп.

Дата

 

 

 

 

Пояснительная записка

Лист

3

 

картами,

технико-экономическими

показателями,

специальными

требованиями по охране труда и контролю качества работ.

2 Комплекс работ по постройке трубы

Расположение трубы на

Тип

Количество

Размер

Рабочая отметка

Длина

трассе, ПК+

трубы

очков

отверстия

насыпи, м

трубы, Lм

 

 

 

 

 

 

149+00,00

ПЖБТ

2

2

5,5

19

 

 

 

 

 

 

Комплекс работ по постройке основного типа водопропускных труб -

прямоугольных железобетонных труб, состоит из подготовительных работ,

устройства котлована и подготовки основания, монтажа железобетонных элементов, устройства гидроизоляции, засыпки пазух и трубы грунтом,

бетонирование лотков, укрепительные работы.

Подготовительные работы:

- подготовка строительной площадки – рубка леса, корчевка пней,

планировка территории, расчистка русла и отвод воды во временное русло

(рис. 1) канавой или дамбой, строительство временной автомобильной дороги (от притрассовой);

Рис.1-Устройство временного водоотвода.

Из Лист

№ докум.

Подп.

Дата

 

 

 

 

Пояснительная записка

Лист

4

 

- геодезические работы – закрепление оси трубы, разбивка контуров котлована, оси русла водотока. Вокруг контура котлована устраивается обноска из деревянных брусьев. На обноску выносится проектное положение осей фундамента, к ней привязывается местоположение отдельных конструктивных элементов трубы (рис2.);

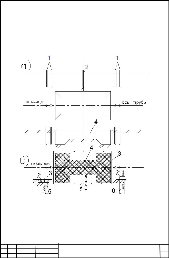
Рис. 2. Схема закрепления места расположения трубы на трассе

а - размещение выносных кольев на оси трубы; б - устройство обноски вокруг трубы; 1 – выносные колья; 2 - точка (колышек) и сторожок с надписью «ось», «пикет и плюс»; 3 -

обноска из брусьев или досок на свайках; 4 - котлован; 5 - свая обноски диаметром 8 - 10 см; 6 -

выносной кол диаметром 10 см; 7 – гвоздь.

Из Лист

№ докум.

Подп.

Дата

 

 

 

 

Пояснительная записка

Лист

5