Проектирование интерьеров жилой среды происходит в два этапа – предпроектный и проектный. Предпроектный этап является подготовительным к проектным работам и содержит сбор и анализ необходимых материалов, а также выявление факторов, влияющих на образное решение жилой среды. Предпроектный анализ позволяет
выработать концепцию проектирования |
жилой среды. |
Поэтому |
||
С |
|
|
|
|
выполнение курсового проекта (работы) по интерьерному дизайну |
||||
необходимо начинать с изучения задания, учебной и специальной |
||||
литературы, аналог чных проектных и дизайнерских решений. |
|
|||
|
|
1.4. Исходные данные |
|
|
Исходные данные для курсового проекта (работы) даны в задании, |
||||
где представлены: |
|
|
|
|
- |
существующ й (о мерный) план квартиры (индивидуального |
|||
|
дома) далее (ИЖД), на ор существующих помещений квартиры; |
|||
жилого |
|
|
||
- техн ческ е осо енности существующих помещений квартиры |
||||
(ИЖД) |
(нал ч е |
условия размещения |
вентиляционных |
каналов, |
стояков водосна жения и канализации, газовых стояков, отопительных |
||||
приборов и т.д.); |
|
|
|
|
- ориентация помещений квартиры (ИЖД) по сторонам света; |
||||
- |
стиль, в котором необходимо |
выполнить дизайн-проект |
||
квартиры (ИЖД); |
|
|
|
|
- количество и состав членов семьи, на которую необходимо |
||||
|
бА |
|
||
рассчитать квартиру (индивидуальный жилой дом) (количество детей, |
||||
их пол, наличие пожилых людей, инвалидов и пр., возраст всех членов |
||||
|
|
Д |
|
|
семьи); - области профессиональной занятости каждого члена семьи
(творческий, умственный или физический труд);
- предпочтения всех членов семьи в организации своего досуга в
домашних условиях (хобби, увлечения).
При выполнении дизайн-проекта индивидуального жилого дома
задается характер населенного пункта (в черте города или в загородной |
|
зоне). |
И |
6
2.1. Функциональные основы проектирования.
Вопросы эргономики и функциональных основ проектирования квартиры (ИЖД) детально изложены [2] см. библиографический список данных методических указаний.
уществующ й план квартиры (ИЖД). Существующий план |
||
здания |
|
|
кварт ры (ИЖД) представляет собой исходный (обмерный) план |
||
Скварт ры (ИЖД), определяемый заданием на проектирование. План |
||
выполняется в масшта е 1:100 (1:200) и в соответствии с [9]. |
||
Н же представлены о щие указания и порядок выполнения плана |
||
б |
||
здан я. На плане |
показывают осевые линии, наружные и |
|
внутренн е стены, оконные и дверные проемы, лестничные марши, а |
||
также сан тарно-техническое о орудование, прорисовываются входные |
||
тамбуры, ступени лестниц и т.п. На плане показывают двери и их |
||
|
А |
|
открывание. Условное о означение оборудования при выполнении |
||
планов этажей применяется в соответствии с табл. Х.1, Х.3, Х.4, Х.6 |
||
работы [12]. |
|
Д |
|
|
|
|
|
И |
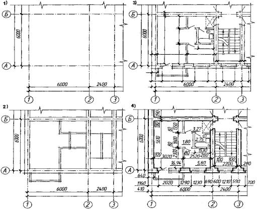
Рис. 2.1. Последовательность вычерчивания плана здания
7
Последовательность вычерчивания плана здания:
1этап. Вычерчивание плана начинают с нанесения координационных осей здания, продольных и поперечных для несущих
и самонесущих наружных и внутренних |
стен |
здания. Эти оси |
||
являются условными геометрическими линиями, которые, в отдельных |
||||
случаях, могут не совпадать с осями симметрии. |
|
|||
С |
|
|
|
|
Координационные оси здания наносят штрихпунктирными |
||||
линиями с длинными штрихами (толщиной S/3), обозначают марками в |
||||
кружках д аметром 8 мм. Продольные оси маркируют буквами русского |
||||
алфав та А, Б, В |
т.д., кроме букв З. Й, |
О, Х, |
Ц, Ч, Щ, Ы, Ь, Ъ. |
|
ми |
|
|
||
Поперечные – арабскими цифрами 1, 2, 3 и т. д. Затем выполняются |
||||
внешн е выносные |
размерные линии. Оси продольных конструкций |
|||
здан я выносят слева от чертежа, поперечные – снизу. |
||||
2 |
этап. |
Построив координационные оси, вычерчивают |
||
тонк |
л н ями |
(0,3 мм) контуры наружных и внутренних |
||
капитальных стен |
колонн. |
|
|
|
3 этап. После вычерчивания наружных и внутренних |
||||
капитальных стен |
колонн изо ражают контуры перегородок. Следует |
|||
обрат ть вн ман е на различие в присоединении наружных и |
||||
внутренних капитальных стен и перегородок. |
|
|
||
|
Обводятконтуры капитальных стен и перегородок линиями |
|||
соответствующей толщины. |
|
|
||
4 этап. Вычерчиваются оконные и дверные проемы, позиционное |
||||
|
|
Д |
||
обозначение проемовАворот и дверей указать в кружках диаметром 5 мм. Вычерчиваются сантехническое оборудование, ступени лестниц, показывают двери и их открывание.
5 этап. На выполненный чертеж плана наносят размеры в
миллиметрах. Размеры на архитектурно-строительных чертежах наносят в виде замкнутой «цепочки» в миллиметрах безИуказания единицы измерения.
Размерные линии ограничивают засечками – короткими штрихами длиной 3 мм, наклонными к горизонтальной линии под углом 45° слева вверх направо. Размерныелинии должнывыступатьза крайние выносныелиниина 1-3 мм. Размерное число высотой 2,5 мм или 3,5 мм располагают над размернойлиниейна 1 мм от нее.
Наружные размеры, расположенные за габаритом плана, представляют собой три «цепочки». В связи с тем, что перед первой размерной «цепочкой» часто размещаются марки различных элементов зданий, принято располагать их на расстоянии 15 мм от контуров стен. В первой «цепочке», считая от контура плана, располагаются размеры, обозначающие ширину оконных и дверных проемов, простенков и выступающих частей здания с привязкой их к координационным осям.
8
Вторая «цепочка» заключает в себе размер между осями капитальных стен и колонн. В третьей «цепочке» проставляется размер между координационными осями крайних наружных стен. При одинаковом расположении проемов на двух противоположных фасадах здания
допускается нанесениеразмеровтолькона левой инижней сторонах плана. |
|
Расстояние между параллельно расположенными размерными |
|
С |
|
линиями должно быть не менее 7 мм, а от размерной до кружка |
|
разбивочной оси – 4 мм Диаметр кружка – 8 мм. При наличии в |
|
изображен |
ряда одинаковых элементов, расположенных на равных |
расстоян ях друг от друга (например, осей колонн), размеры между такими элементами проставляют только в начале и в конце ряда или указывают суммарный размер между крайними элементами в виде я кол чества повторенийна повторяющийся размер.
В габар тах плана нео ходимо нанести размеры всех помещений в чистоте, т. . от стены до стены, для этого проводят две внутренние
размерные л |
(горизонтальную и вертикальную). |
Затем наносят |
толщ ну стен |
перегородок. |
|
произведен |
перегородок и |
|
Внутренн е размеры помещений, толщины |
||
внутренн х стен проставляют на внутренних линиях, которые проводят на расстоянии не менее 8 – 10 мм от стены или перегородки. Кроме того на внутренних размерных линиях проставляют размеры всех простенков и проемов. Заканчивают общее оформление плана с соблюдением типов линий.
Графическое обозначение материалов в сечении см. приложение |
|
12 данныхбАметодических указаний. |
|
Пример выполнения планов этажей см. рис. 2.1 данных |
|
методических указаний на рис. Х.29 – Х.32 работы [12]. |
|
В том случае, если отсутствует архитектурно-строительная |
|
документация, т.е. поэтажные планы здания или ( |
) которые можно |
ЖД |
|
положить в основу технической документации по проекту допускается |
|
на планах квартиры (ИДЖ) не показывать координационные оси и наружные размерные цепочки, расположенные за габаритом плана.
Для существующего плана квартирыИДЖ( ) также составляется
экспликация существующих помещений, где указываются наименования и площади существующихпомещенийвсоответствиисформой 2 работы [11].
Пример выполнения существующего плана квартиры ( ЖД) и экспликации существующих помещений (ИЖД) см. прил.2, прил.3 данных методических указаний.
План с расстановкой мебели квартиры (ИЖД). С целью детальной проработки функциональной взаимосвязи между отдельными помещениями квартиры (ИЖД) выполняются планы с расстановкой мебели, на которых показывается расположение отдельных помещений,
9
оконных и дверных проемов, направление открывания дверей, расположение лестниц и перегородок, также указывается месторасположение сантехнического оборудования и мебели. На планах этажей с расстановкой мебели достаточно указать размеры только между смежными и крайними разбивочными осями.
На первоначальном этапе разрабатывается несколько вариантов плана с расстановкой мебели (вариантные решения), затем утверждается один из вариантов, который берется за основу для дальнейшей проработки. При формировании экспозиционного листа курсового проекта (работы) на лист выносятся три варианта плана с расстановкой мебели в т.ч., выбранный для дальнейшей проработки – в цвете.
Пр меры план ровочных решений кухни см. на с. 46–48 работы |
|||||||
С |
|
с. |
52 |
работы [7]. |
Размеры кухонного |
||
[5], с. |
134 ра оты [6], |
||||||
оборудован |
см. на с. 40-44 работы [5], с. 133 работы [6]. Условные |
||||||
выполнения |
|
|
|
|
|||
обозначен я кухонного и сантехнического оборудования см. в табл. Х.6, |
|||||||
Х.7 работы [12], |
та л. 9,10 ра оты [14]. |
|
|||||
Пр мер |
|
плана с расстановкой мебели см. в работе [5] |
|||||
и пр л. 7, пр л. 8 данных методических указаний. |
|
||||||
План демонт руемых конструкций квартиры (ИЖД). В |
|||||||
результате |
прора отки |
вопросов |
эргономики, функционального |
||||
проектирования квартиры (ИЖД), выполнения плана с расстановкой |
|||||||
мебели |
может |
возникнуть |
необходимость |
выполнения плана |
|||
показываютбАконструкции подлежащие сносу, требующие устройства проемы, демонтируемое санитарно-техническое оборудование, двери и
демонтируемых конструкций. На плане демонтируемых конструкций
т.д. Демонтируемые конструкции (выделяются цветом или линией). На плане демонтируемых конструкций указывают размеры конструкций,
подлежащих демонтажу, указания по производству соответствующих
квартиры (ИЖД) отображает окончательнуюИЖДпланировку помещений с вновь возводимыми перегородками, требующими устройства проемами, проектируемым санитарно-техническим оборудованием, дверьми и т.д.
работ и др. необходимая информация. План выполняется в масштабе |
|
Д |
|
1:100 (1:200) по [9]. Пример выполнения плана демонтируемых |
|
конструкций – см. прил.4 данных методических указаний. |
|
Проектируемый план квартиры ( |
). Проектируемый план |
На проектируемом плане квартиры (ИЖД) указывают, вновь возводимые конструкции, которые выделяются цветом или линией, габаритные размеры всех проектируемых помещений, направление открывания дверей. Общие указания по выполнению плана см. выше существующий план квартиры (ИЖД). План проектируемой квартиры (ИЖД) выполняется в масштабе 1:100 (1:200) в соответствии с [9].
10