Материал: Защита кабинета руководителя от утечек по электромагнитному и акустоэлектрическому каналам

Внимание! Если размещение файла нарушает Ваши авторские права, то обязательно сообщите нам

Защита от утечки по электромагнитному каналу обеспечивается пассивными и активными методами.

К методам пассивной защиты относится комплекс мероприятий по экранированию помещения и сигнальных проводов, осуществление развязки по цепям питания и т.д.

Активные - источники бесперебойного питания, шумогенераторы, скремблеры, устройства отключения линии связи, программно-аппаратные средства маскировки информации и др.

Активные способы защиты, направленные на увеличение Рш (создание маскирующего шума). Данный способ защиты осуществляется за счет скрытия информативных излучений шумовыми помехами внутри самой ПЭВМ и в линиях электропитания. К средствам активной защиты (САЗ) относятся: пространственное зашумление, линейной зашумление, уничтожение закладных устройств. Средства активной защиты (САЗ) применяются в случаях, когда контролируемая зона ОТСС превышает размеры контролируемой зоны объекта, и способы пассивной защиты неэффективны или экономически и технически нецелесообразны. Системы пространственного зашумления применяются для создания маскирующих помех в окружающем ОТСС пространстве.

В условиях, рассмотренных в ходе курсовой работы, нет необходимости применения активных средств защиты информации, т.к пассивными методами можно добиться защищенности информации от утечек по электромагнитному каналу.

Наиболее радикальным способом предотвращения перехвата информации от побочных излучений и установленных радиозакладок является экранирование помещений. Экранирование не требуется в описанных условиях, т.к две стены кабинета являются внешними стенами здания, а остальные две находятся на территории контрольной зоны. Возможность утечки путем использования радиозакладок исключается по той же причине, т.к это проблему можно решить организационными мероприятиями защиты информации, путем контроля над входящими в КЗ людьми, а также возможно использование видеотехники.

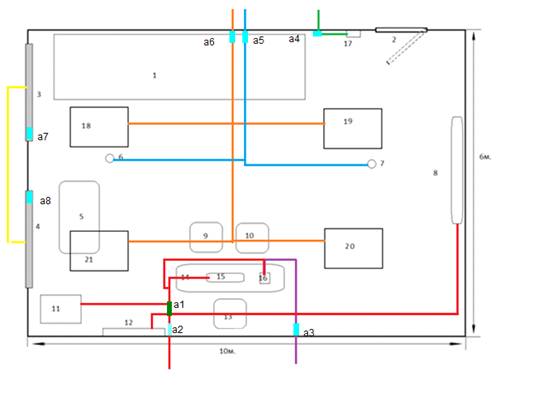
Отсюда следует, что остается защитить кабинет руководителя от утечек защищаемой информации по проводам, исходя анализа угроз и уязвимостей и из схемы проводки (Рис.3)

Рисунок 5. Схема проводки

В данной задаче рассмотрена защита по электромагнитному каналу, поэтому в расчет идут 2 цепочки проводов, а именно красная и фиолетовая.

К красной цепочке присоединены приборы: телевизор, МФУ, ПЭВМ. Все эти приборы включаются в разветвитель (a1), а дальше провода идут за территорию КЗ, поэтому необходимо поставить фильтр(а2), который защитит от утечек через указанные приборы.

На рисунке (рис. 4) показана схема установки трехпроводного помехопадавляющего фильтра типа ФП на объекте информатизации. При этом должны быть соблюдены следующие требования и рекомендации:

·       двух и трёхпроводные сетевые помехоподавляющие фильтры, предназначенные для питания отдельных СВТ (средства вычислительной техники), («фильтры для локальных цепей»), должны устанавливаться внутри помещений (объектов информатизации) и монтироваться таким образом, чтобы исключить возможность появления наведённого сигнала в фильтруемых (отходящих от фильтра) проводах электропитания. Это требование выполняется, если фильтр будет удалён от СВТ на расстоянии не менее, чем r1;

·       корпус фильтра должен быть заземлён на контур рабочего заземления, заземлитель которого должен находиться в пределах контролируемой зоны на расстоянии не менее 10 м от её границы.

Рисунок 5 . Схема установки

Для защиты цепей электропитания отдельных автоматизированных рабочих мест (АРМ) используются двух- и трёхпроводные однофазные помехоподавляющие фильтры: ФСП-1Ф-10А, ФП-10, ФСПК-10 и ЛФС-10-1Ф, рассчитанные на номинальное напряжение 220 В и ток 10 А. Фильтры ФП-10, ФСПК-10 и ЛФС-10-1Ф обеспечивают затухание от 60 до 80 дБ в полосе частот от 150 кГц до 1000 МГц, а фильтр ФСП-1Ф-10А - в полосе частот до 1800 МГц. Размеры фильтров составляют от 164x70x56 мм до 470x170x80 мм, а вес - от 0,8 до 6,0 кг. Наименьшие размеры и вес имеет фильтр ФСП-1Ф-10А, а наибольшее затухание (80 дБ) обеспечивает фильтр ФП-10. В корпусе фильтра ФСПК-10 имеется четыре розетки, в комплект поставки фильтра ФСП-1Ф-10А включена распределительная коробка на 4 евророзетки, что позволяет без использования дополнительных удлинителей подключать к ним основные технические средства, входящие в состав АРМ режимного делопроизводства.

2.2 Технические решения по защите по акустоэлектрическому каналу


Телефонные каналы связи представляет собой самый удобный и при этом самый незащищенный способ передачи информации между абонентами в реальном масштабе времени. Электрические сигналы передаются по проводам в открытом виде, и прослушивать телефонную линию очень просто и дешево. Современная техника телефонной связи продолжает оставаться наиболее привлекательной для целей шпионажа.

В телефонах с электромагнитным звонком существует возможность реализовать его обратимость (так называемый «микрофонный эффект»). При механических (в том числе и от голоса) вибрациях подвижных частей телефона в нем возникает электрический ток с амплитудой сигнала до нескольких милливольт. Этого напряжения вполне хватает для дальнейшей обработки сигнала.

Для защиты от «микрофонного эффекта» следует включить последовательно со звонком два запараллеленных во встречном направлении кремниевых диода.

Исходя из того, что кроме телефонной линии необходимо защитить помещение по остальным каналам утечки. На схеме поводки (рис.5) в точках а3,а4,а5,а6 необходимо обеспечить защищенности речевой информации от утечки по проводам, а в точках а7,а8 обеспечить защиту от лазерных микрофонов. Поэтому оптимальным решением было бы использование шумогенератора, который сведет угрозы к минимуму.

На практике наиболее широкое применение нашли генераторы шумовых колебаний. Шумогенераторы применяются для подавления непосредственно микрофонов как у радиопередающих устройств, так и у диктофонов, т. е. такой прибор банально вырабатывает некий речеподобный сигнал, передаваемый в акустические колонки и вполне эффективно маскирующий человеческую речь. Кроме того, такие устройства применяются для борьбы с лазерными микрофонами. При организации акустической маскировки следует помнить, что акустический шум создает дополнительный дискомфорт для сотрудников, для участников переговоров (обычная мощность генератора шума составляет 75-90 дБ), однако в этом случае удобство должно быть принесено в жертву безопасности. Оптимальным решением было бы использование генератора ЛГШ-301, который защитит и от утечки по проводам и от утечки со стекол.

Генератор акустического шума ЛГШ-301 предназначен для защиты речевой информации от перехвата по прямому акустическому, виброакустическому и оптикоакустическому каналам.

ЛГШ-301 используется в условиях замкнутого пространства с питанием от сети переменного тока 220 В. Данная модель защищает пространство объемом до 50 м3.

Генератор ЛГШ-301 может быть настроен на оптимальный для определенных условий уровень громкости и при последующем включении не требует дополнительной подстройки.

Технические характеристики:

·             Габаритные размеры 66×66×20 мм

·             Масса 100 г

·             Рабочее напряжение 5 В (±1%)

·             Параметры выходного акустического сигнала: основной диапазон частот 300-3400 Гц (речевой диапазон)

·             Сопротивление излучающей головки 8 Ом

Выводы по второй главе


Во второй главе курсовой работы были найдены необходимые технические решения по проведению технической защиты по электромагнитному каналу утечки информации, путем установки фильтра, который препятствует утечкам. Техническое решение по защите от утечек по акустоэлектронному каналу было принято в использовании шумогенератора, который решил проблемы потенциальной утечки по проводам и по стеклам. Телефонную линию обезопасили установкой(доработкой) кремниевых диодов., которые исключили возможность утечки речевой информации, через телефон.

Заключение


Целью курсовой работы было совершенствование систем защиты информации от утечек по электромагнитному и акустоэлектрическим каналам.

Так же были поставлены задачи курсовой работы по проведению анализа объекта защиты, анализ угроз и уязвимостей, составление требований защищенности объекта защиты, а также разработка технических решений на основе полученных данных из анализа, который рассматривается в первой задаче, а именно технические решения по защите по электромагнитному и акустоэлектрическим каналам.

В ходе курсовой работы задача по проведению анализа была полностью раскрыта, а именно был составлен анализ объекта защиты. Анализ угроз и уязвимостей также был проведен, что позволило поставить требования в конкретных условиях, как по защита от утечек по электромагнитному, так и по акустоэлектронному каналам.

Во второй главе, основываясь на результатах анализа, сделанного в первой главе, были найдены оптимальные решения по защите кабинета руководителя от утечек по рассмотренным каналам, а именно установка фильтра, который препятствует утечкам по электромагнитному каналу, а также использование шумогенератора защищающего от утечек по акустоэлектронному каналу.

В итоге кабинет руководителя стал полностью соответствовать выдвинутым требования по защите.

Источники используемой литературы


1.      Бузов Г.А. - Защита технических каналов от утечки конфиденциальной информации

.        Зайцев А.П. - Техническая защита информации

.        Хорев А.А - Техническая защита информации. Часть 1.

.        Халяпин Д.Б. - Вас подслушивают? Защищайтесь А.А. Хорев «Способы и средства защиты информации», 2004г.

.        Г.А. Бузов, С.В. Калинин, А.В. Кондратьев «Защита от утечки информации по техническим каналам», 2005г, 416

.        Сидорин Ю.С. - Технические средства защиты информации. Учебное пособие.