ВВЕДЕНИЕ
Уголь является основой топливно-энергетического комплекса Украины.
В условиях перехода страны к рыночной экономике возрастает потребность в увеличении уровня добычи угля при снижении его себестоимости.
Важнейшей задачей угольной промышленности является дальнейшее техническое перевооружение и реконструкция шахт Донбасса на базе передовой техники и технологии добычи угля и проведения горных выработок, а также внедрение новых прогрессивных типов и видов крепи и новых способов поддержания кровли.
На шахтах Украины около 70% поддерживаемых выработок находятся в неудовлетворительном состоянии. С увеличением глубины разработки угольных месторождений понижается прочность пород вмещающих угольный пласт, также знания в области охраны выработок, конструкции охранных сооружений не сильно развиты из-за прекращения деятельности Научно Исследовательских Институтов. Основной задачей перед государством является финансирование науки и её развитием.
Задачей является выбор способа охраны и типа
крепи горной выработки.
Реферат
Пояснительная записка к курсовому проекту стр. 25, рис.4, табл.3, ист.
Объектом исследования являются горные выработки участковый конвейерный ходок.
Цель работы - выбор рационального метода охраны участковых горных выработок.
Методы исследования - метод инженерного анализа, метод технико-экономических расчётов.
Курсовой проект выполняется на базе дисциплины «Управление состояние горного массива», «Физика горных пород процессов», «Технология подземной разработки пластовых месторождений», «Рудничная аэрология».
УЧАСТКОВЫЙ КОНВЕЙЕРНЫЙ ХОДОК, ОХРАНА, СМЕЩЕНИЕ, БЖБТ, ЛИТАЯ ПОЛОСА, ВЩР, КРЕПЬ УСИЛЕНИЯ, ЭКОНОМИКА.
СОДЕРЖАНИЕ
1. ХАРАКТЕРИСТИКА МЕСТОРОЖДЕНИЯ И АНАЛИЗ УСЛОВИЙ ОХРАНЫ И ПОДДЕРЖАНИЯ ВЫРАБОТОК
.1 Горно-геологические условия
.2 Анализ горнотехнической ситуации при отработке запасов на данном пласте
. ПРОЕКТИРОВАНИЕ УПРАВЛЕНИЯ СОСТОЯНИЕМ МАССИВА ГОРНЫХ ПОРОД ПРИ ОХРАНЕ ГОРНЫХ ВЫРАБОТОК
.1 Выбор места расположения выработки относительно пласта и вмещающих пород, обоснование способа проведения, формы и величины поперечного сечения выработки
.2 Определение физико-механических свойств горных пород и условий поддержания выработки
.3 Выбор и обоснование способов охраны выработки и их параметров
.4 Расчёт смещений пород в горных выработках по вариантам охраны при минимальной плотности установки крепи
.5 Определение основных параметров паспортов проведения и поддержания горных выработок
.6 Определение параметров дополнительных мероприятий по активному управлению состоянием горного массива
. ТЕХНИКО-ЭКОНОМИЧЕСКОЕ ОБОСНОВАНИЕ РАЦИОНАЛЬНОГО СПОСОБА ОХРАНЫ ГОРНЫХ ВЫРАБОТОК
ЛИТЕРАТУРА
1. ХАРАКТЕРИСТИКА МЕСТОРОЖДЕНИЯ И АНАЛИЗ УСЛОВИЙ
ОХРАНЫ И ПОДДЕРЖАНИЯ ВЫРАБОТОК
1.1 Горно-геологические условия
Основная кровля угольного пласта представлена песчаниками мощностью 7 м, 80 МПа.
Непосредственная кровля угольного пласта представлена глинистыми сланцами мощностью 2 м, 40 МПа.
Основная почва угольного пласта представлена песчаными сланцами мощностью 18 м, 70 МПа, непосредственная глинистые сланцы 5 м, 40 МПа.
Угольный пласт мощность 1,4 м, крепость по шкале Протодьяконова равна 1,6.
Исходя из исходных данных вмещающие породы не обводнены.
На исследуемом участке геологических нарушений не наблюдается.
Глубина разработки угольного пласта
750м, угол падения толщи пород 15 град
. Рассматриваемый пласт
отрабатывается первым.
1.2 Анализ
горнотехнической ситуации при отработке запасов на данном пласте
Шахтное поле вскрыто пятью вертикальными стволами.
Западный вентиляционный ствол погашен.
Ствол №2 находится на стадии ликвидации.
Способ подготовки шахтного поля по пласту l5’ - панельный.
Система разработки - сплошная, которая представлена на листе графической части
Схема проветривания шахты - центрально-отнесённая
Способ проветривания - всасывающий.
Управление кровлей в лавах - полное обрушение.
Подготовительные выработки проводятся комбайновым способом.
В качестве альтернативной рассматривается
комбинированная система разработки с преобладанием признаков столбовой.
2. ПРОЕКТИРОВАНИЕ УПРАВЛЕНИЯ СОСТОЯНИЕМ МАССИВА
ГОРНЫХ ПОРОД ПРИ ОХРАНЕ ГОРНЫХ ВЫРАБОТОК
2.1 Выбор места
расположения выработки относительно пласта и вмещающих пород, обоснование
способа проведения, формы и величины поперечного сечения выработки
На рис.2.1 указано расположение выработки относительно пород вмещающих угольный пласт.
С точки зрения охраны выработки, безусловно, выгодно применять проходческий комбайн для проведения данной выработки, так как при этом зона трещиноватости пород вокруг выработки будет меньше, чем при БВР, а значит, будут меньше и конечные смещения выработки на контуре выработки.
Нами было принято арочная форма поперечного сечения выработки, так как в слабых породах следует отдавать предпочтение арочной формы крепи.
В данных условиях выработку лучше располагать так, чтобы плоскость угольного пласта проходила через центр выработки для удобства ведения очистных работ.
Рисунок 2.1 - схема к расчету средневзвешенной прочности пород вокруг выработки
2.2 Определение физико-механических
свойств горных пород и условий поддержания выработки
Рассчитаем средневзвешенную прочность пород
вокруг выработки, средневзвешенную прочность пород кровли выработки и почвы
исходя из следующего выражения:
где:
![]()
- Коэффициент структурного
ослабления пород трещинами массива;
![]()
-Коэффициент, учитывающий длительную
технологическую обводнённость выработки; применяется равным 1, т. к.
обводненость отсутствует;- мощность пласта, м;прочность слоя пород, МПа;
Определение средневзвешенных прочностей для кровли и почвы пластовой выработки.
2.3 Выбор и
обоснование способов охраны выработки и их параметров
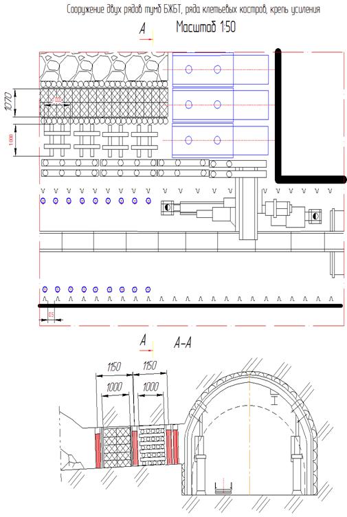
рис. 2.2 Охрана выработки БЖБТ
На шахте применяется сплошная система разработки. Опережение участкового конвейерного ходка от лавы составляет 50 м. Выработки охраняются двумя рядами тумб БЖБТ, одним рядом клетьевых костров (для сохранения слоев кровли) и двумя рядами крепи усиления.
Проверим число тумб БЖБТ на 1п.м
выработки по формуле (5.11)

Ближайшее значение 4 тумбы на 1 п. м выработки. Следовательно, принятое количество рядов на шахте верное.
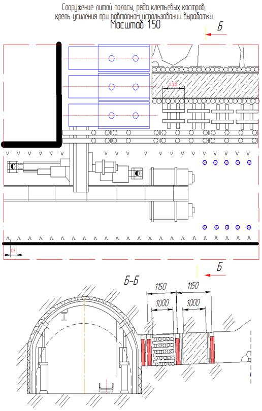
В качестве альтернативы принимаем комбинированную систему разработки.
Для обеспечения устойчивости повторно используемой выработки со стороны выработанного пространства принимаем тип охраны литую полосу.
Преимущества данной системы разработки и способа охраны:
нагрузка на лаву увеличится за счет подсвежения исходящей струи воздуха из лавы;
механизация рабочих процессов;
Данное искусственное сооружение (литые полосы из быстротвердеющих материалов) подходит по условиям:
мощность пласта до 2,5м;
угол падения пласта до 35 град;
тип кровли средне- и трудно-обрушающаяся;
сопротивление сжатию пород почвы,
более 30 МПа.
Рисунок 2.3 - Охрана выработки литой полосой
2.4 Расчёт
смещений пород в горных выработках по вариантам охраны при минимальной
плотности установки крепи
Определим конечные смещения в начале
и конце ходка при плотности крепи 1р/м для комбинированной системы разработки
по формулам:
= 0,8- коэффициент, учитывающий
способ проведения выработки, при комбайновом способе проведения принимается по
таблице 5.15;
- смещение пород под влиянием
проведения выработки, мм;
![]()
-скорость смещения пород вне зоны
влияния очистных работ, мм/мес;
![]()
![]()
-время поддержания данного сечения
выработки вне зоны влияния очистных работ.
![]()
-смещения пород в зоне временного
опорного давления лавы, мм;
- коэффициент учитывающий влияние
площади поперечного сечения выработки в свету(
)ед. Рассчитывается по формуле
;
-коэффициент, учитывающий долю
смещений пород кровли выработки в общих смещениях, ед. Рассчитывается по
формуле
т.к.
- смещение пород в зоне временного
опорного давления 2-й лавы, мм.- вынимаемая мощность угольного пласта, m=880мм.
- коэффициент, учитывающий влияние
податливости искусственных сооружений на опускание кровли выработки, ед.
=0,1-для
литых полос.
скорость смещения пород почвы
выработки в зоне остаточного опорного давления, мм/мес. Рассчитывается по
формуле
![]()
-время поддержания выработки после
прохождения лавы, мес.;
![]()
- время поддержания выработки до
подхода лавы, мес.;
Для начала ходка
где
- длинна крыла 1065 м;
- скорость проходки 90,2 м/мес;
где
- скорость прохождения очистного
забоя 71,96 м/мес;
Для конца ходка
мес
Для начала выработки
Для конца выработки
Определим смещения при сплошной системе разработки в начале в начале участкового вентиляционного ходка
где
- общин смещения пород в
выработках, оформленных позади лавы, мм
мм
- коэффициент учитывающий
конструкцию искусственного сооружения, ед
где
- коэффициент учитывающий
конструкцию искусственного сооружения, ед. Рассчитывается по формуле
- расстояние между выработкой и
жестким элементом искусственного сооружения 1,75 м;
- коэффициент, учитывающий жесткость
элемента, ед. Для БЖБТ
=0,96
- коэффициент, учитывающий ширину
жесткого элемента, ед.
- ширина жесткого элемента 5,2м