Курсовая работа
Тепловой и
аэродинамический расчет котельного агрегата ДЕ-17-14ГМ, выбор тягодутьевых
устройств
Введение
котел топливо экономайзер дымосос
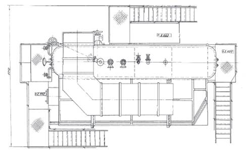
Техническое описание котла ДЕ-17-14ГМ
Газомазутный вертикально-водотрубный паровой котел с естественной циркуляцией типа ДЕ производительностью 4; 6,5; 10; 16 и 25 тонн пара в час предназначены для выработки насыщенного или слабоперегретого пара, используемого на технологические нужды промышленных предприятий, в системах отопления, вентиляции и горячего водоснабжения.
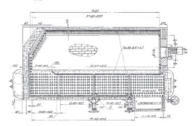
В курсовой работе рассчитан котел ДЕ-16-14ГМ. Топочная камера двух барабанного вертикально-водотрубного котла размещается сбоку от конвективного пучка, оборудованного вертикальными трубами, развальцованными в верхнем и нижнем барабанах (Рис. 2). Основными составными частями котлов являются верхний и нижний барабаны, конвективный пучок и образующие топочную камеру левый топочный экран, газоплотная перегородка, правый топочный экран, трубы экранирования фронтовой стенки топки и задний экран (Рис. 1).
Барабаны котлов изготавливаются из стали 16ГС ГОСТ 5520-79 и имеют толщину стенки 13 мм для котлов с рабочим давлением 1,4 МПа. Для доступа внутрь барабанов в переднем и заднем днищах барабанов имеются лазы.
Конвективный пучок образован коридорно-расположенными вертикальными трубами Ø51×2,5 мм, присоединенными к верхнему и нижнему барабанам. Длинна конвективного пучка - по всей длине цилиндрической части барабанов.
Котлы паропроизводительностью 16 и 25 т/ч перегородок в пучке не имеют, а необходимый уровень скорости газов поддерживается изменением ширины пучка. Конвективный пучок от топочной камеры отделен газоплотной перегородкой (левым топочным экраном), в задней части которой имеется окно для входа газов в пучок.
Трубы газоплотной перегородки, правого бокового экрана, образующего также под и потолок топочной камеры, и трубы экранирования фронтовой стенки вводятся непосредственно в верхний и нижний барабаны.
Поперечное сечение топочной камеры для всех котлов одинаково. Средняя высота топочной камеры составляет 2400 мм, ширина 1790 мм.
Трубы правого топочного экрана Ø51×2,5 мм устанавливаются с продольным шагом 55 мм; на вводе в барабаны трубы разводятся в два ряда отверстий. Экранирование фронтовой стенки выполняется из труб Ø51×2,5 мм.
Газоплотная перегородка выполняется из труб Ø51×4 мм, установленных с шагом 55 мм. На вводе в барабаны трубы разводятся в два ряда отверстий. Вертикальная часть перегородки уплотняется вваренными между трубами металлическими проставками. Участки разводки труб на входе в барабаны уплотняются приваренными к трубам металлическими пластинами и шамотобетоном.
Основная часть труб конвективного пучка и правого топочного экрана, а также трубы экранирования фронтовой стенки топки присоединяются к барабанам вальцовкой.
Трубы газоплотной перегородки, а также часть труб правого топочного экрана и наружного ряда конвективного пучка, которые устанавливаются в отверстиях, расположенных в сварных швах или в околошовной зоне, привариваются к барабанам электросваркой.
Трубы заднего экрана Ø51×2,5 мм, установленные с шагом 75 мм, привариваются к верхнему и нижнему коллекторам экрана Ø159×6 мм, которые в свою очередь, привариваются к верхнему и нижнему барабанам. Концы коллекторов заднего экрана со стороны, противоположной барабанам, соединяются необогреваемой рециркуляционной трубой Ø76×3,5 мм.
На всех котлах для защиты от теплового излучения со стороны топки рециркуляционных труб и коллекторов заднего экрана в конце топочной камеры устанавливаются две трубы Ø51×2,5 мм, присоединяемые к барабанам вальцовкой.
В водяном пространстве верхнего барабана находится питательная труба и направляющие щиты, в паровом объеме - сепарационные устройства. В нижнем барабане размещается устройство для правого прогрева воды в барабане при растопке и патрубки для спуска воды.
В качестве первичных сепарационных устройств используются установленные в верхнем барабане направляющие щиты и козырьки, обеспечивающие выдачу паровой смеси на уровень воды. В качестве вторичных сепарационных устройств применяются дырчатый лист и жалюзийный сепаратор.
Отбойные щиты, направляющие козырьки, жалюзийные сепараторы и дырчатые листы выполняются съемными для возможности полного контроля и ремонта вальцовочных соединений труб с барабаном.
На котлах производительностью 16 т/ч предусмотрена непрерывная продувка из второй ступени испарения (соленой отсек) верхнего барабана и периодическая продувка из чистого и соленого отсеков нижнего барабана и нижнего коллектора заднего экрана.
На котлах производительностью 16 т/ч выход дымовых газов осуществляется через окно, расположенное в левой боковой стенке котла в конце (по ходу газов) конвективного пучка.
Для обдувки котлов используется насыщенный или перегретый пар работающих котлов при давлении не менее 7 кгс/см2. Для удаления отложений из конвективного пучка устанавливаются лючки на левой стенке котла. У всех котлов на фронте топочной камеры имеется лаз в топку, расположенный ниже горелочного устройства, и три лючка-гляделки - два на правой боковой и один на задней стенках топочной камеры.
На котлах производительностью 16 т/ч три взрывных клана: один на фронтовой стенке топочной камеры и два на газоходе котла.
Для изоляции котла предусмотрены асбестовермикулитовые плиты или равноценные им по теплофизическим характеристикам. Обмуровка фронтовой стенки выполняется из огнеупорного шамотного кирпича класса А или Б, диатомового кирпича, изоляционных плит; обмуровка задней стенки - из огнеупорного шамотного кирпича и изоляционных плит.
Для уменьшения присосов снаружи изоляция покрывается металлической листовой обшивкой толщиной 2 мм, которая приваривается к обвязочному каркасу.
Вода, используемая в парогенераторах и водогрейных котлах, в зависимости от участка технологической цепи, на котором она используется, носит различные названия. Вода, поступающая в котельный цех от различных источников водоснабжения, называется исходной или сырой водой. Эта вода поступает для предварительной химической подготовки перед использованием ее для питания парогенераторов и водогрейных котлов.
Вода, поступающая для питания парогенераторов и предназначенная для восполнения испарившейся воды, называется питательной водой, а для восполнения потерь или расходов воды в тепловых сетях - подпиточной водой. Котловой водой называют воду в парогенераторе, из которой получается пар.
Пар, получаемый в промышленных парогенераторах, направляется в различные теплоиспользующие аппараты, конденсат из которых возвращается не полностью. Кроме того, часть пара и воды при наличии неплотностей теряется. В связи с этим необходимо систематически добавлять некоторое количество воды извне. В водогрейные котлы также приходится добавлять некоторое количество воды из-за ее утечек в системе теплоснабжения или использования потребителями.
Лучшей для питания парогенераторов является вода, получаемая при конденсации пара, так как в ней содержится незначительное количество загрязняющих ее веществ. Вода, получаемая из различных источников водоснабжения, всегда хуже конденсата. Поэтому сырую воду перед использованием для питания парогенераторов или подпитки тепловых сетей предварительно обрабатывают с целью улучшения ее качества.
Качество сырой, питательной, подпиточной и
котловой воды характеризуют сухим остатком, общим солесодержанием, жесткостью,
щелочностью, содержанием кремниевой кислоты, концентрацией водородных ионов и
содержанием коррозионно-активных газов.

Рис. 1. Продольный разрез котла ДЕ-16-14ГМ

Рис. 2. Поперечный разрез котла ДЕ-16-14ГМ
Рис. 3. Фронтальный разрез котла ДЕ-16-14ГМ
Рис. 4. Вид сверху котла ДЕ-16-14ГМ
Задаемся исходными данными:
1. Взят за прототип котел ДЕ-16-14ГМ и рассчитан с паропроизводительностью D=17 т/ч, вырабатывающий насыщенный пар давлением P=14 бар.
2. Питательная вода поступает из деаэратора при температуре tп.в=100◦С.
3. Котел оборудован водяным экономайзером системы ВТИ
[3, стр. 317].
4. Котел работает на газовом топливе. Состав природного газа газопровода Брянск - Москва по объему в%. [1, таблица 1.4. стр. 11]
5. Непрерывная продувка составляет 5%.
Состав топлива и его теплота сгорания
В связи с заданным родом топлива берем его рабочий состав [1, таблица 1.4. стр. 11]:
Углекислота CO2 0,1%
Метан CH4 92,9%
Этан C2H6 4,1%
Пропан C3H8 0,8%
Бутан C4H10 0,3%
Пентан C5H12 0,3%
Азот N2 1,6%
Низшая теплота сгорания Qнс = 8340 ккал/м3 = 34944 кДж/м3
Плотность газа 0,776 кг/м3
Низшая теплота сгорания сухого газообразного топлива
вычисляется по формуле [2, стр. 31]:
![]()
, ![]()
м3,
где ![]()
=8560 ![]()
м3; ![]()
=15230 ![]()
м3; ![]()
=21800 ![]()
м3; ![]()
=28350 ![]()
м3; ![]()
= 34900 ![]()
м3.
![]()
=0,01∙[0∙5585+3018∙0+2579∙0+8560∙92,9+15230∙4,1+21800∙0,8+0,3∙28350+0,3∙34900]
= 8330 ккал/м3.
Низшая теплота сгорания сухого газа, в дальнейшем
используемую в курсовой работе [2, стр. 31]:
![]()
.
Количество присасываемого воздуха выбираем в соответствии с
данными таблицы II.27 [1, c. 106,116]. Значение коэффициента избытка воздуха в топке αт=1,1, а все остальные определяются равными:
Далее определяем объем воздуха, необходимый для горения, а так же
состав и объем газов при
; теоретическое количество воздуха,
необходимое для горения, подсчитывается по уравнению:
Теоретическое количество воздуха, необходимое для горения:
Теоретический объем трехатомных газов находим по уравнению:
Теоретический объем двухатомных газов находится по уравнению:
Теоретический объем водяных паров находим по уравнению:
Определяем объем избыточного воздуха для разных пунктов котельного
агрегата по формуле:
Действительный объем сухих газов:
;
при α=αт=1,1: Vс.г. = 1,063 + 7,86 + 0,1*9,93 = 9,916м3/м3,
при α=αк=1,2: Vс.г. = 1,063 + 7,86 + 0,2*9,93 = 10,909м3/м3,
при α=αэ’=1,3: Vс.г. = 1,063 + 7,86 + 0,3*9,93 = 11,902 м3/м3.
Действительный объем водяных паров:
;
при α=αт=1,1:
= 2,218 + [0,016 (1,1-1) 9,93] = 2,234 м3/м3,
при α=αк=1,2:
= 2,218 + [0,016 (1,2-1) 9,93] = 2,250м3/м3,
при α=αэ’=1,3:
= 2,218 + [0,016 (1,3-1) 9,93] = 2,266м3/м3.
Общий объем дымовых газов:
;
при α=αт=1,1:
= 9,916 + 2,234 = 12,15 м3/м3,
при α= αк=1,2:
= 10,909 + 2,250 = 13,16 м3/м3,
при α= αэ’=1,3:
= 11,902 + 2,266 = 14,170м3/м3.
Объемная доля трехатомных газов:
;
при α=αт=1,1:
= 1,063/12,15 = 0,087,
при α= αк=1,2:
= 1,063/13,16= 0,08,
при α= αэ’=1,3:
= 1,063/14,17 = 0,075.
Объемная доля водяных паров:
при α=αт=1,1:
=2,218/12,15=0,184,
| [Методичка] Остеология |
| 00539 |
| 02.03 |
| 0501 Конунников ЛР1-1 |
| 10-2_ЛР |
| 10Лекция 10 |
| 1136 |
| 1304 |
| 131 |
| 1362 |